Чертеж дома с размерами 8 на 8: Проекты домов 8 на 8 метров, 8х8
Проекты домов из бруса 6 на 8 (6х8)
Дома из бруса 6 на 8 метров достаточно просторны даже для относительно большой семьи. Строительство загородных коттеджей и построек такого размера размерами будет оптимально для земельных участков длинной или узкой конфигурации.
Компания «Белый Журавль» предлагает выбрать один из 3 типовых проектов домов из бруса 6х8 м, зданий похожих размеров или отправить заявку на индивидуальный расчет . Для строительства мы используем сырье собственного производства – это дает возможность значительно уменьшить цену деревянного жилья.
Проекты и цены на дома из бруса 6х8
Купить дом 6 на 8 под ключ чаще всего решают по следующим соображениям:
- Использование сухого профилированного бруса снижает время строительства.
- Даже с базовой теплоизоляцией сооружение получается достаточно теплым (экономия на обогреве).
- При небольших размерах основания дом с мансардой или вторым этажом будет достаточно просторным (если использовать типовую планировку или правильно распланировать внутреннее пространство Вашего проекта).
В нашем каталоге на сайте вы найдете проекты домов из бруса 6 на 8 м, отличающиеся и по характеристикам, и цене:
- Самый доступный вариант — небольшой домик с террасой и двумя спальнями в мансардном этаже.
- Если вам нужно жилье для большой семьи, то можно выбрать вариант с 3 или 4 спальнями в мансарде.
- Двухэтажный проект при реализации потребует больших затрат – но зато вы получите жилье с максимальной площадью внутреннего пространства.
Цены могут изменяться в зависимости от комплектации объекта, но цифры, указанные в каталоге, помогут вам оценить общий масштаб расходов.
Проекты домов 8 на 8 готовые и типовые. Каталог содержит планировки, планы и чертежи
Красивые проекты домов 8 на 8: каталог, фото
Правила выбора готового проекта дома
Процесс строительства нового дома требует достаточно больших затрат труда и денежных средств. Поэтому прежде чем купить проект дома, необходимо ознакомится с рядом вопросов, влияющих на его выбор.
Рассмотрим моменты, которые нужно учитывать, выбирая планы домов 8 на 8:
- Особенности строительного участка.
Застройщикам важно определиться с участком под строительство до покупки готового проекта частного дома 8 на 8. Это объясняется тем, что индивидуальные особенности участка (тип грунта, рельеф и др.) могут существенно сузить выбор разработок. О правилах выбора хорошего земельного участка под застройку мы подробно написали в этой статье.
Допустим и обратный вариант, когда сначала приобретается типовой проект дома и только потом подбирается участок, соответствующий всем условиям застройки.
Для реализации проектов квадратных домов 8 на 8 под ключ подходят участки практически любой формы. Главное чтобы площадь участка была больше 4 соток.
- Расходы на реализацию проекта.
Проекты домов застройщики, как правило, выбирают исходя располагаемых ими средств на строительство. К сожалению, изначально со стопроцентной точностью определить стоимость реализации проекта под ключ невозможно, поскольку на ее показатель влияет несколько факторов. Смета может быть составлена, когда уже будет выбран участок под застройку, технология, строительные материалы и др. В зависимости от региона застройки расходы могут увеличиваться в несколько раз.
Располагая небольшим количеством средств, застройщики могут выбрать бюджетные проекты.
Как это сделать мы написали здесь.
- Этажность будущего жилого дома 8 на 8.
При выборе проекта застройщик должны ознакомиться с плюсами и недостатками домов разной этажности.
Одноэтажная планировка проектов домов 8 на 8 подразумевает протекание жизни в одной плоскости, что является удобным и безопасным решением, поскольку нет необходимости пользоваться лестницей. Однако в реализации одноэтажные проекты дороже домов с мансардой такой же площади, ведь для них требуется большая площадь фундамента и кровли.
Дома с мансардой хороши тем, что можно четко и удобно выполнить зонирование пространства, отведя полностью площадь верхнего этажа под ночную зону. Мансардные дома подойдут для небольших участков. Преимущество домов с мансардой перед одноэтажными строениями и в том, что в них дольше задерживается тепло. Из недостатков мансардных домов можно выделить только наличие низкой аттиковой стены и скошенных скатов кровли. Однако грамотно разработанный дизайн домов 8 на 8 с мансардой позволяет сделать комнаты удобными и функциональными, устраняя этот недостаток. К увеличению расходов приводит и необходимость утепления кровли по всей площади.
Преимуществом двухэтажных домов является возможности использования полноценных двух этажей. Однако реализация двухэтажных проектов обходится дороже мансардных домов такой же площади.
Дома с чердаком, который можно обустраивать постепенно, являются промежуточным решением между мансардными и одноэтажными домами.
- Планировка домов 8 на 8 с прогнозом потребностей в будущем.
Выбирая проекты домов 8 на 8 (фото, видео, чертежи, эскизы помещены на сайт) рекомендуется учитывать потребности будущего. Дом, который сейчас кажется лучшим решением для семьи, через десяток лет может быть тесным и неудобным. Поэтому рекомендуем предусмотреть 1-2 дополнительные комнаты, которые сейчас можно использовать как мастерскую или кабинет.
- Возможность внесения коррективов в планы проектов домов 8 на 8.
Застройщики не должны отказываться от понравившегося проекта, если в нем присутствуют незначительные несоответствия их пожеланиям и требованиям. Проектировщики компании смогут внести любые корректировки в выбранную разработку, не навредив при этом ни прочности, ни надежности дома.
Проекты коттеджей 8 на 8 популярны среди застройщиков в 2018 году и пользуются спросом. Именно поэтому, мы пополняет наш каталог разработок новыми оригинальными проектами с функциональными и комфортными планировками.
Проектная документация
Цены на разработки компании Z500 можно смотреть на сайте компании. К каждому проекту прилагается подробная проектная документация, которая включает 5 разделов:
- конструктивный,
- архитектурный,
- инженерный раздел из 3 частей (схемы разводок систем отопления и вентиляции, схемы водо- и электроснабжения).
Ниже для ознакомления мы поместили пример проектной документации.
Архитектурные проекты Z500 гарантируют застройщикам правовую безопасность при строительстве дома, поскольку каждая наша разработка защищена авторским правом.
Одноэтажный дом 8 на 8, проект одноэтажного дома 8х8.
Проект одноэтажного дома 8х8. ОД№8
Зеленый ухоженный участок, огороженный забором, в окружении соснового леса в загородной зоне и на нем красивый одноэтажный дом 8 на 8 из профилированного бруса, что может быть прекраснее этого зрелища. Современные пластиковые окна, двухскатная крыша под металлочерепицей, прочный столбчатый фундамент, обложенный декоративной плиткой, деревянная дверь и просторная терраса под навесом встречает перед взором покупателя, желающего поселиться в этом райском уголке среди волшебных пейзажей. Все дорожки на участке выложены тротуарной плиткой, посажены зеленые кусты. Здесь по утрам в открытое окно слышны птичьи трели, а по вечерам можно наблюдать восхитительный закат над лесом, сидя на террасе с чашечкой чая.
Дом прекрасен не только снаружи, но и внутри. Площадь террасы составляет 16,00 кв. м, далее следует прихожая 13, 25 кв. м, а также две комнаты 13, 25 кв. м и 15, 82 квадратных метра. Поселиться в этом уютном гнездышке можно всей семьей, чтобы наслаждаться красотой окружающей природы, приглашать друзей на выходные к себе на шашлыки, любоваться родной природой и дышать чистым воздухом вдали от пыльных городских улиц. Дом построен из прочного, долговечного и экологически безопасного для проживающих в нем, материала.
Проект: ОД-8
Размеры: 8х8 м.
Площадь: 58,32 кв.м.
Этажность: один этаж
Тип материала: брусовое исполнение
Цена: профилированный брус 100х150 мм.(толщина стены 10см.): 503.000 руб
Цена: профилированный брус 150х150 мм.(толщина стены 15см.): 531.000 руб
Цена: профилированный брус 150х200 мм.(толщина стены 20см.): 585.000 руб
Тип материала: каркасное исполнение
Цена: комплектация «Дачная» (плитный утеплитель Rockwool - 100мм.): 534.000
Цена: комплектация «Под ПМЖ» (плитный утеплитель Rockwool - 200мм.): 633.000
Цена: комплектация «Под отделку»(готовый каркас с кровлей без отделки внутри): 383.000
Техническое описание:
| Фундаменты Столбчатый: | Предлагаем три варианта фундамента. Опорно-столбчатый фундамент. Базовый и доступный фундамент, столбчатый на опорах из блоков. Блок с размерами 20х20х40см, в одной опоре 4 шт. блока (высота над землёй) 40см. Подробнее столбчатый фундамент |
|---|---|
| Свайный: | Свайно-винтовой фундамент. Длинна сваи металлической 2,5 м., диаметр ствола 108 мм., толщине стенки ствола 4 мм., диаметр лопасти 300 мм. и толщина лопасти 4-5 мм. рабочая нагрузка на винтовую сваю составляет не менее 4 т. (По СНиП 2.02.03-85. Свайные фундаменты).Снаружи свая покрывается антикоррозийным составом до монтажа. Подробнее свайный фундамент |
| Ленточный: | Ленточный мелкозаглубленный фундамент. Основные размеры армированной бетонной ленты 40х20, 70 х20, 30х80 см. В монтаж входит рытье траншей, устройство опалубки, арматурного каркаса, заливка готовой бетонной смесью, доставляемой миксером на объект, устройство продухов в цоколе. Подробнее ленточный фундамент |
| Обвязка | Брус целиковый 150х150 мм Подробнее обвязка |
| Половые лаги: | Брус 100х150 мм, через 90-100 см. Подробнее лаги |
| Строганный профилированный брус 95х145 (145х145мм, 190х145мм), на джутовом полотне. Подробнее профилированный брус | |
| Джут: | Межвенцовый утеплитель «джут», джутовое волокно прокладывается между рядами бруса. Подробнее джут |
| Тип рубки: | Тип рубки стен сруба «в тёплый угол»(шип-паз) Подробнее рубка углов |
| Стены 1-го этажа: | Строганный профилированный брус 95х145мм на джуте. Подробнее перегородки 1 этажа |
| Стены 2-го этажа: | Нет |
| Фронтоны: | Брусовые: строганный профилированный брус 95х145мм (145х145мм 190х145мм) Подробнее фронтон. Или каркасно-щитовые (с отделкой вагонкой) |
| Утепление: | Пол и потолок на 100мм, утеплитель «ursa» (или аналоги), с прокладкой пароизоляционной плёнки. Подробнее утепление |
| Двери: | Входная – металлическая. Филенчатые, обналиченные, без фурнитуры, размером 2х0,8 м. Подробнее двери |
| Окна: | Деревянные с двойным остеклением, с фурнитурой, обналиченные, размером 1,0х1,2 м. Подробнее окна |
| Стропила: | Стропила из доски 40х150мм с шагом не более 0,9м Подробнее стропила |
| Обрешётка: | Обрешетка выполняется из обрезной доски толщиной 20 мм с шагом не более 400мм. Подробнее обрешётка |
| Кровля: | Ондулин (на выбор: красный, зеленый, коричневый). Подробнее ондулин и кровля |
| Пол черновой: | Конструкция пола состоит из пирога: черновой – обрезная доска 20 мм, чистовой – шпунтованная доска 28 мм, с парогидроизоляцией изоспан и утеплением «ursa» (100 мм). Подробнее черновой пол |
| Пол чистовой: | Чистовая доска пола шпунт 28мм. Подробнее чистовой пол |
| Высота: | Высота этажа – 2,5 м. (18 венцов). |
| Потолки: | Потолки подшиваются сухой вагонкой, сорт B. Подробнее потолки |
| Пароизоляция: | Паро- и гидроизоляционные «изоспан» («ондутис»). Подробнее пароизоляция |
| Лестница: | Лестница деревянная на второй этаж одномаршевая(двухмаршевая) с перилами и ограждением из резных балясин. Подробнее лестницы |
| Карнизы: | Карнизы (свесы), поднебесники подшиваются вагонкой. Подробнее карниз |
| Наличники: | Наличники на оконные или дверные проёмы с двух сторон |
| Углы внутри: | На все стыки потолка,стен и пола прибивается плинтус |
| Углы снаружи: | Углы стен снаружи прикрываются наличниками |
↓ ↓ ↓
Дополнительно к комплектации можно заказать:
>>> подробнее дополнительные услуги
Перечень материалов, применяемых в строительстве
Собственное производство профилированного бруса
>>> подробнее о производстве
Дом 8 на 9 — готовые проекты частных домов, а также 100 фото удачной планировки
На данном этапе времени, всё более популярными становятся дома, в которых может проживать всего несколько человек.
Одним из таких и является частный дом с размерами 8*9.
Оглавление статьи:
Планировка одноэтажного дома
Если создавать проект дома 8 на 9 для семьи, состоящей из 4 человек – родители и двое детей, то первое что нужно распланировать это спальные комнаты. Необходимо подготовить две спальные комнаты, одну для родителей, вторую для детей.
Спальня для детей должна иметь большие размеры и содержать в себе все необходимые предметы для выполнения ребенком домашнего задания (можно сказать, что представленная комната должна выступать как в роли помещения для сна, так и в роли помещения для детских игр). Размеры родительской спальни должны составлять от 12 кв. м, а детской – от 18 кв. м.
Гостиная, где будут собираться члены семьи должна быть по площади около 20 кв. м. Осуществляя такую планировку дома 8 на 9, на кухонное помещение и ванную комнату выделяется 14-16 кв. м.
Кухонное помещение следует располагать ближе к входу в дом. Таким образом, из прихожей можно создать три выхода: первый – в совместную ванную комнату, второй – в кухонное помещение, третий – в гостиную.
Разобравшись с тем, какая площадь дома выделяется на каждое помещение, проанализируйте из каких комнат и куда будут выходить окна. Эти действия нужно осуществить ещё до начала постройки дома.
К примеру, из коридора и родительской спальни окна могут выходить на северную сторону, из детской комнаты – на запад (это объясняется тем, что дети не всё время проводят в комнате, посещая учебные заведения), окна из кухонного помещения – на восток, а окна из гостиной – на юг.
Кроме того, если вы постоянно проживаете в указанном доме, то можно создать специальный тамбур, это защитит от проникновения холода в дом при открытии входной двери. Для дачного дома подобные строительные манипуляции будут лишними.
Если в доме присутствует отопление от котельной, то для всего необходимого для её функционирования оборудования, желательно выделить отдельную комнату.
Особенности планировки двухэтажного дома
Если вы создаете двухэтажный дом с размерами 8 на 9, то здесь для детей можно создать отдельные спальные комнаты. При этом согласно классической планировке, спальные комнаты располагаются на втором этаже, а первом этаже обустраиваются комнаты, предназначенные для хозяйственной деятельности, а именно бойлерная, гардероб, ванная комната и туалет, кухня и гостиная.
Двухэтажное жилище обладает своими достоинствами и недостатками, поэтому разрабатывая план дома 8 на 9, детально обдумайте, нужен ли вам этот этаж. Естественно, если в доме два этажа, то присутствует больше места, к тому же чётко разделены зоны использования, но затраты на электрическую энергию и отоплению тоже значительно увеличиваются.
Создание мансардного этажа
Кроме того, при размерах помещения 8*9, вполне можно построить дом с мансардой.
Одним из вариантов размещения на мансардном этаже можно считать три спальные комнаты, второй санузел и небольшой холл.
Попасть на этаж можно с помощью лестницы. Поднимаясь по лестнице человек должен попадать в холл, размеры которого составляют около 2 кв. м. Это очень маленькая площадь, поэтому использовать помещение в различных функциональных целях не получится.
С холла можно попасть в любую из трёх спальных комнат, их примерные размеры составляют 10, 17 и 11 кв.м. В каждом из помещений можно поместить большое окно, которое будет зонировать пространство комнаты. Наличие таких окон обеспечит строению лучшее освещение и придаст некой лёгкости.
Многие люди, во время разработки планировки мансардного этажа отказываются от установки больших окон, вследствие чего, помещения, расположенные на этаже, становятся очень тёмными, и для комфортного нахождения в них приходиться использовать многочисленное количество искусственных светильников.
Проблема искусственного света в том, что он всё равно не в состоянии придать помещению нужной плавности, к тому же тратится большое количество электрической энергии.
Если нет необходимости создавать на мансардном этаже целых три спальных комнаты, то одну из комнат можно использовать в качестве кабинета для работы. Или же, вообще, можно скомбинировать пространство комнаты, создав в одном помещении рабочую и спальную зону.
Что касается расположенной на этаже ванной комнаты, то её площадь должна быть 4-5 кв. м. Такой площади вполне хватит для установки унитаза, раковины, ванны или душевой кабинки.
Лучший выбор: одноэтажные, двухэтажные или дома с мансардой
Для того чтобы определиться, какой именно вариант дома из представленных выше подойдет именно для вас, нужно изначально ознакомиться со всеми недостатками и достоинствами каждого из строений.
Одноэтажные дома являются наиболее дорогостоящим решением. В таких зданиях потребуется много времени и сил для фундаментных и кровельных работ, в среднем, затраты на их выполнение составляют 30% от общей стоимости.
Но такое здание обладает и рядом достоинств, самым важным из которых является возможность комфортного перемещения по дому без преград, что очень полезно при наличии в жилище пожилых людей и маленьких детей.
Гораздо выгоднее для застройщика остановить свой выбор на доме с мансардой, поскольку при идентичных затратах на кровельные и фундаментные работы, здание обладает большей площадью. В доме такого типа не составит труда отделить рабочую зону и зону для отдыха.
Кроме того, такой тип домов считается энергосберегающим, но чтобы это действительно было так нужно дополнительно утеплить крышу, что увеличит денежные растраты. Среди недостатков можно выделить скошенные скаты.
Двухэтажный дом находится в средней ценовой нише, поскольку для его постройки потребуется больше денежных средств, нежели для возведения мансардного этажа, но так у вас появиться возможность пользоваться полноценным вторым этажом.
На сегодняшний день существует множество строительных и дизайнерских фирм, которые занимаются возведением и внутренним оформлением жилых зданий представленных размеров.
Обратившись в эти фирмы, вы разу сможете подобрать подходящий для себя вариант планировки и оформления, ознакомившись с фото частных домов 8 на 9.
Фото домов 8 на 9
Просмотров 1 296
Вам понравилась статья?
| Обвязочный ряд | Обрезной брус естественной влажности — 150х150мм (1 ряд). Укладывается на фундамент с прокладкой из рубероида. |
| Лаги | Обрезная доска естественной влажности — 150х50мм с шагом 0.58м. К лагам крепятся черепные бруски 40х50мм для монтажа чернового пола. |
| Черновой пол | Обрезная доска естественной влажности — 20х100мм, устанавливается на черепные бруски |
| Каркас дома | для домов с утеплением 100мм — обрезная доска естественной влажности — 100х40мм с шагом 0.58м для домов с утеплением 150мм — обрезная доска естественной влажности — 150х40мм с шагом 0.58м |
| Каркас перегородок | Обрезная доска естественной влажности — 100х40мм с шагом 0.58м |
| Внешняя отделка | Имитатор бруса или блок-хаус камерной сушки |
| Внутренняя отделка | Хвойная евровагонка |
| Балки перекрытия | Обрезная доска естественной влажности — 150х50мм с шагом 0. 58м |
| Стропила | Обрезная доска естественной влажности — 150х50мм с шагом 0.58м |
| Высота потолка | 2.45м. |
| Фронтоны | для домов с утеплением 100мм — обрезная доска естественной влажности — 100х40мм с шагом 0.58м для домов с утеплением 150мм — обрезная доска естественной влажности — 150х40мм с шагом 0.58м |
| Карнизы | Карнизы, поднебесники и углы дома — хвойная вагонка |
| Обрешетка | Обрезная доска естественной влажности — 20х150мм с шагом 0.3м |
| Кровля | Ондулин (красный, коричневый, зеленый) |
| Чистовой пол | Шпунтованная половая доска камерной сушки – 36мм |
| Утеплитель | — базальтовая вата «Роквул лайт баттс» |
| Пароизоляция | Ондутис R70 и Ондутис А100 |
| Окна | Деревянные с двойным остеклением (с фурнитурой) |
| Двери | межкомнатные — деревянные филенчатые – 2х0.8м (с фурнитурой) |
| Фундамент | Не входит в базовую стоимостьи |
| Бесплатная доставка | Москва – 100км от МКАД (далее – 65руб/км) Санкт-Петербург – 100км от КАД (далее – 65руб/км) Пестово — 500км (далее – 65руб/км) |
Проект дома с печкой | Компания «Кострома Терем»
Печка в частном доме всё более популярна с каждым годом.
Это связано с тем, что она хорошо вписывается в интерьер, способна полностью обеспечивать нагревом создание и не требует дополнительных затрат на свое обслуживание.
Предлагаем вам проект деревянного дома с печкой под ключ. Начиная от выбора планировки и заканчивая отделочными работами. Весь комплекс услуг от одного исполнителя!
Нюансы расположения печи
Проекты деревянных домов из бруса с печью требуют аккуратности в разработке и выполнении. Это связано с обеспечением пожарной безопасности и правильным размещением печи в интерьере. В работе мы используем опыт многих поколений, для которых печь была единственным источником обогрева.
Современные проекты домов с печным отоплением, как правило, требуют устройства и другого типа обогрева. Часто дополнительная система создается устройством газового или твердотопливного котла, а также электрических систем. Обязательно при проектировании и строительстве важно правильно подобрать материал для печи и расположить ее в строгом соответствии с пожарными правилами. Обезопасить деревянные конструкции от попадания углей и пламени.
Если вы выбираете проекты деревенских домов из бруса с печным отоплением, то нужно знать, что они разрабатываются с разным расположением основной конструкции. Обычно печь устанавливается таким образом, чтобы максимально полно раздавать тепло по всем комнатам. Чаще всего ее устраивают в центре здания и к ней пристраивают перегородки.
Сейчас разрабатываются дома с таким расположением:
- проект дома из бруса с печкой посередине относят к одним из популярных;
- печь, пристроенная к одной из наружных стен;
- с центральным расположением, но с несколькими топками и дымоходами; такой тип более гибкий, но требует больших затрат в обслуживании.
Нужен дом с печкой?
Вы решили приобрести проект деревенского или дачного дома с печкой или построить коттедж для постоянного проживания с такой конструкцией? Тогда представляем вам большой ассортимент таких решений в нашем каталоге.
Здания с печкой представлены у нас разные этажности и планировки. Вы всегда найдете подходящее решение для себя.
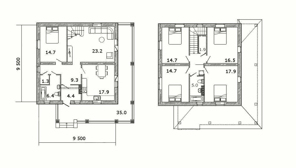
Дома из бруса 8 на 8 (8х8) — проекты домов из бруса 8 на 8 под ключ, брусовые дома 8 8
Дом из бруса 8х8 — оптимальный вариант для загородного дома. В нем может проживать большая семья из 7 и более человек. Здание обеспечит приятную прохладу знойным летом, убережет от лютых морозов зимой. Долговечен, легко возводится и экономит время. Имеет множество вариантов планировок и кровли.
Преимущества работы с нами
= $value[1]; ?>В базовую комплектацию входит всё необходимое для надёжности строения без затрат на доп. услуги.
= $value[1]; ?>Для вашего удобства мы возводим дома и бани в короткие сроки и без задержек.
= $value[1]; ?>Мы работаем без посредников и используем собственные материалы.
= $value[1]; ?>Качество и надёжность наших домов проверена временем
Проекты домов из бруса 8х8 — преимущества:
Проекты домов из бруса 8х8 имеют следующие преимущества:
- Можно сэкономить на отоплении — к зданию подойдет печка, не обязательно покупать мощный котел.
- Дома из бруса экологически чисты, подойдут для людей с аллергией. Дерево защищено от насекомых, гниения и плесени специальным раствором.
- Можно создать собственную планировку и проявить дизайнерские способности. Разнообразие видов кровли позволит впечатлить гостей.
- Отличная альтернатива: благодаря возможности сборки и последующего монтажа, дом из бруса возводится быстрее классической дачи, и не уступает в комфорте.
- Хорошо подойдет для проведения каникул или отпуска. В доме можно создать детскую комнату, а если построить дом с мансардой — открывается возможность провести романтическое свидание.
Проекты домов из бруса 8 на 8 — особенности:
Натуральная древесина является на сегодня самым востребованным строительным материалом.
Дом из бруса 8 на 8 органично впишется в любой природный ландшафт. Кроме того, строительство загородного дома из древесины имеет очевидные преимущества:
- Простота сборки. Дом можно построить недорого и в максимально короткие сроки, в пределах полутора месяцев, без учета закладки фундамента.
- Эстетичность. Традиционный деревянный домик не требует внешней, внутренней отделки. Достаточно обработать поверхности специальным защитным составом.
- Долговечность. Прочный и надежный дом из бруса 8х8 при должном уходе может простоять более полувека.
Главным достоинством деревянных строений является наличие большого количества окон, которые обеспечивают хорошее естественное освещение и вентиляцию внутренних помещений. Природная древесина выделяет в атмосферу уникальный природный аромат, благотворно влияющий на общее самочувствие всех проживающих в доме.
Купить дом из бруса 8х8 в СПб
Кстати! В городе Санкт-Петербург вы можете прийти в наш офис, и заказать постройку лично. Позвоните нам или подойдите в офис, и мы обсудим все нюансы вашего заказа, расскажем о сроках строительных работ, назовем цену. Стандартно предлагается 3 варианта планировки: 1 этаж, 2 этажа и с мансардой. Но вы всегда можете предложить что-то свое!
В цену возведения дома включается:
- Изготовление дома из бруса 8х8;
- Доставка материалов на участок;
- Подготовка и создание фундамента;
- Возведение дома согласно плану;
- Дополнительно возможно наружное утепление.
Процесс возведения полностью контролируется вами. Постройка дома может занять от 10 дней.
Фотографии домов
В этом разделе вы можете посмотреть фото построенных нами домов, подтверждающих наш профессионализм. Все строения были возведены согласно пожеланиям клиента и с учетом технических правил и стандартов. Каждое здание имеет свой внешний дизайн и кровлю.
В комплект дома из бруса 8х8 м входят:
Существует 3 типичных планировки домов из бруса 8х8 — одноэтажный, двухэтажный обычный и с мансардой.
В доме с 1 этажом обычно размещается прихожая, кухня, санузел, спальни, гостиная, а также котельная или место для печки. В двухэтажном площадь увеличивается в 2 раза, поэтому на первом этаже чаще всего создаются гостиная, кухня, столовая, и остальные комнаты, на втором — спальни и детская комната.
При возведении дома из бруса с мансардой помещения на втором этаже по площади будут немного меньше по сравнению с комнатами в обычном двухэтажном доме. Однако, мансарда создает свою особую атмосферу, особенно если ее декорировать.
Предварительное планирование
Готовые проекты домов из бруса 8 на 8 пользуются большим спросом. Это объясняется, прежде всего, тем, что квадратная форма строения всегда выглядит аккуратно и привлекательно.
При желании проект можно дополнить различными архитектурными элементами, увеличить террасу или сделать ее крытой.
Специалисты компании СК «Брусовой» создадут индивидуальный проект дома с учетом пожеланий заказчика. Но следует учитывать, что дом из бруса 8 на 8, построенный по типовому проекту имеет несомненное преимущество, потому что такой проект неоднократно возводился и уже прошел проверку временем.
Надежные деревянные постройки имеют вполне приемлемые цены и просторную жилую площадь. Благоустроенный загородный коттедж подходит не только для летнего отдыха, но и для круглогодичного проживания семейной пары с детьми.
Наша компания осуществляет строительство экологичных домов из бруса под ключ. Все специалисты имеют большой опыт работы, позволяющий им провести все этапы строительных работ с учетом действующих норм и правил.
Отзывы наших клиентов
Масштаб
для планов этажей
Мэг Эскотт
Понимание масштаба планов этажей — действительно полезный навык при строительстве или реконструкции дома.
Чертежи в масштабе — неотъемлемая часть вашего проекта строительства или реконструкции дома. Вам нужно будет прочитать их, чтобы понять и одобрить дизайн вашего нового дома.
Основное внимание на этой странице уделяется использованию шкалы для чтения планов этажей. Узнайте, как рисовать планы этажей, чтобы обсудить использование масштаба, если вы рисуете свой собственный план этажа.
Эта страница является частью серии статей о планах дома.
На этой странице мы рассмотрим …
Прежде чем мы начнем масштабировать планы этажей, нам нужно сначала поговорить о единицах.
Какие единицы измерения используются на моем плане этажа?
Прежде всего необходимо выяснить, относится ли шкала на плане этажа к футам и дюймам (британская система мер) или к миллиметрам, сантиметрам и метрам (метрическая система).
Это обычно зависит от региона вашего дома. Если вы находитесь в США, вы, вероятно, будете работать по имперской системе. Если вы находитесь в Великобритании, Ирландии или Австралии, это, вероятно, метрическая система. Канада немного смешанная, но обычно метрическая.
Прежде чем идти дальше, выясните, в какой системе, британской или метрической, используются ваши чертежи. Посмотрите, в каких единицах указаны размеры на плане этажа.
В каком масштабе используется мой план этажа?
Если на плане этажа есть основная надпись, там должен быть указан масштаб.Он должен сказать вам, каков масштаб для конкретного размера бумаги.
Масштаб планов этажей может отображаться двумя разными способами:
- В качестве эквивалентных размеров, например, 1/8 «= 1 ‘или 1 см = 1 м,« восьмая часть дюйма представляет 1 фут »или« 1 см представляет 1 м ».
- В соотношении, например 1:96 или 1: 100, «от одного до сорока восьми» или «от одного до ста»
Общие масштабы для британских планов этажей (футы и дюймы)
- 1/4 дюйма на фут, что означает, что 1 дюйм на бумаге соответствует 48 дюймам в реальном размере (1:48).

- 1/8 дюйма на фут, что означает, что 1 дюйм на бумаге соответствует 96 дюймам в реальном размере (1:96).
- 1/16 дюйма на фут, что означает, что 1 дюйм на бумаге соответствует 192 дюймам в реальном размере (1: 192).
Общие шкалы для метрических планов этажей (мм, см, м)
- 2 см на 1 м, что означает, что 2 см на бумаге представляют 100 см (или 1 м) в реальном размере (1:50).
- 1 см на 1 м, что означает, что 1 см на бумаге соответствует 1 см (или 1 м) в реальном размере (1: 100).
- От 1 см до 2 м, что означает, что 1 см на бумаге соответствует 200 см (или 2 м) в реальном размере (1: 200).
Архитекторы обычно работают с миллиметрами, но это не меняет значения шкалы выше. Например, если использовать масштаб 1: 100, сказать, что 1 мм представляет 100 мм, то же самое, что сказать, что 1 см означает 100 см.
Нет шкалы в основной надписи? Ищите масштабную линейку
Если основной надписи нет, другой способ найти масштаб для планов этажей — это поискать масштабную линейку.
Расчет шкалы по имперской шкале
Вот что вам нужно сделать, чтобы определить масштаб с помощью масштабной линейки:
Измерьте длину масштабной линейки — мы смотрим на верхнюю шкалу, и скажем, она составляет 3 3/4 дюйма.
Это говорит нам, что 3 3/4 дюйма (или 3,75 дюйма) представляют 30 футов (длину стержня).
30 футов = 30 x 12 = 360 дюймов.
Итак, теперь мы знаем, что 3,75 дюйма представляют 360 дюймов.
Таким образом, 1 дюйм представляет (360 / 3,75) = 96 дюймов.
Выше видно, что нам нужно преобразовать доли дюймов в десятичные. Чтобы упростить задачу, я написал их здесь.
Расчет шкалы по метрической шкале
Измерьте длину масштабной линейки — допустим, для нижней линейки она составляет 10 см.
Это говорит о том, что 10 см соответствует 10 м.
Таким образом, 1 см представляет (10/10) = 1 м.
Намного проще для метрической системы!
Что делать, если на плане этажа нет масштаба?
Если вы смотрите на план этажа без обозначения масштаба или размеров, вот трюк. Если кухня отмечена на плане этажа, стандартная кухонная столешница имеет глубину 2 фута или 60 см. Итак, если вы измеряете глубину столешницы на плане, это то, что 2 фута или 60 см эквивалентны.
Чтобы вычислить, какой 1 фут в реальной жизни находится на плане, разделите размер кухонной столешницы на плане на 2.
Чтобы вычислить, какой 1 метр в реальной жизни находится на плане, разделите размер кухонной столешницы на 60, затем умножьте на 100.
Это даст вам приблизительное представление о размерах и масштабе, с которыми вы имеете дело на плане этажа.
Печать плана этажа в правильном масштабе
Когда вы читаете план этажа, вы можете получить большую часть того, что хотите знать, посмотрев на план этажа на экране.
Если вы хотите провести точные измерения, лучше всего распечатать план этажа. Если вы просматриваете рисунки, предназначенные для печати на широкоформатной бумаге, это может стать проблемой, поскольку маловероятно, что у вас есть легкий доступ к широкоформатному принтеру.
Вот несколько вариантов распечатки плана этажа.
- Попросите вашего архитектора или дизайнера предоставить вам распечатанный набор чертежей.
- Отправьте свои рисунки в магазин принтеров / графики — убедитесь, что у них есть принтер, достаточно большой, чтобы выдержать размер бумаги, прежде чем отправлять файлы.
- Распечатайте часть плана этажа в масштабе на бумаге размера, удобного для принтера, к которому у вас есть доступ. Распечатайте часть плана этажа в формате pdf в масштабе.
Определить реальный размер чего-либо на плане этажа
Хорошо, так что вы знаете, в каких единицах вы работаете, и знаете, каков масштаб планов этажей, вы готовы использовать преобразование масштаба, чтобы определить реальный размер чего-либо на плане этажа.
Для этого есть два варианта:
- Используя простую линейку и немного посчитайте.
- Использование архитектурного масштаба
Преобразование масштаба
Давайте сделаем несколько примеров масштабных преобразований.
Масштаб для планов этажей Пример преобразования в британские единицы …
Допустим, мы смотрим на план этажа в масштабе 1: 48 .
Мы измеряем длину и ширину жилого помещения открытой планировки на плане этажа.
- Длина плана этажа = 9 и 1/8 дюйма или 9,125 дюйма
- Ширина плана этажа = 3 и 1/8 дюйма или 3,125 дюйма
- Длина в реальном размере = (3,125 x 48 ) = 150 дюймов или 12 футов 6 дюймов
- Реальный размер ширина = (9,125 x 48 ) = 438 дюймов или 36 футов 6 дюймов
Эта таблица может оказаться полезной для преобразования долей дюймов в десятичные.
Верхний наконечник
Для преобразования в британские шкалы требуется довольно много нажатий на калькуляторе, и это не намного лучше на большинстве онлайн-конвертеров шкалы.Я установил несколько сверхбыстрых конвертеров с британской шкалой с минимальным щелчком, которые доступны для членов HPH. Узнайте, как присоединиться.
Пример преобразования шкалы планов этажей в метрическую систему …
Допустим, мы смотрим на план этажа в масштабе 1:50.
Замеряем длину и ширину спальни на поэтажном плане.
Длина и ширина в плане (квадратное помещение) = 6,8 см
Реальные длина и ширина = (6,8 x 50) = 340 см или 3,4 м
Убедитесь, что преобразование шкалы имеет смысл
После того, как вы выполнили расчет преобразования шкалы, просто подумайте, чтобы убедиться, что это имеет смысл.Ваш ответ примерно такой, как вы ожидали?
Использование архитектурного масштаба
Давайте посмотрим, как выполнить измерения на плане этажа с помощью архитектурной шкалы.
Прелесть использования шкалы архитекторов для считывания масштабов планов этажей заключается в том, что вам не нужно выполнять вычисления для измерения размеров на плане этажа.
Есть отличное видео, объясняющее, как использовать масштаб архитектора …
Совет по использованию масштабов архитектора
Шкалы
Architect имеют несколько масштабов, и если вы уменьшите масштаб архитекторов, можно легко потерять из виду, где находится масштаб, который вы используете.
Попробуйте прикрепить зажим к весам с помощью листа бумаги со стрелкой к нулю шкалы, которую вы используете. Это позволяет очень быстро вернуться туда, где вам нужно, в масштабе вашего архитектора.
Вы можете видеть, как этот зажим указывает на ноль по шкале от 1/4 дюйма до 1 фута.
Подробнее о том, как читать планы дома
Преобразование долей дюймов в десятичные
1/2 дюйма
| Длина в дюймах | Десятичный эквивалент |
|---|---|
| 1/2 дюйма | 0.5 |
1/4 дюйма
| Длина в дюймах | Десятичный эквивалент |
|---|---|
| 1/4 дюйма | 0,25 |
| 2/4 дюйма (то же, что и 1/2 дюйма) | 0,5 |
| 3/4 дюйма | 0,75 |
1/8 дюйма
| Длина в дюймах | Десятичный эквивалент |
|---|---|
| 1/8 дюйма | 0.25 |
| 2/8 дюйма (то же, что и 1/4 дюйма) | 0,25 |
| 3/8 дюйма | 0,375 |
| 4/8 дюйма (то же, что и 1/2 дюйма) | 0,5 |
| 5/8 дюйма | 0,625 |
| 6/8 дюйма (то же, что 3/4 дюйма) | 0,75 |
| 7/8 дюйма | 0,875 |
1/16 дюйма
| Длина в дюймах | Десятичный эквивалент |
|---|---|
| 1/16 дюйма | 0. 0625 |
| 2/16 дюйма (то же, что и 1/8 дюйма) | 0,125 |
| 3/16 дюйма | 0,1875 |
| 4/16 дюйма (то же, что и 1/4 дюйма) | 0,25 |
| 5/16 дюйма | 0,3125 |
| 6/16 дюйма (то же, что 3/8 дюйма) | 0,375 |
| 7/16 дюйма | 0,4375 |
| 8/16 дюйма (то же, что и 1/2 дюйма) | 0.5 |
| 9/16 дюйма | 0,5625 |
| 10/16 дюйма (то же, что и 5/8 дюйма) | 0,625 |
| 11/16 дюйма | 0,6825 |
| 12/16 дюйма (то же, что 3/4 дюйма) | 0,75 |
| 13/16 дюйма | 0,8125 |
| 14/16 дюйма (то же, что и 7/8 дюйма) | 0,875 |
| 15/16 дюйма | 0.9375 |
Планы садовых навесов — 8×8 — Пошаговые инструкции
Планы садовых навесов, 8х8 футов, планы включают бесплатную загрузку в формате PDF, пошаговые иллюстрации, список покупок и список вырезок.
Планы садовых сараев — 8 × 8 — Обзор
Планы садовых сараев — 8 × 8 — Перечень материалов
Список покупок
Список покупок
(материал для окон и дверей не входит в комплект)
Этаж
9-2 × 6 (обработка давлением) — 8 ′
Напольный настил
Фанера с шипом и пазом 2 — 3/4 ″ — лист 4х8 ′
Правая и левая настенная рама
14 — 2 × 4 — 8 ′
Рама передней и задней стенки
14 — 2 × 4 — 8 ′
Конек верхней крыши
1-2 × 4-8 ′
Стропила
5 — 2 × 4 — 10 ′
T1-11 Внешний сайдинг
8 — т1-11 сайдинг наружный — лист 4х8 ′
Палуба крыши
Фанера 3 — 1/2 — лист 4х8 ′
Накладка
2 — 2 × 6 — 10 ′
2 — 1 × 6 — 10 ′
8 — 1 × 4 — 8 ′
Оборудование
Гвоздь оцинкованный 3 1/2 ″
Винты для дек, 2 дюйма
Оцинкованные гвозди 2 ″
Гвозди отделочные оцинкованные 1 1/4 ″
битумная черепица
стропы
рубероид
скоб
капельный край
Список вырезов
Список вырезов
(материал для окон и дверей не входит в комплект)
Этаж
2 — 2 × 6 (с обработкой давлением) — 8 ′
7 — 2 × 6 (обработанные давлением) — 7 ′ 9 ″
Напольный настил
Фанера с шипом и пазом 2 — 3/4 ″ — лист 4х8 ′
Правая и левая настенная рама
4 — 2 × 4 — 8 ′
10 — 2 × 4 — 6 ′ 5/8 ″
Рама передней и задней стенки
4 — 2 × 4 — 7 ′ 5 ″
10 — 2 × 4 — 6 ′ 5/8 ″
Конек верхней крыши
2 — 2 × 4 — 1 ′ 2 3/8 ″
1-2 × 4-8 ′
Стропила
10 — 2 × 4 — 4 ′ 2 7/16 ″
T1-11 Внешний сайдинг
8 — т1-11 сайдинг наружный — лист 4х8 ′
Палуба крыши
Фанера 3 — 1/2 — лист 4х8 ′
Накладка
2 — 2 × 6 — 10 ′ (обрезать по размеру)
2 — 1 × 6 — 10 ′ (обрезать по размеру)
8 — 1 × 4 — 8 ′ (обрезать по размеру)
Этаж
Пол построен из пиломатериалов, обработанных давлением.
Вырежьте два 2 × 6 до 8 футов длиной для полос пола и семь 2 × 6 до 7 футов 9 дюймов для балки пола.
Закрутите гвоздями 3 1/2 дюйма в балках пола. Расстояние между балками пола составляет 16 дюймов.
Прикрепите обработанные под давлением салазки длиной 8 футов 4 × 4 к нижней части рамы пола. Выровняйте раму пола по диагонали, пока обе стороны не будут одинаковыми. Закрепите полозья 4 × 4, забив гвоздями 3 1/2 дюйма через раму пола и в полозья 4 × 4.
Напольный настил
Установите фанеру под шпунт 3/4 дюйма. Закрепите фанеру пола 2-дюймовыми винтами для настила.
Правая и левая настенная рама
Стены обрамлены брусом 2х4.
Отрежьте четыре пластины 2 × 4 длиной 8 футов для верхней и нижней пластин. Отрежьте десять штук 2 × 4 длиной 6 5/8 дюйма для стеновых стоек.
Инструкции по обрамлению двери или окна см. На следующих страницах:
Соберите правую и левую стенку, как показано на рисунке выше.Стеновые стойки отстоят друг от друга на 2 градуса.
Забейте гвоздями 3 1/2 дюйма через верхнюю и нижнюю пластины и в стенные шпильки.
Рама передней и задней стенки
Отрежьте четыре пластины 2 × 4 длиной 7 футов 5 дюймов для верхней и нижней пластин. Отрежьте десять штук 2 × 4 длиной 6 футов 5/8 дюйма для настенных стоек.
Инструкции по обрамлению двери или окна см. На следующих страницах:
Забейте гвоздями 3 1/2 дюйма через верхнюю и нижнюю пластины и в стенные шпильки.
Конек верхней крыши
Отрежьте два 2 × 4 до 1 фута 2 3/8 дюйма в длину и один 2 × 4 до 8 футов в длину.
Установите, как показано на рисунке выше, с помощью гвоздей 3 1/2 ″.
Стропила
Для стропил используется брус2х4.
Вырежьте десять стропил 2 × 4, как показано на рисунке выше.
Установить стропила на крышу, расстояние между стропилами 2 ′ O.
C.
Забейте гвоздями 3 1/2 дюйма через стропила в стенной каркас и коньковую доску.
T1-11 Внешний сайдинг
Установите внешние листы сайдинга размером 4х8 дюймов с помощью чистовых гвоздей 1 1/4 дюйма.
После установки сайдинга обрежьте передний и задний сайдинг вдоль стропил.
Палуба крыши
Отрежьте фанеру 1/2 ″ для настила крыши и установите с помощью 2 ″ гвоздей.
Установите накладку крыши 2 × 6 и угловую накладку 1 × 4, как показано на рисунке выше.
Установите рубероид, черепицу и водосток.
Крепление на крышу садового сарая «петух».
Как эти планы садовых навесов? Дайте мне знать, оставьте мне комментарий ниже.Поделитесь этой ссылкой с друзьями и в социальных сетях, спасибо.
Construct101 предлагает бесплатные планы онлайн-версий. У этих бесплатных планов также есть бесплатная версия для печати в формате PDF без рекламы. Нажмите сюда для того, чтобы скачать.Сохранить
Стандартный размер номера | Как нарисовать план дома шаг за шагом
Самый важный момент в этой статье
Как нарисовать план дома шаг за шагом
В этой статье мы обсуждаем, как спланировать дом. Любой неграмотный человек легко планирует дом, поэтому мы планируем, как шаг за шагом нарисовать план дома.
Необходимая сумма базовой информации для дизайнерского дома.
Шаг 1 — Размер участка
Размер участка определяется его длиной, шириной и высотой.
Этап 2 — Неудачи
Откат определяется как открытое пространство между составной стеной и стеной дома, которое планируется построить.
Шаг 3 — Расположение и ширина дороги
Расположение и ширина дороги поможет выделить отдельное место для въезда, парковки и выезда автомобиля вместе с въездными воротами.
Шаг 4 — Северное направление
Направление на север лучше всего дает представление о четырех сторонах света (восток, запад, север и юг), что, наоборот, помогает понять местные климатические условия в течение года.
Шаг 5 — Климатическая информация
Дом должен реагировать на климатические условия в каждом конкретном месте. Если принять во внимание, это поможет в принятии более продуманных дизайнерских инициатив при планировании дома.
Шаг 6 — Проведите исследования и разработки для получения образца плана этажа.
Небольшое онлайн-исследование по планированию и дизайну дома может быть не такой уж плохой идеей, если оно может дать вам новый взгляд на современный дизайн дома. Обязательно проверьте сайты, на которых представлены планы этажей и дизайн для вашего региона.
Шаг 7 — Разделение участка на сетку
Проведите границу участка, а затем разделите его на две равные половины в обоих направлениях, т. Е. По вертикали и горизонтали.
После этого нарисуйте аналогичные линии на расстоянии около 2 футов или 600 мм друг от друга в обоих направлениях.
Таким образом, вы создали воображаемую линию сетки для дальнейшего развития вашего плана дома.
Шаг 8 — Создайте пузырьковую диаграмму (2/3 раза)
Когда у вас будет готов рисунок, перечислите все, что вам нужно для дома. Укажите предварительную область в качестве требования. См. Пример
-Гостиная
— Спальня
-Кухня
-Столовая и т. Д.
Как указано выше, использование этих пространств на чертеже, созданном перед сюжетом, для размещения комнат в соответствии с вашим использованием и смыслом.
Не беспокойтесь вначале, если определенные комнаты / пространства не дополняют друг друга. Это ваш первый черновик, а не окончательный план этажа, поэтому не беспокойтесь, если он не выглядит идеально.
Наберитесь терпения, и со временем оно будет развиваться.
Шаг 9 — Нарисуйте план комнаты одной линией.
Как только пузырьковые диаграммы будут соответствовать вашим требованиям, используйте цветную ручку, чтобы закрепить линии, чтобы обозначить стены (9-дюймовая стена).
Обязательно показывайте дверные проемы минимум 3 фута и оконные проемы, которые могут быть от 2 футов до более.Используйте приведенную ниже сетку как руководство для определения размера окна.
Шаг 10 — Нарисуйте стены с двойной линией / толщиной.
На следующем шаге поместите еще один лист для трассировки поверх исходного чертежа, и теперь примите во внимание, что стены имеют толщину 9 дюймов, и преобразуйте эти исходные одиночные линии в линии двойных стен.
Шаг 11 — Раздвижные двери
Таким же образом, как и раньше, обозначьте дверные проемы там, где это необходимо. Внесите кретиновые изменения в план этажа, чтобы приспособить вход в комнаты / пространства.
Шаг 12 — Нарисуйте оконные проемы
В том же понимании, что и двери, обозначьте оконные проемы на чертеже. Помните, что перекрестная вентиляция очень важна.
Проверьте также направление ветра на графике. Обязательно учитывайте количество осадков, снегопад и другую климатическую информацию.
Образец плана дома площадью 1000 кв.м.
Также прочтите: Принцип методов съемки плоских столов | Оборудование | Ошибка | Преимущество | Ограничение
Видеоурок для лучшего понимания:
Как нарисовать план дома шаг за шагом | Стандартные размеры номеров (हाउस प्लान स्टेप बाय स्टेप)
Какой размер стандартного номера?
Номер стандартного размера, требующий базовых знаний о размере номера.
Размер номера разделен на три части: большой, средний и маленький.
Размер комнаты, необходимый для удобного планирования чертежа дома.
Стандартные размеры номеров для информации
Стандартный размер комнаты для спальни, гостиной, гостиной, столовой, кабинета Стандарт Площадь гостиной:| Размер | Размеры (м) | Размеры (в футах) |
| Большой | 6.71 × 8,53 | 22 × 28 |
| Средний | 4,88 × 6,1 | 16 × 20 |
| Малый | 3,66 × 5,49 | 12 × 18 |
| Размер | Размеры (м) | Размеры (в футах) |
| Большой | 6.1 × 8,53 | 20 × 28 |
| Средний | 5,49 × 7,32 | 18 × 24 |
| Малый | 4,88 × 5,49 | 16 × 18 |
| Размер | Размеры (м) | Размеры (в футах) |
| Большой | 4.87 х 7,31 | 16 х 24 |
| Средний | 4,26 x 6,09 | 14 х 20 |
| Малый | 3,65 x 4,87 | 12 х 16 |
| Размер | Размеры (м) | Размеры (в футах) |
| Большой | 4. 87 х 7,31 | 16 х 24 |
| Средний | 4,26 x 6,10 | 14 х 20 |
| Малый | 3,65 x 4,26 | 12 х 14 |
| Размер | Размеры (м) | Размеры (в футах) |
| Большой | 3.04 х 4,87 | 10 х 16 |
| Средний | 2,44 x 3,65 | 8 х 12 |
| Малый | 1,83 x 2,74 | 6 х 9 |
| Размер | Размеры (м) | Размеры (в футах) |
| Большой | 4.26 х 4,87 | 14 х 16 |
| Средний | 3,65 x 3,65 | 12 х 12 |
| Малый | 3,04 х 3,04 | 10 х 10 |
| Размер | Размеры (м) | Размеры (в футах) |
| Большой | 4.27 х 5,49 | 14 х 18 |
| Средний | 3,65 x 4,27 | 12 х 14 |
| Малый | 3,04 x 3,65 | 10 х 12 |
| Размер | Размеры (м) | Размеры (в футах) |
| Большой | 2. 14 х 3,65 | 7 х 12 |
| Средний | 1,83 x 3,04 | 6 х 10 |
| Малый | 1,52 x 2,74 | 5 х 9 |
| Размер | Размеры (м) | Размеры (в футах) |
| Большой | 0.61 х 1,83 | 2 х 6 |
| Средний | 0,61 x 1,22 | 2 х 4 |
| Малый | 0,61 х 0,91 | 2 х 3 |
| Размер | Размеры (м) | Размеры (в футах) |
| Большой | 3.65 х 6,09 | 12 х 20 |
| Средний | 3,04 x 4,87 | 10 х 16 |
| Малый | 1,52 х 3,04 | 5 х 10 |
| Размер | Размеры (м) | Размеры (в футах) |
| Большой | 4.26 х 5,49 | 14 х 18 |
| Средний | 3,65 x 4,87 | 12 × 16 |
| Малый | 3,04 x 3,65 | 10 × 12 |
| Размер | Размеры (м) | Размеры (в футах) |
| Большой | 3. 65 х 4,26 | 12 х 14 |
| Средний | 2,44 х 3,04 | 8 х 10 |
| Малый | 2,28 x 2,28 | 6 х 6 |
| Размер | Размеры (м) | Размеры (в футах) |
| Большой | 4.87 х 4,87 | 16 х 16 |
| Средний | 3,65 x 3,65 | 12 х 12 |
| Малый | 3,04 х 3,04 | 10 х 10 |
| Размер | Размеры (м) | Размеры (в футах) |
| Большой | 4.26 х 6,09 | 14 х 20 |
| Средний | 3,65 x 4,87 | 12 х 16 |
| Малый | 3,04 x 4,26 | 10 х 14 |
| Размер | Размеры (м) | Размеры (в футах) |
| Большой | 5.48 х 9,14 | 18 х 30 |
| Средний | 4,87 x 7,31 | 16 х 24 |
| Малый | 3,65 x 5,48 | 12 х 18 |
| Размер | Размеры (в футах) | Размеры (м) |
| Большой | 8 х 15 | 2. 44 × 4,57 |
| Средний | 8 х 10 | 2,44 × 3,05 |
| Малый | 6 х 6 | 1,83 × 1,83 |
| Размер | Размеры (в футах) | Размеры (м) |
| Большой | 2 × 6 | 0.61 × 1,83 |
| Средний | 2 × 4 | 0,61 × 1,22 |
| Малый | 2 × 3 | 0,61 × 0,91 |
| Размер | Размеры (м) | Размеры (в футах) |
| Большой | 1.83 × 1,83 | 6 × 6 |
| Средний | 1,52 × 1,52 | 5 × 5 |
| Малый | 1,22 × 1,22 | 4 × 4 |
| Размер | Размеры (м) | Размеры (в футах) |
| Большой | 1.22 х 2,28 | 4 х 6 |
| Средний | 0,91 х 1,22 | 3 х 4 |
| Малый | 0,61 х 0,61 | 2 х 2 |
| Размер | Размеры (м) | Размеры (в футах) |
| Большой | 2. | 8 х 10 |
| Средний | 2,28 x 2,44 | 6 х 8 |
| Малый | 0,91 x 2,28 | 3 х 6 |
| Размер | Размеры (м) | Размеры (в футах) |
| Большой | 4.27 х 4,87 | 14 х 16 |
| Средний | 3,65 x 3,65 | 12 х 12 |
| Малый | 3,04 х 3,04 | 10 х 10 |
| Размер | Размеры (м) | Размеры (в футах) |
| Большой | 4.87 х 6,10 | 16 х 20 |
| Средний | 4,27 x 5,48 | 14 х 18 |
| Малый | 3,65 x 3,65 | 12 х 12 |
| Размер | Размеры (м) | Размеры (в футах) |
| Большой | 2.44 х 3,65 | 8 х 12 |
| Средний | 2,13 x 3,04 | 7 х 10 |
| Малый | 1,83 x 2,74 | 6 х 9 |
| Размер | Размеры (м) | Размеры (в футах) |
| Большой | 2. 44 х 3,04 | 8 х 10 |
| Средний | 1,83 x 2,44 | 6 х 8 |
| Малый | 1,52 x 1,83 | 5 х 6 |
| Размер | Размеры (м) | Размеры (в футах) |
| Большой | 0.91 х 2,28 | 3 х 6 |
| Средний | 0,61 x 1,22 | 2 х 4 |
| Малый | 0,61 х 0,91 | 2 х 3 |
| Размер | Размеры (м) | Размеры (в футах) |
| Большой | 7.31 х 7,31 | 24 x 24 (2 вагона с хранилищем) |
| Средний | 6.0009 x 6.09 | 20 x 20 (2 вагона) |
| Малый | 3,65 x 6,09 | 12 x 20 (1 вагон) |
| Размер | Размеры (м) | Размеры (в футах) |
| Большой | 3.65 х 4,87 | 12 х 16 |
| Средний | 2,44 х 3,04 | 8 х 10 |
| Малый | 2,28 x 2,44 | 6 х 8 |
| Размер | Размеры (м) | Размеры (в футах) |
| Большой | 4. 26 х 5,48 | 14 х 18 |
| Средний | 3,65 x 4,26 | 12 х 14 |
| Малый | 2,44 х 3,04 | 8 х 10 |
| Размер | Размеры (м) | Размеры (в футах) |
| Большой | 1.83 х 2,44 | 6 х 8 |
| Средний | 1,83 x 1,83 | 6 х 6 |
| Малый | 1,22 x 1,83 | 4 х 6 |
| Размер | Размеры (м) | Размеры (в футах) |
| Малый | 0.61 х 1,21 | 2 х 4 |
| Средний | 0,61 x 1,82 | 2 х 6 |
| Большой | 0,61 x 2,44 | 2 х 8 |
| Размер | Размеры (м) | Размеры (в футах) |
| Большой | 0.91 х 1,83 | 3 х 6 |
| Средний | 0,61 x 1,22 | 2 х 4 |
| Малый | 0,30 х 0,91 | 1 х 3 |
| Размер | Размеры (м) | Размеры (в футах) |
| Большой | 2. 44 х 3,04 | 8 х 10 |
| Средний | 1,83 x 2,44 | 6 х 8 |
| Малый | 1,52 x 1,83 | 5 х 6 |
Понравился этот пост? Поделитесь этим с вашими друзьями!
Рекомендуемое чтение —
Определение размеров
— чтение базовых чертежей
- Цифры
- Размеры
- Внутренние линии
- Стрелы
- Габаритные размеры
- Изометрические размеры
- Ортографические размеры
Если рисунок должен быть законченным, чтобы объект, представленный на рисунке, мог быть выполнен так, как задумано дизайнером, он должен рассказывать две полные истории.Он сообщает об этом с помощью представлений , которые описывают форму объекта, и с помощью размеров и примечаний , которые дают размеры и другую информацию, необходимую для создания объекта.
Следовательно, ваш следующий шаг — изучить основы определения размеров. Таким образом, вы поймете не только, как интерпретировать чертеж, чтобы получить необходимую информацию, но и как определить размеры своих эскизов, чтобы их можно было использовать для передачи информации о размерах другим.
ЦифрыЭто может показаться немного простым, но несколько упражнений с фигурами чисел предшествуют измерению размеров. Причина такой проверки просто в том, что неправильно или небрежно нанесенные числа на чертеже или эскизе могут быть легко неверно истолкованы кем-то на работе. Это может стоить дорого.
Таким образом, изучение форм чисел оправдано.
Представленные здесь числовые формы признаны наиболее удобочитаемыми и используются в промышленности по всей стране.Стандартизированные в США вертикальные числа 1/8 дюйма правильно сформированы следующим образом:
Размерные линии Размерная линия представляет собой тонкую темную сплошную линию со стрелками на каждом конце.
Он указывает направление и протяженность измерения. На эскизах и чертежах машин, в которых для размеров используются дроби и десятичные дроби, размерная линия обычно прерывается около середины, чтобы обеспечить свободное пространство для размерных цифр. На архитектурных и конструктивных эскизах и чертежах цифры обычно располагаются над сплошной размерной линией.
В любом случае размерная линия, ближайшая к объекту, должна располагаться примерно на
1/2 дюйма. Остальные размеры за пределами первого измерения (если есть) должны находиться на расстоянии примерно 3/8 дюйма друг от друга. Вам не обязательно помнить об этом, но вы должны помнить, что не следует перегружать размерные линии и держать их на одинаковом расстоянии друг от друга.
Самым важным является то, что чертеж должен быть «чистым», а размеры должны быть размещены в пространстве, где их нельзя спутать с поверхностью, для которой они не предназначены.
Вот как следует рисовать размерные линии:
Примечание. Размеры менее шести футов (72 дюймов) указаны в дюймах. Размеры более шести футов обычно указываются в футах и дюймах. Убедитесь, что ясно, как называются размеры. При вызове размеров, превышающих 12 дюймов, убедитесь, что ВСЕ размеры указаны в дюймах или футах на всем чертеже. Либо 4’-5 ”, либо 53”, они оба означают одно и то же, но если есть сочетание размеров, можно легко взглянуть на 4’-8 ”и увидеть 48”.
Внутренние линии Выносные линии на чертеже — это тонкие темные сплошные линии, идущие наружу от точки на чертеже, к которой относится размер. Обычно размерная линия пересекает выносную линию под прямым углом. Должен быть зазор размером около 1/16 дюйма, где линия расширения должна совпадать с контуром объекта, а линия расширения должна выходить за край крайнего наконечника стрелки примерно на 1/8 дюйма. Также не должно быть зазоров на пересечении выносных линий.Обратите внимание, что в этом примере большие размеры правильно размещены снаружи или за пределами более коротких размеров, и что размеры предпочтительно не наносятся на сам объект.
Однако иногда необходимо измерить объект.
Важно не забывать размещать размеры на видах на чертеже с двумя или тремя видами, где они будут наиболее легко понятными. Избегайте нанесения размеров на скрытую линию и избегайте дублирования размеров.Используй здравый смысл; сохраняйте размеры как можно более четкими и простыми. Помните, что человек, читающий ваш рисунок, должен четко понимать, вне всяких сомнений, как действовать дальше. В противном случае будет потрачено дорогое время и материал.
Существует два основных метода нанесения размеров на эскиз. Их можно разместить так, чтобы они читались снизу эскиза (однонаправленные размеры) или снизу и справа (выровненные размеры). Однонаправленная система обычно лучше всего, потому что она легче читается рабочими.
Когда размеры не умещаются в пространстве обычным способом, используются другие методы для точного определения размеров, когда существуют такие переполненные условия.
Стрелки
Стрелки размещаются на каждом конце размерных линий, на линиях-выносках и т. Д. Правильно сделанные стрелки имеют длину от 1/8 до 3/16 дюймов и примерно в три раза длиннее своей ширины. Обычно они имеют небольшую зазубрину, очень похожую на рыболовный крючок.
Чтобы ваш рисунок выглядел чистым, используйте один и тот же стиль во всем рисунке или эскизе.
Размерные цифрыЦифры, используемые для измерения объекта, обычно имеют высоту около 1/8 дюйма.
Когда размер включает дробь, высота дроби составляет примерно 1/4 дюйма, что делает дробные числа немного меньше, чтобы оставалось пространство над и под дробной чертой.
Опять же, особенно важно, чтобы числа и дроби, которые вы можете нанести на эскиз или рисунок, были удобочитаемыми.Неряшливые числа могут стать причиной дорогостоящих ошибок.
Банкноты Примечания используются на чертежах для предоставления дополнительной информации.
Они должны быть краткими и тщательно сформулированными, чтобы их нельзя было неправильно истолковать, и располагаться на эскизе в малолюдном месте. Линии выноски, идущие к заметке, должны быть короткими. Примечания обычно добавляются после того, как на эскизе были нанесены размеры, чтобы не мешать размерам.
Тест
Указания: Измерьте размеры примеров, как указано.
Измерьте этот прямоугольник 3 ¼ x 6 15/32 в одном направлении сверху и справа.
В примечании покажите просверленное отверстие 5/16.
Измерьте размер этого объекта. Более короткие линии составляют 3 дюйма в длину.
Измерьте размер этого объекта. Используйте линейку или шкалу, чтобы определить длину линий.
Наклонные размерыНаклонные размеры в основном не забывают избегать нанесения размеров на самом объекте (когда это возможно) и используют принципы определения размеров, основанные на здравом смысле.Также обычно лучше, чтобы размеры считывались снизу (однонаправленно), как показано здесь.
Хотя лучше не устанавливать размеры на самом виде, обычно принято указывать размеры диаметра и радиуса на видах, если позволяет пространство.
Иногда пространство и время ограничены, и вам, возможно, придется нарушить типичные правила рисования и определения размеров. Главное, чтобы чертеж был чистым, лаконичным, старались не повторять размеры, а указывать все необходимые.
Указания: Завершите, как указано.
Измерьте размер трехдюймового куба.
Более короткая часть этого стержня составляет 5/8 дюйма в диаметре и 2 1/8 дюйма в длину. Более длинная часть имеет диаметр 7/8 дюйма и длину 3 ½ дюйма. Нанесите размеры на чертеж.
Изометрические размеры При нанесении размеров на изометрический эскиз важно, чтобы размеры не касались самого объекта, и располагать размер на той же плоскости, что и поверхность объекта, размер которого измеряется.
Вы, вероятно, обнаружите, что для правильного измерения в изометрии потребуется определенная практика.
Размещайте заметки на изометрическом чертеже, не обращая внимания на то, чтобы они располагались в той же плоскости, что и размеры. Это легче сделать и легче читать.
Изометрические банкноты не обязательно должны находиться в одной плоскости.
Обратите внимание, что в приведенном выше примере часть каждой линии выноски, ведущей к нотам, нарисована примерно под углом 15, 30, 45, 60 или 75 градусов.Это сделано во избежание путаницы с другими строками. Никогда не рисуйте линии выноски полностью горизонтально или вертикально .
Тест
Указания: заполните, как указано.
Нанесите размер на этот чертеж. Размеры: 3 дюйма в длину, 2 1/8 дюйма в ширину, 1 5/8 дюйма в высоту и угол 45 ° в глубину ½ дюйма. Угол начинается как середина трехдюймового размера.
Нанесите размер на этот чертеж. Основание — квадрат ½ «x 1 ½». Цилиндр имеет диаметр 1 дюйм.x 1-1 / 8 ”, длина
. Просверленное сквозное отверстие 5/8 ”.
Тест
Указания: Вам будет предоставлен объект для эскиза и измерения.
Ортогональные размерыКогда вы посмотрите на объект в форме ласточкина хвоста на несколько страниц назад, легко увидеть, что изометрический эскиз может быстро стать загроможденным размерами. Из-за этого более сложные эскизы и чертежи имеют размерную орфографию.Этот метод обеспечивает лучший способ четкого и детального измерения.
Вот семь общих правил, которым нужно следовать при расчете размеров.
- Покажите достаточно размеров, чтобы можно было определить предполагаемые размеры без того, чтобы рабочий вычислял или предполагал какие-либо расстояния.
- Четко укажите каждое измерение, чтобы оно понималось только одним способом.

- Отображение размеров между точками, линиями или поверхностями, которые имеют необходимое отношение друг к другу или которые определяют расположение других компонентов или сопрягаемых деталей.
- Выберите или расположите размеры, чтобы избежать накопления размеров, которое может привести к неудовлетворительному стыковке деталей. (Другими словами, предусмотрите увеличение допусков, как в примере ниже.
- Показать каждое измерение только один раз. (Не дублируйте размеры).
- По возможности, обмерьте каждый элемент на виде там, где он наиболее четко виден и где проявляется его истинная форма.
- По возможности указывайте размеры, чтобы использовать легкодоступные материалы, детали и инструменты.
Обратите внимание, что размеры правильно размещены между видами, а не по внешним краям чертежа.
Тест
Направления: на отдельном листе бумаги сделать размерный орфографический эскиз этого объекта.
Указания: на отдельном листе бумаги сделать размерный орфографический эскиз объекта.
Тест
Указания: Вам будет предоставлен объект для эскиза и измерения.
Как нарисовать план этажа крошечного дома
20 февраля 2013 г.
Покупаете ли вы крошечный дом, работаете с дизайнером крошечного дома или проектируете свой собственный, умение рисовать план этажа поможет вам донести свои идеи и превратить их в реальный, работоспособный дизайн.
Начало работы
- Начни по старинке. Большинство замечательных идей начинаются с быстрого наброска на бумаге. Но рисунок наиболее полезен, когда он выполнен в масштабе, позволяя понять размер элементов и их отношения друг к другу.
- Миллиметровая бумага позволяет легко рисовать в масштабе. Найдите миллиметровую бумагу с не слишком плотной сеткой или распечатайте свою. Используйте карандаш, ручку, волшебный маркер или то, что вам подходит.

Использование сетки миллиметровой бумаги
- Вам нужно, чтобы каждый квадрат сетки равнялся некоторой легкой доле фута, например 3 ”, 4”, 6 ”или 1 фут. Выберите один из них (скажем, 6 дюймов) и умножьте его на количество квадратов сетки на миллиметровой бумаге (скажем, 30 × 39). Это дает 180 × 234 дюйма или 15 × 19,5 футов (разделите дюймы на 12, чтобы получить футы).Итак, в таком масштабе на листе бумаги у вас есть место, чтобы нарисовать что-то до 15 футов в ширину и 19-6 дюймов в длину. Квадратный стол размером 24 дюйма будет состоять из четырех квадратов сетки в длину и четырех квадратов в ширину.
- Миллиметровая бумага позволяет легко рисовать в масштабе. Найдите миллиметровую бумагу с не слишком плотной сеткой или распечатайте свою. Используйте карандаш, ручку, волшебный маркер или то, что вам подходит.
- Программное обеспечение для архитектурного чертежа. Есть много программ, некоторые бесплатные, некоторые дешевые, некоторые очень дорогие. Хотя профессиональные дизайнеры часто используют AutoCAD, вам не нужно ничего более серьезного. Эта же компания предлагает бесплатный веб-инструмент для создания планов этажей.Если у вас был хороший (или плохой) опыт работы с другими программами для дизайна, поделитесь им в комментариях!
- SketchUp. Многие дизайнеры крошечных домов сочли SketchUp очень полезным. SketchUp — это бесплатная программа для 3D-моделирования, которую несложно освоить. С помощью этого программного обеспечения вы можете разработать не только план этажа, но и полный трехмерный дизайн и детали вашего крошечного дома. Учебники доступны в Интернете, а Майкл Янзен из Tiny House Design сделал очень полезную серию видеоуроков о том, как нарисовать крошечный дом на трейлере с помощью SketchUp.
Знать, насколько большие вещи
- Не забывайте о толщине стенок. Это легко сделать, но если не учитывать толщину стен в крошечном доме, она складывается. Если вы не знаете точно, какой толщины будут ваши стены, угадайте. Типичная стена с каркасом 2 × 4 с гипсокартоном 1/2 дюйма с каждой стороны имеет толщину 4-1 / 2 дюйма.
Чертеж двери в стене
- Знайте свои двери.
Диапазон размеров дверей для жилых домов.- Двери имеют ширину, обычно с шагом 2 дюйма (2′-6 дюймов, 2′-8 дюймов и т. Д.).Стандартная входная дверь в новых американских домах — 3 фута в ширину и 6-8 дюймов в высоту, но это может быть слишком широко для крошечного дома. Старый стандартный размер входной двери был 2-8 дюймов. Примите во внимание размер самого большого предмета мебели — поместится ли он в выбранную вами входную дверь?
- Обязательно начертите распашку двери на плане. Убедитесь, что створка двери не задевает другие двери, приспособления или мебель. Если у вас мало места, подумайте о дверце с карманом.
- Двери возле угла должны располагаться на расстоянии не менее 3-4 дюймов от угла, чтобы оставалось место для отделки.
- Знайте свои окна. Нарисуйте окна на плане. Размеры окон различаются. Общая ширина для базовой компоновки плана этажа составляет 1′-6 дюймов, 2′-0 дюймов, 2′-6 дюймов и 3′-0 дюймов. Если окна распахиваются внутрь или наружу, нарисуйте качели на плане. Для получения дополнительной информации о типах и размерах окон (и дверей) обращайтесь к производителям, таким как Pella и Jeld-Wen.
- Относитесь к мебели реалистично. Мебель занимает много места. Возьмите сантиметровую ленту и измерьте свою мебель и себя, сидящего в ней.Или поищите в Интернете различные «стандартные» размеры.
- Узнайте о размерах кухни. Нижние кухонные шкафы обычно имеют глубину 24 дюйма, а столешница — 25-1 / 2 дюйма. Типичная ширина корпуса указывается с шагом 3 дюйма (9 дюймов, 12 дюймов, 1′-3 дюйма, 1′-6 дюймов и т. Д.). Верхние шкафы обычно имеют глубину 12 дюймов и такую же ширину. В идеале перед шкафами должно быть предусмотрено не менее 36 дюймов рабочего пространства, при этом 42-48 дюймов будет более комфортным.
- Узнайте о размерах ванной комнаты.Строительные нормы устанавливают некоторые руководящие принципы, которые полезно знать независимо от того, строите ли вы код или нет.
Например, обычно должно быть не менее 15 дюймов от центра унитаза до каждой боковой стены, всего 30 дюймов между стенами (хотя это будет немного тесновато для некоторых людей, которые могут предпочесть 36 дюймов). Перед унитазом должно быть свободное пространство 21 дюйм.
Реалистичный план этажа со стенами, дверями, окнами, кухонными шкафами, приборами и мебелью.
Особые соображения
- Сантехника стен. Если у вас есть туалет с водопроводом, сантехник должен иметь возможность провести через него вентиляционную трубу вертикально, поэтому постарайтесь расположить ее у стены размером не менее 2 × 4, если не 2 × 6, а лучше — внутренней стены.
- Стенки сдвига. В длинном узком доме поперечные силы ветра и, возможно, землетрясения создают наибольшую нагрузку на короткие торцевые стены. Как правило, обшивка на этих стенах — это то, что противостоит этим силам сдвига, поэтому старайтесь не заполнять эти стены полностью дверями и окнами, которые уменьшают площадь обшивки.Кроме того, старайтесь держать двери и окна немного подальше от каждого внешнего угла для дополнительной прочности (24 дюйма — это здорово, если вы можете его получить).
- Пассивная солнечная конструкция. Ориентация и размещение окон — ключевые аспекты пассивного солнечного дизайна. Прочтите мой пост о пассивной солнечной энергии, опубликованный пару недель назад, чтобы получить несколько советов.
Ищете вдохновение?
- Найдите идеи в книгах по маленьким домам (недавно я купил «Компактные каюты Джеральда Роуэна» и нашел их очень полезными) или в бесплатных планах в Интернете (например, бесплатные планы крошечных домов Майкла Янзена в Tiny House Design). .
- Узнайте немного о фэн-шуй. Я лично не верю (и даже не понимаю) всех глубин фэн-шуй; Тем не менее, я считаю, что это полезный источник принципов для домашней планировки и дизайна. About.com имеет обширный раздел по фен-шуй.
Берите то, что вы считаете полезным, игнорируйте то, что вам не нравится. - Упростите, упростите, упростите. Простой план легче построить, и он может казаться менее загроможденным. Его можно сделать интересным и красивым с помощью вертикальных вариаций (высота окон, потолка и т. Д.) И выбора материала, и я расскажу об обоих этих вещах в ближайшие недели.
Примечание: На прошлой неделе я объявил, что статья на этой неделе будет посвящена изоляции. Хотя это интересная тема (по крайней мере, если вы фанат строительной науки), она не особо специфична для крошечных домов — одни и те же принципы применимы ко всем домам. Если вы действительно с нетерпением ждали подробного обсуждения изоляции на этой неделе, извините за разочарование, но я свяжусь с несколькими ресурсами, которые подробно рассматривают различные варианты: статью об изоляционных материалах от Министерства энергетики
и другую статью о терморегулирование в зданиях от Building Science Corporation.
Вы сами разрабатывали план этажа крошечного дома или не знаете, с чего начать? Поделитесь своими проектами и извлеченными уроками в комментариях ниже! На следующей неделе мы поменяем оси и поговорим о вертикальном измерении в крошечных домиках.
Следующие две вкладки изменяют содержимое ниже.Винсент Бодуан (Vincent Baudoin) — дизайнер и строитель, имеющий опыт работы в области общественного проектирования, устойчивого развития и интегрированного проектирования и строительства.
Связанные% PDF-1.3
%
2570 0 объект
>
эндобдж
xref
2570 222
0000000016 00000 н.
0000004815 00000 н.
0000005066 00000 н.
0000005208 00000 н.
0000005266 00000 н.
0000005468 00000 н.
0000024682 00000 п.
0000025125 00000 п.
0000025195 00000 п.
0000025285 00000 п.
0000025381 00000 п.
0000025446 00000 п.
0000025556 00000 п.
0000025621 00000 п.
0000025728 00000 п.
0000025793 00000 п.
0000025966 00000 п.
0000026024 00000 п.
0000026128 00000 п.
0000026263 00000 п.
0000026369 00000 п.
0000026434 00000 п.
0000026585 00000 п.
0000026643 00000 п.
0000026772 00000 п.
0000026871 00000 п.
0000027013 00000 п.
0000027173 00000 п.
0000027280 00000 п.
0000027376 00000 п.
0000027494 00000 п.
0000027582 00000 п.
0000027647 00000 н.
0000027782 00000 п.
0000027847 00000 н.
0000027995 00000 н.
0000028116 00000 п.
0000028186 00000 п.
0000028289 00000 п.
0000028354 00000 п.
0000028411 00000 п.
0000028468 00000 п.
0000028524 00000 п.
0000028582 00000 п.
0000028642 00000 п.
0000028699 00000 п.
0000028835 00000 п.
0000028892 00000 п.
0000029020 00000 н.
0000029077 00000 н.
0000029219 00000 п.
0000029276 00000 н.
0000029394 00000 п.
0000029451 00000 п.
0000029578 00000 п.
0000029634 00000 п.
0000029769 00000 п.
0000029825 00000 п.
0000029956 00000 н.
0000030012 00000 п.
0000030067 00000 п.
0000030128 00000 п.
0000030191 00000 п.
0000030257 00000 п.
0000030314 00000 п.
0000030429 00000 п.
0000030592 00000 п.
0000030730 00000 п.
0000030948 00000 п.
0000031213 00000 п.
0000032242 00000 п.
0000032265 00000 п.
0000032403 00000 п.
0000033624 00000 п.
0000033841 00000 п.
0000047049 00000 п.
0000047329 00000 п.
0000047590 00000 п.
0000047868 00000 п.
0000048129 00000 п.
0000049100 00000 н.
0000049123 00000 п.
0000050312 00000 п.
0000050528 00000 п.
0000080451 00000 п.
0000081421 00000 п.
0000081444 00000 п.
0000082633 00000 п.
0000082849 00000 п.
0000112772 00000 н.
0000113724 00000 н.
0000113747 00000 н.
0000114936 00000 н.
0000115152 00000 н.
0000145075 00000 н.
0000145356 00000 н.
0000145617 00000 п.
0000145895 00000 н.
0000146156 00000 н.
0000147130 00000 н.
0000147153 00000 н.
0000148342 00000 н.
0000148558 00000 н.
0000178481 00000 н.
0000179455 00000 н.
0000179478 00000 н.
0000180667 00000 н.
0000180883 00000 н.
0000210806 00000 п.
0000211760 00000 н.
0000211783 00000 н.
0000212972 00000 н.
0000213188 00000 п.
0000243111 00000 п.
0000243393 00000 н.
0000243655 00000 н.
0000243934 00000 н.
0000244196 00000 н.
0000245298 00000 н.
0000245321 00000 н.
0000246542 00000 н.
0000246759 00000 н.
0000259967 00000 н.
0000261068 00000 н.
0000261091 00000 н.
0000262312 00000 н.
0000262529 00000 н.
0000275737 00000 н.
0000276823 00000 н.
0000276846 00000 н.
0000278067 00000 н.
0000278284 00000 н.
00002
00000 н. 00003 00000 н. 00003
0000514338 00000 н.
0000514403 00000 н.
0000514459 00000 н.
0000514524 00000 н.
0000005516 00000 н.
0000024657 00000 п.
трейлер
]
>>
startxref
0
%% EOF
2571 0 объект
>
эндобдж
2572 0 объект
[\ n% ׅ 6 Ģ {q0Z! /)
/ U (s6_6GUEt; v- ~ Lx)
/ П -64
/ V 1
>>
эндобдж
2573 0 объект
>
эндобдж
2574 0 объект
~чертежей руководящих принципов строительства.Раздел B: Бетонные конструкции
Чертежи строительных норм. Раздел B: Бетонная конструкция Карибское бедствие
Проект смягчения последствий |
Раздел B: Бетонная конструкция
Введение | Раздел
А | Раздел B | Раздел C | Раздел D
| Раздел E | Раздел F | Раздел G
Загрузите файлы AutoCAD DWG (zip-архив): Раздел A | Раздел B | Раздел C |
Разделы D-G
Рисунок B-1 : Допустимое расположение ленточных опор
Все наружные стены и внутренние несущие стены должны опираться на усиленные бетонные ленточные фундаменты.Внутренние стены могут поддерживаться за счет утолщения плиты под стены и соответствующим образом укрепить ее. Фундаменты обычно должны располагаться на слое. грунта или камня с хорошими несущими характеристиками. Такие почвы будут включать плотные пески, мергель, другие сыпучие материалы и жесткие глины.
Фундамент должен быть отлит не менее чем от 1 ’6 дюймов до 2’ 0 дюймов.
под землей, его толщина не менее 9 дюймов и ширина не менее 24 дюймов, или
как минимум в три раза больше ширины стены, непосредственно поддерживаемой им.Где
в качестве несущего материала фундамента необходимо использовать глины, ширина подошвы должна быть
увеличено до минимума 2 футов 6 дюймов.![]()
Рисунок B-2 : Типовая деталь раздвижной опоры
Когда отдельные железобетонные колонны или колонны из бетонных блоков при использовании они должны поддерживаться квадратными опорами размером не менее 2–0 дюймов и 12 дюймов толщиной.Для опор колонн минимальное армирование должно быть » стержни диаметром 6 дюймов по центрам в обоих направлениях, образующие ячейку 6 дюймов.
Рисунок B-3 : Усиление ленточных опор
Усиление фундамента необходимо для обеспечения непрерывности структура. Это особенно важно в случае плохого заземления или когда здание может быть подвержено землетрясениям.Предполагается, что армирование деформированные стальные прутки с высоким пределом текучести, которые обычно поставляются в OECS. Для полосы опор, минимальная арматура должна состоять из 2 стержней № 4 («), размещенных продольно и поперечно расположенные стержни диаметром 12 дюймов.
Рисунок B-4 : Бетонный пол в деревянных домах
Рисунок B-5 : Фундамент из бетонной ленты и бетонное основание с Деревянное строительство
Допустимое устройство фундамента небольшого деревянного дома
с бетонным или деревянным полом.Эта конструкция подходит для
достаточно жесткие почвы или мергель. Там, где здание будет на скале, толщина
опора может быть уменьшена, но деревянные постройки очень легкие и их легко сдуть.
их основы. Поэтому здание должно быть надежно прикреплено болтами к бетонному основанию,
и опоры должны быть достаточно тяжелыми, чтобы предотвратить подъем.
Рисунок B-6 : Типичные детали каменной кладки
Бетонные блоки, используемые в стенах, должны быть прочными, без трещин и их края должны быть прямыми и правильными.Номинальная ширина блоков для наружных стен и несущие внутренние стены должны быть не менее 6 дюймов, а торцевая оболочка должна быть минимальная толщина 1 дюйм. Наружные стены лучше построить толщиной 8 дюймов. бетонный блок. Ненесущие перегородки могут быть построены из блоков с номинальная толщина 4 дюйма или 6 дюймов. Стены из блоков должны быть усилены как вертикально и горизонтально; это должно выдерживать ураганы и землетрясения. это Обычная практика в большинстве OECS — использовать бетонные колонны на всех углах и перекрестки.Дверные и оконные косяки необходимо укрепить.
Рекомендуемая минимальная арматура для строительства бетонных блоков выглядит следующим образом:
- Прутки диаметром 4 дюйма по углам по вертикали.
- Прутки диаметром 2 дюйма на стыках по вертикали.
- Прутки диаметром 2 дюйма на косяках дверей и окон
- для горизонтального армирования стен используйте стержни Dur-o-waL (или аналогичные) или стержни. каждый второй курс следующим образом:
- Для вертикального армирования стен используйте стержни, расположенные следующим образом:
4 «блоки 1 бар
Блоки 6 дюймов 2 стержня
Блоки 8 дюймов 2 стержня
4-дюймовые блоки 32
Блоки 6 дюймов 24
Блоки 8 дюймов 16
Рисунок B-7 : Деталь бетонной колонны
Колонны должны иметь минимальные размеры 8 x 8 дюймов и могут быть
образуется опалубкой с четырех сторон или опалубкой с двух сторон с блокировкой с двух других.
Минимальная арматура колонны должна составлять стержни диаметром 4 с хомутом на
Центры 6 дюймов. Колонна с заполненным сердечником или бетонная колонна должна быть
высота до пояса (кольцевой балки) у каждого дверного косяка.
Рисунок B-8 : Альтернативные конструкции опор для блочной кладки
Эта железобетонная опора монолитно построена с плита перекрытия.Состоит из серии плит перекрытий под стенами с минимум 12 дюймов глубиной вниз по периметру. Основание полностью размещено на колодце. уплотненный гранулированный материал.
Рисунок B-9: Деталь перекрытия
Железобетонная плита перекрытия не выходит за пределы периметра. стены. Арматурная сетка в плите размещается сверху с 1-дюймовыми крышками.Плита сооружается на хорошо утрамбованном зернистом заполнителе, щебне или мергеле.
Рисунок B-10 : Альтернативная деталь перекрытия перекрытия
Подвесная железобетонная плита привязана к внешней перекрывающая балка на уровне пола. Важна верхняя (стальная) арматура. Главный арматура должна быть порядка «диаметра в 9» центрах, а распределительная сталь диаметром 3/8 дюйма с центрами 12 дюймов.
Рисунок B-11 : Деталь крепления направляющей Vernadah к колонне Важно, чтобы направляющие были надежно закреплены в боковой
столбец. Как минимум, болты должны быть оцинкованы для предотвращения коррозии.
Для крепления балясин к бетону рекомендуется использовать эпоксидный раствор или химические анкеры.
столбец.
Рисунок B-12 : Устройство армирования для подвесных перекрытий
Усиление должно быть согнуто и закреплено квалифицированным мастером.Необходимо следить за тем, чтобы верхняя стальная часть находилась в верхней части с соответствующим покрытием.
Рисунок B-13 : Устройство усиления для Подвесные балки
Усиление должно быть согнуто и закреплено квалифицированным мастером. Необходимо следить за тем, чтобы верхняя стальная часть находилась в верхней части с соответствующим покрытием.
Рисунок B-14 : Устройство усиления для Подвесные консольные балки
Усиление должно быть согнуто и закреплено квалифицированным мастером.Необходимо следить за тем, чтобы верхняя стальная часть находилась в верхней части с соответствующим покрытием.
Рисунок B-15 : Устройство усиления для Подвесная лестница
Введение | Раздел А | Раздел B | Раздел C | Раздел D | Раздел E | Раздел F | Раздел G
.

Блок с размерами 20х20х40см, в одной опоре 4 шт. блока (высота над землёй) 40см. Подробнее столбчатый фундамент
Подробнее утепление
58м
0625
87 х 7,31
14 х 3,65
65 х 4,26
44 × 4,57
44 х 3,04
26 х 5,48
44 х 3,04

Диапазон размеров дверей для жилых домов.
Например, обычно должно быть не менее 15 дюймов от центра унитаза до каждой боковой стены, всего 30 дюймов между стенами (хотя это будет немного тесновато для некоторых людей, которые могут предпочесть 36 дюймов). Перед унитазом должно быть свободное пространство 21 дюйм.
Берите то, что вы считаете полезным, игнорируйте то, что вам не нравится.
Добавить комментарий