Как сделать из двухкомнатной квартиры трехкомнатную фото: Как из двухкомнатной квартиры сделать трехкомнатную?
Как из двухкомнатной квартиры сделать трехкомнатную?
Двухкомнатная квартира – оптимальный вариант на рынке постсоветского жилья. И всегда есть возможность пойти на компромисс, а затем извлечь из него максимум выгоды. Например, превратить такую квартиру в трехкомнатную. И сделать это можно, используя несколько сценариев.
Основные правила перепланировки
Если вы намерены сносить стены, сразу же дайте себе установку, что это должно быть согласовано с ответственными инстанциями. В ином случае вы как минимум получите немаленький штраф за несогласованный демонтаж стен, а ведь можете сделать ситуацию еще более рискованной и опасной для вас и соседей.
Если конкретного проекта пока нет, подумайте и над вариантом демонтажа стен. Не исключено, что идеальная перепланировка не потребует этого.Подсчитайте количество несущих стен: если таковые есть лишь по «краям» жилплощади, то у вас больше шансов создать в квартире принципиально новую планировку. Но несущие конструкции, конечно, трогать нельзя.
Разберем, как определиться с планировкой.- Четко обозначьте цель перепланировки. Если вам нужны 2 детские, например, это могут быть 2 небольшие комнатки, образовавшиеся при разделении одной побольше.
Будет ли одна из новых комнат проходной, как быть с окном – все это нужно решить в первую очередь.
- Подумайте, какая комната самая большая по метражу, и выгодно ли вам ее разделять. Если, например, часть гостиной совмещается с кухней, превращаясь в одно пространство, другая часть становится автономной комнаткой. Если вы решились на объединение двух зон, этот вариант один из доступных.
- Самый простой способ – присмотреться к понравившимся готовым вариантам. Поищите несколько примеров, скопируйте их в папку. Рассмотрите всей семьей, устройте голосование за лучший вариант. И если он применим к вашей квартире, можете закатывать рукава.
И, конечно, смету проекта лучше просчитать заранее.
С учетом мелочей и небольшим процентом средств, которые уйдут на непредвиденные покупки.
Варианты проектов
Переделать из обычной двухкомнатной квартиры трехкомнатную можно, если метраж вашего жилья позволяет это организовать. Безусловно, 60 кв. м – это отличные исходные данные для трансформации. Но и с 42-45 квадратами идеи могут быть успешными.Разделение одной большой комнаты
В панельных домах советского образца организовать перепланировку совсем непросто. Комнаты расположены последовательно, в каждой – окно. Достойный вариант только один – разделить гостиную на 2 части.
Но если метраж этой комнаты менее 18 квадратов, трансформация вряд ли будет успешной.
Тогда логичнее подумать над такой «полумерой», как зонирование
Ну а если речь идет о комнате с двумя окнами, все гораздо проще. Помещение делится на 2 части, на каждую приходится по окну. Осталось только продумать логистику входа/выхода. Разделить эту двухоконную комнату можете кирпичной или гипсокартонной стеной.
Смежные или проходные комнаты
Без оформления смежных комнат превратить двухкомнатную в трехкомнатную крайне трудно. На помощь приходит совмещение пространств. Допустим, вы живете в квартире с тремя окошками, два из которых смотрят на одну сторону, а третье – в боковую часть дома. То есть жителям углового жилья перепланировку провести проще всего.
Соединяться в данном случае будут кухня, коридор и половина гостиной. Стена, разделяющая гостиную и спальню, переносится на несколько метров. Помещение станет не особенно просторным, но комфортным для домочадцев. Вариант спальни для супругов – вполне себе отличный.
А чтобы комнаты на 100% были отдельными, кирпичом придется заложить проход из экс-гостиной в детскую или спальню.
И прорубать новый проход нужно уже со стороны нового же холла. Так окно появится в каждой комнате.
Объединение зон
Популярный в последнее десятилетие вариант – превращение стандартного жилья в квартиру-студию либо жилище, в котором есть элементы такой планировки. Обычно совмещают гостиную и кухню. Получается одна полноценная комната с множеством функций. А некоторая территория гостиной отделяется и становится третьей комнатой. Есть вариант совмещения кухни с коридором, но только если коридор большой.
Несущие конструкции жилища нужно усилить, если новый проект не обходится без включения их в изменения. Часто с этой целью используются металлические швеллеры, возводятся колонны для поддержки плит перекрытия.
При совмещении зон кухня может получить функции и гостиной, и даже кабинета. То есть вы стены убираете, пространство меняете, оно становится студийным, но за счет грамотного зонирования вы в итоге получаете на одну комнату больше. Да, она может не находиться за сплошной стеной, но даже визуально эта зона будет восприниматься отдельной комнатой.
Перенос кухонной зоны
Такой перенос будет удачным, если холл (либо коридор) расположен не дальше 5 метров от газового стояка. По-другому на перенос просто могут не дать согласие.
Вместо кухни будет отдельная комната, с окном. Логично, что в новом расположении кухни разумнее будет установить не газовую, а электрическую установку. Да и системой вентиляции на новой кухне тоже придется заняться.
Сомнения могут возникать у семей, которые считают, что люди, заходя в квартиру, сразу будут попадать «с улицы» на кухню. Но это вопрос удобства, чистоплотности, приемлемости. Подобного жилья сегодня много, и людям нравится кухня, которая начинается почти с первых метров жилища.
И множество таких квартир выглядят очень симпатично.
Разгрузка помещения
Вам нужно изначально увеличить пространство исходного помещения – разгрузить его. И делать это лучше начиная с прихожей. Если в ней много шкафов и тумбочек, они, действительно, могут загромождать пространство. Подумайте, от чего можно избавиться, как оптимизировать пространство.
Составьте подробный план квартиры, указав точные параметры комнат.
Иногда логичным решением будет совместить ванную с туалетом, убрав таким образом одну дверь. Вы можете так увеличить коридор, и далее уже переходить к гостиной. Подобная трансформация хороша в «хрущевке», где коридор не очень большой, но комнаты довольно просторные.
Дизайнерские решения
Декоративные элементы позволят сделать обустройство новой комнаты-зоны более легким, гармоничным. Дизайн-решения могут быть самыми разными.
- Игра цвета. Если пол и потолочную область выполнить на несколько тонов светлее, нежели стены, пространство станет выглядеть больше, и потолок будет казаться выше. Холодные цвета также зрительно расширяют пространство. А вот яркие цвета преимущественно сжимают его.
- Визуальный подъем потолка.
Если у вас в квартире высокие потолки, можете соорудить закрытые антресоли. А еще там можно поставить полки для книг. Да и обычный книжный шкаф, если сделать его до потолка, зрительно поднимет высоту помещения.
- Зеркальные и глянцевые поверхности. Зеркало – самый эффектный «расширитель» пространства. Глянцевые потолки по большому счету делают то же самое.
Прекрасно, если вы заранее определились с интерьерным стилем, который объединит все комнаты жилища в одно уютное, красивое помещение.
Для получения новой комнаты и оптимизации помещения отлично подходит именно скандинавский стиль. Потому все дизайн-подсказки, подсмотренные в сканди-интерьерах, стоит сохранять в закладки.
Рекомендации
Все спорные, проблемные вопросы лучше сразу решать со специалистами. В ходе уже развернутого ремонта справиться с ними будет тяжелее. Частые вопросы и связанные с ними рекомендации:
- межкомнатные двери при превращении двухкомнатной квартиры в трехкомнатную могут возникать в разных местах, ведь простенки не будут несущими;
- если в кухне не подведен газ, объединяйте ее со смежным помещением – получите одно большое, но многофункциональное пространство;
- недостаток метража отчасти исправляется задействованием ниш, встроенных больших шкафов, комнат-кладовых, гардеробных;
- можно подумать над вариантом задействования лоджии или балкона;
- а вот чего делать нельзя, так это сносить несущие стены, проводить работы, блокирующие подход к коммуникациям, переносить радиаторы.

И, конечно, нельзя совмещать квартиры смежных этажей, разбирая межэтажные перекрытия.
Не забудьте и о том, что совмещать жилую комнату с газифицированной кухней без установки перегородки запрещено.
Примеры
А вот и конкретные схемы, изображения, которые показывают, как можно двухкомнатную квартиру сделать трехкомнатной. Предлагаем 5 удачных перепланировок.
- Маленькая кухня и проходной зал стали компромиссом в данном случае.
Да и санузел остается доступным только из гостиной. Но в целом вариант определенно симпатичный.
- План перепланировки «хрущевки». Прием студии задействован в слиянии кухни и гостиной. Выйдет, что все 3 комнаты будут небольшими, но если важно персонализировать пространство, данная схема удачна.
- Не самое привычное решение, но достойно рассмотрения. Часть пространства остается без окна, и здесь уже нужно грамотно решить вопрос с перегородками и отделкой.
- Один из самых простых и востребованных вариантов. Прямоугольная комната делится пополам. Наверное, решение самое простое, но нужно подумать над перегородкой – она должна максимально пропускать свет в новообразованную комнату после ремонта.
- Спальня будет маленькой, зато она будет.
Гостиная компактная, детская – отличные параметры. Если вас не смущает количество проходных комнат, рассмотрите этот вариант.
Удачных решений и быстрого ремонта!
Как из двухкомнатной квартиры сделать трехкомнатную?
Двухкомнатная квартира – оптимальный вариант на рынке постсоветского жилья. И всегда есть возможность пойти на компромисс, а затем извлечь из него максимум выгоды. Например, превратить такую квартиру в трехкомнатную. И сделать это можно, используя несколько сценариев.
Основные правила перепланировки
Если вы намерены сносить стены, сразу же дайте себе установку, что это должно быть согласовано с ответственными инстанциями.
В ином случае вы как минимум получите немаленький штраф за несогласованный демонтаж стен, а ведь можете сделать ситуацию еще более рискованной и опасной для вас и соседей.
Но в случае если вы решили из 2-комнатной квартиры сделать 3-комнатную, сносить стены приходится реже, чем их воздвигать. Если конкретного проекта пока нет, подумайте и над вариантом демонтажа стен. Не исключено, что идеальная перепланировка не потребует этого.
Подсчитайте количество несущих стен: если таковые есть лишь по «краям» жилплощади, то у вас больше шансов создать в квартире принципиально новую планировку. Но несущие конструкции, конечно, трогать нельзя.
Разберем, как определиться с планировкой.
- Четко обозначьте цель перепланировки. Если вам нужны 2 детские, например, это могут быть 2 небольшие комнатки, образовавшиеся при разделении одной побольше. Будет ли одна из новых комнат проходной, как быть с окном – все это нужно решить в первую очередь.
- Подумайте, какая комната самая большая по метражу, и выгодно ли вам ее разделять. Если, например, часть гостиной совмещается с кухней, превращаясь в одно пространство, другая часть становится автономной комнаткой.
Если вы решились на объединение двух зон, этот вариант один из доступных.
- Самый простой способ – присмотреться к понравившимся готовым вариантам. Поищите несколько примеров, скопируйте их в папку. Рассмотрите всей семьей, устройте голосование за лучший вариант. И если он применим к вашей квартире, можете закатывать рукава.
И, конечно, смету проекта лучше просчитать заранее. С учетом мелочей и небольшим процентом средств, которые уйдут на непредвиденные покупки.
Варианты проектов
Переделать из обычной двухкомнатной квартиры трехкомнатную можно, если метраж вашего жилья позволяет это организовать.
Безусловно, 60 кв. м – это отличные исходные данные для трансформации. Но и с 42-45 квадратами идеи могут быть успешными.
Разделение одной большой комнаты
В панельных домах советского образца организовать перепланировку совсем непросто. Комнаты расположены последовательно, в каждой – окно. Достойный вариант только один – разделить гостиную на 2 части.
Но если метраж этой комнаты менее 18 квадратов, трансформация вряд ли будет успешной.
Тогда логичнее подумать над такой «полумерой», как зонирование. Но если вы делите комнату, где только одно окно, нельзя лишаться источника света. Потому разделительная стенка, которая будет установлена, должна быть стеклянной матовой, витражный и полупрозрачный варианты стены тоже подойдут.
Через декоративную стену сможет поступать свет, и ощущение тесноты не возникнет.
Ну а если речь идет о комнате с двумя окнами, все гораздо проще. Помещение делится на 2 части, на каждую приходится по окну. Осталось только продумать логистику входа/выхода. Разделить эту двухоконную комнату можете кирпичной или гипсокартонной стеной. Второй вариант, безусловно, более популярен.
Смежные или проходные комнаты
Без оформления смежных комнат превратить двухкомнатную в трехкомнатную крайне трудно.
На помощь приходит совмещение пространств. Допустим, вы живете в квартире с тремя окошками, два из которых смотрят на одну сторону, а третье – в боковую часть дома. То есть жителям углового жилья перепланировку провести проще всего.
Соединяться в данном случае будут кухня, коридор и половина гостиной. Стена, разделяющая гостиную и спальню, переносится на несколько метров. Помещение станет не особенно просторным, но комфортным для домочадцев. Вариант спальни для супругов – вполне себе отличный.
А чтобы комнаты на 100% были отдельными, кирпичом придется заложить проход из экс-гостиной в детскую или спальню. И прорубать новый проход нужно уже со стороны нового же холла. Так окно появится в каждой комнате.
Объединение зон
Популярный в последнее десятилетие вариант – превращение стандартного жилья в квартиру-студию либо жилище, в котором есть элементы такой планировки.
Обычно совмещают гостиную и кухню. Получается одна полноценная комната с множеством функций. А некоторая территория гостиной отделяется и становится третьей комнатой. Есть вариант совмещения кухни с коридором, но только если коридор большой.
Несущие конструкции жилища нужно усилить, если новый проект не обходится без включения их в изменения. Часто с этой целью используются металлические швеллеры, возводятся колонны для поддержки плит перекрытия.
При совмещении зон кухня может получить функции и гостиной, и даже кабинета. То есть вы стены убираете, пространство меняете, оно становится студийным, но за счет грамотного зонирования вы в итоге получаете на одну комнату больше. Да, она может не находиться за сплошной стеной, но даже визуально эта зона будет восприниматься отдельной комнатой.
Перенос кухонной зоны
Если кухню определить в коридор либо прихожую, это тоже может сделать трехкомнатную квартиру из изначально двухкомнатной.
Если в жилище есть кладовка либо гардеробная, можно снести ее и задействовать для увеличения комнат.
Такой перенос будет удачным, если холл (либо коридор) расположен не дальше 5 метров от газового стояка. По-другому на перенос просто могут не дать согласие.
Вместо кухни будет отдельная комната, с окном. Логично, что в новом расположении кухни разумнее будет установить не газовую, а электрическую установку. Да и системой вентиляции на новой кухне тоже придется заняться.
Сомнения могут возникать у семей, которые считают, что люди, заходя в квартиру, сразу будут попадать «с улицы» на кухню.
Но это вопрос удобства, чистоплотности, приемлемости. Подобного жилья сегодня много, и людям нравится кухня, которая начинается почти с первых метров жилища. И множество таких квартир выглядят очень симпатично.
Разгрузка помещения
Вам нужно изначально увеличить пространство исходного помещения – разгрузить его. И делать это лучше начиная с прихожей. Если в ней много шкафов и тумбочек, они, действительно, могут загромождать пространство. Подумайте, от чего можно избавиться, как оптимизировать пространство.
Составьте подробный план квартиры, указав точные параметры комнат.
Иногда логичным решением будет совместить ванную с туалетом, убрав таким образом одну дверь. Вы можете так увеличить коридор, и далее уже переходить к гостиной. Подобная трансформация хороша в «хрущевке», где коридор не очень большой, но комнаты довольно просторные.
Дизайнерские решения
Декоративные элементы позволят сделать обустройство новой комнаты-зоны более легким, гармоничным. Дизайн-решения могут быть самыми разными.
- Игра цвета. Если пол и потолочную область выполнить на несколько тонов светлее, нежели стены, пространство станет выглядеть больше, и потолок будет казаться выше. Холодные цвета также зрительно расширяют пространство. А вот яркие цвета преимущественно сжимают его.
- Визуальный подъем потолка.
Если у вас в квартире высокие потолки, можете соорудить закрытые антресоли. А еще там можно поставить полки для книг. Да и обычный книжный шкаф, если сделать его до потолка, зрительно поднимет высоту помещения.
- Зеркальные и глянцевые поверхности. Зеркало – самый эффектный «расширитель» пространства. Глянцевые потолки по большому счету делают то же самое.
Прекрасно, если вы заранее определились с интерьерным стилем, который объединит все комнаты жилища в одно уютное, красивое помещение.
Для получения новой комнаты и оптимизации помещения отлично подходит именно скандинавский стиль. Потому все дизайн-подсказки, подсмотренные в сканди-интерьерах, стоит сохранять в закладки.
Рекомендации
Все спорные, проблемные вопросы лучше сразу решать со специалистами. В ходе уже развернутого ремонта справиться с ними будет тяжелее. Частые вопросы и связанные с ними рекомендации:
- межкомнатные двери при превращении двухкомнатной квартиры в трехкомнатную могут возникать в разных местах, ведь простенки не будут несущими;
- если в кухне не подведен газ, объединяйте ее со смежным помещением – получите одно большое, но многофункциональное пространство;
- недостаток метража отчасти исправляется задействованием ниш, встроенных больших шкафов, комнат-кладовых, гардеробных;
- можно подумать над вариантом задействования лоджии или балкона;
- а вот чего делать нельзя, так это сносить несущие стены, проводить работы, блокирующие подход к коммуникациям, переносить радиаторы.

И, конечно, нельзя совмещать квартиры смежных этажей, разбирая межэтажные перекрытия.
Не забудьте и о том, что совмещать жилую комнату с газифицированной кухней без установки перегородки запрещено.
Примеры
А вот и конкретные схемы, изображения, которые показывают, как можно двухкомнатную квартиру сделать трехкомнатной. Предлагаем 5 удачных перепланировок.
- Маленькая кухня и проходной зал стали компромиссом в данном случае.
Да и санузел остается доступным только из гостиной. Но в целом вариант определенно симпатичный.
- План перепланировки «хрущевки». Прием студии задействован в слиянии кухни и гостиной. Выйдет, что все 3 комнаты будут небольшими, но если важно персонализировать пространство, данная схема удачна.
- Не самое привычное решение, но достойно рассмотрения. Часть пространства остается без окна, и здесь уже нужно грамотно решить вопрос с перегородками и отделкой.
- Один из самых простых и востребованных вариантов. Прямоугольная комната делится пополам. Наверное, решение самое простое, но нужно подумать над перегородкой – она должна максимально пропускать свет в новообразованную комнату после ремонта.
- Спальня будет маленькой, зато она будет.
Гостиная компактная, детская – отличные параметры. Если вас не смущает количество проходных комнат, рассмотрите этот вариант.
Удачных решений и быстрого ремонта!
Как из двухкомнатной квартиры сделать трехкомнатную?
Двухкомнатная квартира – оптимальный вариант на рынке постсоветского жилья. И всегда есть возможность пойти на компромисс, а затем извлечь из него максимум выгоды. Например, превратить такую квартиру в трехкомнатную. И сделать это можно, используя несколько сценариев.
Основные правила перепланировки
Если вы намерены сносить стены, сразу же дайте себе установку, что это должно быть согласовано с ответственными инстанциями.
В ином случае вы как минимум получите немаленький штраф за несогласованный демонтаж стен, а ведь можете сделать ситуацию еще более рискованной и опасной для вас и соседей.
Но в случае если вы решили из 2-комнатной квартиры сделать 3-комнатную, сносить стены приходится реже, чем их воздвигать. Если конкретного проекта пока нет, подумайте и над вариантом демонтажа стен. Не исключено, что идеальная перепланировка не потребует этого.
Подсчитайте количество несущих стен: если таковые есть лишь по «краям» жилплощади, то у вас больше шансов создать в квартире принципиально новую планировку. Но несущие конструкции, конечно, трогать нельзя.
Разберем, как определиться с планировкой.
- Четко обозначьте цель перепланировки. Если вам нужны 2 детские, например, это могут быть 2 небольшие комнатки, образовавшиеся при разделении одной побольше. Будет ли одна из новых комнат проходной, как быть с окном – все это нужно решить в первую очередь.
- Подумайте, какая комната самая большая по метражу, и выгодно ли вам ее разделять. Если, например, часть гостиной совмещается с кухней, превращаясь в одно пространство, другая часть становится автономной комнаткой.
Если вы решились на объединение двух зон, этот вариант один из доступных.
- Самый простой способ – присмотреться к понравившимся готовым вариантам. Поищите несколько примеров, скопируйте их в папку. Рассмотрите всей семьей, устройте голосование за лучший вариант. И если он применим к вашей квартире, можете закатывать рукава.
И, конечно, смету проекта лучше просчитать заранее. С учетом мелочей и небольшим процентом средств, которые уйдут на непредвиденные покупки.
Варианты проектов
Переделать из обычной двухкомнатной квартиры трехкомнатную можно, если метраж вашего жилья позволяет это организовать.
Безусловно, 60 кв. м – это отличные исходные данные для трансформации. Но и с 42-45 квадратами идеи могут быть успешными.
Разделение одной большой комнаты
В панельных домах советского образца организовать перепланировку совсем непросто. Комнаты расположены последовательно, в каждой – окно. Достойный вариант только один – разделить гостиную на 2 части.
Но если метраж этой комнаты менее 18 квадратов, трансформация вряд ли будет успешной.
Тогда логичнее подумать над такой «полумерой», как зонирование. Но если вы делите комнату, где только одно окно, нельзя лишаться источника света. Потому разделительная стенка, которая будет установлена, должна быть стеклянной матовой, витражный и полупрозрачный варианты стены тоже подойдут.
Через декоративную стену сможет поступать свет, и ощущение тесноты не возникнет.
Ну а если речь идет о комнате с двумя окнами, все гораздо проще. Помещение делится на 2 части, на каждую приходится по окну. Осталось только продумать логистику входа/выхода. Разделить эту двухоконную комнату можете кирпичной или гипсокартонной стеной. Второй вариант, безусловно, более популярен.
Смежные или проходные комнаты
Без оформления смежных комнат превратить двухкомнатную в трехкомнатную крайне трудно.
На помощь приходит совмещение пространств. Допустим, вы живете в квартире с тремя окошками, два из которых смотрят на одну сторону, а третье – в боковую часть дома. То есть жителям углового жилья перепланировку провести проще всего.
Соединяться в данном случае будут кухня, коридор и половина гостиной. Стена, разделяющая гостиную и спальню, переносится на несколько метров. Помещение станет не особенно просторным, но комфортным для домочадцев. Вариант спальни для супругов – вполне себе отличный.
А чтобы комнаты на 100% были отдельными, кирпичом придется заложить проход из экс-гостиной в детскую или спальню. И прорубать новый проход нужно уже со стороны нового же холла. Так окно появится в каждой комнате.
Объединение зон
Популярный в последнее десятилетие вариант – превращение стандартного жилья в квартиру-студию либо жилище, в котором есть элементы такой планировки.
Обычно совмещают гостиную и кухню. Получается одна полноценная комната с множеством функций. А некоторая территория гостиной отделяется и становится третьей комнатой. Есть вариант совмещения кухни с коридором, но только если коридор большой.
Несущие конструкции жилища нужно усилить, если новый проект не обходится без включения их в изменения. Часто с этой целью используются металлические швеллеры, возводятся колонны для поддержки плит перекрытия.
При совмещении зон кухня может получить функции и гостиной, и даже кабинета. То есть вы стены убираете, пространство меняете, оно становится студийным, но за счет грамотного зонирования вы в итоге получаете на одну комнату больше. Да, она может не находиться за сплошной стеной, но даже визуально эта зона будет восприниматься отдельной комнатой.
Перенос кухонной зоны
Если кухню определить в коридор либо прихожую, это тоже может сделать трехкомнатную квартиру из изначально двухкомнатной.
Если в жилище есть кладовка либо гардеробная, можно снести ее и задействовать для увеличения комнат.
Такой перенос будет удачным, если холл (либо коридор) расположен не дальше 5 метров от газового стояка. По-другому на перенос просто могут не дать согласие.
Вместо кухни будет отдельная комната, с окном. Логично, что в новом расположении кухни разумнее будет установить не газовую, а электрическую установку. Да и системой вентиляции на новой кухне тоже придется заняться.
Сомнения могут возникать у семей, которые считают, что люди, заходя в квартиру, сразу будут попадать «с улицы» на кухню.
Но это вопрос удобства, чистоплотности, приемлемости. Подобного жилья сегодня много, и людям нравится кухня, которая начинается почти с первых метров жилища. И множество таких квартир выглядят очень симпатично.
Разгрузка помещения
Вам нужно изначально увеличить пространство исходного помещения – разгрузить его. И делать это лучше начиная с прихожей. Если в ней много шкафов и тумбочек, они, действительно, могут загромождать пространство. Подумайте, от чего можно избавиться, как оптимизировать пространство.
Составьте подробный план квартиры, указав точные параметры комнат.
Иногда логичным решением будет совместить ванную с туалетом, убрав таким образом одну дверь. Вы можете так увеличить коридор, и далее уже переходить к гостиной. Подобная трансформация хороша в «хрущевке», где коридор не очень большой, но комнаты довольно просторные.
Дизайнерские решения
Декоративные элементы позволят сделать обустройство новой комнаты-зоны более легким, гармоничным. Дизайн-решения могут быть самыми разными.
- Игра цвета. Если пол и потолочную область выполнить на несколько тонов светлее, нежели стены, пространство станет выглядеть больше, и потолок будет казаться выше. Холодные цвета также зрительно расширяют пространство. А вот яркие цвета преимущественно сжимают его.
- Визуальный подъем потолка.
Если у вас в квартире высокие потолки, можете соорудить закрытые антресоли. А еще там можно поставить полки для книг. Да и обычный книжный шкаф, если сделать его до потолка, зрительно поднимет высоту помещения.
- Зеркальные и глянцевые поверхности. Зеркало – самый эффектный «расширитель» пространства. Глянцевые потолки по большому счету делают то же самое.
Прекрасно, если вы заранее определились с интерьерным стилем, который объединит все комнаты жилища в одно уютное, красивое помещение.
Для получения новой комнаты и оптимизации помещения отлично подходит именно скандинавский стиль. Потому все дизайн-подсказки, подсмотренные в сканди-интерьерах, стоит сохранять в закладки.
Рекомендации
Все спорные, проблемные вопросы лучше сразу решать со специалистами. В ходе уже развернутого ремонта справиться с ними будет тяжелее. Частые вопросы и связанные с ними рекомендации:
- межкомнатные двери при превращении двухкомнатной квартиры в трехкомнатную могут возникать в разных местах, ведь простенки не будут несущими;
- если в кухне не подведен газ, объединяйте ее со смежным помещением – получите одно большое, но многофункциональное пространство;
- недостаток метража отчасти исправляется задействованием ниш, встроенных больших шкафов, комнат-кладовых, гардеробных;
- можно подумать над вариантом задействования лоджии или балкона;
- а вот чего делать нельзя, так это сносить несущие стены, проводить работы, блокирующие подход к коммуникациям, переносить радиаторы.

И, конечно, нельзя совмещать квартиры смежных этажей, разбирая межэтажные перекрытия.
Не забудьте и о том, что совмещать жилую комнату с газифицированной кухней без установки перегородки запрещено.
Примеры
А вот и конкретные схемы, изображения, которые показывают, как можно двухкомнатную квартиру сделать трехкомнатной. Предлагаем 5 удачных перепланировок.
- Маленькая кухня и проходной зал стали компромиссом в данном случае.
Да и санузел остается доступным только из гостиной. Но в целом вариант определенно симпатичный.
- План перепланировки «хрущевки». Прием студии задействован в слиянии кухни и гостиной. Выйдет, что все 3 комнаты будут небольшими, но если важно персонализировать пространство, данная схема удачна.
- Не самое привычное решение, но достойно рассмотрения. Часть пространства остается без окна, и здесь уже нужно грамотно решить вопрос с перегородками и отделкой.
- Один из самых простых и востребованных вариантов. Прямоугольная комната делится пополам. Наверное, решение самое простое, но нужно подумать над перегородкой – она должна максимально пропускать свет в новообразованную комнату после ремонта.
- Спальня будет маленькой, зато она будет.
Гостиная компактная, детская – отличные параметры. Если вас не смущает количество проходных комнат, рассмотрите этот вариант.
Удачных решений и быстрого ремонта!
Перепланировка двухкомнатной квартиры в трехкомнатную и не только, примеры и проекты для хрущевки и других, идеи с примерами и фото
Ремонт в квартире — трудоёмкий процесс. В то же время это необходимость, без которой дома невозможно чувствовать себя комфортно и уютно. Перед тем как приступить к работе, следует определиться, что именно вы хотите увидеть в итоге. Уже давно прошли времена, когда все граждане нашей страны имели одинаковое жилище с однотипной мебелью и стандартным расположением кухни и санузла.
Не всегда количество комнат и их размеры совпадают с нашими желаниями и потребностями. К счастью, перепланировка двухкомнатной квартиры уже давно не является чем-то нереальным.
Приведённые ниже варианты возможно использовать в качестве основы для собственного ремонта. А, может быть, эти проекты помогут вам создать свой уникальный дизайн.
Как сделать перепланировку в двухкомнатной квартире — идеи с фото
В процессе ремонта часто необходимо объединить комнаты или изменить их параметры путём сноса базовых перегородок. Для того чтобы в дальнейшем не возникло проблем, первым делом в соответствующих органах следует получить разрешение на демонтаж стен.
От того, какие функции будет выполнять то или иное помещение, зависит выбор материалов для создания новых конструкций. В ванной комнате должны быть влагостойкие стены. В кухне чаще всего крепятся тяжёлые навесные шкафы, об этом необходимо помнить в момент установки перегородок.
Из двухкомнатной в трёхкомнатную
Если в двухкомнатной квартире проживает семья из нескольких поколений, каждому из них необходимо иметь свою комнату. При этом должен быть общий зал, где семья будет проводить свободное время.
Рассмотрим несколько вариантов увеличения количества жилых помещений.
Некоторые новые дома имеют выгодную планировку, в которой при желании можно увеличить количество комнат. Идеально, если каждая из них будет иметь окно. Когда по проекту дома в гостиной расположено 2 оконных проёма — её легко можно разделить на 2 небольшие спальни. Такое деление будет оправданным при условии, когда первоначальное жилое помещение имело площадь не менее 18 кв. м. В противном случае можно получить две неудобные кладовые, непригодные для жизни. Третья комната, ранее выполняющая роль спальни, может стать гостиной.
Деление гостиной с двумя окнами — хороший приём при перепланировке
Объединение кухни с коридором и незначительное уменьшение комнат позволит создать полноценную гостиную-столовую. Скруглённые стены с одной из сторон сделают возможным размещение большого обеденного стола без заметной потери жилого пространства. В этом случае следует позаботиться об освещении в центральной комнате.
Необходимо компенсировать отсутствие естественного дневного света в зоне приёма гостей.
Один из вариантов перепланировки двушки
Если в квартире имеется лоджия с глухими стенами по бокам, её можно преобразовать в комнату для подростка. При этом варианте следует позаботиться о хорошем утеплении всех стен, пола и потолка. Не стоит забывать, что у соседей сверху и снизу эта часть помещения скорее всего нежилая, поэтому не отапливается.
На лоджии можно обустроить удобную комнату для подростка
Жители первого этажа часто прибегают к увеличению балкона путём его выдвигания. В этом случае комната может иметь полноценный размер. Однако многие умудряются сделать это и на верхних этажах. Такие конструкции в обязательном порядке необходимо согласовывать с городскими службами. Разумеется, делать подобные наращивания должны только профессионалы.
Некоторые расширяют квадратные метры зя счёт увеличения площади балконов и лоджий
Всем известно, что на кухне должен быть яркий свет.
Отличным вариантом станет её перенос на балкон, при условии, что в первоначальном варианте он имелся на кухне. В этом случае появляется дополнительная комната, которую можно использовать в качестве гостиной. Такие преобразования также необходимо согласовывать с ЖЭК и другими инстанциями.
Альтернативным вариантом станет перенос кухни на лоджию
Примеры перепланировкы двушки в «хрущёвке»
В странах бывшего Советского Союза все ещё распространены так называемые хрущёвки. Они относительно недорогие по стоимости, однако расположение и размеры комнат зачастую очень неудобны. Неоспоримым преимуществом является то, что практически все внутренние стены не являются несущими, а значит их можно ломать, предварительно получив на это разрешение.
Смежные комнаты допустимы в случаях, когда в квартире живёт молодая пара. Но если приходится существовать нескольким поколениям вместе, необходимо разделить спальни, чтобы не смущать тех, чья комната является проходной. За счёт зала увеличивается коридор, из которого в разные стороны будут уходить комнаты.
Между ними можно установить вместительный гардероб. Полученная «распашонка» создаст необходимое личное пространство для каждого члена семьи.
Пример перепланировки двухкомнатной квартиры «чулка»
Ещё один вариант смежных комнат решается путём разделения последней на две небольшие спальни, создающие индивидуальное пространство для каждого живущего поколения.
Из одной комнаты можно сделать две смежные
Перенос входа в кухню со стороны гостиной позволит увеличить ванную за счёт коридора. Учитывая небольшой проектный размер зоны приготовления еды, можно объединить комнаты. При помощи цветовой гаммы интерьера возможно гармоничное сочетание двух разных помещений.
При правильном сочетании цветов вы получите уютный интерьер
Любители свободного пространства предпочитают снести максимальное количество перегородок и установить вместо них фальш-панели, разделяющие зоны. Такая идея часто применяется в планировке, называемой «чулок», когда квартира вытянута в одну сторону.
При демонтаже стен появляется ощущение большого количества воздуха. Зрительно увеличивается размер помещения.
Чтобы сделать комнаты просторнее, можно убрать лишние перегородки
Считается, что небольшие квартиры должны быть представлены в светлых тонах. При этом важно не впасть в крайность. Слишком бледные помещения рискуют стать скучными и незаконченными. В интерьере рекомендовано применять три основных цвета, один из которых может быть вызывающе ярким.
Правильно подобранные цвета играют важную роль при обустройстве интерьера
Варианты переделки двухкомнатной квартиры-брежневки
На смену «хрущёвкам» пришли «брежневки» – дома, построенные в период правления Брежнева. Они имеют немного больший размер в сравнении с предшественниками. Санузел стал раздельным. Комнаты расположены изолировано друг от друга, что значительно улучшает условия проживания. Однако кухни по-прежнему остаются небольшими, их площадь не превышает 7 квадратов.
Расширение лоджии за счёт гостиной позволит увеличить количество жилых комнат.
Лоджия позволит расшить жилые комнаты
Объединение ванной и туалета увеличит полезную площадь, появляется возможность установки стиральной машинки.
Объединение двух санузлов позволит увеличить полезное пространство квартиры
Демонтаж стены между кухней и залом и установка между ними гипсокартонной конструкции с расширенным нестандартным проёмом позволит сохранить зональность и визуально увеличит пространство.
Расширить пространство позволит демонтаж стены между кухней и гостиной
Объединение комнаты с лоджией является популярным решением. При этом все чаще в процессе ремонта отказываются от демонтажа стены под окном. Её используют в качестве основы для стола.
Стену под оконным проёмом используют для установки стола
Основная проблема — маленькая кухня, решается путём увеличения этой зоны за счёт зала. Если не устанавливать между этими помещениями дверей, кухонный пол из кафеля можно вынести в гостиную, и разместить там обеденный стол. Визуально это не уменьшит жилую комнату, но увеличит зону приготовления еды.
Столовую зону можно вынести в гостиную
Перепланировка двушки со смежными комнатами
Смежные комнаты удобны, когда в квартире проживает один человек или пара без детей. В этом случае проходная комната может выступать гостиной, а вторая — зоной для сна. Но что делать, когда необходимо оборудовать две спальни?
Самым простым вариантом становится разделение дальней комнаты на две идентичные. В этом случае образуются независимые друг от друга спальни. Одна из них не будет иметь окон. Это значит, что на этапе ремонта нужно позаботиться о возможности яркого освещения помещения.
При перепланировке учитывайте, что в одной из комнат нужно обеспечить хорошее освещение
Если вторая комната имеет размеры, не превышающие 15 квадратных метров, не рекомендовано разделять её глухой стеной. Можно предложить вариант уменьшить первую проходную комнату за счёт образования коридора, ведущего во второе помещение.
Пример перепланировки двушки
Ещё одним вариантом может стать создание небольшого кабинета или спальни внутри проходной комнаты.
При этом гостиную увеличить путём её объединения с кухней.
В проходной комнате можно обустроить и рабоче место
Интересным выглядит решение с нестандартной стеной, разделяющей дальнюю комнату на два небольших помещения. В каждой из спален появляется ниша для встроенного шкафа.
Пример квартиры до и после перепланировки
Выделив в гостиной спальную зону, можно также решить проблему неудобства смежных комнат. При таком проекте ни одна спальня не будет проходной комнатой. Зал значительно уменьшается, к тому же остаётся без дневного освещения. Но это легко решается при помощи правильно расставленного света и использования цветовых акцентов в интерьере.
При такой планировки площадь зала уменьшиться, но правильное освещение и акценты в интерьере помогут сделать комнату уютной
Переделка с выносом кухни в коридор
Классическим американским стилем являются квартиры, которые начинаются с кухни. Без лишних перегородок помещение плавно переходит в гостиную. И только спальни принято выделять в отдельные комнаты.
Ярким примером такого обустройства являются квартиры, показанные в знаменитом сериале «Друзья». Основные события происходят как раз в подобных жилищах главных героев.
Помещение плавно переходит из коридора в кухню, затем в гостиную
Весьма необычно смотрится планировка квартиры с кухней в коридоре. Но практика показала, что такое расположение удачно. Основной треугольник — расстояние между мойкой, холодильником и плитой, можно расположить в удобной плоскости. При этом остаётся много рабочего пространства для нарезки продуктов. Следующее помещение — гостиная, одновременно выполняет роль столовой, где можно поставить большой обеденный стол.
Стоит помнить, что такая перепланировка обязательно нуждается в получении письменного разрешения во всех задействованных инстанциях в связи с переносом водопровода, газопровода, канализации и вентиляции. Непосредственно перед кухней необходимо позаботиться о зоне для уличной обуви.
Большую прихожую можно использовать в качестве кухонной зоны.
Очень важно продумать варианты освещения, ведь его придётся использовать в любое время суток.
Часть прихожей можно использовать в качестве зоны для кухни
Для удобства зону приготовления еды, расположенную в коридоре, защищают гипсокартонными конструкциями.
Разделить простанство можно с помощью перегородок из гипсокартона
Глянцевая поверхность визуально расширяет пространство, поэтому на узкой кухне хорошо будет смотреться такая мебель с минимальным количеством выпирающих деталей.
Глянцевая поверхность визуально расширит пространство
При переносе кухни в прихожую образуется дополнительная полноразмерная комната, которую можно использовать в качестве гостиной. Остальные две комнаты выполняют функции спален.
Такой способ перепланировки позволит сделать жилую комнату
Из двушки в студию
Если в двухкомнатной квартире проживает один человек или молодая семья без детей, очень удобно объединить кухню с гостиной. При этом образуется увеличенное пространство, которое можно использовать для различных целей.
Создавая студию, важно выделять функциональные зоны. Для этого совсем необязательно нужны стены или массивные перегородки.
При помощи изменения уровня потолков и покрытия на полу можно разграничить место для приготовления еды и зону отдыха.
С помощью мебели можно зонировать пространство
Любители большого открытого пространства отдают предпочтение единому помещению. Для этого они объединяют обе комнаты с кухней и получают максимально возможную площадь. Для спального места выделяется небольшая зона, отделённая лёгкой перегородкой. При правильно подобранной цветовой гамме жилище будет выглядеть уютным, иметь собственный стиль и настроение.
Правильная расстановка мебели позволит создать удобное жилище
Барная стойка или полуостров станет отличным вариантом разделения зон в студии. Кроме того, на кухне необходимо установить возможность яркого освещения. Навесной потолок в едином стиле с общим интерьером в месте приготовления еды также поможет гармонично разграничить пространство.
Барная стойка может быть использована для деления комнаты на зоны
При использовании контрастных цветов в интерьере важно правильно подобрать их сочетание. Для этого используют цветовой круг.
При выборе цветовой гаммы для интерьера удобно пользоваться специальным цветовым кругом
Он помогает выбрать гармонирующую расцветку. Важно помнить, что оптимально использовать три основных цвета в помещении. Меньшее количество приведёт в блёклости и безжизненности, избыточное обилие расцветок создаст агрессивное настроение в помещении.
В этом примере используется три основных цвета: зелёный, чёрный и оттенки натурального дерева
Вытянутые квартиры-студии можно зрительно расширить, используя освещение, направленное от потолка на стены. При этом не стоит делать слишком ярких акцентов в интерьере. В такой планировке больше подойдут пастельные тона.
С помощью освещения можно зрительно расширить пространство
В статье были предложены различные варианты перепланировки двухкомнатных квартир.
В зависимости от того, сколько человек проживает в доме, создаётся необходимый проект. Смежные комнаты не подходят для большой семьи. В то же время молодая пара, не планирующая в ближайшем будущем обзаводиться потомством, наоборот, чаще всего будет разрабатывать вариант планировки с центральной комнатой, из которой будут выходить все остальные помещения. Необходимо придерживаться определённых правил по разделению зонирования пространства, оформляя его при помощи света, цвета, функциональной мебели и декора.
Не нашли то, что искали? Вернитесь к поиску планировок квартир по параметрам типового проекта. Поддержите проект, расскажите о tipdoma.com в социальных сетях:
Перепланировка двухкомнатной квартиры в трехкомнатную
Перепланировка квартиры стала одним из дизайнерских решений в оформлении интерьера. Каждый человек стремится облагородить своё жилище и внести в него некую изюминку. Некоторые просто вносят разнообразие в интерьер, а другие хотят уменьшить или увеличить количество комнат.
Перепланировка двухкомнатной квартиры в трёхкомнатную — процесс сложный. Она может затрагивать перенос стенок и зон в квартире.
Содержание материала
Нарезка комнат по-новому
Такую перепланировку требуется заверить в соответствующих инстанциях, так как по документам увеличится жилая площадь квартиры и изменится количество комнат. В противном случае придётся оплачивать штраф за незаконную перепланировку. Сумма его очень внушительная.
Есть несколько способов, чтобы сделать перепланировку двухкомнатной квартиры в трёхкомнатную.
Перед началом работ необходимо определить количество несущих стен в квартире. Если такие стены находятся только по «краям» жилища, то можно будет осуществлять совершенно новую планировку трёхкомнатной квартиры. С несущими конструкциями нельзя ничего делать.
Далее необходимо сосчитать количество окон и утвердить нужное количество комнат.
Варианты перепланировки квартиры с нарезкой комнат по-новомуТакой выбор разграничения пространства, как правило, встречается в квартирах со свободной планировкой.
В них имеется 3-4 окна. Кухонная зона совмещена с гостиной. Для того чтобы в такой квартире сделать три комнаты, нужно таким образом распределить пространство, чтобы в каждой комнате было хотя бы одно окно.
Можно будет увеличить пространство за счёт балкона или лоджии. Для этого необходимо утеплить дополнительные помещения и снести разделительную стену между балконом или лоджией. В результате комната может увеличиться на несколько квадратов.
После того, как вы чётко определились, где именно должна находиться та или иная комната, можно смело переходить к планированию ее площади.Совет. Как правило, удобной и очень уютной считается комната, которая имеет площадь от 10-15 квадратов. Если нужно сделать детскую, то её площадь должна быть не менее 12 квадратов.
В маленьком возрасте ребенок может жить и на меньшей площади, только со временем придётся заново пересмотреть планировку — ребенок растёт и ему может понадобиться большая комната.
Можно будет перенести гостиную в кухонную зону и сделать её немного меньше. За счёт этого увеличится используемая для перепланировки площадь. Такие действия также необходимо согласовать с соответствующими инстанциями, так как кухня считается опасной зоной для жизни человека.
Планировка и перенос гостиной в кухонную зонуПосле утверждения плана перепланировки нужно определиться с выбором строительного материала для перегородок. Если планируется делать основательную перепланировку, которая в ближайшее время не будет подвержена изменениям, то стоит остановить свой выбор на кирпиче. Если же со временем будет желание снова изменить количество комнат, то будет рационально использовать гипсокартон.
Такой строительный материал на сегодняшний день пользуется большой популярностью из-за своей универсальности. С его помощью можно сделать не только многоуровневые потолочные конструкции и выравнивание поверхностей, но и изготовить разделительные стенки. Крепится он на предварительно сооруженный металлический каркас из специальных профилей.
Они монтируются в стену и потолок для придания большей прочности всей конструкции.
Для того чтобы использовать гипсокартон с целью разделения площади в квартире, необходимо в металлический каркас поместить изоляционный материал. Это может быть пенопласт, пенополиуретан или другой материал пористой структуры.
На металлический каркас гипсокартон крепится с двух сторон. Затем его штукатурят, шпаклюют. Только после этого осуществляют чистовые отделочные работы по оклеиванию или окрашиванию поверхности.
Перегородка из гипсокартонаВернуться к оглавлениюРазделение одной большой комнаты в квартире
Очень трудно сделать перепланировку в двухкомнатной квартире в панельных домах старого образца. Квартиры, как правило, не обладают большой площадью (30-35 квадратов). Комнаты располагаются последовательно, и каждая имеет одно окно.
Чтобы 2 комнатная квартира такой планировки превратилась в трёхкомнатную, рекомендуется разделить большую комнату на две.
Совет. Можно разделять комнату на две только в том случае, если её площадь составляет не менее 18 кв. м.
Так как комната имеет всего одно окно, то рационально для разделения будет использовать полупрозрачные стекла или стеклянные матовые или витражные блоки. Через такую разделительную стену в комнату, которая находится дальше от окна, может поступать свет, и не будет создаваться впечатление сдавленности пространства.
Деление одной комнаты на две с помощью полупрозрачной перегородкиЗа такой полупрозрачной перегородкой, как правило, располагают кухонную или гостиную зону. Но это при условии, что эти зоны находятся на одной территории с коридором или холлом. Многие стремятся расположить в такой комнате кабинет или спальню.
Довольно редко встречается такая комната с двумя окнами. Тут план действий будет очень прост. В результате разделения есть возможность получить две равнозначные комнаты, каждая из которых будет иметь своё окно.
Разделять такие комнаты можно при помощи кирпича или гипсокартона.
Лучше всего для разделения пространства использовать гипсокартон. Стена из такого материала занимает меньше места, чем кирпичная. Таким образом, экономится пространство.
Вернуться к оглавлениюСмежные или проходные комнаты
Иногда, перепланировка из двухкомнатной квартиры в трёхкомнатную невозможна без организации смежных комнат или совмещения помещений. Если двухкомнатная квартира имеет три окна, два из которых выходят на одну сторону, а третье — в боковую часть дома (угловая квартира), то такая перепланировка будет очень простой.
В квартире подлежит соединению кухонная зона, коридор и часть гостиной. Стена, которая разделяет одну спальню и гостиную зону переносится на несколько метров. Таким способом происходит совмещение коридора, кухни и гостиной. В результате, получается не слишком большое помещение, но довольно уютное.
Чтобы сделать две полноценные отдельные комнаты, нужно заложить кирпичом проход из бывшей гостиной в спальню и прорубить его уже со стороны получившегося холла.
Таким образом, каждое помещение в квартире будет иметь своё окно.
Объединение зон
Очень часто, чтобы увеличить полезную площадь, делают квартиру-студию. В такой планировке, как правило, совмещению подлежат кухонная зона и часть гостиной. Можно также соединить кухню с коридором, но это при условии, что коридор довольно большой. Он может быть в квартире новой планировки. Зачастую коридоры в таких квартирах имеют квадратную форму.
Пример того, как можно объединить зоны в небольшой квартиреСовмещение в таком случае может затронуть и некоторую площадь гостиной. Разделительная стена при этом переносится на несколько метров. За счёт это увеличивается площадь кухни и самого коридора. Если из коридора имеются входы в санитарные зоны, то можно их также немного уменьшить, как и гостиную. В результате получается полноценный холл.
Комнаты при такой планировке могут быть проходными. Чтобы избежать этого, можно проход из бывшей гостиной заложить и прорубить его уже с холла.
Несущие конструкции в квартире необходимо будет усилить, если в процессе перепланировке не обойтись без их затрагивания. Для этого очень часто используют металлические швеллеры и возводят колонны для поддержания плиты перекрытия.
Можно также совместить зоны и сделать кухню-кабинет-гостиную. Кто-то останавливает свой выбор на кухне-гостиной-обеденной.
Также будет рационально использовать балконное помещение. Его нужно соединить с гостиной или спальней. Это зависит от того, где именно расположен балкон или лоджия. Предварительно помещение должно быть застеклено и утеплено.
Совет. Стоит продумать систему отопления такого дополнительного помещения. Это могут быть тёплые полы или подключение к центральной системе отопления. Для этого батареи переносятся частично на балкон и дополняются несколькими секциями.
На балконе можно расположить рабочий кабинет или цветочную оранжерею.
Такой интерьер будет очень интересно и необычно смотреться. Чтобы увеличить балкон, можно обратиться к специалистам. Как правило, они с такой целью осуществляют вынос балкона. Он составляет 40-70 см. На такие действия нужно будет получить разрешение у соответствующих организаций.
Балконное помещение увеличивают при помощи швеллеров, которые крепятся на плите и проходят через несущую стену. Затем сваривается металлический каркас балкона, и осуществляются внутренние и внешние отделочные работы.
Совет. При остеклении совмещенного балкона будет лучше использовать металлопластиковые окна. Они обладают отличной герметичностью, практичностью и долговечностью.
Вернуться к оглавлениюПеренос кухонной зоны
Трёхкомнатная квартира может получиться из двухкомнатной в том случае, если сделать перенос кухонной зоны в холл или коридор. Можно также снести кладовку или гардеробную комнату, за счёт этого произойдёт увеличение площади такой совмещенной зоны.
План переноса кухни в комнату 2Б в угол, где есть электрический стоякСовет. Такой перенос лучше всего делать в том случае, если коридор или холл находится на расстоянии не более чем 4-5 м от основного газового стояка. В противном случае, на эти действия могут не дать разрешение.
Вместо кухни, таким образом, появится ещё одна комната, которая будет иметь свое окно. Также стоит предварительно оценить площадь такого будущего помещения. Если она мала, и не может вместить в себя кухню и гостиную, то будет рационально перенести межкомнатную перегородку бывшей гостиной на 1,5-2 м вглубь квартиры.
Очень часто для перепланировки двухкомнатной квартиры в трёхкомнатную применяется именно этот вариант. Только в таком случае лучше остановить свой выбор не на газовой, а на электрической варочной поверхности. Она не вредит здоровью человека.
Электрическая плитаНеобходимо продумать систему вентиляции в новой кухонной зоне. Её можно организовать установкой вытяжки над печкой, а можно прорубить дополнительные отверстия, которые будут выходить на шахту с вентиляционными трубами. Ещё можно будет установить в стене, которая соприкасается с санитарной зоной вентилятор небольшого размера. Он будет затягивать воздух из холла и переносить его в ванную комнату. Оттуда воздушные массы свободно будут уходить в вентиляционные каналы.
Совет. Мебель для такой зоны можно будет использовать только небольшого размера, чтобы она не загромождала пространство.
Вернуться к оглавлениюРазгрузка помещения
Чтобы перепланировать квартиру и сделать дополнительную комнату в ней, нужно предварительно увеличить всё пространство такого помещения. Начинать такие действия рационально с прихожей. В ней может быть много места в том случае, если нет громоздких шкафов или разнообразных тумбочек. Для того чтобы увеличить пространство и компактно разместить все необходимые вещи, можно использовать шкаф-купе, которые по своей вместительности не уступают нескольким обычным шкафам.
Потом нужно составить подробный план квартиры с точными размерами комнат. Если из коридора есть вход в санитарные зоны, и их может быть несколько, то рационально совместить ванную комнату с туалетом и немного передвинуть их разделительную стенку вглубь таких помещений.
Пример такого плана 3-комнатной угловой квартирыКоридор благодаря таким действиям увеличится. После этого стоит переходить к гостиной. Она может быть проходной комнатой. Стену между коридором и гостиной перемещают вглубь этой комнаты и, таким образом, во вторую комнату открывается проход.
Совет. Такую перепланировку лучше всего осуществлять в хрущёвках, где есть небольшой коридор, но довольно большие и просторные комнаты.
Типовая стандартная планировка двухкомнатной хрущёвкиЧтобы свет попадал во вновь образовавшуюся гостиную, можно будет использовать стеклянные блоки. Они могут быть матовыми или разноцветными. Всё будет зависеть от дизайна интерьера.
Перепланировка двухкомнатной хрущёвки в трёхкомнатнуюВернуться к оглавлениюДизайнерские решения в перепланировке квартиры
Как только в квартире осуществлена перепланировка комнат, необходимо правильно распределить в ней не только мебель, но и внести некоторые декоративные элементы. Как правило, комнаты, которые получились при помощи перепланировки, могут казаться очень маленькими, потому нужно найти декоративные дизайнерские решения, которые смогут увеличить пространство и поднять потолки. Также можно разделить на зоны каждую жилую комнату.
Выступающие и отступающие цветовые оформления
Для того чтобы в получившейся комнате увеличить пространство, можно использовать игру цвета. Если потолок и пол сделать светлее на несколько тонов, чем цвет стен, то комната будет выглядеть большой и с высоким потолком. Холодные цвета визуально расширяют пространство в помещении.
В оформлении комнаты не стоит использовать яркие цвета — они сжимают пространство.
Визуальное поднятие уровня потолка
Высота потолков очень хорошо регулируется за счёт антресолей или высоких шкафов. Если потолок высокий, то антресоли можно будет сделать закрытого типа. Или сделать полки для книг вверху шкафа. Такое дизайнерское решение не только может поднять потолок, но и немного разнообразить комнату. Также будет хорошо в оформлении использовать несколько цветов. Например, низ антресоли или полок можно сделать светлым.
Визуально увеличить высоту потолка можно ещё несколькими способами.
Высокий книжный узкий шкаф не занимает много места и визуально увеличивает высоту комнатыИспользование зеркал и глянцевых потолков
Очень часто для визуального увеличения пространства используют зеркала. Они способны расширить общее пространство в комнате. Такую же функцию выполняют глянцевые потолки.
Глянцевый потолокМожно в комнате сделать двухуровневый потолок. По краям комнаты изготавливается рамка из гипсокартона. На ней можно будет расположить дополнительные осветительные приборы, которые визуально увеличат пространство. Сердцевиной такого потолка будет глянцевый потолок.
Мебель в квартире
Как правило, в перепланированной квартире используют «умную» мебель. Она может складываться. Например, кровать будет помещаться в большой шкаф-купе. Не стоит расставлять громоздкие диваны и кресла. Они только могут уменьшить пространство.
Умная мебельСовет. В квартире с перепланировкой будет рационально использовать лёгкие мебельные конструкции. Они не будут скрадывать пространство.
Напольные покрытия
Лучше всего будет в оформлении напольного покрытия использовать только тёплые оттенки. Можно сделать комбинацию тонов и визуально разделить комнату на необходимые зоны. Например, спальное место будет выделено светлым тоном, а рабочая зона будет чуть темнее.
Ламинат светлых тоновПодведём итоги
Процесс перепланировки квартиры из двухкомнатной в трёхкомнатную довольно сложный. Он может затрагивать перенос или возведение стен. Нужно помнить, что нельзя сносить несущие стены. Их можно использовать, предварительно укрепив с помощью металлических труб или швеллеров.
Каждая комната в квартире должна иметь своё окно. Только тогда помещение будет комфортным и уютным. Если такое осуществить не получается, то лучше всего соорудить межкомнатную перегородку с применением стеклянных блоков, которые могут быть матовыми или разноцветными.
Перегородка из стеклянных блоковПерепланировка двухкомнатной квартиры в трёхкомнатную требует согласования в соответствующих инстанциях. Все нормативные документы на увеличение жилых комнат в квартире должны быть зарегистрированы. Если в процессе перепланировки затронут балкон, то это также стоит указать в чертежах.
Как из двухкомнатной квартиры сделать трехкомнатную: до и после перепланировки
Если ваша квартира состоит из двух, довольно просторных комнат — это уже большая удача, но еще лучше, когда из них получается сделать три функциональных помещения. Сегодня продолжаем тему целесообразных перепланировок пространства двухкомнатных квартир.
Предположим, вас повысили в должности, появилось больше обязанностей, и необходим личный домашний кабинет; или, возможно, — ожидается пополнение в семье, а быть может, совсем другая, не менее весомая причина, заставляющая обыграть функцию комнат по-другому.
Мы представляем вашему вниманию три варианта перепланировок для двухкомнатных квартир, у которых есть все шансы стать трехкомнатными.
Элементарно — используем пространство лоджии или балкона
Например, пространство квартиры составляют две отдельных комнаты, одна из которых совмещена с кухней-столовой. Не рекомендуем, в этом случае, возводить стену между ними, так как лучше кухня-гостиная, нежели два отдельных, но тесных и нелепых помещения.
Если разрушать старые или возводить новые стены вы не готовы, предлагаем более тщательно организовать пространство лоджии, которая объединена с гостиной. Здесь можно расположить рабочий стол, стеллаж и даже мини-диван, — все, что необходимо для того, чтобы чувствовать себя комфортно, при этом, работать в отделенном от основной комнаты пространстве.
1
Два в одном — разделяем спальню и детскую
На плане, представленном ниже, — планировка двухкомнатной квартиры, где прихожая объединена с гостиной, откуда ведут двери в спальню.
Организовать еще одну комнату за счет перемещения одной из стен спальни в сторону кухни неудобно, — последняя станет совсем тесной, и количество посадочных мест за столом сократится.
Как вариант, третью комнату (например, детскую малыша) можно сделать, если возвести стационарную перегородку в спальне, тем самым, поделив ее пространство. Естественно, образованные комнаты будут довольно небольшого размера, но все, что нужно для отдыха родителей и развития ребенка, в них поместится.
Очень хорошо, если в комнате, к тому же, есть выход на лоджию: со стороны родительской спальни можно демонтировать двери, и наоборот, — установить их в детской, чтобы обеспечить тепло и звукоизоляцию.
В возведенной стене следует установить двустворчатые двери для того, чтобы родителям можно было быстро и удобно заходить к ребенку.
1
1
Тихо и светло — разделяем спальню и кабинет
Еще один способ сделать пространство квартиры более функциональным, чтобы в нем появилась комната под кабинет или гардеробную, — это реорганизация пространства с двумя окнами.
Если в квартире две комнаты, одна из которых длиннее в плане, да еще и с двумя окнами, — можно в ней использовать перегородку с раздвижными дверями. Полупрозрачные стеклянные полотна сберегут ощущение объема и уровень освещенности обеих зон, в целом.
Так, за раздвижными створками можно оформить пространство домашнего офиса, комфортной гардеробной или комнату для занятий музыкой (творчеством).
Не рекомендуем возводить подобную перегородку в гостиной, так как в ней чаще собирается много людей, а значит, работать в тишине можно будет довольно редко. Спальня – это более подходящее пространство для зонирования, потому как в ней тихо и спокойно.
1
1
Идеи перепланировки двухкомнатной квартиры в трехкомнатную.
Когда из маленькой квартиры с одним санузлом нужно сделать большую с двумя, обычные люди ищут выгодный ипотечный кредит, а умные — хорошего дизайнера. Проект творческого объединения «Архбабы» — наглядный пример того, как простые решения достигают поразительного эффекта.
На фото:
Почти все идеи перепланировки двухкомнатной квартиры имеют цель сделать из нее трешку. Скандинавский стиль интерьера – один из самых удобных при такой задаче — благодаря легкости и свежести.
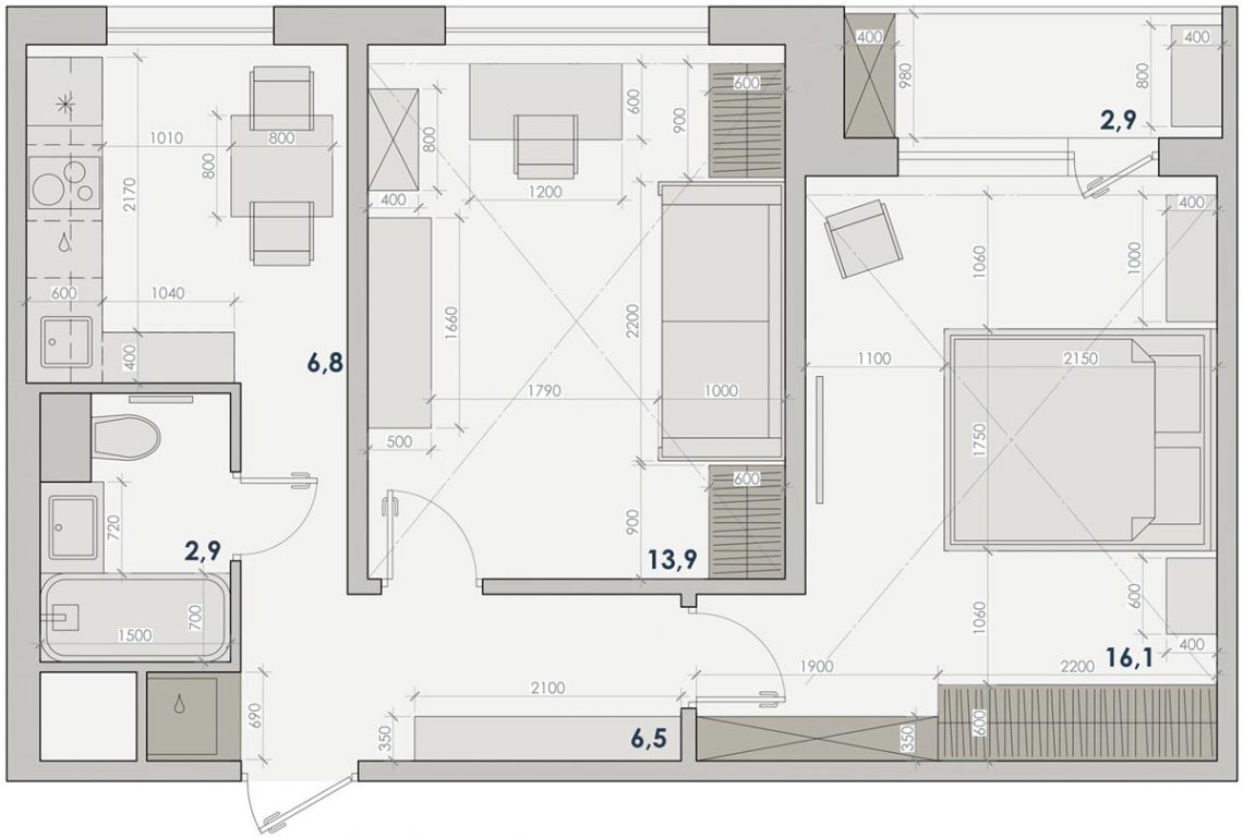
Сведения о квартире Двухкомнатная квартира 55 кв. м. в центре Москвы, окна во двор
О владельцах Молодая семья с ребенком
Пожелания клиентов Получить «трешку» с двумя санузлами; много воздуха и мест для хранения.
Хозяева квартиры поставили задачу из обычной двухкомнатной квартиры получить удобное, светлое и просторное жилье с гостиной, двумя спальнями и двумя отдельными санузлами – гостевым и хозяйским. Анна Пустовойтова и Елена Никитина – дизайнеры творческого объединения «Архбабы» — сделали невероятное. Не только перепланировали квартиру, выкроив еще одну спальню и санузел, но и раздвинули границы пространства – легкий, наполненный светом скандинавский дизайн создает впечатление простора и уюта одновременно. При этом практически все стены квартиры остались на своих местах.
В самой большой комнате квартиры разместились сразу три зоны – кухня, гостиная и столовая. Для этого пришлось объединить комнату с лоджией, зато получилось огромное, широкое окно в пол. Помещение смотрится просторным благодаря белому цвету стен, а золотистый пол из инженерной доски добавляет ему тепла и уюта. Окна выходят во внутренний сад, поэтому нужды в занавесках нет.
Иллюзия объема достигается с помощью известных приемов: много света, простые линии, минимум деталей. Простые аксессуары подобраны в цветах интерьера – так, граммофон перекликается с полом и стульями.
Скандинавский стиль совмещает минимализм отделки и роскошные ретро-элементы, словно доставшиеся в наследство от бабушки. В этом интерьере за старину и уют отвечает массивное кожаное кресло с пуфом на коровьей шкуре. Ретро-уголок дополнен парными торшерами в духе 50-х и инсталляцией с граммофонной трубой. Всю эту обстановку дизайнеры нашли в салоне My America.
Поскольку кухня оказалась в одном помещении с гостиной, ее требовалось сделать максимально незаметной в интерьере. Простые кухонные фасады белого и серого цвета напоминают квадратную плитку и практически сливаются со стеной. Духовка встроена в высокий шкаф на уровне столешницы – так ей удобней пользоваться.
В коридоре белую стену разбили черно-белыми монохромными обоями. Графичный городской пейзаж, расположенный на уровне глаз, создает объем в узком проходе. Панели внизу – практичное решение, их не разрисует ребенок. Здесь и в спальне дизайнеры воспользовались продукцией фабрики Cole&Son.
Один из ключевых элементов проекта – большие филенчатые двери со стеклянными вставками, которые придают дизайну «северно-европейский» вид. Принципиальным моментом для дизайнеров было, чтобы двери были до потолка. Такая конструкция визуально поднимает потолок, добавляет воздуха и света.
Серая колонна в простенке — на самом деле большой встроенный шкаф. Из прихожей виден только его торец – сам шкаф располагается в другом помещении. Двустворчатая дверь отделяет общественную зону квартиры от приватной – за ней располагаются спальня и ванная хозяев. Так что часть сооружения оказывается шкафом в спальне, а часть – шкафом в прихожей. Одновременно это еще и стена между гостевым санузлом и спальней.
Переделка двухкомнатной квартиры в трехкомнатную осуществилась за счет того, что детскую разместили в бывшей кухне. Интерьер здесь тоже лаконичен – шкаф, кроватка, коврик на полу. Место для книжных полок нашлось под подоконником.
Одну из стен спальни дизайнеры оклеили темными обоями с объемным рисунком и украсили объемным же «солнечным» декором. Это прием, позволяющий достичь сразу нескольких целей – расставить акценты в помещении, создать «изголовье» кровати, визуально придать объем небольшой комнате и добавить уюта. Простые занавески сделаны из натуральных материалов – хлопка и льна. Экологичность – важный тренд северного интерьера.
Много мест для хранения – оно из пожеланий хозяев, поэтому шкафы появились везде, где возможно. Этот большой шкаф IKEA уходит почти под самый потолок. Даже оставшийся зазор используется как полка для книг. Сбоку мы видим серые дверцы того самого шкафа, торец которого наблюдали в прихожей.
Хозяйская ванная комната решена в объемной черно-белой гамме. Белая плитка сливается с белым потолком, визуально увеличивая высоту комнаты, а черные панели, выложенные плиткой «под кирпич» вносят разнообразие. Эффектный прием – в функциональном помещении разместить пару нехарактерных деталей, словно выдернутых из другого интерьера. В ванной роль таких «пришельцев» играют зеркало в золоченой раме (прием повторяется в коридоре) и пышная классическая люстра с подвесками. Эти элементы придают холодному интерьеру индивидуальность и шарм.
Полностью проект смотрите на странице конкурса «Лучший дизайн квартиры» на сайте pinwin.ru. Ссылка на страницу проекта: http://www.pinwin.ru/konkurs.php?kact=2&knid=36&rbid=6117
Волшебное число для маленьких семей
Идеальный компромисс между пространством и доступностьюНе слишком маленький… не слишком большой… недорогой, простой в сборке и универсальный.
Это дом с тремя спальнями для вас — планировка, которая становится все популярнее среди американцев от побережья до побережья, и с цифрами, доказывающими, что она останется горячей тенденцией.
Согласно недавно опубликованному исследованию жилищного строительства Бюро переписи населения США — Характеристики нового жилья в 2018 году — из 617000 домов на одну семью, проданных в 2018 году, 278000, или 45 процентов, имели три спальни. Эти цифры могут вырасти в ближайшие годы, когда миллениалы станут старше и найдут более стабильную работу с повышенным доходом, что сделает их готовыми покупать собственные дома и, наконец, покинуть семейное место жительства. И что может быть лучше, чем дом с 3 спальнями, который предлагает идеальный баланс между пространством и функциональностью.
В этой статье мы внимательно рассмотрим планы дома с 3 спальнями и многие особенности, которые делают их привлекательными и привлекательными.
Посмотрите, что можно построить на узком участке! Этот очаровательный одноэтажный дом с 3 спальнями и 2,5 ванными комнатами в стиле ремесленника имеет ширину всего 40 футов, поэтому он может стоять на участке, который может достигать 50 футов в ширину. Семейный номер с 11-футовыми потолками, камином и выходом на заднюю палубу (план № 120-2563).
Почему популярны планы домов с тремя спальнямиПредставьте себе все захватывающие возможности у вас под рукой, если вы выберете план дома с тремя спальнями.Концепция открытого дома, веранды, террасы, патио, сады, кухня-столовая, все удобства, а также достаточно спален и пространства для удовлетворения потребностей семьи и образа жизни. Это может быть идеальная конфигурация для ряда демографических групп.
Например, молодая пара, только начинающая, может спроектировать просторную хозяйскую спальню с главной ванной; Обустройте спальню для ребенка (или будущего дополнения к семье) — а пока используйте третью комнату как гостевой номер, который также можно использовать как семейный номер / комнату для хобби.
«Пустые гнезда», «уменьшители размера» и отдельные специалисты получат большую гибкость при планировании и конфигурации. Они могут выбрать разделенную главную спальню — с двумя спальнями на противоположной стороне дома для большего уединения и тишины. Сразу же у них может быть выделенная комната для гостей и дополнительное пространство, которое можно превратить в домашний офис, тренажерный зал / тренажерный зал, медиацентр, семейную комнату или все, что они хотят иметь в этом пространстве.
В то время как план с двумя спальнями может быть немного тесноват для семей, а план с четырьмя спальнями — слишком большим и более дорогим, дом с тремя спальнями — действительно «волшебное число», которое сегодня ищет большинство семей.Дома обычно варьируются от 1 500–2 000 кв. Футов до 2 000–2 500 кв. Футов до 2 500–3 000 кв. Футов
.Этот L-образный одноэтажный дом с 3 спальнями в стиле середины века — с его простыми, классическими и минималистскими линиями — представляет собой потрясающее зрелище в любом районе. Его многочисленные привлекательные особенности включают вход во внутренний двор, крытую веранду, открытую планировку и террасу для загара (план № 202-1013).
Характеристики / варианты конструкцииБольшинство современных домов — с одной, двумя, тремя или более спальнями — имеют открытую конструкцию пола.Поскольку средний план с тремя спальнями составляет от 1500 до 3000 квадратных футов, семьи могут выбрать простой стиль или роскошный дизайн. Помимо открытой планировки этажей, гибких пространств и больших окон, основные характеристики этих домов включают кухонные острова, закусочные, кладовую, одну-две ванные комнаты, часто половину ванны, веранды, террасы, прихожую / прачечную. , Ванная комната Джека и Джилл и пристроенный гараж.
1. Kitchen Islands / Бары с закусками / закусочнымиПрекрасным элементом любой современной кухни является островок с баром для закусок.Такая установка дает множество преимуществ — начиная с отдельной станции для приготовления пищи, которая позволяет нескольким поварам работать в помещении и готовить еду.
Для тех, кто любит готовить, остров может быть оборудован мойкой, варочной панелью, встроенной разделочной доской, разделочной плитой и другой посудой — и они будут готовы приготовить свои любимые рецепты.
Расставьте вокруг острова барные стулья или стулья, чтобы создать уютный уголок для повседневной трапезы, где друзья и семья могут посидеть, чтобы поделиться историями, посмотреть, как они готовят, или просто расслабиться.Остров также становится «центром домашних заданий» для детей, где родители могут следить за ними и контролировать их школьные проекты.
Еще одна важная функция кухонного острова — это место для хранения вещей. Поваренные книги, кухонные перчатки, кухонные полотенца, подставки и другая кухонная посуда могут поместиться в дополнительных ящиках, шкафах и полках.
Эта невероятно просторная и привлекательная кухня в доме в стиле модерн середины века, показанная выше, имеет все, чтобы сделать ее социальным центром дома.Есть большие стеклянные окна, из которых открываются великолепные виды, встроенное освещение, подвесные светильники и огромный кухонный остров с сиденьями для «обедов на ходу» или неформальных обедов (план № 202-1013).
2. ГрязьДа, семьям нужна «обязательная» площадка для развешивания снега и дождевиков, пляжной одежды, спортивного снаряжения, рюкзаков, зонтов, головных уборов и открытых полок для обуви, ботинок, шлепанцев и сандалий. Прихожую, где семьи хранят все свои вещи на открытом воздухе, можно интегрировать в общий дизайн плана с тремя спальнями.Вы можете организовать прихожую, установив крючки для шляп, курток, зонтиков, а также соорудить полки и ящики для других аксессуаров.
Следует иметь в виду одну вещь: даже со всем снаряжением, непромокаемой одеждой и обувью в прихожей нет причин превращать это пространство в хаотичную свалку. Используйте свой творческий потенциал, чтобы превратить прихожую в функциональную и презентабельную зону, которая не будет закрыта для ваших гостей.
Все дело в организации и презентации. Это прихожая в современном 1-этажном, 3-х комнатном, 3.Пятиместный домик аккуратный, светлый, оборудован крючками для курток и открытыми полками под лавкой для хранения обуви (план №202-1027). 3. ПрачечнаяКак и прихожая, прачечная — еще одна необходимая вещь для семей, выбирающих планировку с тремя спальнями. Давайте смотреть правде в глаза. Любим ли мы стирку или ненавидим идею тратить время на стирку одежды, простыней и полотенец, мы должны это делать. Так почему бы не сделать это приятным, создав удобную, организованную зону?
Поскольку прачечная больше не отводится в подвал, домовладельцы могут превратить ее в светлое пространство, оборудованное стойками для складывания и шкафами, ящиками и полками для хранения вещей.
Не могли бы вы постирать белье в этой комнате? Одноэтажный дом в стиле кантри с европейскими оттенками. К услугам гостей просторная и ярко освещенная прачечная. Есть счетчик для складывания одежды (частично закрытый), шкафы и ящики, доска для прикрепления напоминаний и даже натяжной стержень для недавно отглаженной одежды (план № 153-1943).
4. Джек и Джилл СанузелВ доме никогда не может быть достаточно ванных комнат.Большинство домов с 3 спальнями имеют две ванные комнаты с туалетом и половину ванны (дамскую комнату). В главной спальне есть собственная ванная комната как часть набора, а остальные две спальни могут иметь общую ванную комнату «Джек и Джилл», которая описывается как ванная с двумя или более входами. Входы могут быть из двух спален или из коридора и спальни — или, если это действительно большая ванная комната, из коридора и каждой спальни.
Этот план верхнего этажа потрясающего роскошного дома в техасском стиле показывает, что спальни 2 и 3 разделяют ванную комнату Джека и Джилл, в которую есть входы из каждой спальни (каждый вход со своим туалетным столиком) и распашные двери в общую зону туалета / душа. (План №161-1076)
5. Подъезды и террасыОдной из стильных и популярных тенденций является жизнь на открытом воздухе. От крошечных домов площадью 400 квадратных футов до домов с 3 спальнями и самых больших и роскошных резиденций вы можете ожидать увидеть крытые веранды, патио, террасы и дворы. Современные жилые помещения на открытом воздухе, оформленные так просто или щедро, как того пожелает семья, оснащены каминами, грилями, удобными креслами и обеденными зонами — и всеми удобствами, которые делают их уютными, привлекательными и теплыми.
Выйдите в тепло и комфорт крытой террасы и обширного патио из Большой комнаты этого впечатляющего L-образного современного дома с плоскими крышами (план № 202-1027).
Преимущества трехкомнатных планов1. Доступность и универсальность — План с тремя спальнями экономичен и не обойдется без денег для молодых специалистов или пар, которые ищут первый дом.В то же время он предлагает ряд вариантов макетов дизайна и функций.
2. Места хватит на всех — в спальнях, жилых помещениях и на открытых площадках.
3. Обычно проста в сборке и обслуживании из-за своего размера
4. Энергоэффективность и экологичность — Из-за того, что дома с 3 спальнями занимают меньше места, в них используется меньше тепла и кондиционирования воздуха, а вода экономится лучше, чем в больших домах.
Выбор стиляПодобно более крупным планам домов, планировка с 3 спальнями также представлена в различных архитектурных стилях: акадский, бунгало, современный, коттедж, деревенский, ремесленный, европейский, фермерский, модерн середины века, техасский стиль, традиционный и другие. Они могут быть одноэтажными, полутораэтажными и двухэтажными.
Одна из наиболее популярных планировок в планах с 3 спальнями — будь то одноуровневые, полутораэтажные или двухэтажные конструкции — это главная спальня с разделением.В этой конфигурации главная спальня находится на одном конце, а две другие спальни — на противоположной стороне дома.
Давайте посмотрим на эти удивительные планы с тремя спальнями в различных архитектурных стилях. Один взгляд на них, и вы представите себя живущим в одном из этих великолепных домов.
Одноэтажный план с тремя спальнями Акадианский стильОдин из самых востребованных домов на сегодняшнем рынке недвижимости, план Acadian очень популярен на Юге, особенно на побережье Мексиканского залива.В планах Acadian прослеживается сильное влияние французского и каджунского языков, и они в основном представляют собой одноэтажные модели. Однако они также могут быть спроектированы как полутораэтажные конструкции.
французских и ремесленных элементов сочетаются в этом очаровательном одноэтажном доме в акадском стиле с жилой площадью 1900 кв. Футов, сконфигурированной в виде открытого пола. Дом с 3 спальнями и 2 ванными комнатами имеет раздельную планировку главной спальни (план № 142-1163).
Стиль кантриВыйдите на крыльцо этого восхитительного одноэтажного дома в стиле кантри с привлекательными качелями и хорошо спроектированной входной дверью со сводчатым потолком.Дом включает в себя 2,5 ванны, большую комнату, высокие потолки и заднюю веранду с летней кухней (план № 142-1205).
Фермерский стильПодайте лимонад или чай со льдом и расслабьтесь на крыльце этого очаровательного фермерского дома в современном стиле, в котором также есть 2,5 ванны, большая комната с камином, кухня открытой планировки и рабочий уголок (план № 142- 1180).
Современный стильБлагоустроенный внутренний двор и крытые передние и задние веранды — вот некоторые из открытых жилых пространств этого поразительного плана в современном стиле с элементами калифорнийского стиля.Одноэтажный дом включает в себя 3 спальни, 2 ванные комнаты, прачечную (план № 158-1306).
Полтораэтажные планы с тремя спальнями Стиль кантри (с элементами декоративно-прикладного искусства)Прекрасный дом в загородном стиле с архитектурными элементами, напоминающими проекты декоративно-прикладного искусства, ремесленников и фермерских домов, с широким крыльцом, фойе с 10-футовыми потолками, Большой комнатой с 11-футовыми потолками, 3 спальнями и 2 ванными комнатами ( План № 142-1166).
Европейский стильЭтот дом в европейском стиле с акадскими акцентами источает очарование и сдержанность — от ухоженного внутреннего двора с яркими цветами до привлекательной парадной веранды. 1,5-этажная резиденция площадью более 1500 кв. Футов включает в себя 3 спальни, 2 ванные комнаты, большую комнату и главную спальню на основном уровне (план дома № 142-1058).
Техасский стильВверху: Это потрясающе 1.Пятиэтажный дом в техасском стиле с элементами кантри располагает 3 спальнями и 2,5 ванными комнатами. Подходящий размер для растущих семей или семей, состоящих из нескольких поколений, с огромным лофтом, подходящим для проживания свекрови. Внизу: Посмотрите на очаровательно оформленное и меблированное семейное пространство и обеденную зону в доме. Обратите внимание на кирпичный камин и уникальную люстру над обеденным столом (план № 106-1279).
Двухэтажный план с тремя спальнями Стиль бунгалоЖивите в сказочной обстановке в этом красочном и привлекательном доме в стиле бунгало с акцентами мастеров.План 2-этажного этажа включает 1683 кв. Фута жилой площади, 3 спальни и 2,5 ванных комнаты (план № 178-1144).
Коттеджный стильВот еще один красивый дом с 3 спальнями в деревенском стиле. Привлекательный дом в стиле коттеджа с элементами бунгало имеет 2185 кв. Футов жилой площади с 2 полностью оборудованными ванными комнатами и половиной ванной (план № 142-1096).
Стиль мастераУдивительные внешние особенности — двускатная крыша, белые колонны на каменных пьедесталах и широкое крыльцо — добавляют привлекательности этому прекрасному плану в стиле Мастера.В двухэтажном доме есть 3 спальни, 2 ванные комнаты и задняя веранда, разделенная планировка главной спальни и прачечная на первом уровне (план № 104-1064).
Благодаря широкому диапазону конструктивных особенностей, стилевых решений и, что наиболее важно, доступности, дом с тремя спальнями создает поистине «золотую середину» в
.архитектурный ландшафт.
Footnote: Первое изображение в этой статье представляет собой впечатляющий 1,5-этажный дом во французском стиле с 3 спальнями и 2 ванными комнатами с прекрасными удобствами.Для получения дополнительных сведений о доме и его функциях перейдите к плану № 142-1209.
Все в одиночестве в квартире с тремя спальнями
Бонни Блю Эдвардс давно мечтала захватить свою квартиру с тремя спальнями в Краун-Хайтс, Бруклин, где она провела 10 лет, живя с соседями по комнате. Но когда в марте оба ее соседа по комнате уехали — один отъезд был запланирован, а другой нет — это был далеко не сценарий мечты.
Это был разгар пандемии коронавируса, и 31-летняя г-жа Эдвардс была уволена с работы продюсером контента в креативном агентстве для театров и музеев, когда заведения закрылись. Казалось, что из города покидает больше людей, чем в поисках общей комнаты.
Предвидя предстоящие долгие дни, которые будут почти полностью проведены в квартире — и учитывая, что один из ее соседей по комнате съехал из-за разногласий по поводу социального дистанцирования — г-жа Эдвардс не хотела просто брать первого человека, который появится с чеком.
«Это больше, чем просто найти кого-то, кто заплатит за квартиру. Это тот, с кем ты будешь изолироваться », — сказала она.
Потенциальные соседи по комнате тоже не решались переехать к незнакомцу. Когда она разместила большую из двух пустых спален на сайте Listings Project в апреле, отметив, что арендная плата является гибкой, она не получила ответов.
Учитывая обстоятельства, домовладелец согласился на щедрую скидку, снизив арендную плату до 2400 долларов в месяц, пока мисс Эдвардс живет там одна.(Новая арендная плата на несколько сотен долларов меньше, чем сумма до вируса, но значительно больше, чем платила г-жа Эдвардс, когда разделила сумму с соседями по комнате.) и поступает некоторый доход », — сказала г-жа Эдвардс, которая может покрывать арендную плату деньгами, полученными от работы техподдержкой неполный рабочий день, своим чеком и сбережениями. Но ситуация неустойчивая. Если к моменту истечения срока аренды в августе она не найдет постоянной работы или хотя бы одного соседа по комнате, ей, скорее всего, придется переехать.
До тех пор она решила максимально использовать свое положение, реорганизовав квартиру, взявшись за проекты по благоустройству дома и воспользовавшись преимуществом наличия, пусть ненадолго, квартиры с тремя спальнями.
«Я пыталась мыслить творчески и игнорировать тот факт, что теперь я покрываю стоимость квартиры», — сказала она. «Было интересно переосмыслить то пространство, в котором я жил с соседями по комнате последние 10 лет».
2,400 $ | Crown Heights, Brooklyn
Bonnie Blue Edwards, 31
Профессия: Режиссер и продюсер творческого агентства, которое работает с театрами и музеями
Когда она сказала своему домовладельцу, что ее соседи по комнате переехали: «Он понимал, конечно, — сказала она.«Каждый раз, когда мой договор аренды подлежит продлению, если он пытается поднять арендную плату, я пытаюсь отговорить его, и он ведет переговоры. У нас счастливое взаимопонимание ».
Недорогие улучшения: Помимо перекраски квартиры, г-жа Эдвардс заказывала у Etsy недорогие рамы для демонстрации предметов, которые она ранее прикрепляла или приклеивала к стене.
Если ее финансы улучшатся: Она также хотела бы заменить некоторую мебель, мешанину вещей, которые ее мать привезла из Алабамы на U-Haul, разногласия, оставленные предыдущими арендаторами, и находки в комиссионных магазинах.
Первым изменением, которое она внесла, было превращение самой маленькой спальни в задней части квартиры, где подруга оставалась недолго после разрыва, в место для сортировки и хранения СИЗ, которые она доставляла добровольцем. для группы соседства. Поскольку количество запросов начинает уменьшаться, она теперь перенастраивает ее в комнату для гостей, так как она ожидает, что друзьям может понадобиться место для проживания в ближайшем будущем.
Затем она переехала в другую спальню, в которой есть окно, выходящее на крышу.У нее всегда была спальня в передней части квартиры, и, поскольку доступ к крыше осуществляется только через задние спальни, она впервые смогла регулярно использовать открытое пространство.
«Как только я узнала, что это происходит, я заказала шезлонги», — сказала она. По утрам она пьет там свой кофе, а ее собака Хоуп наблюдает за белками на крыше. Из номера открывается вид на задний двор популярного бара, но сейчас там тихо, как в кафе внизу, которое обычно издает приятный гул, который можно услышать в квартире в течение дня.
Наконец, мисс Эдвардс превратила свою старую спальню в гостиную. Предыдущая гостиная представляла собой прославленную нишу у входной двери, в которой едва хватало места для дивана, книжного шкафа и телевизора. Ей всегда хотелось, чтобы в квартире была настоящая гостиная. Теперь это так.
Ей настолько нравится обстановка, что, если она сможет вернуться к своей работе этим летом, она планирует сохранить конфигурацию с двумя спальнями.
Перестановка пространства, однако, привлекла внимание к тому, насколько убогими и убогими были некоторые вещи.Подвижные настенные ковры и мебель обнажили выцветшую краску и некогда белые подоконники, которые теперь стали серыми. Когда она попросила начальника покрасить квартиру, он прислал помощника, который наклеил и покрасил стены, пока она занималась отделкой и подоконниками.
«Часть меня смеется над тем, что я делаю это, потому что неясно, буду ли я продлевать подписку», — сказала г-жа Эдвардс. «Но я делаю это почти из-за того, что квартира была моим домом».
Это было ее первое место в городе.Она искала его несколько месяцев, когда заметила его на Craigslist. К тому времени она уже начала отчаиваться, что когда-нибудь найдет хорошую квартиру у хорошего домовладельца.
«Я увижу место, которое мне нравится, и тогда у управляющей компании будут ужасные отзывы, или домовладелец будет спорить с арендаторами в холле», — сказала г-жа Эдвардс.
Этого домовладельца порекомендовал другой арендатор, но когда она написала по электронной почте, он сообщил ей, что ей придется подождать до дня открытых дверей через несколько недель.«Я просматривала фотографии каждый день», — сказала она. «Я был влюблен в эту квартиру».
Когда настал день открытых дверей, мисс Эдвардс прибыла первой со всеми своими документами, вошла внутрь, посмотрела в любом направлении и сказала суперу, что она этого хочет.
Ей понравилось, что «планировка была дружелюбной и открытой», сказала она, и что последний арендатор покрасил некоторые стены в голубой цвет. Ей также было приятно, что это было в старом трехэтажном доме на улице магазинов и ресторанов.
Недавно, рисуя поздно ночью, ее осенило: «Эта квартира — самая длинная из всех, что я прожил за всю свою жизнь».
Как бы счастлива она ни была, она думала о том, чтобы уехать — возможно, переехать в северную часть штата или получить квартиру-студию, вместо того, чтобы надеяться однажды заработать достаточно, чтобы жить там одна. Тем не менее, она хотела бы остаться.
«В худшем случае, если я все еще останусь без работы к моменту истечения срока аренды, мне, возможно, придется вернуться домой в Алабаму», — сказала она.«Но если это мое последнее ура, то это прекрасное последнее ура».
Когда в доме почти три спальни (но технически только две)
Представьте себе дом, в котором раньше было три спальни, пока владелец не превратил одну комнату в логово. Есть ли сейчас большой успех, который стоит ценить? Будет ли оценщик засчитывать только две спальни? Давайте рассмотрим некоторые мысли ниже. Есть что добавить?
1) Большое значение для стоимости: Во-первых, может быть огромная разница в стоимости между недвижимостью с тремя полноценными спальнями и домом с двумя спальнями без другого места, которое можно было бы использовать как спальню (например, как логово).Квартира с тремя спальнями просто более полезна и востребована, поэтому при оценке классической недвижимости с двумя спальнями я определенно хочу использовать подход «яблоки к яблокам» в моем выборе, найдя другие дома с двумя спальнями, поскольку они наиболее похожи. в апелляции.
2) Покупатели видят более широкую картину: Иногда мы видим дома, которые технически имеют только две спальни, потому что покупатель выбрал «вариант логова» строителя или, возможно, продавец удалил шкаф в третьей спальне.Мы были бы правы, если бы классифицировали эти дома как объекты с 2 спальнями, но в то же время я считаю, что если есть дополнительное логово или офис, который можно легко превратить в спальню, покупатели увидят общую картину дома, не слишком застрял на одном туалете меньше. Таким образом, мы, вероятно, можем сравнить такой дом с другими домами с тремя спальнями больше, чем с классическими домами с двумя спальнями. Хотя мы должны учитывать любое влияние на стоимость отсутствия туалета.
ПРИМЕР 1: Продавец закрыл шкаф в спальне, чтобы использовать его в качестве офиса, и теперь обеспокоен тем, что оценщик не собирается отдать ему должное за дополнительную «спальню».«Поскольку в доме нет туалета, оценщик, скорее всего, пометит дом как две спальни, НО оценщик также поймет, что в доме очень легко может быть дополнительная спальня с добавлением туалета. Поскольку дом намного ближе к дому с тремя спальнями, было бы очень ограниченно использовать только классические композиции с двумя спальнями (см. Также № 3 ниже). Другими словами, покупатели видят общую картину дома и, вероятно, не ожидают значительного снижения цен из-за того, что убирают один простой шкаф.
ПРИМЕР 2: Меня спросили, как оценить дом с 2 спальнями, площадь которого составляет около 3000 кв. Футов, и не было других «компромиссов» такого размера только с двумя спальнями. Но дело в том, что в этом доме было дополнительное пространство, которое можно было легко преобразовать в третью и четвертую спальни с добавлением туалетов. В подобных ситуациях очень легко попасться в жесткий поисковый поиск и смотреть только на дома с двумя спальнями. Я большой поклонник «яблоки к яблокам», где это возможно, но иногда нам приходится делать шаг назад и смотреть на недвижимость, как это делают покупатели.В этом случае было несколько предложений на дом, потому что покупатели видели более широкую картину стоимости, а не зацикливались на двух пропавших без вести шкафах. Возможно, этот дом все еще можно продать со скидкой, но давайте не будем сравнивать его со значительно меньшими по размеру «компромиссами» с двумя спальнями, потому что это не то, что делают покупатели.
3) Логика и корректировки: Всякий раз, когда мы видим разницу в количестве спален, легко изменить стандартное значение. Итак, без каких-либо исследований мы слышим: «Разница в стоимости дома с 2 и 3 спальнями составляет 20 000 долларов.«Хорошо, может быть, это число иногда работает, но давайте вернемся назад и подумаем, как логичные покупатели. Если вы посмотрите на дом, у которого есть вариант кабинета, который в остальном похож на традиционную спальню, добавление шкафа может стоить около 2000 долларов. Есть ли логический смысл в такой ситуации делать отрицательную корректировку на 20 000 долларов? Другими словами, действительно ли покупатели оштрафуют недвижимость на 20 000 долларов за то, что там технически нет туалета? Рискну сказать, что большинство покупателей, вероятно, не ожидают огромной скидки за такую незначительную стоимость лечения.
4) Рынок может не заботиться: Иногда рынок не показывает большого влияния на цену из-за наличия только двух спален. Мы наблюдаем это в более чем 55 сообществах, но мы также можем наблюдать это в интересных с архитектурной точки зрения объектах, где потенциальным покупателям могут не понадобиться дополнительные спальни. Это хорошее напоминание о том, что нужно отказаться от оптимизма в отношении корректировки стоимости, поскольку рынок не всегда ее выполняет.
5) Совет по уменьшению размера: Я не рекомендую превращать дом с 3 спальнями в дом с 2 спальнями.Я вижу, что это происходит, когда владелец хочет большую главную спальню, но это быстрый способ потерять товарный вид (и, возможно, ценность).
Надеюсь, это было полезно или интересно.
Думай как оценщик (я преподаю): Между прочим, 7 декабря я провожу свой любимый урок под названием «Как думать как оценщик». Мы поговорим о выборе компа, внесении корректировок, советах о том, что нужно делать, и о том, что делать в различных сценариях. Подробности здесь.
Вопросы: Что такое № 6? Есть ли у вас какие-нибудь истории или примеры, которыми можно поделиться о разнице в стоимости (или ее отсутствии) между спальнями? Что еще добавить?
Если вам понравился этот пост, подпишитесь на по электронной почте (или RSS).Спасибо, что были здесь.
СвязанныеТрехкомнатные апартаменты на Виесте
Доступно
трехкомнатных квартир: Уважаемый посетитель, добро пожаловать.
С большой долей вероятности вы уже заходили на страницу, посвященную другому типу имеющихся квартир , поэтому на этой странице я постараюсь наиболее четко описать двухкомнатных квартир нашей резиденции на Виесте .
Если после того, как вы прочитали мое описание, что-то непонятно, СВЯЖИТЕСЬ С НАМИ, мы будем рады дать вам все ответы на ваши сомнения и вопросы.
Должен констатировать, что, как вы могли заметить, посещая наши страницы, представленные фотографии являются чисто любительскими, а не профессиональными. Вы справедливо спросите, почему я говорю это так свободно. Что ж, причина очень проста, мы очень заботимся о ВАШЕМ удовлетворении и, чтобы отличать наше предложение от многих других, мы стараемся быть ясными и честными на всем пути, показывая вам все, что вы действительно найдете в нашей резиденции через наши глаза, вот и все…: -D
Этот момент для нас принципиально важен; Кроме того, мы хотим подчеркнуть для наших посетителей, «но мы надеемся, что наши будущие клиенты», что все фотографии сделаны непосредственно нами, нет мошенничества, нет фальшивых монтажей или вводящих в заблуждение презентаций.Они просто плод реальности, и мы гарантируем 100% подлинность, показывая свое лицо.
Сделано это заявление OWED (надеюсь, вам понравилось…: -D) Я сразу перейду к описанию наших двухкомнатных квартир , присутствующих в доме .
Этот тип домов отдыха , имеющих до 7 спальных мест, может вместить максимум 7 человек между взрослыми и детьми.Эти квартир также отделены друг от друга, поэтому полностью уважают вашу конфиденциальность и конфиденциальность других клиентов, более того, каждые квартиры наделены большими окнами с москитной сеткой, поэтому вы никогда не пропустите свет, воздух и много свежести.
Таким образом, это решение для дома состоит из: двух больших отдельных спален (на выбор для одной или супружеской пары), мини-кухни открытой планировки со всеми принадлежностями, такими как посуда, тарелки, стаканы, столовые приборы и т. Д., большая гостиная с раскладным диваном (2 спальных места), ванная комната с душевой кабиной, а также широкая веранда со столом и стульями, всего около 65 кв.м и 6 спальных мест на квартиры .
В дополнение к описанному выше у нас есть еще одно решение, всегда трехкомнатная квартира , которая помимо того, что похожа на другие квартиры , имеет небольшую дополнительную комнату с двухъярусной кроватью, так что еще 2 спальных места в общей сложности 7 человек (потому что на раскладном диване в этой квартире только одно спальное место).
Наконец, я напомнил вам, что residence Villa Ulimare находится в Виесте-дель-Гаргано и предлагает все самое лучшее, чтобы ваш отпуск был чудесным. Стратегическое расположение, с его вылеченной зеленью и вековыми оливковыми деревьями делают его идеальным местом для тех, кто хочет испытать абсолютный покой и расслабиться, не отказываясь от развлечений. Помните, что вас не беспокоит хаос, шум транспорта и ночных клубов, но вы можете добраться до этих мест даже пешком, так как они находятся в двух шагах от нас… 😉
Наслаждайтесь отдыхом…. !!
Просторные зеленые насаждения
Наша зелень очень хорошо зарастает между пальмами, а прекрасные вековые оливковые деревья окружают широкие открытые пространства, предназначенные исключительно для вашего отдыха.
Безлимитный бесплатный Wi-Fi
Мы предоставляем в ваше полное распоряжение безлимитное и бесплатное соединение Wi-Fi.
Доступность 24 часа
Мы живем в собственности и к вашим услугам 24 часа 24 часа.
Преобразование кондоминиума с 2 спальнями в офис с 3 спальнями
Больше света и открытости. Меньше стен и холлов.
Помните раньше?
Я хотел, чтобы все было идеально, как разворот журнала Dwell, прежде чем показывать фотографии нашего нового места.Но пора отпустить и показать наш прогресс. Может быть, когда все действительно будет сделано, я найду фотографа по недвижимости, чтобы получить полный эффект. Может быть, выйдет даже журнал Dwell. (Любитель ведь может мечтать?) Вот он, как и обещал…
Та-да! 3 спальни, 2 ванные комнаты, кабинет, прачечная и большая комната площадью менее 1000 кв. Футов
Что это было.
После безумного стресса и давления, вызванного капитальным ремонтом, после переезда было большим облегчением обнаружить, что нам нравится жить в нашем новом доме.
Большой зал
Невероятно, но даже после добавления третьей спальни и офиса наша большая комната все еще больше, чем была, демонстрируя огромный потенциал плохих планов этажей для проектов реконструкции. Мы украли пространство из главной спальни, прихожей и бывшего туалета. Без стен вокруг кухни в центре удобно разместился кухонный остров с четырьмя сиденьями.
Тоже ярче. На старом плане оба окна спальни были скрыты стенами.В новом плане, если двери спальни открыты, все четыре окна выходят в большую комнату.
Бывшая стена теперь тройная раздвижная дверь в офис и кладовку.
Раньше.
Офис
Гениальность нашего офиса в том, что он может быть частью большой комнаты, частью главной спальни, частью обеих или полностью отделенными друг от друга. Он имеет тройные раздвижные двери в гостиную и дверь в спальню.
Поскольку я не ложусь спать допоздна и не могу содержать офис в чистоте, чтобы спасти свою жизнь, я не хотел беспокоить членов семьи какой-либо вредной привычкой.Мое решение в нашей бывшей аренде заключалось в том, чтобы перебраться в задний чулан. Это намного лучше — прямо рядом с окном изображения.
Подъезд
Оригинальный вестибюль.
Бескомпромиссный. Все остальное было связано с получением этой точки зрения.
Единственное, что мы знали наверняка перед этим ремонтом, — это то, что стена, закрывающая окно с картинкой от входа, должна была убрать.
Господь знает почему, но проектировщики здания проложили большую часть электрических проводов квартиры через эту самую стену.Так что да, нам пришлось перемонтировать всю квартиру. 20000 долларов болезненных долларов позже, нет никаких сожалений. Первоначально это была квартира 1980-х годов с минимумом розеток, минимумом света и недостаточным количеством сока для обычной сушилки. Теперь у нас в 2–3 раза больше розеток и лампочек, а также много сока.
Для тех, кто шокирован ценой (как и я), коммерческие коды и ограничения высотных зданий позволяют удвоить стоимость всего — будьте осторожны, если вы отправитесь в подобное путешествие.
Водопроводные трубы не позволили нам вынести всю стену. Но у меня было достаточно, чтобы радоваться каждый раз, когда я прихожу домой.
Прихожая после: все еще проход, но теперь открытый.
Главная спальня:
Это наша самая большая спальня размером 10 футов на 10 футов 6 дюймов. (Кстати, она меньше самой маленькой спальни в нашем загородном «доме мечты».) То, что заставляет ее работать, — это наша стена туалетов. Сделанный на 100% из шкафов Ikea Sektion, он имеет шкафы для мужчин и женщин со встроенными ящиками комода, тумбочку с розетками, глубокое хранилище от пола до потолка по центру для разных домашних вещей и услужливо скрывает уродливый потолок.
Стенка гардеробной спальни.
Раньше: Видите потолок слева вверху?
Большой тираж и свет. Плюс еще одна стенка для хранения вещей.
Я пытался избежать вертикального хранения, но не было никакого пути. Я хотел офис больше, чем отдельный шкаф, и нам приходилось где-то вешать одежду.
Неудобное пространство вокруг стенной печи оказалось еще одним отличным местом для встроенных шкафов Ikea. Один шкаф имеет глубину 24 дюйма, а другой — 15 дюймов, но вид спереди — ровная, ровная стена.
Главная ванна
Мне нравится эта комната. Всего лишь 8 футов на 5 футов, но с вырезанными в стене ящиками и множеством больших шкафчиков с лекарствами, здесь достаточно места для всего — даже для белья (и безделушек, упаси бог, на случай рецидива). Заправленное освещение, визуальные линии плитки и большое зеркало над раковиной и унитазом делают его больше. И, если растянуть плитку для душа от Home Depot за 1,99 доллара на всю стену за раковиной, она выглядит супер высокого класса. Конечно, может быть, мне это нравится, потому что в течение 3 лет мы были одной семьей ванных комнат.Да. Наверное, и это тоже.
По сравнению с предыдущим.
Так что вам не нужно прокручивать вверх.
Детское крыло
Третья спальня была расширена за счет прихожей. У него нет прямого окна, выходящего на улицу, и в нескольких дюймах от минимума 7 x 10 футов, необходимого для того, чтобы быть законным, но есть пожарные спринклеры, надлежащая вентиляция, место для комфортного сна 2-4 человека (на кроватях шириной 30 дюймов. ), и по-прежнему имеет два свободных пути эвакуации. На 30 этажах выше уровня улицы требования к выходу и безопасности смещаются с необходимости использования окон на необходимость в разбрызгивателях.Иметь более темную комнату без окон для сна на самом деле замечательно для раннего отхода ко сну.
Мы могли бы сделать вторую и третью спальни раздельными, но вместо этого решили сделать общую кладовую, которая служит коридором между комнатами. Детям будет легче играть. Мама и папа могут легко их разбудить и уложить. Это отличный способ пройти через дом.
Скрытый хаос и почему до сих пор нет фотографий детских комнат.
Это еще не все, но в другой день.
Мы верим в проповедников «меньше значит больше», и мы не были разочарованы. Меньше места в передней части означало больше планирования, больше внимания к деталям, более тщательный выбор мебели и техники, а также больше времени и работы по объяснению вещей подрядчикам. Но теперь, когда мы здесь, мы не можем поверить, насколько он просторен. 989 роскошных квадратных футов для семьи из 4 человек. Меньше убирать. Больше времени наслаждаться. Аминь.
Маленький дом, большая семья — 10 человек в доме с 3 спальнями
Как организовать небольшой дом с большой семьей? Как устроить дом с 3 спальнями для размещения нескольких детей? Позвольте мне поделиться своими советами и приемами, как заставить его работать!
Когда в прошлом году нас продвинул по службе мой муж, я не могу отдать должное никому, кроме Бога, за то, что он нашел нам этот удивительный дом для жизни.У нас было 3 недели, чтобы переехать в город, где практически не было рынка аренды, я была на восьмом месяце беременности нашим 9-м ребенком, и мы в полной мере приближались к сезону отпусков. Я был уверен, что у нас ничего не получится, но когда я искал в Интернете аренду, которая соответствовала бы нашим потребностям, появился этот дом, и я знал, что это то место, где мы должны были быть.
Для начала, фотография с сайта аренды показывает одну из спален с двумя двухъярусными кроватями (ммм… никто, кроме большой семьи, не сделает это!) , а вокруг бара на кухне было 7 барных стульев (разве это не в основном для внешнего вида — а не для семи барных стульев ?!) , и адрес электронной почты хозяйки явно принадлежал сестре-христианке.Я затаил дыхание и написал ей по электронной почте, молясь, чтобы наши поиски не были долгими — я был утомлен, беременен ребенком, и я не хотел больше ждать. Она быстро ответила по электронной почте, и следующее, что мы узнали, — это ключи от дома, который мы теперь называем своим домом. Это все было Богом, и я так благодарен!
Домик, без хранения
Тем не менее, когда дело доходит до проживания здесь, были некоторые испытания, а именно тот факт, что мы живем в районе с высоким уровнем грунтовых вод, поэтому нет подвалов для хранения вещей, а в доме всего 3 спальни. для размещения 10 из нас.Однако почти в каждом доме, в котором мы жили, мы обычно использовали только 3 спальни, потому что наши дети предпочитают быть вместе и на самом деле проводят очень мало времени в своих спальнях (за исключением моей старшей дочери, которая использует свою спальню как место работать над ее искусством.)
Один из читателей попросил меня рассказать, как мы справляемся с таким количеством людей в доме с 3 спальнями, поэтому я подумал, что поделюсь несколькими способами, которыми мы управляли на протяжении многих лет. Я также хотел бы, чтобы кто-нибудь из вас поделился своими советами в разделе комментариев!
Домик, большая семья
Совет №1 — Разделяйте спальни с умом. Предоставьте самую большую спальню тому полу (или группе), в которой проживает наибольшее количество людей. Наша главная спальня на удивление НЕ самая большая спальня в доме. Есть одна спальня, которая намного больше других, и эта спальня принадлежит нашим мальчикам, которые доминируют в этом доме по половому признаку (как показано в этом посте о том, что значит воспитывать кучу маленьких мальчиков).
Мы также очень внимательно относимся к размещению младенцев и малышей в наиболее подходящей комнате — в нашем случае в самой тихой комнате.Наш годовалый ребенок недавно переехал из нашей комнаты в комнату для девочек, потому что девочки намного тише моих мальчиков. Так было почти с каждым ребенком в течение последних нескольких лет — мальчиком или девочкой.
Совет № 2 — Используйте нетрадиционные кровати. Многодетные семьи славятся творческими решениями кроватей. Да, у большинства из нас есть по крайней мере одна двухъярусная кровать (как показано выше), но нам также удается найти другие виды «кроватей», которые можно использовать. Вот несколько кроватей, которые мы использовали или видели, от складных рам до детских кроваток, манежей и рок-н-спектаклей.
Это требует немного творчества, но с помощью нетрадиционных кроватей вы можете создать столь необходимое пространство в маленьких спальнях, которые в противном случае были бы слишком переполнены. Если вы хотите увидеть больше вариантов конфигурации спальни, вы можете прочитать мой пост на тему «Спальни для больших семей».
Советы №3 — Используйте нетрадиционные спальни. В нашем нынешнем доме есть гостиная в передней части дома с французскими дверями, что позволяет при необходимости закрыть ее. Прямо сейчас в нем есть диван-кровать для гостей (на который мы недавно положили новый настил, чтобы он выглядел как новый) и еще несколько предметов мебели.Наш старший сын подумывает сделать ее своей спальней, когда пойдет в колледж. Его ближайшему по возрасту брату только что исполнилось 10 лет, поэтому разница в возрасте иногда может создавать проблемы с отходом ко сну и прочим. (Вы можете узнать больше об этом в моем посте о воспитании детей широкого возрастного диапазона.) В этой комнате нет туалета, поэтому он продолжит хранить свою одежду в туалете в другой спальне.
Кстати о шкафах… иногда шкафы являются хорошим вариантом для создания дополнительной спальни. У нас была отличная гардеробная в одном из домов, в которых мы жили, с вентиляционным отверстием и небольшим уголком, который идеально подходил для манежа.В то время для нас это был отличный вариант. Я даже видел, как целые туалеты превращались в «спальни» для более чем одного ребенка. Так что, если вы можете сэкономить место, это может быть для вас хорошей идеей.
Другими идеями для альтернативных спален могут быть альковы, под лестничными клетками и путем разделения комнат. Просто убедитесь, что везде, где вы добавляете «спальню», есть много вентиляции и легкий выход для ребенка.
Совет №4 — Создавайте «отступления». Когда в одном доме живет много людей, каждый стремится найти свое маленькое пространство для отдыха.Для меня это стул в спальне. Для моего старшего сына это верстак в гараже. Для моей средней дочери он укрыт одеялом на диване в гостиной. А для моего 10-летнего ребенка это место, где он может подключить свое радио и слушать свои любимые аудиодрамы.
Хотя большинство людей найдут свое собственное место в небольшом доме, вам может потребоваться помочь некоторым из ваших детей найти свое. Подумайте, что им нравится делать, чтобы расслабиться, а затем помогите им устроить уединение, чтобы расслабиться.И это не обязательно должно быть настоящее пространство. Моя старшая дочь любит рисовать и писать, чтобы расслабиться. У нее есть пластиковая ванна, в которой она хранит свои записные книжки и делает наброски, поэтому она может быть мобильной и ходить везде, где есть диван, кровать или кусок ковра.
Совет № 5 — Проявите творческий подход с хранением одежды. В маленьком доме шкафы обычно не очень большие, и найти большие комоды для всей семьи может быть сложно (если у вас есть место, попробуйте найти длинные комоды с большим количеством ящиков, как показано ниже.Мы любим свою!)
Возможно, вам придется придумать другие решения, такие как этот подвесной органайзер, который мы используем для детской одежды в нашем шкафу:
или этот пластиковый комод с 4 ящиками, который мы разместили в нашей прачечной для детей 7 и 5 лет:
В верхнем ящике лежат рубашки моей 7-летней девочки. Следующий ящик — рубашки пятилетнего ребенка. В третьем ящике лежат их джинсы, а в нижнем — пижамы. В корзине сверху хранятся носки и нижнее белье. (Другая корзина полна того, что мы называем «мусорными полотенцами» — это не очень красивые полотенца, которые мы используем для вытирания разливов, вытирания собак, складывания снежных ботинок и выполнения любых других работ, которые я действительно не хочу мои красивые полотенца использовались для.)
В другое время мы храним одежду в роликах под кроватями (что нам не очень подходит) и корзины на полках. Мы также жили в одном доме, где шкаф в комнате для девочек был совершенно непригоден из-за большой трубы в центре, поэтому мы использовали металлическую вешалку.
Совет № 6 — Используйте свое хранилище с умом. В некоторых старых небольших домах действительно есть хорошие встроенные хранилища. У нас прекрасный встроенный книжный шкаф и отличные шкафы в коридоре. Однако из-за отсутствия подвала или пригодного чердака нам пришлось превратить наш гараж в основное хранилище. Нет, это не идеально, но, используя множество пластиковых ванн, мы заставили его работать.
При поиске решений для хранения учитывайте пространства под потолком, под вещами и за вещами и всегда ищите мебель, которая может выполнять двойную функцию, создавая не только плоские поверхности, но и места, где можно спрятать вещи внутри.
Совет № 7 — Оценивайте по мере продвижения {и роста}. Много лет назад кто-то упрекнул меня за постоянное изменение вещей в нашем доме, но, чтобы не отставать от потребностей нашей семьи, я должен быть готов измениться. Я должен следить за тем, что работает, а что нет, по мере того, как наши дети становятся старше, и мы добавляем больше детей в семью. Мы не статичны и не неизменны, так почему же наши методы и планы должны оставаться неизменными? Тот факт, что мы живем в маленьком доме, не означает, что есть только один способ делать что-то.Иногда мне нужно действительно мыслить нестандартно, чтобы увидеть другие пути, но в конце концов это того стоит, чтобы позволить себе измениться.
Итак, теперь ваша очередь! Как вы управляете большим количеством людей в маленьком доме? Что вы узнали из опыта? Что вы думаете о другом?
{И, пожалуйста, не стесняйтесь поделиться этим постом на Facebook или закрепить его на Pinterest, чтобы ссылаться на него позже! В верхней части сообщения есть кнопки, которые упрощают это!}
18 способов превратить неиспользуемое пространство в нужные комнаты
Больше места на той же площади
Надстройка над домом и под ним — это разумные способы увеличить жилое пространство, но есть и другие творческие способы сократить дополнительные квадратные метры без кардинального изменения площади вашего дома.Посмотрите вверх, вниз и вокруг, и вы можете обнаружить, что у вас больше места для комнат, чем вы думаете — на чердаке, в подвале, в гараже или даже в малоиспользуемой хозяйственной постройке. В этом старом доме собраны его любимые бонусные комнаты в подвале и на чердаке, а также переоборудованные навесы и гаражи, трехсезонные подъезды и многое другое, чтобы помочь вам найти это скрытое пространство в своем доме.
От мансарды до люкса Retreat
Уильям ЭносИногда в поисках большего жилого пространства некуда смотреть, кроме как вверх.Когда Алан Кох купил этот коттедж 1933 года в Портленде, штат Орегон, он знал, что раньше, чем позже, закончит чердак площадью 600 квадратных футов. А так как он работал дома, Алан мечтал о светлом, ярком офисе, где он мог бы расположиться. Постучав наверху, он решил, что сможет вырезать именно такое пространство, а также удобную главную спальню, зарезервировав спальни внизу для гостей и просмотра телевизора.
После расширения чердачного пространства на 100 квадратных футов с помощью мансардного окна с остроконечной крышкой, просторное гнездо Алана теперь готово и максимально использует каждый квадратный дюйм с умными компактными деталями, такими как дверь кармана шкафа, которая сохраняет проход свободным и Чисто.
Холодный и удобный подвал
Марк СамуИногда дополнительная комната, о которой вы всегда мечтали, оказывается прямо у вас под ногами. Элизабет Уиллетт хотела удовлетворить несколько потребностей в доме своей семьи в стиле Тюдоров 1927 года, когда она увидела неиспользованный потенциал в его подвальном помещении. «В нем уже был камин и крошечная ванна, но на самом деле это так и не было закончено», — говорит она. Хотя потолок был низким, он не был слишком низким, и влажность — проклятие перестройки подвала — не была проблемой.
Вскоре Элизабет и ее муж Крис представляли себе пристройку площадью 830 квадратных футов без новой площади с целым рядом удобств. Они создали у подножия лестницы место для семейного отдыха и развлечений. Гости могут повесить налево, чтобы посмотреть винный погреб, или плюхнуться на диван напротив каменного камина и телевизора. Дэвису даже удалось уместить ванную комнату, прачечную, кладовую и домашний офис. Семейная комната в деревенском стиле теперь является местом сбора их дочери и ее друзей.
Гостиная на крыльце в деревенском стиле с плетеным наполнителем
Тим Стрит-ПортерВеликолепное расположение с видом на двор делает веранду идеальным местом для серьезного отдыха в теплую и мягкую погоду. Чтобы подчеркнуть эту идею в собственном доме в Нью-Йорке, дизайнер интерьеров Том Фэллон превратил свое крыльцо в полноценную комнату. Он закрепил мебель — винтажную плетеную лозу и ротанг, соединенную слоем зеленой краски — натуральным ковром, и повесил на черепицу зеркала и акварель.
Подушки темно-синего, белого и цитрусового цветов добавляют цвета, а отделка бледным сельдереевым оттенком привлекает внимание к решетчатым ставням и характерным арочным окнам Carpenter Gothic 1875 года. «Внешний вид классический, даже немного тихий, что контрастирует с яркой архитектурой дома», — говорит Фэллон.
Умная домашняя рабочая станция
Tria Giovan / Southern LivingЧетверо детей — и их рюкзаки — загромождали кухню после школы.Таким образом, эти домовладельцы создали уединенную и прилежную атмосферу для школьных занятий. В верхних шкафах хранятся школьные и художественные принадлежности, а также скрываются подвальные воздуховоды.
Люкс с детской спальней в мансарде
Джулиан ВассСпросите детей, и они скажут, что идеальное место для сна — в домике на дереве или на парусной лодке, как Макс в «« Где дикие твари ». Архитектор Даррен Хельгесен воплотил этот дух в переделке мансарды столетнего дома в Ист-Хэмптоне, штат Нью-Йорк, где он использовал теплую отделку и продуманные детали, чтобы превратить темное пространство с наклонным потолком в роскошный люкс с двумя спальнями.Домовладельцы Билл и Кори Лаверак уже отремонтировали остальную часть дома.
«Это всегда было их любимым местом», — говорит Кори, вспоминая, как четверо детей пары прятались наверху с друзьями при каждой возможности. «А теперь это идеальное место для ночевки». Удобные встроенные элементы с местом для хранения вещей под кроватью, мансардными окнами, сосновым полом и множеством глянцевых досок открыли чердак и сделали его более функциональным.
Из флигеля на задний двор
Баутоны из Бруклина, штат Миссисипи, унаследовали унылый, одинокий сарай, когда они переехали в свой дом.Но при планировании бокового сада они увидели, что эта небольшая пристройка 12 на 12 футов имеет потенциал в качестве координационного центра. Они добавили крыльцо с двускатной крышей, затем установили утилизированные окна коттеджей и завершили его расколотой кедровой крышей. Теперь каждый хочет провести ночь в своей маленькой жемчужине на заднем дворе!
От подвала Бла до кинотеатра Magical
Линда Ояма БрайанКогда Кэти и Боб Сероне решили расширить свой дом в Уилметте, штат Иллинойс, 1912 года, дополнив его четырьмя взрослыми детьми, их команда конструкторов увидела потенциал в сыром подвале.Построив его и завершив, они могли получить место для мультимедийной и игровой комнаты, достаточно большой для семейных посиделок.
Строители вырыли фундамент и подвал для пристройки, а затем сняли часть стены между старым и новым подземными помещениями. Новый подвал добавил 915 квадратных футов жилой площади и решил проблему влажности с помощью дренажей по периметру и дренажных насосов. В помещении под 9-футовым потолком находится телевизор с проекционным экраном и бильярдный стол. «Когда идут эти ¬Chicago Bears — святая корова — вся семья здесь», — говорит Кэти.
Интеллектуальное решение для дома с небольшой площадью
Сьюзан ЗьюбертРеконструкция небольшого дома может быть такой же сложной, как пазл. Именно это обнаружили Мэтью и Дарси Хейни, ремонтируя трехкомнатную комнату наверху в своем коттедже в Карлтоне, штат Орегон. Они установили новые окна, которые действительно соответствуют требованиям пожарной безопасности. Встроенная мебель, шкафы и открытые полки — вместе с новой ванной — используют все доступное пространство.
Из гаража в удобную комнату отдыха
Марк ЛоманЭто знакомый феномен: план реконструкции, с которым вы начинаете, не совсем тот, который у вас получился. Для одной семьи из Южной Калифорнии ремонт гаража превратился из непринужденной игровой комнаты для двух маленьких детей в хорошо оборудованную медиа-комнату, столь же ориентированную на взрослых. «Когда мы начинали, мы хотели, чтобы дети могли играть в спортивные игры Wii Sports, которые занимают много места», — говорит домовладелец, и редко используемая пристройка рядом с бассейном предлагала решение.
Подвесные двери были заменены на блоки в виде вагонов, и была построена стена — обе легко снимаемые, чтобы в них могли поместиться две машины, если семья когда-нибудь захочет вернуть комнату в гараж. Они установили потолок, закончили стены изоляцией и стеновыми панелями, построили утепленный черновой пол и добавили нестандартные встроенные элементы, холодильник для напитков и проводку для медиаоборудования.
Одиночество на заднем дворе без ошибок
В зимние месяцы Карл Юнгблут из Буна, штат Айова, спроектировал эту экранированную комнату размером 12 на 6 футов, чтобы использовать пиломатериалы стандартной длины с минимальными отходами.Полы внутри представляют собой композитные настилы стандартной длины, не требующие особого ухода. «Поскольку мы планировали окрасить его в зеленый цвет и красный цвет, я использовал обработанную под давлением пиломатериал, а также металлическую крышу и композитный настил», — говорит Карл.
Надстройка над гаражом
Нат Ри«Нам нравится расположение нашего дома, но в нем было мало места», — говорит Джефф Аллен о прибрежном районе Кейп-Код 1925 года в Баррингтоне, штат Род-Айленд, который он делит с женой Мишель Форсье и их маленькой дочерью.Хотя дом с двумя спальнями площадью 1600 квадратных футов, на котором был построен последний телевизионный проект TOH, был построен как сезонное жилье, семья планирует жить в нем круглый год. В первую очередь в списке желаний пары была дополнительная спальня и ванна наверху. Учитывая небольшой участок дома и строгие местные законы о зонировании, Брюстер сделал набросок пристройки в единственном месте, где она могла бы разместиться: над пристроенным неотапливаемым гаражом.
От чердака до спальни с помощью Интернета
Дэвид ПринсМаленькое ранчо 1950-х годов подходило своим новым владельцам, за исключением одного.Им нужен был главный люкс. Но как этого добиться, когда первый этаж был забит кухней, гостиной и столовой, единственной ванной комнатой дома и двумя крошечными спальнями, одна из которых скоро станет детской? Добавление не было вариантом. Итак, Клаудия и Фелипе Менанто из Пискатауэя, штат Нью-Джерси, посмотрели на чердак.
Полостена теперь закрывает лестницу, открывая пространство и позволяя солнечному свету из новых окон в крыше заливать комнату. Встроенные элементы сохраняют чистоту и функциональность. Мансардные окна создают иллюзию высоты, когда поднять крышу было невозможно.
Из неиспользуемого пространства в домашний офис с интеллектуальным хранилищем
Шелли ХаррисонЖенатые нейробиологи Вивек Унни и Тамили Вайсман-Унни, владельцы дома 1870-х годов в Кембридже, штат Массачусетс, начали с рождения ребенка и простой цели. «Нам нужна была ванная комната на первом этаже с пеленальным столиком, — говорит Тамили. Но они также были обременены темным парадным входом рядом с передней комнатой, которая служила специальной прихожей, и «коварной» узкой лестницей.
Поэтому они попросили своего генерального подрядчика переосмыслить все пространство. Теперь в нише для рабочего стола используется уголок с естественным освещением, дополненный встроенными потолочными светильниками. Откидные оконные ставни, бледный пол и четкие линии обзора делают залитую светом комнату намного больше, чем она есть на самом деле.
Очаровательная гостиная на открытом воздухе
Ван ЧаплинСадовые стены действительно помогают патио или террасе ощущаться как комната, независимо от того, сделаны ли они из зелени, камня или, что более неожиданно, старых церковных окон, используемых здесь.Подвешенные к перилам, установленным на верхних угловых стойках, они окружают палубу размером 16 на 16 футов, придавая ей элегантный вид застекленного зимнего сада. Домовладелец Сюзанна Хадсон, дизайнер сада, несколько лет назад нашла пять находок высотой 11 футов по 90 долларов каждая на блошином рынке и недавно использовала их для обозначения своей террасы в Дугласвилле, штат Джорджия, как огромные белые пикеты на заборе.
Мебель, окрашенные металлические планеры крыльца и пружинные кресла 1940-х годов имели непринужденный вид, который хотел Хадсон; железная подставка для свечей и армиллярные солнечные часы за короткое время добились ровной ржавой отделки.«Зеленый, коричневый и белый — естественные цвета патины в саду — представляют собой встроенную цветовую схему», — говорит она. «Голубые гортензии и розовые подушки скрасят его».
Из необработанного подвала в семейный номер
Erik РейтингСадовые стены действительно помогают патио или террасе ощущаться как комната, независимо от того, сделаны ли они из зелени, камня или, что более неожиданно, старых церковных окон, используемых здесь. Подвешенные к перилам, установленным на верхних угловых стойках, они окружают палубу размером 16 на 16 футов, придавая ей элегантный вид застекленного зимнего сада.Домовладелец Сюзанна Хадсон, дизайнер сада, несколько лет назад нашла пять находок высотой 11 футов по 90 долларов каждая на блошином рынке и недавно использовала их для обозначения своей террасы в Дугласвилле, штат Джорджия, как огромные белые пикеты на заборе.
Мебель, окрашенные металлические планеры крыльца и пружинные кресла 1940-х годов имели непринужденный вид, который хотел Хадсон; железная подставка для свечей и армиллярные солнечные часы за короткое время добились ровной ржавой отделки. «Зеленый, коричневый и белый — естественные цвета патины в саду — представляют собой встроенную цветовую схему», — говорит она.«Голубые гортензии и розовые подушки скрасят его».
Бюджетный светлый люкс в мансарде
Джон ГруэнВ небольшом доме нужно много работать над каждым местом, как вскоре поняли домовладельцы Саманта и Брайан Лангдо, купив свой мыс площадью 1200 квадратных футов в Уотербери, штат Коннектикут. Желая зарезервировать две спальни на первом этаже для гостей, они нацелились на законченный чердак второго этажа для своей главной спальни.
Работая по ночам и в выходные в течение примерно двух месяцев, пока спала в гостевой спальне внизу, пара выпотрошила большую часть пространства, вырвала стены туалета и добавила теплоизоляцию.
Незаконченный подвал приобретает мужской вид
Джо ШмельцерСадовые стены действительно помогают патио или террасе ощущаться как комната, независимо от того, сделаны ли они из зелени, камня или, что более неожиданно, старых церковных окон, используемых здесь.Подвешенные к перилам, установленным на верхних угловых стойках, они окружают палубу размером 16 на 16 футов, придавая ей элегантный вид застекленного зимнего сада. Домовладелец Сюзанна Хадсон, дизайнер сада, несколько лет назад нашла пять находок высотой 11 футов по 90 долларов каждая на блошином рынке и недавно использовала их для обозначения своей террасы в Дугласвилле, штат Джорджия, как огромные белые пикеты на заборе.
Мебель, окрашенные металлические планеры крыльца и пружинные кресла 1940-х годов имели непринужденный вид, который хотел Хадсон; железная подставка для свечей и армиллярные солнечные часы за короткое время добились ровной ржавой отделки.«Зеленый, коричневый и белый — естественные цвета патины в саду — представляют собой встроенную цветовую схему», — говорит она. «Голубые гортензии и розовые подушки скрасят его».
Lofty Attic Office Redo
Дэвид ЛэмбКогда в прошлом году истек срок аренды офиса Бет Крауклис (она управляет собственным брендовым агентством в Орландо, Флорида), она бросила взгляд на квартиру на чердаке в своем доме королевы Анны. Она решила, что при площади в 700 квадратных футов это может быть офис на семь человек, но «я хотела, чтобы он выглядел открытым, как чердак, с большим количеством света», — говорит Бет.Ее муж Джон, который уже планировал заменить крышу и сайдинг, принял вызов.
Джон выпотрошил квартиру, проделал отверстия для трех новых окон, снял штукатурку со стен и обработал внутреннюю обшивку темным морилкой и полиуретаном. Он обновил полы из сосны в форме сердца и покрасил открытые стропила пятью слоями белой краски. Затем, чтобы завершить внешний вид чердака, Джон повесил воздуховод переменного тока почти по длине чердака, гусеничное освещение и старинный деревянный пропеллер самолета.
.


Если у вас в квартире высокие потолки, можете соорудить закрытые антресоли. А еще там можно поставить полки для книг. Да и обычный книжный шкаф, если сделать его до потолка, зрительно поднимет высоту помещения.

Да и санузел остается доступным только из гостиной. Но в целом вариант определенно симпатичный.
Гостиная компактная, детская – отличные параметры. Если вас не смущает количество проходных комнат, рассмотрите этот вариант.
Если вы решились на объединение двух зон, этот вариант один из доступных.
Если у вас в квартире высокие потолки, можете соорудить закрытые антресоли. А еще там можно поставить полки для книг. Да и обычный книжный шкаф, если сделать его до потолка, зрительно поднимет высоту помещения.

Да и санузел остается доступным только из гостиной. Но в целом вариант определенно симпатичный.
Гостиная компактная, детская – отличные параметры. Если вас не смущает количество проходных комнат, рассмотрите этот вариант.
Если вы решились на объединение двух зон, этот вариант один из доступных.
Если у вас в квартире высокие потолки, можете соорудить закрытые антресоли. А еще там можно поставить полки для книг. Да и обычный книжный шкаф, если сделать его до потолка, зрительно поднимет высоту помещения.

Да и санузел остается доступным только из гостиной. Но в целом вариант определенно симпатичный.
Гостиная компактная, детская – отличные параметры. Если вас не смущает количество проходных комнат, рассмотрите этот вариант.
Добавить комментарий