Перепланировка 2х комнатной квартиры в кирпичном доме: переделка 2-комнатных «хрущевок» в кирпичном доме в трехкомнатные квартиры и другие варианты
Планировка двухкомнатных квартир в кирпичных домах
Перепланировка: Три варианта двухкомнатной квартиры в хрущевке
Какой может быть перепланировка хрущевки, если две комнаты смежные — дизайнер показывает варианты с фото
Что мы знаем о хрущевках?
Дома серий 1-510, 1-511, 1-477, 1-515 и некоторые другие хрущевки входят число несносимых зданий, в которых еще долгие годы предстоит жить российским семьям. Эти блочные и кирпичные пятиэтажные серии, в основном, строились в Москве и Подмосковье (так же есть немного отличающиеся серии в Петербурге и других городах). Наша задача: перепланировка двухкомнатной хрущевки в удобное пространство для двух и более человек.
Советские города массово застраивались панельными хрущевками в 1950-60х гг. по инициативе Никиты Хрущева (в честь которого и получили свое название) и до сих пор составляют большую часть жилого фонда городов бывшего СССР.
Двухкомнатные квартиры почти во всех сериях хрущевок неизменно имеют смежные комнаты, одна из которых настолько узкая, что поперек нее с трудом встает кровать. Из хорошего — абсолютно все перегородки можно снести, а в большинстве «двушек» есть балкон. Возьмем самую популярную планировку, встречающуюся почти во всех сериях хрущевок. Площадь такой квартиры в разных домах от 40 до 45 кв.м, жилая — от 26 до 31 кв.м, санузел иногда раздельный, иногда общий, но почти всегда — с сидячей ванной (стандартная не влезает по размеру).
———————————————
В ВАШЕМ ГОРОДЕ…
► Через Houzz можно нанять архитектора или дизайнера в любом городе и стране. Введите индекс, чтобы подобрать специалиста в своем городе
———————————————
На плане: исходная планировка двухкомнатной квартиры в хрущевке
Дано: типовая двухкомнатная квартира, состоящая из двух смежных жилых комнат, кладовой, очень маленькой кухни, прихожей и санузла.
Задача: создать удобное пространство для жизни семьи. При планировании маленького пространства на семью важно проанализировать все детали вашей жизни в квартире и спланировать ее под свои личные нужды.
Поскольку таких квартирах живут очень разные по составу и количеству человек семьи, каждая со своим конкретным запросом, мы представим несколько общих идей, от которых можно отталкиваться.
►►► Главной «фишкой» квартиры станет маленький рабочий кабинет, отделенный от гостиной прозрачной стеной. За счет раздвижных дверей он может стать частью общего пространства или отделиться в рабочую зону. В санузле на место ванной встали душевая кабина и стиральная машина, а также длинная столешница с ящиками.
Плюсы планировки: большое общее пространство с гостиной, три отдельных помещения с разными функциями, трансформируемое пространство, большая гардеробная.
Минусы планировки: небольшие кабинет и спальня, маленькая рабочая зона кухни.
Важно: Для согласования планировки потребуется заменить газовую плиту на электрическую; при согласовании спальню придется назвать нежилым помещением (кабинетом), поскольку ее площадь не «дотягивает» до нормативных 8 кв.м.
___________________________
БОЛЬШЕ ФОТО…
Еще 700+ красивых примеров фото хрущевок
___________________________
ВАРИАНТ 2. ИЗОЛИРОВАННАЯ КУХНЯ
В этом проекте проблема смежной комнаты решена так же, как в первом варианте — одна из двух комнат становится гостиной, не отделенной от прихожей. В маленькой комнате перегородка так же сдвигается на 15 см, там помещается спальня с детской кроваткой. Гардероб остается на своем прежнем месте, еще одна кладовая появляется на месте коридора. В санузле помещаются небольшая ванна, умывальник, унитаз и стиральная машина.
9 вариантов планировочных решений для двухкомнатной квартиры — хрущевки
- Планировочные решения для семьи из 2-х человек.
- Планировочные решения для семьи из 3-х человек (1 ребенок).
- Планировочные решения для семьи из 4-х человек (2 ребенка).
- Планировка переделки из 2-ком в 3-ком квартиру
Друзья! В данной статье мы рассмотрим различные варианты планировки 2-комнатной хрущевки.
Наиболее популярные серии хрущевки это 1-515, 1-511
а так же 1-335 для них так же подойдут эти планировки.
Все планировки я сделал с размерами и подробными планами.
Можно без труда скачать и сделать что-то свое похожее. Если у вас возникнут вопросы, то задавайте их в комментариях к этой статье.
Для каждой отдельной планировки будут добавлены ее «плюсы» и «минусы».
1) Планировка 2-комнатной квартиры для семьи из 2-х человек (3 варианта).
Для молодой семьи, которая еще не завела детей, планировка будет достаточно простой и понятной. Одна комната отводится под спальню, вторая — под гостиную. Кухню и гостиную можно совместить, так как площадь кухни совсем мала, а по сути, кухня в хрущевке все равно является частично проходной. Довольно часто мои заказчики просят сделать какое-нибудь рабочее место для того, чтобы можно было посидеть с ноутбуком. Я постарался разместить мини-кабинет в некоторых вариантах планировки 2-комнатной хрущевки.
Планировка 2-х комнатной хрущевки для семьи из 2х человек (вариант 1)
- гостиная кажется больше за счет объединения с кухней
- полноценный стол на кухне
- есть полноценный гардероб в спальне
- достаточно места для хранения вещей
- в спальне есть полноценное рабочее место
- есть сложность с согласованием из-за увеличения кухни за счет ванной
- гостиная — проходная для кухни и спальни
- в прихожей нет полноценного шкафа при входе
Есть определенная сложность с согласованием, так как холодильник находится в зоне ванной комнаты. Один из вариантов решения — это увеличение ванной комнаты, но кухня становится уже.
Планировка 2-х комнатной хрущевки для семьи из 2х человек.
В этой планировке я попытался сделать вход в спальню менее заметным. Кухня имеет традиционную планировку и не нарушает никаких норм. Хотя в спальне и нет гардероба, но шкаф длиной 2.6 метра очень вместительный.
- гостиная кажется больше за счет объединения с кухней
- в спальне есть полноценное рабочее место
- хотя в квартире и нет гардероба или кладовки, но шкафов достаточно много
- есть полноценный стол на 6 персон
- отсутствие узких и темных коридоров
- гостиная — проходная для кухни и спальни
- ванная комната не имеет ванной чаши, а только душ
- в прихожей нет шкафа
- рабочее место не изолировано
- небольшой размер кухни
Данную планировку согласовать можно, так как ванная комната находится в пределах мокрых зон.
Нарушений перепланировки нет.
Планировка 2-х комнатной хрущевки для семьи из 2х человек.
В этом варианте планировки 2-комнатной хрущевки спальня расширена за счет гостиной. В гостиной для TV сделана ниша. Стандартный обеденный стол ставить не стали, а сделали небольшую барную стойку. Квартира подойдет для молодой пары. Интересное решение для ванной комнаты — помещение увеличено за счет коридора. В прихожей даже получилось расположить небольшой гардеробик.
- гостиная кажется больше за счет объединения с кухней
- с дивана не видно кухню, кухня более изолирована
- ванная комната увеличена за счет коридора
- прихожая имеет шкаф и более изолирована от гостиной
- в спальне есть полноценное рабочее место
- в спальне есть гардероб
- гостиная — проходная для кухни и спальни
- визуально гостиная кажется меньше из-за выступа ванной комнаты
- не очень большая кухня
Данную планировку согласовать можно, так как ванная комната находится в пределах мокрых зон. Нарушений перепланировки нет.
Типовая планировка квартиры в кирпичном доме
Часто проводится перепланировка в кирпичном доме, при которой важно учесть тип квартиры, количество комнат и другие нюансы. Стоит знать каких годов кирпичное жилье, чем оно старее, тем хуже схема планировки. Многие сходятся на мнении, что квартиры кирпичной постройки уступают типовым и улучшенным типовым моделям. Планировка также зависит от этажности здания и иных особенностей. Не всегда жилые площади удобные и функциональные, особенно в многоквартирных домах.
Типовые планировки квартир в кирпичном доме, учитывая серии
Как обустроены «сталинки»?
Чаще приобретается 2-комнатная квартира, отличающаяся многообразной планировкой. Нередко наблюдается коридорное узкое помещение, начинающееся от входа. В других типовых планировках «сталинки» прихожая сразу переходит в просторный холл. Комнаты одинакового размера или разногабаритные — маленькая и большая.
Такие квартиры в кирпичном доме отличаются сравнительной просторностью, наименьшая составляет 50 кв. м. Такие постройки 50-го года XX века. Дальнейшее строительство подобной серии домов не считается типовым, поскольку каждое новое жилище утверждалось по индивидуальному плану. В таблице представлены преимущества и недостатки планировки квартир в «сталинке».
| Количество комнат | Площадь, м | ||
| Общая | Жилая | Кухня | |
| 1 | 32 | 18 | 6 |
| 40 | 19 | 8 | |
| 2 | 46 | 31 | 6 |
| 48 | 31 | 7 | |
| 50—55 | 33—34 | 8 | |
| 3 | 61 | 42 | 7 |
| 72—76 | 48 | 8 | |
| 4 | 77 | 53 | 7 |
Вернуться к оглавлению
Серия «стекляшка»
Перепланировка 3х комнатной квартиры в таком кирпичном здании удобнее, при этом практически отсутствуют проходные помещения. Такой многоквартирный дом выстраивается в 9 и более этажей, в нем есть лифт. Все квартиры имеют балкон, в том числе угловые и расположенные внизу. В однокомнатных квартирах в кирпичном доме большим преимуществом служит лоджия площадью 8—9 метров. Преимуществами таким планировок являются:
- малое количество квартир на одном этаже — не более 4;
- лифт;
- отдельная ванная комната и туалет.
Проекты «стекляшек» не всем подходят, поскольку в таких кирпичных домах низкие потолки и небольшие кухоньки.
Серия «87»
Проекты таких домов из кирпича сходны с жилыми зданиями 96-го типа (прямые наследники «хрущевки»), поскольку имеют одинаковую планировку. Отличия в том, что при строительстве первых использовался красный либо силикатный кирпич. Площадь таких квартир больше, в среднем большая комната занимает около 18 кв.
м., а маленькая — 12 кв. м. В каждой квартире балкон с двумя или одним выходом с большой комнаты. У кирпичных домой 87 серии есть такие плюсы:
- гипсовые перегородки между комнатами, что позволяет без проблем проводит перепланировку;
- просторный холл и балкон;
- большое кухонное помещение;
- раздельные туалет и ванная комната.
Вернуться к оглавлению
Планировки в «совмине»
После 87 серии создали современнее дом, в котором проживали исключительно творческая элита и управители. В народе принято именовать «совминами» все дома, выстроенные из красного кирпича. Проекты таких зданий разнообразны, и разрабатывались индивидуально в зависимости от архитектурного проекта. Типичная планировка присутствует лишь в серийных кирпичных «совминах». Особенностями таких зданий являются:
- Просторное помещение.
- Большая площадь кухни — не менее 9 кв. м.
- Раздельные комнаты. Размеры самой маленькой составляют 15 кв. м.
- Лоджия с выходом в кухонное помещение.
- Большой квадратный холл или длинный коридор.
- Просторное парадное помещение с местом для консьержа.
Вернуться к оглавлению
«Башня Вулыха»
Такое название получили кирпичные дома, этажность которых составляет 14 этажей. Лифт и лестницы расположены посередине здания. Различается и количество квартир на этаже — до 8, что больше, нежели в типовых «совминах». Метраж квартиры в «башне Вулыха» также отличается, он меньше. Комната с нишей неправильной формы. Преимущества планировки — раздельные санузлы и просторные комнаты.
Какие лучше?
Рекомендуется приобретать жилье в монолитно-кирпичном доме, поскольку в таких зданиях планировки лучше продуманы и комнаты просторнее. Отдавайте предпочтение планировкам с маленьким балконом или чтобы он был большим, но разделен на 2 части и с двумя входами. Обращайте внимание на формы помещения, чем оно не стандартнее, тем сложнее будет удобно расставить мебель.
В «хрущевках» рекомендуется выбирать квартиры пониже, поскольку в летнее время в выше расположенных помещениях жарко.
Перепланировка: Три варианта двухкомнатной квартиры в хрущевке
Какой может быть перепланировка хрущевки, если две комнаты смежные — дизайнер показывает варианты с фото
Что мы знаем о хрущевках?
Дома серий 1-510, 1-511, 1-477, 1-515 и некоторые другие хрущевки входят число несносимых зданий, в которых еще долгие годы предстоит жить российским семьям. Эти блочные и кирпичные пятиэтажные серии, в основном, строились в Москве и Подмосковье (так же есть немного отличающиеся серии в Петербурге и других городах). Наша задача: перепланировка двухкомнатной хрущевки в удобное пространство для двух и более человек.
Советские города массово застраивались панельными хрущевками в 1950-60х гг. по инициативе Никиты Хрущева (в честь которого и получили свое название) и до сих пор составляют большую часть жилого фонда городов бывшего СССР.
Двухкомнатные квартиры почти во всех сериях хрущевок неизменно имеют смежные комнаты, одна из которых настолько узкая, что поперек нее с трудом встает кровать. Из хорошего — абсолютно все перегородки можно снести, а в большинстве «двушек» есть балкон. Возьмем самую популярную планировку, встречающуюся почти во всех сериях хрущевок. Площадь такой квартиры в разных домах от 40 до 45 кв.м, жилая — от 26 до 31 кв.м, санузел иногда раздельный, иногда общий, но почти всегда — с сидячей ванной (стандартная не влезает по размеру).
———————————————
В ВАШЕМ ГОРОДЕ…
► Через Houzz можно нанять архитектора или дизайнера в любом городе и стране. Введите индекс, чтобы подобрать специалиста в своем городе
———————————————
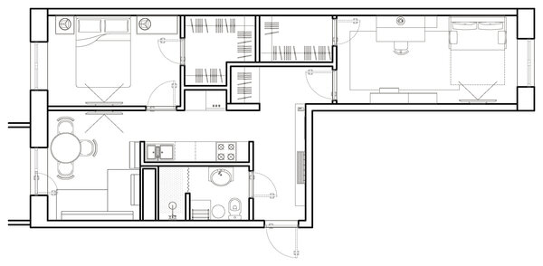
На плане: исходная планировка двухкомнатной квартиры в хрущевке
Дано: типовая двухкомнатная квартира, состоящая из двух смежных жилых комнат, кладовой, очень маленькой кухни, прихожей и санузла.
Задача: создать удобное пространство для жизни семьи. При планировании маленького пространства на семью важно проанализировать все детали вашей жизни в квартире и спланировать ее под свои личные нужды. Поскольку таких квартирах живут очень разные по составу и количеству человек семьи, каждая со своим конкретным запросом, мы представим несколько общих идей, от которых можно отталкиваться.
►►► Главной «фишкой» квартиры станет маленький рабочий кабинет, отделенный от гостиной прозрачной стеной. За счет раздвижных дверей он может стать частью общего пространства или отделиться в рабочую зону. В санузле на место ванной встали душевая кабина и стиральная машина, а также длинная столешница с ящиками.
Плюсы планировки: большое общее пространство с гостиной, три отдельных помещения с разными функциями, трансформируемое пространство, большая гардеробная.
Минусы планировки: небольшие кабинет и спальня, маленькая рабочая зона кухни.
Важно: Для согласования планировки потребуется заменить газовую плиту на электрическую; при согласовании спальню придется назвать нежилым помещением (кабинетом), поскольку ее площадь не «дотягивает» до нормативных 8 кв.м.
___________________________
БОЛЬШЕ ФОТО…
Еще 700+ красивых примеров фото хрущевок
___________________________
ВАРИАНТ 2. ИЗОЛИРОВАННАЯ КУХНЯ
В этом проекте проблема смежной комнаты решена так же, как в первом варианте — одна из двух комнат становится гостиной, не отделенной от прихожей. В маленькой комнате перегородка так же сдвигается на 15 см, там помещается спальня с детской кроваткой. Гардероб остается на своем прежнем месте, еще одна кладовая появляется на месте коридора. В санузле помещаются небольшая ванна, умывальник, унитаз и стиральная машина.
Перепланировка двухкомнатной квартиры в кирпичном доме II-29
Нестандартная перепланировка двухкомнатной квартиры в доме серии II-29, дом кирпичный, девятиэтажный, 1972 года постройки, все внутренние межкомнатные перегородки не являются несущими элементами, что облегчает саму перепланировку.
Главная цель, которую преследовал собственник, это визуальное расширение площади и устройство отдельного помещения для гардероба.
На демонтажно-монтажном плане представлены все реализованные в рамках перепланировки мероприятия. Отметим, что данный вариант перепланировки является отнюдь не единственным, который мы обсуждали. К примеру, изначально форма и расположение гардеробной были другими, ванную и туалет планировали объединить, но не расширять.
В итоге собственник остановился на представленном варианте перепланировки, взяв во внимание наши рекомендации и предложения. Перепланировка данной двухкомнатной квартиры была благополучно
Итак, начнём с зоны санузла. Как уже было сказано, расширять санузел собственник не думал, впрочем как и переносить вход на кухню, но это предложение показалось ему весьма интересным, поэтому ту часть коридора, который вёл на кухню использовали для расширения площади совмещенного санузла, где были проведены все необходимые гидроизоляционные работы и оформлены акты скрытых работ по гидроизоляции.
Жилую комнатой (1) решили объединить в кухней (3). На кухне была изменена проектная расстановка оборудования, в частности газовой плиты и мойки, а в новообразованный проем была установлена раздвижная перегородка с плотным притвором.
Площадь коридора (5) и жилой комнаты (1) были объединены за счет демонтажа смежной перегородки вместе с двумя встроенный шкафами (1а, 2б).
Вместо двух встроенных шкафов, доступ к которым осуществлялся из разных жилых комнат, была устроена новая просторная гардеробная (2б, см. план после перепланировки). Гардеробная получилась довольно большая, её площадь составила 3,4 квадратных метра.
В итоге, данная перепланировка в целом была направлена на увеличение полезной площади: демонтаж ненужных малогабаритных шкафов, расширение санузла за счет коридора, объединение комнаты с коридором, что и было успешно реализовано.
Перепланировка 2х комнатной квартиры в кирпичном доме
Ремонт в квартире — трудоёмкий процесс. В то же время это необходимость, без которой дома невозможно чувствовать себя комфортно и уютно. Перед тем как приступить к работе, следует определиться, что именно вы хотите увидеть в итоге. Уже давно прошли времена, когда все граждане нашей страны имели одинаковое жилище с однотипной мебелью и стандартным расположением кухни и санузла.
Не всегда количество комнат и их размеры совпадают с нашими желаниями и потребностями. К счастью, перепланировка двухкомнатной квартиры уже давно не является чем-то нереальным. Приведённые ниже варианты возможно использовать в качестве основы для собственного ремонта. А, может быть, эти проекты помогут вам создать свой уникальный дизайн.
Как сделать перепланировку в двухкомнатной квартире — идеи с фото
В процессе ремонта часто необходимо объединить комнаты или изменить их параметры путём сноса базовых перегородок. Для того чтобы в дальнейшем не возникло проблем, первым делом в соответствующих органах следует получить разрешение на демонтаж стен.
От того, какие функции будет выполнять то или иное помещение, зависит выбор материалов для создания новых конструкций. В ванной комнате должны быть влагостойкие стены. В кухне чаще всего крепятся тяжёлые навесные шкафы, об этом необходимо помнить в момент установки перегородок.
Из двухкомнатной в трёхкомнатную
Если в двухкомнатной квартире проживает семья из нескольких поколений, каждому из них необходимо иметь свою комнату. При этом должен быть общий зал, где семья будет проводить свободное время. Рассмотрим несколько вариантов увеличения количества жилых помещений.
Некоторые новые дома имеют выгодную планировку, в которой при желании можно увеличить количество комнат. Идеально, если каждая из них будет иметь окно. Когда по проекту дома в гостиной расположено 2 оконных проёма — её легко можно разделить на 2 небольшие спальни. Такое деление будет оправданным при условии, когда первоначальное жилое помещение имело площадь не менее 18 кв.
м. В противном случае можно получить две неудобные кладовые, непригодные для жизни. Третья комната, ранее выполняющая роль спальни, может стать гостиной.
Деление гостиной с двумя окнами — хороший приём при перепланировке
Объединение кухни с коридором и незначительное уменьшение комнат позволит создать полноценную гостиную-столовую. Скруглённые стены с одной из сторон сделают возможным размещение большого обеденного стола без заметной потери жилого пространства. В этом случае следует позаботиться об освещении в центральной комнате. Необходимо компенсировать отсутствие естественного дневного света в зоне приёма гостей.
Один из вариантов перепланировки двушки
Если в квартире имеется лоджия с глухими стенами по бокам, её можно преобразовать в комнату для подростка. При этом варианте следует позаботиться о хорошем утеплении всех стен, пола и потолка. Не стоит забывать, что у соседей сверху и снизу эта часть помещения скорее всего нежилая, поэтому не отапливается.
На лоджии можно обустроить удобную комнату для подростка
Жители первого этажа часто прибегают к увеличению балкона путём его выдвигания. В этом случае комната может иметь полноценный размер. Однако многие умудряются сделать это и на верхних этажах. Такие конструкции в обязательном порядке необходимо согласовывать с городскими службами. Разумеется, делать подобные наращивания должны только профессионалы.
Некоторые расширяют квадратные метры зя счёт увеличения площади балконов и лоджий
Всем известно, что на кухне должен быть яркий свет. Отличным вариантом станет её перенос на балкон, при условии, что в первоначальном варианте он имелся на кухне. В этом случае появляется дополнительная комната, которую можно использовать в качестве гостиной. Такие преобразования также необходимо согласовывать с ЖЭК и другими инстанциями.
Альтернативным вариантом станет перенос кухни на лоджию
Примеры перепланировкы двушки в «хрущёвке»
В странах бывшего Советского Союза все ещё распространены так называемые хрущёвки.
Они относительно недорогие по стоимости, однако расположение и размеры комнат зачастую очень неудобны. Неоспоримым преимуществом является то, что практически все внутренние стены не являются несущими, а значит их можно ломать, предварительно получив на это разрешение.
Смежные комнаты допустимы в случаях, когда в квартире живёт молодая пара. Но если приходится существовать нескольким поколениям вместе, необходимо разделить спальни, чтобы не смущать тех, чья комната является проходной. За счёт зала увеличивается коридор, из которого в разные стороны будут уходить комнаты. Между ними можно установить вместительный гардероб. Полученная «распашонка» создаст необходимое личное пространство для каждого члена семьи.
Пример перепланировки двухкомнатной квартиры «чулка»
Ещё один вариант смежных комнат решается путём разделения последней на две небольшие спальни, создающие индивидуальное пространство для каждого живущего поколения.
Из одной комнаты можно сделать две смежные
Перенос входа в кухню со стороны гостиной позволит увеличить ванную за счёт коридора. Учитывая небольшой проектный размер зоны приготовления еды, можно объединить комнаты. При помощи цветовой гаммы интерьера возможно гармоничное сочетание двух разных помещений.
При правильном сочетании цветов вы получите уютный интерьер
Любители свободного пространства предпочитают снести максимальное количество перегородок и установить вместо них фальш-панели, разделяющие зоны. Такая идея часто применяется в планировке, называемой «чулок», когда квартира вытянута в одну сторону. При демонтаже стен появляется ощущение большого количества воздуха. Зрительно увеличивается размер помещения.
Чтобы сделать комнаты просторнее, можно убрать лишние перегородки
Считается, что небольшие квартиры должны быть представлены в светлых тонах. При этом важно не впасть в крайность. Слишком бледные помещения рискуют стать скучными и незаконченными. В интерьере рекомендовано применять три основных цвета, один из которых может быть вызывающе ярким.
Правильно подобранные цвета играют важную роль при обустройстве интерьера
Варианты переделки двухкомнатной квартиры-брежневки
На смену «хрущёвкам» пришли «брежневки» – дома, построенные в период правления Брежнева. Они имеют немного больший размер в сравнении с предшественниками. Санузел стал раздельным. Комнаты расположены изолировано друг от друга, что значительно улучшает условия проживания. Однако кухни по-прежнему остаются небольшими, их площадь не превышает 7 квадратов.
Расширение лоджии за счёт гостиной позволит увеличить количество жилых комнат.
Лоджия позволит расшить жилые комнаты
Объединение ванной и туалета увеличит полезную площадь, появляется возможность установки стиральной машинки.
Объединение двух санузлов позволит увеличить полезное пространство квартиры
Демонтаж стены между кухней и залом и установка между ними гипсокартонной конструкции с расширенным нестандартным проёмом позволит сохранить зональность и визуально увеличит пространство.
Расширить пространство позволит демонтаж стены между кухней и гостиной
Объединение комнаты с лоджией является популярным решением. При этом все чаще в процессе ремонта отказываются от демонтажа стены под окном. Её используют в качестве основы для стола.
Стену под оконным проёмом используют для установки стола
Основная проблема — маленькая кухня, решается путём увеличения этой зоны за счёт зала. Если не устанавливать между этими помещениями дверей, кухонный пол из кафеля можно вынести в гостиную, и разместить там обеденный стол. Визуально это не уменьшит жилую комнату, но увеличит зону приготовления еды.
Столовую зону можно вынести в гостиную
Перепланировка двушки со смежными комнатами
Смежные комнаты удобны, когда в квартире проживает один человек или пара без детей. В этом случае проходная комната может выступать гостиной, а вторая — зоной для сна. Но что делать, когда необходимо оборудовать две спальни?
Самым простым вариантом становится разделение дальней комнаты на две идентичные.
При перепланировке учитывайте, что в одной из комнат нужно обеспечить хорошее освещение
Если вторая комната имеет размеры, не превышающие 15 квадратных метров, не рекомендовано разделять её глухой стеной. Можно предложить вариант уменьшить первую проходную комнату за счёт образования коридора, ведущего во второе помещение.
Пример перепланировки двушки
Ещё одним вариантом может стать создание небольшого кабинета или спальни внутри проходной комнаты. При этом гостиную увеличить путём её объединения с кухней.
В проходной комнате можно обустроить и рабоче место
Интересным выглядит решение с нестандартной стеной, разделяющей дальнюю комнату на два небольших помещения. В каждой из спален появляется ниша для встроенного шкафа.
Пример квартиры до и после перепланировки
Выделив в гостиной спальную зону, можно также решить проблему неудобства смежных комнат. При таком проекте ни одна спальня не будет проходной комнатой. Зал значительно уменьшается, к тому же остаётся без дневного освещения. Но это легко решается при помощи правильно расставленного света и использования цветовых акцентов в интерьере.
При такой планировки площадь зала уменьшиться, но правильное освещение и акценты в интерьере помогут сделать комнату уютной
Переделка с выносом кухни в коридор
Классическим американским стилем являются квартиры, которые начинаются с кухни. Без лишних перегородок помещение плавно переходит в гостиную. И только спальни принято выделять в отдельные комнаты. Ярким примером такого обустройства являются квартиры, показанные в знаменитом сериале «Друзья». Основные события происходят как раз в подобных жилищах главных героев.
Помещение плавно переходит из коридора в кухню, затем в гостиную
Весьма необычно смотрится планировка квартиры с кухней в коридоре.
Но практика показала, что такое расположение удачно. Основной треугольник — расстояние между мойкой, холодильником и плитой, можно расположить в удобной плоскости. При этом остаётся много рабочего пространства для нарезки продуктов. Следующее помещение — гостиная, одновременно выполняет роль столовой, где можно поставить большой обеденный стол.
Стоит помнить, что такая перепланировка обязательно нуждается в получении письменного разрешения во всех задействованных инстанциях в связи с переносом водопровода, газопровода, канализации и вентиляции. Непосредственно перед кухней необходимо позаботиться о зоне для уличной обуви.
Большую прихожую можно использовать в качестве кухонной зоны. Очень важно продумать варианты освещения, ведь его придётся использовать в любое время суток.
Часть прихожей можно использовать в качестве зоны для кухни
Для удобства зону приготовления еды, расположенную в коридоре, защищают гипсокартонными конструкциями.
Разделить простанство можно с помощью перегородок из гипсокартона
Глянцевая поверхность визуально расширяет пространство, поэтому на узкой кухне хорошо будет смотреться такая мебель с минимальным количеством выпирающих деталей.
Глянцевая поверхность визуально расширит пространство
При переносе кухни в прихожую образуется дополнительная полноразмерная комната, которую можно использовать в качестве гостиной. Остальные две комнаты выполняют функции спален.
Такой способ перепланировки позволит сделать жилую комнату
Из двушки в студию
Если в двухкомнатной квартире проживает один человек или молодая семья без детей, очень удобно объединить кухню с гостиной. При этом образуется увеличенное пространство, которое можно использовать для различных целей. Создавая студию, важно выделять функциональные зоны. Для этого совсем необязательно нужны стены или массивные перегородки.
При помощи изменения уровня потолков и покрытия на полу можно разграничить место для приготовления еды и зону отдыха.
С помощью мебели можно зонировать пространство
Любители большого открытого пространства отдают предпочтение единому помещению. Для этого они объединяют обе комнаты с кухней и получают максимально возможную площадь. Для спального места выделяется небольшая зона, отделённая лёгкой перегородкой. При правильно подобранной цветовой гамме жилище будет выглядеть уютным, иметь собственный стиль и настроение.
Правильная расстановка мебели позволит создать удобное жилище
Барная стойка или полуостров станет отличным вариантом разделения зон в студии. Кроме того, на кухне необходимо установить возможность яркого освещения. Навесной потолок в едином стиле с общим интерьером в месте приготовления еды также поможет гармонично разграничить пространство.
Барная стойка может быть использована для деления комнаты на зоны
При использовании контрастных цветов в интерьере важно правильно подобрать их сочетание. Для этого используют цветовой круг.
При выборе цветовой гаммы для интерьера удобно пользоваться специальным цветовым кругом
Он помогает выбрать гармонирующую расцветку. Важно помнить, что оптимально использовать три основных цвета в помещении. Меньшее количество приведёт в блёклости и безжизненности, избыточное обилие расцветок создаст агрессивное настроение в помещении.
В этом примере используется три основных цвета: зелёный, чёрный и оттенки натурального дерева
Вытянутые квартиры-студии можно зрительно расширить, используя освещение, направленное от потолка на стены. При этом не стоит делать слишком ярких акцентов в интерьере. В такой планировке больше подойдут пастельные тона.
С помощью освещения можно зрительно расширить пространство
В статье были предложены различные варианты перепланировки двухкомнатных квартир. В зависимости от того, сколько человек проживает в доме, создаётся необходимый проект. Смежные комнаты не подходят для большой семьи. В то же время молодая пара, не планирующая в ближайшем будущем обзаводиться потомством, наоборот, чаще всего будет разрабатывать вариант планировки с центральной комнатой, из которой будут выходить все остальные помещения.
Необходимо придерживаться определённых правил по разделению зонирования пространства, оформляя его при помощи света, цвета, функциональной мебели и декора.
Хрущевка имеет небольшую площадь. Двухкомнатная квартира в основном не более 30 кв. м. с небольшой кухней, узким коридором и совмещенным санузлом. Перепланировка 2 комнатной хрущевки при таких исходных параметрах – дело непростое, но в итоге невзрачная квартира преобразится во вполне пригодное жилье. Квартиры в домах типовых хрущевских серий 1-510, 1-511, 1-477, 1-515 характеризуются довольно низкими потолками, они не превышают 2,5 метра. В основном хрущевки имеют неизолированные жилые помещения, балкон, стены сделаны из легких материалов.
Достоинства и недостатки жилья
Плюсы и минусы следующие:
- Недостатки квартир. Хрущев в 1957 году решил оптимизировать процесс строительства, сделать его быстрым для скорейшего обеспечения граждан собственным жильем. Началось массовое возведение панельных и кирпичных домов с простыми планировками. Небольшая площадь была задумана для большей компактности домов, которых нужно было построить много. Квартиры имеют плохую звукоизоляцию, малую площадь, тесные хозяйственные помещения, низкие потолки. Особенно в них сэкономили на площади кухни, в некоторых вариантах она не больше 4,5 метров.
- Достоинства хрущевок. В свое время ими были застроены большие площади городов, которые теперь стали их центром. Сносят их далеко не везде. Им вполне можно придать презентабельный внешний вид. Компактность дома тоже можно считать достоинством. Нет лифтов, многоэтажности, ощущения огромного улья. Не все любят высотные современные дома, в которых соседей можно никогда не узнать в лицо.
Виды расположения помещений
Несмотря на типичность, такие квартиры могут иметь несколько вариантов расположения жилых помещений.
- Планировка «вагончик». На входе – маленький коридор, напротив входной двери расположен вход в большую комнату.
Из нее в торце – вход в помещение, меньшее по площади. Окна выходят на разные стороны дома. Санузел и маленькая кухня доступны из коридора. - Планировка «распашонка». Окна такой хрущевки выходят на одну сторону. Возле входа размещается смежный санузел и вход в большую комнату. Маленькая кухня отделена от «зала» небольшой стенкой. Спальня гораздо меньше по площади, но зато есть шикарная кладовка.
- Планировка изолированная. Такие квартиры встречаются реже. У них обычно раздельный санузел и две отдельные комнаты. Кухня совсем маленькая, меньше, чем у предыдущих вариантов.
Согласование перепланировки
Все виды планировки 2 х комнатной хрущевки возможно улучшить, при этом помня о нюансах согласований и запретах.
Удобством хрущевки является то, что несущая стена разделяет квартиры, а все перегородки не несущие. Значит, их проще снести. В кирпичной малогабаритке нет несущих стен, есть только балки. Обычно изменения согласуются, только если затрагиваются несущие стены, но есть свои сложности с вариантами изменений.
Проблемы есть с перепланировкой санузла. Тесную ванную хотят расширить за счет коридора или кухонного пространства. Если санузел раздельный – логично будет сделать его совмещённым. Ограничения по перепланировке отражены в пункте 3.8. СаНПиН 2.1.2.2645-10 и п.9.25 СП 54.13330.2016. Документ поясняет, что санузлы запрещено увеличивать за счет комнат и кухни. Сделать их шире можно за счет нежилого пространства, в которое входят: кладовка, коридор, встроенный шкаф.
Кухню запрещено увеличивать за счет жилого помещения. То есть переносить перегородку между кухонной и жилой зоной запрещено согласно п. 22 Постановления Правительства РФ № 47 от 28.01.2006. А вот на снос перегородки запрета нет.
Важно! Если кухня оборудована действующей газовой плитой, то сносить стенку между ней и соседним помещением категорически запрещается. Этот перенос согласовать невозможно.
Необходимо официально согласовать некоторые изменения, заказав новый план квартиры в БТИ.
Не нужно согласовывать:
- Снос или возведение стен из легких конструкций.
- Перемещение межкомнатных перегородок.
- Расширение площади за счет внешних помещений (балкон).
- Снос или пробивка нового проема в несущих стенах.
- Перемещение инженерных коммуникаций.
- Снос всех перегородок в квартире или их перенос в другое место.
Переделка хрущевки: плюсы и минусы
Перепланировка 2 комнатной хрущевки имеет свои достоинства:
- интерьер приобретает современный вид;
- перенос перегородок может создать расширенное пространство;
- перепланировка сопровождается ремонтом, что поможет создать уникальный дизайн квартиры-хрущевки.
Перепланировка хрущевки имеет и свои минусы:
- перемещение или снос перегородок удлиняет процесс ремонта;
- если сооружать раздельные помещения – они станут меньше по площади;
- вариантов перепланировки квартиры из 2-х комнат не так много из-за ограниченной площади и особого расположения помещений;
- возрастает стоимость работ.
Возможности перепланировки
Хозяин может выбирать любой вариант перепланировки своей хрущевки, но нужно оставить в ней минимально необходимые функциональные зоны: для приготовления еды и сна.
Есть ряд типичных решений перепланировки 2 х комнатной квартиры хрущевки.
Соединение гостиной и кухни
Между «залом» и кухней убирается стенка. Она небольшая, не является несущей, и убрать ее не составит труда. Как правило, перегородка сделана из шлакоблока. В результате такого соединения в квартире создается вариант студии, одно открытое пространство объединяет кухню и гостиную. Пространства становится больше. Визуально объединение помещений дает больше света и воздуха.
Такое преображение хрущевки имеет свои плюсы:
- Ремонт соответствует модным тенденциям.
- Для приготовления еды есть отдельная зона, но за счет отсутствия перегородки хозяйка не отстраняется от семьи на время готовки.

- Квартира становится более функциональной, можно создать небольшую столовую.
- Перегородку можно сделать прозрачной или представить ее в виде этажерки с цветами, что добавит декоративности помещению.
Недостатки у совмещения тоже есть:
- Все запахи из кухни попадают в гостиную.
- При отсутствии двери на кухне невозможно уединиться.
Неплохо смотрится разделение зала и кухни барной стойкой, которую можно сделать как традиционной, так и дополнительным местом для хранения. В этом случае она будет сделана как узкий комод.
Способы совмещения показаны на фото:
Соединение раздельного санузла
Реально при изолированной планировке. Между ванной и туалетом просто сносится стенка, которая сделана из кирпича или шлакоблока.
У такого варианта переделки есть несомненные плюсы:
- Добавление площади позволит разместить в санузле стиральную машину.
- Визуально помещение перестанет напоминать кладовку.
- Можно поставить душевую кабину, тогда добавится еще немного пространства.
Минусы объединения ванны с туалетом следующие: - При наличии трех и более человек может образоваться очередь на посещение.
- Материальные и временные затраты.
Заметка! Перечисленные варианты перепланировки согласования в БТИ не требуют, если кухня оборудована электроплитой.
Разделение смежных помещений
Можно разделить смежные помещения определенными декораторскими решениями:
1. Если помещения расположены по типу «распашонка».
Можно убрать кладовку и на ее месте сделать часть коридора с дверью в маленькую спальню. Придется продлять существующий коридор дополнительной стенкой, в которой сделать еще один вход в зал. Тогда оба помещения будут раздельные, но большее потеряет пару квадратных метров площади.
Можно убрать кладовку и сделать боковой вход без сооружения дополнительного коридора.
Тогда появятся условно раздельные комнаты.
Заметка! При таком виде перепланировки существующий проем спальни закладывается кирпичом, шлакоблоком или зашивается гипсокартоном. Для экономии закладка проема может быть выполнена материалом от слома стенки в кладовке.
2. Если помещения расположены по типу вагончика.
Это трудный способ перепланировки хрущевки. Можно просто убрать стенку между помещениями или сделать ее сборно-разборной. Для семьи с детьми создание большого открытого пространства не подойдет. Такой вариант приемлем для молодой семьи или семьи без детей. В любом случае длинное открытое пространство будет смотреться некрасиво. В такой квартире можно встроить дополнительную зону гардероба посередине или сделать две отдельные комнаты, продлив коридор. При этом одно из помещений станет меньше по площади.
Обычно такие двущки-хрущевки имеют в дальней комнате встроенные шкафы, их можно убрать и соорудить большой гардероб между помещениями с входом из небольшого коридорчика. При этом они станут условно раздельными и будет где хранить вещи.
Сделать изолированные помещения можно путем сноса двери в большую комнату и продления коридора так, чтобы можно было сделать две двери друг против друга. Останется место для небольшой кладовки. Большее помещение в площади потеряет, а второе останется без изменений.
Можно дополнить преобразования сносом стенки между комнатой и кухней, тогда пространство превратится в гостиную-кухню с двумя окнами. Коридор, который вел к кухне, можно объединить с санузлом, тогда он увеличится примерно на 1,5 кв. метра. Единственным неудобством в такой квартире останется маленький узкий коридорчик, из которого будут выходить целых четыре двери (в санузел, две комнаты и кладовку).
Есть полезный и эффективный вид перепланировки хрущевки с помощью зонирования шкафами-купе или просто зонами хранения. Например, шкаф-купе двусторонний разделяет зал и спальню.
Одна открывающая часть выходит в зал, другая – в спальню. Одновременно происходит и разделение пространства, и добавление места для хранения.
Можно сделать место для хранения в виде узкого шкафа вместо перегородки между кухней и большой комнатой. Будет оригинально и полезно.
Кладовку в хрущевке-распашонке можно преобразить дверями-купе в современную гардеробную. Вход будет из спальни.
Фото перепланировки 2 комнатной хрущевки показаны ниже:
Перепланировка в зависимости от состава семьи
Существуют типы перепланировки двухкомнатной квартиры с целевым назначением.
Квартира по типу офиса или студии
В таком варианте может жить либо один человек, либо двое, но без детей. Все перегородки между гостиной, кухней и коридором убираются, объединяя пространство. Перегородка в спальню сдвигается внутри зала до балконной двери.
За счет такого преображения получается большое пространство студийного типа и увеличенная спальня с гардеробом.
Можно сделать небольшой кабинет, отделив его прозрачной перегородкой.
Плюсы такого варианта:
- Много места для приема гостей.
- Увеличенная спальня.
Важно! Перенос внутренней перегородки требует согласования в БТИ.
Квартира для семьи с маленьким ребенком
Также переносится перегородка, увеличивая спальню. Тогда там помещаются и родительская и детская кровати. Это допустимо для семьи с маленьким ребенком. Кладовка при этом убирается для увеличения пространства.
Плюсы такого варианта:
- Спальня становится больше.
- Дети быстро растут, и вариант является временным, позже придется выделить ребенку отдельное место для отдыха.
- Не остается места для хранения.
Хрущевка для семьи с одним-двумя детьми
Вариант предполагает, что стена кладовки будет перенесена вглубь спальни, чтобы образовались две небольшие комнаты вместо одной.
В этом случае из большой комнаты будет две двери, ведущие в маленькие комнаты. Гостиную можно совместить с кухней, чтобы образовать общее семейное пространство.
- Родители и дети получают свои собственные спальни.
- Общаться всей семьей можно в большом объединенном пространстве.
- Родительская спальня будет без окна.
- Маленькие комнаты станут еще меньше.
Такой вариант для семьи можно сделать иначе. Кладовка остается на прежнем месте и преображается в функциональный гардероб, который можно оснастить современными местами для хранения. В большой комнате убирается перегородка с кухней. Из коридора наоборот достраивается небольшая стенка, чтобы за ней могла поместиться двуспальная кровать. Импровизированная спальня отделяется от кухонно-гостиной зоны легкой перегородкой из матового стекла. При такой перепланировке дети получают свою комнату, а родители место для отдыха, отделенное от общего пространства.
Важно! Вышеуказанные целевые способы перепланировки возможны только для типа «распашонка».
Весьма сложно преобразовать двушку с изолированными помещениями, там можно только объединить ванную с туалетом. Хрущевку вагончиком сделать более приемлемой довольно трудно, но возможно и даже с увеличенным санузлом. Самый удобный вариант для перепланировки – это хрущевка «распашонка». Здесь можно предложить широкий спектр преобразований.
Преобразить малогабаритную квартиру путем перепланировки вполне реально. Вариант нужно выбирать, исходя из состава семьи, типа планировки, собственных желаний, материальных и временных ресурсов. Перепланировка и дизайн двухкомнатной хрущевки могут стать увлекательным творческим процессом.
Кто из нас не жил в квартирках с тесными прихожими, маленькими кухнями, крошечными санузлами и неудобными по расположению комнатами? Миллионы семей до сих ютятся в таком жилье, стремясь оптимизировать в нем каждый квадратный сантиметр.
Перепланировка 2 комнатной хрущевки станет самым смелым и кардинальным решением в этой задаче.
Введение
Маленькая площадь, конечно, доставляет определенные неудобства. Зато стоит недорого, и представляет собой отдельное жилье с раздельными комнатами, что неоценимо для молодых семей со стартовыми финансовыми возможностями. К тому же существуют десятки способов преображения тесных метров в просторный, стильный и современный дом.
Результат частичного сноса перегородок
Даже в 45-метровой хрущевке можно воплотить любые дизайнерские задумки, приложить фантазию и превратить помещение в уютную и модную квартирку, где каждый уголок будет функционально оправданным. Применение технологических приемов позволит эргономично разделить площадку, зонально выделить важные области, не утяжелив общий интерьер. А еще придумано множество способов зрительного увеличения пространства за счет выбора грамотных стройматериалов и расцветок в отделке.
Этот этап зачастую задерживает собственников из-за пугающей волокиты и кажущейся трудности. Однако, если с умом взяться за дело, обратиться за помощью к специалистам и настроиться на позитивный лад – процедура пройдет легко и безболезненно.
Что такое хрущевка
Откуда взялось такое неблагозвучное название? Оно совсем не ассоциируется с хорошим жилищем, за которым стоит большая очередь. А ведь когда-то получение такой квартиры считалось верхом удачи, а событие отмечалось масштабнее, чем свадьба или новый год.
Один из домов с тесными квартирками
В период с 50-80 годы прошлого века было отстроено более трех сотен миллионов квадратных метров такого жилья. Это квартиры в однотипных панельных или кирпичных строениях, чаще всего 4-х или 5-этажных.
Именно его фамилию и трансформировали в название тех советских новостроек. Тогда презрительного отношения к небольшим квартирам с отдельной кухней и туалетом не было.
Люди с удовольствием выезжали из коммуналок в собственные площади и радовались невероятному простору.
Варианты расположения комнат
Светлые оттенки в декоре
Несмотря на сотни отстроенных квартир, планировка в них всегда одинаковая с площадью от 40 до 48 м². Единожды утвержденные планы применялись по всему СССР на территории 16 государств. Все хрущевки объединяют маленькая площадь кухни (6-8 м²), санузлов (2-3 м²), узкие коридоры, небольшие комнаты (либо одна большая, вторая крошечная) и низкие потолки (2,5-2,7 м).
Выделяют несколько видов планировок, причем народ для каждой из них придумал «бытовое» название.
«Распашонка»
Чертеж плана напоминает детскую рубашку, где рукава – это одинаковые по размеру комнаты, а в центре располагаются кухня и санузлы. Вход в комнаты осуществляется из прихожей, из нее же попадают в ванную и туалет, а в кухню ведет узкий коридор. Это самый удачный вариант расположения спальни и гостиной, которые полностью изолированы друг от друга;
Зонирование кухонной зоны в студии
Самым распространенным вариантом перепланировки в такой квартирке является создание кухни-студии. В результате получается просторная гостиная-столовая без узкого коридорчика и лишних стенок. Также востребовано объединение санузлов, что делает их площадь более просторной и избавляет небольшой коридор от обилия дверей.
«Мини-улучшенка»
Это квартира с узким горизонтальным коридором в который выходят все двери остальных помещений. Обычно вход налево (или направо) приводит в большой и просторный зал, а прямо напротив входной двери располагается небольшая спальня. Правее по этой же стенке находится вход в кухню, а справа, напротив зала, располагаются кладовка, туалет и ванная.
В такой квартире обычно увеличивают площадь кухни за счет демонтажа кладовой и сдвига на ее место санузлов с их объединением.
Комнаты итак изолированные, что очень удобно для семей с детьми. Любители больших пространств сносят перегородку между кухней и спальней, превращая эту площадь в огромную гостиную.
«Книжка»
Это самый неудачный вид планировки с небольшой площадью и смежными комнатами, одна из которых проходная. Из маленькой прихожей вы попадаете в небольшой зал, а из него ведет вход в примыкающую комнату, которая по площади совсем крошечная. Направо из прихожей ведет узкий коридор в кухню, с дверями в туалет и ванную.
«Книжка» с кухней-студией
В спальне иногда присутствует встроенный шкаф, который многие предпочитают демонтировать, чтобы увеличить размер комнатки. Чтобы изолировать это помещение, многие жертвуют метрами зала, продлевая прихожую вплоть до спальной стены, где прорубается проход.
В такой квартире тоже можно сделать кухню-студию, или объединить санузлы. Если плита газовая, тогда потребуется установить раздвижные перегородки с плотным притвором.
«Трамвай»
В такой квартире обычно обе комнаты достаточно большие, что дает простор и почву для фантазии дизайнерам. Если из прихожки повернуть налево (или направо), вы попадаете в коридор до кухни, из которого ведут двери в санузлы. Напротив входной двери находится вход в гостиную, а из нее направо (налево) в спальню.
Квартира типа «трамвай»
Одинаковые прямоугольные жилые комнаты при взгляде сверху напоминают вагоны трамвая. Как и в предыдущем варианте, здесь можно возвести перегородку, продлив коридор на всю ширину зала, завершив его шкафом-купе. Так помещения станут изолированными, а в квартире появится вместительная кладовая.
По желанию здесь обустраивают студию, с частичным или полным сносом стенки между гостиной и кухней. В этом случае отпадает необходимость изолировать спальню. Вход в санузлы переносят в прихожую, а на поверхность, где раньше были их входы, обычно вешают телевизор или устанавливают мебельную стенку.
Правовые аспекты перепланировки
Перед началом работ нужно хорошо разобраться, что разрешается, и что запрещено при перепланировке. Несмотря на то, что перегородки в хрущевках не выполняют несущих функций, переносить их в куда вздумается не разрешается.
Согласование изменений внутреннего плана
- Объединение туалета и ванной комнаты. Захват части площади коридора в их пользу
- Расширение комнаты за счет коридора
- Объединение кухни с жилой площадью (если там установлена электроплита)
- Перенос дверных проемов в стенах без несущей функции
- Демонтаж антресолей, кладовых, встроенных шкафов
- При утеплении лоджии допускается демонтаж части стены над окном
- Объединение кухонной зоны с газопроводом или проточным обогревателем с жилой комнатой (возможна установка пластиковых или деревянных перегородок)
- Увеличение площади кухни, коридора и санузлов за счет жилых метров
- Нельзя полностью сносить внешнюю стену даже при капитальном утеплении балкона
- Действия, которые исключат доступ к инженерным коммуникациям
- Демонтаж вентиляционных отсеков
- Объединение двух квартир на соседних этажах путем частичного или полного демонтажа перекрытия между ними
- Пристраивание к квартирам на 1 этаже балконов и иных помещений
- Постройка межкомнатных стенок из тяжелогрузных материалов
Популярные варианты перепланировок
Рабочее место в гостиной
Перед началом осуществления глобального ремонта продумайте всей семьей какие дополнительные зоны должны получиться в результате. При правильном расставлении акцентов в декоре можно даже в одной комнате сделать несколько разных по функционалу областей:
- В гостиной выделить уголок для мини-кабинета
- В спальне или зале оборудовать школьное рабочее место
- Выделить площадь с большим столом, которая будет играть роль столовой
- В объединенной с гостиной прихожке отделить область для обувной полки с зеркалом и крючками
Обратитесь к опытным проектировщикам, они помогут на 100% обыграть каждый метр площади.
Дизайнеры интерьера учтут все пожелания жильцов и создадут идеальный план вашей будущей квартиры. Итак, рассмотрим варианты перепланировок, которые пользуются спросом именно в хрущевках.
Объединение кухни и гостиной
Это один из самых популярных вариантов перепланировки, после объединения ванной и туалета. Метод позволяет увеличить площадь кухонной зоны, которая в хрущевках катастрофически небольшая. При сносе перегородки между гостиной и кухней, к полученной площади добавляется еще и коридор, который к ней вел.
Прекрасный интерьер гостиной
Таким образом получается многофункциональное помещение площадью в полквартиры, которое легко зонировать на рабочую зону по приготовлению пищи, обеденную площадку, гостиную и даже рабочее место или мини-кабинет. Дизайнеры советуют отделять зоны легкими перекрытиями, переносными ширмами, барной стойкой, а угловые диваны и арки позволят выделить место отдыха.
Объединение кухни и балкона
Кухоньку в 6 квадратов можно слегка увеличить за счет располагающегося в ней балкона, если таковой имеется. Лоджию необходимо остеклить и утеплить, чтобы в холодный период там поддерживалась комнатная температура. Сюда можно вынести холодильник, оборудовать шкафы для хранения круп, бытовой техники, а подоконник переоборудовать в барную стойку.
Увеличение гостиной за счет уменьшения площади спальни
Эргономичный гарнитур для спальни
Если перенести перегородку между жилыми комнатами вглубь меньшей из них, гостиная станет более просторной. Предварительно устанавливают допустимый предел, чтобы в спальне поместилась кровать и проход к ней. При умелом дизайнерском оформлении и правильном выставлении света такая комнатка станет уютной и комфортной.
На такой шаг могут решиться семьи без детей или те, кому не нужно уединение. Такая перепланировка предполагает снос всех внутренних стен в квартире и превращение ее в большое сквозное помещение.
Пластиковые раздвижные конструкции или легкие ширмы здесь выполняют роль перегородок.
Такой вариант считается очень смелым и современным. Дизайн, оформленный в минималистическом стиле, в жанре хай-тек, добавит помещению шарма и уникальности.
Изменения в санузлах
Согласно изначальным генпланам санузлы в хрущевках всегда раздельные, располагаются смежно через стенку. На ванну выделяется 3 м², на туалет 2 м². Этой площади катастрофически мало для нормального и удобного обустройства, поэтому санузлы часто расширяют за счет прихожей, если планировка последней позволяет.
Для удобства многие переносят двери из кухонного коридора в прихожку или наоборот. Популярным видом перепланировки является объединение ванной и туалета.
Во время сноса стен целесообразно заменить коммуникации трубопровода, особенно если они старые. Душевую кабину лучше купить угловую, она просторнее, но занимает меньше места. Шкафчики и полочки подберите подвесные, чтобы не загромождать пространство под раковиной.
Избавляемся от узких коридоров и глухих прихожих
Просторные прихожки сегодня гораздо актуальнее тесных и длинных коридоров, которые присутствуют практически в каждой хрущевке. Самым модным вариантом является снос всех перегородок и объединение гостиной с коридором. В этом случае при входе в квартиру жильцы сразу попадают в общую жилую комнату.
Убранные лишние перегородки
Часто в прихожих комнатах располагаются встроенные шкафы, которые занимают много места. Их можно снести, чтобы освободить пространство. Точно также поступают с кладовками и нишами.
Демонтаж антресолей, кладовых, встроенных шкафов, ниш
Главной загвоздкой в таких демонтажных работах является то, что одна или несколько стенок в подсобных помещениях всегда примыкает к несущей плите.
При разборе встроенного шкафа или антресоли действуйте последовательно:
- Сначала освободите дверцы от петель
- Далее уберите дверные каркасы и навесы
- Аккуратно распилите деревянные планки и отделите их от конструкции
- Уберите крепления и освободите стену
Способы визуального увеличения пространства
Используйте как можно больше света и зеркал
- В маленьких спальнях установите кровать на невысоком подиуме вместо ножек.
Помост декорируют подсветкой, что придает помещению дополнительный уют. Такая мебель визуально расширяет пространство - Не затемняйте потолки. Отличным решением станет монтаж натяжных потолков, так как их глянцевая поверхность визуально увеличивает высоту стен. Для этой же цели попробуйте создать разноуровневый потолок с дополнительной подсветкой
- Вместо обычных створчатых шкафов заказывайте шкафы-купе. Они занимают меньше места, смотрятся современно и модно. Кстати, если сделать дверки зеркальными, вы зрительно прибавите место в комнате
- Не загромождайте помещение мебелью. Ограничьтесь минимальным набором. Не утяжеляйте стены полочками, рамками и картинами.
- Рельефная штукатурка, декор под камень или дерево, а также темные отделочные материалы зрительно уменьшают площадь комнаты. Если очень хочется имитацию кирпичной кладки, оформите ею только часть стены в определенном месте
- Оптимальными расцветками считаются светлые, максимально приближенные к белому цвету. Используйте для декора пластик, стекло, зеркала и блестящие металлические элементы. Обои подберите без крупного принта, неброские, с мелким рисунком
- Зеркальные стены, светлые колонны и другие фигурные элементы гипсовой отделки помогают создать оригинальный и уникальный интерьер
Преимущества глобального ремонта с демонтажем стен
Не стоит бояться затевать грандиозные ремонтные работы со сносом перегородок и переделкой общего плана квартиры. Ведь в результате вы получите просторную площадь в комфортабельной квартире. Если не решаетесь на крупные изменения, просто избавьтесь от встроенного шкафа, уберите антресоль, объедините кладовую с ванной.
Снос встроенного шкафа
Перепланировка полностью изменит облик и атмосферу вашего жилища. Здесь снова запахнет новой краской и свежей штукатуркой.
Полностью уйдут старые запахи, которые годами скапливались в перекрытиях.
Обновленные поверхности будут радовать глаз современной отделкой. Если использовать светлые оттенки, потолок будет казаться выше, а стенки шире. Не забудьте про гармоничный текстиль, который поможет зонировать пространство, завершить интерьер комнаты, сделать акцент на отдельных его элементах.
Вариант стильного оформления квартиры
Перепланировка двухкомнатной квартиры – задача вполне посильная для новичка в строительстве. Однако необходимо тщательно изучать правовые и технические моменты каждого вида деятельности. И обязательно консультироваться с опытными специалистами.
Помните, непродуманные действия могут привести к печальным последствиям. А грамотный подход подарит обновленную квартиру с комфортабельной планировкой. Пусть ваш дом станет уютным и удобным для всех домочадцев.
В завершение посмотрите видеоматериал с полезными рекомендациями по выбору лучшего метода расширения полезной площади в двушке:
ВИДЕО: Перепланировка хрущевки. Все особенности.
Перепланировка 2-х комнатной хрущевки: как эргономично разделить помещения и сделать маленькую квартиру просторной (20 Фото & Видео)
Для нас очень важна обратная связь с нашими читателями. Если Вы не согласны с данными оценками, оставьте свой рейтинг в комментариях с аргументацией Вашего выбора. Благодарим за ваше участие. Ваше мнение будет полезно другим пользователям.
Оцените статью: Поделитесь с друзьями!Дизайн 2 х комнатной квартиры в кирпичном доме
Серо-коричневая гамма не будет казаться скучной, если разбавить ее яркими акцентами.
Привлеките для отделки интерьера нетрадиционные материалы, и ваш дом всегда будет дарить хорошее настроение.
На фото:
Дизайн двухкомнатной квартиры построен на классическом сочетании черного и желтого цветов. Основным декоративным элементом является глянцевая поверхность стекла, которое присутствует и в гостиной, и на кухне.
Сведения о квартире: двухкомнатная квартира площадью 66 кв. м. в 9-этажном кирпичном доме г. Саратова.
Владельцы квартиры: деловая женщина, руководитель предприятия.
Пожелания клиентов: функциональный и красивый интерьер.
На фото:
План двухкомнатной квартиры в кирпичном доме.
Дизайн двухкомнатной квартиры представляет собой набор необычных дизайнерских решений. Основная гамма, на которой построен интерьер, это серо-черно-коричневые оттенки. Поэтому небольшие детали теплого желтого цвета смотрятся особенно ярко. Желтым акцентом выделяется кресло в гостиной и небольшой диванчик в кухне. Но кроме интересной цветовой гаммы, дизайнер решилась на смелый шаг. В гостиной две стены покрыты цельным черным стеклом. Большая глянцевая плоскость красиво отражает свет от встроенных в подвесные полки лампочек, а также является отличным фоном для картин, декоративных аксессуаров и телевизора. Из этого же стекла сделаны и фасады кухни.
Чтобы приспособить двухкомнатную квартиру под нужды новой хозяйки, перепланировка практически не потребовалась. Небольшие изменения коснулись санузла, площадь которого немного увеличили за счет кухни, и спальни, где была организована гардеробная комната.
Система хранения дополнена вместительными шкафами в гостиной. Стеклянные дверцы состоят из прозрачных и непрозрачных частей, что позволяет одновременно и выставить красивые вещицы, и спрятать небольшой беспорядок. В прихожей тоже сделан небольшой шкаф для верхней одежды. Зеркальные дверцы визуально расширяют пространство прихожей.
Эту же цель преследует и открытый дверной проем, ведущий в гостиную.
Смелость дизайнера проявилась и в цвете потолков, которые выкрашены в светло-серый тон (это делает пространство каждой комнаты уютным), и в сочетании разных по форме и стилю светильников, и в объединении в гостиной дивана и кресла из разных коллекций. Эти приемы создают в квартире видимость легкого творческого беспорядка.
В прихожей в нишу встроен шкаф для верхней одежды и небольшой комод для мелочей. Зеркальные дверцы зрительно расширяют маленькую прихожую.
Основным источником света в прихожей являются встроенные светильники над тумбочкой. Учитывая, что их свет еще и отражается в зеркале при входе, этого вполне достаточно для небольшого помещения.
Обтекаемая форма дивана и кресла поддерживает форму круга, заданную журнальным столиком и воздушными светильниками. Гладкая поверхность стены, покрытой матовым стеклом, — идеальный фон для любых дизайнерских экспериментов.
Напротив мягкого уголка расположились два вместительных шкафа, посередине — место для телевизора, который крепится на стеклянную поверхность.
Композиционное оформление ТВ-зоны — ее обрамляют симметрично расположенные шкафы — сразу притягивает взгляд. Блики, мерцающие на поверхности стекла, настраивают на романтичный лад.
Кухонная столешница, подоконник и барная стойка образуют единую плоскость. Для большего удобства к стойке крепится круглый столик, который легко придвинуть или убрать от дивана.
Часть кухонных фасадов также отделана черным стеклом. Срезанный угол комнаты и отсутствие дверного проема задают помещению необычную форму и ощущение свободы. Стена кухонного фартука выложена плиткой с имитацией мозаики.
Система освещения в спальне состоит из люстры и встроенных по периметру комнаты точечных светильников. Круглое зеркало, разбитое на множество кружочков, играет бликами.
Чтобы не загромождать небольшое пространство спальни, мебели здесь минимальное количество, а все лишнее спрятано в отдельную гардеробную комнату. Чтобы не отнимать у спальни много места, угол гардеробной срезали.
Стену напротив гардеробной комнаты декорировали высокими зеркалами. Это очень удобно, ведь одеваясь утром на работу, хочется видеть себя в полный рост. К тому же этот прием зрительно расширяет небольшой проход.
Планировка в 2 комнатной хрущёвке — Хочу ремонт! Своими руками
Многочисленные собственники жилья в старом фонде часто жалуются на минимум площади для постоянной комфортной жизни. Отрицательные отзывы частенько звучат в адрес жилья, возведенного во времена Генсека Хрущева. Квартиры-хрущевки малогабаритны, отличаются неудобной конфигурацией, что не дает возможности обеспечить нормальный повседневный быт.
Планировка в 2-комнатной хрущевке – оптимальный вариант, позволяющий сделать жилплощадь функциональнее. Воспользовавшись советами опытных дизайнеров, из маленькой, неудобной квартиры можно сотворить настоящую «конфетку», жилье, возвращаться в которое с удовольствием захочется каждый вечер.
Какие бывают 2-комнатные квартиры хрущевки
Имеющиеся двушки могут незначительно отличаться по планировочным решениям и квадратуре:
- «Книжки». Это двухкомнатные хрущевки с общей площадью 42-43 м2, где каждая комната по плану идет последовательно друг за другом.
- «Трамвай». Это двушка с площадью 47 квадратов со смежными комнатами, одна из которых углового типа.
- «Бабочка». В такой двухкомнатной квартирке кухня располагается по плану ровно посередине, а комнаты – по бокам. Двушка предусматривает раздельный санузел. Общая площадь — 46 квадратов.
- «Улучшенная». Двухкомнатная квартира такой планировки не имеет проходной комнаты. Санузел также разделен на ванную и туалет, кухня обладает маленькими размерами. Общая квадратура – 43-45 м2.
Располагаться жилье времен Хрущева может как в кирпичном, так и крупнопанельном доме.
Варианты перепланировки двухкомнатной хрущевки: проекты
Самое главное преимущество типовых двухкомнатных хрущевок – возможность быстрой, беспроблемной перепланировки. Можно, как «сместить» стены, так и объединить смежные комнаты для формирования одного большого пространства. Внутренние перегородки в таких жилплощадаях не являются «несущими», поэтому легко поддаются различным трансформациям, достаточно получить соответствующее разрешение в специальных инстанциях.
Как грамотно сделать перепланировку? Существует масса примеров, готовых чертежей, схем в интернете. Среди самых популярных вариантов:
- Отличительная особенность всех хрущевок с ремонтом или без него – крошечные кухни и санузлы. Одно из популярных решений по перепланировке – увеличение кухонного пространства путем его объединения с комнатой, расположенной по соседству (она чаще всего проходная). В результате получается просторная, комфортная и очень удобная кухня-гостиная.
- Скромную двушку с простым современным дизайном можно трансформировать в отличную студию, убрав все внутренние перегородочные конструкции. Далее получившееся пространство разделяется на функциональные зоны посредством создания искусственных перегородочных конструкций, а также использования в одном помещении разных отделочных материалов на стены и пол. Такая евродвушка в кирпичном или панельном доме, превращенная в студию, прекрасно подойдет парам без детей.
- Следующий вариант по перепланировке, фото которой можно также отыскать на просторах сети, предполагает смещение стен с сохранение двух изолированных друг от друга комнат (угловые). Чаще всего такой прием используется для расширения пространства кухни.
- «Улучшенную» планировку 2х-комнатного жилья можно сделать еще более функциональной. Для этого кухня объединяется с одним из жилых помещений. Получившееся пространство разделяется ровно пополам. Такой пример перепланировки подойдет для пар с детьми, любящих принимать гостей, которые сумеют с комфортом размещаться за обеденным столом в уютном зале.

Популярные стили
Решили перепланировать двушку-хрущевку, рассматриваете разные варианты перепланировок? Не забудьте подобрать стиль, в котором будет оформлено обновленное жилье в кирпичном или панельном доме:
- Хай-тек. Данное стилевое направление основывается на использовании современных новшеств с достижением высокой функциональности и престижа. Хай-тек – это обязательно использование пластика, металлов, стекла, приглушенных, монохромных цветовых решений.
- Скандинавия. Все мы знакомы со скандинавским стилем благодаря известному магазину Ikea. Данное стилистическое направление отличается экологичностью в отделочных материалах, практичностью в ее полнофункциональных конструкциях и решениях. Здесь преобладает светлая гамма – белый, бежевый, серый и коричневый. Яркие акценты расставляются в используемых для декора аксессуарах.
- Классика. Это одно из самых актуальных решений для хрущевок – натуральные, природные материалы, простая, но изысканная мебель из дерева, сдержанные, но изысканные цветовые решения. Классический стиль – сочетание красоты и практичности.
- Кантри. В этом стиле преобладают природные цвета во всех их вариациях. Комнаты в кантри могут быть оформлены с уклоном в прованс с искусственно состаренным мебельным гарнитуром, или в американское направление, где превалирует удобный современный мебельный гарнитур, отделанный натуральными материалами.
Выбор только за вами. Выбирайте проекты, смотрите планы, черпайте идеи по дизайну, сделайте свою хрущевку намного комфортнее, удобнее и функциональнее.
Типовые планировки. 2-комнатные квартиры. — АН КВАДРАТНЫЙ МЕТР Харьков
Типовые планировки. 2-комнатные квартиры. Харьков.
2- комнатная квартира, 9-этажный дом («Чешка»)
Чешки расположены в 9 и 12-эт. домах.Материал постройки дома — панель. Площадь 2х комнатной чешки — 44/27/6,7 ;
2- комнатная квартира, 9-этажный дом («Чешка», двухбалконка)
Материал постройки дома — панель.
По площади превосходит обычную чешку, 2 балкона. Площадь — 48,7/30,8/7,1 ;
2- комнатная квартира, 9-этажный дом («Полька»)
Материал постройки дома — панель.
Площадь — 46,4/29/6,5
2- комнатная квартира, 4-этажный дом («Американка»)
В послевоенные годы Американками активно застраивался район ХТЗ. Отличительная черта американок — кухня в коридоре. Площадь — 38/27,7/4,7 м2
2- комнатная квартира, 5-этажный дом («Хрущевка» односторонняя)
2 х комн хрущевка односторонняя — все окна квартиры выходят на одну сторону. Материал постройки дома — кирпич. Площадь — 44,5/27,5/5,3
2- комнатная квартира, 5-этажный дом («Хрущевка»)
Материал постройки дома — кирпич. Расположены в основном, в районе Холодная гора. Площадь 2х комнатной хрущевки на Холодной горе больше, чем обычной хрущевки — 44,5/27,8/6
2- комнатная квартира, 5-этажный дом
Планировка 2х комнатной квартиры со смежными комнатами. Площадь — 43,5/29/5,7
2- комнатная квартира, 5-этажный дом
Кирпичные пятиэтажки, район — поселок Жуковского, Академика Проскуры. Площадь — 41/26,6/5,5 м2
2- комнатная квартира, 5-этажный дом
Одна из типовых планировок 2-комн. квартир , с большой кухней. Площадь — 57,9/36,1/8,7
2- комнатная квартира, 5-этажный дом
Одна из типовых планировок 2-комн. квартир , находятся преимущественно на Салтовке. Материал постройки дома — панель. Площадь 46,5/32,4/6 м2
2- комнатная квартира, 5-этажный дом («Сталинка»)
Квартиры улучшенной планировки с высокими потолками.
Один из различных вариантов планировки двух комнатной сталинки. Материал постройки дома — кирпич. Площадь — 53,9/31,7/8,4 м2
2- комнатная квартира, 16-этажный дом
Большая площадь как общая,так и кухни. Два балкона. Площадь — 50/30/8,4
2- комнатная квартира, 16-этажный дом
Планировки 2х комнатных квартир в 16 этажных домам по улицам Мира, Клочковская, Познанская. Площадь — 45/31/5,2
2- комнатная квартира, 16-этажный дом
Пример еще одной планировки. Площадь — 50/28,7/8,9
2- комнатная квартира, 14-этажный дом
С лоджией вдоль кухни и комнаты. В Харькове, в основном, 14 этажные дома улучшенной планировки. Материал постройки дома — кирпич. Площадь — 57,6/32,8/7,1
2- комнатная квартира, 9-этажный дом
Улучшенной планировки. Материал постройки дома — кирпич. Площадь — 47/28/7,4
2- комнатная квартира, 6-этажный дом (2-балконка)
Квартиры улучшенной планировки с двумя балконами и большой кухней. Материал постройки дома — кирпич. Площадь -75,1/46,7/9,2
2- комнатная квартира, 9-этажный дом
Улучшенная планировка с кухней посредине. Площадь — 51/30,7/8,3
2- комнатная квартира, 9-этажный дом
Материал постройки дома — кирпич. Площадь — 45/27,2/7,5
2- комнатная квартира, 9-этажный дом
Квартира улучшенной планировки, торцевая, лоджия 6м.кв. Площадь — 53/30/8
2- комнатная квартира, 9-этажный дом
Материал постройки дома — кирпич.
Лоджия на 2 комнаты. Площади — 42,1/26,5/5,5
2- комнатная квартира, 9-этажный дом
Дома постройки 1960-х годов с раздельными комнатами. Площадь 43,7/27,7/5,3
2- комнатная квартира улучшенной планировки.
Материал постройки дома — кирпич. Площадь 52,5/32/9,2
Типовые планировки. 2-комнатные квартиры.
Агентство недвижимости Квадратный метр — Харьков. Всегда рады помочь Вам!
Более подробную консультацию Вы можете получить у нас в агентстве, по адресу:
Планировка двухкомнатной квартиры — 110 фото красивых интерьеров и типовых проектов
В квартирах и частных домах дизайнеры часто применяют зонирование. Гостиная с кухней хорошо совмещается. Две комнаты, объединенные между собой, выглядят просторно, к тому же такая планировка сделает пространство уютным.Можно обновить оформление, воплотить интересные идеи или повторить дизайн, увиденный в журнале, передаче или на фото в интернете. Стиль в гостиной-кухне бывает разным, и его выбор может превратиться в увлекательное занятие.Прежде, чем объединить помещения, оформители советуют учесть основные правила, создать проект, подобрать цвета.
Содержимое обзора:
Зонирование
Художники-оформители не советуют поддаваться веяниям моды и копировать дизайнерские идеи без учета габаритов, расположения и других нюансов. Перед началом планировки и расстановки мебели продумывают каждую деталь.
Есть несколько простых правил, которых советуют придерживаться мастера:
- Пусть в комнате будет естественного освещения. Для этого сносят лишние стены (кроме несущих).
- Если комнаты в квартире небольшие (12 кв м или 16 кв м), планировка кухни, совмещенной со столовой, станет правильным решением.
- Если вентиляционная система спланирована неправильным образом, запах еды будет распространяться в квартире.

Перегородки
Интерьер кухни и гостиной начинают продумывать со стыковки двух зон.Вот некоторые из способов и предметов, которые разграничивают пространство:установка барной стойки;кухонный остров;большой стол;монтаж невысокой перегородки.Дизайнеры советуют устанавливать широкую стойку, поскольку за ней можно будет сидеть, как за обычным столом, а высокие стулья вполне подойдут для всей семьи.
Однако в комнатах небольшого размера (16 кв м) устанавливают узкие стойки.Кухонные острова удобны в использовании, однако подходят только для больших кухонь-столовых (25 кв м или 30 кв м). Капитальные невысокие перегородки ставят только если заранее решено, для чего их будут использовать (к примеру, как подставку под телевизор).
Отделка
Если в кухне, совмещенной с гостиной, будет одинаковое напольное покрытие, то нет особых правил для проведения работ. При комбинировании разных материалов заранее учитывают, где они будут стыковаться.
Например, ламинатное покрытие образует некрасивые стыки с плиткой. Главное, чтобы пол был ровным без изогнутых состыковок, поскольку они будут заметны.
Кухонные шкафчики, закрепленные на стенах, должны достигать потолков. В некоторых случаях мастера «опускают» потолок гипсокартоном.
Предметы мебели
Несколько примеров меблировки кухни, объединенной с гостиной:
- 1. Диван. Он становится предметом, который зонирует пространство. Диван ставят спинкой к тому месту, где готовят еду. В небольшие комнаты (менее 20 кв м) ставят уголок, который располагают у стены, установленной перпендикулярно или параллельно от кухни.
- 2. Гарнитур. По мнению дизайнеров, минималистичные модели без вычурных деталей смотрятся современно. Сервиз, вазы или бокалы ставят на открытой полке. Для них можно купить модную витрину. Мебель ставят возле стены. Если пространство большое (20 кв м, 25 кв м или 30 кв м), то в центральной части можно установить остров, в котором есть и отделы для кухонных приборов.

- 3. Комплект мебели. Стиль должен сочетаться с оформлением обеих комнат. В малогабаритных помещениях хорошо смотрится компактный столик и стулья, сделанные в из прозрачного материала или окрашенные в светлые цвета. В интерьер гостиной можно поставить стол с круглой столешницей. В просторных помещениях комплект устанавливают возле стенки или в центральной части. Здесь будет хорошо смотреться вытянутый обеденный стол прямоугольной формы.
Многоуровневый пол
Для зонирования пространства мастера монтируют полы на разном уровне. Они советуют устанавливать подиум для разграничения кухни и столовой. Этот вариант считается одним из самых практичных, поскольку, кроме прочего, у хозяев дополнительное свободное место, где можно что-нибудь прятать.Для этого удобно использовать коробки или ящики. Хорошо будут выглядеть плетеные корзиночки. Но такое пространство может оставаться свободным.
Для подиумов подбирают надежные материалы, которые могут выдержать большие нагрузки. Обычно строители делают деревянные или металлически подиумы.
Однако такую конструкцию не стоит делать, если в семье есть маленькие дети, так как подиум может стать для него препятствием. Кроме того, можно использовать различные покрытия для пола.
Они будут зонировать пространство между гостиной с кухней и защитят подиум от повреждений. К пример, в кухонной зоне укладывают плитку, в столовой — ламинатное покрытие. Главное подобрать цвета и фактуры, правильно сочетать отделку.
Стили
Есть много актуальных направлений и дизайнерских идей. Кухня гостиная в современном стиле выглядит просто и минималистично.
При этом необязательно строго придерживаться какого-то стиля, можно взять за основу его основную идею и грамотно обыграть ее аксессуарами и другими деталями.
Скандинавский
Этот стиль вошел в моду несколько лет назад, но до сих пор не теряет своей актуальности. Его практичность и европейская элегантность хорошо подходит для гостиной в городской квартире или доме.
Можно добавлять яркие акценты, например, текстиль разных оттенков.Основа для скандинавского стиля – отделка белого и серого цвета, деревянные детали. Чтобы украсить пространство подойдут розовые, голубые или охристые элементы.
Лофт
В этом году стиль остается востребованным. Его часто используют для того, чтобы обустроить кухни, совмещенные с гостиной. Такое объединение дает больше свободного места, что только подчеркнет все детали лофта.
Сегодня такое определение, как «классический стиль», дизайнеры применяют все реже. Лофтом – любой дизайн интерьера, в котором не скрыты, а подчеркнуты разные технические элементы.
Например, стилисты обыгрывают кладку из кирпичей, провода или бетонные стены. На фотографиях хорошо показано, как удачно это может выглядеть гостиной, которая объединена с кухней.
Для лофта подбирают шероховатые и неоднородные поверхности, грубые материалы. В квартирах, оформленных в таком стиле, устанавливают настенные светильники. При этом свет направляют вдоль стенок.
За счет этого тени падают так, что неравномерные поверхности выглядят объемными. Первое время к лофт относились с опаской, но он быстро стал популярным. Дизайнеры не скрывают материалы для отделки и даже их подделывают. Чтобы имитировать бетонную поверхность и подтеки, используют декоративную штукатурку.
Минимализм
Минимализм станет хорошей основой для другого современного дизайна в гостиной, совмещенной с кухней. При этом в комнатах поддерживают идеальный порядок, прячут лишние вещи. Чтобы выдержать минимализм в кухне, понадобятся шкафы и ящики, в которые можно поставить посуду и другую кухонную утварь.
Неоклассика
Даже в популярной музыке есть отголоски старинных мотивов. То же можно сказать и о дизайне, в котором классические детали обрамляют в модное оформление.
Для этого стиля характерны симметричные линии, зеркала в рамах, арочные проемы, античные акценты.
Все это дополнено модными отделочными материалами и аксессуарами. В неоклассике сочетаются изящные современные детали и традиционные сочетания.
Прованс
Название этого направления пошло от региона на юге Франции. Даже маленькая кухня гостиная, оформители которой вдохновились французской эстетикой, наполнится теплотой и уютом.
Главное, чтобы в ней было много дневного освещения, текстиля с романтичными принтами, цветочных орнаментов. Столовая в стиле «прованс» выдержана в пастельных оттенках. Предметы мебели могут быть винтажными или искусственно состаренными. Однотонные стены будут контрастировать со шторами в крупную клетку.
Дверцу в гарнитуре кухонной зоны иногда заменяют занавесками, сделанными из того же материала, что и скатерть. Хорошим дополнением станут вазочки и фигурки, глиняные горшки, детали из кованого металла и ленты.
Сочетания цветов
Стилисты советуют учесть такие нюансы:
- направление в интерьере;
- сочетание оттенков;
- освещенность.
Гораздо проще выбрать палитру, если стиль для кухни с гостиной ужу подобран. Например, для неоклассики и прованса характерны свои сочетания. В классическом интерьере дизайнеры сочетают пастельную гамму, бледные цвета, которые слегка разбавлены темными оттенками.
Во французских деревенских домиках часто можно увидеть нежно-голубые, розовые, фисташковые цвета. Ар-деко оформители составляют из предметов и отделочных материалов черного и белого, иногда — бежевого и коричневого или серебристого и черного цветов.Главное выбрать оттенок для стен. Белый станет универсальным, он расширит пространство, а позднее можно закрасить их любой краской.
Однако в зоне для приготовления пищи белизна перестает выглядеть свежо.Более практичными будут бежевые или серые оттенки. Этот фон подчеркнет другие цвета. В монохромном интерьере дизайнеры советую клеить обои необычного цвета или с фотопринтом.
Водостойкие поверхности легко моются, поэтому советуют моющиеся обои.
Расцветка мебели перекликается с деталями и аксессуарами, будь то подушки для дивана, шторы или другие предметы.
Другие советы
Гостиная с кухней может быть совмещена и декорирована с разными недочетами. Важно просчитать и предвидеть все заранее.Оформители и мастера делятся советами, которые помогут избежать проблем при ремонте и обустройстве:
- О того, насколько детально будет составлен проект, зависит результат. Как ни странно, стоит учесть рост близких и родных. Также советуют просчитать примерное количество возможных гостей.
- Избавиться от запаха пищи можно, если установить сильную вытяжку или систему вентиляции. Небольшие модели больше подходят хозяйкам, которые мало готовят.
- Если в гостиной планируется спальное место, то важно, чтобы звон приборов и другой кухонной утвари не был слышен. Бесшумные посудомоечные машины и прочая техника придутся кстати.
Кроме того, можно установить раздвижную дверь и поставить перегородку со звукоизоляцией. Если есть чувствительность к ультрафиолету, хозяева вешают плотные занавеси из светонепроницаемой ткани.
Если бытовые приборы не подходят к направлению интерьера, их прячут за мебелью или убирают в кухонные шкафчики.
При установке светильников и ламп руководствуются несколькими критериями. Важно, чтобы свет равномерно падать на все пространство. Особенно яркое освещение предпочтительно в кухонной зоне и там, где установлен обеденный стол. В гостиной дизайнеры создают приглушенную атмосферу, используя настенные светильники и настольные лампы. Многоуровневые натяжные потолки со светодиодной лентой тоже хорошо смотрятся в этой комнате.
Влагостойкие отделочные материалы более долговечны, их легко мыть. Таким образом, они долго сохраняют свой внешний вид.
Кухня, совмещенная с гостиной, сочетает в себе:
- личные вкусы хозяев;
- надежные материалы для отделки;
- актуальные дизайнерские идеи;
- удобство;
- тенденции.
Лучшие фото дизайна кухни гостиной
Плейнфилд, штат Нью-Джерси: одобрено многоцелевой многоквартирный дом
ЗАКРЫТЬКогда в последний раз полученная сверхурочная работа превышала вашу зарплату? Узнайте, сколько госслужащие зарабатывали сверхурочно, на Data.MyCentralJersey.com. Bridgewater Courier News
PLAINFIELD — Совет городского планирования утвердил многофункциональное жилое здание в недавно созданном районе реконструкции.
Правление 2 июля единогласно одобрило строительство 14-квартирного здания в зоне перестройки южной части транзитно-ориентированного центра (TODD), которое было создано с целью оживить районы к югу от станции Плейнфилд и линии Раритан-Вэлли в штате Нью-Джерси.
Район реконструкции ограничен линией долины Раритан компании NJ Transit на севере; Центральные, Мэдисонские и Арлингтонские проспекты на западе; Восточная Шестая и Восточная Седьмая улицы на юге; и Watchung Avenue на восток. В зоне 120 земельных участков площадью около 38 акров.
Визуализация проекта реконструкции, недавно утвержденного Советом по планированию Плейнфилда. (Фото: ~ Предоставлено Taylor Architecture & Design)
ЧИТАТЬ: Плейнфилд создает комиссию по реформе полиции имени Джорджа Флойда
Здание, спроектированное группой архитекторов Taylor Architecture & Design, расположенной в Норт-Плейнфилде, включая Брайана Тейлора и Italo Teixeira — это пятиэтажное здание, которое включает в себя торговые площади на первом этаже с 14 жилыми квартирами наверху.
Квартиры включают восемь двухкомнатных квартир с двумя ванными комнатами и шесть студий.
Адрес проекта: 522-526 Park Avenue, в Центральном деловом районе.
«Мы должны оставаться сосредоточенными и держать Plainfield на пути роста», — сказал мэр Адриан Мэпп в заявлении. «Мы столкнулись со значительными препятствиями и неудачами в этом году, но мы не можем терять концентрацию. Нам пришлось принять непростые решения и сократить некоторые из наших программ, чтобы обеспечить бюджет без повышения налогов.Однако наши деловые партнеры верят в решения, принимаемые этой администрацией. Они полны решимости продвигать наши планы по перепланировке ».
Он сказал, что недавно утвержденный план не является исключением.
« Мы продолжим проявлять осмотрительность, глядя в будущее », — сказал Мапп.
Здание будет способствовать достижению цели реконструкции TODD, по словам архитекторов, которая заключается в продвижении ориентированного на транзит развития за счет многосемейной жилой застройки с высокой плотностью застройки, позволяя использовать множество и сочетание вариантов использования, улучшения городского пейзажа и застройки пустующих или недоиспользованные посылки.
Все апартаменты будут соответствовать требованиям ADA с кухней, стиральной машиной и сушилкой.
Внешний вид здания будет выполнен из кирпичного шпона и композитных цементно-фибровых панелей. На первом этаже много остекления фасада, призванного привлечь пешеходов.
Автозапуск
Показать миниатюры
Показать подписи
Последний слайдСледующий слайдУдобства будут включать жилое хранилище, фитнес-центр, комнату для пакетов и террасу на крыше.
В здании также будет много экологичных элементов для экономии энергии и защиты окружающей среды, в том числе системы отопления и охлаждения.
Редевелопер проекта — 522-526 Park Avenue Urban Revival, LLC.
Электронная почта: [email protected]
Ник Маскэвидж — репортер Courier News, Home News Tribune и MyCentralJersey.com. Чтобы получить неограниченный доступ к его следственной работе, которая выявила нарушения и изменила закон штата, пожалуйста, подпишитесь или активируйте свою цифровую учетную запись сегодня.
Прочтите или поделитесь этой историей: https://www.mycentraljersey.com/story/news/local/development/2020/07/09/plainfield-nj-redevelopment-mixed-use-apartment-building-approved/5397373002 /
Как заказать перепланировку квартиры в RESIDENT Concept House?
При строительстве RESIDENT Concept House мы используем монолитно-каркасную технологию. Его преимущество в том, что несущими являются только внешние стены дома — перепланировка квартиры не нарушает целостность дома и абсолютно безопасна для его дальнейшей эксплуатации.
Если вы приобрели квартиру в RESIDENT Concept House и хотите изменить расположение комнат, вы можете заказать перепланировку в нашей компании. На этапе строительства, перед сдачей в эксплуатацию, это не только сэкономит вам время при ремонте, но и позволит сэкономить деньги.
Как заказать перепланировку квартиры — расскажем ниже в формате «вопрос-ответ».
Хочу заказать перепланировку квартиры. С кем мне связаться?
Шаг первый — необходимо связаться с менеджером отдела обслуживания по телефону (044) 494 04 00.Шаг второй — приходите к нам в офис, чтобы подробно обсудить проект новой квартиры.
Во время телефонного разговора специалист службы сервиса назначит вам встречу, чтобы вместе с архитектором дома выслушать ваши пожелания по замене межкомнатных перегородок. После этого мы готовим эскиз новой планировки и согласовываем его с вами. Чтобы конструкция стен соответствовала строительным нормам, план квартиры должен быть проверен менеджером проекта и главным архитектором.
Только после этих действий мы вносим изменения в документацию и начинаем работу в квартире.
Надо ли платить за перепланировку?
Если в вашей квартире еще нет возведенных стен, вы можете бесплатно заказать перепланировку комнат. Но важно, чтобы вы обратились в сервисный отдел не менее чем за 30 дней до начала кладочных работ на полу. Это обязательное условие, ведь это время требуется на разработку проекта квартиры и его согласование.
В бесплатную перепланировку квартиры также входят дизайнерские и монтажные работы.
Работы в RESIDENT Concept House уже на стадии возведения кирпичных стен по этажам. Но даже если в вашей квартире уже есть межкомнатные стены, вы можете заказать их перепланировку. В этом случае вы оплачиваете строительно-монтажные работы — демонтаж уже построенных стен и кладку новых стен. Разработка проекта квартиры осуществляется бесплатно.
Сколько стоит перепланировка квартиры в RESIDENT Concept House?
Общая сумма будет определяться количеством строительных материалов, сложностью и объемом работ.
Иногда смена межкомнатных перегородок связана с переносом инженерных сетей, а перепланировка двухуровневой квартиры — с переносом проемов для лестниц, поэтому смета будет формироваться в зависимости от запросов инвестора.
Только после согласования сметы и заключения договора вы оплачиваете перепланировку.
Есть ли ограничения в перепланировке квартир?
При строительстве жилого комплекса мы, в первую очередь, руководствуемся Государственными строительными нормами и стандартами, а при обсуждении изменений перепланировки не можем согласиться со следующими пунктами:
- Изменения в существующих конструкциях — их нарушение отрицательно сказывается на безопасности здания,
- изменение размера, положения и цвета окон — замена одного из элементов фасада ухудшает архитектурную концепцию дома,
- Остекление балконов, лоджий, террас — нарушает архитектурную целостность здания и противоречит Госстроительству,
- увеличение или уменьшение ванных комнат — «мокрые пятна» могут затронуть нижний или верхний жилые этажи,
- Снос вентустановок и перенос инженерных коммуникаций — тоже сказываются на качестве постройки.
За подробностями обращайтесь в сервисный отдел. Менеджеры работают с понедельника по пятницу с 10.00 до 18.00. С ними можно связаться по телефону (044) 494 04 00 или отправив электронное письмо service@saga-development.
com.ua.
Примеры домов на продажу 1950-х годов по цене
Дома 1950-х годовХотя миру потребовалось довольно много времени, чтобы оправиться от последствий Второй мировой войны, 1950-е были более благополучным временем, чем в прошлые времена.За это время были произведены огромные улучшения в жилищном строительстве. Приоритетное внимание уделялось строительству домов для ветеранов войны и семей.
Семейные дома начала 1950-х годов
В 1952 году на рынок было выставлено несколько домов, и эти дома в основном покупались семьями. Некоторые из самых привлекательных домов, построенных в то время, находились в Окленде, штат Калифорния.
Эти дома были укомплектованы одной или несколькими из следующих характеристик: пристроенный двойной гараж, центральное отопление, кедровая крыша, отделка из кирпича и камня, 100 футов земли с деревьями, большие передние и задние крытые веранды, просторные комнаты.В это время особое внимание было уделено деталям внутренней отделки.
Дополнительные атрибуты этих домов включали кирпичные камины, паркетные полы, кухню в стиле ранчо и / или вывоз мусора. Что сделало эти дома такими желанными, так это их удобное расположение вблизи начальных школ и пожарных депо.
Дома для ветеранов войны продолжают предлагаться
Несмотря на то, что Вторая мировая война длилась около 10 лет, в 1955 году все еще готовились условия для ветеранов.Им предлагались такие дома, как этот ниже:
Дома, подобные тем, что изображены на картинке выше, были описаны в местной газете Лонг-Бич, штат Калифорния, как роскошные дома с тремя и четырьмя спальнями. Дома Buena Park были спроектированы с такими особенностями, как тяжелые деревянные полы, изоляция из минеральной ваты, стены из реек и штукатурки, двухфутовый бетонный фундамент, кедровая черепица и / или «каменные крыши».
При строительстве вышеупомянутых домов ветеранов также часто использовались сверхтяжелые паркетные полы.
Кроме того, эти жилища обычно включали две ванные комнаты, душевые кабины со стеклянными дверями, керамическую плиточную ванну / душевые брызги и полы из резиновой плитки с легко очищаемым основанием бухты. К этим домам также были пристроены просторные служебные подъезды, чтобы облегчить проведение вечеринок. На кухнях этих домов-ветеранов установленные шкафы песочного цвета сочетаются со встроенной газовой плитой и духовкой, а также раковинами с двойным сливом. Кроме того, кухни ваших прекрасных домов также чаще всего снабжены теплостойкими, водоотталкивающими досками для морилки.Полы на кухне в этих домах обычно делались из линолеума.
Другие особенности этих роскошных домов: раздвижные стеклянные двери патио, межкомнатные двери из плит, огромные гардеробные, негабаритные гардеробы, ставни, решетки на крыльцах, сайдинг из натурального красного дерева, оконные коробки, эркеры или панорамные окна. Кроме того, у этих домов были благоустроенные передние и задние дворы (трава, посаженная из семян, посаженные кусты и т. Д.).
В описании выше размещены жилые дома комплекса Buena Park Homes.Дома были построены для ветеранов и в других местах, например, в Восточном Анахайме.
В Восточном Анахайме (Sun Estate) дома в стиле ранчо были спроектированы с такими особенностями, как сделанные на заказ драпировки, система принудительного воздушного отопления, встроенная плита и духовка, а также патио для барбекю. Дополнительные атрибуты домов Sun Estates включали встроенный бар, внутренний горшок для растений и перегородки из кирпича или камня.
Stratford Homes — еще один жилой комплекс 1950-х годов, расположенный в Восточном Анахайме.Ниже приведен внешний вид одного из этих домов:
1959 Дома во Фресно, Калифорния
Типичный дом Фресно обычно состоял из трех спален и двух ванных комнат, а также семейной комнаты и гостиной. Это дизайн большого количества домов даже в наши дни (2007 г.), и, скорее всего, он считается классическим домашним дизайном всех времен.
Дополнительные особенности дома во Фресно, штат Калифорния, возможно, включают большой внутренний дворик и один или два камина.Эти дома различались по стоимости, от 20 000 до 30 000 долларов. Они считались одними из лучших домов того времени и располагались рядом со школами, садовым парком (Fig Garden Village) и другими местными удобствами.
Другой район жилищной застройки, известный как Meadow Fair Homes, включал в себя дома, наполненные множеством уникальных особенностей и современных удобств. Например, в трех домах мусоропровод часто устанавливали в двойной раковине или в неприхотливой (несложной в уходе) пробковой плитке.
Еще одна уникальная особенность Meadow Fair Homes — элегантные бесшумные монолитные полы. Кроме того, в этих домах были установлены раздвижные алюминиевые окна.
Прекрасные дома в Пасадене
Пасадена — еще один район, где существовали прекрасные дома. Большое количество этих домов, которые можно было купить в 1959 году, обычно были построены с полностью оборудованными кухонными принадлежностями, такими как электрический холодильник, плита и духовка, а также «измельчитель» (предположительно, кухонный мусоропровод.В этих домах часто устанавливали стиральные машины и сушилки.
Средства обеспечения безопасности
Были предприняты усилия для обеспечения безопасности дома. Например, изготовили и установили на кухнях огнетушители. Следующая картинка даст вам представление о том, как тогда выглядели огнетушители:
Что использовалось для обогрева некоторых домов
Один из агрегатов, который использовался для обогрева домов, выглядит точно так же, как на этой картинке ниже:
Эта система отопления стоит немногим более 189 долларов.00. Некоторые люди все еще использовали модели печей, которые они, возможно, купили в конце 1950-х годов. (См. Модели печей 1940-х годов.)
Интерьер кухни
Если вы хотите получить представление о том, как могли бы выглядеть кухни 1950-х годов, вы можете взглянуть на эти изображения:
Мебель и аксессуары of The Times
Некоторые из предметов, рекламируемых в местных газетах в 1950-х годах, включают такие предметы, как чехлы на стулья для диванов в гостиной или 72-дюймовые (или 81-дюймовые) шторы, которые не нужно было накрахмаливать или гладить.
Чтобы лучше понять, какой была мебель в то время, вы можете взглянуть на эти черно-белые фотографии и / или чертежи мебели и дизайна гостиной и / или столовой. Пожалуйста, просмотрите изображения ниже (отредактированные фотографии из различных газет 1950-х годов):
Вы также можете просмотреть следующую фотографию спального гарнитура, чтобы узнать больше о дизайне того времени. Пожалуйста, посмотрите ниже:
40 новых разработок, меняющих вид на городской пейзаж Бруклина
Новый горизонтЛюди, формирующие Нью-ЙоркВеликолепные объявленияКварталы с золотыми замкамиЗаметные продажиБудущий Нью-ЙоркЗнакомьтесьТенденции в Нью-ЙоркеИконические адресаДоступное жилье
Центр города Бруклин рекламирует виды на панораму Манхэттена, но он сам по себе создает настоящий горизонт. Прошло почти ровно шестнадцать лет с тех пор, как центр Бруклина был изменен на более крупную жилую застройку, а некогда промышленный район уступил место все более желанным жилым районам.Благодаря легкому доступу к Манхэттену, непосредственной близости к популярным районам Бруклина и расширению возможностей для розничной торговли, ресторанов и развлечений, казалось бы, каждый — девелоперы, дизайнеры, жители — хотят быть частью этого.Строительный бум не показывает никаких признаков замедления. Во всяком случае, риэлторское сообщество буквально думает о масштабах, чтобы не отставать от растущего спроса на офисные, образовательные и розничные услуги, который приходит с жилой недвижимостью. Некоторые здания — это новые впечатляющие дополнения к горизонту, другие — всего лишь огоньки в глазах разработчиков, и все они обещают изменить местный ландшафт.
Горизонт центра Бруклина вдалеке, как видно из Всемирного торгового центра One (ноябрь 2020 г.) (Компания Extell Development) Интерьеры Модель вторичной спальни Статус Бруклин-Пойнт высотой 720 футов как самого высокого здания района носит временный характер, так как 9 Dekalb Avenue (см.
Ниже) наступает ему на пятки. Тем не менее, кондоминиум сохранит свой статус самого высокого панорамного бассейна на крыше в Западном полушарии и его дома над крытым рынком Dekalb, который предлагает кулинарные впечатления только для жителей.Он также предлагает ультрасовременный фитнес-центр, крытый бассейн, спа и сауну, стену для скалолазания, крытую баскетбольную площадку, игровой зал, спа-салон для домашних животных и отдельную столовую с демонстрационной кухней. Все апартаменты оформлены Кэтрин Ньюман, а из их окон открывается потрясающий вид на город и водоем.
Первое жилое здание Studio Gang в Нью-Йорке сразу выделяется зубчатым фасадом.Снаружи он образует организованный узор, который оживляет здание, когда свет падает на него в любое время дня. Внутри он улучшает вид и предоставляет встроенные сиденья у окна, чтобы ими можно было наслаждаться. В интерьерах также есть 10-дюймовые потолки, большие входные галереи, открытые кухни от шеф-поваров, обширные шкафы и различные варианты отделки. Жители имеют доступ к частному парку, частной подъездной дорожке, частной собачьей беге и открытым джакузи. Внутренние удобства в Park Club и Sky Club включают современный фитнес-центр, спортивные площадки, бассейн, сауну и парную, коворкинг-лаундж, детскую игровую комнату, игровую комнату и кинозал.
Октябрь 2020 Все визуализации Бруклинской рощи через Адама Америки Интерьеры квартир В отеле Brooklyn Grove только что начались работы по закрытию и переезду, фасад которого из глазурованного кирпича и окон в рамах выделяется на уровне улицы. В интерьере использованы экологически чистые материалы, большие окна, хорошо оборудованные кухни от шеф-поваров и ванные комнаты, похожие на спа. Он увенчан террасой на крыше, а удобства ниже включают обслуживаемое лобби, фитнес-центр со студией йоги, 40-футовый бассейн с террасой, детскую игровую комнату, спа-салон для домашних животных, гостиную и комнату для вечеринок.
Последний проект бруклинского архитектора Морриса Аджми обретает форму на пороге делового центра Бруклина, Берум-Хилл, Форт-Грин и Коббл-Хилл. Его чистые линии, окна в индустриальном стиле и фактурный фасад из датского кирпича отдают дань уважения прошлому района и переносят его в современность. Во всех апартаментах есть дубовые доски, кухни в минималистском стиле, мраморные ванны и встроенные стиральные / сушильные машины.В некоторых домах есть собственное открытое пространство, и все жители имеют доступ к обслуживаемому лобби, фитнес-центру, игровой комнате, гостиной, медиа-комнате, детской игровой комнате и саду на крыше с летней кухней и потрясающим видом на городской пейзаж Манхэттена. и Нью-Йоркская гавань. Строительство недавно завершилось, и облицовка идет полным ходом.
76 Schermerhorn StreetРазработано Lonicera Partners, Orange Management и Davis Companies | Дизайн Studio DB
Condo | 13 историй | 59 квартир
1–3-местные | 805 тыс. — 3 доллара.4 млн Все визуализации Симона через Компас
Расположенный недалеко от исторического района Бруклин-Хайтс, отель Symon черпает вдохновение в неподвластных времени окрестностях, берет свое название от патриарха предпринимательской и филантропической семьи Шермерхорн и сочетает в себе богатые натуральные материалы с классической отделкой для создания вневременных, но свежих интерьеров. Светлые интерьеры могут похвастаться акцентами на лепнине, изящными вестибюлями, дубовыми полами, вымытыми по индивидуальному заказу, высококлассными кухнями и частными террасами в некоторых номерах.Жилые удобства включают роскошный обслуживаемый вестибюль, гостиную, детскую игровую комнату, тренажерный зал, оснащенный оборудованием Peloton, и террасу на крыше с живописными видами.
Наверху из всех номеров открываются невероятные виды, паркетные полы, мраморные столешницы и острова на хорошо оборудованных кухнях, а также главные ванны, похожие на спа. Удобства включают круглосуточное лобби; Sky Lounge с кухней и баром; благоустроенная терраса с мангалами и зонами для общения; детская игровая площадка с закрытой и открытой площадками; звукоизоляционный кинозал; музыкальная репетиционная зона; кабинет жителей; и фитнес-центр с гидромассажной ванной, сауной и студией йоги.
Ноябрь 2020 Все изображения 1 River Park через Дуглас ЭллиманНа первом этаже 1 River Park прекрасно дополняет классический дом из коричневого камня. Но над линией карниза района величественная стеклянная башня является ярким дополнением к местному горизонту. Во всех номерах есть окна от пола до потолка, оборудованные Gaggenau кухни и панорамные виды на городской пейзаж Манхэттена и гавань Нью-Йорка. Жилой комплекс площадью более 17000 квадратных футов включает ландшафтные сады с лужайками и открытым киноэкраном, отделанный камнем вестибюль с круглосуточным консьержем, открытый бассейн с подогревом, обеды на свежем воздухе с летней кухней и грилем для барбекю, а также обширный фитнес-центр с первоклассное оборудование и паркинг.
Все изображения 5 River Park через Дуглас Эллиман Расположенный на стыке Коббл-Хилл и центра Бруклина, 5 River Park предлагает современную интерпретацию классического бруклинского дизайна каменной кладки.
Красиво масштабные апартаменты отличаются превосходными пропорциями и светом, прекрасным видом, первоклассными кухнями, умиротворяющими ваннами и просторными шкафами. Жилой комплекс площадью более 20000 квадратных футов включает открытый курортный бассейн и грот в саду, летнюю кухню и обеденную зону, частную игровую площадку, крытую гидромассажную ванну, современный фитнес-центр, музыкальную комнату с акустическим усилением, игровую комнату для детей и игровую комнату. .
Достопримечательности Бруклина не были снесены, чтобы освободить место для этого супервысокого сооружения. Напротив, Brooklyn Dime Savings Bank восстанавливается и превращается в вход в самое высокое здание в Бруклине, за которым возвышается 73-этажная башня. Вышеупомянутые апартаменты будут представлять собой сочетание аренды и кондоминиума, и все жители будут иметь доступ к лаунджу на крыше и бассейну, окружающему купол Гуаставино. Фундаментные работы начались весной, окончание планируется к 2022 году.
Октябрь 2020 Октябрь 2020 Визуализация 200 Монтегю-стрит в кредит компании Beyer Blinder Belle Architects Здание банка в международном стиле по адресу 200 Montague уступило место строительству 20-этажного жилого дома с 121 квартирой, который был разработан Midtown Equities и спроектирован Бейером Блиндер Белль.
После покупки банка HSBC за 25 миллионов долларов в 2007 году, застройщик планирует построить арендное здание по рыночным ценам с 26 студиями, 57 с одной спальней, 26 с двумя спальнями и 12 квартирами с тремя спальнями.Удобства включают ландшафтную террасу на крыше, террасы в заднем дворе, комнаты для фитнеса и йоги, гостиную, детскую игровую комнату, хранилище для велосипедов, общую прачечную и прачечную для домашних животных.Это место находится в двух шагах от Borough Hall и Cadman Plaza Park и находится в историческом районе Borough Hall Skyscraper. Таким образом, дизайн требовал одобрения Комиссии по сохранению достопримечательностей. Блочный массив отличается элегантной, хотя и задумчивой детализацией в бронзовых тонах, уравновешенной железобетонными опорами.Наш последний визит на объект показывает, что земляные работы идут полным ходом, и их доставку следует ожидать где-то в 2022 году.
339 Hicks StreetРазработано Fortis Property Group | Дизайн Hill West Architects
Кондо | 38 историй | 103 шт. Рендеринг 2 River Park через Fortis Property Group
2 River Park станет самой высокой башней в River Park, реконструированной Fortis Property Group на месте бывшей городской больницы Лонг-Айленда.Он удобно расположен на стыке Коббл-Хилл и центра Бруклина, его изогнутый стеклянный фасад поможет сохранить то, что обещает стать потрясающим видом на горизонт Манхэттена. Квартиры начнутся на третьем этаже с не более чем шестью квартирами на этаже и не более чем двумя квартирами на этаже, начиная с 20-го этажа. Жилые удобства будут включать обслуживаемый вестибюль, почтовую комнату, комнату для велосипедов, фитнес-центр, крытый бассейн, комнаты отдыха и открытые террасы. Был принят план размещения на 241,4 миллиона долларов.
Разработано DelShah Capital и OTL Enterprises | Дизайн CetraRuddyАренда | 20 историй | 180 единиц Визуализация улицы Чапел-стрит, 22 через CetraRuddy
Прошлым летом начались земляные работы для новой 20-этажной башни с торговыми площадями, общественным объектом и 180 новыми жилыми домами.
Квартиры начнутся на третьем этаже, с южных окон открывается вид на парк Маклафлин, а из некоторых апартаментов на верхних этажах открывается вид на городской пейзаж Манхэттена. Все жители будут иметь доступ к таким удобствам, как гостиная, комната для вечеринок, детская игровая комната, комната для велосипедов, парковка на 87 автомобилей, фитнес-центр, бассейн на 15-м этаже и терраса на крыше. Дата завершения строительства зимой 2022 года была указана на строительном заборе, но еще неизвестно, будет ли он соответствовать этому сроку — объект не был признан необходимым для строительства.
Разработка сайта RXR Realty | Аренда
Дизайн Perkins Eastman Architects | 34 рассказа | 476 шт. 1 Университетская площадь через RXR Realty
После приобретения прав на воздух у соседних университетских зданий ведется строительство 1 University Plaza, нового элегантного высотного здания в центре кампуса Бруклинского университетского городка Лонг-Айленда.По завершении строительства 30 процентов новых единиц будут продаваться по цене ниже рыночной. Жилые удобства будут включать комнату для велосипедов, почтовую комнату, фитнес-центр, игровую комнату для детей, гостиную и террасу на крыше. В дополнение к этому проекту RXR Realty работает над близлежащим малоэтажным университетским зданием со спортивными площадками на крыше.
(Октябрь 2020 г.) Май 2020 (CityRealty) Разработано Gold Street Realty Holdings | Дизайн: архитекторы J Frankl и Чарльз МеллеаАренда | 13 историй | 286 единиц Рендеринг 260 Gold Street через J Frankl Architects
Ранее в этом году завершились строительные работы на 260 Gold Street, новом арендуемом здании на месте бывшего ресторана McDonald’s.С тех пор дизайн фасада был обновлен, чтобы улучшить качество света и свежего воздуха.
Больше стекла обеспечивает больше естественного света, а жители получат доступ к многоуровневым атриумам и зеленым насаждениям. Кроме того, в некоторых квартирах будут собственные балконы. Дополнительные удобства будут включать в себя гостиную, игровую комнату, кинозал, фитнес-центр, бизнес-центр, игровую комнату для детей, спа-салон для домашних животных, террасу на крыше, комнату для велосипедов и 114 парковочных мест — почти столько же, сколько было на предыдущей стоянке.
Разработано Avery Hall Investments | Дизайн SLCE Architects
Кондо | 21 рассказ | 122 шт. Визуализация One Boerum Place через Avery Hall Investments / SLCE Architects
Отель One Boerum Place удобно расположен на участке, ранее принадлежавшем Бруклинской юридической школе, на углу Фултон-стрит и Бурум-плейс.На первых двух этажах будут магазины, а из апартаментов наверху будут открываться великолепные виды, высококачественная отделка и бытовая техника, а также доступ к таким удобствам, как бассейн с сауной, двухэтажный фитнес-центр, обширные открытые террасы, ландшафтная крыша. и летняя кухня, и полностью автоматизированный гараж. Строительство завершилось ранее этой весной, и ранее была объявлена дата завершения 2021 года.
CityRealty (май 2020 г.) Разработано организацией Бродского и ТФ Cornerstone | АрендаДизайн Marvel Architects | 26 историй | 300 единиц Рендеринг через организацию Бродского и ТФ Cornerstone В качестве ключевой части нового комплекса Pacific Park Brooklyn на улице 664 Pacific Street разместится государственная средняя школа на 616 мест на базе, школьная площадка на четвертом этаже и более 300 квартир наверху.Жилые удобства будут включать фитнес-центр, детскую игровую комнату, а также закрытые и открытые жилые залы. Строительство началось в 2019 году, завершение намечено на 2021 год. Октябрь 2020 Разработано организацией Бродского и ТФ Cornerstone | Аренда
Дизайн Перкинс Истман | 49 историй | 810 единиц Рендеринг 18 Sixth Avenue через Greenland Forest City Partners Шестая авеню, 18, высотой более 500 футов, станет самым высоким зданием в застройке Pacific Park (см.
Выше).Благодаря его высокой высоте жители будут наслаждаться захватывающими видами во всех направлениях. 258 из запланированных 859 квартир будут доступны по цене, и все жители будут иметь доступ к удобствам здания. Закладка фундамента состоялась весной прошлого года, а завершение намечено на весну 2023 года. Разработано организацией Бродского и ТФ Cornerstone | Аренда Дизайн Handel Architects | 26 историй | 800 единиц Отрисовка 595 Dean Street (r) и 615 Dean Street (l) через Moso Studio
В восточной части застройки Pacific Park, 595 и 615 Dean Street будут содержать 800 жилых единиц, торговые площади на первом этаже, 72 600 квадратных футов общественных открытых пространств, 455 подземных парковочных мест и первый в Бруклине Chelsea Piers Field House. .Открытое пространство будет включать игровые площадки, собачьи бега, небольшие места для встреч, рощу для пикника и тенистый лесной сад. Проект нацелен на получение сертификата LEED Silver, и ландшафтные зеленые крыши зданий и корона фотоэлектрических панелей помогут в этом.
Разработано Lonicera Partners | ДизайнАренда Fogarty Finger Architects | 23 рассказа | 160 единиц Визуализация 308 Ливингстон-стрит через Fogarty Finger Architects
На южном участке делового центра Бруклина пара терракотовых зданий начала века были снесены, чтобы освободить место для нового высотного здания, отдающего дань уважения местному дизайну; строительство сейчас ведется.Жильцы квартир с одной и двумя спальнями будут иметь доступ к таким удобствам, как терраса на крыше, зона для совместной работы, отдельная столовая, несколько лаунджей и бар «Speakeasy». Оценка завершения строительства к 2021 году была дана прошлой осенью, и, возможно, она все еще находится в процессе выполнения — поскольку на этом объекте будут находиться доступные по цене единицы, это было сочтено необходимым для строительства.
Аренда | 12 историй | 23 шт. Визуализация строительного забора через CityRealty
На улице 1 University Plaza (см. Выше) недавно завершилось строительство на Уиллоуби-стрит, 167.Визуализация строительного забора показывает, что в помещениях будут большие окна и отдельные балконы. Не более двух квартир на этаже обеспечат превосходную конфиденциальность, а жилые удобства будут включать в себя комнату для велосипедов, парковочные места и общую террасу на крыше.
Январь 2020 (CityRealty) Рендеринг с помощью Alloy DevelopmentМежду стремлением к сертификации LEED и пассивным домом нет недостатка в способах, которыми строители Нью-Йорка могут продемонстрировать свою приверженность окружающей среде.Однако, когда начинается работа над новым масштабным проектом, Alloy Development намерена сделать еще один шаг и, по словам соучредителя и генерального директора Джареда Делла Валле, «сделать этот квартал самым экологически безопасным в центре Бруклина». С этой целью жилой компонент 100 Flatbush Avenue будет на 100% электрическим или независимым от ископаемого топлива, что станет первым для Нью-Йорка. Кроме того, две государственные школы на базе, начальная школа и новая средняя школа Международной академии Халила Джебрана, будут спроектированы с учетом стандартов пассивного дома.Дополнительные компоненты будут включать 100 000 квадратных футов офисных площадей и 30 000 квадратных футов торговых площадей. Срок сдачи — 2023 год.
Разработано Jenel Real Estate | АрендаДизайн Marvel Architects | 44 рассказа | 327 единиц 532-540 Fulton Street около весны 2020 года через CityRealty Преобразование
Downtown Brooklyn хорошо отражается на 532-540 Fulton Street, многоцелевой башне, которая объединяет офисные помещения (эта часть известна как The Paxton ) с 327 арендуемыми квартирами, 96 из которых будут доступны по цене.
В офисах будут высокие потолки, окна от пола до потолка и общие террасы. Жилые комплексы будут иметь панорамный вид, холл, бизнес-центр, помещения для пакетов и прачечную, парковку на 11 велосипедов, тренажерный зал на девятом этаже и террасу на крыше. Строительство завершилось прошлой осенью, и стеклянный фасад находится на подъеме.
Коммерческое помещение | 24 рассказов Рендеринг улицы Уиллоуби, 141 через SLCE Architects, Fogarty Finger Architects
До 2019 года улица Уиллоуби, 141 была занята трехэтажным Институтом проектирования и строительства.Сейчас это здание снесено, а участок расчищен и готов к раскопкам. Когда-то это выглядело так, как будто на этом месте собирались вырасти многоцелевое здание с торговыми, офисными, студенческими и жилыми помещениями. Тем не менее, недавно обнаруженные изображения показывают, что вместо этого в разработке находится чисто коммерческая башня.
Октябрь 2020 Бывший техникум на этом месте с тех пор снесен. Разработано JEMB Realty | Дизайн FXCollaborativeРеклама | 34 рассказов Визуализация площади Уиллоуби, 1 через FXCollaborative Первый за несколько десятилетий офисный комплекс в центре Бруклина, 1 Willoughby Square, на 2–6 этажах разместит школу на 300 мест и офисные помещения, начиная с меньшего объема.FXCollaborative, архитектор здания, подписал контракт на 40 000 квадратных футов площади в новом здании. Как и все арендаторы офиса, он будет иметь доступ к бытовым помещениям, включая открытые террасы и прилегающую подземную автостоянку. Строительство завершилось в прошлом году, и значительный прогресс был достигнут в его стеклянной и кирпичной навесной стене.
Компания Hello Living Эли Карпа заканчивает строительство 22-этажного 103-этажного отеля по адресу 291 Livingston Street в центре Бруклина.
На первом этаже, спроектированном Gene Kaufman Architects, будет пивной сад, а на стене вдоль линии участка будет представлена интересная художественная инсталляция.
Когда девелопер GFI Development Company («GFI») преобразовал отель Breslin в Ace Hotel New York, этот проект получил широкое признание благодаря превращению NoMad в один из самых популярных районов Манхэттена. Совместное предприятие GFI и GB Lodging, несомненно, надеялось сделать то же самое, открыв аванпост Ace Hotel на 252 Schermerhorn Street (также известную как 61 Bond Street), но строительный бум в центре Бруклина начался в годы задержек на строительство из-за выдачи разрешений. первая подана.Поскольку 13-этажный роскошный отель на 285 номеров близится к завершению, он станет естественным дополнением к красивому и шумному району Бруклина.
(CityRealty) Разработчик и дизайнер Tankhouse из компании DUMBO завершили сделку по покупке угловой застройки на 219 Jay Street и Chapel Street за 12,5 миллиона долларов. В настоящее время на участке размещается трехэтажное здание площадью 9800 квадратных футов, но есть еще 37 549 квадратных футов застроенных квадратных футов. Real Estate Weekly сообщила о продаже и отметила, что сайт предлагает соответствующие налоговые льготы для зоны возможностей.На сайтеTankhouse были размещены предварительные эскизы новой жилой башни с несколькими откатами и частными террасами на месте. Поскольку разрешения еще не поданы, неясно, сколько единиц будет в здании, сколько удобств будет, будет ли это аренда или кондоминиум.
Все изображения предоставлены FXCollaborative для Комиссии по сохранению достопримечательностей. Во вторник, 23 июня, Комиссия по сохранению достопримечательностей («Достопримечательности») заслушает предложение о строительстве нового современного здания площадью 20 000 квадратных футов для Бруклинской музыкальной школы (BMS) с 120 жилыми домами. Вверх.Планируемое здание вырастет на 24 этажа и высотой 285 футов на пустыре за One Hanson Place и будет отделано кирпичом и терракотовой кожей с градиентным фасадом, постепенно переходящим от светлого к темному.
Проект удвоит учебное пространство BMS, расширит штаб-квартиру и создаст плавный переход между башней и центральной объединенной церковью Hanson Place на соседних участках. Над школой будет один этаж благоустройства и 21 этаж квартир. Тридцать процентов квартир было выделено для недорогих квартир с умеренным доходом, а оставшаяся часть — это квартиры по рыночной цене.
Разработано Joy Construction и Maddd Equities | Дизайнер TBD235 000 — 400 000 квадратных футов
30 июня между Жилищным управлением г. Нью-Йорка (NYCHA) и парой постоянных сотрудников, Joy Construction и Maddd Equities, была заключена сделка на получение земельных и воздушных прав на сумму около 25 миллионов долларов. Покупка команды включала участок площадью 6000 квадратных футов на Миртл-авеню за 16,6 миллиона долларов и около 84000 квадратных футов прав на воздушное пространство на Миртл-авеню, 120 Navy Walk, 67-73 Prince St.и 202-208 Tillary St. за 8,25 миллиона долларов. Покупка была осуществлена в рамках запланированного компанией жилого проекта по адресу 202 Tillary Street , первоначально планировавшаяся площадью 235 000 квадратных футов, но теперь способная расширить до 400 000 квадратных футов. Сообщается, что в разработке находится жилой проект с 25% доступными квартирами. Рендеринг 80 Flatbush с помощью Alloy Development
Потребовалось несколько выступлений перед городским советом Нью-Йорка и судебные тяжбы с местными активистами, но второе по высоте здание в центре Бруклина продолжается.Весь проект будет включать офисные помещения, торговые площади, новую начальную школу, новые классы средней школы и около 900 жилых единиц, 200 из которых будут доступны на постоянной основе. В настоящее время ведется снос, строительство начнется весной следующего года. Срок сдачи намечен на 2025 год.
Разработано организацией Майклс | Дизайн GF55 ArchitectsАренда
| 40 историй | 227 шт.
Все изображения через JLL 111 Willoughby Street удобно расположен между Бриджем и Даффи-стрит, рядом с парками City Point, Cadman Plaza и Fort Greene, популярными ресторанами и магазинами, а также несколькими линиями метро.Он также находится недалеко от Технологического колледжа Нью-Йорка и инженерной школы Тандон Нью-Йоркского университета, что может быть причиной того, что владелец захотел построить здесь студенческое жилье. Недавно поданные разрешения требуют строительства общественного объекта и около 1800 квадратных футов торговых площадей на уровне класса, ресторана на втором этаже, церкви на третьем этаже и 220 квартир, начиная с седьмого этажа. Жилые удобства будут включать в себя комнату для велосипедов, комнату для почты и пакетов, открытую террасу, комнату для занятий и террасу на крыше.
Pacific Park / Brooklyn Atlantic Yards, площадка B5
Разработано Greenland Forest City Partners | Дизайнер TBDДве башни смешанного использования запланированы на Участке B5 в мегапроекте Pacific Park. Были представлены четыре различных сценария развития, но ясно, что на участке будут многоцелевые башни, на которых будут размещены новые торговые площади, коммерческие офисные помещения и новые жилые дома наверху.Дизайнер еще не выбран.
Pacific Park / Brooklyn Atlantic Yards, участки B5, B6, B7
Разработано Greenland Forest City Partners | Дизайнер TBDЖилой Все изображения предоставлены Greenland Forest City Partners. Скидмор Оуингс и Меррилл Диаграмма массирования действий через город Нью-Йорк
Возможно, ни одно здание не отражает возрождение центра Бруклина лучше, чем почти 80-этажная башня, предложенная для 625 Fulton Street: для этого требуется более 50 000 квадратных футов торговых площадей, 739 000 квадратных футов офисных площадей, начальная школа площадью 82 500 квадратных футов и почти 844 000 квадратных футов жилой площади.
Четверть из предложенных 902 единиц будет постоянно доступной. Если реконструкция будет одобрена, строительство начнется в 2020 году, а завершение планируется в 2023 году.
Дизайн Hill West Architects | 40 историй | 139 единиц Рендеринг 570 Fulton Street через Slate Property Group
Для этого треугольного участка по соседству с One Flatbush предлагается 40-этажный небоскреб (см. Выше).План предусматривает создание небольших офисных помещений для привлечения местных предприятий и небольших фирм, а также 139 жилых единиц наверху. Тридцать процентов из них были бы доступными. Было подано разрешение на снос трехэтажного здания, которое сейчас находится на территории, но, похоже, этого еще не произошло.
Разработано Rockrose Development | ДизайнАренда архитекторов SLCE | 47 историй | 609 единиц Комплекс на проспекте Декалба, 98 (CityRealty) Ранее весной этого года были поданы разрешения на строительство новой застройки с торговыми площадями первого уровня и квартирами от второго этажа.Компания SLCE Architects внесена в список как архитектор, и разрешения на снос гаража, который в настоящее время находится на территории, еще не поданы. Разработано RedSky Capital | Designer TBD
Смешанное использование | 50 историй | Единицы TBD Рендеринг через RedSky Capital
Бруклинский девелопер RedSky Capital провел последние несколько лет, создавая участок под застройку, ограниченный такими магистралями, как Фултон-стрит, ДеКалб-авеню, Бонд-стрит и пристройка Флэтбуш-авеню.Были поданы разрешения на снос некоторых объектов, уже находящихся на территории, и были обнаружены визуализации ступенчатого небоскреба с фасадом из серого кирпича, окнами в индустриальном стиле и несколькими ландшафтными террасами.
Еще неизвестно, будет ли это коммерческое или жилое здание, но в основании будет несколько торговых плит.
В одном квартале от более традиционного отеля Hilton Brooklyn, 88 Schermerhorn Street, был использован девиз Hilton, новая концепция микро-отеля, которая откроется в захватывающих городских районах по всему миру.Планы еще не поданы, но архитектор рассматривает возможность модульного строительства.
Рендеринг 101 Fleet Place через Marvel Architects Прошлым летом Общественный совет Бруклина 2 одобрил поправку о зонировании, которая позволит построить новое 15-этажное офисное здание на Флит-плейс; С тех пор процесс ULURP был завершен, и застройщик получил ссуду в размере 21,2 миллиона долларов на новое здание, которое, как ожидается, привлечет более мелкие фирмы и некоммерческие организации. Это место было домом для Детского центра Даффилда около 20 лет, и его планы на будущее еще не известны.Запланировать встречу
Чтобы совершить поездку по любому из этих объектов, просто заполните информацию ниже.
Или позвоните нам по телефону (212) 755-5544
Статьи по теме
- Из будущего Нью-Йорка 20 жилых домов Нью-Йорка с кортами для игры в сквош Вторник, 23 марта 2021 г.
- Из будущего Нью-Йорка One Willoughby Square близится к завершению, готовится приветствовать дизайнера FXCollaborative Понедельник, 22 марта 2021 г.
- Из будущего Нью-Йорка Квартиры в Нью-Йорке с налоговыми льготами по цене от 549 тысяч долларов Суббота, 27 февраля 2021 г.
- Из будущего Нью-Йорка Новые жилые дома в Нью-Йорке по измененной цене со скидкой до 33% Вторник, 2 февраля 2021 г.
- Из Челси Future Parks: новые и будущие парки Нью-Йорка и предложения стоимостью менее 5 миллионов долларов рядом с ними Понедельник, 1 февраля 2021 г.
- Из будущего Нью-Йорка
20 новых музейных и культурных проектов прибывают в Нью-Йорк Пятница, 29 января 2021 г.

- From Beekman / Sutton Place Окончательный список жилых домов Нью-Йорка с необычайно активными удобствами Пятница, 15 января 2021 г.
- Из финансового района Самые высокие жилые небоскребы Нью-Йорка и заоблачные списки внутри 13 января 2021 г., среда
Квартиры на Палмерской площади | Латиноамериканская корпорация жилищного строительства
2118-1 / 2 N. Kedzie Blvd., Chicago, IL 60647 Карта / Схема проезда
Информация о здании
| Диапазон цен: | Запрос в Офис управления |
|---|---|
| Удобства: | Круглосуточное обслуживание по вызову с выездом к дому |
| Район: | Площадь Логана |
| Тип здания: | 3-х этажный кирпичный, крытый коридор |
| Тип корпуса: | Раздел 8 и налоговый кредит |
| Тип устройства: | Многоквартирный дом, корпус для инвалидов с 1, 2 и 3 спальнями |
| Кол-во этажей: | 3 |
| Кол-во квартир: | 160 |
| Ближайший поезд: | California Blue Line |
| Ближайший автобус: | CTA Armitage Ave.![]() |
Седжфилд Коттеджи и дуплексы в аренду в Шарлотте, Северная Каролина
Что говорят наши жители …
«Болота вышли за рамки того, что я арендую у них больше года. Они любезны, полезны, своевременны в своих ответах, запросах на техническое обслуживание и, самое главное, профессиональны, несмотря на любое разочарование или возникающие проблемы. НАСТОЯТЕЛЬНО РЕКОМЕНДУЮ!» -AG
«Все в Marsh постоянно делали все возможное. Когда люди спрашивали меня, у кого снимать жилье в Шарлотте, я безоговорочно рекомендую Marsh и буду продолжать делать это.»- РТ
«Я очень счастлив. Опыт работы с клиентами на высшем уровне. Замечательные люди — профессиональные, отзывчивые, организованные — просто великолепные. Команда техобслуживания работает превосходно, быстро и эффективно ». — JS
«Расположение, доступность и отличные отзывы руководства. Все прекрасно!» — AM
«Обожаю профессионализм сотрудников!» — JS
«Это отличное место, где есть чем заняться, но с просторными дворами и тихо. Лучшее обоих миров.»- HW
«Персонал был превосходным — очень услужливый и отзывчивый. Расположение тоже отличное. »- ES / SS
«Обслуживание было феноменальным.» — LE
«Персонал в Marsh потрясающий! Всегда готовы помочь, приветливы и приветливы. Ваше обслуживание клиентов непревзойденно !! » -LG
«Это чудесный район с дружелюбными людьми и множеством занятий». -RC
«Мне очень понравилось расположение и доступ к легкорельсовому транспорту и SouthEnd. Персонал был приятным и всегда услужливым. » -R & GW
«Цена фантастическая, в идеальном месте — очень уважительные соседи… Персонал был услужливым, и обслуживание отреагировало быстро.”CH
«Очень ухоженный, красивые паркетные полы, отличная планировка. Техническое обслуживание всегда отвечало быстро. Персонал Marsh всегда приветлив и относился ко мне с уважением.
Марш обращался со мной лучше, чем любой арендодатель или компания по управлению недвижимостью, которую я когда-либо имел ». -GS
«Размер квартиры был идеальным. Район в прекрасном месте. Персонал всегда дружелюбный. » -См
«Мне очень понравилось жить в Marsh Properties» —
км.«Прекрасное расположение. Легкий доступ к легковым дорогам, недалеко от работы и развлечений.”-GC
«Мне очень понравились 12 лет жизни в этом сообществе! Район чудесный, а персонал самый лучший! » -AB
«Персонал очень приятный и быстро реагирует на все, что нужно!» -JB
«Персонал отличный, всегда веселый и услужливый. Быстрый ответ на запросы на техническое обслуживание. Соседство прекрасное, нам грустно расставаться ». — LBB
«Мне нравятся просторные лужайки и огромные деревья вокруг квартиры. Также понравилось поговорить с Пэтти Майерс — она всегда была дружелюбной и полезной.»- CRK
«Мне нравится срочность запросов на обслуживание, персонал всегда очень приятный, мне очень нравится миссис Пэтти, место идеально подходит для веселого и продуктивного образа жизни, и мне очень понравились деревья / парк». -EC
История жилищного строительства в Бромли-Хит — Историческое общество Ямайской равнины
Неизбежное, предсказанное Роем Уилбуром, наступило летом 1933 года. Столкнувшись с неспособностью частного сектора отреагировать на инициативы Гувера, администрация Франклина Д.Рузвельт подготовил почву для последней фазы в обеспечении жильем малообеспеченных семей — государственным жильем.
Единственным предыдущим опытом правительства Соединенных Штатов в строительстве крупномасштабного жилья была Корпорация аварийного флота и Корпорация жилищного строительства США в 1918-1919 годах. С вступлением Соединенных Штатов в войну против Германии в 1917 году нехватка жилья для оборонных работников стала национальной проблемой.
Производство военных кораблей, боеприпасов и тяжелой техники в массовых масштабах, невиданных ранее в американской истории, создало огромную нагрузку на жилые помещения вокруг оборонных заводов.
В результате отрасль, связанная с войной, испытывала трудности с наймом и удержанием рабочих.
Администрация Вильсона сочла это угрозой для военных действий, и 1 марта 1918 г. была создана Корпорация Чрезвычайного флота (65-й Конгресс. 40 Стат. 438 1918 г.). Он построил 21 корпоративный город от Мэна до Ванкувера, одним из которых был Атлантик-Хайтс в Портсмуте, NH, спроектированный Килхэмом и Хопкинсом. Кроме того, 44 поселка были построены вторым федеральным субъектом, Корпорацией жилищного строительства США (USHC), одобренным Конгрессом 16 мая 1918 года.(65-й Конгресс 40 Стат. 550. 1918 г.). 9 июля 1918 года Жилищная корпорация США была организована как часть Бюро промышленного жилья и транспорта. Было разрешено обеспечивать жильем рабочих и их семьи на арсеналах, военно-морских верфях и других оборонных предприятиях. Жилищная корпорация США могла бы предоставлять ссуды строителям, но, как правило, она строила жилье сама. К осени 1919 года целые общины были построены федеральным правительством в беспрецедентный период. В Куинси, штат Массачусетс, USHC построил три объекта, спроектированные Джеймсом Э.Маклафлина для размещения рабочих на обширной верфи Fore River Shipyard Company, принадлежащей Bethlehem Steel. В одночасье, писал Стэнли Тейлор в декабрьском номере журнала American Architect за 1918 год, «крупнейшим владельцем рабочих домов в Америке было правительство Соединенных Штатов». Всего было построено 27 жилых комплексов в 16 штатах на общую сумму 52 доллара. 3 миллиона. В 1933 году Эрнест М. Фишер писал, что «самым большим вкладом USHC были преимущества, продемонстрированные соотношением в одном предприятии всех факторов, задействованных для строительства жилья.Работая в больших масштабах, градостроитель, архитектор, инженер и строитель — все вместе создают привлекательное и унифицированное жилье ». (Цитируется по Роберту Муру Фишеру, 20 лет общественного жилья, 1959). Это будет репетиция жилищной программы «Нового курса».
Администрация Гувера последует прецеденту, созданному Корпорацией аварийного флота, но Конгресс не смог достаточно быстро отказаться от него после Первой мировой войны.
В отчете 1921 года Специальному комитету Сената по реконструкции прямо говорилось, что «это в интересах правительства. общественного благосостояния, что федеральные правительства, правительства штата и муниципалитеты не должны принимать непосредственного участия в жилищном бизнесе.«Все жилье EFC было продано с убытком в 26 миллионов долларов. (Весной 1921 года дома Куинси были проданы на аукционе на 40% дешевле, чем их строительство. Реклама, Boston Herald. 22 мая 1921 года.)
Администрация Рузвельта боролась с жилищным кризисом двумя способами: первая — как программа общественных работ, а вторая — как постоянная государственная политика.
16 июня 1933 года президент Рузвельт подписал Закон о восстановлении национальной промышленности (NIRA) под руководством министра внутренних дел Гарольда Л.Икес. (40 Стат. 195. 1933). Раздел II Закона санкционировал всеобъемлющую программу общественных работ, включая дешевое жилье и расчистку трущоб. Икес организовал жилищный отдел для реализации Раздела II. Начиная с февраля 1934 года жилищное управление спроектировало, профинансировало и построило 51 жилой дом по всей стране. Это обеспечило прямую занятость по всей стране 230 архитекторам, 45 ландшафтным архитекторам и 100 000 каменщиков, плотников, каменщиков, рабочих-металлистов, водителей грузовиков и грузчиков.Два из них находились в Массачусетсе: деревня Олд-Харбор в Южном Бостоне и Нью-Таун-Корт в Восточном Кембридже. Нью-Таун-Корт, недалеко от Кендалл-сквер, начал принимать семьи в январе 1938 года. Вернисаж Старой гавани, которая теперь называется «Дома Мэри Эллен Маккормак», был 1 мая 1938 года. В своем первом отчете президенту Икес заявил, что у жилищного отдела было пять целей, одна из которых заключалась в том, чтобы «продемонстрировать частным строителям и проектировщикам, а также общественности в целом практичность крупномасштабного общинного планирования.
Южный Бостон был выбран в качестве места для строительства первого государственного жилищного фонда в Бостоне благодаря убедительности конгрессмена Джона У.
Маккормака, родившегося и выросшего на Эндрю-сквер (комплекс сегодня назван в честь матери конгрессмена). Старая гавань была построена на 26 акрах свободной земли (некоторые из них — незаполненные солончаки) недалеко от Эндрю-сквер между проспектами Дорчестер и Олд Колони, прямо напротив парка Колумба. Строительство Старой гавани потерпело неудачу в июле 1935 года.Крупные интересы в сфере недвижимости обратились в Жилищный отдел в суд, чтобы заблокировать судебные разбирательства по делу о выдающихся доменах. Апелляционный суд 6-го округа США постановил, что правительство не может брать землю в собственность для федерального жилья. Это было право зарезервировано за штатами, и необходимо было создать местные жилищные органы для приобретения земли под государственное жилье. «Покупка собственности одного человека и ее продажа или сдача в аренду другому, — заявил суд, — не входит в компетенцию федерального правительства … [NIRA] находится на неограниченном усмотрении президента [что является] незаконным делегирование законодательных полномочий.Окружной суд также заявил, что выдающаяся сфера не может осуществляться федеральным правительством только для избранной группы — в данном случае людей с низкими доходами; только штаты обладали этой властью.
26 июля 1935 года Содружество приняло закон, уполномочивающий органы государственного жилищного строительства (закон 1935 года, глава 449 MGL). Городской совет утвердил Бостонское жилищное управление 1 октября 1935 года. Строительство Old Harbour Village не было остановлено решением 6-го окружного суда, потому что застройка была построена на пустующей земле.В период с сентября по октябрь 1935 года было приобретено около 20 земельных участков по цене 520 079 долларов США.
Еще одна задержка была вызвана тем, что городской совет и мэр Фредерик Мэнсфилд безуспешно доказывали, что федеральное правительство должно платить налоги на недвижимость за строительство.
Поскольку Управление общественных работ было в основном создано для обеспечения рабочих мест, проект Old Harbour был распределен между семнадцатью ассоциированными архитекторами с Джозефом Леландом в качестве главного архитектора.
В марте 1936 года были утверждены планы строительства девятнадцати квартир без жилья от трех до пяти этажей; пятнадцать, двухэтажные рядные дома, административный корпус, электростанция и хозяйственный корпус. Рядные дома были единственными построенными в любом жилом комплексе Бостона. Всего было 1016 квартир от 3 до 5 комнат. Общая стоимость проектирования и строительства составила 5 долларов. 8 миллионов. Планы и фотографии почти завершенного строительства были опубликованы в Architectural Forum за май 1938 года.
Old Harbour был первым жилым домом в Бостоне, вдохновленным современным европейским дизайном внутренней архитектуры, который вдохновлял молодых архитекторов и градостроителей в 1920-х годах.Музей современного искусства в Нью-Йорке провел первую выставку этого стиля со 2 февраля по 30 марта 1932 года. Этот стиль был образцом для Хит-стрит и всех других жилых домов в Бостоне. Вкратце. он был отмечен функциональными кирпичными коробками в форме T, U, L или X, расположенными в геометрических суперблоках без учета узоров городских улиц. Суперблоки создавали открытые пространства между ними для игровых площадок, сушильных дворов и большого общественного общего пользования или площади. Это были общие основания Вудборна, увеличенные в сто раз.У Старой гавани только одна сквозная улица, и она находится на ее краю. Остальные улицы представляют собой узкие извилистые улочки, предназначенные только для жителей.
Старая гавань была построена на пустующей земле, поэтому не было процесса переезда для поиска домов для тех, кто был перемещен в результате застройки, как на Хит-стрит. Управление жилищного строительства Бостона управляло процессом аренды. Квартиры были предоставлены любому жителю Бостона, за исключением, по иронии судьбы, тех, кто находился на льготных условиях или на заработной плате Управления общественных работ. Арендная плата была установлена BHA с одобрения жилищного управления: 3-комнатная квартира снята за 22 доллара.15 в месяц и 5-комнатная квартира за 31 доллар.
90. Это было вне ценового диапазона большинства жителей многоквартирных домов. Средняя годовая зарплата многоквартирного рабочего в 1933 году составляла 1290 долларов. В 1935 году 56% всех семей Новой Англии, не получающих пособия, зарабатывали не более 1500 долларов в год. Это означало, что трехкомнатная квартира будет составлять 1/4 годовой заработной платы.
Договор аренды на управление Old Harbour Village был подписан между USHA и BHA 18 февраля 1938 года. КНБК была заполнена 7500 приложениями, из которых было выбрано 557.Многие из них никогда не жили в квартирах с центральным отоплением, горячей водой и туалетами со смывом, не говоря уже о прачечной в подвале. На посвящении 11 сентября 1938 года присутствовало десять тысяч человек; он попал на первую полосу Boston Globe.
В одном из первых критических анализов государственного жилья редактор отдела недвижимости Ф. Э. Дрю из Boston Herald 9 октября 1938 года осторожно написал: «Федеральные жилищные проекты до сих пор вызывают споры как с точки зрения социальной выгоды, так и с точки зрения финансового ущерба для жителей многоквартирных домов.Многие владельцы потеряли арендаторов… время и опыт в следующие несколько лет расскажут об этом подробнее ».
Жилье, построенное непосредственно федеральным правительством, прекратилось в 1935 году, когда Верховный суд США объявил NIRA неконституционным. Old Harbour Village и New Towne Court — оба в стадии реализации в 1935 году — должны были быть завершены, но жилищный кризис, с которым столкнулся Бостон, теперь ждал решения Конгресса.
Защитники хорошо построенного недорогого жилья для работающих мужчин не были удовлетворены Жилищным отделом, потому что это была программа общественных работ, а не жилищная программа.Они также раскритиковали Отдел за строительство нового жилья на пустующих землях, например, в Старой гавани, а не за снос ветхих трущоб для улучшения жилья (например, New Towne Court). Жилищным защитникам 1930-х годов. полвека неудачных попыток благотворительных реформаторов жилищного строительства было достаточным доказательством того, что только правительство сможет решить проблему доступного жилья.
В 1934 году один из выдающихся лидеров жилищной реформы в Америке 1930-х годов опубликовал влиятельную книгу под названием «Современное жилье».«Фундаментальная предпосылка о жилье претерпела огромные изменения, — писала Кэтрин Бауэр, — оно стало общественным достоянием. Право жить в достойном жилище заняло свое место среди национальных прав, таких как право на воду, санитарию, пожарную охрану и защиту полиции. Решение не имеет ничего общего с индустрией недвижимости. Старая индустрия недвижимости в значительной степени ответственна за плохие условия в городах и существование жилищной проблемы ». Бауэр и ее коллеги по жилищной реформе хотели постоянной государственной жилищной политики, и они обратились к одному из титанов Нового курса, сенатору Роберту Ф.Вагнера из Нью-Йорка.
В январе 1935 года сенатор Вагнер представил первый в истории страны закон о долгосрочном жилищном строительстве. Строительство и управление будут оставлены местным властям, а администрация — новому федеральному жилищному агентству. Екатерина Бауэр была одним из главных ее авторов.
Но, как указывает Роберт Мур Фишер в своей книге «Двадцать лет государственного жилья», Конгресс не принял бы такое революционное законодательство, если бы сначала не увидел, как выглядят государственные инвестиции в жилищное строительство.Жилищная программа PWA 1933–1935 гг., Как писал Фишер, «дала практическую и правовую основу для постоянной федеральной жилищной программы. Во-первых, это помогло привлечь внимание общественности к проблеме некачественного жилья и использованию федеральных средств для ее решения. Во-вторых, он построил первые в стране жилые комплексы с низкой арендной платой, чтобы их могла увидеть публика. И, наконец, это стимулировало создание к 1937 году 30 государственных жилищных управлений ». Государственное жилье стало основой прав частной собственности, главной опоры американской жизни.Общая земля не была популярным понятием. Оппозиция со стороны Национальной ассоциации советов по недвижимости, сельских конгрессменов и республиканцев, выступающих против Нового курса, была жесткой, и законопроект не принимался в течение двух лет.
Другая причина заключалась в том, что президент Рузвельт не поддержал законопроект своим огромным политическим весом.
Его двоюродный брат, президент Теодор Рузвельт, был сторонником прогрессивного законодательства, но, несмотря на создание консультативного комитета по трущобам в 1908 году, он, как и большинство прогрессистов, не предпринял никаких дальнейших действий.Его отчет на 60-м Конгрессе слишком опередил свое время: в нем говорилось, что правительство должно предоставлять достойные жилища только на основе здравого смысла, если оно может построить тюрьмы для преступников, убежища для пострадавших, а также государственные школы и библиотеки.
Сенатор Вагнер повторил эту новую роль правительства в общенациональном радиообращении в апреле 1936 года: «[Жилищный закон] воплощает признание со стороны социально пробужденных людей, что распределение нашего национального дохода не было полностью справедливым и что частично субсидируемое жилье.как бесплатные школы, бесплатные дороги и бесплатные парки — это следующий шаг, который мы должны сделать, чтобы установить новый порядок ».
Франклин Рузвельт столкнулся с чрезвычайной ситуацией в стране, и 28 октября 1936 года в одном из своих первых публичных заявлений о жилищном строительстве он ясно дал понять, что — как и в Докладе 1908 года — федеральное правительство обязано обеспечить лучшее жилье для бедных. граждане Америки. В своем выступлении в районе сенатора Вагнера города Нью-Йорка президент сказал: «Мы слишком долго игнорировали жилищную проблему для всех наших групп с низкими доходами.Мы потратили большие деньги на парки. по шоссе. на мосты и музеи … но мы еще не начали тратить деньги, чтобы помочь семьям в перенаселенных районах наших городов жить так, как американские граждане имеют право на жизнь. Нам нужны действия, чтобы улучшить жилье. Мы с сенатором Вагнером надеялись, что на последней сессии Конгресса будет принят новый закон … Я уверен, что следующий Конгресс положит нам начало разумной жилищной политики ».
В своем ежегодном послании Конгрессу 6 января 1937 года президент Рузвельт снова говорил о жилье.«У нас все еще есть далеко идущие проблемы, для которых демократия должна найти решения… например, многие миллионы американцев по-прежнему живут в жилищах, которые не только не могут обеспечить физические преимущества современной цивилизации, но и порождают болезни и наносят ущерб здоровью будущих поколений. Угроза существует не только в трущобах очень больших городов, но и в небольших городах ». Это нашло отражение в одном из самых известных заявлений его президентства. В своей второй инаугурационной речи 20 января 1937 года он сказал:
«Я вижу, что одна треть нации живет в плохих жилищных условиях, плохо одета и плохо питается.
Сенатор Вагнер представил пересмотренный жилищный закон (S 1685) 24 февраля 1937 года. Представитель Демократической партии Генри Стигалл из Алабамы внес на рассмотрение Палаты представителей идентичный законопроект (H 1544). Не будучи большим сторонником государственного жилищного строительства, председатель Банковско-валютного комитета, тем не менее, был лоялен президенту, и когда Рузвельт высказался в пользу законопроекта о жилищном строительстве, Стигалл воспринял его как маршевый приказ.
Как уже говорили другие, больше всего способствовало формированию закона Вагнера-Стигалла не его содержание, а уступки, сделанные для умиротворения его оппонентов.В ходе обсуждения законопроекта в августе были предложены две поправки. Сенатор от штата Массачусетс Дэвид Уолш ввел меру, в которой говорилось, что на каждую снесенную при расчистке трущоб должна быть построена одна новая жилищная единица. Уолш не был сторонником государственного жилья; он считал, что это было неправильное использование государственных средств и прямая конкуренция с частным сектором. Он также считал, что это не служит бедным, и справедливо указал на арендную плату в Старой гавани в качестве доказательства.
Самая далеко идущая и опасная поправка была предложена сенатором Гарри Ф.
Берд из Вирджинии 4 августа 1937 г. Берд считал, что радикальная социальная философия мотивировала многие проекты общественных работ Нового курса и потратила впустую миллионы долларов. Поправка Берда установила ограничение на строительство в жилищном счете в размере 4000 долларов за 4-комнатную квартиру или 1000 долларов за комнату. В комитете конференции поправка Берда была пересмотрена и гласила, что для любого города с населением более 500 000 человек (например, Бостон, население которого в 1938 году составляло более 800 000 человек) предел стоимости квартиры будет составлять 1250 долларов за комнату, но не более 5000 долларов; во всех остальных городах сохранялось ограничение в 1000 долларов за номер.Комплекс Heath Street Development был спроектирован и построен таким, каким он был, из-за нереалистичных ограничений Берда по стоимости каждой квартиры.
В ответ на поправку Берда конгрессмен Джон О’Коннор из Нью-Йорка сказал в зале палаты представителей 18 августа 1937 года, что «невозможно ни в одном из городских округов построить один из этих проектов по цене 1000 долларов за штуку. комната или 4000 долларов за единицу. Два проекта [PWA] в Нью-Йорке, Гарлеме и Вильямсбурге, стоят 1600 долларов за комнату. Из всех пунктов счета это самый важный.С таким же успехом вы можете забыть о счете за жилье, если внесете поправку в ограничение в размере 4000 долларов за единицу. Это просто невозможно ».
Но Фрэнк Хэнкок, конгрессмен из Северной Каролины, думал о моральном духе тех, кто владел собственными домами «через самоотречение, бережливость и самодисциплину. Как вы думаете, что они почувствуют, когда увидят, что этот особый класс войдет в эти сравнительно роскошные апартаменты? Проекты, построенные PWA, превосходят дома средней семьи.Товарищи, давайте понаблюдаем за нашими шагами, потому что Бог знает, что мы на опасной территории. Не делай этого ».
Конгрессмен Маккормак сказал, что настоящей причиной столь сильного эмоционального противодействия законопроекту был «неоправданный страх».
Это было гуманитарное законодательство, и «мы не должны допускать этого чувства, чтобы помешать его принятию».
Закон Вагнера-Стигалла был принят Сенатом 6 августа 1937 года 40 голосами против 39. Два сенатора от Массачусетса разделились в голосах: сенатор Генри Кэбот Лодж поддержал законопроект, а сенатор Мартин Уолш проголосовал против.18 августа 1937 года Палата представителей приняла законопроект, в котором 275 членов одобрили государственное жилье, а 86 — против. В 75-м Конгрессе приняли участие 14 конгрессменов от Массачусетса, и все, кроме двух, проголосовали за законопроект, Джон МакКормак и Джозеф Кейси из Клинтона. Конгрессмены, представляющие такие города рабочего класса, как Линн, Сомервилль и Вустер, все выступили против закона о жилищном строительстве, включая представителя Эдит Норс Роджерс из фабричного города Лоуэлл. (В декабре 1937 года Лоуэлл получил 2 доллара.7 миллионов жилищных фондов в соответствии с законом Вагнера-Стигалла). Редакция писала в майском номере «Архитектурного форума» за 1938 год. «Для этой страны принять закон Вагнера-Стигалла — нелегкий подвиг…. [закон] рассматривает жилье не как занятость или меру восстановления, а как жилье . Конгресс был обучен новому подходу к жилью как к вечному социальному обязательству (курсив наш) ».
(18 января 1938 года The Federal Theater Project открыла в Нью-Йорке свой новый спектакль «Одна треть нации».Он был рассмотрен с фотографиями с постановки в февральском номере «Архитектурного форума». Когда «Форум» сообщил в своем мае, игра все еще была заполнена до отказа. Согласно выпуску 1938 года, пьеса «не лишена определенного случайного значения, поскольку звезда пьесы — не блондинка, а Жилищный дом». Жилищное строительство только что достигло своего политического большинства с принятием закона Вагнера Стигалла ». ).
Президент Рузвельт подписал Закон о жилищном строительстве Вагнера-Стигалла 1 сентября 1937 г. (50 Stat.888 1937). В его преамбуле говорится: «Настоящим политика Соединенных Штатов заключается в том, чтобы помочь нескольким штатам облегчить небезопасные и антисанитарные жилищные условия и острую нехватку достойного, безопасного и санитарного жилья для семей с низкими доходами».
Законопроект учредил Жилищное управление США (USHA), которое сегодня известно как Департамент жилищного строительства и городского развития. USHA было разрешено заключать 60-летние кредитные договоры с местными жилищными властями на оплату 90% стоимости жилищного строительства.Первые ассигнования составили 800 миллионов долларов; второе ассигнование 800 миллионов долларов, на которое была построена Хит-стрит, было санкционировано Конгрессом летом 1938 года без особого шума. После проблеска надежды в 1937 году депрессия омрачила страну в 1938 году, и Конгресс хотел возродить экономику.
Совет жилищного управления Бостона провел длительное обсуждение положений закона Вагнера на своем заседании 15 сентября 1937 года. В декабре 1937 года Лоуэлл и Бостон были уведомлены Жилищным управлением США (USHA) о том, что они получили разрешение на получение жилищных фондов.Бостон имел право на жилищный фонд в размере 9 миллионов долларов, и в том же месяце мэр Мэнсфилд заключил предварительное соглашение с USHA о трех застройках: Чарлстауне, Восточном Бостоне и Южном Бостоне.
Но Бостон не мог получить эти средства до тех пор, пока в Закон штата Массачусетс о жилищном строительстве не были внесены поправки в соответствии с законопроектом Вагнера-Стигалла.
Губернатор Чарльз Херли назначил Кристиана Хертера председателем комитета, отвечающего за внесение поправок в Закон о жилищном строительстве штата Массачусетс.
КНБК должно быть предоставлено разрешение на:
- Заключение соглашений с федеральными агентствами относительно заимствования средств.
- Заключите договор с федеральным правительством о покупке или аренде принадлежащего ему жилья. Это относилось конкретно к деревне Олд-Харбор, которая принадлежала Соединенным Штатам. Он не будет передан в КНБК до 31 декабря 1958 г.).
- Определите сумму денег, которая будет ежегодно выплачиваться городу вместо налогов на недвижимость. Недвижимость, принадлежащая жилищному управлению, считалась государственной собственностью и освобождена от налогообложения.

После того, как городской совет одобрил создание Управления жилищного строительства Бостона, мэр Фредерик Мэнсфилд назначил архитектора Джорджа Нельсона Джейкобса председателем этого органа из шести членов.Другими членами были архитектор Гарольд Филд Келлог, Джордж Грин, управляющий отеля Брэдбери Ф. Кушинг, Джон Кэрролл, председатель Государственного жилищного управления, и преподобный Томас Р. Рейнольдс, пастор церкви Святого Матфея в Дорчестере. (Последние двое были назначены Содружеством). В январе 1938 года преемник Мэнсфилда Морис Тобин заменил Джейкобса 33-летним Джоном А. Брином, вице-президентом Массачусетской биржи недвижимости. Это были люди, которые изменили жилищный ландшафт Бостона.
Дебаты по новому законопроекту о жилищном строительстве штата Массачусетс (H 1965) бушевали семь месяцев на протяжении 1938 года. Одно из первых заседаний состоялось перед Ассоциацией владельцев недвижимости Массачусетса 17 февраля 1938 года. Роберт Гарднер Уилсон, республиканец из отделения 17 в Дорчестере, сказал, что «проект Old Harbour находится в прямой конкуренции с владельцами частных домов, и ни один владелец частного дома не может конкурировать с ними… это действительно не американский. Мы должны бороться с социалистической политикой Нового курса ». Уилсон, который в 1938 году проработал в Совете 11 лет, в течение многих лет будет яростным критиком государственного жилья.По иронии судьбы, в его район входил приход Святого Матфея за пределами Кодман-сквер, церковь члена BHA преподобного Рейнольдса.
Противоположностью Гарднеру был советник Клемент А. Нортон из 18-го округа, в который входил весь Мэттапан и Гайд-парк. Он охарактеризовал себя как «друг Жилищного управления и сторонник того, что делает Управление». Нортон свидетельствовал на февральских слушаниях, что «частное здание признало свою неспособность обеспечить уход за третьим классом с самым низким доходом. Правительство должно… прийти им на помощь.Нравится нам это или нет, но расчистка трущоб надолго ».
«Горькие протесты владельцев собственности», — гласил заголовок «Вечерний глобус» от 6 июня 1938 г., в котором сообщалось об общественных слушаниях на h2965. «Возглавляла нападение г-жа Ханна Коннорс, президент Ассоциации владельцев недвижимости:« Федеральное жилищное строительство прокладывает путь к продвижению коммунизма в этой стране »».
Губернатор Херли подписал в июле Закон о жилищном управлении штата Массачусетс. 5, 1938 г. (Закон МГЛ, гл. 484 от 1938 г.).В его выступлениях в Доме штата мало говорится о жилье для семей с низкими доходами; он скорее подчеркнул, что закон увеличит занятость в строительной отрасли. К тому времени объем финансирования государственного жилищного строительства в Бостоне увеличился до 31 миллиона долларов, а две недели спустя официальные лица USHA приехали в город, чтобы вручить мэру Тобину первые 15 миллионов долларов в виде гарантий по ссуде. Они также обсудили с ним предлагаемые сайты, которые должны отвечать определенным требованиям Департамента закупок USHA.Советник Уилсон заявил в Globe 16 июля 1938 года в ответ на визит USHA, что «новое федеральное жилье не должно строиться до тех пор, пока Old Harbour Village не будет изучен, чтобы определить, наказываются ли владельцы недвижимости бесплатной недвижимостью, построенной с помощью федеральных властей. средств ».
В августе BHA начало готовить выпуск 15-летних облигаций для покрытия 10% стоимости жилья, за которую он несет ответственность. Согласно законам штата, сберегательные банки не могли инвестировать в облигации BHA, но все другие банки и финансовые учреждения были приглашены к участию.29 ноября 1940 года, когда началось строительство Хит-стрит, BHA заключило реструктурированный кредитный договор с USHA с процентной ставкой 2,5%.
В районах, намеченных для строительства государственного жилья, КНБК провела исследование существующих условий. То, что мы считаем автоматическим в том, как мы живем сегодня, не имело место для многих бостонцев в 1938 году: 92% жилых домов не имели центрального отопления, 47% не имели горячей воды и 20% не имели ванных комнат в квартирах, а были общие туалеты.
.Чтобы снизить свои затраты, BHA сузило выбор участков до земель, уже принадлежащих городу Бостону или находящихся в налоговом отчуждении города. Из земель, приобретенных для первых 4 застроек, 23% принадлежало городу. 24 октября 1938 года городской совет утвердил (17 к 3) контракт на обслуживание между BHA и городом Бостон для 4 жилых участков: Чарлстаун (Банкер-Хилл), Южный Бостон (Старая Колония), Роксбери (Мишн-Хилл) и Нижний Роксбери (Ленокс-стрит). The Globe сообщил, что перед голосованием «на 21 члена совета обрушилась лавина писем и телеграмм» за и против контракта.Лейбористы были решительно поддержаны, и представитель строительных профессий написал совету, что «в проектах будут задействованы тысячи людей, не получающих заработную плату WPA».
Чтобы остановить дальнейшее развитие государственного жилищного строительства, в ноябре 1938 года в 4-х отделениях был проведен референдум, не имеющий обязательной силы. (Ямайская равнина: от Форест-Хиллз до площади Эглстон) и Уорд 20, Западный Роксбери. Было проголосовано 30 685 против 14 170 за государственное жилье в этих районах.Когда BHA забирало землю, необходимую для строительства первых 4 домов, советник Гарднер встал на заседании совета и попросил мэра Тобина провести общегородской плебисцит по государственному жилью, прежде чем BHA представит свой десятилетний план размещения 35 000 семей. Основываясь на ноябрьском голосовании, он сказал: «Я знаю, что жители Бостона как минимум два к одному» против государственного жилья.
Тем не менее, государственное жилье было на грани того, чтобы стать частью архитектурного наследия Бостона. Летом 1939 года на противоположном склоне Паркер-Хилл от Хит-стрит застройка Ленокс-стрит началась.В июле КНБК произвела 4 выкупа земли площадью 5,75 акра между улицами Смит, Уорд и Паркер. В следующие несколько месяцев было снесено 742 ветхих многоквартирных дома. Архитектор Джордж Эрнест Робинсон спроектировал серию из 13 зданий напротив Smith Playground. Строительство началось 9 ноября 1939 года и открылось весной 1941 года.
В апреле 1939 года КНБК выбрала еще 4 участка для строительства государственного жилья: Роксбери (Орчард-Парк), Саут-Энд (Собор), Восточный Бостон (Маверик). и Хит-стрит на Ямайской равнине.Участок Хит-стрит (пронумерованный Массачусетс 2-7) граничил с Хит-стрит, главной магистралью с востока на запад; и Бикфорд и Уолден-стрит. В основе застройки лежала обувная фабрика «Завод». Место было выбрано по 5 основным причинам:
1. Это был разрушающийся район, который быстро распространял свою болезнь.
2. Земля может быть куплена по цене 1,50 доллара за квадратный фут в соответствии с требованиями USHA.
3. Удобно ехать на трамвае, поездом и автобусом.
4. Улицы могут быть закрыты в пределах, позволяющих хорошо спланировать участок.
5. Переселение нынешних жителей не представляло проблем.
Участок под застройку Хит-стрит занимал более десяти акров ровной земли в долине ниже Паркер-Хилла. В 17 веке эта земля была пастбищем, принадлежавшим семье генерала войны за независимость Уильяма Хита. После смерти генерала в 1814 году он был завещан его сыновьям. Начиная с 1860 года Мэри Хит, вдова Джозефа Хита, начала продавать ферму земельными участками.К 1873 году было построено шестьдесят пять многоквартирных и односемейных деревянных домов, а также кожевенная фабрика на том месте, которое стало Минден-стрит, когда оно было заложено в 1879 году. Это составляло половину жилого фонда, имевшегося на момент приобретения земли. BHA в 1940 году.
Этот участок находился в переписном участке V-6, который простирался от Хит-стрит до Дей-стрит. В 1935 году население составляло 1290 человек, и все они были белыми. В стране насчитывалось 621 строение, в которых насчитывалось 1459 жилых единиц. Более 1000 квартир не имели центрального отопления; единственным источником тепла была кухонная плита.
Это было в заводском районе Ямайка-Плейн: фабрика по производству обуви на Центре и улице, Chelmsford Ginger Ale Company на Хит-стрит и Moxie Bottling Company на Бикфорд-стрит, а также четыре других пивоваренных завода или завода по розливу были в пределах нескольких минут.
ходить. Это было удобно для разных видов транспорта: станция Хит-стрит железнодорожной компании Бостон и Провидент была в четверти мили, как и трамваи на Коламбус-авеню; Автобусы на Центральной улице проходят недалеко от многих домов.Также неподалеку были церковь Святого Причастия, школы Джефферсона, Моцарта и Булфинча, а также детская площадка Маклафлина.
Община была в основном итальянскими американцами, которые работали вышивальщицами на обувной фабрике или ремонтировали упряжи на заводах по розливу. (Напоминание об этом сообществе можно увидеть на пересечении Chestnut Avenue и Center Street, названного в честь капитана Питера Р. Мутаскио). На пивоварнях работала также небольшая группа немецких евреев.
Совет КНБК утвердил площадку 23 февраля 1939 г.Он был удобно расположен между двумя сквозными улицами, Уолденом и Бикфордом, которые соединяли Хит-стрит с Центральной улицей. В соответствии с условиями контракта, подписанного между BHA и USHA 10 марта 1938 г., в котором излагается договоренность, согласно которой обе стороны будут финансировать и строить проекты государственного жилья в Бостоне, жилье, которое будет построено на Хит-стрит, не будет назван в честь любого живого человека. Проект был назван просто в честь хорошо знакомой улицы, которая служила главным входом в апартаменты.(В USHA он назывался — и до сих пор является его преемником — Департаментом жилищного строительства и городского развития — как Mass 2-7).
Облигации на сумму 14 082 000 долларов США были разрешены USHA для продажи для строительства пяти жилых комплексов: Orchard Park в Роксбери, Lenox Street в Нижнем Роксбери, Heath Street, Maverick в Восточном Бостоне и Cathedral в Саут-Энде. (Начало войны отложило строительство Собора до 1945 года). У каждого проекта были счета в отдельных банках, одобренных USHA, на которые были депонированы выручка от продажи облигаций и использовались для расходов на изыскания, проектирование, проектирование, снос и строительство.3 января 1940 года было заключено соглашение о фонде развития для Хит-стрит в Национальном банке Вебстера и Атласа, расположенном в здании Sears Building по адресу Вашингтон-стрит, 199 (сегодня это место занимает One Boston Place).
Генри Ф. Брайант и сын 13 марта 1940 года заключили контракт на 2 885 долларов на обследование участка. Роберт Т. Фаулер из Ямайской равнины был одним из четырех оценщиков недвижимости, которая должна была быть приобретена. Переселение семей, проживающих на участке, происходило с сентября по ноябрь.
Большая часть землеотвода для Массачусетса 2-7 была завершена 30 июля 1940 года; шесть городских участков, ранее изъятых за неуплату налогов, были проданы BHA 8 октября 1940 года. В общей сложности 116 участков земли были приобретены выдающимся владением по цене 497 000 долларов. Одно здание было оригинальной школой Джефферсона, построенной тогдашним городом Роксбери на углу Уолден и Хит-стрит, которое на момент покупки BHA использовалось как мастерская по ремонту автомобилей. Контракт на снос был заключен в феврале 1941 года.В общей сложности было снесено 115 зданий, включая гаражи, конюшни и немало флигелей. Многие из зданий были в полуразрушенном состоянии, а некоторые были настолько опасными, что КНБК приказал их снести, как только они были куплены. Строительство шести внутренних улиц было прекращено, и они превратились в ровный участок, чтобы сделать участок примерно квадратным: улицы Арклоу, Улмер, Позен и Минден, Хит-плейс и Хит-авеню. Хоран-Уэй был проложен через застройку на той же линии Минден-стрит.
Все архитекторы, выбранные BHA, получили окончательное одобрение USHA на основании их руководящих принципов и структуры оплаты, а не по самой низкой цене, как того требует городской совет Бостона.М. А. Дайер был выбран архитектором проекта Heath Street Development 10 июля 1940 года.
Майкл Эндрю Дайер (1886 — 1954) родился в Мальдене в семье ирландских иммигрантов. Его отец Майкл-старший был плотником, который вскоре перевез семью в Медфорд; в 1888 году он был внесен в городской справочник Молдена как плотник-подрядчик. Молодой Майкл окончил среднюю школу Медфорд, а затем учился в Массачусетском технологическом институте; он не получил ученой степени.
Он присоединился к подрядному бизнесу своего отца на 26 Court Street в Молдене в 1907 году, где работал архитектором, пока в 1924 году не открыл свою собственную фирму.
Бостонский архитектор Роберт Нейли работал молодым чертежником в MA Dyer Associates в 1950 году и описал Майкла Дайера как «настоящего архитектора в старом смысле»; у него была хорошая традиционная подготовка и он знал, что делает хорошее здание ».
Будучи молодым учеником, Дайер начал свою профессию строителя, работая со своим отцом, поэтому он разбирался в материалах и строительстве раньше, чем в дизайне. В отличие от большинства современных архитекторов, которые не изучают штукатурку, каркас или кирпичную кладку, Дайер усвоил это еще в подростковом возрасте.Самый известный архитектор эпохи Возрождения из всех, Андреа Палладио был каменщиком по профессии, и, как и он, Дайер был в первую очередь торговцем. Более чем вероятно, что он работал со своим отцом над проектированием и строительством жилых домов и домов на одну семью в железнодорожных пригородах Малдена, Медфорда и Вобурна. Когда он открыл свою собственную практику, его работа перешла почти исключительно к общественным заказам. В 1931 году он был архитектором ратуши Вобурна, а в 1937 году его фирма спроектировала Мэрию Медфорда, его родной город (он выступал на церемонии открытия).
Контракт на проектирование на Хит-стрит, вероятно, был его первой работой в Бостоне, но не последней: он проработал в Бостоне до конца своей карьеры. В период с 1949 по 1954 годы M. A. Dyer Architects спроектировали еще четыре муниципальных жилых дома в Бостоне, включая огромные апартаменты Columbia Point в Дорчестере (сегодня известные как Harbour Point). В 1952 году он спроектировал центральное административное здание BHA на Кемп-стрит в Южном Бостоне (рядом со Старой гаванью), а в 1954 году М.А. Дайер спроектировал больницу Лемюэля Шаттака на Ямайской равнине.
Все его навыки строителя потребовались для проектирования домов на Хит-стрит, планы и спецификации которых контролировались ценовыми ограничениями Поправки Берда.
Закон Вагнера-Стигалла подчеркнул это, а также попытался успокоить отрасль недвижимости в преамбуле: «Такие проекты не будут иметь сложного или дорогостоящего дизайна или материалов, и экономия будет поощряться как в строительстве, так и в администрации, а средняя стоимость строительства не быть выше, чем средняя стоимость жилых единиц, производимых в настоящее время частным сектором.”
Планы были выполнены за три месяца, и 1 марта 1941 г. были утверждены разрешения на строительство 17 многоквартирных домов, в каждом из которых было по 24 квартиры, всего 420 жилых домов, административное здание и общественный зал. Вскоре после этого началось строительство. Самым большим многоквартирным домом был дом номер десять (90 — 98 Хит-стрит на углу Бикфорд-стрит), в котором было 36 квартир. Большинство многоквартирных домов имели одинаковые размеры; Здание номер один (170 Хит-стрит) на углу улиц Хит и Уолден было 158 футов в длину, 69 футов в ширину и 110 футов в высоту.Несущие стены были построены из кирпича с опорой из бетонных блоков. В доме № 170 по Хит-стрит было шесть, три и 1/2 комнаты; девяти, 5 и 1/2 комнатные и девять, 4 и 1/2 комнатные квартиры. Типичная спальня имела размеры 8 футов 9 дюймов на 14 футов десять дюймов, а кухня — в среднем 9 футов на 10 футов. В большинстве квартир на Хит-стрит (186 из 420) было 4 с половиной комнаты.
В многоквартирных домах есть дворы, предназначенные для сушильных дворов. игровые площадки и места для отдыха. Общественное здание, административный офис, электростанция и ремонтная мастерская выходили на покрытую травой игровую площадку для игр и массовых мероприятий.Второе открытое пространство для сидения и сада было предусмотрено за общественным / обслуживающим зданием. Дорожных улиц не было; схемы движения рассчитаны только на пешеходов. Две перпендикулярные стоянки под названием Horan Way были построены на Бикфорд-стрит и Уолден-стрит и заканчивались у детской площадки. Хоран-Уэй была главной внутренней магистралью, но была предназначена только для пешеходов.
Все служебные автомобили вошли в застройку с отдельной дороги от Бикфорд-стрит через сервитут, предоставленный заводской обувной фабрикой зданию технического обслуживания.
Правление BHA выбрало Халлама Л. Мовиуса, ASLA, в качестве ландшафтного архитектора и проектировщика площадки для Хит-стрит 11 июля 1940 года. Мовиус, офис которого располагался на Ньюбери-стрит, 115, также отвечал за планирование территории и озеленение Орчард-парка, который планировался и строился одновременно с Хит-стрит. Это были последние две работы, созданные Мовиусом; он умер 1 августа 1942 года в возрасте 61 года.
Мовиус родился в Буффало, штат Нью-Йорк, и провел три года в Гарвардской высшей школе ландшафтной архитектуры после получения степени бакалавра Гарвардского университета в 1902 году.Он был учеником ландшафтного архитектора Артура Шурклиффа в 1905 году, а затем работал с несколькими архитектурными фирмами, прежде чем открыть свой собственный офис в 1912 году (его партнером был архитектор Артур Дж. Ротч).
Его профессиональная деятельность простиралась от кладбищ до жилых кварталов, но его крупнейшими заказами были проекты университетских городков для Университета Буффало и Колледжа Боудоин в штате Мэн. Опыт Мовиуса в крупномасштабном планировании кампуса, а также его ранняя работа в штате архитектурных бюро сослужили ему хорошую службу в сотрудничестве с Дайером на Хит-стрит и архитектором Джоном М. Греем в Орчард-парке.
Однако явление озеленения муниципальных жилищных комплексов было очень новым для профессии. На 41-м ежегодном собрании Американского общества ландшафтных архитекторов (ASLA), состоявшемся в Вашингтоне в январе 1940 г., полный круглый стол был посвящен теме «Ландшафтный дизайн и жилье с низкой арендной платой» (см. «Ландшафтная архитектура», апрель 1940 г., стр. 132). . Встреча началась с признания, что «многие ландшафтные архитекторы испытывают очевидные трудности в решении проблем с озеленением в жилищных проектах.
Представитель USHA сказал, что для того, чтобы получить доход от работы с низкоарендным жильем, ландшафтный архитектор должен помнить два основных момента:
Во-первых, крупномасштабные программы государственного жилищного строительства требуют интеграции архитектора и ландшафта.
архитектор и инженер.
Во-вторых, каждый проект должен быть «упорядоченным, достойным, пригодным для жизни и очень недорогим».
Две проблемы, которые ландшафтный архитектор должен был решить при планировании государственного жилья, заключались в различной обработке поверхностей; детские площадки, проезжие дворы и общие пространства требовали различных материалов поверхности, будь то гравий, щебень, брусчатка или трава.
Во-вторых, изобретательность в выборе недорогого и выносливого растительного сырья. «Еще предстоит разработать жилищный проект, в котором участок будет застроен только деревьями и относительно нерушимыми небольшими растениями или, возможно, только деревьями в качестве растительного материала».
Дайер и Мовиус работали в команде более трех месяцев, чтобы разработать план, в котором жилье и открытые пространства были сбалансированы в гармоничном образце. В каждом здании, за исключением угловых, была своя сушильная площадка для стирки, зона отдыха и игровая площадка.Здания были сгруппированы так, чтобы крылья образовывали геометрические квадраты. В каждой квадратной форме Мовиус разместил игровые площадки и сушилки. Зоны отдыха были спрятаны внутри двух угловых входов в каждое здание. Все эти пространства имели твердое покрытие, но там, где сушильные площадки и игровые площадки были сделаны из битума, зоны отдыха были выложены брусчаткой. Были два больших общих пространства, которые BHA предназначались для сообщества в целом, а не как частный резерв для жителей комплекса.В центре плана участка была игровая площадка в полакра с бассейном с распылителем (вероятно, первый бассейн с распылителем на Ямайской равнине). Это было расположено рядом и служило открытой комнатой для социального зала. Вторым общим пространством был тенистый торговый центр длиной 550 футов под названием Plant Court, который простирался между задней частью общежития и служебным зданием до западной границы участка фабрики по производству обуви. Здания № 14, 15 и 16 выходят окнами на эту лужайку.
Мовиус позаботился о том, чтобы посадить зеленый край травы вокруг застройки, особенно на границах Хит и Уолден-стрит.Два угловых здания в Хит — Бикфорд и Хит — Уолден, а также Здание 17 (42 Уолден-стрит на углу Хоран-Уэй) имеют наибольшее количество газонов.
План посадки представлял собой богатую смесь деревьев, кустарников и виноградных лоз. Насаждения в фундаменте были сведены к минимуму, а виноградные лозы были посажены на ограждениях сушильных площадок и игровых площадок возле каждой квартиры. В здании №1 виноградные лозы клематисов были посажены вокруг забора сушильного двора. По углам здания были посажены ягоды, шелковица, жимолость и бирючина; Чтобы обеспечить немного уединения, зоны отдыха также были ограждены живой изгородью из бирючины.
Восемь различных сортов деревьев были посажены на протяжении всего застройки, включая липу. Американский вяз, платан. малолистный боярышник и аилантус. В доме номер один были посажены шелковица, медовая акация без шипов и клен обыкновенный (некоторые из последних до сих пор затеняют это угловое здание).
Компания John Bowen была выбрана подрядчиком 4 декабря 1940 года с предложением 1,6 миллиона долларов. (Боуэн построил жилые комплексы Bunker Hill и Maverick до войны, а Franklin Hill — в 1951–52).Снос строился полным ходом, когда Джон Брин, председатель BHA, сопровождал губернатора Леверетта Солтонстолла, мэра Мориса Тобина и Департамент жилищного строительства штата во время экскурсии по восьми строящимся или почти завершенным 24 января 1941 года строящимся или почти завершенным объектам.
Первоначальная цель Однако в 1941 году начали меняться площади государственного жилья. 27 мая 1941 года, в ответ на войну в Европе, президент Рузвельт объявил, что в Соединенных Штатах существует неограниченное чрезвычайное положение в стране. Темпы развития промышленности, связанной с войной, от кораблей до боеприпасов, резко возросли, а по мере роста занятости увеличилась и потребность в жилье для оборонных работников.
Однако, в отличие от 1917 года, в Соединенных Штатах уже строилось жилье в виде квартир с низкой арендной платой по всей стране. (К концу 1941 г. по стране было построено 143 200 единиц жилья). Для размещения рабочих верфи едва завершенный комплекс Old Colony Development в Южном Бостоне, расположенный в пределах видимости Old Harbour Village, был продан BHA федеральному правительству в феврале 1941 года за 21 530 000 долларов (санкционировано Законом Лэнхэма. PL 849. 76-й Конгресс ). 4 ноября 1941 года, когда Хит-стрит была построена более чем наполовину, BHA адаптировало резолюцию о предоставлении льготного жилья малообеспеченным работникам оборонных комплексов на Хит-стрит и Маверик-стрит.(Под низким доходом понималась годовая заработная плата не более 1768 долларов). После объявления войны месяцем позже квартиры во всех новостройках сначала предлагались оборонным работникам, имеющим право на доход.
6 января 1942 г. начальник строительства КНБК принял в качестве завершенных здания с первого по пятый и седьмой и семнадцатый. Через три недели вся разработка была признана завершенной.
Арендная плата за застройку Хит-стрит была установлена 6 января 1942 года:
В соответствии с законом Вагнера Стигалла не принималась семья, годовой доход которой в пять раз превышал годовую арендную плату.1 апреля 1942 года BHA повысило уровень доходов оборонных работников до 2800 долларов.
Квартира с четырьмя спальнями плюс коммунальные услуги, арендуемая по цене 18 долларов в месяц для семьи, годовой доход которой не превышает 918 долларов.
Для семьи с доходом 2596 долларов арендная плата за четырехкомнатную квартиру составляла 45 долларов.
Доход был одним из стандартов для определения права жильцов на жилье, другой — если семья жила шесть месяцев или дольше в некачественной квартире или доме. «Некондиционный» был определен как:
- Опасные; нуждаются в ремонте кровли, стен, ступеней или пола.
- Нет внутренних туалетов.

- Нет электричества.
- Нет проточной воды.
- Одна или несколько семей, проживающих в одной квартире.
В январе 1942 года было заключено 106 договоров аренды, и первые арендаторы начали снимать свои квартиры в следующем месяце. Дома на Хит-стрит были полностью заняты к ноябрю. Многие из арендаторов были семьями военно-морских служащих и служащих обороны. (После войны Хит-стрит стала домом для вернувшихся военнослужащих и их молодых семей.) Некоторые семьи по их просьбе были переведены на вересковую улицу из Старой гавани, потому что им нужна пятикомнатная квартира.
Окончательное свидетельство о праве собственности было получено BHA 25 ноября 1942 года. Разработка и строительство Хит-Стрит стоили 2 436 000 долларов.
The Heath Street Development решила две наиболее важные проблемы прежнего благотворительного жилья в Бостоне: как построить достаточно большое и с достаточным финансированием, чтобы снизить расходы и арендную плату, доступную для бедных. Несмотря на продуманное планирование и добрые намерения, все благотворительные жилищные программы, начиная с первой в 1871 году, сталкивались с этими двумя проблемами, а это означало, что по большей части построенное жилье было недоступно для работающих бедняков.Только у правительства США было достаточно капитала и ресурсов, чтобы снизить стоимость жилья.
Что самое важное, Хит-стрит была первым автономным сообществом, которое когда-либо видела Ямайка-Плейн. В соответствии с одной из основных идеологий реформаторов жилищного строительства эпохи Нового курса, государственное жилищное строительство было разработано как план поселка . Вудборн приблизился к общим зонам для садов, игровых площадок и общественному зданию; но Хит-стрит была упорядоченным сообществом с пространствами, индивидуально приспособленными для конкретных целей.У него была собственная отопительная установка, помещение для технического обслуживания, офис управления, общественные помещения, детская площадка, а также игровые площадки перед дверью квартиры, зоны отдыха и небольшой городок, общий для садов и более пассивного использования в задней части застройки.
Парковочные зоны и пешеходные дорожки были четко разделены; для матерей с детьми это было одно из самых безопасных мест на Ямайской равнине, потому что перед зданиями не было движения автотранспорта.
Архитектура Хит-стрит уникальна еще и потому, что ее планировка и архитектурный стиль были неизвестны до 1938 года.Реформаторы жилищного строительства и градостроители эпохи Нового курса выступали не только за жилье с низким доходом, но и за эгалитарный архитектурный стиль чистой функции, лишенный каких-либо исторических ссылок, такой как английский коттедж и колониальное возрождение в Вудборне, последнем благотворительном жилье. Дома на Хит-стрит были смесью американского города-сада, планирования изящных искусств и европейских инноваций.
В «Современном жилье» Кэтрин Бауэр объяснила, что «старые методы должны считаться устаревшими, а на их место должны быть установлены новые.Она выступала за автономный жилой район с центральной установкой для отопления и горячего водоснабжения
До 1938 года, когда открылась Старая гавань, единственным прецедентом строительства государственного жилья была Европа, а в 1920-х годах архитекторы-идеалисты и градостроители стекались в Германию, Голландию. . Швейцарии и Франции, чтобы увидеть, как будет выглядеть жилье в будущем.
«Бывают времена, — писал историк архитектуры Генри Рассел Хичкок в 1932 году, — когда новая [архитектура] действительно начинается». В Америке это было между 1932 и 1934 годами, когда европейские модели кластерного жилья были смешаны с международным стилем. стать современным жильем.
Дома на Хит-стрит следовали стилю Zeilenbau , состоящего из стандартных рядов, ориентированных с севера на юг для максимального утреннего и дневного света. Как показано на Хит-стрит, эти ряды были расположены рядами по оси с северо-востока на юго-восток под углом к главной улице. Такой тип жилья начали строить в Мюнхене и Берлине незадолго до Первой мировой войны и снова начали строить в других городах Германии в 1920-х годах.
Его основная характеристика заключалась в том, что это были большие, но невысокие трех- или четырехэтажные здания, построенные на широко открытых обычно ровных участках, в которых старые уличные узоры были разрушены для создания пространства свободной формы.Отойдя от обычно неорганизованной, часто узкой схемы улиц, градостроители могли свободно размещать здания в менее тесных местах, чтобы сделать поправки на освещение, вентиляцию, общественные места и детские площадки.
Дома на Хит-стрит были разбиты на блоки в форме буквы U, расположенные под углом 60 градусов к Хит-стрит и Уолден-стрит. Жилые дома разделены на пять внутренних дворов. В отличие от окружающего жилья, квартиры на Хит-стрит в целом относятся друг к другу, а не к городской улице.Эта концепция идеально вписывалась в идеологию реформаторов жилищного строительства того времени, которые хотели, чтобы стили жилья и модели строений полностью отличались от старых улиц с многоквартирными домами в трущобах. Трехэтажные здания на Хит-стрит вписывались в низкопробную жилую застройку остальной части района, но в остальном это был совершенно новый город.
В Бостоне стиль Zeilenbau был смешан со знакомым планом Гарден-Сити, лучшим примером которого является Вудборн.Жилые дома на Хит-стрит были (и остаются) среди затененных деревьями зеленых лужаек, дворов и детских площадок. (площадь с тех пор занята под парковку). Это классическая планировка Гарден-сити, но архитектура старалась изо всех сил быть бесполезно функциональной. Хит-стрит была построена в международном стиле, который Америка впервые увидела в 1932 году в Музее современного искусства, выставке, организованной Генри Расселом Хичкоком и Филиппом Джонсоном. Чтобы сопровождать экспозиции, Хичкок написал одно из первых в Америке описаний этой новой европейской архитектуры.
Международный стиль не имел истории. Он не был основан на греческих храмах. Французские замки, итальянские дворцы или японские пагоды. Хичкок писал, что это архитектура, основанная на экономике, а не на эстетике.
«Современное строительство — одно прямое выражение. Он использует стандартные детали и избегает орнаментов и ненужных деталей. Он адекватно, полностью и бескомпромиссно выполняет свою задачу ». Он выделил трех мастеров стиля: Вальтера Гропиуса и Миса ван дер Роэ в Германии и Ле Корбюзье во Франции.На выставке был показан жилой дом из Штутгарта, Германия, спроектированный Мисом в 1927 году, который имеет многие характеристики домов на Хит-стрит.
Хичкок описал четыре руководства международного стиля, каждое из которых проиллюстрировано на Хит-стрит.
- Объем больше массы. Истинный характер здания должен быть очевиден в конструкции. В домах на Хит-стрит несущие стены из бетонных блоков облицованы кирпичом, но они не выглядят тяжеловесными.Плоская крыша была важным эстетическим элементом стиля, так как не скрывала характер здания. Входы на Хит-стрит находятся по углам крыльев каждого блока, что добавляет зданиям уединенность и домашнюю атмосферу.
- Материал поверхности должен быть одной ровной текстуры. Самый дешевый кирпич часто бывает лучшим, потому что он сохраняет постоянный цвет, не трескается и не трескается, бывает разной формы и его можно укладывать с разными рисунками. Кирпич — также лучший материал для большого недорогого строительства.
- Здания должны иметь регулярный ритм в использовании стандартизованных деталей, форм и чувство порядка при размещении деталей. Это было прямым ответом на хаос архитектурных стилей, размеров зданий и переполненных улиц города 19 века. Удаление жилья из этого хаоса было одной из самых значительных проблем для реформаторов жилищного строительства на протяжении десятилетий. Заказ домов на Хит-стрит из стандартизированных материалов. единообразная масса и формальность изящного искусства в размещении зданий были в полной мере противоположны дезорганизованному жилищу, который он заменил.
- Избегание декоративных украшений и сдержанность в использовании цвета. Американская архитектура сокращала и упрощала использование фасадного декора с 1920-х годов, но особенно в стиле ар-деко коммерческих зданий 1930-х годов.



Перепланировка 2 комнатной хрущевки станет самым смелым и кардинальным решением в этой задаче.
Помост декорируют подсветкой, что придает помещению дополнительный уют. Такая мебель визуально расширяет пространство


Расцветка мебели перекликается с деталями и аксессуарами, будь то подушки для дивана, шторы или другие предметы.
Лучшие фото дизайна кухни гостиной




Добавить комментарий