Перепланировка двухкомнатной квартиры: Перепланировки двухкомнатной квартиры в хрущевке — фото и варианты планировки
Перепланировка двухкомнатной квартиры. Примеры и советы.
2. Согласованные варианты перепланировки 2-х комнатной квартиры.1. Перепланировка двухкомнатной квартиры. Особенности.
1.1. Перепланировка двушки в трешку.
Очень часто люди хотят увеличить количество жилых комнат в своей квартире. Такая перепланировка квартиры из 2-комнатной в 3-комнатную осуществляется двумя способами.
Первый способ осуществить такую перепланировку 2-х комнатной квартиры- это разделить перегородкой достаточно большую комнату с двумя окнами на две отдельные комнатыс одним окном:
Перепланировка двухкомнатной квартиры- до ремонта
Перепланировка двухкомнатной квартиры- после ремонта
Такая перепланировка двухкомнатной квартиры в трехкомнатную встречается достаточно часто. Однако далеко не во всех квартирах имеется большая комната с двумя окнами, а в соответствии с СП 54.13330.2016 устраивать жилые комнаты без естественного освещения не допускается, поэтому по закону сделать комнату без окна не получится.
На практике, если площадь позволяет, можно спланировать и тёмную жилую комнату, просто по документам следует назвать её подсобным помещением. Также, следует отметить, что в данном примере квартира располагалась на последнем этаже. В следствие этого удалось расширить кухню за счет площади туалета, так как над ней не оказались мокрые зоны соседей сверху.
Однако вместо этого, чаще всего используют второй вариант перепланировки 2-х комнатной квартиры в 3-комнатную, а именно осуществляют перемещение кухни с устройством на её месте кабинета (жилой комнаты). Подробно мы рассматривали все аспекты такой перепланировки в этой статье.
Если у Вас планируется такая переделка двушки в трешку, то рекомендуем Вам обязательно прочесть эту статью. Здесь лишь кратко отметим основное требование: перемещать кухню можно только на территории нежилых комнат, таких как коридор, кладовые, подсобные помещения и так далее. При этом необходимо, чтобы в новую кухню-нишу поступало естественное освещение, её площадь была не меньше пяти квадратных метров, и в неё не осуществлялся выход из санузла.
Перемещать или увеличивать кухни на территорию жилых комнат запрещено. Это возможно только в том случае, если этажом ниже под Вами находятся нежилые помещения, а не квартиры.
Такие же манипуляции с увеличением жилых комнат можно проделать и при перепланировке однокомнатной квартиры.
1.2. Перепланировка 2-х комнатной квартиры с затрагиванием санузлов.
Теперь рассмотрим чем может быть примечателен ремонт без увеличения количества комнат. Очень часто перепланировка 2-комнатной квартиры происходит с затрагиванием санузлов и ванных комнат. Очень подробно данную тему мы рассмотрели здесь.
Если у Вас намечается перепланировка двушки с изменением планировки санузлов, то обязательно ознакомьтесь с упомянутой выше статьёй. Такая перепланировка обладает значительным количеством нюансов, которые обязательно надо учитывать, чтобы затем не получить штраф и не переделывать ремонт.
Здесь, опять же, приведём лишь основной тезис: мокрые зоны можно перемещать или увеличивать также только за счет нежилых комнат. Залазить ими на жилые комнаты и кухни запрещено.
1.3. Перепланировка 2-х комнатной квартиры с затрагиванием балкона или лоджии.
Еще одним популярным мероприятием при осуществлении ремонта является совмещение балкона или лоджии с внутренними помещениями. Особенности и нюансы такой перепланировки мы также подробно рассматривали в отдельной статье.
При осуществлении такой перепланировки для её согласования и законности необходимо соблюдать достаточно много правил, так что, опять-таки, рекомендуем пристально изучить данную статью, если Вы в своей перепланировке собираетесь затрагивать каким-либо образом балкон или лоджию. Отметим лишь, что объединение пространства балкона или лоджии с внутренними помещениями невозможно. Между ними в обязательном порядке устанавливаются прозрачные двери, которые отделяют отапливаемые помещения комнат от неотапливаемых балконов и лоджий.
1.4. Другие работы при перепланировке двухкомнатной квартиры.
Помимо уже описанных работ при осуществлении переустройства 2-х комнатной квартиры, как и любой другой квартиры, следует помнить основные запрещенные к реализации работы:
- нельзя устраивать проёмы в несущих стенах без соответствующего усиления и разрешения автора дома;
- выполнять полы без звукоизоляции и гидроизоляции в санузлах;
- затрагивать вентиляционные шахты и уменьшать сечения вентканалов;
- выполнять штрабы в несущих стенах;
- присоединять газифицированные кухни к жилым комнатам;
- выполнять тёплые водяные полы и так далее…
Более подробно о всех этих запретах с ссылками на нормативные документы Вы можете прочесть в статье Незаконная перепланировка, чтобы не совершить соответствующих нарушений и избежать проблем с документами в будущем.
Во второй части статьи мы хотим привести согласованные идеи и примеры перепланировки двухкомнатной квартиры.
Надеемся, что некоторые из них помогут Вам определиться со своей планировкой квартиры, отметить какие-либо особенности и избежать нарушений. В большинстве примеров приведены планировки квартиры до и после ремонта. На одиночных изображениях демонтируемые перегородки обозначены штрих-пунктирными линиями, а возводимые закрашены сплошным цветом. Также приведены экспликации помещений (сканы кликабельны). С фото перепланировки двухкомнатных квартир Вы можете ознакомиться здесь.
2. Согласованные варианты перепланировки 2-х комнатной квартиры.
2.1. Башня Вулыха- перепланировка двухкомнатной квартиры.
До ремонта.
После ремонта.
Данная квартира располагается в кирпичном здании серии Вулыха. Это одна из лучших советских серий, в которой были спроектированы большие по тем временам квартиры с просторными лоджиями. Такие квартиры предоставлялись лучшим представителям советского общества: генералам, партийным деятелям, руководителям и т.д. в данном примере была произведена перепланировка двушки в трешку.
За счет уменьшения общей площади двух комнат удалось выделить отдельную жилую гостиную, к которой присоединили газифицированную кухню с раздвижными перегородками. Благодаря тому, что квартира находится на последнем этаже, немного расширили полученную гостиную за счет кухни, так как этажом выше нет кухни, которая располагалась бы над нашей гостиной. Также была ликвидирована перегородка между уборной и ванной комнатой. Согласование перепланировки подтверждено наличием соответствующего штампа МосЖилинспекции на листе с планировкой квартиры после ремонта.
2.2. Перепланировка двухкомнатной квартиры серии II-18.
До переустройства.
После переустройства.
В этом примере приведена перепланировка малогабаритной двушки в блочной серии домов. Ввиду того, что двухкомнатные квартиры в этой серии имеют достаточно маленькую площадь, в них трудно каким-либо кардинальным образом изменить планировку. В данном случае была увеличена площадь санузла на площадь коридора с осуществлением доступа на кухню через комнату.
Также была перенесена межкомнатная не несущая перегородка с целью увеличения площади маленькой спальни.
2.3.Перепланировка 2-комнатной квартиры.
До ремонта.
После ремонта.
На рисунках приведена типичная перепланировка двухкомнатной квартиры: санузел объединили и расширили на коридор, ведущий в кухню. Саму кухню присоединили к комнате. Между газифицированной кухней и залом установили раздвижные двери.
2.4. Перепланировка двушки-распашонки.
До ремонта.
После ремонта.
В большинстве квартир-распашонок основной проблемой является отсутствие возможности увеличения маленького санузла, так как в таком случае он перекроет проход в дальнюю комнату. Иногда удается перенос в коридор кухни с электрической плитой. В данном случае был расширен входной коридор за счет жилой комнаты, объединен и расширен за счет коридора санузел, а также срезан угол кухни.
2.5. Перепланировка двушки-распашонки в трешку.
До переустройства.
После переустройства.
В данном примере представлена перепланировка двушки в серии ИП-46с. Увеличить количество жилых комнат удалось за счет перемещения кухни на территорию коридора и кладовой. К сожалению, далеко не во всех распашонках присутствуют такие коридоры или кладовые с достаточной площадью для перемещения в них кухни. Также было произведено объединение мокрых зон в санузле.
2.6. Перепланировка двухкомнатной квартиры в серии И-155.
До ремонта.
После ремонта.
При этой перепланировке были изменены выходы на оба балкона с ликвидацией подоконных блоков. По требованиям закона были установлены французские окна. Большой санузел увеличили в сторону коридора. Второй санузел также расширили за счет кладовой и коридора.Помимо этого предусмотрели вход в кухню из гостиной с убирающимися в стену раздвижными дверьми, хотя ввиду электрической плиты их установка была необязательна.
2.7. Серия КОПЭ- перепланировка 2-комнатной квартиры.
До ремонта.
После ремонта.
Серия КОПЭ является панельной и большинство стен внутри квартиры относится к несущим, так что их затрагивание и, тем более, перенос невозможны.
Это накладывает большие ограничения на изменения в планировке. В представленном переустройстве была изменена конфигурация санузлов с увеличением их площади. При выходе на балкон убрали блок под окном и установили раздвижные двери.
2.8. Серия II-29- перепланировка двухкомнатной квартиры.
До переустройства.
После переустройства.
Серия II-29 является панельно-кирпичной и внутри квартир все перегородки запроектированы не несущими. При ремонте этой квартиры увеличили мокрую зону под установку душевой кабины. Предусмотрели объединение двух комнат в одну большую гостиную с проходом на кухню и выделением отдельной «темной» спальни.
2.9.Перепланировка 2-х комнатной квартиры-распашонки.
В этом случае ввиду расположения квартиры на последнем этаже удалось расширить достаточно тесную кухню за счет санузла, а также увеличить площадь жилой комнаты, демонтировав встроенные шкафы.
2.10. Перепланировка 2-комнатной квартиры в кирпичном доме.
На иллюстрации показана перепланировка с осуществлением большого количества работ, главными из которых являются демонтаж подоконных участковс установкой французского окна и распашной двери.
Как видно из представленных примеров перепланировка двухкомнатной квартиры, в том числе в трехкомнатную квартиру, в современных домах может быть осуществлена относительно легко, с достаточным количеством вариантов планировок и дизайнов интерьеров. Особенно это касается монолитных домов, где мало несущих стен. А вот перепланировка двушки в кирпичных и панельных домахсопряжена с массой преград и чаще всего допускает реализацию лишь простых мероприятий. Здесь выкроить ещё одну комнату очень сложно, особенно в квартирах с газовой плитой.
В завершение статьи мы приведем пример разрешения на переустройство 2-комнатной квартиры.
2.11. Перепланировка П-44т- двухкомнатная квартира. Разрешение.
Если у Вас возникли какие-либо вопросы по перепланировке двухкомнатной квартиры, то Вы всегда можете обратиться к нам.
Перепланировка двухкомнатной квартиры в трехкомнатную и не только, примеры и проекты для хрущевки и других, идеи с примерами и фото
Ремонт в квартире — трудоёмкий процесс.
В то же время это необходимость, без которой дома невозможно чувствовать себя комфортно и уютно. Перед тем как приступить к работе, следует определиться, что именно вы хотите увидеть в итоге. Уже давно прошли времена, когда все граждане нашей страны имели одинаковое жилище с однотипной мебелью и стандартным расположением кухни и санузла.
Не всегда количество комнат и их размеры совпадают с нашими желаниями и потребностями. К счастью, перепланировка двухкомнатной квартиры уже давно не является чем-то нереальным. Приведённые ниже варианты возможно использовать в качестве основы для собственного ремонта. А, может быть, эти проекты помогут вам создать свой уникальный дизайн.
Как сделать перепланировку в двухкомнатной квартире — идеи с фото
В процессе ремонта часто необходимо объединить комнаты или изменить их параметры путём сноса базовых перегородок. Для того чтобы в дальнейшем не возникло проблем, первым делом в соответствующих органах следует получить разрешение на демонтаж стен.
От того, какие функции будет выполнять то или иное помещение, зависит выбор материалов для создания новых конструкций. В ванной комнате должны быть влагостойкие стены. В кухне чаще всего крепятся тяжёлые навесные шкафы, об этом необходимо помнить в момент установки перегородок.
Из двухкомнатной в трёхкомнатную
Если в двухкомнатной квартире проживает семья из нескольких поколений, каждому из них необходимо иметь свою комнату. При этом должен быть общий зал, где семья будет проводить свободное время. Рассмотрим несколько вариантов увеличения количества жилых помещений.
Некоторые новые дома имеют выгодную планировку, в которой при желании можно увеличить количество комнат. Идеально, если каждая из них будет иметь окно. Когда по проекту дома в гостиной расположено 2 оконных проёма — её легко можно разделить на 2 небольшие спальни. Такое деление будет оправданным при условии, когда первоначальное жилое помещение имело площадь не менее 18 кв. м. В противном случае можно получить две неудобные кладовые, непригодные для жизни.
Третья комната, ранее выполняющая роль спальни, может стать гостиной.
Деление гостиной с двумя окнами — хороший приём при перепланировке
Объединение кухни с коридором и незначительное уменьшение комнат позволит создать полноценную гостиную-столовую. Скруглённые стены с одной из сторон сделают возможным размещение большого обеденного стола без заметной потери жилого пространства. В этом случае следует позаботиться об освещении в центральной комнате. Необходимо компенсировать отсутствие естественного дневного света в зоне приёма гостей.
Один из вариантов перепланировки двушки
Если в квартире имеется лоджия с глухими стенами по бокам, её можно преобразовать в комнату для подростка. При этом варианте следует позаботиться о хорошем утеплении всех стен, пола и потолка. Не стоит забывать, что у соседей сверху и снизу эта часть помещения скорее всего нежилая, поэтому не отапливается.
На лоджии можно обустроить удобную комнату для подростка
Жители первого этажа часто прибегают к увеличению балкона путём его выдвигания.
В этом случае комната может иметь полноценный размер. Однако многие умудряются сделать это и на верхних этажах. Такие конструкции в обязательном порядке необходимо согласовывать с городскими службами. Разумеется, делать подобные наращивания должны только профессионалы.
Некоторые расширяют квадратные метры зя счёт увеличения площади балконов и лоджий
Всем известно, что на кухне должен быть яркий свет. Отличным вариантом станет её перенос на балкон, при условии, что в первоначальном варианте он имелся на кухне. В этом случае появляется дополнительная комната, которую можно использовать в качестве гостиной. Такие преобразования также необходимо согласовывать с ЖЭК и другими инстанциями.
Альтернативным вариантом станет перенос кухни на лоджию
Примеры перепланировкы двушки в «хрущёвке»
В странах бывшего Советского Союза все ещё распространены так называемые хрущёвки. Они относительно недорогие по стоимости, однако расположение и размеры комнат зачастую очень неудобны.
Неоспоримым преимуществом является то, что практически все внутренние стены не являются несущими, а значит их можно ломать, предварительно получив на это разрешение.
Смежные комнаты допустимы в случаях, когда в квартире живёт молодая пара. Но если приходится существовать нескольким поколениям вместе, необходимо разделить спальни, чтобы не смущать тех, чья комната является проходной. За счёт зала увеличивается коридор, из которого в разные стороны будут уходить комнаты. Между ними можно установить вместительный гардероб. Полученная «распашонка» создаст необходимое личное пространство для каждого члена семьи.
Пример перепланировки двухкомнатной квартиры «чулка»
Ещё один вариант смежных комнат решается путём разделения последней на две небольшие спальни, создающие индивидуальное пространство для каждого живущего поколения.
Из одной комнаты можно сделать две смежные
Перенос входа в кухню со стороны гостиной позволит увеличить ванную за счёт коридора. Учитывая небольшой проектный размер зоны приготовления еды, можно объединить комнаты.
При помощи цветовой гаммы интерьера возможно гармоничное сочетание двух разных помещений.
При правильном сочетании цветов вы получите уютный интерьер
Любители свободного пространства предпочитают снести максимальное количество перегородок и установить вместо них фальш-панели, разделяющие зоны. Такая идея часто применяется в планировке, называемой «чулок», когда квартира вытянута в одну сторону. При демонтаже стен появляется ощущение большого количества воздуха. Зрительно увеличивается размер помещения.
Чтобы сделать комнаты просторнее, можно убрать лишние перегородки
Считается, что небольшие квартиры должны быть представлены в светлых тонах. При этом важно не впасть в крайность. Слишком бледные помещения рискуют стать скучными и незаконченными. В интерьере рекомендовано применять три основных цвета, один из которых может быть вызывающе ярким.
Правильно подобранные цвета играют важную роль при обустройстве интерьера
Варианты переделки двухкомнатной квартиры-брежневки
На смену «хрущёвкам» пришли «брежневки» – дома, построенные в период правления Брежнева.
Они имеют немного больший размер в сравнении с предшественниками. Санузел стал раздельным. Комнаты расположены изолировано друг от друга, что значительно улучшает условия проживания. Однако кухни по-прежнему остаются небольшими, их площадь не превышает 7 квадратов.
Расширение лоджии за счёт гостиной позволит увеличить количество жилых комнат.
Лоджия позволит расшить жилые комнаты
Объединение ванной и туалета увеличит полезную площадь, появляется возможность установки стиральной машинки.
Объединение двух санузлов позволит увеличить полезное пространство квартиры
Демонтаж стены между кухней и залом и установка между ними гипсокартонной конструкции с расширенным нестандартным проёмом позволит сохранить зональность и визуально увеличит пространство.
Расширить пространство позволит демонтаж стены между кухней и гостиной
Объединение комнаты с лоджией является популярным решением. При этом все чаще в процессе ремонта отказываются от демонтажа стены под окном.
Её используют в качестве основы для стола.
Стену под оконным проёмом используют для установки стола
Основная проблема — маленькая кухня, решается путём увеличения этой зоны за счёт зала. Если не устанавливать между этими помещениями дверей, кухонный пол из кафеля можно вынести в гостиную, и разместить там обеденный стол. Визуально это не уменьшит жилую комнату, но увеличит зону приготовления еды.
Столовую зону можно вынести в гостиную
Перепланировка двушки со смежными комнатами
Смежные комнаты удобны, когда в квартире проживает один человек или пара без детей. В этом случае проходная комната может выступать гостиной, а вторая — зоной для сна. Но что делать, когда необходимо оборудовать две спальни?
Самым простым вариантом становится разделение дальней комнаты на две идентичные. В этом случае образуются независимые друг от друга спальни. Одна из них не будет иметь окон. Это значит, что на этапе ремонта нужно позаботиться о возможности яркого освещения помещения.
При перепланировке учитывайте, что в одной из комнат нужно обеспечить хорошее освещение
Если вторая комната имеет размеры, не превышающие 15 квадратных метров, не рекомендовано разделять её глухой стеной. Можно предложить вариант уменьшить первую проходную комнату за счёт образования коридора, ведущего во второе помещение.
Пример перепланировки двушки
Ещё одним вариантом может стать создание небольшого кабинета или спальни внутри проходной комнаты. При этом гостиную увеличить путём её объединения с кухней.
В проходной комнате можно обустроить и рабоче место
Интересным выглядит решение с нестандартной стеной, разделяющей дальнюю комнату на два небольших помещения. В каждой из спален появляется ниша для встроенного шкафа.
Пример квартиры до и после перепланировки
Выделив в гостиной спальную зону, можно также решить проблему неудобства смежных комнат. При таком проекте ни одна спальня не будет проходной комнатой. Зал значительно уменьшается, к тому же остаётся без дневного освещения.
Но это легко решается при помощи правильно расставленного света и использования цветовых акцентов в интерьере.
При такой планировки площадь зала уменьшиться, но правильное освещение и акценты в интерьере помогут сделать комнату уютной
Переделка с выносом кухни в коридор
Классическим американским стилем являются квартиры, которые начинаются с кухни. Без лишних перегородок помещение плавно переходит в гостиную. И только спальни принято выделять в отдельные комнаты. Ярким примером такого обустройства являются квартиры, показанные в знаменитом сериале «Друзья». Основные события происходят как раз в подобных жилищах главных героев.
Помещение плавно переходит из коридора в кухню, затем в гостиную
Весьма необычно смотрится планировка квартиры с кухней в коридоре. Но практика показала, что такое расположение удачно. Основной треугольник — расстояние между мойкой, холодильником и плитой, можно расположить в удобной плоскости. При этом остаётся много рабочего пространства для нарезки продуктов.
Следующее помещение — гостиная, одновременно выполняет роль столовой, где можно поставить большой обеденный стол.
Стоит помнить, что такая перепланировка обязательно нуждается в получении письменного разрешения во всех задействованных инстанциях в связи с переносом водопровода, газопровода, канализации и вентиляции. Непосредственно перед кухней необходимо позаботиться о зоне для уличной обуви.
Большую прихожую можно использовать в качестве кухонной зоны. Очень важно продумать варианты освещения, ведь его придётся использовать в любое время суток.
Часть прихожей можно использовать в качестве зоны для кухни
Для удобства зону приготовления еды, расположенную в коридоре, защищают гипсокартонными конструкциями.
Разделить простанство можно с помощью перегородок из гипсокартона
Глянцевая поверхность визуально расширяет пространство, поэтому на узкой кухне хорошо будет смотреться такая мебель с минимальным количеством выпирающих деталей.
Глянцевая поверхность визуально расширит пространство
При переносе кухни в прихожую образуется дополнительная полноразмерная комната, которую можно использовать в качестве гостиной.
Остальные две комнаты выполняют функции спален.
Такой способ перепланировки позволит сделать жилую комнату
Из двушки в студию
Если в двухкомнатной квартире проживает один человек или молодая семья без детей, очень удобно объединить кухню с гостиной. При этом образуется увеличенное пространство, которое можно использовать для различных целей. Создавая студию, важно выделять функциональные зоны. Для этого совсем необязательно нужны стены или массивные перегородки.
При помощи изменения уровня потолков и покрытия на полу можно разграничить место для приготовления еды и зону отдыха.
С помощью мебели можно зонировать пространство
Любители большого открытого пространства отдают предпочтение единому помещению. Для этого они объединяют обе комнаты с кухней и получают максимально возможную площадь. Для спального места выделяется небольшая зона, отделённая лёгкой перегородкой. При правильно подобранной цветовой гамме жилище будет выглядеть уютным, иметь собственный стиль и настроение.
Правильная расстановка мебели позволит создать удобное жилище
Барная стойка или полуостров станет отличным вариантом разделения зон в студии. Кроме того, на кухне необходимо установить возможность яркого освещения. Навесной потолок в едином стиле с общим интерьером в месте приготовления еды также поможет гармонично разграничить пространство.
Барная стойка может быть использована для деления комнаты на зоны
При использовании контрастных цветов в интерьере важно правильно подобрать их сочетание. Для этого используют цветовой круг.
При выборе цветовой гаммы для интерьера удобно пользоваться специальным цветовым кругом
Он помогает выбрать гармонирующую расцветку. Важно помнить, что оптимально использовать три основных цвета в помещении. Меньшее количество приведёт в блёклости и безжизненности, избыточное обилие расцветок создаст агрессивное настроение в помещении.
В этом примере используется три основных цвета: зелёный, чёрный и оттенки натурального дерева
Вытянутые квартиры-студии можно зрительно расширить, используя освещение, направленное от потолка на стены. При этом не стоит делать слишком ярких акцентов в интерьере. В такой планировке больше подойдут пастельные тона.
С помощью освещения можно зрительно расширить пространство
В статье были предложены различные варианты перепланировки двухкомнатных квартир. В зависимости от того, сколько человек проживает в доме, создаётся необходимый проект. Смежные комнаты не подходят для большой семьи. В то же время молодая пара, не планирующая в ближайшем будущем обзаводиться потомством, наоборот, чаще всего будет разрабатывать вариант планировки с центральной комнатой, из которой будут выходить все остальные помещения. Необходимо придерживаться определённых правил по разделению зонирования пространства, оформляя его при помощи света, цвета, функциональной мебели и декора.
Оцените статью: Поделитесь с друзьями!Не нашли то, что искали? Вернитесь к поиску планировок квартир по параметрам типового проекта. Поддержите проект, расскажите о tipdoma.com в социальных сетях:
Перепланировка двухкомнатной квартиры в трехкомнатную: variatika — LiveJournal
Дизайн квартиры в жк Life Волжская площадью 62 м². При перепланировке удалось избавиться от большого коридора, увеличить санузел и сделать из 2х комнатной квартиры 3х комнатную. Кухня расположена на месте коридора, кухня, гостиная и прихожая объединены в общее пространство. А на месте бывшей кухни расположилась будущая детская комната.
В прихожей используются деревянные стеновые панели. Зеркальный шкаф для верхней одежды встроен в гардеробную. Для освещения применяются хрустальные светильники, оформленные потолочными кессонами. На полу керамогранит под натуральный камень.
Кухонный гарнитур подобран современный. Вся техника встроенная. Бирюзовый цвет стен и плитки на фартуке добавляет яркие акценты в интерьер. Классические массивные стол и стулья выполнены натурального дуба.
Чтобы разделить вытянутое пространство кухни и гостиной, решено было сделать между ними портал, выделенный цветом.
В гостиной использованы спокойные пастельные тона. Белая мебель придает легкость и воздушность интерьеру. Обои с рисунком кружева поддерживают голубой цвет на кухне.
В спальне бежевые цвета сочетаются с глубоким синим. В гардеробную ведет раздвижная дверь-пенал, которая прячется в стену и экономит пространство. Текстиль поддерживает общую цветовую гамму.
Рядом с несущей стеной образовалась ниша , в которую поместился небольшой будуар. Потолок в нише и возле окна опущен, чтобы сделать скрытый карниз для штор. И придать правильную, прямоугольную форму помещению.
В детской в отделке стен применяются моющиеся бумажные обои с растительными мотивами. Светлая мебель в стиле прованс выполнена из массива сосны.
В ходе перепланировки образовалось ниша, под встроенный книжный стеллаж. Текстиль из одной коллекции с обоями повторяет цвет и рисунок. Такая детская со временем подойдет и для младшего школьника.
Лоджию к спальне присоединять не стали, но хорошо утеплили. Для отделки использовали панели ЛДФ под покраску.
В результате перепланировки удалось увеличить санузел за счет коридора. Это добавило достаточно места, чтобы устроить нишу для стиральной машины и разместить просторную широкую столешницу с раковиной.
Перепланировка двухкомнатной квартиры многоэтажного дома
Какие изменения нельзя узаконить?
Поскольку речь идет о квартире, то понятно, что она находится в многоквартирном доме. Для таких домов действуют особые правила переустройства, которые необходимо знать каждому.
Важно! Если требования закона нарушены, будет проблематично узаконить сделанную перепланировку двухкомнатной квартиры.
Запрещено при перепланировке квартиры:
-
переносить санитарные зоны на территорию жилых помещений;
-
объединять кухню и ванную;
-
продлевать коридор или холл за счет жилой комнаты;
-
соединять лоджию с кухней и/или комнатой, разрушая несущую стену;
-
переносить жилые комнаты так, чтобы они находились над или под санитарными зонами соседей;
-
добавлять дополнительные санузлы;
-
добавлять несущие элементы, делать надстройки в лоджиях, балконах, кроме первого этажа;
-
если квартира на последнем этаже, изменять конфигурацию общей крыши дома;
-
менять стандартную высоту (2,5 м) потолка в жилом помещении;
-
делать жилую комнату без естественного освещения в виде окна/балкона.
Комплексный ремонт квартир под ключ
Всё включено
В стоимость ремонта входит всё: работы, материалы, документы.Без вашего участия
После согласования проекта мы беспокоим хозяев только при сдаче ремонта.Цена известна заранее
Стоимость ремонта фиксируется в договоре.Фиксированный срок ремонта
Ремонт квартиры под ключ за 3,5 месяца. Срок закреплен в договоре.
Еще действует правило, согласно которому если перепланировка двухкомнатной квартиры затрагивает часть коммунальной собственности дома, то необходимо коллективное разрешение жильцов. Иначе обустройство не будет узаконено, а хозяина ждут неприятности в виде штрафов и судебных разбирательств.
Важно! Изучить полный список запретов и требований можно в ЖК РФ, в 1 пункте 26 статьи.
Общая характеристика двухкомнатной квартиры многоэтажного дома
На примере стандартной двушки площадью 44 м2 опишем устройство квартиры.
Прихожая отсутствует, ее заменяет крохотный коридор. Он соединяет санузел, кухню, одну из жилых комнат. Санузел на схеме совмещенный, но может быть и раздельным, площадь не превышает 6 м2. В домах постройки начала 2000-х предусмотрены гардеробные. Иногда есть небольшой балкон (3-5 м2). Порядка 40 % площади занимает гостиная, отделенная дверью. Площадь кухни может быть 9-10 м2.
Просится вариант демонтажа перегородки гостиной с кухней и что-то сделать с гардеробной. Допустимо совмещение с лоджией (изменение несущей внешней стены).
Вопрос по поводу лоджии спорный. Если не трогать цокольную стену, то все хорошо. Если же пробивать дополнительный оконный проем, могут возникнуть проблемы на этапе узаконивания.
Варианты перепланировки
Из двушки — трешку
Осуществляется двумя способами:
Перегородка в одной из комнат, конечно, самый простой вариант перепланировки двухкомнатной квартиры. Однако тут есть два нюанса.
Первый. Для комфортного проживания требуется естественный приток света, то есть наличие окна.
Второй. Если окна нет, то по документам и требованиям санитарных норм комната будет проходить, как подсобное помещение со всеми вытекающими отсюда ограничениями. Иначе согласовать такую планировку не получится.
Теперь перейдем к вопросам, связанным с перепланировкой отдельных зон двухкомнатной квартиры.
Как быть с кухней
Ах, как заманчиво дополнить площадь наших крохотных кухонь пространством жилых комнат или ванной! Здесь неопытных хозяев квартир подстерегает множество препятствий.
Они связаны с:
-
постановлениями правительства;
-
санитарными нормами;
-
Жилищным кодексом;
-
газовой службой;
-
БТИ;
-
Жилищной комиссией.
Расширить кухню за счет жилой комнаты можно, если плита не газовая, а электрическая. Иногда БТИ требует, чтобы жилая зона отделялась ширмой или раздвижной дверью.
Перегородка между кухней и комнатой не должна быть несущей. И, естественно, неукоснительно должно соблюдается правило с нижними жильцами. Если они есть, то перемещение невозможно.
Как быть, если перегородка несущая? Манипуляции с перегородкой запрещены, поскольку ее невозможно сдвинуть или убрать совсем. Допускается лишь пробить проем, поставить раздвижную дверь.
Расширение в коридор, холл
Рассмотрим ситуацию, когда владелец выполнил требования и увеличил кухню за счет коридора. Это еще не конец, ведь его ждут новые обязательства:
-
новое помещение кухни должно обеспечиваться потоком естественного света;
-
площадь должна быть не менее 5 м2;
-
нет входа из ванной комнаты.
БТИ требует размещение мойки не над жилыми помещениями соседей снизу. Но ничто не мешает перенести другое оборудование на территорию жилой комнаты: холодильник, шкафчики, стол, расширив таким образом кухонное пространство.
Важно! Без согласования разрешено передвигать плиту только на длину газового шланга (до 4 м).
Не забудьте пригласить комиссию на окончательную проверку газового хозяйства ДО установки мебели.
Важно! Разрешение на перемещение выдается районной Жилищной комиссией, и действительно оно 1 год.
Перепланировка санузлов
Санузлы расположены в зоне, которой закон уделяет повышенное внимание. Варианты следующие:
-
увеличить площадь за счет подсобных помещений;
-
увеличить санузел за счет кухни или жилой комнаты;
-
поменять местами ванную или мойку в комнате;
-
гидроизоляция;
-
расположение двери.
Рассмотрим варианты подробнее. Общее правило при перепланировке ванных комнат — дверь должна выходить в коридор, а планировка должна быть разрешена Мосжилинспекцией.
Вопрос «вторжения» в жилую или кухонную зону регулирует СаНПиН (2.1.2.2645-10), СП (54.13330.2016). Запрещено «переносить» ванную комнату в любую из спален или гостиных – так «мокрая зона» окажется над комнатами соседей снизу, что закон не одобряет. Даже если вы дополнительно установите гидроизоляцию (даже в несколько слоев), такую перепланировку не одобрят.
Расширение ванной комнаты возможно только, если под ней нет жилых помещений. То есть это удовольствие доступно владельцам квартир на первом и втором этажах (когда первый занят под административные нужды).
Важно! Любые перепланировки перегородок или стен санузла двухкомнатной квартиры требуют отдельного проекта, который утверждается Мосжилинспекцией.
Еще момент, связанный с гидроизоляцией, регулирует СНиП «Полы». Требование — предусмотреть порожек из ванной комнаты высотой 15-20 мм, чтобы вода не вытекала в соседние помещения при прорыве.
Перепланировка лоджий, балконов
Одна из актуальных тем перепланировки двухкомнатной квартиры — как быть с балконом? Логичное решение – объединить балкон с кухней или жилой комнатой. Впрочем, часто закон против такого решения проблемы. То же самое касается расширения проемов в цокольных стенах больше, чем предусмотрено проектом здания.
Проблема в том, что подобные перепланировки законодательство относит к реконструкции (согласно ГК, статья 1, п.14). Без разрешения комитета Мосгосстройнадзора проект о перепланировке сразу «заворачивается» Жилищной комиссией.
Главная причина отказа перепланировки двухкомнатной квартиры в том, что расширение лоджии на площадь кухни/комнаты изменяет систему отопления, увеличивая нагрузку на сеть. Несколько двухкомнатных квартир не создадут особых нагрузок, но если это поставить на поток, то уровень температуры в других квартирах будет неуклонно снижаться. А ведь всего до 2012 года это разрешалось, даже было предписано ПП № 508. После вала жалоб граждан, у которых зимой промерзали внешние стены, а осенью покрывались грибком из-за таких перепланировок соседей, практика расширений лоджий была остановлена.
Само Постановление тоже претерпело изменения, в него добавили п.10.19, который запрещает подобную процедуру. Между балконом и внутренним помещением должны быть прозрачные распашные/раздвижные двери. Это главное условие для позитивного ответа Жилищной инспекции.
Ремонтные работы при перепланировке
Можно испугаться наличию всех этих запретов. Некоторые из них действительно актуальны в вопросах безопасности жильцов, другие, кажется, порождены бурной фантазией создателей.
Хороший способ обойти множество препятствий — поручить перепланировку опытному подрядчику, строительной компании.
Преимущества такого решения:
-
Специалисты сделают замеры помещения и проконсультируют, какую перепланировку одобрят, а какую скорее всего «завернут».
-
Проект готовится дипломированным архитектором.
-
Ремонт состоит из нескольких этапов, которые может контролировать заказчик.
-
Составляется смета работ. В случае комплексного ремонта/перепланировки будет озвучена стоимость 1 квадратного метра. То есть отпадет необходимость в проверке сметы и других затрат.
-
Качество перепланировки заказчик проверяет поэтапно, недоделки устраняются сразу.
Как итог, на выходе заказчик получает профессионально сделанный ремонт, который можно будет легко узаконить. Даже если инициатива «завернется», архитектор и дизайнер посоветуют альтернативы. Например, если хочется увеличить метраж кухни, а с лоджией ее объединить не дали – можно «поиграть» со встроенной мебелью-трансформером, добавить воздушности за счет цветов и организовать правильную эргономику. На работы дается гарантия строительной компании-подрядчика.
Резюме
Мы рассмотрели некоторые варианты перепланировки двухкомнатной квартиры. Описаны положения законодательства, регулирующие данное мероприятие. Отличие квартиры многоэтажного здания от частного дома — действуют более строгие нормы, правила, допустима меньшая вариативность перепланировок. Поскольку квартира является составной частью всего здания, владельцы обязаны учитывать интересы соседей, а не только собственные желания. В противном случае неизбежно наступят последствия в виде штрафов, запретов, судов.
С другой стороны, соблюдая требования закона, можно легко сделать перепланировку с помощью подрядчика. Такое сотрудничество сэкономит массу времени, сил, средств, и главное — убережет от непростительных ошибок. Тогда заказчик получит на выходе то, что он ожидает: светлую, просторную квартиру, где можно жить с комфортом.
Опубликовано: 05.06.2021 Автор: Наталья (контент-менеджер)
Перепланировка двухкомнатной квартиры
Согласно Жилищному кодексу РФ, перепланировкой считается любое изменение конфигурации помещений по сравнению с первоначальным планом БТИ.
При этом нужно понимать, что перенос ненесущих стен, изменение параметров дверных и оконных проемов, увеличение или уменьшение помещений, замена сантехнических приборов, а также проведение любых других мероприятий при перепланировке двухкомнатной квартиры требует предварительного согласования с контрольно-надзорными органами.
Этапы согласования перепланировки двухкомнатной квартирыПрежде чем перейти непосредственно к описанию процедуры согласования перепланировки двухкомнатной квартиры, рассмотрим перечень мероприятий, которые в таком согласовании нуждаются.
Итак, если вы решили при проведении перепланировки двухкомнатной квартиры:
- переставлять кухонную плиту или заменять газовую плиту на электрическую;
- переносить или изменять границы туалета/ванной комнаты;
- устраивать/заделывать проемы в стене или межэтажном перекрытии;
- изменять конструкцию полов в помещениях;
- демонтировать/возводить ненесущие стены;
- переносить кухню;
- устраивать балкон/лоджию;
- демонтировать подоконный блок между внутренним помещением квартиры и балконом/лоджией,
то вам предварительно нужно получить на такие работы разрешение Государственной жилищной инспекций (для квартир в Москве) или местной администрации (для квартир в городах Московской области).
Получение разрешения – это лишь один из этапов согласования перепланировки двухкомнатной квартиры. А полностью данный процесс в хронологическом порядке выглядит следующим образом:
1-й этап – сбор документов.
2-й этап – получение разрешения на перепланировку.
3-й этап – сдача сделанного ремонта приемочной комиссии.
4-й этап – обмер обновленной квартиры и оформление в БТИ нового технического паспорта с внесенными изменениями.
Для получения разрешения на перепланировку двухкомнатной квартиры вам точно понадобятся:
- Заполненный бланк заявления.
- Свидетельство о праве собственности.
- Технический паспорт квартиры.
- Техническое заключение от лицензированных экспертов о том, что перепланировка в квартире возможна.
- Проект перепланировки, содержащий все решения по изменению текущей конфигурации квартиры.
В каждом отдельном случае этот комплект документов может дополняться другими официальными бумагами. С их перечнем можно ознакомиться в этой статье.
Полный пакет документов необходимо передать в жилищную инспекцию, единственную организацию в городе Москве, уполномоченную согласовывать перепланировки квартир. Передача документов осуществляется через районный центр госуслуг «Мои документы».
Начинать перепланировку двухкомнатной квартиры можно только если ваш проект чиновники «пропустили» и вы получили разрешение на работы. В ином случае ваши действия будут расцениваться как незаконные.
Решение о согласовании перепланировки (не только двухкомнатной, а любой другой квартиры) принимается в течение 20 рабочих дней. Срок действия разрешения – 12 месяцев со дня подписания.
Однако на этом взаимодействие с жилищной инспекцией не будет завершено, поскольку представитель инспекции после завершения перепланировки посетит квартиру и сверит фактический ремонт с тем списком мероприятий, которые было разрешено проводить.
Если при перепланировке двухкомнатной квартиры были реализованы только те виды работ, на которые собственник ранее получил разрешение, то оформляется акт о завершении перепланировки.
Где заказать техническое заключение и проект перепланировки двухкомнатной квартирыЕсли перепланировка связана с затрагиванием несущих стен и перекрытий, то возникает необходимость в оформлении технического заключения от автора проекта дома о возможности перепланировки. На основании этого ТЗ разрабатывается проектная документация, согласуемая с Мосжилинспекцией.
Проект перепланировки двухкомнатной квартиры может разрабатываться либо автором дома, либо организацией с допуском СРО (например, нашей компанией – мы имеем данный допуск).
Варианты перепланировки двухкомнатной квартирыДавайте кратко рассмотрим самые популярные идеи перепланировки двухкомнатной квартиры.
Наиболее часто собственники хотят объединить кухню и комнату, а также ванную и санузел. При перепланировке двухкомнатной панельной квартиры важно учитывать, что стена между кухней и комнатой скорее всего будет несущей (в большинстве серий, но одно из исключений составляет серия 1-515), что обусловлено конструктивными особенностями панельных домов. Полный демонтаж несущей стены невозможен, допускается только дверной проем с усилением металлоконструкциями по проекту.
Кроме того, в несущей стене иногда могут располагаться вентиляционные каналы (например, в серии И 209А), наличие которых ограничивает параметры проема.
Если же стены ненесущие, то это позволит полностью убрать перегородку между кухней и комнатой, а к получившейся столовой добавить часть коридора. Но, скажем, при перепланировке двухкомнатной квартиры в хрущевке, полного объединения перечисленных помещений достичь не удастся – помешает газовая плита (газифицированные кухни должны отделяться сдвижной перегородкой).
При объединении ванной и туалета получившийся совмещенный санузел обычно расширяют. Делать это можно только с использованием площади прилегающего нежилого помещения, причем с укладкой гидроизоляции по проекту.
Также стоит отметить, что перепланировка двухкомнатной квартиры часто предполагает изменение числа жилых комнат. В этом плане наиболее востребована перепланировка двухкомнатных квартир в трехкомнатные, что позволяет выделить дополнительное изолированное пространство для членов семьи. С этой целью обычно одна из комнат делится надое перегородкой. Главное тут сделать так, чтобы новообразованная комната отвечала всем нормативам по площади и инсоляции (об этом подробнее по ссылке).
Иногда случается и наоборот — собственник желает сделать перепланировку двухкомнатной квартиры в однокомнатную. То есть необходимо демонтировать одну из межкомнатных стен, чтобы получить одно просторное помещение. Если комнаты отделены друг от друга ненесущей перегородкой, это удастся согласовать без проблем, а вот несущую стену снести никак не удастся.
Также существует путь согласования перепланировки типовой двушки по готовому проектному решению от ГУП МНИИТЭП (для серии дома, разработанной этим институтом).
Типовой каталог см. здесь (часть А) и здесь (часть Б)
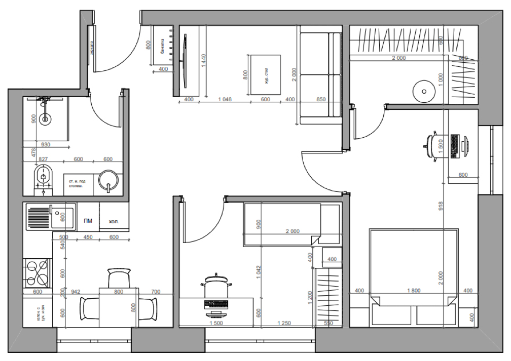
Перепланировка двухкомнатной квартиры: фото проектовПроекты перепланировок двухкомнатных квартир от ГУП МНИИТЭПДвушки в сериях домов П 44, П-3, II-57 и П-30
Проекты перепланировок двухкомнатных квартир от АПБ 1Перепланировка 2 комнатной квартиры в КОПЭПри осуществлении данной перепланировки на часть площади коридора расширили туалет с ванной, в комнате и коридоре устроили по одному встроенному шкафу, а на кухне переставили электрическую плиту.
Пример проекта перепланировки 2 комнатной квартиры в II-18, планы до и послеИзменение конфигурации ненесущих перегородок, перенос газовой плиты, создание совмещенного санузла.
Перепланировка двухкомнатной квартиры в серии 1-511Демонтирована перегородка между гостиной и кухней, на ее место установлена раздвижная с плотным притвором (на кухне газ. плита). Эта же гостиная также объединена с коридором путем демонтажа перегородки между ними. В соседней комнате установлена новая перегородка делящая ее примерно поровну на жилую зону и гардеробную.
Перепланировка двухкомнатной квартиры распашонки в серии И-155Интересная идея: перенос кухонного оборудования в коридор и создание пятиметровой кухни ниши в нем. В одном из санузлов проведен перенос унитаза с инсталляцией в короб. Кроме того, в ненесущих перегородках сделаны два арочных проема.
Перепланировка двухкомнатной квартиры П 44Объединение ванной и уборной, демонтаж дверного блока между кухней и примыкающим коридором, а также перенос электроплиты.
Перепланировка 2 комнатной квартиры в монолитном домеКухню перенесли в коридор и устроили кухню-нишу. Совмещенный санузел расширили на гардеробную. Гостиную перенесли в жилую комнату. В коридоре устроили встроенный шкаф. В помещении бывшей кухни организовали рабочий кабинет.
Перепланировка двушки серии II-18-12Это пример очень простой перепланировки с демонтажем ненесущей стены между кухней и комнатой и установкой раздвижной двери и сносом перегородки ненесущего типа с дверным блоком между комнатой и коридором.
Еще образцы наших проектов перепланировки 2х комнатных квартир:
Перепланировка хрущевки с 2 смежными комнатами и кладовкой
Перепланировка 2 х комнатной квартиры в новостройке
Проект перепланировки стандартной двушки в блочном доме И209А
Перепланировка двушки в II-18
Еще одна двухкомнатная квартира в серии II-18
2 комнатная квартира в II-29
Перепланировка 2х комнатной хрущевки
Перепланировка двухкомнатной квартиры линейки
Устройство совмещенного санузла в двухкомнатной квартире
Перепланировка 2 х комнатной кирпичной хрущевки
Перепланировка в II-03
Перепланировка хрущевки с 2 смежными комнатами
Перепланировка квартиры двушки
Проект перепланировки 2 комнатной квартиры
Проект перепланировки двушки в панельном доме
Перепланировка двухкомнатной квартиры 70 кв. м
Перепланировка с разделением лоджии
Перепланировка 2 комнатной квартиры в 3 комнатную
Перепланировка 2 х комнатной брежневки
Перепланировка 2х комнатной квартиры
Расширение коридора за счет жилой комнаты
Перепланировка двушки в панельном доме
Перепланировка 2 комнатной квартиры 60 кв. м
Проект перепланировки двухкомнатной квартиры
Перепланировка квартиры 38 кв. м
Перепланировка 2 комнатной квартиры 45 кв. м
Читайте также:
Проекты перепланировок однушек
Перепланировка трехкомнатных квартир
Проекты перепланировок 4 комнатных квартир
Варианты перепланировки двухкомнатной хрущевки
Многие семьи интересуются, как изменить дизайн двухкомнатной квартиры, расположенной в типичной хрущевке. Это объясняется небольшими размерами помещений такой жилплощади. Кроме того, их невыразительный дизайн требует внесения некоторых корректировок. Хочется оптимально распределить доступное пространство, сделав его более привлекательным. Для таких квартир даже создаются стандартные проекты перепланировки.
Чтобы сделать правильный выбор, следует познакомиться с особенностями таких проектов, а также с основными проблемами. Существует несколько вариантов перепланировки двухкомнатной хрущевки, которые довольно практичны и популярны. Особенности работ по перестройке квартиры следует выяснить еще до проведения работ.
Основные варианты
Стоит вспомнить, что первая линия производства таких зданий была закуплена во Франции. Во многих крупных странах строились подобные дома. В Советском Союзе их возведение было окончено к 1985 году. К этому моменту было построено около 300 млн. кв. м.
Существует несколько вариантов планировки двухкомнатных квартир, которые устраивались в таких домах:
Таких вариантов планировки квартир сегодня очень много, поэтому необходимость их обустройства в современном дизайне очень высока.
Главные проблемы
Несколько десятилетий назад квартиры в домах типа «хрущевка» были очень востребованы и желанны. В них обычно переселялись из коммунальных квартир и общежитий. В свое время хрущевки совершили своего рода революцию в домостроении. Сегодня же качество жилищных условий повышается, поэтому многие хозяева квартир в хрущевках сталкиваются со множеством проблем.
Что представляет собой однотипная квартира в хрущевке? Такая жилплощадь характеризуется наличием смежных жилых помещений, небольшой (6 кв. м) кухней и совмещенным санузлом. Прихожая тоже имеет достаточно скромные размеры. Одним из распространенных вариантов является двухкомнатная квартира. Жилая площадь равняется 25-31 кв. м при общей площади квартиры в пределах 46 кв. м. Такая квартира представлена на фото.
Высота потолка в комнатах относительно небольшая – не более 2,6 м. При этом балкон тоже не отличается большими габаритами. Капитальные стены имеют толщину не больше 32 см, а перегородки выполняются 7-9 см.
В условиях современности хозяева двухкомнатных квартир в хрущевках желают повысить комфортность пребывания в своем жилище. Они стараются найти оптимальный вариант дизайна комнат, который бы соответствовал площади имеющихся помещений и их расположением относительно друг друга. Одним из возможных вариантов является кардинальная перестройка квартиры. В этом случае межкомнатные стены сносят, а вместо этого создается единое помещение. Этот способ осложняется необходимостью обращаться в определенные органы для согласования своих действий.
Вторым вариантом является перестройка отдельных частей квартиры. Благодаря этому возможно совмещение отдельных комнат. К примеру, можно сделать из кухни и коридора одну комнату. Дизайн квартиры создается при помощи создания определенного стиля, без перестроек.
Обустройство квартиры без перепланировки
В случае когда перепланировка двухкомнатной хрущевки невозможна, можно выбирать из множества элегантных решений. Одной из основных задач является зрительное расширение комнат. Существует несколько путей решения такой задачи:
- Дополнительная площадь может быть получена при сооружении декоративных элементов квартиры из гипсокартона. За основу выбираются ниши, стеллажи и полки.
- Если увеличить проемы дверей или окон, или сделать их арочными, комнаты визуально увеличатся практически на 25%.
- Для проходных комнат двухкомнатной квартиры можно соорудить раздвижные двери. Такое решение сэкономит пространство и поможет создать оригинальный дизайн.
- Сделать интерьер разных комнат более привлекательным, а помещение – объемным, позволит зеркальная отделка различных поверхностей квартиры.
Создание оригинального дизайна комнат для двухкомнатной хрущевки без перепланировки является очень востребованной задачей. Если радикальные методы неприемлемы, придется обходиться стандартными средствами. Иногда достаточно хорошего ремонта квартиры. Перепланировку при этом проводить не придется. Важно учитывать несколько основных моментов:
- Цвет мебели и стен квартиры. Если использовать светлые тона, пространство будет визуально увеличиваться. Это объясняется тем, что свет отражается от таких поверхностей. Однако светлые зоны квартиры придется чаще очищать, что является неоспоримым недостатком такого решения. Однако популярность метода с использованием светлых оттенков достаточно высока. Оригинальный дизайн квартиры с использованием разных цветов можно видеть на фото.
- Генеральная уборка комнат. Лучше убрать из виду те предметы, которые не используются чаще, чем раз в неделю. Их можно выбросить или положить в складскую ячейку. При таком решении шкафы в квартире будут использоваться более рационально.
- Во время ремонта следует ближе познакомиться с проектами европейских и азиатских дизайнеров для квартир площадью от 15 до 20 кв. м.
Лучше, если квартира будет перепланирована в соответствии с ее размерами, однако такого редко удается добиться. Однако полезных идей при просмотре фото готовых проектов квартир можно почерпнуть немало.
Дизайнерские хитрости
Чтобы максимально расширить пространство комнат, понадобится создать оптимальное сочетание материала отделки поверхностей, их оттенка и рисунка. Дизайн двухкомнатной квартиры обычно выполняется в соответствии с такими профессиональными хитростями:
- Если использовать яркие, кричащие тона, пространство комнат будет визуально сжиматься. Для его расширения лучше использовать светлые, пастельные оттенки.
- Помещения малой площади отделываются орнаментом или мелким рисунком (как на фото).
- Белые потолки в комнатах – отличное решение, если хочется зрительно увеличить высоту помещения.
- Если создать потолок разноуровневым, можно обеспечить необходимый эффект высоты. Обычно для этой цели применяется гипсокартон. Усилить полученный эффект позволяет грамотно выбранное освещение.
- Пол в любой комнате допустимо выполнять ярких или светлых цветов. Главное условие – его оттенок должен вписываться в общую палитру комнаты. Если оттенки выбраны правильно, стены будут визуально раздвинуты.
- Важным этапом является выбор мебели для каждой комнаты. Предметов мебели в двухкомнатной квартире должен быть необходимый минимум. Они выбираются таким образом, чтобы сочетаться с общим оформлением. В маленькие комнаты необходимо устанавливать складные диваны и столы, а также комоды с большим функционалом.
- При правильном выборе фотообоев можно создать ощущение визуальной безграничности комнаты.
- В общий стиль помещения можно вписать занавески. Громоздкие шторы не годятся для маленьких комнат. Кроме того, занавески не должны быть темных оттенков. Они визуально скрадывают пространство комнаты.
Учитывая такие советы, можно визуально увеличить пространство помещения и сделать интерьер более оригинальным (как на фото).
Необходимые документы
Если решено проводить перепланировку комнат, понадобится обращаться в специальные органы. Они должны обладать определенной компетенцией. Обычно это органы местного самоуправления, которые отвечают за конкретный дом.
Собирать документы, которые понадобится предоставить в определенные органы, лучше заранее:
- Технический паспорт квартиры. Подойдет и кадастровый.
- Документ, согласно которому владелец жилья имеет квартиру в собственности.
- Проект перепланировки.
- Заявление владельца квартиры, в котором указано описание перепланировки. Чтобы получить бланк, на котором оно будет написано, придется обращаться к специальной комиссии по данным вопросам. Чтобы было дано разрешение, в документе должны стоять подписи каждого жильца, прописанного в квартире.
- Некоторые дома являются архитектурными сооружениями, что требует получения разрешения от местной организации, охраняющей памятники культуры.
Дополнительных документов потребовать не должны.
Сроки получения документов
Владелец квартиры подает документы комиссии и должен получить за них расписку. Рассмотрение плана перепланировки комнат осуществляется в течение 1,5 месяцев. Рассмотрение обычно не длится больше указанного срока.
По истечении определенного срока пакет будет заверен. Его передают на руки владельцу квартиры. Теперь можно приступать к перепланировке комнат. Однако комиссия не всегда может удовлетворить заявку. Обычно это происходит в следующих случаях:
- Пакет документов оказался неполным.
- План не учитывает определенные требования и нормы.
- Документы направлены не в ту комиссию. Чтобы этого не произошло, следует сначала точно узнать, где находится орган управления, который может заниматься такими вопросами.
При неправомерном отказе решить вопрос можно через суд. Однако при правильном сборе пакета документов и соответствии плана перепланировки квартиры всем требованиям отказывать в заявлении управляющий орган не станет.
Подготовка к работе
Во время перепланировки двухкомнатной квартиры в хрущевке следует учитывать стандартные варианты оформления комнат. Однако они чаще всего не учитывают желаний владельцев жилплощади. В этом вопросе можно ориентироваться на уже имеющиеся модели планировки комнат, однако об индивидуальность в таком случае придется забыть.
Лучший способ создать интерьер комнат, который бы отвечал собственным желаниям – перепланировка квартиры. Перед такой серьезной работой следует выполнить план помещения. Схема двухкомнатной квартиры включает:
- схему проводки;
- количество устанавливаемых розеток;
- метраж комнат;
- толщина перегородок и стен;
- расположение труб водопровода.
Сегодня существует множество компаний, которые специализируются на анализе различных квартир и обустройству разных комнат. Однако выгоднее создать собственный проект и согласовать его с опытным сантехником и электриком.
Использование перепланировки комнат
Один из самых востребованных вариантов дизайна хрущевки является совмещение одной из жилых комнат с кухней. Когда перегородка между этими помещениями будет снесена, следует позаботиться о визуальном разделении зон. Они должны изящно сочетаться друг с другом. Можно выделить такие зоны – зона приема пищи, готовки и приема гостей.
Во время работ следует придерживаться ряда требований:
- Каждый член семьи должен иметь выделенную только для него личную зону.
- Если объединять гостиную и кухню, следует четко ограничить рабочую территорию, где будет располагаться плита и мойка, а также холодильник со шкафами.
- Нередко в такой квартире обустраивается место для компьютера, место отдыха, рабочий кабинет. Следует выполнять ограждения очень легкими. Стационарные перегородки между комнатами лучше не ставить.
- Для разграничения зон следует использовать барную стойку, стеллаж, стол, разноуровневые полки, лучше осуществлять зонирование с использованием разных цветов интерьера, или при помощи изменения уровня потолка и пола.
Очень элегантно выглядит ячеистая и ажурная конструкция, по которой вьются растения. Кухню обычно выделяют дополнительно при помощи точечных светильников.
Нитяные шторы
Стена, находящаяся между смежными помещениями, просто сносится во время перепланировки двухкомнатной квартиры. Однако разграничивать пространство все же придется. Для этого можно использовать нитяные шторы. Они отлично пропускают воздух и свет. Такие изделия способны придать помещению современный вид. При этом зонирование комнат осуществляется очень эффективно. Если нитяную занавеску захочется убрать, это можно сделать в любой момент. При этом комната станет визуально больше.
При помощи нитяных штор в квартире можно создать модный дизайн. Таким изделиям присуща практичность и высокие декоративные свойства. Разнообразие цветовых решений позволяет разграничивать пространство максимально эффективно.
Минимализм
Нередко выбор стиля интерьера требует правильного декорирования комнаты. Поскольку полученные в результате перепланировки помещения имеют большую площадь, их следует грамотно обставлять. Самый разумный выбор стиля – минимализм. Такое решение позволит сделать двухкомнатную квартиру в хрущевке современной и стильной.
Оттенки при оформлении комнат выбираются светлые. Это позволяет расширить пространство. Кроме того, такие тона положительно воздействуют на эмоциональный фон. Более популярными являются бежевый, синий и белый цвета.
Различие дизайнерских решений
Для двухкомнатных квартир подходит множество вариантов перепланировки. Одним из проектов является квартира-офис. Большую комнату при его выборе объединяют с кухней и прихожей. В результате получается очень просторное помещение. Оставшееся помещение становится спальней. В комнате большого размера создается рабочий кабинет. Его отделяют при помощи прозрачной перегородки. Цветами и освещением выделяют остальные зоны – прихожая, кухня, место приема пищи в кругу семьи.
В совмещенном санузле тоже необходимо выполнить определенное зонирование. Вместо ванны сидячего типа, следует установить душевую кабину и стиральную машину. Сюда же может поместиться и столешница. При такой перепланировке квартира пространство используется более рационально. При этом в имеющейся жилплощади можно выделить гардеробную, гостиную, санузел, кабинет для работы.
Другим проектом, который довольно популярен среди владельцев двухкомнатных квартир в хрущевках – «квартира на троих». Такой вариант подразумевает соединение прихожей с большой комнатой. Однако гардероб при этом не переносится в спальню. Кухню ограничивают при помощи раздвижной перегородки. Электроплиту и холодильник сдвигают в нишу. Спальня уменьшается на 6-12 см. Такой вариант оформления квартиры довольно популярен.
Еще одним решением для перепланировки квартиры является проект, при котором формируются изолированные комнаты. В этом случае получается 2 спальни, полностью отделенные друг от друга. Между помещениями формируется небольшой коридор. Здесь монтируют перегородку с дверью. Прихожая при этом станет длиннее. Это пространство можно использовать для гардероба. В результате такой работы получаются довольно маленькие комнаты, однако они полностью изолируются друг от друга. Закуток, который образовывается между комнатами, превращается в кладовую.
Чего не следует допускать
При перепланировке небольшой квартиры можно создать оригинальный дизайн и обустроить квартиру согласно своим потребностям. Однако при этом важно помнить о некоторых запретах:
- Несущие стены трогать запрещено. Это же правило касается опорных элементов. Для таких работ обычно составляется особый проект.
- Место монтажа унитаза менять не рекомендуется.
- Вентиляционная система должна остаться незатронутой.
- Запрещено переносить газовую плиту или закрывать к ней доступ.
Конечно, двухкомнатная квартира в хрущевке не дает такого простора воображению при перестройке, как другие варианты жилья, но создать современный дизайн в ней можно. Основное правило – визуально расширить пространство.
Как демонтировать перегородки
Работы по переустройству квартиры выполняются с достаточно большим количеством строительного мусора. Во время сноса перегородок осуществляется очень много работ, связанных с образованием пыли и мусора. Это касается сноса стен или выполнения в них проемов для дверей.
Лучше на время перепланировки вынести из квартиры мягкую мебель, ковры и одежду. При отсутствии такой возможности все эти вещи сносятся в один угол, подальше от места проведения работ, и накрываются пленкой.
Затем следует подготовить мусорные мешки. Существует несколько способов демонтажа перегородок. При выполнении таких процедур следует учитывать время – лучше, когда соседи находятся на работе. Кроме того, важно выполнять снос стен таким образом, чтобы количество пыли было минимальным.
Чтобы определиться, какой способ сноса перегородок лучше, следует обратить внимание на советы опытных строителей:
- Внутренние стены между комнатами в хрущевках хорошо поддаются демонтажу. Выполняются такие работы при помощи электроинструментов. Их использование сокращает временные затраты. Сперва следует определить, из чего выполнена перегородка. В двухкомнатной квартире в хрущевке.
- Демонтировать гипсовую перегородку можно при помощи сабельной пилы. Стена при этом срезается небольшими кусками.
- Перед разрушением стены в ней необходимо проделать отверстие 8х12 см. при помощи сабельной пилы несложно прорезать гипсовую стену насквозь.
- Разрушать стену намного легче, если под рукой имеется самодельное приспособление, именуемое «крокодилом». Инструмент можно изготовить из 2 отрезков арматуры и лома. Прутья приваривают к концу лома, усиливая их распорками. Арматуру необходимо заточить.
Если двухкомнатную квартиру решено перепланировать самостоятельно, можно потратиться только на консультацию архитектора, сантехника и электрика. Все работы по демонтажу стен и отделке помещений легко выполнить своими руками.
Отправить комментарий
Перепланировка двухкомнатной квартиры в трехкомнатную
Самая распространенная просьба у заказчиков — это сделать из двухкомнатной квартиры трехкомнатную или из трехкомнатной четырехкомнатную.
Получить дополнительную комнату можно за счет переноса кухни.
Кухню нельзя переносить на жилую комнату. Кухню нельзя увеличивать за счет жилой комнаты.
Исключения, квартиры под которыми располагаются нежилые помещения. Это первые и вторые этажи.
Кухню можно переносить и расширять за счет нежилых помещений (коридоры, кладовые).
Т.е. чтобы получить дополнительную комнату кухню можно перенести в коридор. А на месте кухни сделать комнату.
Есть ряд нюансов по переносу кухни:
— площадь кухни должна составлять не менее 5м2 (эти 5м2 должны располагаться на нежилой площади).
— в кухню должен поступать естественный свет из окна (инсоляция кухни).
Это значит, что в кухне либо должно быть окно, либо свет должен поступать из другого помещения через светопрозрачные конструкции (фальш-окно, перегородки и двери со стеклом).
Есть такое определение как «кухня-ниша» и по нему необязательно, чтобы в кухню поступал естественный свет. Но старые правила не отменили, поэтому чиновники продолжают требовать освещения кухни.
Обязательно учитывайте, что к кухне нужно будет подводить водоснабжение и канализацию. Канализацию нужно укладывать с уклоном! Часто высоты стяжки не хватает. Есть насосы, которые откачивают канализационные стоки, но лучше продумать варианты как обойтись без него. Насос ставится в самых крайних случаях.
Кухню нельзя переносить и расширять за счет ванной и туалета. Этим вы ухудшаете свои жилищные условия т.к. ваша кухня будет находиться под санузлами соседей сверху. Раньше такие перепланировки согласовывали. Собственник квартиры писал заявление о том, что он сознательно ухудшает свои жилищные условия. Сейчас такие разрешения выдают очень редко. Зависит это от конкретного чиновника. Исключениями являются квартиры на последнем этаже и двухуровневые т.к. в таких квартирах над вами нет соседей.
План квартиры до перепланировки
Перепланировка двухкомнатной квартиры в трехкомнатную. Кухня-ниша на зоне коридора
План квартиры до перепланировки
Перепланировка двухкомнатной квартиры в трехкомнатную. Перенос кухни на зону коридора
План квартиры до перепланировки
Перепланировка двухкомнатной квартиры в трехкомнатную. Перенос кухни на зону коридора
План квартиры до перепланировки
Перепланировка двухкомнатной квартиры в трехкомнатную. Спальня на зоне коридора и зоне других комнат
Разработка дизайн-проекта «Планировочное решение», с необходимыми для возведения межкомнатных перегородок планами (с привязкой мебели и сантехнического оборудования), за 400 руб/м2
См. состав проекта и пример планов
Разработка базового дизайн-проекта, с необходимыми для ремонта квартиры в новостройке планами и ведомостями, за 700 руб/м2
См. состав проекта и пример планов
Разрабатываем дизайн-проекты с 2006 года. Обращайтесь.
Как сделать перепланировку двухкомнатной квартиры
Перепланировка квартиры подразумевает изменение ее конфигурации: снос / перенос межкомнатных перегородок, а также перенос / расширение / добавление дверных проемов. В двухкомнатной квартире можно увеличить количество комнат (уменьшив их площадь) или уменьшить (увеличив площадь и количество нежилых помещений). Любая перепланировка квартиры требует легализации в органах местного самоуправления.
Провести тщательный анализ
Перед тем, как приступить к перепланировке, возьмите план квартиры и проанализируйте.Обратите внимание на несущие стены и перегородки, стояки водопровода и канализации, вентиляционные боксы — любые изменения этих систем запрещены. С учетом этих ограничений, задумайтесь о плане новых перегородок и проемов. Не забывайте о грядущих изменениях в системе электроснабжения: подумайте, как электричество поместится в новом помещении.Что и как можно сделать
В двухкомнатной квартире можно расширить одно помещение, соединив его с кухней — тогда получится так называемая «евродвушка».«Для этого нужно убрать межкомнатную перегородку или соорудить проем. Обратите внимание, что проемы в несущих стенах условно разрешены. Они рассчитываются проектировщиками и могут быть не более определенной ширины и высоты. Также можно расширить помещение за счет добавления лоджии, части коридора, холла, кладовых и подсобных помещений. Всего три комнаты. Это достигается за счет уменьшения площади каждой из них. В каждой комнате должно быть окно, иначе помещение не будет считаться жилым.К площади помещений также можно частично или полностью присоединить площади холлов, коридоров, кладовых, подсобных помещений. Однако это не стоит учитывать: в любой квартире, даже самой маленькой, рациональнее иметь кладовые и просторные коридоры. Увеличивать количество комнат более чем на одну также не рекомендуется: помещения такой квартиры, скорее всего, будут непригодными для проживания. Коридоры и холлы редко расширяют за счет жилых помещений.Но оборудовать в двухкомнатной квартире кладовую, шкаф, встроенный шкаф, антресоль — удачное решение. Санузел и санузел в зависимости от предпочтений могут быть как разъединенными, так и совмещенными. Увеличить их площадь можно за счет коридоров, холла, прихожей, кладовых. Если позволяет площадь, ванную можно дополнить сауной. Осторожно перемещайте и модифицируйте коробки. Желательно, чтобы проем находился не ближе 600 мм от стены, чтобы можно было поставить стандартную мебель.Не увлекайтесь вычурными конфигурациями, вроде арок, особенно если ваша квартира небольшая и типичная. После согласования перепланировки (для этого лучше проконсультироваться с лицензированным архитектором) можно приступать к строительным работам. Вы можете построить новые перегородки из кирпича, бетонных блоков, деревянных панелей или гипсокартонных листов на металлическом каркасе с заполнением минеральной ватой. При выборе материалов учитывайте необходимость навешивания полок и предметов интерьера на перегородки.Разработок | Санта-Роза, Калифорния
Авеню Санта-Роза, 1
В проекте предлагается будущая застройка 7-этажного многофункционального здания, состоящего из коммерческих помещений и 119 доступных по рыночной цене и доступных многоквартирных домов, состоящих из студий, квартир с одной и двумя спальнями, с удобствами на первом этаже пространства, открытый двор и терраса на крыше в центре города Санта-Роза.
Ссылка на страницу420 Mendocino Ave.
Проект предлагает перепланировку участка площадью 0,48 акра с 6-этажным зданием, содержащим 116 квартир-студий, квартир с одной и двумя спальнями, коммерческие помещения и удобства на первом этаже, а также террасу на крыше. Автостоянка на территории будет обеспечена механическим гаражом на 72 места.
Ссылка на страницу425 Гумбольдт-стрит
Проект предлагает построить новый восьми (8) этажный многоцелевой многоквартирный дом, который состоит из 95 новых жилых единиц в шести (6) этажах (со второго по восьмой) на двух (2) этажах парковки (с первого по восьмой). два.На первом этаже также находится вестибюль с антресолью, арендный офис, почтовые и почтовые отделения, а также офис с антресолью для отдельного арендатора.
Ссылка на страницуРосс Стрит, 556
Предлагаемая будущая застройка 8-этажного многофункционального здания, состоящего из частичных коммерческих помещений на первом этаже и 109 жилых единиц, состоящих из «доступных по дизайну» студий, квартир с одной и двумя спальнями, при этом 8% единиц вносят вклад в требования проекта инклюзивного жилья.
Ссылка на страницу704 Bennett Valley Road
Проект доступного жилья Bennett Valley включает строительство здания площадью около 64 000 квадратных футов высотой от двух до четырех этажей. Он будет состоять из 62 жилых единиц, состоящих из студий, одно-, двух- и трехкомнатных квартир. Квартиры будут доступны для домохозяйств с доходом от 20 до 60 процентов от среднего дохода по местности (AMI), а половина квартир будет зарезервирована в качестве вспомогательного жилья для лиц и семей, страдающих от бездомности.
Ссылка на страницу916 Сарацин Роуд
Новое личное хранилище, состоящее из ранее построенных складских контейнеров с офисом на территории. Общая площадь включает 32 единицы личного хранения общей площадью 8 480 квадратных футов. Предлагается въезд только с Даттон-роуд и выезд только на Сарацин-роуд. Заявки на получение прав включают Разрешение на незначительное использование и Разрешение на незначительную проверку дизайна.
Ссылка на страницу1650 Вт Стил-Лейн
Предложение Steele Lane Apartments мощностью 1650 Вт — это трехэтажный проект доступного многоквартирного жилья на 36 квартир, включающий 100% бонус за плотность (35% бонус за плотность штата, 65% дополнительный бонус за плотность).
Ссылка на страницу3575 Mendocino Avenue
Предлагаемое будущее развитие собственности, расположенной по адресу 3575 Mendocino Avenue, в многоквартирный жилой комплекс с ± 532 квартирами, состоящий из 162 доступных (с очень низким уровнем дохода) жилых домов для престарелых и до 370 квартир по рыночной цене, расположенных в компактном, устойчивом, транзитном здании. -ориентированная разработка на 13.Участок площадью 3 акра в зоне приоритетного развития коридора Мендосино-авеню.
Ссылка на страницуПроспект 320
Возможная перепланировка жилого дома рядом с углом Колледж-авеню и Морган-стрит, авеню 320 Квартиры Проектное предложение включает (1) перепланировку существующей структуры в многоквартирный дом из 20 квартир и (2) строительство нового 4-этажного, 20 — многоквартирный дом с выходом на Линкольн-стрит.
Ссылка на страницуДеревня Каритас
Ссылка на страницуСайт разработки комплекса Chanate
Ссылка на страницуCherry Ranch
Проект представляет собой застройку жилой застройки, расположенной на территории бывшего скотоводческого аукционного двора рядом с поселком Кортсайд возле Севастопольской дороги.Планы предлагают 67 односемейных единиц, как пристроенных, так и отдельно стоящих, и включают компонент доступного жилья площадью от 1400 до 1500 квадратных футов. В рамках проекта планируется использовать модульную технологию для изготовления основных компонентов жилья, чтобы ускорить строительство в ответ на текущий жилищный кризис, с которым столкнулся наш город.
Ссылка на страницуКолледж Крик Апартаменты
Многоквартирный дом по адресу 2150 College Avenue
Ссылка на страницуПодразделение Dutton Meadows
Пересмотренное проектное предложение включает в себя подразделение и развитие участка площадью около 19 акров со 137 отдельными двухэтажными домами на одну семью для целей разделения небольших участков.
Ссылка на страницуПенсионное сообщество Elnoka Continuing Care
Ссылка на страницуКвартиры @ 528 B St
Расположенный на 528 B. Street в центре города Санта-Роза, предлагаемый проект застройки будет состоять из (1) сноса существующего офисного здания площадью 2400 квадратных метров и (2) строительства 5-этажного здания смешанного использования площадью 36 650 квадратных метров, состоящего из земли. этажные многопользовательские коммерческие офисные помещения и 24 квартирных многоквартирных дома по рыночной цене на 2-5 этажах (20 однокомнатных и 4 двухкомнатных квартиры).Вся необходимая парковка будет расположена в городском парковочном гараже №1, прилегающем к проекту. Требуется проверка проекта и разрешение на внесение крупных изменений.
Ссылка на страницуАпартаменты Fountaingrove Inn
Предложение включает будущее развитие проекта многоквартирного многоквартирного жилья, состоящего из студий, квартир с одной и двумя спальнями, с внутренними и внешними удобствами, на территории бывшей гостиницы Fountaingrove Inn, состоящей из шести зданий, примерно из 224 квартир. участок и прилегающий участок.
Ссылка на страницуПослушайте Деревню ветеранов
Community Housing округа Сонома (CHSC) предлагает разделить участок площадью 2,01 акра, расположенный по адресу 2149 West Hearn, на четыре отдельных участка. Общая площадь участка (2,01 акра) является результатом корректировки линии участка, затрагивающей участки 134-011-012 (2,49 акра) и 134-011-013 (0,62 акра). Участок проекта зонирован RR-20-RH (Сельское жилое-сельское наследие), и, в соответствии с обозначением зонирования RR-20, четыре предложенных свободных участка будут иметь размер примерно от 20 000 до 25 000 квадратных футов.
Ссылка на страницуМозаика Апартаменты
Расположенные на Петалума-Хилл-роуд, 1683 и 1775, Mosaic Apartments — это предлагаемый 147-квартирный трех (3) этажный жилой комплекс. В проекте будет семь зданий; Пять зданий с 20 единицами, одно здание с 17 единицами и одно здание с 10 единицами.
Ссылка на страницуМемориальный хоспис Санта-Роза
Предложение по развитию хосписного дома «Мемориал Санта-Роза», одноэтажный, ок.Лицензированный и сертифицированный жилой хоспис площадью 8800 квадратных футов на участке из 4 участков общей площадью 0,55 акра. Хоспис Хаус предоставит 12 частных, домашних комнат, каждая с собственным открытым патио, для пациентов и семей.
Ссылка на страницуSMART Phase 1 Village Жилой
Предлагаемая будущая застройка участка SMART Site с несколькими участками площадью 5,4 акра. Разработка фазы 1 (2.36 акров) предлагает 6-этажное жилое здание смешанного использования, состоящее из 110 студий, одно- и двухкомнатных квартир по рыночной цене, при этом 8% единиц вносят вклад в удовлетворение требований проекта в отношении инклюзивного жилья.
Ссылка на страницуЗдание Академии исполнительских искусств Сонома
Новое здание площадью 27 336 квадратных футов, 450 мест для исполнительских видов искусства и связанные с ним работы на площадке в Академии Сонома. Заявку подал Стив Квок, Quattrocchi Kwok Architects.
Ссылка на страницуКвартиры Stony Point
Этот проект предлагает построить новый доступный многоквартирный жилой комплекс из 50 квартир на незастроенном участке площадью 2,9 акра. Проект включает в себя строительство хранилища для велосипедов, прачечной, технологического центра, фитнес-центра и таких объектов на открытом воздухе, как барбекю и игровая площадка. Солнечные панели будут установлены поверх двух основных жилых построек, что позволит проекту работать с нулевым потреблением энергии в соответствии с Разделом 24.
Ссылка на страницуСписок подручных жилищных разработок
Список всего строящегося в городе жилья, подпадающего под действие жилищного законодательства штата
Ссылка на страницуПрочие разработки
Дома, участки и другие проекты в городе Санта-Роза
Ссылка на страницуАрхив
Ссылка на страницуКонцентрированная перепланировка: Жилой комплекс выводит смешанное использование на новый уровень
Смешанное использование.Вы знаете, как это работает: сложите пару сотен квартир в два или три этажа, добавьте коммерческое пространство на первом этаже и — вуаля! — вы построите свой собственный многофункциональный комплекс. Это простая формула недвижимости, которая работает десятилетиями.
Но что, если вы хотите вывести смешанное использование на новый уровень? Что, если бы ваше следующее предприятие также решало хронические социальные проблемы, такие как обеспечение жильем бездомных? Что, если бы вы разработали его, чтобы создать сообщество пожилых людей и семей с детьми, состоящее из нескольких поколений? А что, если бы ваше многофункциональное предприятие стало центральным элементом гораздо более масштабной стратегии по привлечению инвестиций частного сектора в ранее заброшенные городские районы?
Вот что такое округ Сан-Бернардино, Калифорния., стремится к перепланировке некорпоративного района, известного как Блумингтон. Окруженный округом Риверсайд и городами Фонтана и Риальто и разрезанный на две части автомагистралью I-10 и железнодорожными путями Юнион-Пасифик, этот 355-акровый карман, когда-то являвшийся центром выращивания цитрусовых, лука и бойзеновой ягоды, сегодня является центром выращивания цитрусовых, лука и бойзеновой ягоды. мешанина из скромных домов, мастерских по ремонту автомобилей, парков передвижных домов, стоянок для хранения вещей, пустырей, 16 церквей и 15 школ — 11 государственных, четыре частных. В основном это молодые латиноамериканские семьи, многие из которых работают в секторе грузоперевозок и судоходства в регионе или в одном из двух близлежащих медицинских центров, Kaiser Permanente Fontana и Arrowhead Regional.
Здесь округ и его партнеры по развитию превратили девять акров вдоль главной улицы, бульвара Вэлли, в доступное жилье для пожилых людей, семей, жителей с особыми потребностями и бездомных. Они вложили столь необходимые общественные ресурсы, украсили унылый городской пейзаж и укрепили устаревшую инфраструктуру — и все это во исполнение всеобъемлющей стратегии, разработанной для привлечения долларов частного сектора в недостаточно обслуживаемые районы графства.
Но прежде чем мы углубимся в историю Блумингтона, давайте сделаем шаг назад, чтобы получить некоторое представление о самом округе Сан-Бернардино.
В ПОИСКАХ ОБЩЕГО ВИДЕНИЯ
Округ Сан-Бернардино и его южный сосед, округ Риверсайд, образуют обширную внутреннюю империю Калифорнии, логистическую столицу Запада. Округ Сан-Бернардино считается крупнейшим округом Америки по площади — 20 105 квадратных миль — больше, чем Нью-Джерси, Коннектикут, Делавэр и Род-Айленд вместе взятые. Он включает в себя 24 больших и малых города, а его 2140 096 жителей (половина из которых идентифицируют себя как латиноамериканцы или латиноамериканцы) делают его пятым по численности населения округом Калифорнии.Уровень бедности составляет 17,6%, что значительно выше, чем 12,7% по стране.
Когда в 2007–2008 годах разразился кризис потери права выкупа, округу Сан-Бернардино посчастливилось располагать достаточными резервами, чтобы сбалансировать свой бюджет и избежать увольнения сотрудников или сокращения государственных услуг. Но во многих школьных округах, городах и поселках дела дела шли хуже. Худшим из них был административный центр округа Сан-Бернардино, который в конечном итоге был объявлен банкротом.
Withee Malcolm Architects and Site Design Studio разработали безопасные пешеходные дорожки, рассчитанные на пожилых людей и детей.Местные насаждения способствовали получению комплексного сертификата GreenPoint. Фото: Кристиан Коста, Costa Photography
Однако, спустя два года после рецессии, прогноз по снижению финансов графства вызвал беспокойство у некоторых членов совета графства. Столь же серьезным было ощущение, что округ попадает в воду, когда дело доходит до решения хронических проблем, таких как создание рабочих мест и экономические возможности. В конце 2009 года наблюдательный совет из пяти человек уволил окружного административного сотрудника и отправился на поиски нового менеджера.
Им не нужно было далеко искать, чтобы найти своего мужчину. Грегори С. Деверо составил позолоченное резюме в качестве топ-менеджера в Фонтане, а совсем недавно в Онтарио. В феврале 2010 года Деверо принял 10-летний контракт в качестве генерального директора графства.
Одной из первых директив совета директоров новому генеральному директору было создание стратегической дорожной карты для округа. Основываясь на мнениях жителей, деловых кругов и официальных лиц из городов и поселков округа, «Видение в масштабах округа» изложило агрессивную повестку дня в области общественной безопасности, образования, жилья, инфраструктуры, рабочих мест, экономического развития, окружающей среды, благополучия и качество жизни.
Наблюдательный совет опубликовал заявление о видении 30 июня 2011 года, на следующий день после того, как законодательный орган штата, оправившись от утечки налоговых поступлений, вызванной кризисом потери права выкупа, распустил более 400 местных агентств по перепланировке в Калифорнии и направил все доходы от налога на недвижимость в оплатить текущие обязательства, такие как облигации. Одним росчерком пера губернатора Джерри Брауна округ Сан-Бернардино потерял миллионы долларов на реконструкцию.
Неустрашимый Деверо поручил своим недавно реорганизованным департаментам жилищного строительства и развития реализовать цель Countywide Vision по привлечению инвестиций частного сектора в некорпоративные районы округа — такие районы, как Блумингтон, которые в течение многих лет играли второстепенную роль после включенных в него городов и поселков в борьбе за право собственности. федеральные доллары и доллары штата.
Сотрудники округасоставили подробный список потенциальных источников финансирования — гранты на развитие сообществ, фонды зарезервированных облигаций на реконструкцию жилья, Программа жилищного партнерства и Программа стабилизации соседства, а также жилищная программа Закона о психиатрических услугах Калифорнии, которая предусматривает деньги на жилье для тех, кто нуждается в услугах по охране психического здоровья, включая бездомных.
Персонал также обратился к общественности с просьбой внести свой вклад. «У нас был очень активный школьный совет и суперинтендант, который рассматривал образование как путь к возрождению», — сказала Дена Фуэнтес, заместитель исполнительного директора Агентства местного развития и жилищного строительства.Они задокументировали сильную общественную поддержку новой библиотеки, которая заменит небольшой филиал, который находился в витрине магазина. И они подтвердили острую потребность в доступном жилье среди бездомных округа (1866, согласно последним подсчетам), лиц с нарушениями психического здоровья, пожилых людей и семей работающих бедняков.
В 2013 году округ направил застройщикам запрос предложений на промышленный район площадью девять акров на бульваре Вэлли, который послужит испытательной площадкой для «концентрированного реинвестирования» — тщательно продуманной стратегии использования государственных средств для стимулирования развития частного сектора в области.«Мы искали партнера по развитию, который мог бы помочь нам в проектировании, льготах и налоговых льготах, у которого были отношения с банками и который мог бы управлять недвижимостью в соответствии с нашими ожиданиями», — сказал Фуэнтес.
Ответили шесть команд. Компания «Родственная Калифорния», подкрепленная гарантией своей материнской корпорации в Нью-Йорке и в союзе со своим давним партнером по дизайну, Withee Malcolm Architects, выиграла день. «Работая с сотрудниками Деверо, команда разработала концепцию развития, которая« установила новый стандарт »для округа Сан-Бернардино, — сказал Стэн Смит, вице-президент компании« Родственная Калифорния ».
Концепция: Обеспечить сочетание жилья «из поколения в поколение» для семей, пожилых людей и людей с особыми потребностями, дополненное сочетанием общественных, образовательных и социальных услуг, дополненное обширными улучшениями инфраструктуры и благоустройством. Как сказал Фуэнтес: «Мы стремились к критической массе, чтобы добиться наибольшего воздействия за счет имеющихся средств».
Большинство жителей Блумингтона приветствовали этот план с энтузиазмом, но некоторые давние жители были настроены скептически — не без оснований.«Они сказали нам, что вы много лет обещали инвестировать в Блумингтон, но ничего не произошло», — сказал Фуэнтес. «Мы сказали: не волнуйтесь, вы, вероятно, увидите больше активности и больше задержек из-за строительства [смеется], чем вы когда-либо хотели».
Так родились Блумингтон Гроув и Лилиан Корт.
ПРЕОБРАЗОВАНИЕ ВИДЕНИЯ В ДЕЙСТВИЕ
Расположенный на бульваре Вэлли трехэтажный комплекс открылся в два этапа, начиная с 2016 года. Lillian Court, состоящий из 70 квартир с одной спальней для пожилых людей (55 лет и старше), был построен над новой библиотекой-филиалом площадью 6500 квадратных футов.Он имеет свой собственный центр для пожилых людей на 2200 SF. Bloomington Grove состоит из 120 таунхаусов и семейных апартаментов, 11 из которых разбросаны по всей территории и предназначены для ранее бездомных и семей с особыми потребностями. В окружном отделе психического здоровья есть офис, который предоставляет этим семьям конфиденциальные практические услуги, а также учебный / общественный центр на 2625 SF и компьютерный класс с внеклассной программой. Арендаторы платят за аренду не более 30% дохода семьи. Лист ожидания превышает две тысячи.
План сайта проекта вращался вокруг публичной библиотеки. «Библиотека филиала имела большое значение для сообщества», — сказал Дэн Р. Уити, AIA, LEED AP BD + C, партнер, Withee Malcolm Architects.
Но публичной библиотеке нужны общественные стоянки и остановки для автобусов, а Родственная Калифорния также требовала закрытых парковок для пожилых людей в своих проектах. «Мы создали главный вход со стороны бульвара Вэлли для парковки Lillian Court, и у семей есть собственный вход на свою парковку», — сказал Уити.Крытая парковка — в виде навесов — была сдвинута по периметру, чтобы детям не приходилось пересекать подъездную дорожку, чтобы объехать объект — важное соображение безопасности, сказал Уити. Навесы для машины и крыша Lillian Court были покрыты солнечными батареями, которые вырабатывают энергию для библиотеки.
Фото: Кристиан Коста, Costa Photography
После серии публичных встреч сообщество помогло выбрать словарный запас для проекта — традиционный вид Калифорнийской миссии.По словам Уити, даже с такими рекомендациями создание доступного жилья может оказаться непростым делом. «Вы не можете сделать его похожим на Ritz-Carlton, иначе это вызовет негодование со стороны налогоплательщиков», — сказал он. «Но вы хотите, чтобы это не выглядело как доступное жилье, чтобы общество им гордилось».
Это то, к чему стремился Смит из Related California. «Вы и представить себе не могли, что это доступное жилье», — сказал он. «Мы просто сделали все возможное. Поскольку мы владеем своей недвижимостью и сохраняем ее, — как будет делать здесь Related в течение 55 лет, — мы используем высококачественные и долговечные материалы.Уити, проработавший с разработчиком два десятилетия, сказал, что Related также «очень осторожен, чтобы дать клиенту больше, чем они обещали».
Команда проекта боролась с ветхой инфраструктурой Блумингтона, которая отставала от времени на 50-60 лет. Была проложена новая 12-дюймовая линия для подачи воды из соседнего Фонтаны и добавлен резервуар на два миллиона галлонов воды. 18-дюймовая канализационная система, соединяющая городскую канализационную систему Риальто, заменила септики, которые когда-то были единственным средством канализации.Были установлены дренажные системы большего размера, чтобы предотвратить наводнение ливневыми водами.
Неприятный городской пейзаж претерпел значительные изменения. Под землей были закопаны воздушные коммуникации. Бульвар Вэлли был расширен; добавлен сигнал пешеходной улицы. Ландшафтный дизайн был обновлен за счет естественных насаждений. «Мы создавали прецедент: убедительно доказали, что на этой улице стоит хорошо застроиться», — сказал Уити.
На данный момент округ инвестировал 65,5 миллиона долларов в Блумингтон-Гроув и Лиллиан Корт, которые теперь называются «Доступный Блумингтон».Проект уже получил награду SAGE (серебро) в категории «Лучшее сообщество для людей с особыми потребностями для 55+» и две награды «Золотой самородок»: «Лучшее доступное жилищное сообщество» (<30 единиц / акр) и «Лучшее доступное жилищное сообщество для пожилых людей».
БУДЕТ СМЕШИВАНИЕ ПОКОЛЕНИЙ РАБОТАТЬ?
Грег Деверо ушел на пенсию в июне прошлого года, но Наблюдательный совет и преемник Деверо, Гэри Макбрайд, ветеран финансового директора округа, продвигаются вперед с Countywide Vision. Идут поиски денег на еще одну фазу семейного жилья в Блумингтон-Гроув.Округ также планирует закрыть небезопасный парк площадью шесть акров, примыкающий к автостраде I-10, и построить новый парк рядом с Блумингтон-Гроув.
Вероятно, еще слишком рано судить о том, окажет ли «межпоколенческий» желаемый эффект. Уити, чья фирма завершила три других проекта смешанного поколения, сказал: «Они работают, но вы должны быть осторожны. Пожилые люди предпочитают, чтобы их пространство было приватным ». Пешеходные дорожки Lillian Court были спроектированы так, чтобы пожилые люди могли входить в семейное пространство, но не наоборот.
Основываясь на моих интервью с несколькими арендаторами, у меня сложилось впечатление, что жители изо всех сил стараются быть дружелюбными и вежливыми, но у желанного мэшапа кумбая пожилых людей и молодых семей есть пути. Большинство жильцов живут там всего год или около того. Преодоление этих вполне понятных социальных ограничений потребует времени.
Фото: Кристиан Коста, Costa Photography
Тогда возникает более серьезный вопрос: привлечут ли инвестиции округа частные доллары в Блумингтон.Опять же, пока рано говорить. «Исходя из моего 30-летнего опыта в сфере жилищного строительства, это может занять 10, 20 лет, а может и больше», — сказал Фуэнтес. Но, по всей видимости, власти графства считают, что эксперимент в Блумингтоне имеет успех. В марте 2017 года Наблюдательный совет опубликовал свой «Конкретный план коридора долины», 130-страничный план, который дополнительно определяет его стратегию привлечения концентрированных реинвестиций в другие районы вдоль бульвара Вэлли.
Уити убежден, что эта схема начнет приносить экономические выгоды, причем относительно быстро.«Мы реализовали подобный проект в Глендейле, и в течение двух лет каждый из окружающих домов тратил деньги на улучшения».
КОМАНДА ПРОЕКТА | BLOOMINGTON GROVE & LILLIAN COURT
РАЗРАБОТЧИК Связанная Калифорния с LaBarge Industries и Bloomington Housing Partners LP (округ Сан-Бернардино) АРХИТЕКТОР Уити Малкольм Архитекторс ДИЗАЙНЕР ИНТЕРЬЕРА Mannigan Design ЛАНДШАФТНЫЙ АРХИТЕКТУРА Студия дизайна сайта ПРОДУКЦИЯ СПИСОК ПРОЕКТОВ ДЛЯ СТРОИТЕЛЬСТВА ГЕНЕРАЛЬНЫЙ ПОДРЯДЧИК 9026 СПИСОК ПРОЕКТОВ основные указанные продукты и системы: BDCnetwork.com / BloomingtonProducts.
ВСТРЕЧАЙТЕ С РЕЗИДЕНТАМИ
L слева направо: Иван, Италия, Венди и Исаак Агилар
Агилар: «Хорошая, чистая среда обитания»
Год назад Венди Агилар стала инвалидом и не могла работать. Она потеряла свою квартиру, и она и ее трое детей-подростков оказались в одной спальне в доме ее сестры.
Она участвовала в розыгрыше нового жилья и «ей повезло», — сказала она.Теперь у семьи есть двухуровневый таунхаус с тремя спальнями и 2½ ванными комнатами. Она оправилась от травмы, нашла новую работу и платит 30% своей зарплаты за аренду. «Я переехала сюда ни с чем», — сказала она. «У меня еще нет кровати, но скоро я заполню комнату мебелью».
Она называет Блумингтон-Гроув «хорошей, чистой жилой средой». Сотрудники офиса «очень дружелюбны и относятся ко мне с уважением». Она начинает встречаться с другими жителями, с которыми сталкивается в прачечной.
Агилар рад, что комплекс закрыт.«Мне не нужно беспокоиться о том, что кто-то неожиданно подойдет к нам, особенно из-за моей дочери», — сказала она.
Слева направо: Джейден, Вероника, Алия, Джо и Зария Эспиноза
The Espinozas: «Прекрасное место для семьи»
Джо и Вероника Эспиноза и их трое детей — дочери Зария, Алия и сын Джейден — жили в двухкомнатной квартире в Колтоне, когда они услышали о Блумингтон-Гроув от сестры Вероники.«Мы были в листе ожидания пару недель, и они нам позвонили, — сказал Джо.
Espinozas имеет двухуровневый таунхаус с 3 спальнями и 2 ½ ванными комнатами. «В главной спальне есть собственная ванная и гардеробная, а в детских спальнях — большие шкафы», — сказал Джо, фельдшер регионального медицинского центра Эрроухед. Им также нравится ковровое покрытие и паркетный пол на кухне.
«Я провожу детей в библиотеку», — сказал он. В праздничные дни администрация периодически выполняет функции, что дает возможность пообщаться с соседями.«Это прекрасное место, чтобы вырастить семью», — сказал он. «Детям это нравится, моей жене это нравится. О чем вы еще хотите попросить?»
Эфрен и Марта Ласкано (и Хуанито)
The Lazcanos: «Много места» для старшей пары
Эфрен и Марта Ласкано, прожившие в браке 39 лет, живут в квартире с одной спальней на третьем этаже над филиалом библиотеки в Лиллиан Корт со своим чихуахуа «Хуанито», домашней собакой Эфрена.«Он мой приятель, — сказал Эфрен, инвалид; Марта заботится об их двух внуках в течение недели, чтобы ее дочь могла работать.
«Здесь много места для нас», — сказал Эфрен. Любимое место Марты — кухня: «У меня много шкафов для посуды». Ее муж иногда готовит: «Он работал в Olive Garden, и он хорошо разбирается в итальянской кухне», — сказала она, — но «он устраивает беспорядок, и я должна его убирать».
В квартире есть посудомоечная машина, но она ее ни разу не включала.И в библиотеку филиала она тоже не ходит. «Я пыталась, но не знаю, как им пользоваться», — сказала она. Другие женщины в Lillian Court приглашали ее поиграть в бинго, но она держится на расстоянии. «Я просто стараюсь быть дружелюбной, но мне нравится уединение», — говорит она. «Я занят. У меня нет времени.
Фотографии: Селина Кальдерон, Bloomington Apartments
Множество возможностей для создания комфортного жилья для всей семьи
Жилет двухкомнатный — как перепланировать? «data-essbishovercontainer =» «>
В новых домах проблема перепланировки не стала катастрофическим явлением, ведь современные архитекторы пытаются заложить такую возможность даже при строительстве.А вот распашонка однокомнатная, ее переделка вызывает затруднения.
Если мы говорим о квартирах-пашах, то возникает еще одна важная задача — как сделать так, чтобы комната воспринималась как две отдельные и отдельные комнаты. Вопрос в том, можно ли сделать двухкомнатную квартиру трехкомнатной площадью или добавить свободное пространство? Может. Есть несколько способов перепланировать такое помещение.
Из большой комнаты делаем две маленькие. С одной стороны, все очень просто — достаточно поставить перегородку.С другой стороны, нужно учитывать, что перегородку можно установить, если в комнате есть хотя бы одно окно.
Есть хоть два? Отлично. Установите перегородку из кирпича или гипсокартона и получите два новых места. Разделить комнаты можно широкими раздвижными дверями — такой вариант будет удобен, если у вас часто бывают гости или регулярно устраиваете дома семейные торжества.
Вам достаточно будет распахнуть двери — и комната снова станет большой.Для тех, кто не хочет кардинально делить большую комнату, можно установить арку. Он будет служить «бордюром», и вам будет удобнее использовать помещение функционально. Например, в одной можно сделать кабинет или мастерскую, а вторую часть использовать как холл или гостиную.
№2 способ перепланировки — самый сложный
Перенести кухню в другую комнату. Сложно, но возможно. В двухкомнатном жилете всегда можно найти неиспользуемое место. Например, в коридоре или холле.Главное помнить, что плита должна располагаться в пяти метрах от подступенка.
И, конечно же, для такой перепланировки нужно будет получить разрешительную документацию. Также можно соединить кухню с жилой зоной — такой вариант подойдет тем, кто хочет получить просторную комнату-столовую, где можно будет принимать гостей.
№3 — наиболее практичный вариант перепланировки.
Используйте пространство балкона или лоджии. Такая комната может быть продолжением комнаты или функциональным дополнением.На месте балкона можно сделать кабинет — поставить удобное кресло и стол с компьютером, шкаф — установить полки или мобильную вешалку, игровую — просто поставить теплый ковер и избавиться от острых углов.
Конечно, вы получите еще одну смежную комнату, но вы можете добавить своей квартире практичности и получить еще одно личное пространство.
Перепланировка без серьезных изменений
Создать привлекательный и практичный дизайн однокомнатной квартиры можно без гипсокартона стен или «переноса» комнаты.Чтобы ваша квартира была максимально комфортной, вот несколько практичных дизайнерских решений:
- Соедините ванную комнату с ванной — вы получите дополнительное пространство, где будет удобная стиральная машина и полочки для мелких банных принадлежностей. Для экономии места вместо ванной можно установить душ.
- Соединить кухню с коридором — для этого не нужно менять расположение плиты и получать разрешение, но площадь немного увеличится
- Поставьте шкаф в спальня, в которой можно хранить сезонную одежду (особенно она пригодится, если у вас кухня совмещена с прихожей, ведь хранить вещи негде будет)
- Сэкономить место помогут раздвижные двери, которые стоит поставить вместо обычный.Есть, правда, у этого варианта небольшой минус — плохая шумоизоляция .
Такая простая перестановка позволит немного расширить пространство. Вариант с соединением кухни и другой комнаты позволит поставить раскладной диван, который пригодится гостям или родственникам.
Стильный дизайн двухкомнатной квартиры
Двухкомнатная квартира-распашонка, как и все маленькие комнаты, требует визуального увеличения пространства и правильной расстановки акцентов.Если вы хотите совместить кухню с коридором или перенести ее в соседнюю комнату, лучше всего в новом помещении создать дизайн в стиле хай-тек или современный.
Такая конструкция понравится всем ценителям техники и современного подхода к ремонту. Но самое главное даже не в этом, а в том, что этот стиль требует минимального наличия мебели и декоративной отделки. Именно это позволит вам освободить место и сделать квартиру максимально стильной и комфортной.Принцип стиля хай-тек — функциональность и рациональность, вот некоторые его особенности:
Дизайн двухкомнатной квартиры
- Используйте прямые линии и геометрические формы.
- Выбирайте практичную мебель из искусственных материалов — пластик, стекло, металл
- Можно использовать шкафы с открытыми секциями.
- Свет лучше всего использовать потолочный с холодным освещением
- Для стен подойдет обычная холодная краска
- Основные цвета в мебели и дизайне — свет и свет.Подходит классический бежевый, светло-желтый, бледно-голубой, кремовый оттенки
- . Ярким пятном могут стать одна или две детали интерьера, например, ваза синего цвета или подушки вишневого или алого цвета
Такой фасон подойдет к «жилетке» и за счет того, что не терпит беспорядка и огромного количества мелких деталей — все должно быть просто, практично, удобно и функционально. В качестве украшения можно использовать современную технику — телевизор, ноутбук и другие образцы «новейших технологий».»
Вторая комната , может быть выполнен в аналогичном дизайне, например, в стиле «минимализм», который отлично впишется в спальню. Здесь главная задача — использовать как можно больше света и не загромождать аксессуары и другие детали.
Основным украшением спальни должны быть стены, пол и потолок. Их цветовое решение может быть разнообразным — например, стены могут быть окрашены в светло-кремовый цвет, пол — в темно-коричневый оттенок, а потолок выполнен в ослепительно-белом цвете.Сочетание светлого потолка и стен зрительно увеличит пространство и добавит «воздуха» комнате.
Среди собственников квартир много тех, кто живет в двухкомнатной жилетке, что не так практично. Современные технологии, которые используют специалисты по ремонту и дизайну, позволяют не только избавиться от беспорядка, но и получить в результате перепланировки еще одно, дополнительное помещение. Опытные профессионалы сделают все возможное, чтобы не только зрительно расширить пространство, но, как видно на фото, зрительно увеличить высоту потолков.
Существует множество способов перепланировки двухкомнатной квартиры в трехкомнатную, мы подробно расскажем о каждом из них.
В большой комнате окна устанавливают гипсокартон или кирпичную стену. Некоторые владельцы ограничиваются аркой. Но этот способ можно использовать только в том случае, если в стене два окна. Существующие правила запрещают полное отсутствие дневного света в жилом районе. При этом площадь каждой комнаты должна быть не менее 9 м².Вы также можете разделить пространство с помощью раздвижных пространств — вам нужно всего несколько простых движений, чтобы превратить две маленькие комнаты в одно просторное пространство. Это очень удобно во время семейных торжеств.
Второй путь
Перенесите кухню в другую комнату. Такой вариант обустройства квартиры распашонки хоть и менее популярен, но не менее эффективен. Проблема в том, что для правильного ремонта нужно будет придерживаться ряда норм.
В трехкомнатных квартирах практически всегда остается неиспользуемое пространство, на котором можно организовать кухню.Появившийся квадрат — отличный повод превратить вашу двухкомнатную квартиру в трехкомнатную жилетку.
Однако следует помнить, что переносить кухню можно только в строго отведенные места. В первую очередь, речь идет о коридорах и холлах. Но если ваша квартира находится в новостройке, то вполне возможно, что гидроизоляция затоплена по всей комнате, а значит, вы можете воплотить практически любые свои дизайнерские фантазии.
Есть даже постройки, в которых не были указаны зоны кухни и санузла не застройщиком.Не забывайте, что плитку нельзя ставить дальше пяти метров от подступенка. Но на фото вы можете увидеть, как выглядят квартиры с перепланировкой, которая была сделана по такому проекту.
Прибегать к совмещению кухни с жилым пространством можно только в том случае, если в вашем доме установлена электрическая плита.
Если вы решили, что хотите внести такие изменения в свою двухкомнатную квартиру в жилетке, вам необходимо будет обратиться в соответствующие органы для получения разрешительных документов.В пакете документов, который вам нужно будет подать, обязательно должен быть подробный план предстоящих работ.
Третий путь
Для получения трехкомнатной квартиры можно использовать дополнительную площадь балкона или лоджии. С одной стороны, вы получите комнату, которая станет логическим продолжением основной комнаты, а с другой — ее логическим функциональным дополнением.
Помимо кабинета или гардеробной, здесь можно оборудовать зону отдыха или детскую. Единственное неудобство — в результате вы получите соседние комнаты.
Четвертый путь
Такой проект подойдет многим семьям. Например, его рекомендуется использовать тем, у кого двое и более детей. Это также очень удобно в тех случаях, когда есть желание создать в квартире кухню, которая будет совмещена со столовой. Хорошо, если у вас большая часть стен не несущая. Поменять форму и размер комнат тогда намного проще, сотня очень удобна, если вы поставили перед собой цель переоборудовать двухкомнатную квартиру в трехкомнатную рубашку.
Не забываем о важном
Как видно на фотографиях, проекты перепланировки могут быть самыми разными — со смежными детскими или с отдельным входом для каждого ребенка. Помните, что в каждой комнате должен быть доступ к окну. А вот для офиса, не относящегося к типу помещения, естественное освещение не нужно. Однако в этом случае в комнате потребуется установить несколько источников света. Некоторые из них рекомендуется располагать на разных уровнях подвесного потолка.
Идеи для рисования
Перед тем, как составить проект, можно изучить фото такого ремонта. Ваша задача — создать не просто уютную трехкомнатную квартиру, а жилье, где каждое их помещение будет функциональным и практичным. Когда все детали прояснены, пора переходить к созданию детального проекта перепланировки, и, конечно же, согласовывать все детали в органах местного самоуправления.К проекту комментариев не было. И вам не пришлось переделывать это бесконечно; Лучше всего обратиться в строительную фирму, где работают опытные дизайнеры.
В контакте с
Многих интересует, как разработать дизайн двухкомнатной квартиры . Неудивительно, что большинство семей живут в квартирах такого типа и никуда не собираются.
Как показывает практика, в двух комнатах может быть место даже для трех человек.Поэтому обменивать такую комнату, например, в новой студии на такие семьи не имеет смысла. А на покупку двухкомнатной квартиры в новом доме часто не хватает денег.
Каким именно будет дизайн квартиры, решается в зависимости от того, сколько людей в ней проживает. Обычно одинокие люди и молодые пары в одной комнате украшают спальню, а в другой — гостиную. Но когда в семье есть дети, возникают трудности. Ведь одну комнату нужно отдать детям, а во второй родителям нужно организовать сразу две зоны: спальню и гостиную.Поэтому все популярнее становится кардинальная перепланировка жилета. Однако перед тем, как его проводить, необходимо определить все плюсы и минусы имеющейся площади. Тогда становится понятно, что нужно изменить.
ПРЕИМУЩЕСТВА И МИНУСЫ КВАРТИРЫ
Майки отличаются необычной планировкой, поэтому и получили такое название. Комнаты, как и рукава рубашки, не имеют общих стен, а расположены друг за другом.Обычно их разделяет коридор или кухня. Но иногда проходит одна комната.
Самый главный плюс квартиры дизайн майки можно предположить, что окна выходят на противоположные стороны дома. Благодаря этому в комнатах мало темных углов. Такое расположение позволяет одновременно иметь и тень, и солнечную сторону. Это создает комфортную температуру в доме даже летом.
Из минусов можно отметить сквозняки.Но они ощущаются только в том случае, если неправильно вставлены окна, либо балкон недостаточно утеплен.
ВАРИАНТЫ РАЗРЕШЕНИЯ КВАРТИРА Raspas
Так как в квартире две жилые комнаты плюс коридор, кухня и туалет с ванной, то есть несколько вариантов перепланировки. И не всегда стены сносят, иногда устанавливают дополнительные перегородки:
Если в комнате живет семья с ребенком, и хозяева не хотят совмещать спальню и гостиную, большую комнату делят на две маленькие.Для этого устанавливается дополнительная перегородка. В образовавшихся комнатах располагается гостиная и детская. Но лучше установить дополнительные ограничения пространства, когда в комнате два окна. Если окажется, что окна в детской или гостиной не будет, то стену лучше не строить из кирпича или гипсокартона, а просто установить раздвижные двери. Также можно отделить детскую зону от гостиной аркой или стеллажом.
Если кухня кажется слишком маленькой, ее можно объединить с гостиной.Это делают семьи, которые любят принимать гостей. В этом случае снесенная стена освобождает место для обеденного стола или дополнительного мягкого уголка.
Если человек живет один, можно совместить кухню с коридором и гостиной. Стены остались только в ванной, туалете и спальне.
Если в доме есть большой балкон или лоджия, их также можно объединить с одной из комнат. Там можно получить еще несколько метров и установить шкаф для хранения всех вещей, оборудовать кабинет или уголок для занятий спортом.В случае такой перепланировки балкон нужно утеплить. В этой зоне можно сделать и полы с подогревом.
Если в коридоре достаточно места, то можно «расширить» пространство ванной комнаты или кухни. Также можно поменять дверные проемы на арке, либо снять дверь и поставить коробку. Так в квартире будет ощущение простора. Такой вариант подходит, если в квартире проживает всего один человек.
Перед перепланировкой собственник должен будет получить разрешение и обратиться к специалистам, которые подскажут, какие стены можно сносить, а какие — нет.
РАЗРАБОТКА ИНТЕРЬЕРА В КВАРТИРЕ
Когда собственники решат, будет ли перепланировка проводиться, можно переходить к разработке дизайн интерьера двухкомнатной квартиры .
Лучше распечатать несколько экземпляров плана жилища и раздать каждому члену семьи, чтобы каждый в итоге смог нарисовать то, что хочет увидеть. Так будет проще определиться, как разобрать все зоны в комнате.
Как видно на фотографиях, выставленных в Интернете, дизайн двухкомнатной квартиры создается по тем же принципам.Специалисты часто комбинируют разные фактуры и фактуры. Таким образом, они создают эффект расширения пространства, ведь в старых домах не такие большие площади.
Часто используются зеркальные панели, витражи и стекло в межкомнатных дверях. Также ощущение простора создается за счет использования арок и раздвижных перегородок. Также дизайнеры любят использовать в стенах подиумы и ниши.
При разработке дизайна однокомнатной квартиры майки стоит учесть, какое будет освещение в комнатах.Такой свет позволяет создать в комнате уют.
РЕГИСТРАЦИЯ ИНТЕРЬЕРА КВАРТИРЫ ЭКСТЕРЬЕРА
Дизайн интерьера однокомнатной квартиры проще домашней, где две комнаты. Если в первом случае всю комнату, включая ванную и туалет, можно оформить в едином стиле, то в двухкомнатной квартире вариантов масса.
Там, где жилые помещения разделены коридором, дизайнеры рекомендуют использовать два разных стиля, но одну цветовую гамму.Самым светлым помещением в этом случае может стать кухня.
Если в квартире есть проходная комната, то лучше использовать один стиль, но другую цветовую гамму. Например, гостиная может быть оформлена в светлых тонах, а спальня — в спокойных.
Если перепланировка проводилась, а отделена только спальня, то можно совершенно использовать разные стили, не пересекающиеся между собой.
Интерьер «студии», входящей в жилетку, может быть современным и вызывающим, и в этом случае спальня должна быть оформлена «по-домашнему» в самых спокойных тонах, чтобы можно было отдыхать ночью.
РАЗРАБОТКА ДИЗАЙН-КОМНАТ БЕЗ ПЕРЕПЛАНИРОВКИ
Не все решаются на глобальный ремонт майки. У кого-то на это не хватает денег, у других некогда ходить в разные инстанции и собирать необходимые бумаги. В этом случае в дизайне придется сразу определять, какие функции будет выполнять комната.
Например, в большом помещении хозяева могут не только принимать гостей, но и работать, поэтому его придется разделить на две зоны.Часто гостиная представляет собой столовую, а иногда, если во второй комнате живут дети, это еще и спальня.
Но сколько бы зон ни было, их легко разграничить без строительства перегородок.
Вот несколько способов:
Отделить обеденную зону от зоны отдыха можно с помощью настила. Там, где стоит обеденный стол, можно поставить плитку, а во второй зоне — ламинат или ковролин. Также можно сделать другой уровень пола или поставить стол на небольшой подиум.
Для отделения рабочей зоны можно использовать низкий потолок, который будет отличаться по цвету от основного. Лучше в этом случае выбрать покрытие с глянцевым эффектом.
Также можно разделить пространство с помощью света. В рабочей или обеденной зоне должно быть светло, а в зоне отдыха — тепло и интимно.
Отдельными зонами могут быть диван, комод, барная стойка или другая мебель. В зависимости от выбранного стиля интерьера пространство можно разграничить с помощью больших ваз, растений в горшках или маленьких ширм.
Дизайн двухкомнатной квартиры следует разрабатывать с учетом основных правил дизайна небольших комнат: как можно меньше мебели и как можно больше светлых тонов.
25-27 North Chapel Street | Основное подразделение, включая снос существующей жилой конструкции и театра на 25 и 27 N Chapel Street и замену их трехэтажным 14-квартирным жилым домом. | | ||
500-700 Creek View Road | Major Subdivision для преобразования существующей 5-этажной офисной структуры в 103-квартирную жилую структуру, строительство нового одноэтажного ресторана с мезонином, строительство новый одноэтажный театр, построить новый одноэтажный офис искусств и построить новое трехэтажное офисное здание. | | ||
141, 143, 145 E. Main St 19 Haines St. Идентификатор участка 1802000188 Идентификатор участка 1802000189 (PR # 20-07-03) | с основным подразделением утверждение плана сноса существующего здания на 143 East Main Street и 19 Haines Street с сохранением строений на 141 и 145 East Main Street, для строительства нового шестиэтажного многофункционального здания с 17 540 квадратных футов коммерческих торговых площадей, 60 двух -квартиры, четырехэтажный паркинг. | | ||
136 W Main St Unlocke the Light Parcel ID 18015 (PR # 20-07-02) | Специальное разрешение на использование для некоммерческого фонда в зоне зонирования RS округ. | |||
Проспект Амстела, 19 ID участка 1802600006 (PR # 20-07-01) | Разрешение на специальное использование дома братства в районе зонирования РМ. | |||
109 Paper Mill Rd Emerson Bridge ID участка 1801400136 (PR # 20-06-03) | Специальное разрешение на строительство велосипедного / пешеходного моста в зоне особой опасности наводнения Площадь (SFHA). | |||
925 Rahway Dr ID участка 1801800155 (PR # 20-06-02) | Разрешение на специальное использование для строительства открытой палубы в Особой опасной зоне наводнения (SFHA). | |||
614 S Twin Lakes Blvd ID участка 1805400076 (PR # 20-06-01 | Специальное разрешение на использование детских садов на дому. College Ave STAR Campus ID участка 1803 2(PR # 20-05-01) | Административное подразделение для разделения одного участка на две части для целей аренды. | | |
124 East Main St Идентификатор участка 1802000125 (PR # 20-04-02) | Эскизный план перепланировки участка для включения двух этажей коммерческих площадей, переоборудование существующие 14 жилых единиц в 58 новых жилых единиц на четырех верхних этажах здания, а также увеличение на 200 дополнительных парковочных мест. | | ||
734 Paper Mill Rd и 5 и 11 Possum Hollow Rd Milford Run Subdivision Идентификатор участка 0804700033 Идентификатор участка 08047-0800031 9000 PR -02) | Аннексия, изменение зон, поправка к Комплексному плану развития и крупное подразделение для сноса существующих незанятых жилых домов на объектах и создания жилого подразделения на одну семью на 12 участков. | |||
751 Paper Mill Rd Подразделение Walton Farm Идентификатор участка 0804700003 (PR # 19-08-01) | Присоединение, изменение зонирования и второстепенное подразделение на два участка для разделения одного участка построить дом на одну семью на вновь созданном участке. | | ||
436 Кристина Милл Доктор ID участка 1803000130 (PR # 19-07-02) | Разрешение на специальное использование для бизнеса частичной массажной терапии. Заявка отозвана заявителем. | | ||
118, 126 и 130 New London Rd. Идентификатор участка 1801300124 Идентификатор участка 1801300123 Идентификатор участка 1801300197 (PR # 19-07-01) | Поправка к комплексному плану развития, второстепенное подразделение и утверждение плана участка для преобразования трех существующих жилых домов в квартиры таунхауса путем изменения оболочки и добавления двух новых единиц между существующими тремя единицами. | |||
1 Н. Twin Lakes Blvd. ID участка 1805400022 (PR # 19-06-02) | Основное подразделение для замены утвержденной в настоящее время 12-квартирной планировки на новую 24-квартирную планировку городских квартир. | |||
268 East Main St. ID участка 1802100024 (PR # 19-06-01) | Эскизный план, предлагающий 52-квартирный жилой дом на месте нынешнего мотеля Super 8. В планах, представленных 14 апреля 2020 года, предлагается крупное подразделение с утверждением плана участка, разрешением на специальное использование, поправкой к Комплексному плану развития и изменением зонирования для многофункционального здания с коммерческим помещением, которое включает ресторан и парковку на первом этаже и четыре этажа квартир. предназначен для студенческого общежития, состоящего из 56 квартир с двумя спальнями. | | ||
54 East Main Street ID участка 1802000022 (PR # 19-05-02) | Эскизный план многофункционального подразделения, предлагающего ресторан на первом этаже, две квартиры на втором этаже и одна квартира на третьем этаже. | | ||
45 и 51 Lovett Ave. St.Thomas More Oratory ID участка 1802600057 ID участка 1802600058 (PR # 19-05-01) | административного подразделения два существующих лота в один лот. | | ||
42, 46 и 54 East Delaware Ave. Municipal Pkg Lot 1 ID участка 1802000068 ID участка 1802000070 (PR # 19-02-02) | Административное подразделение по расширению городской парковки №1. | | ||
1089 Elkton Road Newark Charter School Parcel ID 1100400022 (PR # 19-02-01) | Присоединение и изменение зонирования 7,40 акров к существующему участку для подключения нового участка Кампус Чартерной школы и оба объекта недвижимости находятся в одной юрисдикции. | |||
287 East Main St Fulton Bank Идентификатор участка 1802100068 (PR # 19-01-01) | Поправка к комплексному плану развития, изменение зонирования, крупное подразделение и разрешение на снос существующей конструкции на участке, изменить его зону с BL на BB и построить трехэтажное многофункциональное здание с торговыми площадями на 1-м этаже, парковочными площадками и проезжей частью (для Fulton Bank), а также 42 жилых единицы на 2-м этаже. и 3 этажи. | |||
Идентификатор участка 34 и 38 Corbit St и строительство двухквартирного дома для сдачи в аренду студентам, а также автостоянки, охватывающей задние дворы 34 и 38 Корбит-стрит. | ||||
804-810 S College Ave Идентификатор участка 1804400122 Идентификатор участка 1804400121 (PR # 18-12-01) | Специальное разрешение на использование партии подержанных автомобилей по адресу 804/808 Авеню Южного Колледжа, с Авеню Южного Колледжа 810, которая будет использоваться для парковки и хранения переполнения. | |||
20-22 Benny St Maras Landing Идентификатор участка 1802600125 Идентификатор участка 1802600126 (PR # 18-11-01) | Комплексное изменение плана развития, изменение плана комплексного развития с утверждением плана участка, чтобы снести существующие конструкции на участке и построить 9 квартир с садом, различающихся по ширине и количеству спален. | |||
132-138 East Main St ID участка 1802000126 ID участка 1802000127 (PR # 18-10-02) | Основное подразделение для сноса существующих структур на участке и строительство 4-х этажного дома с торговыми центрами на первом этаже и 12 квартирами на втором, третьем и четвертом этажах перед участком.В задней части участка предполагается разместить паркинг на первых двух этажах с гостиницей на 88 номеров на третьем, четвертом и пятом этажах и площадкой на крыше наверху. В планах, представленных 20 декабря 2019 г., предлагается пятиэтажное многофункциональное здание с двумя коммерческими арендаторами, квартирами и соответствующей парковкой. | |||
92 и 96 East Main St Green Mansion Идентификатор участка 1802000033 Идентификатор участка 1802000034 (PR # 18-10-01) | Разрешение на выделение основных подразделений и специальное использование внутренние линии общих участков для объединения участков в один участок, снос строения на 92 East Main Street, а также сохранение и восстановление строения на 96 East Main Street для строительства многофункционального здания, включая 7-этажный отель на 147 номеров и 19 500 квадратных футов офисных площадей с соответствующими парковками, удобствами и дополнительными удобствами. | |||
511 Valley Rd Briarcreek Lot 21 ID участка 1801700079 (PR # 18-09-01) | Незначительное подразделение с утверждением плана участка для сноса существующей односемейной структуры на участке и построить двухквартирную структуру, повторяющую архитектуру подразделения Briarcreek. | |||
105-83 New London Rd 36-42 и 41 Wilson St Campus Walk II Идентификатор участка 1801300106 Идентификатор участка 1801300107 Идентификатор участка 1801300108 Идентификатор участка 1801300 ID участка 180130010 ID 1801300111 Идентификатор посылки 1801300112 Идентификатор посылки 1801300113 Идентификатор посылки 18017 Идентификатор посылки 18016 Идентификатор участка 1801300161 Идентификатор участка 1801300086 Идентификатор участка 1801300085 Идентификатор участка 1801300198 Идентификатор участка 1801 3(PR # 18-08-018) (PR # 18-08-018) крупное подразделение с утверждением плана участка для сноса существующих строений, расположенных на 83-105 Нью-Лондон-роуд и 41 Уилсон-стрит, перемещения существующего строения на 87 Нью-Лондон-роуд на 41 Уилсон-стрит и его перепрофилирования в аренду для 4 человек, а также строительство 28 квартир с садом на участках, выходящих на Нью-Лондон-роуд, с подъездом на автомобиле по оригинальному подъезду Campus Walk.Земельные участки, расположенные по адресу 36-42 Wilson Street, включены в предложение по землепользованию с целью переноса линий земельных участков и не реконструируются как часть плана. | ||||
703 Valley Road Parcel ID 0 0011 (PR # 18-07-02) | Присоединение и изменение зонирования, чтобы сделать канализацию и водоснабжение доступными для существующей структуры на участке. Заявитель отозвал ходатайство о присоединении и изменении зоны. | | | |
1105 Элктон Роуд Идентификационный номер участка 1100400013 (PR # 18-07-01) | Пристройка, изменение зонирования и незначительное разделение существующих зданий для сноса существующего участка построить заправочную станцию Royal Farms, автомойку и круглосуточный магазин. | | ||
321 Hillside Rd ID участка 1801 (PR № 18-06-04) | Поправка к Комплексному плану развития и крупное подразделение с утверждением плана участка для сноса существующих зданий на участок, разделение участка на два участка, один из которых будет обслуживаться как открытое пространство, и строительство десяти 4-х этажных квартир на 189 квартир. В пересмотренных планах, представленных 14 июня 2019 года, предлагается один 3-этажный 9-квартирный дом, три 3-этажных 12-квартирных дома и 46 3-этажных квартир в стиле таунхауса. | |||
18 North St White Clay Vista ID участка 1801400025 (PR # 18-06-03) | Второстепенное подразделение для сноса существующего одноэтажного жилого дома на ул. участок и строительство четырех 3-этажных квартир в стиле таунхаусов, аналогичных существующим квартирам в задней части дома. | |||
304 Research Blvd Parcel 1803 2 (PR # 18-06-02) | Разрешение на специальное использование временного телекоммуникационного объекта, состоящего из одного трейлера со стрелой, которая будет подниматься для размещения трех панельных антенн и одна тарелочная антенна, окруженная забором. Это временная мера до тех пор, пока антенны не будут постоянно размещены на существующем резервуаре для воды на участке (PR № 18-04-01). | |||
253 South Main St ID участка 1802500157 (PR # 18-06-01) | Разрешение на специальное использование ресторана, где подают алкогольные напитки для потребления на территории. | |||
100,115,121 Площадь колледжа Идентификатор участка 1802100196 Идентификатор участка 1802100199 Идентификатор участка 1802100172 (PR # 18-05-04) | План развития с полным планом развития и специальное разрешение на реконструкцию торгового центра College Square с целью включения в него многофункционального комплекса с торговыми и жилыми помещениями. | |||
62 North Chapel St Parcel ID 1801400215 (PR # 18-05-03) | Изменение зонирования и основного подразделения с утверждением плана участка для сноса существующего офисного здания на территории и строительства смешанного -используйте здание с офисными помещениями площадью 300 квадратных футов и 30 парковочными местами в гараже на первом этаже и 18 квартир с двумя спальнями на двух этажах выше. | |||
209-225 Haines St Идентификатор посылки 1802600107 Идентификатор посылки 1802600108 Идентификатор посылки 1802600109 Идентификатор посылки 182600212 -05 17 17 17 | Внесение изменений в комплексный план развития, изменение зонирования и капитальное разделение с утверждением плана участка для сноса существующих зданий на участке и строительства многоэтажной квартиры из 24 квартир (12 трехкомнатных и 12 двухкомнатных) с 22 гаражом парковочные места на первом этаже. | |||
417 Creek Bend Dr Идентификационный номер участка 1800 0(PR № 18-05-01) | Специальное разрешение на замену старой палубы на крытую террасу / крыльцо во время особого наводнения Опасная зона (SFHA). | |||
304 Research Blvd Parcel ID 1803 2(PR # 18-04-01) | Специальное разрешение на использование телекоммуникационного объекта, которое предлагает размещение антенн на существующем резервуаре для воды на объекте и комплекс оборудования в основании танка. | |||
1364 Marrows Rd и 701 Ogletown Rd Martin Honda Parcel ID 1802100215 (PR # 16-01-03) | Поправка к плану крупного подразделения по ремонту автомобилей с целью изменения конфигурации автосервиса показан на плане разрешения на аннексию, перепланировку, крупное деление и специальное использование, утвержденном городским советом 12 декабря 2016 года. В плане предлагается ликвидировать одно здание и одну двухэтажную парковочную площадку. | |||
515 Capitol Trail Charlotte’s Way Идентификатор участка 1801000004 Идентификатор участка 1801000005 (PR # 18-02-01) | Развертывание плана сноса и утверждения плана сноса участка и главного подразделения существующий дом на одну семью на участке и строительство десяти таунхаусов. | | ||
3 Bridlebrook Lane Parcel ID 0 00335 Bridlebrook Lane Parcel ID 0 0034 (PR # 18-01-01) | Пристройка и изменение зонирования канализации для подключения к городскому коммунальному хозяйству Ньюарка. | |||
924 Barksdale Rd Идентификационный номер участка 1802400155 (PR № 17-11-06) | Поправка к Всеобъемлющему плану развития, изменение зонирования и крупное подразделение для строительства дома с вспомогательными услугами и памяти на 112 единиц средство. | |||
1501 Casho Mill Rd ID участка 1803000127 (PR # 17-11-05) | Поправка к Комплексному плану развития и крупное подразделение для сноса существующего офисного здания на участке и строительства 3 -этажное здание с офисом и торговлей на 1 этаже и 60 квартир на 2 и 3 этажах. | | ||
419 & 421 Paper Mill Rd ID участка 0805200011 ID участка 0805200010 (PR # 17-11-04) | Присоединение и повторное зонирование двух домов на одну семью с прилегающим предлагаемым подразделением 0 Paper Mill Road, для подключения к коммунальной воде и канализации. | | ||
46 Welsh Tract Rd Идентификатор участка 1100 3Идентификатор участка 11009 (PR # 17-11-03) | Утверждение присоединения, повторного зонирования с возможным планированием участка 22 таунхауса. | | ||
67-69 New London Rd ID участка 1801 2(PR # 17-11-02) | Незначительное подразделение для сноса существующего здания и строительства двух таунхаусов. | | ||
0 Paper Mill Rd, ID участка 0805200012 (PR # 17-11-01) | Аннексия, изменение зонирования и крупное подразделение с утверждением плана участка для создания 18 новых участки под строительство частных домов. | |||
0/1365 Marrows Rd College Square Sectn 1 Идентификатор участка 1802100203 Идентификатор участка 1802100204 (PR # 17-09-03) | Секция 1 второстепенного подразделения Квадратный торговый центр на 2500 квадратных футов торговых площадей. | |||
92 East Main St ID участка 1802000033 (PR # 17-09-01) | Крупное подразделение, разрешение на специальное использование и отказ от парковки для сноса существующей конструкции и строительства 4-этажное здание с коммерческими помещениями на 1-м этаже и 15 квартирами на 2-м, 3-м и 4-м этажах. Заявитель отзывает этот запрос и заменяет его на 92 и 96 East Main Street, PR # 18-10-01. | | ||
275 South Main St Park N Shop ID участка 1802500157 (PR # 17-06-02) | Комплексное изменение плана развития, изменение зонирования, подразделение специального назначения разрешение и отказ от парковки для сноса пустующего здания в северной части участка и строительства 3-этажного здания смешанного использования с торговыми площадями на 1-м этаже и 12 квартирными единицами на 2-м и 3-м этажах. | |||
65 South Chapel St Continental Court Apts ID участка 1802000209 (PR # 17-04-03) | Основное подразделение для сноса существующего многоквартирного дома и строительства 74-квартирный, 5-ти этажный многоэтажный жилой дом. Эскизный план был составлен заявителем, который планирует представить пересмотренный план в будущем. | | ||
36 Benny St Идентификатор участка 1802600129 (PR # 17-01-02) | Поправка к всеобъемлющему плану развития, утверждение плана повторного зонирования и крупного подразделения с участком снос существующих конструкций и строительство 7 квартир в стиле таунхаусов. | Письмо SAC от 20 марта 2017 г. | ||
24 и 30 Benny St и 155 South Chapel St Идентификатор участка 1802600127 Идентификатор участка 1802600128 0214 # 16-08-01) | Поправка к Комплексному плану развития, изменение зонирования и капитальное разделение с утверждением плана участка для сноса существующих построек и строительства 11 квартир в стиле таунхаусов. | |||
0 Дорога Независимости Деревня Честнат-Хилл ID участка 11008 (PR # 16-06-02) | Пристройка, перепланировка и строительство крупного подразделения 45 -общность таунхаусов на участке. | | ||
| 1119 South College Ave ID участка 1804600026 (PR # 16-06-01) | Разрешение на крупное подразделение и специальное использование для сноса существующих структур и строительства 4- исторический отель и круглосуточный магазин с бензоколонками. | | Письмо ВАС от 9 марта 2017 г. Планы представлены 10 февраля 2017 г. |
Текущие проекты | Реган Девелопмент
Swinburne Building, Олбани, Нью-Йорк: новое 5-этажное здание смешанного использования на 130 000 кв. М.
Строительные работы идут полным ходом и должны быть завершены летом 2020 года в здании Swinburne Building, расположенном в центральном деловом районе города Олбани, штат Нью-Йорк, по адресу 526 Central Avenue.
Комплекс состоит из 72 съемных квартир для сотрудников, 10 000 квадратных футов коммерческих площадей на первом этаже для медицинского учреждения первичной медико-санитарной помощи Whitney Young, а также лаборатории крови и местной аптеки, находящейся в ведении Колледжа фармации и здравоохранения Олбани, и более 6000 квадратных футов площадей. на офисные помещения для Equinox Inc., которые будут служить офисом социальных служб. На площади в 20 000 квадратных футов также будут расположены две торговые площади по соседству.
Жилые единицы проекта будут расположены на 4 верхних этажах здания. 72 жилых дома включают доступные по цене и обслуживаемые. страхование под 60% от среднего дохода по региону (AMI), единицы со средним доходом андеррайтинг под 65% и 90% AMI, рыночная ставка андеррайтинга под 100% AMI и один суперинтендант.
Equinox, Inc. — социальный партнер в разработке. Центр здоровья Equinox and Whitney Young получил награду в два миллиона долларов от Департамента здравоохранения штата Нью-Йорк за оборудование коммерческих помещений.
Проект соответствует Нью-Йорку и городу Голы Олбани:
- Создание нового привлекательного доступного жилья и коммерческих возможностей для местного района в центре города Олбани
- Удовлетворение местных жилищных потребностей путем предоставления доступной рабочей силы вариантов жилья для семей, а также для лиц с особыми потребностями и жилья наряду с социальными услугами
- Обеспечение первой первичной медицинской помощи медицинское учреждение для семей в деловом центре города Олбани.
Проект получает важную финансовую поддержку от New York State Homes and Community Renewal, благодаря чему арендная плата работает на доступном уровне. Мы по-прежнему благодарны за наше партнерство с HCR, которое позволяет Regan Development создавать важные жилищные возможности для людей по всему штату Нью-Йорк.
Строительство ремесленных зданий в Нью-Рошелле, штат Нью-Йорк: 75 новых объектов аренды
The Craft Building, Нью-Рошель, новейшее здание Нью-Йорка со средним доходом и доступное для сдачи в аренду старшее здание, которое планируется открыть весной 2020 года.Проект является совместным предприятием Regan Development и Quintessential Land Development, каждый из которых привносит важный опыт и навыки для создания успешных, динамичных жилых пространств для людей в Нью-Рошель. Craft Building будет шестиэтажным многофункциональным зданием, состоящим из 75 жилых квартир для сдачи в аренду для пожилых людей и людей с особыми потребностями, а также двух торговых площадей на уровне улицы. В дополнение к 62 квартирам для пожилых людей, 12 квартир будут выделены для жителей с ограниченными интеллектуальными возможностями или нарушениями развития (IDD) при поддержке Westchester Jewish Community Services, ведущего агентства услуг в округе.Квартира суперинтенданта на территории позволит жильцам наладить практическую работу.
Строительство пользуется сильной поддержкой со стороны нескольких агентств штата Нью-Йорк, каждое из которых оказывает важную поддержку и финансирование для обеспечения долгосрочного успеха Craft Building. New York State Homes and Community Renewal предоставляет освобождаемое от налогов финансирование в виде облигаций, налоговые льготы на доступное жилье и существенную ссуду под низкие проценты, которая поможет обеспечить доступность для нескольких уровней дохода.Кроме того, Управление штата Нью-Йорк по делам людей с нарушениями развития (OPWDD) предоставит как капитальные, так и долгосрочные финансовые услуги, чтобы люди с ЙДЗ могли жить в независимых, поддерживаемых квартирах в сообществе. Город Нью-Рошель и его МАР также предоставили финансовую поддержку, чтобы сделать развитие возможным. Кроме того, Regions Affordable Housing инвестирует в развитие, помогая снизить затраты на строительство, чтобы обеспечить доступную арендную плату для жителей.
Поскольку Craft Building возвышается на Юнион-авеню в Нью-Рошель, Regan Development гордится тем, что работает со всеми этими партнерами над созданием высококачественного арендного жилья для пожилых людей в этом районе.
Bear Woods Apartments, Кантон, Коннектикут: 40 современных квартир для сдачи в аренду, включая 10 квартир для людей с ограниченными интеллектуальными возможностями и пороками развития
Близится к завершению строительство Bear Woods Apartments, 40-квартирного жилого дома в Кантоне, Коннектикут.Bear Woods — это первый новый доступный по цене жилой комплекс в Коннектикуте с интегрированными поддерживаемыми квартирами для людей с ограниченными интеллектуальными возможностями и пороками развития (IDD). Проект является совместным предприятием Regan Development и Favarh, ARC в долине Фармингтон. Это также первая разработка в Коннектикуте IDASH (жилищная программа для лиц с ограниченными интеллектуальными возможностями и расстройствами аутистического спектра), создающая новую модель интегрированного независимого арендного жилья для людей, живущих с ЙДЗ.
Финансируемый в рамках программы IDASH, этот первый в своем роде проект является результатом совместных усилий Управления жилищного финансирования штата Коннектикут, Департамента жилищного строительства и Департамента служб развития штата. Специально спроектированное здание обеспечит большую независимость для людей с IDD, одновременно сэкономив средства на государственной программе Medicaid, что позволит оказывать дальнейшие услуги другим людям с IDD. Во время ужесточения бюджета это развитие улучшит жизнь людей с ЙДЗ и позволит штату распределять свои ресурсы, чтобы помочь большему количеству нуждающихся людей.
Это трехэтажное здание с лифтом будет также содержать на этаже прачечные, общественную комнату и патио для всех жителей, а также улучшенные общие комнаты для образовательных и профессиональных программ для жителей с IDD. Также будет специальный офис для управления зданием и еще один для Фаварха, который будет координировать услуги и поддержку для людей с IDD.
Как и его родственная разработка Апартаменты Lavender Field в Блумфилде, 10 апартаментов с особыми потребностями, будут содержат ряд функций, способствующих независимости людей с ЙДЗ, что позволяет живет в менее строгих условиях, чем это было бы возможно в противном случае.От автоматических открывателей дверей и полов с твердой поверхностью для облегчения доступа к специально разработанным кухням и ванным комнатам с специальные возможности, при разработке этих квартиры. Эти апартаменты также будут содержат передовые технологии «умного дома», включая улучшенные средства связи и видео, управление освещением и климат-контролем. Технология умного дома позволит жильцам с IDD, чтобы жить более независимой жизнью в своем сообществе.
Regan Development гордится тем, что является лидером в создании этой доступной и недорогой аренды с поддержкой корпус в интегрированной обстановке. Доступное жилье при финансовой поддержке WNC & Company. лидер отрасли, эта новая модель продемонстрирует заинтересованным сторонам и общественности в Коннектикут как создать успешное жилье для своих жителей и кантонское сообщество, предлагая экономически разумные решения для все вовлечены.
Lavender Field Apartments, Блумфилд, Коннектикут: Интегрированное доступное жилье с поддерживаемыми квартирами для людей с ограниченными интеллектуальными возможностями и пороками развития
Началось строительство Bloomfield Specialty Housing, одного из двух первых комплексных жилых комплексов в Коннектикуте, которые включают специализированные квартиры для людей с ограниченными интеллектуальными возможностями и пороками развития (IDD).Это недавно построенное двухэтажное здание будет иметь в общей сложности 38 квартир доступного жилья, в том числе 9 полностью доступных квартир, предназначенных для жителей с IDD.
Разработан в совместное предприятие Regan Development и Favarh, ARC of the Farmington Valley, разработка является частью новой программы в штате Коннектикут назвал IDASH (Интеллектуальные нарушения и спектр аутизма). Жилищная программа для беспорядков). В новая программа сочетает в себе специализированное финансирование от Государственного департамента жилищного строительства, Службы развития и Управление жилищного финансирования Коннектикута, чтобы сделать это интегрированное жилье возможно.Regan Компания Development гордится тем, что является пионером в этом деле, принося специально спроектированные квартиры в большом здании, создавая ощущение сообщество для всех наших жителей.
Как и его родственный проект в Кантоне, 9 квартир с особыми потребностями в Блумфилде будут содержать ряд функций, способствующих независимости людей с ЙДЗ, что позволит жить в менее ограниченных условиях, чем это было бы возможно в противном случае. От автоматических открывателей дверей и дощатого пола LVT с твердой поверхностью для облегчения доступа к специально спроектированным кухням и ванным комнатам с удобствами для людей с ограниченными возможностями, в дизайн этих квартир были вложены значительные усилия.Эти апартаменты также будут оснащены передовыми технологиями «умного дома», включая улучшенные средства связи и видео, управление освещением и климат-контроль. Технология умного дома позволит жителям с IDD вести более независимую жизнь в своем сообществе.
В этом двухэтажном здании с одним лифтом будет также общественная комната для социальных и образовательных программ и прачечные на этаже. Также будет специальный офис для управления зданием и еще один для Фаварха, который будет координировать поддержку социальных служб для жителей с особыми потребностями.
Regan Development гордится тем, что возглавляет эту передовую реконструкцию, в том числе экологическую уборка давно пустующего участка в Блумфилде. Застройка вдохнет новую жизнь в шлюз вдоль Коттеджа. Grove Road — и принесет городу важное качественное жилье для сдачи в аренду. Блумфилда.
Перекресток в Дженеси: историческая трансформация приносит 74 новых квартиры и оздоровительный центр для этого сообщества в Буффало, штат Нью-Йорк
Последняя разработка компанииRegan Development в Буффало, штат Нью-Йорк, только что началась.Застройка превратит пустующее в настоящее время историческое здание площадью 110 000 квадратных футов в Crossroads в Дженеси, которое будет включать в себя 74 ультрасовременных, современных съемных квартиры с одной, двумя и тремя спальнями, а также около 1600 квадратных футов жилой площади и примерно 400 квадратных футов для офисов на территории городского центра подполковника Мэтта. Кроме того, новое одноэтажное здание площадью 8 100 квадратных футов будет построено в северо-восточном углу участка, чтобы предоставить населению новый комплексный медицинский центр, управляемый Jericho Road.
Перекресток в Дженеси — результат положительной синергии сочетания финансирования жилищного строительства штата Нью-Йорк и финансирования общинного обновления, регионы Повышение кредитоспособности инвестиций в доступное жилье и периода строительства от JP Морган Чейз Банк. Эти финансовые партнеры играют решающую роль в превращении разработки в реальность для жители Буффало, Центр города подполковника Мэтта и сообщество Джерико-Роуд Центр здоровья. Regan Development гордится присоединиться ко всем этим партнерам, чтобы помочь сделать Crossroads at Genesee реальностью.Строительство на застройке Ожидается, что строительство будет завершено в середине 2021 года.
Broad Street Commons: новое арендное жилье и программа школьного наставничества в Гленс-Фолс
Этой осенью началось строительство на улице Broad Street Commons в Гленс-Фолс, штат Нью-Йорк. Этот проект создаст прекрасную возможность для сдачи в аренду жилья для сообщества Гленс-Фоллс, включая 71 квартиру с разным доходом, адаптированным для этого района. Этот новый доступный аренда девелопмента — результат сотрудничества Regan Development Corporation и AIM Services, которые будут оказывать услуги жителям одиннадцати лет. апартаменты с одной спальней, предназначенные для людей, живущих с интеллектуальными нарушения развития.
Развитие выгоды от критического финансовая поддержка New York State Homes and Community Renewal, Regions Доступное жилье, Community Preservation Corporation и Нью-Йорк Государственное управление людей с отклонениями в развитии.
Коммерческая жизнеспособность для общественных целей: В рамках усилий по построению сообщества, разработка также будет служить программным пространством для некоммерческого фонда семьи Фредетт, который будет использовать это пространство для своих школьных программ наставничества.Фонд семьи Фредетт был основан на этом ключевом убеждении: «Когда ребенок голоден, мерзнет, насмехается над ним, издевается или боится, у него нет способности или интереса к тому, чтобы научиться развивать характер. Эти дети нуждаются в нашей немедленной помощи ».
Regan Development рада предоставить Фонду это важное коммерческое пространство, чтобы Фонд семьи Фредетт мог оказывать эту важную помощь местным детям. Regan Development гордится тем, что объединилась с правительством штата Нью-Йорк, Regions Bank, AIM Services и Фондом семьи Фредетт, чтобы создать новый общественный актив в Гленс-Фолс.
Clifton Main Mews II: Превращение истории промышленности в постоянный актив сообщества
Следуя успеху Clifton Main Mews, Regan Development приступила к миссии по преобразованию исторически значимого здания в общественный ресурс, предоставляя высококачественные арендные квартиры по арендной плате, которая имеет смысл для повседневного бюджета. На Мэйн-авеню, 1000 в Клифтоне, команда разработчиков собирается начать строительство, чтобы оживить историческое здание Passaic Worsted Mills.Clifton Main Mews II создается из этого исторически отличного трехэтажного U-образного красного кирпича с несколькими отсеками фабрики, которое было построено в 1895 году для размещения шерстяной фабрики. Это предприятие оживит этот исторический уголок Клифтона, превратив его в 92 современных арендных дома для местных жителей. После завершения жители войдут через центральный вестибюль на первом этаже, в котором также находятся общественная комната, прачечная и офис управления. Остальная часть комплекса состоит из 18 квартир с одной спальней, 69 квартир с двумя спальнями и 5 квартир с тремя спальнями, каждая из которых включает в себя посудомоечные машины Energy Star, холодильники и кондиционеры с индивидуальным контролем.В этой части Нью-Джерси существует явная потребность в новом арендуемом жилье по хорошей цене. Компания Regan Development осознала эту потребность и работает с городом Клифтон и штатом Нью-Джерси, чтобы вернуть к жизни историческую мельницу, еще раз улучшив общину. Regan Development гордится тем, что предоставляет эту возможность, а также дает новую жизнь фабрике, которая старше Клифтона. Ожидается, что строительство начнется весной 2018 года.
Meriwether Homes Redevelopment
Meriwether Homes Redevelopment — это многоэтапная реконструкция предыдущего государственного жилищного строительства, известного как Meriwether Homes в городе Гриффин, штат Джорджия.Жилищное управление города Гриффин (ГСГ) выбрало Пеннроуз для реконструкции дома Meriwether Homes, функционально устаревшего государственного жилищного комплекса из 120 квартир, построенного в 1952 году. В результате оживления был создан новый жилищный комплекс со смешанным доходом, а также он стал катализатором перепланировки. в Парковый район.
The Oaks at Park Pointe, первая фаза этой многоэтапной реконструкции, была одной из первых реконструкций RAD, завершившихся в рамках RAD в конце 2014 года. Проект предусматривал снос и реконструкцию нового жилья на существующем участке.Завершенный в декабре 2015 года, 84-квартирный комплекс состоит из 15 двухэтажных жилых домов в стиле таунхаусов и современного арендуемого / общественного центра с полностью оборудованной кухней и компьютерным залом, а также установка стиральной машины и сушилки. Из 84 единиц 42 являются единицами RAD PBRA, а остальные 42 — единицами LIHTC, предназначенными для домохозяйств, зарабатывающих 60% или меньше AMI. Детали дизайна и конструкции обеспечат качество и долговечность, чтобы максимально продлить срок службы здания и минимизировать техническое обслуживание благодаря внешнему виду и ощущениям, которые присущи агрегатам «рыночной стоимости».
The Iris at Park Pointe, вторая фаза этой многоэтапной реконструкции, была построена для удовлетворения острой потребности в доступном жилье для престарелых в Гриффине и была завершена в декабре 2016 года. Трехэтажный жилой дом средней этажности расположен на северный конец собственности, через дорогу и в непосредственной близости от жилого комплекса. Iris состоит из 85 квартир с одной и двумя спальнями и построен с использованием современного дизайна, разработанного сообществом.Здесь есть множество удобств, включая общественный центр, компьютерный зал, фитнес-центр, оздоровительный центр, комнату декоративно-прикладного искусства, гостиную, открытую веранду и патио, а также услуги прачечной.
Terraces at the Park, третий этап этой многоэтапной реконструкции был завершен в ноябре 2018 года. Он будет продолжать удовлетворять острую потребность в доступном жилье для пожилых людей в Гриффине. 3-этажный жилой дом средней этажности расположен на поле для гольфа City Park и состоит из 68 квартир с одной и двумя спальнями.Здесь есть множество удобств, включая общественный центр, компьютерный зал, фитнес-центр, оздоровительный центр, комнату декоративно-прикладного искусства, гостиную, открытую веранду и патио, а также услуги прачечной.
Все этапы будут иметь сертификаты сообществ EarthCraft и многоквартирных домов EarthCraft House. Как объекты, сертифицированные EarthCraft, они включают в себя элементы, которые способствуют созданию здоровых, доступных по цене, зеленых домов, в том числе такие предметы, как приборы и освещение ENERGY STAR, высокоэффективные водопроводные системы, системы отопления и охлаждения, а также энергоэффективные окна и двери.
На всех этапах используется 9% -ный капитал LIHTC, средства FHLB AHP и ссуды от Griffin Housing Authority. Проект будет включать 120 блоков RAD на всех трех этапах.

Добавить комментарий