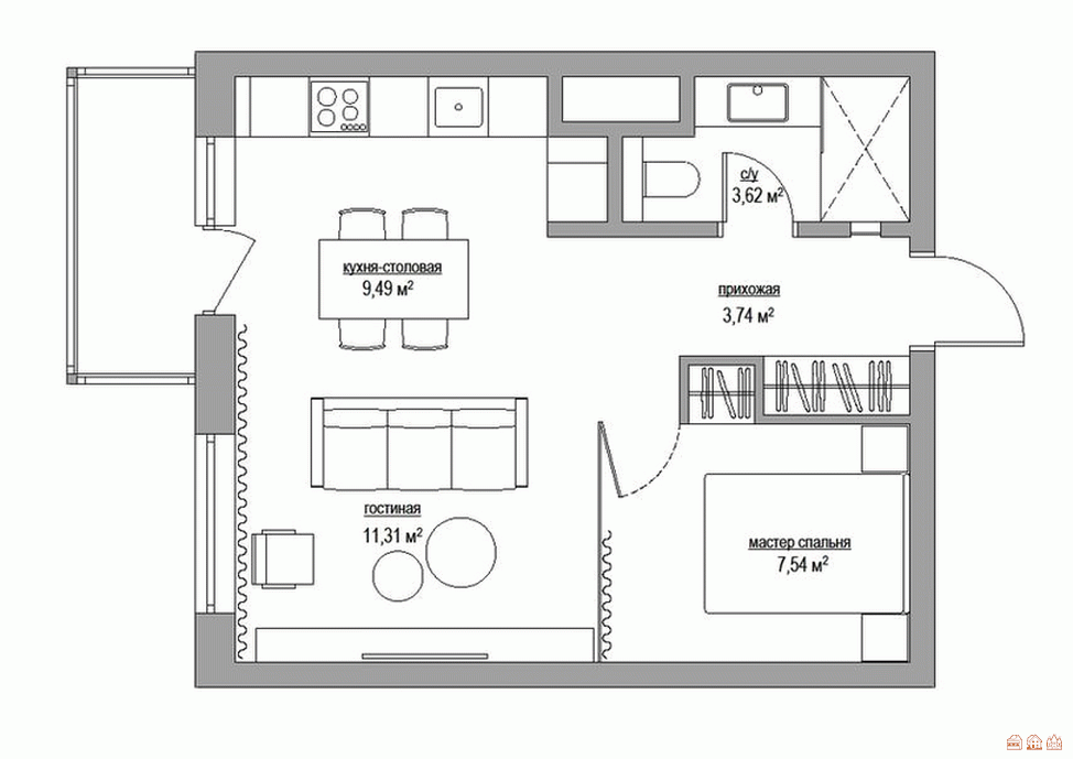
План квартиры студии: Проект небольшой студии 16 м в стиле минимализм
основные принципы, идеи дизайна, фото
В жизни всё происходит циклично. На протяжении сотен лет семьи, состоящие из большого числа людей, ютились в одной большой комнате, устанавливая различного рода заслоны для создания собственных уголков. В советский период увеличился спрос на квартиры с несколькими, пусть маленькими, но выделенными комнатами.
Сегодня вновь появилась мода на просторные помещения, где зоны отделяются не стенами, а фактурой отделочных материалов, цветом или лёгкими перегородками. Квартиры-студии стали престижным и дорогостоящим жильём. Дизайнеры получили возможность осуществлять свои фантазии по планировке и организации больших пространств, где можно применять различные комбинации порой несовместимых вещей.
Планировка квартиры-студии должна учитывать пожелания всех проживающих и органично объединять в себе разные зоны назначения в единую композицию.
Что представляет собой квартира-студия
Квартира-студия представляет собой единое жилое пространство, в котором отделён стенами только санузел.
Все остальные зоны находятся в одной большой комнате.
Принципы планировки
Главным принципом планировки квартиры-студии является отсутствие бесполезного пространства. Коридоры и маленькие угрюмые комнаты уходят в прошлое. В помещении должно быть много свободного места, воздуха и света.
Преимущества и недостатки жилого помещения без перегородок
К преимуществам жизни в студии можно отнести большое количество воздуха, а значит человек получает чувство свободы. Даже самая маленькая квартирка после сноса стен становится намного больше по площади, соответственно в ней можно разместить несколько функциональных зон.
Дизайнер получает возможность творить и воплощать в реальность любые задумки, не ограничиваясь глухими перегородками.
Однако у такого жилья есть и недостатки:
- студия предполагает, что в ней будет проживать не более двух человек. В противном случае постоянное нахождение большого числа людей в одной комнате будет напрягать и раздражать.
Если же молодая семейная пара живёт в разном ритме — это тоже может стать проблемой. Когда один человек поднялся с кровати и занялся какими-то делами, другой также вынужден будет проснуться; - запах и шум во время готовки будет слышен во всей квартире;
- отсутствует место для уединения.
Таким образом, можно сделать вывод, что для одного человека квартира-студия практически не имеет недостатков. Однако второй, а тем более третий проживающий добавит неудобств.
Варианты зонирования пространства
Студия предполагает обязательное зонирование территории в зависимости от её назначения. Вариантов разграничения несколько. Это могут быть лёгкие перегородки, разделение при помощи мебели, отделочных материалов или цветовой гаммы.
Выделяют следующие условные зоны:
- Место готовки и принятия пищи — следует помнить, что запахи из кухни распространяются по всей квартире. Поэтому необходимо оснастить эту зону мощной вытяжкой.
В зоне приготовления пищи необходимо установить мощную вытяжку, чтобы избежать распространения запахов в квартире
- Рабочее пространство — если обладатель квартиры часто работает дома, нужно обеспечить место для работы.
Небольшой стол, находящийся внутри шкафа, удобен в использовании, при этом не будет отвлекать внимание во время других занятий.Рабочее место можно спрятать в шкафу
- Место для отдыха — хорошо, когда есть место для установки кровати. Хороший комфортный сон является обязательным атрибутом для полноценной жизни. В случае отсутствия такой зоны, спать придётся на диване, расположенном обычно в центральной части квартиры.
Перегородка и шкаф создают ощущение уединенности
- Санитарная зона. Ванная и туалет — единственное место в квартире, которое обязательно отделяется стационарными стенами.
Санузел в квартире-студии, как правило, невелик по площади и требует
- В любой квартире должны быть шкафы или полки для хранения одежды и предметов быта. Студия не является исключением, поэтому стоит заранее продумать варианты организации системы хранения вещей.
Для установки шкафа-купе можно использовать нишу
Общие правила подбора мебели
Квартира-студия предполагает единый стиль.
Это значит, что все элементы — от кухонного гарнитура до зоны спальни и места приёма гостей, должны гармонично сочетаться и подчёркивать созданный дизайн интерьера.
Ещё одно немаловажное правило подбора мебели для свободной планировки в малогабаритных квартирах — функциональность. Любой предмет должен быть полезен. Журнальный столик трансформируется в большой обеденный стол. Диван может использоваться в качестве кровати. Встроенный шкаф при необходимости включает в себя специальные приспособления для возможности ежедневной эксплуатации самых дальних участков.
Правильное освещение
Для каждой зоны в квартире-студии используется индивидуальный источник освещения
Единственная люстра, висящая в центре комнаты, ушла в далёкое прошлое. Сегодня наступило время функциональной системы освещения. Вместе с основными электроточками, обеспечивающими равномерный свет во всей квартире, должны зажигаться выделенные зоны. При необходимости подсветить рабочую поверхность в кухне необязательно тратить электроэнергию, задействованную во всем жилом пространстве.
Таким образом, каждая функциональная зона должна быть обеспечена индивидуальными софитами, бра, светильниками или другими приборами.
Использование разного уровня яркости создаст в помещении необходимое настроение.
Популярные стили оформления
Небольшие студии, переоборудованные из малогабаритных квартир, используют буквально каждый сантиметр. При этом должна выполняться главная задача — обеспечение свободного пространства. Для таких вариантов подойдут современные стили — хай-тек или минимализм.
Жилые помещения, имеющие большую площадь, могут использовать и другие стили. Классика с массивной мебелью и шикарным оформлением во все времена остаётся востребованной. Модерн привлекает своей оригинальностью. Он часто комбинируется с популярным сегодня экостилем.
Молодёжь зачастую предпочитает этнический скандинавский интерьер с элементами Лофта. Неординарные личности, любящие пофилософствовать, выбирают восточные эскизы. Прованс перекликается с деревенскими мотивами.
Этапы планировки
- В первую очередь необходимо избавиться от всех ненужных перегородок. Создаётся единое пространство. Стоит помнить о том, что любые изменения в планировке следует узаконить в соответствующих инстанциях. Несущие стены трогать запрещено, это может привести к трагическим последствиям.
- На следующем этапе определяются зоны, которые необходимы для жизни в квартире. Нужно заранее продумать возможности освещения каждого участка.
- Выбор цветовой гаммы и фактуры отделочных материалов — важный этап. Для зрительного увеличения пространства рекомендовано использовать светлые тона.
- Основная палитра сохраняется по всей площади единого пространства. Более глубокие оттенки выделяют функциональные зоны.
- Мебель должна подчёркивать выбранный стиль. В небольших квартирах отдаётся предпочтение многофункциональным предметам интерьера.
- Завершающим этапом станут дополнительные элементы декора в виде текстиля и аксессуаров. Они вдохнут в помещение душу и обеспечат необходимое настроение.

Варианты планировки для разной площади и формы помещения
Каждая квартира индивидуальна. Некоторые помещения имеют схожие особенности — достоинства или недостатки, которые можно подчеркнуть или скрыть проверенными способами.
Особенности планировки квартиры-студии для семьи с ребёнком
Квартира-студия для семьи с ребёнком — не самый удобный вариант. Однако при рациональном обустройстве жилья первые несколько лет жизни малыша можно провести в такой квартире.
Использование перегородки — один из способов разделить детское и взрослое спальные места
Семейная кровать для взрослых отделяется от остальной части квартиры раздвижными перегородками. В дневное время помещение имеет единую композицию, ночью образуется небольшая комната.
Простой гипсокартонный короб поможет создать игровую зону для подросшего малыша
Для полноценного развития ребёнка необходимо выделить достаточную площадь, в которой не будет загромождений, появится место для будущих игр.
Невысокая конструкция из гипсокартона разделит комнату на зоны.
Вместо межкомнатной двери хорошо использовать шторы
Зонирование комнаты при помощи лёгких штор позволит создать собственный уголок, необходимый для самого младшего члена семьи.
Кровать-чердак — отличное решение для малогабаритной студии
Кровать-чердак для ребёнка значительно сэкономит пространство в комнате. Под спальным местом расположился холодильник и полки для хранения вещей.
Спальный гарнитур на рельсах в дневное время легко сдвигается, освобождая место для игр
Нестандартное, при этом очень интересное решение планировки небольшой квартиры-студии предлагает использование двигающегося по рельсам гарнитура. В дневное время кровать прячется в нишу. На диване можно расположить третьего члена семьи. При этом в комнате остаётся достаточно места для подвижных игр.
Планировка маленькой квартиры с лоджией
Лоджия в квартире-студии — это дополнительная площадь
Простые и лаконичные материалы светлых оттенков зрительно увеличат пространство в малогабаритной квартире-студии.
Наличие лоджии позволит физически расширить полезную площадь.
Утеплённый балкон может играть роль ниши
Утеплённый балкон позволит создать дополнительную зону, которая выполнена в едином стиле со всей квартирой. Удобное оригинальное кресло у большого окна станет приятным бонусом в небольшой квартире-студии.
Стеклянная дверь лоджии зрительно увеличивает помещение без объединения с жилой зоной
Лоджию не обязательно объединять с основным помещением. Для увеличения площади достаточно использовать балкон в качестве жилой зоны — места для отдыха. При необходимости уединиться раздвижные стеклянные двери можно закрыть.
Оригинальное решение для лоджии как рабочего кабинета
Утеплённый балкон часто используют в качестве рабочей зоны. При этом необязательно демонтировать стену под внутренним окном. Её можно преобразовать в оригинальную деталь интерьера.
Можно также расширить кухню за счёт лоджии
Возможность переноса кухонных коммуникаций в зону лоджии создаёт новые варианты для планировки.
В этом случае освобождается дополнительное пространство для других целей. Зона приготовления еды не будет нуждаться в искусственном освещении в светлое время суток.
Планировка квартиры-студии с одним окном
Большое окно — хорошее преимущество
Единственное окно на всю студию уменьшает количество естественного дневного освещения. Но при правильно подобранной цветовой гамме проблема решается довольно успешно.
Стеклянные перегородки могут решить проблему недостатка света
Небольшие студии с одним окном не оставляют возможностей для полёта фантазии. Чаще всего кухня располагается на входе. Стеклянные раздвижные перегородки позволят избежать запахов в момент готовки. В остальное время небольшая по площади квартира будет иметь единую композицию. Зеркальная стена зрительно увеличит площадь помещения.
Кровать лучше всего расположить у окна
Если габариты квартиры позволяют выделить место для полноценной кровати, в помещении с одним окном наиболее приемлемым вариантом для этого выступает зона у окна.
Место для отдыха не должно быть проходным.
Барная стойка в данном случае разделяет помещение на зоны и выполняет роль обеденного стола
Студии с единственным оконным проёмом зачастую имеют идентичное расположение функциональных зон. На входе размещается кухня, далее гостиная, которая одновременно выступает местом для сна. Зона приготовления еды отделена от жилого пространства барной стойкой. Она же выполняет функцию обеденного стола.
При использовании раздвижных дверей для разграничении зон следует добавить дополнительные светильники
Раздвижные двери между гостевой зоной и местом для отдыха позволят уединиться одному из проживающих в квартире-студии. Стоит учитывать, что в этот момент центральная комната остаётся без естественного освещения — необходимо заблаговременно позаботиться о монтаже дополнительных светильников.
Планировка двухуровневой квартиры-студии
При наличии достаточно высоких потолков в квартиру студию можно добавить еще один ярус
Квартиры с потолками, высота которых превышает четыре метра, можно преобразовать в двухуровневые студии.
На основном этаже располагается место для готовки и гостевая зона. Второй ярус выделен под спальню. Даже если в комнате много гостей, один из проживающих всегда сможет подняться наверх и побыть в одиночестве.
Помещения в двухуровневых студиях следует решать в едином стиле
Двухуровневые студии всегда выполнены в едином стиле с одинаковой цветовой палитрой. При таком расположении функциональных зон режим дня одного из проживающих не будет зависеть от бодрствования или сна супруга.
В квартире-студии под самой крышей можно обустроить полноценный второй этаж
Некоторые застройщики многоквартирных домов предлагают к продаже квартиры на верхних этажах, потолки которых позволяют сделать два полноценных этажа. При такой планировке наиболее приемлемым вариантом выступает гостевая зона и кухня на нижнем этаже, выполненная в виде студии, а также размещение санузла. Другая половина квартиры включает спальную зону. В зависимости от площади помещения и количества проживающих людей комнат на втором ярусе может быть несколько.
Наличие дополнительного яруса позволяет разграничить спальные места
Иногда в небольшой квартире приходится ютиться нескольким людям, для которых необходимы индивидуальные зоны отдыха. Высокий потолок может решить эту проблему. По примеру двухъярусных кроватей наращиваются двухуровневые спальни.
Пример использования натуральных материалов в интерьере двухуровневой студии
Даже самую миниатюрную жилую площадь можно обустроить таким образом, чтобы проживающему на ней человеку было комфортно. Использование качественных натуральных материалов сгладит ощущение тесноты. Аккуратная маленькая кухня с барной стойкой вместо стола расположена у самого входа в квартиру. Над ней располагается небольшая, но вместительная спальня.
Большая квартира-студия
На первый взгляд кажется, что создать интерьер квартиры-студии большого размера не составит труда. На самом деле, такая задача под силу не каждому дизайнеру. Главной целью выступает не использование каждого метра площади, а гармоничное наполнение пространства.
На этом фото хорошо видно, как можно разделить интерьер на зоны без дополнительных перегородок
Активные жизнерадостные семейные пары иногда предпочитают из многокомнатной квартиры создать единый интерьер. Отсутствие перегородок даже в спальне добавляет простора и воздуха. Зональность выделена лишь ковровым покрытием и незначительными деталями.
Обилие естественного света сглажено элементами темных тонов
Яркий пример идеального мужского жилища. Большое число окон обеспечивает естественное освещение. Чёрные тона, в том числе кирпичная стена тёмного цвета, компенсируют излишнюю яркость.
Пастельные тона и цветочные принты делают помещение светлее и уютнее
Прованс воплощает в себе мечты обустройства квартиры-студии для женщины с романтичной натурой. Светлые тёплые краски создают умиротворяющее настроение. Лёгкие перегородки разграничивают пространство на необходимые зоны.
В данном интерьере композиция строится вокруг двуспальной кровати
Спокойные тона и натуральные отделочные материалы создают эффект экологичности и естественности.
Композиционным центром выступает большая двуспальная кровать, прикрытая лёгкими занавесками.
Вместо радикального демонтажа стен можно сделать широкие арочные проёмы
В стандартной трёхкомнатной квартире для создания студии необязательно полностью демонтировать все стены. Широкие арки создадут ощущение цельного пространства, при этом каждая зона выделена небольшими перегородками.
Оригинальные идеи и интерьерные новинки
Подвесная кровать позволяет сэкономить место в малогабаритной студии
Подвесная кровать в дневное время поднимается к потолку и не занимает лишнее пространство.
В данном случае спальное место отделено глухими занавесками и гипсокартонной конструкцией
Кровать, расположенная в нише, спрятана за аккуратными портьерами. Простота в оформлении подчёркивает лаконичность интерьера.
Кровать можно разместить на возвышении, которое может использоваться как место для хранения
Спальное место может располагаться на возвышенности. В нижней части организована система хранения вещей.
Стиль лофт не предполагает большого количества мебели и подойдет активным молодым людям
Недостаток мебели не всегда влечёт за собой отсутствие стиля. Абсолютно белые стены с некоторыми элементами лофта снимают внутренние рамки человека. Такое оформление подойдёт для людей, ценящих внутреннюю свободу и любящих путешествовать.
Оригинальное решение спального места
Ярким акцентом в студии выступает зона для сна. Уникальность состоит в том, что место отдыха можно без труда передвигать по комнате.
Фотогалерея — примеры удачной планировки квартиры-студии
Опыт последних лет показал, что студия представляет собой идеальную планировку для одного человека или молодой семейной пары. Даже самое небольшое помещение можно обустроить таким образом, чтобы вся необходимая мебель была под рукой. Придерживаясь определённых правил, можно создать прекрасную атмосферу. Распространение получили и большие студии, которые образовались путём объединения сразу нескольких комнат.
Не нашли то, что искали? Вернитесь к поиску планировок квартир по параметрам типового проекта. Поддержите проект, расскажите о tipdoma.com в социальных сетях:
варианты для площади 12-18 кв. м, дизайн квартир по 24 и 26 «квадратов», обстановка двухкомнатных от 27 до 45 метров
Современные квартиры-студии – это идеальное жилое пространство для молодых людей. Это комната, которая сочетается с кухней, выглядит стильно и позволяет сэкономить много свободного пространства. О том, какие есть особенности у квартир-студий и как их правильным образом обустраивать, вы узнаете из данной статьи.
Особенности и преимущества
Квартира-студия – это помещение со свободной планировкой. В такой комнате минимальное количество перегородок, кухня не отделяется стеной от гостиной и рабочего кабинета.
Но существуют и уединенные зоны, например, санузел. Отделенной от студии может быть и спальня.
Вне зависимости от того, какая у вас квартира – однокомнатная, двухкомнатная или даже трехкомнатная, вы можете использовать основное пространство под гостиную, совмещенную с кухней. Если есть другие свободные комнаты, то они отводятся под спальни.
Существует много способов разделить жилое пространство одной комнаты на несколько функциональных зон. Для этого можно использовать цветовые акценты, мебель или даже перегородки.
У квартир-студий есть свои преимущества и недостатки.
Кроме того, такое пространство очень функционально, ведь в одном помещении находятся сразу и кухня, и обеденное место.
Но есть и определенные минусы у квартиры с такой планировкой. Прежде всего стоит заметить, что помещение такого типа нельзя захламлять лишней мебелью, особенно если оно достаточно маленькое. Перед тем, как заниматься обустройством квартиры, нужно тщательно распланировать пространство.
Для некоторых недостатком является и сам факт того, что кухня совмещена с основной комнатой. Дело в том, что если вы будете готовить много вкусной еды, то запахи постоянно будут пропитывать мебель и все ваши вещи.
Впрочем, если все эти недостатки для вас незначительны, то можете смело выбирать для себя стильную студию или перестраивать под нее обычную квартиру.
Варианты при разной площади
Существует много вариантов планировки студии, которые делают ее такой комфортной и функциональной. Подбирать проект стоит под количество человек, которые будут жить в этом помещении, и с учетом всех их потребностей.
Удобнее всего заниматься планировкой просторных квартир размером в 32-33 квадратных метра и больше.
В такой большой студии можно найти место для всех необходимых зон: и для кухонной, и для рабочей. Если у вас в свободном доступе есть 35, 36 или 37 кв. м свободного пространства, можно оборудовать в комнате и зону для отдыха с креслами, журнальным столиком и полками.
Территорию свыше 30 квадратных метров стоит разделить на несколько зон визуально, чтобы вам было комфортно жить в такой квартире и не видеть постоянно одну и ту же картину перед собой.
Для этой цели можно даже воспользоваться невысокими перегородками. Это могут быть стеклянные или деревянные стенки, ширмы или цветастые жалюзи.
Также можно попробовать сочетание разных стилистических направлений.
Например, зону, отделенную под рабочее пространство оформите в классическом стиле, а кухонное пространство и гостиную – в современном. Вы можете также использовать разные цвета – для зоны отдыха более светлые, например, пастельные, а для игрового пространства – яркие акценты.
Планировка маленькой студии размером в 21, 22 или 23 метра должна быть идеально продуманной.
Выделяйте самые необходимые зоны и правильным образом их обустраивайте. Так, если у вас в распоряжении всего 18 или 19 квадратных метров, то его вам хватит только на оборудование жилой зоны и кухни
В целом, справиться с оформлением квартиры можно даже в том случае, если ее размеры очень скромны – 12, 13, 14, 15 или 16 кв. м. Конечно, сделать это сложнее, чем в просторной студии размером 50 кв. м, но все равно возможно.
Существуют и более простые варианты планировки, например, квадратные студии размером в 26 или 27 квадратных метров или узкие прямоугольные студии с параметрами 28, 29 или 45 кв.
м. Их обустраивать немного сложнее, но все равно можно подобрать индивидуальную планировку, которая сделает такую студию удобной.
Форма
Об особенностях студий разной формы стоит поговорить отдельно. Дело в том, что дополнительные комнаты вроде лоджии или балкона позволяют слегка расширить пространство и сделать его более функциональным. С этой же задачей дают возможность справиться и различные ниши на стенах.
Узкие прямоугольные квартиры, как правило, трудно оформлять. Владельцы таких студий стараются всеми возможными способами расширить пространство. В первую очередь, нужно умело расставлять мебель. В квартире всегда должно быть достаточно свободного пространства для прохода.
В узких квартирах дизайнеры советуют использовать мебель, которая при необходимости трансформируется: выдвижные диваны, раскладные столик и кресла, столы с откидными столешницами и так далее.
Обустроить классическую квадратную студию намного проще. Стены в ней примерно одинаковые, а в центре остается много свободного пространства. Значит, вам не придется так активно стараться втиснуть всю мебель в узкие уголки.
Увеличить пространство современной студии помогает просторная лоджия.
Перед тем, как использовать ее в качестве жилой комнаты, лоджию нужно предварительно застеклить, если она открытая, и утеплить.
Для этого используется соответствующая отделка потолка, пола и все стен.
Перед тем, как заниматься обустройством комнаты, нужно все тщательно продумать. Вы должны знать, под какую комнату вы отведете лоджию. Чаще всего там размещают кухню. Это очень удобно, поскольку вам даже не придется сносить стены, чтобы совместить новую комнату с основным жилищем. Вы сможете просто установить столешницу на месте подоконника и заменить дверь на простую арку.
Дополнительное место вы получите и в том случае, если купите двухуровневую студию.
На двух этажах сможет с комфортом разместиться и молодая пара, и полноценная семья с детьми. Разделение на два этажа дает возможность отделить зону для готовки от места для отдыха, а значит, если вас раздражают запахи еды, то это идеальный выход из такой ситуации.
Как правило, в таких квартирах на нижнем этаже располагаются кухня, гостиная и коридор, а на верхнем – спальни и рабочее пространство.
Освещение
Каких бы размеров и форм ни была ваша студия, нужно отдельно позаботиться о выборе правильных источников света. Вам понадобится и качественное естественное освещение, и искусственный свет.
Очень важно, чтобы в квартире были широкие окна. Если они сами по себе маленькие, то можно попробовать оформить их по краям камнем, мозаикой или более светлыми цветами. Такой дизайн сделает окна зрительно более широкими.
И в студии с одним окном, и с двумя можно выгодно использовать естественное освещение. Чем меньше света и чем короче световой день в вашем регионе, тем более тонкие шторы стоит выбирать для своей квартиры. Это позволит естественному освещению при любой возможности проникать в вашу квартиру.
Если у вас окна с подоконниками, то их тоже можно сделать функциональной деталью интерьера. Они могут заменить столик, полку или расширить вашу барную стойку.
Что касается искусственных источников света, тут тоже существуют разные варианты.
Не стоит ограничиваться одной потолочной люстрой.
Свет – это еще один способ зонировать пространство. В одной части комнаты он может быть более мягким, а в другой – ярким, чтобы вам было комфортней работать.
Также светильники могут различаться и дизайном. Для кухни, к примеру, можно выбрать классические бра с расписными стеклянными плафонами, а в обеденной зоне подвесить аккуратную подвесную люстру.
Важные акценты
При оформлении студии можно использовать самые разные акценты.
Это позволит разнообразить интерьер и сделать зонирование пространства более четким. В их качестве могут выступать ручные предметы декора или яркие аксессуары.
Например, на кухне можно расставить коллекцию цветных чашек или подвесить разрисованные вафельные полотенца и прихватки. Это сделает зону для готовки более живой и отделит ее от однотонной гостиной.
В гостиной или спальне всегда найдется место для всевозможных подушек, мягких ковриков и пледов. Такие детали добавляют уюта любому помещению. Вы можете использовать цветной текстиль, лоскутные одеяла или пледы, стилизованные под мех животного.
Оригинальным образом украсить можно даже санузел или комнату с балконом.
Выбирайте подходящие по стилю детали, и даже самая обычная и унылая комната в маленькой студии преобразится.
Красивые примеры обстановки
Студия – это, как правило, современное молодежное помещение. Поэтому в такой квартире нет места хламу и старой ненужной мебели. Выбирайте только практичные и нужные вещи. Это относится не только к мебели, но и к декоративным элементам.
Если у вас есть какое-то хобби, не обязательно его скрывать. Наоборот, старайтесь уделять любимому делу как можно больше свободного времени и используйте все, что вам нужно для приятного времяпрепровождения в качестве декора. Например, если вы занимаетесь рукоделием, то в качестве перегородки, отделяющей спальню от зоны для отдыха, можно использовать высокую полочку с установленными на ней ящичками для хранения всего необходимого.
Музыканты тоже могут демонстрировать свое хобби всем гостям. Гитару, например, можно повесить на стену, а синтезатор установить на подоконнике, вместо того, чтобы покупать под него специальную подставку.
Если же вам не нужно отделять место для работы или творчества, то можно ограничиться простой однокомнатной студией, в которой поместятся и спальня, и гостиная. Под зону для сна обычно отделяют участок поменьше. Разделить эти две зоны можно, установив диван или невысокую перегородку.
Если у вас появился малыш, но пока нет возможности переехать в квартиру побольше, то можно и в однокомнатной студии обустроить зону под детскую.
Поставьте кроватку рядом со своим диваном или отделите ее при помощи цветастой ширмы. Рядом найдется место и для столика или небольшого комода, где будут храниться детские вещи.
Как видите, уютно обустроить можно даже совсем небольшую студию. Планируйте проект заранее или пользуйтесь услугами профессионалов, и тогда в вашей квартире найдется место для всего, что вам нужно.
Обзор квартиры-студии 45 кв.м. смотрите в следующем видео.
youtube.com/embed/uH-HFCPv2DM?modestbranding=1&iv_load_policy=3&rel=0″/>
Дизайн квартиры-студии [90+ фото] планировки, зонирование
Особенности дизайна интерьера
Несколько оформительских нюансов:
- Для того, чтобы данная квартира-студия не выглядела загроможденной, при ее декорировании не следует использовать слишком много мелких деталей.
- Не рекомендуется применять большие мебельные элементы в темных тонах, так как это может поспособствовать созданию неуютной и давящей атмосферы.
- Между мебелью нужно оставлять свободное место в достаточном количестве, чтобы обеспечить открытый и доступный проход.
- При зонировании помещения, дизайн перегородок должен соответствовать общему интерьерному стилю.
Примеры планировок
Обустраивая квартиру-студию, в первую очередь нужно учесть ее размеры и общий план. Например, помещение квадратной формы, отличается более широкими возможностями и представляет собой идеальный вариант для ремонта.
В данном пространстве кухонная зона занимает меньшую часть, а гостевое и спальное место практически половину студии.
Подборки планировок разной площади:
На фото вид сверху на квартиру-студию с планировкой квадратной формы.
Прямоугольная квартира обладает некоторыми трудностями при обустройстве, которые с легкостью решаются с помощью разнообразных перегородок и цветового оформления. Зрительно расширять вытянутое помещение и максимально приближать его к квадратной форме можно, за счет зеркальных поверхностей, светлой отделки стен или фотообоев, придать комнате легкости помогут всевозможные ширмы, нитяные шторы и качественное освещение.
На фото дизайн квартиры-студии с высокими потолками, оборудованный вторым ярусом.
В двухуровневой студии, второй этаж наиболее часто выделяют под спальное, рабочее место, гардеробную или различные системы хранения в виде тумбочек, комодов и прочего. Такая конструкция может иметь не только угловое расположение с дополнительными опорами в виде стен, но и размещаться по центру жилого пространства.
Массой возможностей обладает помещение неправильной формой или квартира с эркером, который добавляет комнате дополнительной площади и наделяет ее большим количеством света. Эркерный выступ может стать прекрасной зоной отдыха, рабочим местом или игровым пространством для ребенка.
На фото небольшая студия с нишей, оснащенной под сальное место.
Примеры интерьеров с окнами
В квартире-студии с одним окном, возле проема, чаще всего располагают спальную зону, а за ней кухню. Из-за минимального количества естественного света, кухонное пространство оборудуют интенсивным и качественным освещением.
На фото окна с панорамным остеклением в интерьере квартиры-студии.
Помещение с двумя или с тремя окнами, за счет большего проникновения солнечного света, визуально смотрится гораздо просторнее. В комнате с большими окнами, следует устанавливать мебельные предметы вдоль остальных стенок, чтобы не загораживать оконные проемы.
На фото дизайн квартиры-студии с одним окном, выполненный в эко-стиле.
Как обустроить квартиру?
При грамотном обустройстве квартиры-студии, в ней можно сформировать по-настоящему уютный и комфортный дизайн.
Как обставить мебелью?
Мебельные элементы должны отличаться высокой функциональностью и располагаться в соответствующих зонах. Мебель нужно устанавливать так, чтобы она не перекрывала проходы и не препятствовала передвижению по комнате.
Самым оптимальным решением для студии, являются трансформирующиеся конструкции или например, раскладной угловой диван и откидная кровать. При выборе данных моделей следует учитывать их размер в разобранном состоянии.
В качестве систем хранения лучше применять встроенные шкафы, помогающие значительно сэкономить площадь.
Отличным дизайнерским ходом, станет отделение кухонного пространства от остальной комнаты, за счет барной стойки.
Такой элемент мебели, не только имеет очень стильный вид, но и представляет собой удобную обеденную зону, которую также можно оборудовать с помощью различных ящиков для посуды и прочего.
На фото расстановка мебели с барной стойкой в интерьере современной квартиры-студии.
Цветовая гамма
Гармоничнее всего дизайн студии выглядит в светлом исполнении с использованием спокойных белых, бежевых, молочных, кремовых и других пастельных оттенков. Таким образом получается зрительно увеличить помещение и наделить его большим уютом.
Для тех, кто предпочитает оформление в броских и насыщенных желтых, зеленых цветах или выбирает контрастные черно-белые или красно-белые сочетания, лучшим решением будет дополнить обстановку мебельными предметами в неброских тонах, чтобы общий ансамбль не смотрелся слишком пестро.
На фото дизайн квартиры-студии, выполненный в черно-белой цветовой гамме.
Достаточно выигрышным считается дизайн, выполненный в более темной расцветке, например, серой, темно-синей, черной или коричневой.
Подобный интерьер обладает современным и даже немного футуристичным видом, но требует дополнения с помощью теплого освещения.
Шторы и другой текстиль
Из текстиля в квартире-студии, часто применяют шторы, для того, чтобы разграничивать помещение или украшать окна. Занавеси являются очень изящной интерьерной деталью, позволяющей визуально увеличить площадь жилого пространство и придать ему особой легкости. Например, максимального эффекта можно добиться с помощью светлых струящихся гардин, в виде невесомого тюля или органзы.
Для добавления комнате дополнительной высоты, лучше использовать полотна длиной от потолка до пола. Привычные занавески, также заменяют рулонными, римскими шторами или жалюзи. При выборе шторного ансамбля, важно его гармоничное сочетание с остальными интерьерными предметами, отделкой и меблировкой.
На фото тюлевые гардины белого цвета на окнах в дизайне квартиры-студии.
Идеи освещения
Свет играет практически самую главную роль в оформлении студии.
Благодаря освещению и подсветке, возможна визуальная корректировка пространства и увеличение его площади. По расположению светильников и ламп, выделяют нижнее, среднее и верхнее освещение.
На фото вариант освещения в небольшой студии в восточном стиле.
Для малометражки, нижний уровень освещения используют крайне редко. В основном данное оформление применяют только для зрительного разграничения помещения. Желательно, чтобы светильники имели дизайн, сочетающийся с общей стилистикой окружающего интерьера.
Люстры чаще всего отличаются традиционным исполнением, представляют собой интересные прожекторы или галогеновые точечные светильники.
На фото дизайн квартиры-студии для молодого человека с верхним уровнем освещения.
Как выглядит в различных стилях?
Фотопримеры дизайна студии в популярных стилистических направлениях.
Лофт
Читайте также
Квартира-студия в стиле лофтДанный стиль отличается масштабностью, эклектичностью и свободой, что позволяет создать в квартире по-настоящему уникальный интерьер, передающий атмосферу чердака.
Скандинавский
Благодаря нордической стилистике, получается наделить обстановку любого помещения, характерной легкостью, естественностью и простотой.
На фото дизайн маленькой квартиры-студии 24 кв. м. в скандинавском стиле.
Студия в стиле хай-тек
Футуристичный хай-тек предпочитают в оформлении более просторных комнат. Такой стиль характеризуется идеально ровными поверхностями, геометрическими формами и окружающим дизайном, выполненным в белых или серых оттенках с яркими вкраплениями красного, оранжевого или желтого цвета.
Для зонирования выбирают перегородки из стекла или металла, в оформлении пола используют глянцевую ламинатную доску или крупную плитку, стены в основном покрывают краской, а потолочную плоскость, иногда декорируют металлизированными рейками.
В стиле прованс
В дизайне студии, французская стилистика будет особенно уместна.
Подобное оформление представляет собой традиционный интерьер с сельскими нотками, украшенный с помощью разноцветных занавесок и множества декоративных украшений, таких как, интересные вышивки, узоры, рюши и прочее.
На фото интерьер студии, оформленный в стиле прованс.
Помещение в стиле прованс смотрится визуально объемнее и больше, такого эффекта позволяет добиться отделка в светлых тонах. Для стен здесь в основном предпочитают узорчатые обои в нежных лиловых, бежевых, молочных, розовых оттенках или покраску цвета морской волны, которая особенно гармонично комбинируется со светлыми мебельными предметами. Облицовка пола, представляет собой только натуральные материалы, например, в виде деревянного неокрашенного паркета под старину.
Средиземноморский стиль
Для средиземноморского дизайна уместна облицовка с помощью природных материалов или их удачной имитации. На полу в основном выложена керамическая плитка, натуральный или искусственный камень, деревянные доски или ламинат с шероховатой поверхностью.
Цветовая гамма, выполняется в белых, пронзительно бирюзовых, лазурных, голубых, кобальтовых, ярких желтых, светлых терракотовых, соломенных или нежно зеленых оттенках.
В качестве текстиля предпочитают легкие ткани и простые функциональные шторы.
Минимализм
Подобный минималистичный дизайн, станет идеальным решением для малогабаритной квартиры. Расцветка данного интерьера, включает в себя серые, молочные, бежевые и светло-коричневые колеры. Поверхность пола чаще всего отделывают кафелем, линолеумом или светлым деревом. Мебельные элементы в основном встроенные, а различный текстиль и диванная обивка, отличаются однотонным исполнением.
На фото малогабаритная квартира-студия, выполненная в стиле минимализм.
Классический
Актуальные в любые времена классика и неоклассика, очень гармонично вписываются в дизайн студии. Такие интерьеры сочетают в себе спокойную природную оттеночную гамму и строгие предметы мебели из натуральной древесины с лаконичным оформлением, в виде изящной резьбы, ковки и прочего декора.
Дизайн интерьера в студии
Варианты дизайнерского оформления квартиры-студии.
Кухонная зона в интерьере
В отличие от дизайна обычной квартиры, кухня в студии, должна максимально гармонично сочетаться с остальным жилым пространством. Для более аккуратного интерьера можно установить встроенную бытовую технику, например, духовой шкаф и варочную поверхность, или спрятать холодильник и посудомойку, за фасадом кухонного гарнитура. В качестве зонирования, иногда конструируют подиум, под который убирают все коммуникации.
На фото кухонная зона с белым угловым гарнитуром в дизайне квартиры-студии на мансарде.
Студия со спальней
При оформлении студии, в первую очередь рекомендуется определиться с размещением спального места и способом зонирования. Отличным вариантом станет установка кровати в отдельно выделенной нише, которую можно отделить, раздвижной перегородкой в виде купейных дверей, легкой или более тяжелой и плотной шторой.
На фото квартира-студия со спальной зоной с кроватью, расположенной в нише.
Зону для сна также желательно оборудовать качественной системой хранения. Например, встроенными бельевыми ящиками, полками, тумбой или компактным комодом.
Дизайн коридора
В основном, прихожая в квартире-студии, отличается достаточно небольшими размерами. В дизайне коридора наиболее уместна встраиваемая мебель, настенные вешалки и крючки, занимающие минимальную площадь. Если данное помещение, выполнено в более темных оттенках, его не желательно перегружать мебельными элементами в большом количестве.
С балконом
За счет балконного пространства, предоставляется отличная возможность расширения студии. На совмещенной утепленной лоджии с легкостью может разместиться кухня-столовая с подоконником, интегрированным в столешницу, рабочий кабинет, спальное место или зона отдыха.
На фото дизайн современной студии с большой лоджией с панорамным остеклением.
Рабочий кабинет
Достаточно удобным вариантом расположения рабочей зоны, считается угловое пространство, место возле окна или на объединенном балконе. Данный участок иногда выделяют с помощью отделки другого цвета или отгораживают стеллажом. В небольших комнатах для кабинета лучше устанавливать выдвижные конструкции или откидные столы, также возможно оборудование изолированного рабочего места в шкафу.
С детской для семьи с ребенком
Небольшая студия является прекрасным решением для семьи с ребенком. С помощью грамотной организации пространства, получается обустроить уютный детский уголок с определенным дизайном и отделить его от остального помещения за счет разнообразных перегородок.
Ванная комната
Санузел в квартире-студии, представляет собой достаточно маленькую комнату.
Идеальным вариантом здесь станет установка душевой кабины, компактного унитаза и узкой раковины, вдоль стен. В случае более просторного помещение возможно размещение горизонтальной ванны.
Рекомендации по отделки студии
Основные советы по облицовке:
- Для стен в небольшой квартире, желательно подбирать облицовку, имеющую минимальный блеск. Таким образом дизайн не будет утомлять и раздражать глаз.
- Отличным решением станут обои с мелким принтом, которые также поспособствуют зрительному увеличению площади.
- Для потолка наиболее уместно использование гипсокартона или штукатурки. Из гкл получается сконструировать привлекательную многоуровневую потолочную конструкцию со встроенными светильниками для зонирования пространства.
- Не менее популярным считается установка натяжных потолков с матовой или глянцевой фактурой, придающей комнате визуального объема.
- В гостиной и зоне отдыха, пол можно оформить ковровым покрытием, ламинатом или паркетом, а для кухни более практичной станет отделка каменной или керамической плиткой.

Зонирование и перегородки
Самым оптимальным вариантом зонирования являются перегородки, которые могут отличаться разделительной функцией, представлять собой систему хранения или просто декоративный элемент. Подобные конструкции могут иметь раздвижной или поворотный механизм, в их изготовлении применяют стекло, пластик, металл, дерево и другие материалы,
На фото перегородка, изготовленная из стекла в интерьере квартиры-студии.
Для малогабаритных квартир в хрущевке, очень популярна установка прозрачных стеклянных, комбинированных декоративных перегородок, сквозных конструкций или многофункциональных стеллажей до потолка.
Обязательно посмотрите варианты комбинирования плитки с ламинатом.
Фотогалерея
Дизайн квартиры-студии предоставляет возможность воплощения в жизнь самых оригинальных оформительских идей для преобразования данного пространства в современную и комфортабельную жилую площадь.
Планировка квартиры-студии | Дом, в который хочется приходить
Вокруг меня было только четыре белых стены.
В моей руке были ключи от моей квартиры, которые я только что получила, в голове было замершее недоумение «неужели это теперь моё».
Оно до сих пор ещё не выветрилось, хотя я потихоньку привыкаю к этой мысли.
Главный вопрос, который настиг меня как только трепетное почтение «Ооооо!» немного поутихло: как мне в такой крохотуле разместиться?
В моём представлении — и на моих досках в Пинтресте — моя квартира выглядела гораздо просторнее. У меня не очень много вещей, но я точно не минималист и не аскет. Я люблю вещи, люблю цвета и люблю декоративные подушки.
Ладно, подумала я. Как-нибудь помещусь. Посмотрю примеры в Пинтресте.
В Фейсбуке довольно случайно я наткнулась на бизнес-страницу дизайнера Веры Халдей. «Скорая интерьерная помощь», было написано там. Кроме интерьерных проектов от и до, Вера даёт консультации по Скайпу.
Я провела несколько дней в сомнениях о том, нужна ли мне скорая интерьерная помощь. Я ведь вроде как и сама могу, не зря же я училась интерьерному дизайну в Великобритании.
Но учёба-учёбой, Пинтрест-Пинтрестом, а всё-таки для таких вещей нужен профессионал.
Через несколько дней я написала Вере и она согласилась со мной поработать.
Первоочередная задача, которая передо мной стояла: максимально эргономично уместить в квартире кухонную зону, места для хранения, рабочее место, ведь я работаю из дома, спальное место и зону отдыха.
Кроме того, в квартире есть лоджия. Она просторная и это ещё ого-го какое добавление к квартире, но совершенно неутеплённая. Как с ней быть я не знала, не то чтобы я каждый день сталкиваюсь с неутеплёнными лоджиями.
Я прислала Вере план квартиры и размеры и через несколько дней мы созвонились по Скайпу. На встрече она показывала экран своего компьютера и модель моей квартиры в 3D и в 2D, рассказывала о том, какие варианты планировки она рассматривала и почему выбрала эти как финальные и даже отвечала на мои глупые вопросы вроде «Что ты имеешь в виду, когда говоришь гардеробная система?».
Вот те варианты, которые она предложила.
Вариант 1. «Выгляни в окошко, дам тебе горошка»
Здесь рабочий стол смотрит в окно и в интерьере повторяется тема горошка и кругов. Шкафы и хранение по максимуму вынесено на лоджию, которую необходимо утеплить и спальное место — это разбирающийся диван.
Вариант 2. Пчёлка Варя
Здесь кухонная стойка превращена в рабочий стол с углом 120’ с красивым задним фоном для всех моих прямых эфиров, вебинаров и консультаций. угол 120’ поддерживается в оформлении интерьера в виде шестиугольников.
Хранение всё там же, на лоджии и с кроватью мне, увы, придётся попрощаться, меня ждёт разбирающийся диван.
Казалось бы, два варианта планировки для маленькой квартиры-студии, это же просто и быстро. Но мы общались с Верой несколько часов и после этого я пошла думать, что же мне в итоге больше нравится.
Вере я тоже задала озадачивающий вопрос, а насколько легально хранить вещи на лоджии и что про это говорит пожарная безопасность.
Она, кстати, ответила, написав статью «Хранение на балконе и противопожарная безопасность» и только посмотрите как. Вот что значит скрупулёзный подход к делу.
После консультации Вера мне прислала все документы, все картинки с планировкой, разметки по розеткам и дополнительный подробный документ с комментариями и ссылками на то, где покупать мебель. Она может делать планировку и в цвете, чтобы вы могли представлять себе, как это будет выглядеть в реальности. Но мне нравится именно чёрно-белый схематический вариант. На этапе планирования пространства он мне подходил лучше всего.
Для меня самым важным стало даже не это, а то что я чувствовала, у меня теперь есть поддержка профессионала.
Со всем этим ремонтом и обустройством я в довольно интересной позиции оказалась. С одной стороны, мне повезло, потому что у меня нет мужа, с которым мы до потери пульса ругаемся о стилях в интерьере или о тратах. Я — сама себе хозяйка.
С другой стороны — мне нужно самой принимать все решения.
И о стилях, и о тратах. И иногда очень нужно просто кому-то написать сообщение «Сходила на планирование кухни в ИКЕА, это адский ад. Буду искать другие варианты». И получить в ответ и поддержку и ещё несколько ссылок с рекомендациями кухонь. Про кухни я ещё напишу отдельно, мне есть что сказать.
В процессе всё равно появляются разные тонкости и я не жду, что моя квартира будет выглядеть как на 3D картинке. Но консультация с Верой стала важной отправной точкой в тот момент, когда я вообще не понимала, за что хвататься и была растеряна.
Напишите мне в комментариях, что вы думаете о двух вариантах планировки. Какой был бы вам больше по душе?
Я, конечно, уже выбрала планировку, на которую я ориентируюсь, но мне интересно, как сделали бы вы. А может, у вас тоже квартира-крошка и уже есть опыт того, как впихнуть всё в небольшое пространство.
Варианты планировки квартир-студий от 21 до 30 кв. метров
Студии, площадью от 21 до 30 кв.
м можно смело назвать не только самыми популярными, но и оптимальными. Ведь если брать студию более 30 кв. м, по площади это будет уже практически однокомнатная квартира, которая будет обладать полноценной отдельной кухней. Поэтому, если мы рассматриваем типичные квартиры-студии с одним окном, то чем ближе стоимость студии к полноценной однокомнатной квартире, тем она менее интересно для покупателей. Ведь при одинаковой цене выбор будет в пользу полноценной квартиры. Это прекрасно понимают наши строители, и проектируют большинство квартир-студий площадью менее 30 м². В итоге, разница в квадратах, как и в стоимости, получается существенная и подобные студии гораздо проще продаются на рынке недвижимости.
Самой популярной планировкой в данном сегменте является квартира с прямоугольной формой с площадью порядка 30 кв. м с одним окном. Зоны в такой квартире распределены тоже стандартно и начинаются с холла и ванной комнаты, далее идет зона кухни и основная комната. Многие подобные планировки предусматривают еще и балкон.
Типичная планировка студии 30м:
Несмотря на кажущуюся ограниченность идей в помещении, обыграть подобную планировку можно несколькими способами:
Среди планировок студий до 30 кв. м встречаются и не совсем типичные, позволяющие воплотить более интересные идеи за счет нестандартной формы квартиры. Например, компания-застройщик ООО «Краснообск. Монтажспецстрой» (ООО «КМС») предлагает квартиры-студии в Новосибирске с очень необычной планировкой для подобных площадей.
Большое количество интересных дизайн-проектов для подобных планировок вы можете посмотреть в разделе дизайн квартир-студий
По сравнению со студиями до 20м, в планировках студий 25-30м2 уже есть где разгуляться. Многие застройщики предлагают интересные и нестандартные планировки для подобных метражей. Некоторые планировки имеют по 2 окна и способны вместить в себя 2 изолированные комнаты, превратив квартиру-студию в полноценную однокомнатную квартиру
Дизайн квартиры студии, фото планировок современных квартир.

Популярность квартир студий стремительно растет. Их специфика полностью соответствует требованиям современного человека. Напряженный ритм жизни заставляет в оформлении жилья сочетать два принципа: комфортность и максимальную функциональность. В планировке квартир студий отсутствуют лишние детали, в практических целях может использоваться каждый метр площади. У такого жилья много очевидных плюсов, что и обусловило высокий спрос на студии во всем мире.
Основные особенности квартиры студии
Впервые идея объединить несколько зон в одном помещении возникла более 100 лет назад. В Соединенных Штатах это новшество в дизайне жилья в те времена было необходимостью. Страна принимала огромные потоки иностранцев, прибывающих с разных континентов. Обеспечить их всех традиционным жильем было невозможно. Квартиры студии стали настоящим спасением.
В нашей стране эта новаторская идея долго не приживалась. Наши архитекторы предпочитали выделить как можно больше автономных зон, даже если площади получались миниатюрными.
До сих пор людям приходится испытывать существенные неудобства в крохотных кухнях в хрущевках. Ситуация изменилась в конце прошлого века. Появились интересные дизайн проекты квартир студий, такое жилье создается в новостройках. Владельцы недвижимости активно взялись за переделки, превращают неудобные старые квартиры в современные, просторные студии.
У такого жилья есть определенные особенности:
- в одном помещении оборудуются все жилые зоны за исключением санузлов;
- в комнате есть только 2 двери – в санузел и входная;
- может использоваться условное зонирование, автономных зон нет.
Дизайн квартиры студии
Существует несколько вариантов студий. Стандартной моделью является однокомнатная квартира, в которой автономной зоной является только санузел. Все остальное пространство является единым. Иногда студия занимает часть квартиры, объединяет кухню и гостиную, зал и столовую и др.
Многочисленные фото дизайнов интерьеров квартир студий позволяют владельцам жилья найти для себя оптимальный вариант.
Очевидные плюсы студий
Приобретение такого жилья, преобразование старой неудобной квартиры в современную студию предоставляет несколько существенных преимуществ:
- отсутствие стен, межкомнатных дверей существенно увеличивает площадь;
- отсутствие углов позволяет рационально использовать каждый метр комнаты;
- объединение нескольких зон обеспечивает комфорт;
- в оформлении используется минимальное количество мебельных предметов;
- есть возможность создать уникальный интерьер, полностью отвечающий личному вкусу;
- идеальная акустика обеспечивает отличные условия для меломана.
Объединение нескольких зон обеспечит комфорт
Толщина стен, разделяющих комнаты, не слишком большая. Но если их несколько, получается несколько метров бесполезной площади. К тому же они существенно ограничивают возможности в размещении мебели. В стандартных квартирах большинство углов не используются в практических целях, что уменьшает полезную площадь.
Грамотный дизайн однокомнатной квартиры студии позволяет обеспечить максимальный комфорт. Владелец может свободно перемещаться из одной зоны в другую, не затрачивая время, силы на обходы стен, открывание, закрывание дверей. Если в квартире проживает 1-2 жильца, в выделении автономных участков нет необходимости. Напротив, отсутствие стен предоставляет возможность легко общаться, находясь в разных зонах.
Используйте в интерьер минимальное количество мебели
Минимальное количество мебели позволяет сэкономить затраты на оформление жилья. Сокращается время, затрачиваемое на уборку, что важно для современного человека, испытывающего постоянный цейтнот. Такое жилье исключает необходимость долго искать нужную вещь, так как все предметы находятся в поле зрения.
Профессиональные специалисты могут разработать оригинальный уютный дизайн квартиры студии, независимо от площади помещения. Много готовых вариантов можно найти в интернете.
Недостатки квартир студий
Преимущества студий очевидны. Но и недостатки у них имеются. О них необходимо знать тем, кто намеревается приобрести такое жилье или сделать кардинальное преображение старой квартиры. Студия:
- не предоставляет возможности выделить каждому свою автономную зону;
- требует создания эффективной вентиляционной системы;
- может оборудоваться не в каждой квартире.
Стильный уютный дизайн квартиры студии обеспечит требуемый комфорт одинокому человеку, бездетной паре. Если жилье требуется семье из 3-4 человек, такой вариант рассматривать не стоит. У каждого жильца имеются собственные вкусы, интересы, объединение в одном помещении обязательно создаст дискомфорт для всех, неизбежны претензии, ссоры.
Квартира студия подойдет для проживания 1-2 человек
В такой квартире кухонная зона объединена с гостиной, спальней. При приготовлении пищи появляются различные запахи, пары, насыщенные жирами.
Необходимо исключить их распространение по всему помещению. Справиться с такой задачей может только качественная, эффективная вентиляционная система. Важно обеспечить качественную изоляцию санузла. В нем также должна быть качественная вентиляция, исключающая проникновение запахов.
Создание студии в квартире является серьезной перепланировкой, требующей получения соответствующего разрешения. В нем может быть отказано, если снос стен создаст угрозу, снизит прочность несущей конструкции здания. Самовольное переоборудование грозит серьезными штрафами, санкциями.
Важно установить эффективную вентиляционную систему
Следует учесть, что данная перестройка жилья потребует существенных расходов. Определенные сложности может вызвать разборка стен, вывоз строительного мусора. Понадобится переоборудование системы отопления, электричества, для чего необходимо привлекать специалистов. Если эти препятствия для вас несущественны, можно смело приступать к дизайну однокомнатной квартиры студии, создавать стильное, комфортное жилье.
Выделение зон в помещении
Несмотря на отсутствие автономных территорий, полностью объединять студию в единую зону не стоит. Намного комфортнее пользоваться помещением, условно разделенным на зоны. Особенно важно учитывать этот фактор, если в квартире проживает 2-3 человека. Поскольку глухое зонирование в таком жилье отсутствует, нужно выбрать наиболее комфортные приемы условного разделения территории.
В студии традиционно оформляется 3-4 зоны. В нее входит кухня, спальня и гостиная. На фото дизайнов квартир студий 40 кв. м. можно увидеть и дополнительные зоны: столовая, кабинет. Нередко в таких помещениях оборудуется мастерская художника, стилиста. В зависимости от предназначения зон, особенностей планировки, площади, стиля в зонировании можно использовать:
- различные оттенки и виды отделочных материалов;
- мебельные конструкции;
- раздвижные, мобильные ширмы;
- неполные перегородки.
В студии традиционно оформляется 3-4 зоны
Если в дизайне интерьера квартиры студии планируется цветовое зонирование, к такому оформлению нужно отнестись с предельным вниманием.
Ошибки в сочетаниях оттенков могут привести к излишней пестроте, которая вызовет ощущение беспорядка, дисгармонии.
Самым популярным способом зонирования является специфическое размещение мебели, определяющей условные границы. В этих целях используются угловые, модульные диваны, стеллажи, тумбы, столы и др. В комнатах с высокими потолками для создания комфортной спальной зоны оборудуется второй ярус, занимающий часть помещения. Этот прием позволяет увеличить площадь для гостиной, столовой.
Второй ярус позволяет увеличить площадь гостиной
В дизайне маленькой квартиры студии целесообразно использовать раздвижные, мобильные ширмы. Эти конструкции при необходимости отделят зону, обеспечат ей автономность. Если нужно объединить пространство, они убираются. В студиях можно устанавливать неполные перегородки. Они не нарушают целостности пространства, создают условные границы зон.
к оглавлению ↑Приобретение квартиры студии, порядок перепланировки
Есть два варианта приобретения такого жилья.
Все застройщики предлагают студии в новых жилых комплексах. Эти квартиры имеют современные планировки, могут продаваться с черновой или финишной отделкой. Есть такие варианты и на вторичном рынке. Это стандартное жилье, переоборудованное в студию. Главным моментом в такой покупке является проверка законности перестройки. Она должна быть отражена в техническом паспорте недвижимости.
Третьим вариантом является покупка обычной квартиры с целью создания студии. В этом случае придется пройти этапы, которые предусмотрены для собственников квартир, желающих выполнить перепланировку. Это:
- оценка возможности создания студии в БТИ, архитектурном бюро;
- заказ проекта с планами существующей планировки и будущей студии;
- предоставление документов в БТИ для получения разрешения;
- приемка обновленного варианта жилья, переоформление технического паспорта.
Для перепланировки необходимо получить разрешение в БТИ
Можно самостоятельно выполнить большую часть работ, вызывать квалифицированных специалистов только для проведения операций, требующих специальных лицензий.
Но, если есть возможность, лучше сделать заказ на комплексные работы «под ключ» в специализированной компании. Квалифицированные мастера качественно выполнят перепланировку, ремонт, дизайн квартиры студии, освободят от большого количества хлопот, выполнения трудоемких работ.
Целесообразность покупки квартиры студии
Специфическая планировка квартиры студии определяет круг потребителей, для которых такое жилье является оптимальным вариантом. Эти варианты идеально подходят для:
- одиноких людей;
- жильцов пожилых, с ограниченными возможностями;
- молодой пары;
- семьи с маленьким ребенком.
Одинокому человеку автономные зоны не требуются, наличие стен и дверей является помехой. Разделение жилья на комнаты требует затрачивать много времени на уборку, переходы. Не нуждаются в глухом зонировании пожилые люди. Человеку с ограниченными возможностями лишние переходы создают серьезные проблемы.
Квартира студия идеально подойдет для молодой пары
Наибольшей популярностью такие квартиры пользуются у молодых пар.
Комфортный дизайн маленькой квартиры студии превращает ее в уютное романтическое гнездышко. Единое пространство позволяет влюбленным всегда видеть друг друга, наслаждаться постоянным общением.
Отсутствие полноценных перегородок устраивает молодых мам. У них появляется возможность выполнять все работы по дому и одновременно присматривать за малышом. Но нужно учесть, что такое жилье рассматривается как временное. Когда ребенок подрастет, потребуется качественное зонирование, наличие отдельной детской.
к оглавлению ↑Особенности дизайна студий
Фото дизайнов интерьеров квартир студий в интернете много. При выборе варианта нужно учитывать три главных критерия:
- площадь помещения;
- конфигурация комнаты;
- количество необходимых зон.
Профессиональные специалисты считают, что помещение, площадью 30-35 м2 является оптимальным вариантом для создания комфортного жилья этого типа. Но это не обязательное условие. При желании можно создать отличный проект дизайна квартиры студии 20 кв.
м., 18 кв. м. При недостатке площади нужно особенно внимательно подходить к зонированию, выбору мебели.
Дизайн квартиры студии 20 кв. м
Поскольку выбор предметов для интерьера студии ограничен, каждая вещь должна быть максимально функциональной, обеспечивающей рациональное использование площади. При их установке нужно исключить помехи в перемещениях между зонами. Если это трансформирующаяся мебель, учитывается ее расположение в разложенном виде.
В квартире студии освещению уделяется особое внимание. Кроме общих источников света необходимо устанавливать светильники для каждой зоны. Это позволит создавать комфортную обстановку.
Необходимо устанавливать светильники для каждой зоны
Если зонирование помещения создается различными оттенками отделки, важно выдержать единый стиль, правильно подобрать комбинирования цветов, так как пространство должно выглядеть гармонично.
Если комната небольшая, этот прием использовать не стоит. Можно посмотреть профессиональные фото дизайна квартиры студии 20 кв. м., выбрать оптимальные варианты.
Кухонная зона в студии
Зоны гостиной, спальни, кабинета могут не иметь четких границ. Но кухню выделить необходимо. Процессы приготовления, приема пищи создают в этой зоне непростые условия. Важно одновременно создать максимальный комфорт, упростить работы по поддержанию порядка. Нужно учитывать, что кухня должна содержаться в идеальной чистоте, иначе впечатление от всего помещения будет испорчено.
На фото дизайнов квартир студий 25 кв. м., 20 кв.м., помещений другой площади можно увидеть несколько приемов, позволяющих выделить кухню в отдельную комфортную зону:
- использование разных напольных покрытий;
- применение иной отделки стен;
- обустройство подиума;
- монтаж отдельной системы освещения;
- создание многоуровневого потолка;
- установка барной стойки или дивана, стеллажа;
- отделение перегородкой из стекла.

Барная стойка выделяет кухню в отдельную зону
Приемы могут комбинироваться, использоваться по отдельности.
Водонепроницаемые, прочные напольные покрытия в кухне необходимы. Современные виды плитки, керамогранита, водостойкого ламината отлично сочетаются с различными материалами. Полы в гостиной могут быть паркетными, из массивной доски, ковролиновые и др. В отделке стен в кухонной зоне также используются материалы, отличающиеся по свойствам от тех, что применяются в остальных зонах. Это может быть плитка, виниловые обои и др. При выборе цвета учитываются оттенки и стиль всего помещения.
Практичная отделка пола кухни плиткой
В студии с высокими потолками кухню можно выделить подиумом, многоуровневой натяжной системой. Зона оформляется собственными источниками света. Рабочее пространство может освещаться точечными светильниками, в обеденной зоне будут отлично смотреться подвесные светильники.
На фото дизайнов квартиры студии 30 кв. м. можно увидеть кухни, отделенные полноценной столовой зоной с соответствующей мебельной группой. Если свободного места недостаточно, можно поставить барную стойку, которая и станет границей. Отделить кухню может и диван, который является частью гостиной. Зонирование может выполняться открытым стеллажом, полками.
Мягкая мебель отделяет кухню от гостиной
В студии не принято устанавливать глухих перегородок. Но если это стеклянная конструкция, она не нарушит гармонии. Такое отделение кухни позволяет снизить риск проникновения запахов в помещение.
Стеклянная перегородка не нарушит гармонии интерьера
к оглавлению ↑Оборудование зоны для сна
К оборудованию места для сна нужно подходить ответственно. От качества отдыха зависит здоровье, работоспособность, психологический настрой. Если помещение большое, стоит выделить автономную территорию для импровизированной спальни.
Такие варианты есть на фото дизайнов квартир студий 40 кв. м. Выбор местоположения зоны зависит от планировки комнаты. Это может быть часть помещения у окна или в месте, удаленном от входной двери.
Дизайн квартиры студии 40 кв.м.
В небольшой студии устанавливать кровать нецелесообразно. Она не позволит создать стильный интерьер, обеспечить комфортность всех зон. Такие варианты можно увидеть на фото дизайнов квартир студий 40 кв.м. и более. В небольшом помещении оптимальным вариантом станет диван с механизмом раскладывания, модульная мягкая мебель. При ее выборе учитываются следующие факторы:
- комфортность спального места;
- величина площади, отведенной под данную мебель;
- соответствие дизайна общему интерьеру.
Габариты разложенного дивана, степень жесткости должны полностью соответствовать личным предпочтениям. Это гарантирует комфортность, качественный отдых. Мебель не должна создавать препятствия для перемещения в разложенном виде.
Материалы обивки, ее оттенки должны гармонично сочетаться с остальной мебелью, текстильным декором.
Диван-трансформер может заменить спальное место
Владельцам небольших студий стоит обратить внимание на современные модели трансформирующейся мягкой мебели. На фото дизайнов квартир студий 20 кв. м. есть много различных вариантов. Сейчас можно приобрести кровать, которая в сложенном виде превращается в шкаф, диван-стол и др. Если в квартире проживает семья из трех человек, хорошим вариантом может стать двухъярусный диван трансформер, который в дневное время будет удобным местом для отдыха, вечером трансформируется в два полноценных места для сна.
Двухъярусный диван трансформер
Высокие потолки позволяют оборудовать спальную зону на частичном втором ярусе. В зависимости от площади помещения создается конструкция в виде миниатюрной комнаты с кроватью, тумбочкой или полками для нужных мелочей или только место для сна.
На фото дизайнов квартир студий 30 кв. м. есть интерьеры, в которых зона сна выделена при помощи подиума, в котором расположены боксы для хранения постельных принадлежностей. Можно отделить ее от основной площади декоративными, стеклянными перегородками.
Спальная зону на втором ярусе
к оглавлению ↑Оформление гостиной
Независимо от площади студии, количества жильцов, в помещении необходимо оборудовать импровизированную гостиную, в которой можно отдыхать в дневное время, принимать гостей. В этой зоне главными элементами является мягкая мебель. Ее выбор зависит от площади комнаты, дизайнерского стиля. Желательно расположить гостиную в непосредственной близости от кухонной территории. Это упростит процесс сервировки стола для чаепития, банкета. Посмотреть варианты оформления зоны можно на фото дизайнов квартир студий 25 кв.м., помещений с другими площадями.
Дизайн-проект студии 25 кв.
м
В современном ассортименте несложно выбрать нужные модели мягкой мебели для гостиной в студии. Это могут быть:
- компактные комплекты из дивана и кресел;
- трансформирующиеся угловые, полукруглые диваны;
- модульные конструкции с несколькими вариантами установки.
Компактный комплект из дивана и кресла
В зоне гостиной традиционно размещается электронная техника. Если требуется максимально экономить пространство, создать уют в маленьком помещении, оптимальным вариантом станет плазменный телевизор на стене, несколько небольших полочек или комод. Сейчас есть возможность приобрести компактные модульные стильные стенки, не занимающие много места. На фото дизайнов квартир студий 20 кв. м. есть интересные решения.
Еще одним обязательным предметом этой зоны является журнальный стол. При выборе этой мебели стоит отдать предпочтение моделям, оснащенным полочками, на которых можно разместить важные мелочи.
На полочках журнального столика можно расположить важные мелочи
В студии обычно оборудуется главное потолочное освещение. Но в зоне гостиной нужен и автономный источник света, обеспечивающий комфорт на данной территории. Это может быть бра, торшер, светодиодная оригинальная подсветка с регулировкой интенсивности, оттенка освещения.
В создании условных границ гостиной в большинстве дизайнов однокомнатных квартир студий используется мебель. Диван, кресла создают отдельную зону. Если позволяет площадь, используются дополнительные элементы зонирования в виде открытых стеллажей, декоративных перегородок, мобильных ширм и др. При недостатке свободного пространства, не позволяющем установить полноценную группу мягкой мебели, вместо кресел используются большие декоративные подушки. Отличным вариантом являются оригинальные кресла-мешки, обеспечивающие максимальный комфорт.
Зонирование пространства при помощи стеллажа
к оглавлению ↑Кабинет и тренажерный зал в студии
Нередко в студии приходится выделять место для работы, занятий.
При наличии свободной площади можно установить многофункциональную прямолинейную или угловую конструкцию, включающую компьютерный стол, стеллаж, тумбу.
Если нужно создать комфортный дизайн маленькой квартиры студии, в которой нет места для автономного кабинета, отличным решением станет стол-трансформер, встроенный в стенку, шкаф-купе. В качестве рабочего места может использоваться барная стойка, отделяющая гостиную от кухни. Мини-кабинет может оборудоваться под кроватью-чердаком. Можно создать для него подиум, в котором расположено выдвижное спальное место.
Компактное рабочее место в шкафу
Любителям фитнеса, приверженцам ЗОЖ необходимо выделить зону для тренировок. Это может быть:
- многофункциональный тренажер;
- компактный комплекс с турником, шведской стенкой, кольцами;
- свободная площадь для йоги, аэробики.
Идеальным вариантом для спортивной зоны являются балкон или лоджия. Если их нет, под тренировки желательно отвести зону у окна.
Эта зона нуждается в качественном освещении, проветривании. Такие варианты можно найти в галереях фото дизайнов квартир студий 30 кв. м., помещений с меньшими площадями.
Спортивную зону можно организовать на балконе
к оглавлению ↑Зона прихожей в квартире студии
Зону прихожей в студии выделить необходимо. Хозяева квартиры, приходящие гости должны иметь возможность удобно разместить верхнюю одежду, обувь, аксессуары. Эту важную территорию желательно сделать автономной, отделенной от других зон. Если нет возможности установить декоративную перегородку, конструкцию из стекла, ширму, можно выделить прихожую в планировке квартиры студии при помощи специальной мебельной конструкции, шкафа-купе.
Эта зона расположена в месте, где интенсивность естественного освещения минимальная. Отвести для нее большую площадь обычно не удается. Поэтому нужно использовать дизайнерские приемы, позволяющие исключить неудобства, придать прихожей стильный, привлекательный вид.
Для этого можно:
- использовать светлые отделочные материалы в оформлении стен, пола, потолка;
- установить шкаф купе с зеркальной дверью;
- создать систему освещения из точечных светодиодных источников света.
Зона прихожей в квартире студии
В выборе мебели для этой зоны нужно учитывать количество вещей, которые будут в ней располагаться, размеры свободной площади, особенности планировки комнаты. Прихожая должна гармонично дополнить общий дизайн интерьера квартиры студии, стать достойной «визитной карточкой».
к оглавлению ↑Балкон и лоджия в студии
Наличие лоджии, балкона в квартире расширяют возможности в оформлении студии. Есть два варианта использования этих архитектурных элементов. Они могут являться автономными территориями, становиться полноценной частью жилья. Выбор зависит от желаний, возможностей хозяев, потребностей в расширении площади. В планировании ремонта квартиры студии дизайн этих зон нужно тщательно продумать, определиться с их предназначением.
Если лоджия, балкон будут самостоятельными территориями, их оформление не создаст особых сложностей. Нужно только определить:
- сезонность эксплуатации;
- предназначение;
- дизайнерский стиль оформления.
Балкон, который в течение всего года будет использоваться в практических целях, нужно качественно утеплять. Если зона эксплуатируется только в теплое время года, можно установить недорогую систему холодного остекления с алюминиевыми профилями. Специфика оформления зоны зависит от ее площади, предназначения.
Балкон может стать полноценной частью жилья
При желании присоединить лоджию к студии, придется предварительно получить необходимые разрешения на переоборудование. Это займет определенное время, потребует существенных затрат. Однако если нужно увеличить площадь для обеспечения комфорта, стоит использовать такой вариант. Можно увидеть на фото дизайнов квартир студий 20 кв. м., как преображается помещение при присоединении лоджии к общей площади.
Присоединение лоджии к студии
к оглавлению ↑Проектирование дизайна
От грамотности создания проекта дизайна полностью зависит комфортность будущей студии. Этот этап подготовки требует ответственного подхода. Размещенные в интернете фото дизайнов квартир студий 27 кв. м., 30 кв. м. могут стать основой для индивидуального проекта. Профессиональные варианты помогут обеспечить оформлению гармонию, соответствие модным тенденциям. Необязательно копировать интерьер, можно внести в него коррективы, учитывая личные предпочтения.
Есть определенные правила составления качественного проекта. В работе над ним необходимо:
- определить количество и виды зон, которые будут оборудоваться в студии;
- рассчитать площадь каждого участка с учетом габаритов мебели;
- подобрать для зон оптимальное местоположение, обеспечивающее максимальное удобство;
- разработать точный план с размещением каждого предмета интерьера;
- выбрать отделочные материалы для потолка, стен, пола.

Такой подход позволяет не только комфортно, привлекательно оформить помещение, но и сделать точную смету, позволяющую рассчитать расходы, которые потребуются на ремонт, дизайн квартиры студии. Если планируется оборудовать подиумы, натяжные потолки, утеплять лоджию или балкон, эти факторы необходимо учитывать при составлении сметы.
Дизайн-проект позволит составить точную смету
Практика показывает, что без квалификации, опыта составить грамотный проект невозможно. Следует учитывать специфику квартиры студии, которая должна обеспечивать комфорт в каждой зоне и являться гармоничным целым пространством. Решить такую задачу, найти оптимальные варианты для планировки сложно, не имея навыков. Стоит заказать профессионалам дизайн проект квартиры студии, если есть такая возможность.
к оглавлению ↑Стили оформления студии
Выбор стиля в оформлении интерьеров играет основополагающую роль. Для оборудования студии – это архиважный вопрос.
Она включает несколько зон, отличающихся предназначением, что создает определенную сложность. На фото дизайнов квартир студий 27 кв. м., помещений с другими площадями можно увидеть два варианта стилевых решений. Квартира может оформляться в одном стиле или сочетать несколько направлений.
У каждого варианта есть свои плюсы и минусы. Создание дизайна студии в одном стиле:
- гарантирует безупречную гармонию;
- упрощает процесс выбора элементов интерьера;
- предоставляет возможность при желании менять местоположение предметов.
В оформлении такого жилья есть два правила. Все элементы интерьера должны быть функциональными, их количество необходимо ограничивать. Эти тенденции свойственны современным стилям. В фото дизайнов квартир студий 25 кв.м., комнат с другими площадями чаще всего можно увидеть хай-тек, минимализм, лофт. Данным стилям свойственна лаконичность, максимальная функциональность.
Все предметы в квартире студии должны быть функциональными
Минусом оформления в одном стиле является определенная однотипность, недостаточная выраженность зон.
Такой интерьер может быстро наскучить. Исключить такой эффект можно при помощи грамотного использования акцентов, интересных цветовых решений. К тому же благодаря единому стилю мебели при желании можно делать перестановку, не нарушая гармонии.
Можно использовать другой вариант, выбрать определенный стиль для каждой зоны. И этот прием позволяет добиться гармонии при одном условии. Дизайнерские направления нужно выбирать внимательно, учитывая сочетаемость. К примеру, барокко и минимализм рядом будут смотреться нелепо, а прованс и кантри создадут гармоничную комбинацию. На сайтах есть много фото дизайнов интерьеров квартир студий, сочетающих несколько стилей.
Дизайн квартиры студии в стиле прованс
У такого решения также есть несколько преимуществ. Применение нескольких стилей:
- расширяет возможности в выборе мебели, отделочных материалов;
- позволяет обеспечить каждой зоне максимальную комфортность;
- обеспечивает определенное разнообразие.

Выбор индивидуального направления для каждой из зон дает возможность реализовать несколько творческих идей. К примеру, гостиная может оформляться в уютном кантри, кухня в изящном провансе, спальня в романтичном средиземноморском стиле. Разнообразие позволяет интерьеру дольше оставаться для хозяев привлекательным, не наскучивает так быстро, как единое оформление. Однако сделать перестановку при желании в этом случае будет сложнее.
Сочетание нескольких стилей в дизайне квартиры студии
Не стоит использовать несколько стилей, если выполняется дизайн квартиры студии 20 кв.м. В небольших помещениях такой вариант может вызвать ощущение хаоса. Добиться безупречной гармонии практически невозможно.
к оглавлению ↑Особенности оформления прямоугольной студии
Выбирая свой вариант в фото дизайнов однокомнатных квартир студий, необходимо ориентироваться не только на площадь помещения, но и на его конфигурацию. Этот параметр в оформлении играет важную роль.
Наибольшие возможности для реализации творческих идей предоставляет квадратная комната. Несложно создать уютный дизайн квартиры студии такого типа. В ней можно для каждой зоны выбрать оптимальное местоположение. Гораздо сложнее комфортно оборудовать вытянутое помещение прямоугольной формы. Но и в нем можно создать должное удобство, если следовать профессиональным рекомендациям. Квалифицированные дизайнеры рекомендуют:
- расположить близко к стенам зоны практического предназначения;
- у окна оформить зону гостиной;
- установить кухонную мебель вдоль торцевой стены;
- санузел расположить у входа в квартиру;
- применять светоотражающие материалы в оформлении длинных стен для визуального расширения;
- оборудовать качественное освещение в каждой зоне.
Дизайн квадратной квартиры студии
Нет особых ограничений в выборе дизайнерского стиля. На фото дизайнов квартир студий 25 кв.
м. в виде прямоугольника можно увидеть самые разные направления. Не стоит только выбирать стили, изобилующие декором, такие, как барокко, рококо, ампир.
Основные правила дизайна студии
В интернете выложено огромное количество фото дизайнов квартир студий 27 кв.м., 30 кв.м. и др. Они предоставляют возможность оценить преимущества, привлекательность такого жилья. Специалисты утверждают, что из помещения любой площади можно создать комфортную, стильную студию, если придерживаться нескольких правил:
- отдавать предпочтение светлым оттенкам при выборе отделки;
- приобрести максимально компактную мебель, занимающую минимум пространства;
- включать в интерьер только функциональные предметы;
- уделить особое внимание системе искусственного освещения, исключить недостаток света.
При выборе отделки отдавайте предпочтение светлым оттенкам
Дизайн интерьера квартиры студии выглядит привлекательнее, если в нем нет перегруженности элементами, есть ощущение простора, легкости.
Существенную роль в обеспечении такого эффекта может сыграть белый цвет. Его можно использовать по максимуму.
Хорошим вариантом являются пастельные оттенки. Теплые, холодные тона подбираются в зависимости от предназначения зон, расположения квартиры. В дизайн проект квартиры студии нужно грамотно включать текстиль, декоративные элементы. Они помогут придать ощущение уюта и тепла, присущих комфортному домашнему очагу.
к оглавлению ↑Фотогалерея – дизайн квартиры студии
к оглавлению ↑Видео
Автор: Михаил Бонд
Рейтинг:
Загрузка…
Понравился пост? Поделись с друзьями!
Проекты студии квартиры, план, несколько интересных идей
Любая идея или планирование студийной квартиры требует к себе применения особых и рациональных приемов для того, чтобы визуально подкорректировать пространство.
Поэтому перед отделкой и оформлением студии квартиры, план и четкий проект просто необходимы. Особенно это касается помещений не стандартной планировки (узкой, вытянутой и другой не правильной формы).
Как правильно спроектировать студийную квартиру
Содержание статьи
Несколько советов от опытных дизайнеров о правильной планировке и зонированию
На самом деле, обустроить на маленьком пространстве несколько функциональных зон, совсем не просто. Нужен четкий план квартиры студии, с размерами и распределением зон.
Как зонировать квартиру
Необходимо выполнить элементарные вещи, к примеру:
- отделить гостиную от места для сна;
- или переместить кухню в гостиную;
- отделить зону для ребенка.
Список с вариантами можно долго продолжать, важно, во время зонирования не превратить квартиру в банальный лабиринт.
Рассмотрим некоторые варианты по зонированию, возможно, какой-то совет придется по вкусу.
Рекомендуемый материал по теме: Идеи для квартиры студии, варианты для обустройства.
Отделяем спальное место
За исключением того, когда помещение используется для временного пользования или в квартире проживает один человек, спальная зона предусматривает один спальный уголок.
Рекомендуемая статья по теме: Проект перепланировки однокомнатной квартиры студии — советы по обустройству.
Уединение можно организовать различными методами, не обязательно возводить стены, можно зонировать при помощи цветовой гаммы или небольшой перегородки в виде стеллажа, ширмы или простой занавески. Это психологически настроит на отдых.
Фото обзор поможет вам выбрать оптимальный вариант для отдыха:
Зона для отдыха, сделанная при помощи перегородки
Решение вопроса при помощи шторы
Декорирование раздвижными дверьми
Потолочное и напольное покрытие
Игра цветами
Рекомендуемый материал: Как сделать из хрущевки проект квартиры студии.
Всевозможные варианты для зонирования
Если в вашей малогабаритке высокие потолки, то можно выполнить шикарный план студии квартиры, к примеру, добавить 2-й ярус и значительно сэкономить квадратные метры.
Рекомендуемый материал по теме: Как выполняется планировка квартиры студии.
Для помещения с малой квадратурой, подойдет использование всех методов:
- Ниши.
- Любые закутки в квартире.
- Широкие углы.
Все вышеперечисленные варианты идеально подойдут для хранения вещей, установки бытовой техники, даже обустройства мини-кабинета.
Рассмотрим несколько примеров, как можно интересно спланировать студию с дополнительными возможностями:
Перевоплощение малогабаритки в 2 яруса
Используем ниши для декорирования
Широкие углы тоже пригодятся
Небольшой закуток пригодился для работы за компьютером
Выдерживаем пропорции
Когда выполняется план квартиры студии не стоит отталкиваться от спального места.
Такую ошибку очень часто допускают неопытные пользователи.
В такой планировке, спальная зона не должна занимать центральное место. Одновременно, следует проследить за тем, чтобы кровать не попала в проход или к входной двери.
Примерно так можно организовать пространство в маленькой комнате
Такой момент очень важен особенно для квартир-студий и хрущевок. Для сна выделяется укромный уголок в уединенной части. Основная часть должна принадлежать гостиной и кухне-столовой. Соблюдая такие пропорции, вы получите милый интерьер.
Рекомендуемый материал по теме: Как сделать дизайн-проект квартиры студии.
Планируя дизайн квартиры студии, не перезагружайте интерьер
Во время планирования студии квартиры, качественное зонирование – это незаменимый помощник для создания уникального интерьера.
Легкая декоративная перегородка решила массу проблем
Для полной гармонии стоит использовать легкие инструменты:
- Легкие шторы.

- Ширмы.
- Небольшие стеллажи легкого типа.
- Различные перегородки из реек или легкие арки.
Если планируется загородить спальную зону при помощи раздвижных дверей, рекомендуется использовать матовое стекло.
Правильное освещение – залог успеха!
При помощи осветительных приборов также можно решить массу проблем с зонированием. Высота, направленность или расположение смогут подчеркнуть функциональные зоны.
Зонирование при помощи потолочных конструкций и осветительных приборов
Если помимо основного источника, продумать интересный сценарий для каждой зоны, то можно будет спокойно отдохнуть или нормально почитать книгу на диване.
Примеры: план и планировка небольших студий
Рассмотрим план студии квартиры на примере небольших помещений в черно-белом исполнении. Такой ахроматичный вариант завоевал сердца многих современных пользователей.
Маленькая квартира (22 квадрата) с уютным оформлением
Вытянутая конфигурация продиктовала свои собственные условия.
Пришлось зонировать и при этом сохранять определенную последовательность:
На такой крохотной площади дизайнеру удалось все уместить
- Первой идет кухонная зона.
- Затем идет небольшая «столовая» с обеденным столом.
- Далее (2 в 1) гостиная со спальней.
- И плавный переход в ванную.
Гостиная плюс рабочий кабинет
Оформление кухонной зоны
Квартира студия, план сверху
Видео обзор наглядно покажет, как можно удачно разместить все нужные зоны на маленькой площади.
Пример создания черно-белого интерьера на 25 квадратах
Следующий пример – это идеальный квадрат 5х5 метров. У дизайнера на этот проект несколько другой взгляд, чем на предыдущий. Все зоны размещены по периметру помещения и сходятся в одном месте, но не по центру. На финише получились по две зоны на каждой из сторон.
Плавный переход (гостиная-кухня)
Прихожая-гостиная
Так выглядит ванная
Идеальное решение студии квартиры, план
Видео по созданию квадратной планировки:
Несколько рекомендаций от опытных дизайнеров
В первую очередь рекомендуется акцентировать свое внимание на две основные зоны: кухня и гостиная. Важен не просто изящный интерьер, но и функциональность.
Что советую дизайнеры?
Какие можно принять во внимание рекомендации чтобы выполнить правильное планирование:
- Для оформления используйте единую цветовую палитру с плавными переходами из зоны в зону.
- Для того чтобы сэкономить полезную квадратуру, лучше использовать встроенную бытовую технику.
- Используйте хорошую вытяжку.
- Обратите внимание на все ниши, кладовки, подоконники и все остальное, что можно использовать для экономии пространства.
К приме, подоконник можно определить под кухонный стол. - Желательно ограничиться яркими и пестрыми оттенками, а также не перезагружать интерьер аксессуарами.
- Перед тем, как начать проработку в студии квартире план, необходимо серьезно отнестись к качеству освещения.
По большей части постарайтесь использовать светлую палитру, тогда интерьер будет легким и лаконичным. Мебель рекомендуется использовать раскладную и на колесиках. В остальном, посмотрите видео и вам станет проще справится со своей идеей.
Для нас важно ваше мнение:
Загрузка … Загрузка … Загрузка …Был ли полезен для вас материал?
Что такое квартира-студия?
Студия — это квартира, состоящая из одной основной многоцелевой комнаты и ванной комнаты. Одноместный номер совмещает жилую площадь, спальню и кухню.
Углы или ниши комнаты часто обозначают как спальни, которые на поэтажных планах часто называют «спальной зоной».
Типовой план однокомнатной квартиры.
Жилая площадь в однокомнатной квартире.
Спальня или «спальный альков» в студии.
Есть ли закон, ограничивающий размер студии?
Технически да. В соответствии с Городским жилищно-эксплуатационным кодексом, каждый человек, проживающий в квартире или доме на одну или две семьи, должен иметь жилую площадь не менее 80 квадратных футов. Это означает, что площадь одной главной комнаты однокомнатной квартиры (не включая ванную) должна составлять не менее 80 квадратных футов.
Может ли в студии жить более одного человека?
Если вы и ваша вторая половинка хотите сэкономить на аренде и, возможно, сразу же расстаетесь, то совместное проживание в студии — отличный вариант.Я ребенок! Студии создавались не для того, чтобы разрушать отношения. Вот для чего нужны поездки в Икеа. Пока у каждого из вас есть не менее 80 квадратных футов жилой площади (опять же, не считая ванной комнаты), вы оба можете законно проживать там.
Сколько обычно стоит студия в Нью-Йорке?
Согласно данным StreetEasy, собранным за последний год, средняя запрашиваемая цена продажи студии на Манхэттене составляет 545 тысяч долларов, в то время как средняя запрашиваемая цена студии в Бруклине составляет 449 тысяч долларов. Средняя запрашиваемая цена аренды студии на Манхэттене составляет 2450 долларов в месяц, а в Бруклине средняя запрашиваемая цена составляет 1975 долларов в месяц.
В чем разница между студией и однокомнатной?
Основное отличие студии от квартиры с одной спальней состоит в том, что в квартире с одной спальней будет отдельное пространство для спальни, гостиной и кухни, как показано на нижеследующем плане этажа. Однако в квартирах с одной спальней в Нью-Йорке часто бывает так, что кухня и гостиная делят одно большое пространство.
Пример поэтажного плана однокомнатной квартиры. Стены показывают четкое разделение между комнатами.
Плюсов проживания в студии:
- Дешевле, как в плане аренды, так и коммунальных услуг.

- Избавьтесь от беспорядка в своей жизни! Не нужно много мебели, и это здорово, если это ваша первая квартира.
- Меньше места = меньше места для уборки = меньше времени, затрачиваемого на уборку.
- У вас есть естественный повод заказать еду на вынос, и вы можете винить в этом свою маленькую кухню, а не лень.
Минусы проживания в студии:
- Может чувствовать себя тесно; трудно принимать друзей, особенно если ваша кровать — единственный предмет мебели, на котором можно сесть.
- Об этом примечании: ваша кровать * может быть * вашим единственным местом, где можно сесть. Очень скучно.
- Кулинария — это буквально приготовление пищи в вашей спальне; вы рискуете получить постельное белье с ароматом карри в течение нескольких дней.
- Если у вас много вещей, вам придется складывать их в хранилище, а это дорого.
- Если вы живете с второй половинкой, у вас нет места для себя.
..Связанный:
Что такое конвертируемая квартира?
Один из первых вопросов, который задает любой локатор квартир, будет: «Квартира какого размера вам нужна?» но терминология Чикаго может отличаться от терминологии других городов.Типы плана этажа включают студию, трансформируемую, юниор с одной спальней, одну спальню и одну спальню плюс ден. Так в чем разница между студией и кабриолетом? Или полулюкс с одной спальней и стандарт с одной спальней? Что считается логовом?
Различные свойства могут определять и маркировать планы этажей по-разному. К счастью, консультанты Luxury Living Chicago помогут вам и расскажут о различных планировках и стилях. Есть несколько основных рекомендаций, которые следует запомнить и использовать при выборе плана этажа, который лучше всего подходит для вашего образа жизни.
CHICAGO STUDIO APARTMENTS: План этажа студии будет иметь наименьшую площадь в квадратных футах — обычно от 400 до 550 квадратных футов.
Кухня обычно меньше по размеру и открыта для остальной части квартиры. Ключ к хорошей планировке студии — это место для хранения вещей, и в большинстве новых роскошных квартир-студий в Чикаго есть гардеробная.
Если в студии есть дополнительный альков для спальни или даже явно выделенное место для кровати, то ее можно назвать кабриолетом.Когда недвижимость предлагает трансформируемую планировку, это обычно означает, что пространство больше, чем студия, и имеет разделение между основной жилой зоной и спальной зоной. Это разделение может быть простым альковом для кровати, частичной стеной, отдельной комнатой с раздвижной дверью или дополнительным пространством, например коридором, который создает буфер между спальной нишей и кухней / гостиной.
Кабриолеты и полулюксы с одной спальней часто очень похожи по планировке, и эти термины иногда используются как синонимы.Обычно спальни Джуниор с одной спальней — это уменьшенные версии плана этажа с одной спальней без двери в спальню.
Цена на полулюкс с одной спальней, как правило, близка к цене кабриолета, а стоимость студий немного ниже этого диапазона.
Если вам нужно немного больше места, стандартные апартаменты с одной спальней в Чикаго варьируются от 650-800 квадратных футов. Большинство планов этажей с одной спальней в Чикаго включают открытую кухню и жилое пространство, многие из которых включают большой кухонный остров для сидения.План этажа one plus den обычно ищут те, кто работает из дома или хочет дополнительное отдельное пространство для гостей или столовой. Не все макеты типа one plus den созданы одинаково; большинство берлог недостаточно велики, чтобы их можно было использовать в качестве гостевых спален. Но именно поэтому существуют планы этажей с двумя спальнями.
Готовы начать поиск квартиры в Чикаго? Перейдите по ссылке ниже, чтобы просмотреть наши роскошные списки квартир в центре Чикаго. Пожалуйста, помните, что наша команда всегда готова помочь и ответить на любые вопросы о вашем поиске новой роскошной квартиры!
Примечание редактора: этот пост был первоначально опубликован в ноябре 2015 года и был обновлен для обеспечения точности.
СохранитьСохранить
СохранитьСохранить
СохранитьСохранить
Насколько маленькой может быть однокомнатная квартира? (5 примеров) — GoDownsize.com
Поиск лучшей однокомнатной квартиры может оказаться сложной задачей. Одна из самых больших проблем, с которой сталкиваются охотники за квартирами, — это найти однокомнатную квартиру подходящего размера. Будет ли квартира слишком маленькой или слишком большой, полностью зависит от ваших потребностей.
Насколько маленькой может быть однокомнатная квартира? Самые маленькие квартиры-студии площадью около 200 кв.футов (18,6 м2). 500 кв. Футов (46 м2) — средний размер студий в США.
.Трудно представить себе, как именно выглядят 200 квадратных футов. Некоторым даже сложнее представить, как их вещи поместятся в таком маленьком пространстве. Имейте в виду, что существует несколько вариантов планировки квартир-студий.
Вот несколько стилей квартир-студий и пять примеров того, как пространство может работать на вас.
Открытые макеты
Самая распространенная планировка небольших квартир-студий — это проекты открытой планировки. Это такие квартиры, в которых не используются перегородки для разделения отдельных участков.
В основном это большие комнаты с четырьмя стенами и отдельным санузлом.
Однако имейте в виду, что не во всех планировках ванная комната будет выделена отдельно.
Где найти открытые макеты?
Эти типы планировок квартир-студий чаще всего встречаются в отремонтированных помещениях, таких как квартиры над гаражом или небольшой комплекс.Поскольку территория была переоборудована, не всегда хватает места для отдельных жилых помещений. Вы также можете найти открытые пространства в квартирах, которые когда-то использовались как офисные помещения.
Это связано с тем, что изначально эти типы пространств не предназначались для частных резиденций. Тем не менее, эти типы квартир открытого типа также пользуются спросом из-за их неповторимого шарма.
Помимо квартиры-студии, вы также получаете удивительную предысторию.
Как работают открытые макеты?
Вместо того, чтобы смотреть на открытую планировку как на большую комнату, которую нужно заполнить, смотрите на нее как на забавную и захватывающую дизайнерскую задачу.Квартиры-студии открытой планировки — это буквально пустые холсты, заниматься чем угодно. Хотите, чтобы ваша спальня превратилась в художественную студию? Хотите использовать большую часть площади для развлечений?
Нет ничего, что вы не смогли бы сделать с открытым макетом, если вы готовы проявить творческий подход и нестандартно мыслить. Коробка, конечно же, представляет собой четыре стены, окружающие вас. Расход квартиры полностью будет зависеть от общей планировки.
В то время как вы можете перемещать свою спальню, у постоянных приспособлений, таких как кухонные приборы и раковины, всегда будет определенное место.
Планировка роскошных апартаментов-студио
Одна из причин, по которой квартиры-студии так популярны, заключается в том, что они предлагают полезное пространство по невысокой цене.
Но люди нашли способ заработать на тенденции к сокращению штатов. Дорогие жилые комплексы и таймшер-кондоминиумы появляются по всей стране.
Этот стиль однокомнатной квартиры ориентирован на людей, которым не нужно большое пространство, но которые также хотят жить в комфорте и роскоши.Одна вещь, о которой следует помнить об этих типах квартир-студий, — это то, что не всегда есть много места для творчества. Это связано с тем, что, хотя здания могут меняться, планировка обычно остается прежней.
Чего можно ожидать от роскошной однокомнатной квартиры?
Средняя планировка роскошной однокомнатной квартиры — это прихожая, ведущая прямо в кухню. Кухня обычно представляет собой коридорную кухню в стиле галереи с барной стойкой. Из стойки для завтраков вы сможете полюбоваться остальной частью квартиры.
В большом общем пространстве вы будете не только спать, но и развлекаться. Главное, что предлагают апартаменты в роскошном стиле, — это место для хранения вещей.
Это означает, что наряду со шкафом вы можете найти дополнительные места для хранения вещей, расположенные за пределами вашей квартиры.
Если вы готовы платить цену, то в дорогих студиях есть масса удобств. Дополнительные льготы, такие как парковка, тренажерный зал и прачечная, являются огромным преимуществом для арендаторов. Просто помните, чем больше льгот у аренды, тем больше денег вам придется потратить.
3) Общая площадь квартиры-студии
На полной противоположной стороне шкалы находятся общие площади квартир-студий. В отличие от элитных кондоминиумов, эти типы квартир имеют меньшую арендную плату. Это отличный вариант для одиноких, студентов и людей, желающих немного сэкономить.
Хотя в этих апартаментах есть все необходимое для комфортного проживания, они не всегда подходят для длительного проживания. Это из-за одного важного фактора; ванная комната.В зданиях с несколькими общими помещениями обычно есть только одна или две ванные комнаты на этаже.
Это означает, что вы будете делить ванную комнату со своими соседями. Хотя это не имеет большого значения, когда дело доходит до конфиденциальности, вы получите огромную экономию. Эти типы квартир основаны на том же мышлении, что и в жилых помещениях общежития. Идея состоит в том, что у каждого человека есть собственное спальное, жилое и кухонное пространство, но ванные комнаты общие.
Есть ли другие квартиры-студии с общим пространством?
Если вы действительно хотите придерживаться образа жизни в совместном пространстве, есть способ сделать еще один шаг вперед.Есть квартиры, которые разделяют не только ванную комнату, но и жилую и кухонную зоны. Это почти похоже на образ жизни в «более красивом общежитии».
Для людей, которые довели свое сокращение до крайности, это может быть отличным краткосрочным вариантом. Как правило, этот тип жилья ориентирован на людей, которые не против делиться с соседом. Это может быть кухонная утварь и другие предметы общего назначения.
Это может помочь значительно сократить расходы на жизнь при сохранении общинного образа жизни.
Какие примеры небольших квартир-студий?
Представляя себя в маленькой однокомнатной квартире, вам легче ее увидеть визуально. Существует множество ресурсов, которые показывают примеры того, как некоторые люди сделали небольшое пространство пригодным для жизни. Пользовательские платформы, такие как Airbnb и Pinterest, — отличный способ увидеть примеры планировок квартир-студий.
Это также отличный способ увидеть, как другие творчески использовали свое пространство. Вот пять примеров небольших квартир-студий, чтобы вы могли лучше представить себе, каково это могло бы быть там жить!
1) Роскошная студия
Эта квартира-студия в Сиэтле показывает, что можно сделать с такой маленькой комнатой на полу.Эта однокомнатная квартира уступает по размеру. Квартира приурочена к одной комнате. Тем не менее, благодаря своему стилю апартаменты кажутся роскошными и просторными.
Вход в эту квартиру не ведет в кухню, а в спальную зону. Прямо параллельно спальной зоне в небольшой кухонной зоне. Эта квартира кажется чистой и открытой благодаря тому, что она оснащена высококлассной бытовой техникой.
2) California Surf Studio
Эта однокомнатная квартира в Сан-Диего является примером небольшого дома, который был переоборудован в студию.Эта студия очень маленькая, но кажется открытой из-за ярких цветов и естественного света. В этой планировке вы входите прямо в спальное место, которое делит комнату с небольшой кухней.
В отличие от предыдущей квартиры-студии, в этой квартире есть только мелкая бытовая техника, которая была специально разработана для небольших помещений. Таким образом будет больше места на полу и больше места для развлечений. Один из умных дизайнерских приемов этого устройства — использование зеркал, чтобы комната казалась больше.
3) Нью-Йоркская студия Walk-Up
Этот классический бруклинский номер-студио расположен в отреставрированном особняке из коричневого камня в центре Нью-Йорка.
Таунхаусы из коричневого камня — это классический Нью-Йорк. Эти исторически выглядящие здания постоянно превращаются в студии. Это связано с тем, что в большом городе очень мало места, поэтому такие классические апартаменты пользуются большим спросом.
Планировка этой квартиры-студии немного отличается от других тем, что между спальной и кухонной зонами есть некоторое пространство. Отличительной чертой этого стиля квартиры-студии является то, что он остается верным тем чертам, которые вы хотели бы получить от коричневого камня.Они подчеркнули оригинальные черты, такие как металлический камин и открытое естественное освещение.
4) High Rise Studio
Эта модная студия демонстрирует вам другой пример макетов студии, предлагающей больше места. Эта студия, расположенная в модном районе в центре города Анн-Арбор, демонстрирует, как можно сохранить уединение даже в небольшом пространстве.
Это достигается за счет перегородки между зоной отдыха и спальней.
В то время как блок все еще открыт, эта небольшая дополнительная часть стены создает ощущение разделения пространства.
Кроме того, поскольку это роскошный жилой комплекс, вы можете рассчитывать на удобства.
5) Crisp Miami Studio
Эта чистая однокомнатная квартира в Майами покажет вам, как можно комфортно жить с помощью всего лишь самого скелета. Отличается эта планировка тем, что кухня-камбуз расположена сбоку от квартиры. Это помогает создать ощущение, что это отдельная комната без каких-либо замкнутых стен.
Кроме того, поскольку здесь нет специально отведенной столовой, владельцы использовали небольшую, но высокую обеденную мебель, чтобы заполнить пространство. Это помогает квартире чувствовать себя намного больше, чем она есть на самом деле.
Еще одна важная вещь, которую следует отметить, заключается в том, что при сохранении минимального дизайна каждая функция имеет цель.
Это одна из самых важных вещей, которые вы можете сделать, если хотите сократить свою жизнь.
Здесь собраны ВСЕ лучшие идеи интерьера однокомнатных квартир.
Последние мысли
Квартира-студия — это намного больше, чем четыре замкнутых стены на небольшом пространстве. Существует так много уникальных макетов и дизайнов, что вам не нужно чувствовать себя так, как будто вы живете в коробке. Хотя кажется, что 200 квадратных футов едва ли хватит места для передвижения, на самом деле это больше, чем вам нужно.
Перейдите сюда, чтобы получить дополнительную информацию о том, что считается однокомнатной квартирой.
При правильной планировке и идеальном размещении мебели ваша студия может казаться огромной.Итак, в следующий раз, когда вы будете осматривать планировку однокомнатной квартиры, будьте открыты! Нет ничего, что вы не смогли бы сделать с нужным количеством воображения и творческих способностей. Удачи.
Источники: hgtv.com, airbnb
Была ли эта статья полезна? Вы нашли неверную информацию или чего-то не хватало?Мы будем рады услышать ваши мысли! (PS: читаем ВСЕ отзывы)
Мария — основательница GoDownsize.
Изучая архитектуру в Дании, она увлеклась проектированием жилых помещений для лодок, крошечных домов, домов на колесах и других небольших помещений.
В основном она пишет об оптимизации пространства, дизайне интерьера и уменьшении размеров. Она также отвечает за наш канал на YouTube. Подробнее о Марии здесь.
Идеи дизайна интерьера квартиры-студии
Квартиры-студии, будь то в центре города, в пригороде или даже за городом, — это одновременно экономичный и интересный способ жизни.У них есть свои причуды, но если вы умно оформляете свой дом и эффективно используете пространство, вы действительно можете сделать свою студию сияющей. Вот несколько советов, которые помогут воплотить вашу личность в новом месте.
По теме: Co-Ops vs. Condos | Этапы сделки совместной покупки
Что такое однокомнатная квартира? Квартира-студия — это место для проживания, в котором кухня, спальная зона и гостиная занимают одно пространство.![]()
чаще всего преподносятся как решение для тех, кто уезжает впервые, для студентов или для одиноких молодых специалистов. Но на самом деле они привлекают удивительное количество разных арендаторов из всех слоев общества. На сегодняшнем, порой трудном рынке жилья, доступность квартир-студий рассматривается как большой плюс.
Как и следовало ожидать, есть определенные соображения, которые следует учитывать при выборе собственной квартиры-студии.Они варьируются от очевидного — меньшее пространство для жизни, но также меньшее количество уборки — до менее очевидных. Например, когда вы ложитесь спать ночью, вы, вероятно, будете слышать звук холодильника и, возможно, даже почувствуете запах обеда, который все еще витает в воздухе.
Управление этим пространством и получение от него максимальной отдачи для одних дается более естественно, чем для других. Люди, живущие в квартирах-студиях, обнаруживают, что это может побудить их избавиться от беспорядка в своей жизни и избавиться от лишнего, что вдохновляет Мари Кондо кивнуть головой в знак одобрения.
Для других апартаменты-студии могут показаться слишком тесными — как лев, шагающий по клетке.
Однако преодоление этого последнего чувства в значительной степени сводится к тому, как вы подходите к дизайну интерьера вашей собственной квартиры-студии.
Разница между дизайном интерьера квартиры-студии и большими жилыми помещениями
Многие методы, которые используются в больших комнатах, обычных квартирах и домах для создания большего количества света и пространства, также используются в квартирах-студиях.Разница в том, что в дизайне интерьера квартиры-студии этим лучшим практикам обычно уделяется гораздо больше внимания.
Люди, живущие в квартирах-студиях, как правило, покупают многофункциональную мебель или мебель, размер которой соответствует более компактному жилому пространству. Очень важно максимально использовать доступное для вас пространство, потому что это может бороться с ощущением, что вы слишком замкнуты.
Диваны, прислоненные к экрану телевизора, кровати, прислоненные к кухонной раковине, двери в ванных комнатах, которые открываются только наполовину, прежде чем удариться о край компьютерного стола — всего этого можно избежать, если оформить с умом.
Встраивание необходимой мебели
Когда вы покупаете лучшую мебель для квартиры-студии, разумно учитывать размеры не только самой квартиры, но также двери и пространство, в котором вы должны действительно перемещать вещи.
Это может показаться очевидным, но слишком много новичков в квартирах такого типа разочаровываются, когда письменный стол или диван не помещаются в парадную дверь или в коридор подъезда самого многоквартирного дома.
Плоская упаковочная мебель может быть здесь хорошим решением, но столь же популярна идея — просто купить мебель, которая была разработана специально для более эффективного использования пространства. Существует множество решений, и, к счастью, многие из них не экономят на таких вещах, как комфорт, стиль или функциональность.
Диваны-кровати, футоны и откидное спальное место
Максимальный комфорт и возможность расслабиться в вашей квартире-студии — ключ к успеху. Это ваше безопасное место, ваш дом, в котором вы заряжаете свои батареи — и если ваша студия находится в большом городе, очень важно убедиться, что в ней есть подходящая кровать, чтобы вы могли отдохнуть среди суеты.
Но поскольку кровать является одним из наиболее занимающих много места предметов мебели, вы, вероятно, захотите тщательно обдумать свои варианты.
Во многих квартирах-студиях кровать просто выдвигается в жилое пространство, иногда выполняя двойную функцию дивана. Для многих это работает нормально, но другие считают, что со временем это оказывается проблематичным.
Гости, которые придут, будут сидеть на вашей кровати, есть свои блюда на вынос, пить кофе, который вы им приготовили, и так далее.Со временем это может подорвать ощущение личного пространства и уединения, если вы к этому не готовы. Даже самый внимательный гость не может не добавить к этому эффекту, потому что больше негде присесть.
Но не бойтесь — есть много комбинаций диванов-футонов в студиях, которые действительно могут вам помочь. Они спроектированы как достаточно компактные, чтобы их можно было легко переместить или построить в пределах квартиры-студии, но они также имеют современный стиль, который действительно хорошо подходит для такого типа недвижимости.
Днем это удобные и привлекательные диваны или кушетки. С наступлением темноты они раскладываются и превращаются в двуспальные кровати, на которых легко разместятся одиночки или пары.
Использование максимального пространства таким образом чрезвычайно полезно в однокомнатной квартире, и эти предметы мебели обычно создаются так, чтобы обеспечить максимальный комфорт в обеих формах — одна не должна затмевать другую.
Однако, безусловно, существуют и другие компактные спальные решения — настенная кровать или кровать Мерфи — еще один популярный пример.Это, как и решение с диваном-кроватью, предотвращает доминирование кровати в вашем жилом пространстве и не дает вашей квартире-студии слишком походить на спальню с прикрепленной к ней кухней.
Стиль и функциональность взаимосвязаны сильнее, чем мы думаем, и определенно не исключают друг друга. Например, настенная кровать, которая складывается на ночь, может включать в себя особый дизайн или даже небольшие полки или отделения, в то время как она складывается.
Складные столы и прочие компактные обеденные гарнитуры
Выделение времени для комфортного приема пищи жизненно важно для нашего здоровья, но некоторые квартиры-студии недостаточно велики, чтобы обычный обеденный стол действительно работал.
К счастью, существуют решения для более компактных домов. Выбор подходящего обеденного стола поможет вам почувствовать вдохновение и улучшить свою домашнюю кухню. Прочные, доступные и стильные складные или небольшие обеденные столы для квартир-студий можно найти в различных цветах и стилях, чтобы они соответствовали ощущениям вашего дома.
Существуют как квадратные, так и круглые варианты, так что подумайте об этом при проектировании вашего пространства. Столы круглой формы придают вашему дому более органичный, даже деревенский вид, в то время как квадратные или прямоугольные обеденные столы часто имеют более современный вид.
Думайте также и практично — если ваша однокомнатная квартира особенно мала, вам стоит избегать квадратных обеденных столов, особенно если вы планируете принимать много гостей.
Жесткие углы могут стать причиной более чем изрядного количества ударов и синяков, даже через несколько месяцев после того, как вы привыкнете к положению стола в своей квартире-студии.
Простые украшения, такие как отдельная ваза или приправа, поставленная в центре стола, подчеркивают функцию предмета, не перегружая его поверхность.
Скатерти дают вам возможность либо акцентировать, либо сочетать ваш обеденный стол с остальной частью комнаты. Если вы хотите, чтобы он был частью комнаты, выберите цвет, который сочетается со стенами, ковром или диваном, а если вы хотите увеличить разрыв между обеденной зоной и гостиной, выберите более контрастный, но все же дополнительный цвет.
Стеллаж и хранение
Эффективность и пространство для хранения вещей — это своего рода решающий элемент в однокомнатной квартире. К счастью, современные и хорошо спроектированные квартиры-студии, как правило, создавались с учетом этого.
Здания, которые были наспех переделаны под квартиры-студии или просто не так хорошо спроектированы, лишены этих преимуществ — но это не значит, что вы не можете найти свои собственные решения.
Фактически, даже более эффективно спроектированные квартиры-студии могут время от времени иметь немного больше места для хранения вещей.
Умение использовать пространство, сохраняя при этом свободу передвижения, является секретом великолепного дизайна интерьера квартиры-студии.
Гардеробы и одежда
Для хранения одежды, обуви и других модных предметов первой необходимости обычно берут стенной шкаф или платяной шкаф — большой предмет мебели.Как и другие примеры, которые мы обсуждали, это может оказаться проблематичным для плана этажа однокомнатной квартиры.
Многие люди, переезжающие в однокомнатную квартиру без какого-либо встроенного шкафа, предпочитают по-настоящему урезать свою коллекцию одежды — возможно, ровно настолько, чтобы поместиться в комод с полкой для обуви у двери.
Если вы пытаетесь избавиться от беспорядка в своей жизни, то непременно воспользуйтесь этим решением, но это не обязательно! Существует так много альтернативных шкафов, многие из которых могут оказаться умными способами эффективно использовать ваше пространство, не нарушая поток комнаты или банка.
Хорошее решение, если у вас есть место под кроватью, — это ящики для хранения небольших предметов одежды, таких как носки и нижнее белье.
Во многих случаях вы также обнаружите, что существует ряд гардеробы и туалетов, которые были спроектированы как очень компактные и узкие. Они часто бывают в формате Flatpack, поэтому вы можете построить их в своей квартире-студии.
Книжные полки и витрины
Так много индивидуальности вашей комнаты проявляется в полках, на которых хранятся ваши книги, фильмы, игры, электроника, скульптуры, спортивные трофеи — вы называете это.
Плавающие полки на стенах — хороший минималистичный выбор, если вы хотите выставить только несколько небольших книг или декоративных элементов. Они также являются хорошим местом для посадки растений.
Полки могут быть размещены особенно высоко в местах с высокими потолками, эффективно предоставляя вам еще один уровень хранения, который находится в стороне от прямой видимости, но при этом остается под рукой, когда вам нужна определенная книга рецептов, DVD или что-то подобное.
Однако, если у вас особенно широкая книжная полка, открытая с обеих сторон, это действительно может быть преимуществом.Это потому, что приличная широкая книжная полка может служить перегородкой для вашей квартиры-студии, отделяя домашний офис от жилого пространства или кухню от спальни.
Свет и цвет
Несмотря на то, что квартир-студий с приличным естественным освещением столько же, сколько и без них, есть вероятность, что вам понадобится дополнительное освещение на новом месте.
Разумное размещение света также является ключевым моментом, чтобы разделение, скажем, вашего спального места и вашего жилого пространства сохранялось как можно лучше.
Яркие идеи для освещения
В наши дни легко найти лампы и освещение. Фактически, многие современные предметы мебели, такие как изголовья кроватей, стеллажи, столы и т. Д., Имеют встроенные светильники. Точно так же лампы от антиквариата до современных предметов действительно могут быть использованы для украшения комнаты, а не только для освещения.
Не забывайте и об укромных уголках и нишах вашей квартиры-студии. Их можно использовать не только для хранения вещей, но и для торшера или настенного светильника.Это не только предотвращает засветку более темных уголков вашего дома слишком большим количеством теней, но и освещает остальную часть вашей однокомнатной квартиры сознательным образом.
Зеркала и перегородки — пусть свет работает на вас
Естественный свет важен, но в вашей квартире-студии вполне может быть только одно окно — или вообще не быть. Когда вам нужно работать только с небольшим источником света, установка зеркала может быть хорошим способом сделать это еще дальше — и заставить комнату казаться больше.
Зеркалатакже можно использовать неожиданными способами, например, за кухонными стойками или за полками, вплотную к стене, чтобы действительно добавить глубины вашей квартире.
Но если на вас влияет избыток света в гостиной и спальне открытой планировки, подумайте о способах стильно разделить комнату.
Шторы и складные ширмы очень эффективно разделяют, например, спальню и гостиную, а в некоторых квартирах такого типа можно поставить полустены или временные стены.
Однокомнатная квартира без отделки
Рассортировав большие предметы мебели — если их не сразу заменить на более стильные и эффективные по пространству решения — вы можете добавить личные изюминки, которые действительно сделают вашу студию привлекательным местом для жизни.
Это все о том, чтобы поставить свой отпечаток на место. Если вы в тупике или ищете способы сделать разумный выбор в дизайне интерьера, есть еще несколько моментов, которые следует учитывать.
Комнатные растения и зелень
Избегать ощущения запертости в четырех маленьких стенах — это, пожалуй, самый важный психологический аспект жизни в однокомнатной квартире.Для этого отлично подходят растения, по той же причине, что они есть в офисе или в любом доме. Растения уменьшают стресс и улучшают творческое мышление, даже на подсознательном уровне, и добавляют нотку природы в то, что часто является городской недвижимостью.
Конечно, у растений тоже есть свои сложности. Они нуждаются в уходе, и если в вашей квартире-студии плохое естественное освещение, проблемы с влажностью или слишком много гостей из насекомых, они могут добавить больше стресса, чем вы думаете.
И все же, что, возможно, удивительно, искусственные растения — иногда называемые «искусственными растениями» — дают все психологические преимущества настоящих растений, не нуждаясь в уходе.Искусственные растения тоже бывают самых разных форм и размеров — и нет риска, что одно из них станет слишком большим, чтобы его можно было поддерживать!
Настенные украшения
Многое из вашего личного стиля и чутья вполне естественно проявится в плакатах, картинах и фотографиях, которые вы решите повесить на стенах своей квартиры-студии. Достаточно сказать, что они могут добавить цвета и акцента в комнату, которая в противном случае могла бы казаться немного безжизненной или несогласованной, действительно связывая вещи воедино.
Тем не менее, при разумном использовании настенные украшения могут придать форму и выразительность вашей квартире-студии.С его помощью можно отделить одну часть квартиры от другой — отделить кухню от гостиной можно так же просто, как покрасить одну половину комнаты в один цвет, а другую половину — в другой.
Декоративная стена — еще один отличный способ как создать пространство, так и оживить ваш дом. Здесь вы можете пойти настолько далеко, насколько захотите — фреска, фальшивая кирпичная стена для городского шика или специальная зона для вашей кровати или дивана, на которую можно опираться.
Контраст этой стены по сравнению с тремя другими в вашей квартире-студии даст ощущение присутствия и места, привлекая внимание и связывая воедино то, что в противном случае могло бы выглядеть беспорядочно и разрозненно.
Есть так много замечательных способов заставить квартиру-студию работать на вас. Дизайн интерьера квартиры-студии сопряжен с множеством проблем и возможностей, но, имея в виду эти советы, вы встанете на правильную ногу с множеством собственных ярких идей, которым можно следовать.

Если же молодая семейная пара живёт в разном ритме — это тоже может стать проблемой. Когда один человек поднялся с кровати и занялся какими-то делами, другой также вынужден будет проснуться;
Небольшой стол, находящийся внутри шкафа, удобен в использовании, при этом не будет отвлекать внимание во время других занятий.
Для этого используется соответствующая отделка потолка, пола и все стен.



К приме, подоконник можно определить под кухонный стол.
Добавить комментарий