Планировка дома 50 кв м: Проекты мини домов до 50 кв м
| Фундамент: | не входит в стоимость дома, рассчитывается индивидуально, в зависимости от пожеланий Клиента и планировки проекта. | ||
| Высота помещений | Высота 1 этажа — 2,5 м, высота 2 этажа — 2,4 м | ||
| Толщина каркаса | 150 мм | ||
| Обвязка дома (Двойная) | 1 ряд — брус 150х150 мм, 2 ряд — доска 40х150 мм | ||
| Лаги первого этажа | Доска 40х150 мм (шаг 59 см) | ||
| Черновой пол | Обрезная доска 20х100 | ||
| Чистовой пол | Шпунтованная доска, толщиной 36 мм, принудительной сушки | ||
| Наружные стены дома 1 этажа | Доска 40х150 мм (шаг 59 см) | ||
| Перегородки 1 этажа | Доска 40х100 мм (шаг 59 см) | ||
| Межэтажное перекрытие | Доска 40х150 мм (шаг 59 см) | ||
| Каркас фронтонов | Доска 40х150 мм (шаг 59 см) | ||
| Стропила | Доска 40х150 мм (шаг 59 см) | ||
| Наружные стены 2 этажа (при наличии) | Доска 40х150 мм (шаг 59 см) | ||
| Перегородки 2 этажа | Доска 40х100 мм (шаг 59 см) | ||
| Подкровельная обрешетка | Доска 20х100 мм (шаг не более 30-35 мм) | ||
| Вентиляционная контррейка | Рейка 20х50 мм | ||
| Подкровельная пленка | Мембранная пленка Изоспан АМ | ||
| Вентилируемый фасад дома | Рейка 20х50 мм | ||
| Ветро-влагозащита наружных стен | Мембранная пленка Ондутис А | ||
| Внешняя отделка | Имитация бруса 20х135 мм, сорт В, камерной сушки | ||
| Пароизоляция | Мембранная пленка Ондутис В | ||
| Внутренняя отделка | Стены, перегородки — вагонка; потолок — вагонка (вагонка сорт В, камерной сушки) | ||
| Утепление: Пол 1 этажа | Rockwool Лайтс Баттс 150 мм | ||
| Утепление: Внешний контур дома | Rockwool Лайтс Баттс 150 мм | ||
| Потолок мансардного этажа | Rockwool Лайтс Баттс 200 мм | ||
| Межэтажное перекрытие | Rockwol Лайт Баттс 150 мм | ||
| Перегородки 1 и 2 этажей | Rockwool Лайт Баттс 100 мм | ||
| Кровля | Волнистые листы Ондулин (цвет: красный, коричневый, зеленый) | ||
| Поднебесники | Имитация бруса 20х135 мм, ширина — 40 см | ||
| Окна | Однокамерные окна ПВХ | ||
| Входная дверь | Металлическая, производство Россия | ||
| Межкомнатные двери | Деревянные, филенчатые | ||
| Лестница на второй этаж | Тетива — строганный брус 100х150 мм, ступени — 30х200 мм, поручень — деревянный фигурный, балясины — точеные фигурные.![]() | ||
| Фундамент: | не входит в стоимость дома, рассчитывается индивидуально, в зависимости от пожеланий Клиента и планировки проекта. | ||
| Высота помещений | Высота 1 этажа — 2,5 м, высота 2 этажа — 2,4 м | ||
| Толщина каркаса | 150 мм | ||
| Обвязка дома (Двойная) | 1 ряд — брус 150х150 мм, 2 ряд — доска 40х150 мм | ||
| Лаги первого этажа | Доска 40х150 мм (шаг 59 см) | ||
| Черновой пол | Обрезная доска 20х100 | ||
| Чистовой пол | Шпунтованная доска, толщиной 36 мм, принудительной сушки | ||
| Наружные стены дома 1 этажа | Доска 40х150 мм (шаг 59 см) | ||
| Перегородки 1 этажа | Доска 40х100 мм (шаг 59 см) | ||
| Межэтажное перекрытие | Доска 40х150 мм (шаг 59 см) | ||
| Каркас фронтонов | Доска 40х150 мм (шаг 59 см) | ||
| Стропила | Доска 40х150 мм (шаг 59 см) | ||
| Наружные стены 2 этажа (при наличии) | Доска 40х150 мм (шаг 59 см) | ||
| Перегородки 2 этажа | Доска 40х100 мм (шаг 59 см) | ||
| Подкровельная обрешетка | Доска 20х100 мм (шаг не более 30-35 мм) | ||
| Вентиляционная контррейка | Рейка 20х50 мм | ||
| Подкровельная пленка | Мембранная пленка Изоспан АМ | ||
| Вентилируемый фасад дома | Рейка 20х50 мм | ||
| Ветро-влагозащита наружных стен | Мембранная пленка Ондутис А | ||
| Внешняя отделка | Имитация бруса 20х135 мм, сорт В, камерной сушки | ||
| Пароизоляция | Мембранная пленка Ондутис В | ||
| Внутренняя отделка | Стены, перегородки — вагонка; потолок — вагонка (вагонка сорт В, камерной сушки) | ||
| Утепление: Пол 1 этажа | Rockwool Лайтс Баттс 150 мм | ||
| Утепление: Внешний контур дома | Rockwool Лайтс Баттс 150 мм | ||
| Потолок мансардного этажа | Rockwool Лайтс Баттс 200 мм | ||
| Межэтажное перекрытие | Rockwol Лайт Баттс 150 мм | ||
| Перегородки 1 и 2 этажей | Rockwool Лайт Баттс 100 мм | ||
| Кровля | Волнистые листы Ондулин (цвет: красный, коричневый, зеленый) | ||
| Поднебесники | Имитация бруса 20х135 мм, ширина — 40 см | ||
| Окна | Однокамерные окна ПВХ | ||
| Входная дверь | Металлическая, производство Россия | ||
| Межкомнатные двери | Деревянные, филенчатые | ||
| Лестница на второй этаж | Тетива — строганный брус 100х150 мм, ступени — 30х200 мм, поручень — деревянный фигурный, балясины — точеные фигурные.![]() | ||
Дачный дом под ключ СПб стоимость цена в СПб
Если вы хотите уложиться в определенный бюджет, построить небольшой и недорогой комфортный дачный или гостевой дом в Ленинградской области.
Если вы планируете возведение загородного зимнего домика для отдыха по входным и праздникам, возможно в дальнейшем использовать дом для постоянного проживания, или хотите подобрать проект одноэтажного дома небольшой площади, при этом построиться в кратчайшие сроки и сразу использовать свои загородные апартаменты самим, возможно, и зарабатывать на сдаче в аренду?
У нас вы можете подобрать для себя подходящий во всех отношениях проект или придумать свой вариант планировки одноэтажного дачного дома. Мы поможем разместить выбранный проект на участке, предложим различные варианты наружной и внутренней отделки, в наших проектах используются экологичные и практичные материалы (такие, как дерево), как говорится, недорого и со вкусом.
На этой странице мы предлагаем вам воспользоваться нашими наработками и ознакомится с представленными выше проектами домов, дач и бань под ключ от 18 до 50 м.кв.
Мы указываем стоимость строительства этих небольших и технологичных каркасных или модульных строений с возведением фундамента, наружной и внутренней отделкой в стандартном варианте деревом — одним из самых практичных, экономичных и экологичных материалов. Наши дома утеплены базальтовым утеплителем до 200 мм., оснащены проводкой внутренних инженерных сетей водопровода, канализации, электрики, так же будут установлены металлопластиковые окна с энергосберегающими стеклопакетами и уличными дверями.
Так же мы предлагаем индивидуально, под необходимые задачи спроектировать и скомплектовать дом для строительства своими руками. Проектируем дома любой площади и конфигурации, в любой интересующей вас комплектации, с возможностью самостоятельного выбора вариантов материалов для наружной и внутренней отделки. Вы можете заказать у нас любые строительные услуги отдельно от проекта: от строительства фундамента до монтажа и подключения наружных инженерных коммуникаций и оборудования.

Проект небольшого дома 50 кв м – маленький домик с мансардой для двоих
Кому не хочется иметь небольшой загородный дачный домик, куда можно будет приехать летом и прекрасно провести время вдали от городской суеты. Однако возникает вопрос – какой должна быть планировка этого строения, дабы соответствовать возложенным ожиданиям и не выходить за рамки отведенного бюджета. Кроме того, необходимо рассчитать, какое количество строительных материалов потребуется для этого и во сколько обойдется стройка. Если с двумя последними моментами невозможно разобраться без помощи профессионалов, то за составление проекта совсем не обязательно доплачивать архитектору – можно воспользоваться уже готовым чертежом или составить его самостоятельно.
Содержание
- Первый этаж
Идеальным вариантом для уютной дачи будет дом с мансардой – по факту, получается небольшие два этажа, пригодных для жизни (согласитесь, такое строение более рационально, чем одноэтажный дом – позволяет создать большую площадь при меньших затратах). Прекрасно подойдет для молодой семьи, для отдыха которой будет вполне достаточно маленького строения. Очень хорош такой дом и для дачников-пенсионеров.
Теперь несколько подробнее остановимся на планировке каждого этажа в отдельности.
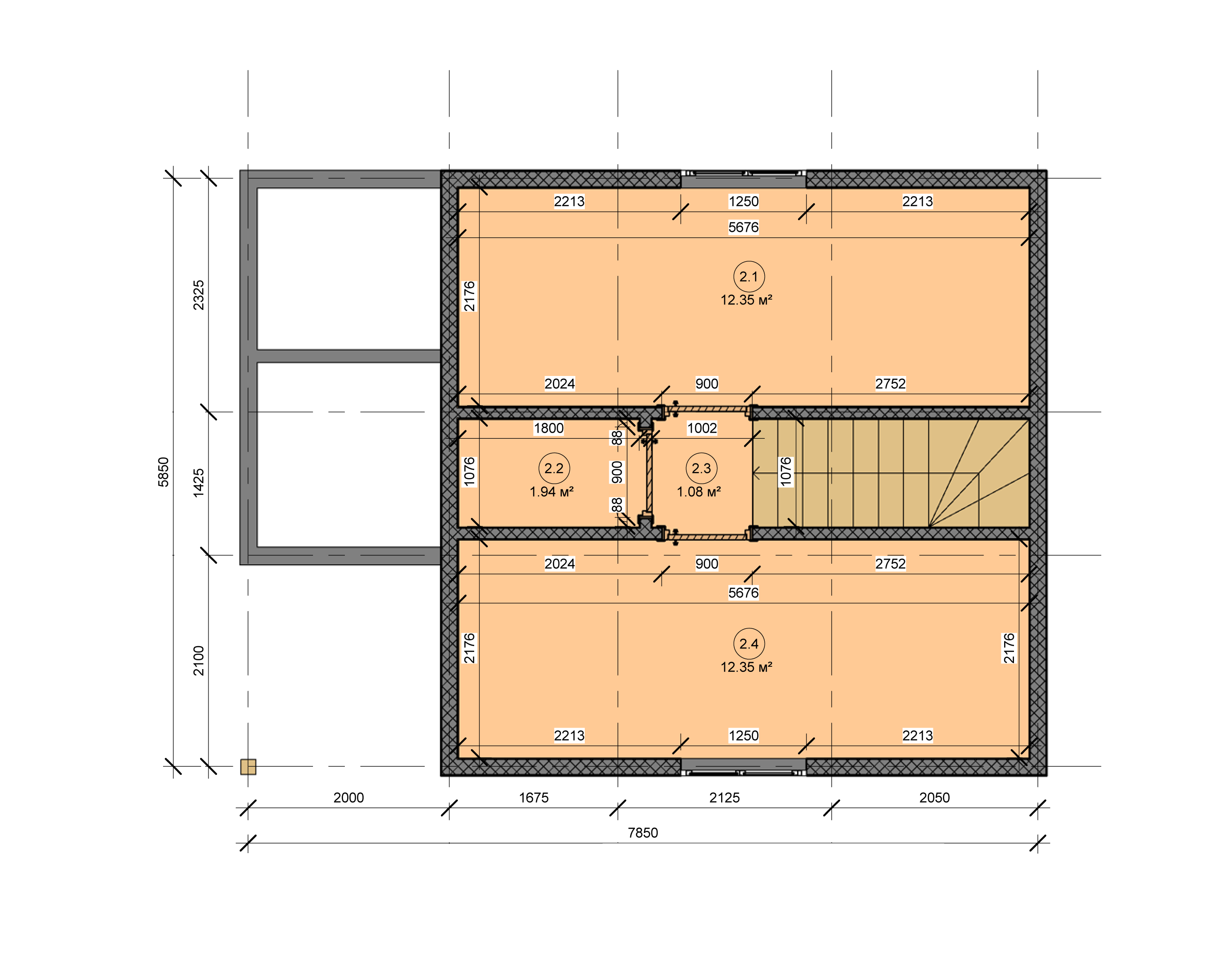
Первый этаж дома
Общий вид первого этажа — площадь 35,8 квадратных метров
Площадь первого этажа: 35,8 кв м, размер: 7,32 м х 4,88 м, высота потолков (до крыши) 5,64 м
План первого этажа включает 3 маленьких помещения: гостиная, санузел и кухня
Рассмотрим вариант уютного здания или проекта дачи эконом класса, предусматривающий следующие параметры — общая площадь первого этажа: 35,8 кв м, размер: 7,32 м х 4,88 м, высота потолков (до крыши) чуть меньше 5,7 м. Самой удачной планировкой в данном случае будет следующая:
1. Общая гостиная
Площадь: 20,33 кв м, размер: 4,57 м х 4,45 м
Гостиная – естественно, это будет самая главная комната, где вся семья будет собираться за чаепитием.
Для достижения максимального комфорта надо будет отвести под это помещение
2. Санузел
Площадь: 4,8 кв м, размер: 2,31 м х 2,08 м
Санузел – даже если это дача, его лучше делать в доме. Вполне достаточно будет отвести
3. Кухня
Площадь: 5,92 кв м, размер: 2,13 м х 2,78 м
Учитывая то, что дача – это не частная городская квартира, где люди большую часть свободного времени проводят на кухне, это помещение можно будет укомплектовать необходимым минимумом – плита для приготовления пищи, кухонный стол и холодильник. Вполне для этого будет достаточно помещения, площадью 5,92 кв м, при размерах: 2,13 м х 2,78 м. Идеальная планировка современных дачных вариантов!
Второй этаж — необычная мансарда дома
На втором этаже располагается эконом-вариант мансардной спальни
Спальня-мансарда площади квадратных метров
4. Спальня-мансарда
Площадь: 6,96 кв м, размер: 2,54 м х 2,74 м
Исходя из предложенного проекта небольшого дома, на втором этаже будет размещена только одна комната, выполняющая функции спальни. Под это помещение достаточно будет выделить 6,96 кв м площади, размером 2,54 м х 2,74 м
Веранда — изменяемая часть дачного домика
Выделяется место под веранду — это также может быть или открытая площадка для барбекю
Площадь: 9 кв м, размер: 3 м х 3 м
Что делать со свободной площадью? Исходя из предложенного варианта, остается незанятыми 9 кв м (обратите внимание на фото). Наиболее разумным решением будет обустроить там веранду (летнюю кухню) и наслаждаться рассветом, любуясь великолепием природы!
Общий план
Общий план очень уютного загородного коттеджа
Чем привлекателен предложенный проект дома 50 квадратных метров? Согласитесь, такой вариант необычного коттеджа с мансардой идеально подойдет для людей, выезжающих на загородный отдых по «субботам-воскресеньям» и не желающих вкладывать много денег на реализацию масштабного строительства.
Грамотный дизайн позволяет на сравнительно маленький размер площади реализовать максимально удачную планировку, соответствующую всем требованиям современных дачников.
Основная особенность предложенного варианта заключается в гармоничном сочетании удачной планировки и сравнительно невысоких затратах на возведение. Кстати сказать, такие дома с мансардой с каждым годом пользуются все большим спросом – причем способствует этому не столь экономическое положение, как замечательный вид, который имеют такие дачные домики.
Смотрите также другие проекты одноэтажных домов
4.1 / 5 ( 39 голосов )
Проекты небольших домов (площадь всего 50 кв м) в Швеции
На 50 кв. метрах можно не просто комфортно жить, а в полной мере наслаждаться жизнью и миром вокруг. По крайней мере именно этим и хочется заниматься в коттедже, построенном Гертом Вингартом.
На фото:
Огромные окна, «впускающие» в интерьер окружающий ландшафт, тонко проработанные и уютные интерьеры на фоне по-скандинавски сдержанной архитектуры, — все это наполняет коттедж удивительным теплом и какой-то особой поэтичностью, свойственной японским чайным домикам, которыми вдохновлялся архитектор, работая над проектом этого небольшого дома.
Информация:
Место: Вастра Каруп, Швеция
Метраж: 50 кв. м
Год: 2000
Архитектор: Герт Вингард
Фото: Åke E:son Lindman
На фото: Gert Wingårdh, архитектор
Этот очаровательный маленький коттедж, спроектированный архитектором Гертом Вингардом и получивший название Мельничный домик, является частью большого загородного комплекса, перестроенного из старинной фермы XIX века. И хотя этот коттедж всего лишь домик для отдыха (надо сказать горячо любимый членами семьи и их гостями), он вполне мог бы быть полностью самостоятельной постройкой, изящно вписавшейся в какой-нибудь идиллический ландшафт Швеции.
Ведь здесь на 50 кв. метрах удивительным образом поместилось все, что нужно для жизни и счастья: большая гостиная с камином, прекрасная кухня, светлый мезонин со спальней и, конечно,– главная составляющая проекта дома – просторная сауна с потрясающей каменной купелью.
Особой поэзией наполнено природное окружение Мельничного Домика, без которого он лишился бы львиной доли своего очарования.
Эффект усиливает тщательно проработанный ландшафтный дизайн: в дополнение к природному ручью перед коттеджем разбит неглубокий выложенный булыжниками пруд, с несколькими крупными валунами, напоминающими о японских садах.
Весь внутренний объем дома разделен на три части: одну половину нижнего этажа занимают кухня с гостиной, другую – сауна и санузел, а на втором уровне расположена спальня.
Особенность дома – огромная площадь застекления, две из четырех внешних стен полностью превращены в большие раздвижные окна-двери. Это отвечает главному назначению дома – служить местом отдыха среди природы, он практически сливается с ней.
Несмотря на скромные размеры и кажущуюся простоту форм, Мельничный домик – это настоящий крошечный архитектурный шедевр, созданный одним из ведущих архитекторов Швеции. Редко можно встретить проекты небольших домов, столь полно соответствующих идеалу комфортного отдыха. Посмотрите, как талантливо устроен второй этаж – он нависает мезонином над первым, но при этом не «отрезан» от него до конца. И пусть площадь дома не позволяет сделать полноценное двусветное пространство, этот небольшой проем между этажами позволяет коттеджу выглядеть намного просторнее, а первом этажу не смотреться слишком низким.
На втором этаже расположена небольшая спальня. Вся мебель в доме – встроенная и сделана из того же материала, что и сам дом – из дуба.
Большой застекленный фронтон Мельничного домика затапливает интерьер спальни естественным светом.
Вся отделка дома и встроенная мебель сделаны из природных материалов, самого высокого качества – дуба и серого песчаника. Отделку отличает очень высокое качество – весь дом словно изящная шкатулка, каждая деталь которой идеально пригнана к другой.
Половину первого этажа занимает просторная кухня, встроенная в конструкции из дуба и гостиная с уникальным стеклянным камином. Расположенный напротив стеклянной же стены он не заслоняет природное окружение и при этом абсолютно функционален.
Вторая половина дома – это сауна, с небольшой раздевалкой и санузлом. Коридор, ведущий, в парную весь отделан серым песчаником.
Небольшая раковина «вписалась» в уголок за закруглящейся стеной душевой.
А это парная, с очень приятно оформленными полатями. Обратите внимание – стена и здесь не доходит до самого верха: это позволяет излишкам теплого воздуха выходить в гостиную.
Это изюминка проекта – глубокая каменная купель, расположенная на улице. Она постоянно наполняется свежей ледяной водой, которая переливается через каменные борта, стекает на пол террасы, окружающей дом…
А затем стекает с нее, образуя небольшой водопад. Отсюда и название – Мельничный домик. Дом, действительно, напоминает стоящую на воде мельницу, и со стороны этого фасада с трубой, особенно видна стилизация под традиционную шведскую архитектуру.
Дорожку к дому украшают сплетенные из ивы арки, завитые вьюнами.
«Бельбулак» — проект дома 50 кв.м из SIP панелей — 3 740 539 тенге — SipHome.kz
г. Алматы, Ауэзовский район, Таугуль 3, Шайкенова, 59 (желтый коттедж)
+7 (707) 400 86 98
| Стоимость: | 3,740,539 ТГ |
| Общая площадь | 50 м2 |
| Площадь застройки | 50 м2 |
| Высота | 2,75 м |
| Угол наклона кровли | 25 ° |
| Площадь крыши | 110 м2 |
Описание
Проект строительства одноэтажного дома из СИП панелей.
Технические данные: Строительный материал – SIP-панель. Ширина по фасаду 10 м. 2 спальни. 1 санузел. Общая площадь 50 кв.м.
Стоимость дома:
| Стоимость домокомплекта (стены, перекрытия, стропильная система с обрешёткой, комплектующие) | 864 576 | тг |
Дополнительно:
| Монтажные работы с доставками (стены, перекрытия, стропильная система с обрешёткой) | 1 406 636 | тг |
| Стоимость ж/б фундамента со стяжкой пола (материал + работа) | 671 586 | тг |
| Кровля металлочерепица с подшивкой свесов, фронтонов (материал + работа) | 797 741 | тг |
Характеристики:
| Площадь дома с террасами | 50 | кв.м |
| Габаритные размеры | 10 х 5 | м |
| Этажность | 1 | эт. |
| Высота потолка | 2,75 | м |
| Толщина СИП наружных и несущих стен | 170 | мм |
| Толщина СИП внутренних перегородок | 120 | мм |
| Чердачное перекрытие балочное с утеплителем и подшивкой потолка OSB | 140 | мм |
Планировка
Похожие
проекты
Проекты домов из бруса до 50 кв. м
ПО ВОПРОСАМ СТРОИТЕЛЬСТВА ДОМОВ ИЗ БРУСА ДО 50 КВ М МЫ ОТВЕТИМ ПО:- телефоны: 8 (800) 700-58-56, +7 (921) 202-87-97, +7 (926) 340-96-74
- эл.
почта: [email protected]
Камерная обстановка, небольшие комнаты, тишина – что ещё нужно для полноценного отдыха на природе? Дома до 50 кв. м – это особая атмосфера близости и уюта. Такие проекты хороши для семей из 2-3 человек. Их используют для строительства дач и домиков для гостей, реже – для капитального строительства. Несмотря на небольшую площадь, здесь легко разместить всё необходимое для комфортной жизни.
В чём плюсы домов из бруса до 50 кв. м
- Невысокие затраты на строительство. Такому дому нужно минимум строительных материалов, не требуется привлечение тяжёлой техники, высококвалифицированных рабочих. С дома до 50 квадратов можно начать освоение участка, чтобы позже построить коттедж.
- Быстрая сборка. Если готов фундамент, сборка и отделка дома занимает не больше двух недель. Вы переезжаете в том же сезоне, когда началось строительство.
- Низкие эксплуатационные расходы. На электричество и отопление такой постройки уходит немного. Дом можно отапливать печью или камином, не вкладываясь в газовое или электрическое отопление.
- Идеальный вариант для дачного строительства. Дом легко вписать в участок нестандартной формы (длинный или узкий), которые часто встречаются в российских садовых товариществах.
В галерее «Брусовых технологий» собраны проекты домов до 50 кв. м из бруса. Мы предлагаем дома классической планировки с гостиной, кухней, 1-2 спальнями. Большинством проектов предусмотрено строительство санузла и топочной, что позволит использовать строение зимой. Стилистическое оформление вы выбираете сами: от классического теремка до шале, от дома в стиле фахверк до лаконичной классики. Каждый проект можно доработать: поменять ориентацию по сторонам света, добавить веранду или террасу, изменить количество окон и расположение дверей. Большая часть изменений вносится бесплатно в течение 2-3 дней.
Компания «Брусовые технологии» ведёт строительство домов по типовым и индивидуальным проектам.
От подготовки пиломатериалов до сдачи объекта проходит не больше двух недель.
Дома с другими площадями:
Дома до 100 кв, Дома до 150 кв, Дома до 200 кв
Небольшой двухэтажный дом PHD-2015009
Chikita — это небольшой двухэтажный дом площадью всего 50 м², расположенный на участке площадью 62 м². В настоящее время, когда стоимость земли продолжает расти до потолка, цены на землю зависят от местоположения, что не позволяет большинству простых людей владеть собственным домом. Как основная жизненная необходимость, люди, чего бы это ни стоило, будут прилагать все усилия и делать все возможное, чтобы защитить свои семьи по очевидным причинам.
Множество подразделений создается почти в каждом уголке страны для обслуживания населения, предлагая широкий ассортимент и разновидности моделей домов в различных размерах лотов. В ответ на это требование Pinoy House Design предлагает план, предназначенный для таких небольших участков, как эта модель, с меньшим бюджетом и для обслуживания семей с низким доходом.
Эта особая дизайнерская модель демонстрирует стеклянные окна в алюминиевых рамах, полосу окрашенной вертикальной стены, выступающую над крышей, которая создает эффект страсти, отделяясь от основной стены, плоскую крышу, покрывающую вход и гараж, двускатную крышу, которая соответствует общей планировке. дома и небольшой сад сбоку от входа, чтобы создать скромный зеленый эффект.
ПЕРВЫЙ ЭТАЖ
ВТОРОЙ ЭТАЖ
Первый этаж представляет собой почти квадратную схему, в которой гостиная, столовая и кухня расположены так, чтобы вписаться в пространство. Пол завершает баня, обслуживающая весь дом. Оставшееся пространство сзади служит продолжением кухонной деятельности и других семейных задач. На правой стороне установлен брандмауэр, очевидно, для экономии места и максимального использования доступного участка.
Также предусмотрен типовой гараж, который создает баланс общего вида дома.
Второй уровень используется только под две спальни средних размеров. Каждая спальня имеет только по одному окну из-за ограничений по размеру, но достаточно для вентиляции, как и на втором уровне.
Комбинация выложенной плиткой дорожки, ступенчатого каменного входа / фойе и гаража на небольшом возвышении, дополненного небольшим садом, придает дому выразительный вид, поскольку он выглядит шире, чем реальный масштаб земли.
Этот тип дома — разумный выбор для тех, кто хочет построить умный, гибкий и экономичный жилой дом, который на самом деле не больше того, что нужно семье или того, что может предложить имеющийся участок. Преимущество этой конструкции заключается в том, что для обогрева и освещения требуется меньше энергии, что предполагает значительную экономию энергии. Соответственно, этот небольшой дом требует меньших затрат на обслуживание.
ИЗОБРАЖЕНИЙ И ИДЕЙ ДОМА JBSOLIS
Вот 10 проектов небольших домов с фотографиями и планом этажа для вашего бюджета P1 млн и ниже.Эти планы домов подходят для небольших филиппинских семей с двумя или тремя спальнями. Найдите вдохновение для дома своей мечты ниже. Контактная информация для планов находится внизу этой страницы.
«Объявления»
1. Это трехкомнатный дом, рассчитанный на небольшую семью. Площадь дома 61 кв.м, возможность возведения на участке 134 кв.м. Маленький, но элегантный, поскольку он тщательно разработан с учетом потребностей небольшой семьи.
«Объявления»
{ВСТАВЬТЕ ЗДЕСЬ 2–3 абзаца} {ВСТАВЬТЕ ЕЩЕ 5 ИЗОБРАЖЕНИЙ ИЛИ ВИДЕО}
2. Это простой дом-бунгало с двумя спальнями. Его можно построить на 170 кв. Для черновой отделки этого дома вам понадобится бюджет около 900 фунтов стерлингов.
«Рекламные ссылки»
3. Одноэтажный современный дом с крышей.
Можно построить на участке 135 кв.м. Ориентировочная стоимость этого дома колеблется от 720 000 до 840 000 песо только за черновую отделку.4. Это небольшой дом площадью 60,0 кв.м, который может быть построен на участке площадью 135,0 кв.м. Рассматривается по типичному плану дома для среднестатистических филиппинских семей.
Приблизительный бюджет готового проекта этого дома составляет от 720 000 до 840 000 песо.
5. Еще один проект небольшого дома с двумя спальнями. Он может быть построен с площадью 48 кв.м на участке 120 кв.м. Бюджет черновой отделки оценивается в 576 000–672 000 песо.
6.Это современный дом с тремя спальнями. Этот дом состоит из входной веранды, гостиной, столовой, кухни, грязной кухни, хозяйской спальни, стандартных спален и двух туалетов и ванн.
Его можно построить на участке площадью 167 кв.м с жилой площадью 82,0 кв.м. Ориентировочно законченный бюджет: 984 000–1 148 000.
[email protected]
+639392019327
+966551189029
Веб-сайт: www.pinoyhousedesigns.com
www.pinoyeplans.com
Facebook: www.facebook.com/pinoyeplans
https://www.facebook.com/coolhouseconcepts/
Эта статья находится в следующих рубриках: Дизайн небольших коттеджей, Дизайн небольшого дома, Планы дизайна небольшого дома , Малый дизайн дома внутри, малый дом архитектура
СМОТРЕТЬ БОЛЬШЕ:
© 2017 THOUGHTSKOTO
ПОИСК JBSOLIS, КЛЮЧЕВЫЕ СЛОВА ТИПА и НАЗВАНИЕ СТАТЬИ в поле ниже
Достаточно ли 50 квадратных метров для милого дома?
муджиб — переводится на почти 23 ‘
На 23 футах в каждом направлении, я предполагаю, что вы можете строить до «нуля» и не имеете никаких требований к отступлению.Но это первое, что нужно спросить — есть ли требования, чтобы здание располагалось за пределами границы собственности на установленную сумму, или вы можете построить прямо на линии? Вы живете в городской среде или хотите, чтобы на улице было 1 фут, чтобы можно было посадить что-нибудь зеленое / экран между вами и улицей или переулком? Эта одна нога снаружи / помещенная в что-то вертикальное / столбчатое или с металлическим экраном, вырезанным лазером, может сделать весь дом больше из-за света и зеленого света снаружи.
. стоит на общественной улице или аллее.
Ваши стены будут занимать около 0,15 метра от внутреннего пространства.
21,5 ‘x 22,5’ даст вам небольшое, но функциональное пространство «открытой концепции», в котором вы можете разместить кухню, столовую и жилое пространство на первом этаже. . но помните, что для лестницы необходимо использовать ширину около 4 футов, а это может занять до 8 футов в длину. Если вы аккуратно разместите лестницу так, чтобы она также помогала потоку наверх (может быть, вдоль задней стены меньшего размера?) (Оставляя 22,5 на 17,5, когда вы изучаете схему движения), и используйте область под лестницей для элементов хранения на кухне.
Вы можете использовать такие приемы, как размещение на банкетке в обеденном уголке, чтобы не было места, чтобы вытащить стулья. Представьте, что 14,5 x 17,5 — это ваше жилое пространство справа, а в оставшихся 8 x 17,5 находится кухня-камбуз размером 8 x 9,5 слева сзади (плюс кладовая под лестницей — проложите это в зону под лестницей), а столовая находится спереди слева с окнами. над этим встроенным банкетным сиденьем вокруг стола было бы больше, чем на самом деле 8 x 8. . Сделайте световые люки над лестничной клеткой, чтобы сверху падал естественный свет.Вы можете расширить лестницу до 5 футов и сделать небольшую дамскую комнату под верхней частью лестницы, если вам нужен гостевой туалет на первом уровне. Сколько спален наверху, в размере 23 x 18, вам нужно? Двумя спальнями со шкафами и большой ванной комнатой с хорошим шкафом можно управлять, но три спальни начинают быть очень маленькими, и я бы посоветовал вам перейти на три уровня. Еще один шаг, который сделает это ощущение больше, — это установить более высокие потолки на первом этаже и добавить ряд более высоких окон, которые обеспечивают уединение, но обеспечивают естественное освещение.Высота потолка не более 10 футов или 3 метров.
Остальное можно преобразовать обратно в метры. Входная дверь ведет прямо в вашу большую комнату.
Терраса на крыше может дать вам некоторое открытое пространство, которое принадлежит вам, что очень полезно для практического обслуживания вещей, которым нужен свежий воздух / свет. Вы можете использовать балконы Джульетты на втором уровне с французскими дверями или раздвижными дверями, чтобы, когда они открыты, комната была балконом. Это также делает комнату больше, если в любом направлении есть тихое место.
Если это дом для одного человека, вы можете сделать там единственную ванную комнату наверху, одну большую спальню и небольшой кабинет. Больше мансардных окон наверху и парапет высотой 36 дюймов на крыше для будущего частного открытого пространства.
Дом 50 кв.м в Сеуле от OBBA — urdesignmag
Согласно данным переписи населения Сеульского института за 2015 год, средняя площадь дома молодоженов составляет 72,7 кв.м, из них 44,6% проживают в многоквартирном доме и / или многоцелевом коммерческом / типология жилого дома.Две трети пар молодоженов сдают в аренду на основе залога, и 49,3% этих пар платят от 100000000 до 200000000 вон. Стандартизированная типология и завышенные цены на жилье ограничивают параметр выбора при выборе дома для молодой пары.
Вскоре клиенты должны были пожениться. Они попросили OBBA — Office for Beyond Boundaries Architecture построить дом, основываясь на их фундаментальных вопросах о том, как начать совместную жизнь, удовлетворяя базовые требования. Хотели в нем скромной, но изобильной жизни.
Проект возник из поиска реалистичного решения для молодоженов переехать в альтернативное место жительства, отличное от многоквартирного дома или многоквартирного дома. Это место находится у входа в Гэмимаул, одну из немногих оставшихся колоний сборщиков тряпья в Сеуле, Содэмун-ку, Хунджэдон.
Стены этого старого городка из трущоб украшены картинами, пытающимися украсить местность, и это излучает таинственную атмосферу.Две смежные дороги — шириной 8 м на северо-восточной стороне и 3 м шириной на северо-западе — пересекаются под углом, а юго-западная и юго-восточная стороны участка представляют собой узкие переулки только для пешеходов.
Участок крутой, перепад высот 4м. ОББА сосредоточился на трех основных проблемах. Один из них заключался в том, чтобы найти способы прочитать и подойти к плохому состоянию земли, доступной для покупки, в рамках ограниченного бюджета. Другой заключался в том, чтобы интегрировать дом в пейзаж красочными настенными росписями, которые контрастируют с существующим однообразным городком из трущоб.
Наконец, проблема заключалась в том, чтобы вызвать небольшую, но достаточную пространственность в рамках скромного бюджета строительства. Было важно сохранить и максимально использовать состояние участка, чтобы упростить процесс строительства.
Дом представляет собой двухэтажное здание, которое содержит минимум программ, запрашиваемых у клиента. Площадь этажа менее 50 кв.м, максимальная площадь, не требующая места для парковки. Поскольку участок окружен дорогами, ведущими к северу, ОББА спроектировал вход в здание между первым и вторым этажами.Для эффективного передвижения и программного расположения дома они разместили гостиную и кухню на втором этаже, чтобы получить достаточное естественное освещение и прекрасный вид, поскольку пара проводит большую часть своего времени в этих помещениях.
Некоторые частные комнаты и ванные комнаты находятся на первом этаже. Дом небольшой, но каждый уголок и уголок пространства используются рационально. На чердаке дома находится кабинет или кинозал, а лестница, ведущая на чердак, выполняет функцию книжных полок.Между гостиной и кухней существует разница в уровнях, поэтому кухонный стол расширяется до обеденного стола с сиденьями в гостиной.
все изображения © Kyungsub Shin
Комментарии
комментария
Дизайн дома площадью 40 квадратных метров Филиппины
планов домов до 50 квадратных метров: 26 других полезных примеров из
2 января 20, 2019 планы домов до 50 квадратных метров: еще 26 полезных примеров маломасштабной жизни, следуя нашему популярному выбору домов площадью менее 100 квадратных метров, мы ушли один лучше: от 40 до 49 квадратных метров
Получить ценустроит дешевый дом на филиппинах
2 августа 2015 строит недорогой дом на филиппинах.
стены общей площадью 140 квадратных метров. построил каркасные дома: каркасные дома по проектам .. и сколько стоит строительство дома от 40кв.м до 3-го.
2 супер крошечных дома размером менее 30 квадратных метров (включая
2 каждый час на площади менее 40 квадратных метров, но они делают вертикальное строительство определенно целесообразным для этой шикарной современной квартиры.
Get Price100 квадратных метров цена лота
2100 квадратных метров дизайн дома Филиппины современный дизайн дома.Homeline Value Pack 100 А, 20 мест, 40 цепей, трансформируемый главный выключатель для помещений
Получить ценупроектов домов и планов домов филиппины — главная страница facebook
Проекты домов и планы домов филиппины. 35806 лайков · 82 об этом говорят. консультант по строительству для филиппинцев среднего и низшего класса.
Получить ценуСтоимость строительства дома на Филиппинах на высшем уровне
2 на Филиппинах. стоимость квадратного метра на филиппинах. этот процесс требует, чтобы план был подготовлен, прежде чем можно будет приступить к оценке.
Получить цену50 идей дизайна небольших квартир-студий (2019) — современные, крошечные
2 ноября 2017 г. мы создали этот полный список из 50 небольших квартир-студий с дизайном большей части ограниченного пространства этой квартиры площадью 24 кв. метровая квартира. . 40. Хотите узнать о цветовой гамме? белый и дерево — всегда выигрышная комбинация.
Получить цену31 вдохновляющий антресоль для поднятия духа и увеличения площади
2 ноя 12, 2013 эта небольшая квартира площадью 29 квадратных метров в польше включает антресольный этаж, расширяя жилые помещения за счет большой площади спальных мест.
Получить ценусколько стоит построить дом на Филиппинах
2… без информации о вашем участке и требованиях к домашнему дизайну; Дома с вафельной коробкой на самом деле стоят «полцены», так как дом 40 квадратных метров имеет 40 квадратных метров.
Жилье для малоимущих в санта-розе, филиппины — организация объединенных наций
2предложения по дизайну для улучшения естественной вентиляции и экономичного строительства 40. Чертежные документы предпроектные. . рисунок 22: схема а — поэтажная планировка квартиры для госслужащих [33 кв.м].. застройка занимает общую площадь 22,14
Получить ценувопросы и ответы: сколько мне нужно, чтобы построить дом? lamudi
2 июня 2019 г., хорошо знать, сколько денег вам нужно, чтобы построить дом в компании best langdon & seah philippines Inc., стоимость строительства дома по-прежнему составляет от 25 700 до 31 000 песо за квадрат. метр. архитектурный план — план, который будет
Получить ценуДизайн интерьера дома на 100 квадратных метров
Дизайн бунгало на 2100 квадратных метров Филиппины — семья в доме в настоящее время находится в размере 40 квадратных метров, план этажа дома составлял пиксели.
Get Pricefile talk: national capital region — wikipedia
Роль 2манилы в революции отмечена флагом филиппин, где город Кесон означал прекращение грандиозного плана Бёрнхэма в Маниле, на средства .. животные из различных 90 видов, включая 40-летнего слона, мали. .. метро
Получить ценубунгало площадью 40 кв.м, преобразованное в двухэтажный дом — настоящая жизнь
2 декабря 2014 г. муж и жена, оба архитектора, бойонг и Ровена Акино спроектировали дом, в котором преобладают свет и воздух.
Get PriceДизайн дома на 100 квадратных метров филиппины
2 20 мая 2019 года красивый 2-этажный дом с элегантным великолепным дизайном интерьера небольшой гостиной квартиры площадью 40 квадратных метров является одной из жизненно важных частей бесплатной оценки
Get Priceмалых бунгало — в тренде
2philippine bungalow house фото и проекты и сколько стоит за квадратный метр. предполагаемая площадь дома: 39 кв.м. Размер участка: 103 кв.м. около 40 вечных черных шкафов для вашей кухни! черный считается
Получить ценуУчасток 40 кв.
м с модельным домом — youtube2 июля 2009 г. Участок 40 кв.м с модельным домом стоимость квадратного метра — Филиппины — poste ep.04 — продолжительность: дизайн робесона 5054072 просмотра.
Получить ценуПланы домов-бунгало и планы этажей — houseplans.com
2 Обычно простые и квадратные по форме планы домов-бунгало (часто называемые планами домов-бунгало мастера) идеальны для небольших участков. для заказа звоните 1-800-913-2350. 1529 кв.м, 3 спальни, 2 ванные. 1 этаж, ширина 40 футов, глубина 57 футов
Получить цену20 спален площадью менее шести квадратных метров — homify
2 ноября 2017 г. Каждая из комнат в доме обладает неповторимым шармом.Если у вас небольшая комната, тогда вам нужно объединить все обычные прелести, есть множество рекомендаций по украшению комнаты площадью 6 квадратных метров, которая +385, +386, +387, +3
Получить ценуультра-крошечный дом дизайн: 4 интерьера до 40 кв.м.
2множественная простая жилая. а потом вот это. представленные здесь четыре дома не просто маленькие. они крошечные. каждый час занимает менее 40 квадратных метров (430
Получить цену200 кв.м. Дизайн дома — game night live
2 решение, как создать квартиру площадью 40 квадратных метров, удобные планы дома под 50 филиппинских одноэтажных домов 38-56 кв.м с самого начала этапы
Получить ценуАлиса план этажа таунхауса (площадь участка: 40 кв.м) Ланкастер новый город
2sophie lancaster новый город кавит филиппинские дома, участки для продажи, молодая семья ,.больше информации . план дома в викторианском стиле 65268, общая жилая площадь: 1001 кв. футов, план дизайна двух домов 10×20 метров — домашний дизайн с планом поиска
Получить ценуКвартира площадью 40 квадратных метров с продуманным и просторным интерьером от
10 декабря 2012 г. Размер дома или квартиры очень важен, когда вы решите приобрести, например, этот лофт площадью 40 квадратных метров отличается скромными размерами, но дизайн интерьера был разработан польской фирмой Pressenter Design.
10 привлекательных домов до 150 квадратных метров! — homify.ph
2мар 23, 2017, если вы думаете, что удивительные дома можно построить только на больших площадях, вы ошибаетесь. великие вещи приходят в маленьких упаковках. и эти 10
Получить цену12 лучших изображений плана дома площадью 50 кв. м в 2017 г. макеты домов, крошечные
Сборные деревянные дома на 2 плана: план деревянного дома 40 треска 2002 г. 639202822628 · Альдеа-дель-соль площадью 50 кв. Филиппины 32 × 50 футов / 148 квадратных метров план дома, свободные планы дома, кв.
Получить ценупланы дома на Филиппинах проекты домов строительство на Филиппинах
2 Стоимость строительства дома на Филиппинах в настоящее время колеблется от 15000 до 20000 за квадратный метр общей площади дома (исключая
Получить ценуПроект дома на 150 квадратных метров) на филиппинах — wpc decking
план дома площадью 2100 кв. м. 2 этажа — современный дом, 300 кв. м. дизайн дома 150 кв. плюс 50 кв.м
Получить ценупланов дома — выберите дом по плану от djs architecture
2выберите план дома по плану этажа.чтобы быстро найти подходящий дом, используйте кнопки фильтра для отображения желаемых планов этажей. Вы можете быстро получить представление о размере и форме.
Получить ценуДизайн дома на 100 квадратных метров, Филиппины
Дом на 23 дороги от Naf Architect & Design. красивый 2-х этажный дом с элегантным великолепным дизайном интерьера небольшой квартиры 40 кв.м. гостиная — одна из
Узнать цену50 кв.м Bungalow House Design Филиппины
50 кв.м Bungalow House Design Philippines — проживание в доме в настоящее время в идеальном состоянии.Как дешево, дом с небольшим участком земли может сделать жителей креативными, создавая уютную атмосферу и развлекаясь с разнообразным дизайном. В настоящее время вы ищете рекомендации по оформлению дома, элегантному и современному, мы даем картину. Но дело в том, что дом — это не такая уж простая вещь, создать дом хорошо, вам нужно много средств, плюс цена земли в городских районах становится дороже, потому что земля сужается.
Кроме того, в последнее время резко выросли цены на сырье, которое также пользуется популярностью.Уже определенно стоимость довольно велика, поэтому построить большой дом, который хорош, определенно будет немного сложно
Бунгало 50 кв.м. Дизайн дома Филиппины
Таким образом, администратор представит обзор дизайна дома. Потому что в дополнение к комфорту последний дизайн будет соответствовать тому, что вы участвуете во время разработки. Что ж, вот 50 квадратных метров Bungalow House Design Philippines , которые мы могли бы собрать с различных сайтов:50 Sqm Bungalow House Design Philippines
Планы дизайна дома 50 квадратных метров Лот YouTube через YouTube.comДизайн дома-бунгало 50 кв. м Филиппины YouTube через youtube.com
Дизайн дома 50 кв. м Филиппины YouTube через youtube.com
Дизайн дома-бунгало 50 кв. м Филиппины YouTube через youtube.com
Жилье на Филиппинах Веб-сайт Teoalida via teoalida.com
Проект строительства дома подразделения Монте-Роза в Хибао Ан через lblapuzarchitectsandbuilders.com
Дизайн дома площадью 100 квадратных метров Филиппины YouTube через YouTube.com
Небольшое современное бунгало Дизайн дома 133 кв. метра 1431 кв. через youtube.com
Дизайн интерьера Очаровательное современное бунгало Внешний вид дома через pinterest.com
Дизайн дома 70 кв. м Филиппины YouTube через youtube.com
Возвышенное бунгало Дизайн дома Филиппины Архивы Домашняя красота через followchristinascamera.com
Дизайн небольших современных домов и планы этажей Филиппины Современный дом через zionstar.net
НАШИ ТОП 25 ВСЕГДА ЛЮБИМЫЕ КРАСИВЫЕ ДИЗАЙНЫ НЕБОЛЬШИХ ДОМОВ via jbsolis.com
Прекрасный лучший дизайн дома для участка площадью 100 квадратных метров Fotohousenet via fotohouse.net
Прекрасный лучший дизайн дома для участка площадью 100 квадратных метров Fotohousenet via fotohouse.
net Гениальные идеи дизайна 6 Интерьер дома площадью 50 квадратных метров Филиппины via homeca .me
Проекты домов и планы этажей Филиппины Бунгало Тип YouTube через youtube.com
Дизайн дома 60 кв.м Филиппины YouTube через youtube.com
Дизайн бунгало 3d Планы этажей и высоты 200 квадратных метров через youtube.com
General Trias через synergyhomes.weebly.com
Дизайн бунгало площадью 50 кв.м Филиппины YouTube через youtube.com
Дизайн дома площадью 90 квадратных метров Филиппины YouTube через youtube.com
10 лучших проектов домов для участков площадью 60 кв.м. Изображения На Pinterest House via pinterest.com
50 3D-ПЛАНОВ ЭТАЖА РАЗМЕЩЕНИЕ ДИЗАЙНА ДВУХКОМНАТНОГО ДОМА ИЛИ КВАРТИРЫ via jbsolis.com
НА ФОТОГРАФИЯХ OFW построил свой дом мечты P500K — маленький и все же через jbsolis.com
Mulan House And Lot 2-х этажный отдельно стоящий дом Площадь участка 120 via pinterest.com
Philippine Dream House Design 2013 via dreamhousedesignphilippines.blogspot.com
50SQM Я ЛЮБЛЮ ЭТО BEBI YouTube через youtube.com
33 КРАСИВЫЙ 2-Х ЭТАЖНЫЙ ДОМ ФОТО via jbsolis.com
НА ФОТОГРАФИЯХ OFW построил свой дом мечты P500K Маленький, но все же через jbsolis.com
Проект строительства дома подразделения Monte Rosa в Хибао, , через lblapuzarchitectsandbuilders.com
50 3D ПЛАНОВ ЭТАЖА РАЗМЕЩЕНИЕ ДИЗАЙНОВ ДОМА С 2 СПАЛЬНЯМИ ИЛИ через bahayofw.com
Красный Крест 1jpg 1230647 Дом на Филиппинах Pinterest через pinterest.com
Дизайн маленькой квартиры 60 кв.м с интересным планом этажа YouTube через youtube. com
Дизайн бунгало 100 кв.м. Филиппины YouTube через youtube.com
Дизайн небольших домов до 50 квадратных метров via home-designing.com
30 КРАСИВЫЕ ФОТОГРАФИИ 2-ЭТАЖНОГО ДОМА Bahay OFW via bahayofw.
com НА ФОТОГРАФИЯХ OFW построил свой дом мечты P500K, маленький и все же через jbsolis.com
the
Дизайн дома-бунгало 50 кв.м Филиппины
Надеюсь, то, что мы описали выше, может быть полезно для вас, ребята, все любители Дом-бунгало площадью 50 кв.м. Дизайн Philippines , чтобы получить вдохновение updetnya, создать мелаксанаакан модификацию своего любимого мотора. Так что спасибо тебе.Дизайн дома-бунгало площадью 50 кв.м, Филиппины
Не забудьте также прочитать последние статьи от журнала «Мы, проект бунгало площадью 50 кв.м, Филиппины».Пусть все статьи, которые мы даем, полезны для всех вас.Проект дома 50 кв м
Проект дома 50 кв м التجاوز إلى المحتوى 3 квартиры в современном стиле до 50 квадратных метров (включая поэтажные планы) | Планы квартир, Планы квартир, Дизайн квартирИдеи плана дома до 50 кв.M.THOUGHTSKOTOPin о планах домов и мебели Смелый декор в небольших помещениях: 3 дома площадью менее 50 квадратных метров | Планы этажей однокомнатной квартиры, смелый декор, планировка квартиры 50 кв.м. Дизайн дома 2 этажа Филиппины — YouTube 2 этажа 50 кв.м. Дизайн интерьера дома Филиппины — ФОТОГРАФИЯ Дизайн небольшого дома (50 кв.м.) — YouTube Планы дизайна эпического дома 50 квадратных метров — Youtube в 50 Дизайн Плана Дома Кв. М. — Идеи Поколение Дома Дизайн Небольшого Дома (50 Кв. М.) — YouTube4 Симпатичные и Стильные Пространства до 50 Кв. 3D-приложение Home Design — YouTubeОчень стильные семейные двухуровневые апартаменты площадью 50 квадратных метров — Stylish EveДизайн двухэтажного дома площадью 50 квадратных метров на ФилиппинахПрекрасный дизайн дома с 2 комнатами — Дизайн дома 2018 с проектом плана дома площадью 50 кв.м — Идеи Поколение дома Дизайн дома-бунгало площадью 50 кв.м Филиппины | Дизайн интерьераСовременный дизайн двухэтажного дома площадью 50 кв.



почта:
Добавить комментарий