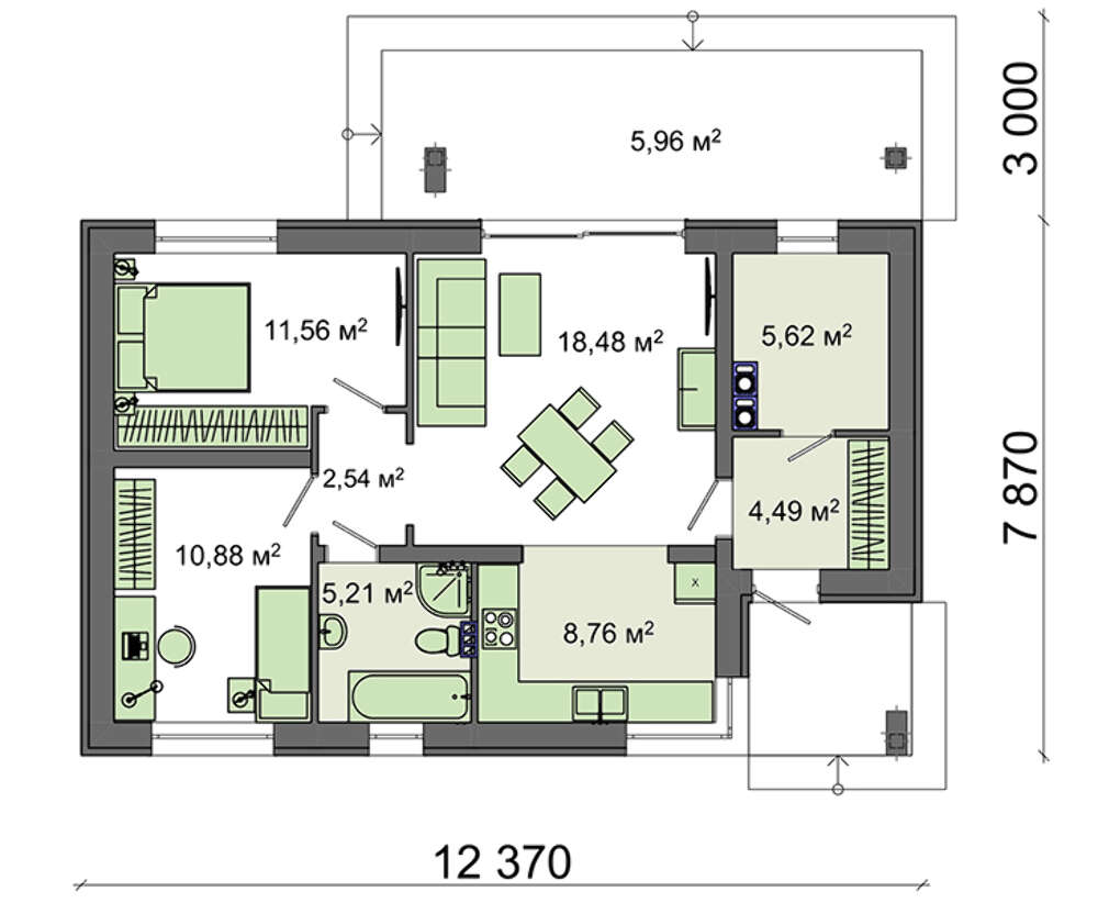
Планировка дома 9 на 10 одноэтажный: Проект дома 9 на 10 одноэтажный с отличной планировкой
| Комплектации каркасного дома | «Силовой каркас» | «Без отделки» | «С отделкой (Зимний)» |
| Фундамент | Не входит в стоимость дома, рассчитывается индивидуально, в зависимости от пожеланий Клиента и планировки проекта. | ||
| Высота помещений | Высота 1 этажа — 2,5 м, высота 2 этажа — 2,4 м | ||
| Толщина каркаса | 150 мм | ||
| Обвязка дома (Двойная) | 1 ряд — брус 150х150 мм, 2 ряд — доска 40х150 мм | ||
| Лаги первого этажа | Доска 40х150 мм (шаг 59 см) | ||
| Черновой пол | — | — | Обрезная доска 20х100 |
| Чистовой пол | — | — | Шпунтованная доска, толщиной 36 мм, принудительной сушки |
| Наружные стены дома 1 этажа | Доска 40х150 мм (шаг 59 см) | ||
| Перегородки 1 этажа | Доска 40х100 мм (шаг 59 см) | ||
| Межэтажное перекрытие | Доска 40х150 мм (шаг 59 см) | ||
| Каркас фронтонов | Доска 40х150 мм (шаг 59 см) | ||
| Стропила | Доска 40х200 мм (шаг 59 см) | ||
| Наружные стены 2 этажа (при наличии) | Доска 40х150 мм (шаг 59 см) | ||
| Перегородки 2 этажа | Доска 40х100 мм (шаг 59 см) | ||
| Подкровельная обрешетка | Доска 20х100 мм (шаг не более 30-35 мм) | ||
| Вентиляционная контррейка | Рейка 20х50 мм | ||
| Подкровельная пленка | Мембранная пленка Изоспан АМ | ||
| Вентилируемый фасад дома | — | Рейка 20х50 мм | |
| Ветро-влагозащита наружных стен | — | Мембранная пленка Ондутис А | |
| Внешняя отделка | — | Имитация бруса 20х135 мм, сорт В, камерной сушки | |
| Пароизоляция | — | — | Мембранная пленка Ондутис В |
| Внутренняя отделка | — | — | Стены, перегородки — вагонка; потолок — вагонка (вагонка сорт В, камерной сушки) |
| Утепление: Пол 1 этажа | — | — | Rockwool Лайтс Баттс 150 мм |
| Утепление: Внешний контур дома | — | — | Rockwool Лайтс Баттс 150 мм |
| Потолок мансардного этажа | — | — | Rockwool Лайтс Баттс 200 мм |
| Межэтажное перекрытие | — | — | Rockwol Лайт Баттс 150 мм |
| Перегородки 1 и 2 этажей | — | — | Rockwool Лайт Баттс 100 мм |
| Кровля | Волнистые листы Ондулин (цвет: красный, коричневый, зеленый) | ||
| Поднебесники | — | Имитация бруса 20х135 мм, ширина — 40 см | |
| Окна | — | Окна ПВХ | |
| Входная дверь | — | Металлическая, производство Россия | |
| Межкомнатные двери | — | — | Деревянные, филенчатые |
| Лестница на второй этаж | — | — | Тетива — строганный брус 100х150 мм, ступени — 30х200 мм, поручень — деревянный фигурный, балясины — точеные фигурные |
Проект дома 9 на 10 одноэтажный, фото, чертежи
Выбирая проекты для загородного дома, в первую очередь следует определиться с его этажностью.
От этого параметра зависят и финансовые, и временные затраты на строительство, и функциональность постройки. А выбирается он не только по предпочтениям владельца, но и по размерам территории. Небольшой участок требует возведения 2-х этажного здания. А владелец просторного может позволить себе заказ проекта одноэтажного дома 9 на 10 метров.
Достоинства проекта
Особенности проектирования и строительства одноэтажных зданий заключаются в повышении скорости ремонтных работ и снижении затрат по сравнению с многоэтажными постройками. При этом они намного лучше вписываются в природный ландшафт. А размеры в плане 9 х 10 м обеспечивают ещё и десятки различных вариантов планировки, давая возможность получить две, три или четыре жилых комнаты, в зависимости от состава семьи.
К преимуществам, которыми обладают проекты таких домов, можно отнести:
- возможность сооружения упрощённого фундамента, на единицу площади которого будет приходиться меньше веса, чем на такую же часть многоэтажного здания;
- отсутствие необходимости в усилении несущих стен, что расширяет ассортимент подходящих для строительства материалов;
- более простую разводку инженерных сетей и коммуникаций.

Особенно это касается системы отопления, которая в таком доме может быть не только принудительной, но и гравитационной, и водоснабжения, для которого требуется меньший напор.
Для таких домов не предусматриваются лестничные пролёты (кроме вариантов с мансардным этажом). А это обеспечивает не только сокращение расходов на сооружение лестниц, но и повышение безопасности проживающих здесь детей и пожилых людей. Кроме того, на первом этаже освобождается дополнительная площадь, которая могла бы быть занята пролётом.
Особенности строительства и организации пространства
Одноэтажные здания 10 на 9 метров обладают и рядом недостатков. К ним относят трудности планировки, которая должна быть такой, чтобы в доме получилось как можно меньше проходных комнат. В то же время желательно обойтись и без большого количества коридоров, уменьшающих жилую площадь.
Одним из основных нюансов, который играет роль в выборе подходящего варианта, является соответствие помещений требованиям проживающих в доме людей. Например, для одной семьи из 4–5 человек вполне допускается объединение гостиной и кухни в одно общее пространство для отдыха. А детскую комнату желательно располагать с южной стороны здания, для создания в ней более комфортного микроклимата с меньшими затратами на отопление. Подходят размеры домов 9 х 10 м и для двух небольших домохозяйств – например, для родителей и для семьи одного взрослого ребёнка. Хотя в этом случае желательно увеличить пространство за счёт мансардного этажа.
К важным моментам, которые требуется учитывать при сооружении большого одноэтажного здания, относят большие затраты на кровлю. Размеры крыши будут примерно вдвое большими по сравнению с аналогичным по площади двухэтажным домом.
Интересные варианты
Ассортимент планировок для здания размером 9 на 10 м достаточно большой для того чтобы подобрать проекты домов, подходящие каждому. Среди них стоит выделить такие популярные варианты как:
- жилплощадь с двумя спальнями и размещённой в здании котельной. Одна из жилых комнат при этом вполне может быть и детской;
- планировка с двумя большими спальнями или тремя маленькими;
- дома с одной большой спальней и огромной гостиной и кухней на первом этаже и ещё одной-двумя жилыми комнатами в мансарде.
Планировка таких домов позволяет заменить достаточно большую трёхкомнатную квартиру. Причём, в отличие от типовых расположений комнат в многоэтажной застройке, проекты позволяют получить больше свободы действий ещё на этапе планирования – без необходимости проведения капремонтов и сноса перегородок.
При желании, в планировку можно добавить и кладовую, и кабинет, и гардероб.
А размещать их можно не только на небольших участках, но и на территории, размеры которой ненамного превышают параметры самого здания. И, хотя такое решение может привести к уменьшению приусадебного участка (особенно, если рядом с основным зданием пристроить гараж на 1–2 машины), вариант всё равно окажется более выгодным и удобным по сравнению с двухэтажным домом той же площади.
Дом 9 на 10 — современные проекты и необычные решения (110 красивых фото)
Всем известная пословица из давних времен гласит о трёх составляющих — вырастить сына, посадить дерево и построить дом. Треть из этого понятно как исполнить, но о каком же доме идет речь в пословице? Безусловно иметь свой обитель, где приятно находится в окружении семьи и детей, куда приятно возвращаться после работы цель каждого хозяина.
Проекты небольших жилищ, площадью до 100 квадратных метров отлично подойдут для владельцев малого участка земли, а также при средних финансовых доходах. Как правило, в таких домиках отлично чувствует себя небольшая семья из 3-4 человек.
Оглавление статьи:
Особенности одноэтажных домов
Конструируя жилье необходимо заранее продумать этажность будущего здания, так как от этого на прямую будет зависеть финансовая часть, выделенная на строительство, а также функциональность и эксплуатация дома.
Архитектурные проекты одноэтажных домов 9 на 10 всё чаще становятся востребованными в частных районах города или пригороде, за счёт своих компактных габаритов и невысокой стоимости.
Рассмотрим главные аспекты строений с одним этажом:
- значительная экономия на строительных материалах, как на возведении стен так и на фундаменте, а это самая дорогая часть при застройке. Один этаж, а стало быть меньше нагрузка, соответственно нет необходимости в мощном основании, как, например, в двухэтажных архитектурных формах;
- сбережение средств ощутимо и при конструировании систем отопления и других коммуникаций;
- одноэтажный особняк не предусматривает лестниц, что в свою очередь не занимает полезное пространство и снижает к нулю количество травматизма.
Все комнаты находятся на одной плоскости, эффективно функционирует каждый уголок; - часто не всегда учитывается тот факт, что при такой планировке, дом создает ощущение единства и сплоченности в семье. А это, согласитесь, немаловажный психологический фактор в современном мире.
Незначительные, но всё же неудобные моменты в одноэтажном частном доме 9х10 также имеются. Основной минус — это затрата при монтаже крыши, потому что площадь такой кровли будет больше по сравнению с двухэтажными или мансардными домами.
Выгодно ли строить дом с мансардой?
Слово «мансарда» походит от имени французского архитектора Ф. Мансара, который первый начал использовать чердачное помещение для хозяйственных нужд.
Главная особенность таких строений состоит в том, что комнаты имеют неправильную форму благодаря наклону потолков. При этом, такая планировка дома совсем не мешает современному дизайну создать настоящий шедевр в вашем особняке, и стать его изюминкой.
Сейчас уже никого не удивить разнообразными замыслами домов с мансардой. Но раньше чердачное помещение использовалось для проживания небогатых людей. Комнаты такого типа были не удобны для жильцов, потому что не хранили тепло зимой, а летом было слишком душно.
Современные технологии строительства существенно изменились и строения такого типа смело можно назвать элитным жильем. Такие проекты также очень популярны в домах небольшой площади до ста квадратов, которые в свою очередь позволят иметь дополнительное полезное пространство.
В таком случае дом 9 на 10 с мансардой — это максимально выгодное решение, имеющее ряд преимуществ:
- мансарда намного уменьшает нагрузку на опору, в сравнении с полноценным этажом;
- помещение многофункционально, запросто можно разместить несколько спален или место для игр, также удобно разделить дом на несколько зон — дневную и ночную;
- апартаменты легко отапливаются, за счёт срезанных потолков, которые ничуть не испортят дизайн помещения, а наоборот имеют широкий спектр вариантов исполнения;
- экономичен.
Не требуется большое количество дополнительных материалов при строительстве стен и отделочных работ, так как основная часть территории находится в чердачном помещении. К тому же мансарду можно достроить и позже имея уже завершённый одноэтажный дом;
Компактный и комфортный домик с мансардой создаст особый уют для вашей семьи. Удачно разместиться на небольшом участке, что распространено в современных условиях плотных городских застроек.
Как увеличить площадь, на небольшой территории земли?
Двухэтажный дом безусловно обеспечивает побольше полноценного пространства. Имея средний размер участка земли, разработать большой одноэтажный особняк — значит потерять ощутимое количество владения, которое можно использовать, например, для гаража, террасы или солидную часть двора.
Решением станет планировка дома в два этажа. Такая постройка будет выгодно смотреться, но это не единственные её преимущества.
Вы решили строить двухэтажный особняк, а значит получите следующие плюсы:
- заметная экономия на монтаже крыши, благодаря меньшей площади;
- есть четкое разделение на спальную и гостевую/рабочую зону на первом и втором этажах;
- размещать спальни на втором этаже удобно тем, что он всегда теплее первого.
На междуэтажном утеплении вы также экономите; - относительно фундамента, здесь, можно сказать 50 на 50. Большой костяк не требуется, но с другой стороны он должен быть достаточно мощным, чтобы выдержать несколько этажей.
Как и в любом проекте дома 9 на 10, полностью идеальным он быть также не может:
- два этажа — это конечно же наличие лестницы, которая забирает внушительное количество жилой площади;
- потребление средств на возведение стен неизбежно. К тому же их прочность важна, потому что нагрузка увеличивается;
- для комфортного проживания, специалисты рекомендуют предусмотреть санузел на втором ярусе, что добавляет определенные расходы.
В итоге, отметим, что строительство двухэтажного дома на небольшой территории — прежде всего экономия земельного участка.
Определившись с этажностью, дальше идёт вопрос по расстановке комнат и созданию плана. Подсмотреть идеи можно по многочисленным фото домов 9 на 10.
Не стоит забывать что, как показывает практика, без специального образования, куда труднее создать дизайн самому.
Ошибки при расчетах грозят нарушению процесса стройки. Пытаясь сэкономить на проекте, вы не только превысите материальные расходы, но и массу потраченного времени на исправление ошибок. Специалисты помогут рассчитать среднюю цену предстоящего строительства и максимально удовлетворят все индивидуальные предпочтения.
Фото домов 9 на 10
Вам понравилась статья?
готовые и типовые.
Красивые проекты домов 10 на 9: фото, каталог
Что нужно учитывать, перед тем как купить проект дома 10 на 9
Прежде, чем схема дома 10 на 9 будет реализована, нужно рассмотреть некоторые вопросы, которые дают возможность грамотно организовать и лучшим образом систематизировать процесс подбора готовой планировки проектов домов 10 на 9. Все эти вопросы важно учитывать до начала строительства, так как вносить изменения в планировки домов 10 на 9 после того как процесс запущен, обойдется значительно дороже по цене.
Итак, выбирая типовые планы проектов домов 10 на 9 необходимо смотреть на следующее:
1. Особенности земельного надела под застройку.
Выбирать земельный надел под строительство частного коттеджа еще до того как выбран сам проект. Это объясняется тем, что особенности участка могут диктовать некоторые ограничения как для образа жизни в доме и на участке, так и для самого дома.
Однако, можно поступить и по-другому: сначала выбрать дом 10 на 9, а после этого уже подбирать участок, который будет подходить под особенности проекта.
При этом важно помнить, что для дома с параметрами 10 на 9 подойдет участок любой формы, но его площадь не должна быть менее 4 соток.
2. Затраты на реализацию проекта.
Выбирая проект, по которому будет строиться коттедж 10 на 9, клиент, как правило, ориентируется на бюджет, которым он располагает. Ответить изначально, какова стоимость строительства дома под ключ нельзя, ведь на этот показатель влияет ряд факторов, среди которых технология строительства, материалы, регион застройки (расходы в зависимости от этого фактора могут увеличиваться в разы) и др. Точная смета может быть составлена лишь, когда уже выбран и участок, и проект дома. Но выбирая проект можно ориентироваться на проекты, условно разделенные на группы: дорогие и бюджетные. Как сделать это мы подробно написали здесь.
3. Этажность будущего жилого дома 10 на 9.
Выбирая количество этажей дома, нужно знать преимущества и недостатки каждого из решений:
Так, в одноэтажном доме в связи с отсутствием лестницы обеспечен свободный доступ ко всем помещениям в доме, и жизнь протекает в одной плоскости.
Однако, стоимость реализации проекта одноэтажного дома значительно дороже сравнительно с мансардным домом такой же площади. Объяснить это можно тем, что одноэтажный дом имеет большую площадь кровли и фундамента.
В мансардном доме зоны разделены на дневную и ночную (помещение мансарды). Такой дом характеризуется хорошими показателями теплосбережения. Очень удобен вариант мансардного дома для небольших участков. Недостатками дома с мансардой является наличие кровельных скосов, над обустройством которых нужно потрудиться, низкая аттиковая стена и необходимость дополнительного утепления крыши. Недостатки, которые связаны с особенностями кровельной конструкции, позволяет устранить индивидуально разработанный дизайн проектов домов 10 на 9.
Дом в два этажа обеспечивает распоряжение полноценным пространством обоих этажей. Но строительство такого дома обходится дороже мансардного дома с такой же площадью.
4. Планировка дома 10 на 9 с прогнозом на будущее.
Обычно застройщики выбирают планировку и определяются с тем, сколько и какого назначения помещений необходимо в доме, ориентируясь на потребности дня сегодняшнего.
При этом они не учитывают, что со временем могут потребоваться, дополнительные жилые комнаты. Поэтому об этом лучше позаботиться заранее и предусмотреть наличие комнаты, которая сейчас может использоваться как мастерская или кабинет, а в будущем послужит комнатой для родителей или детей, которые возможно будут жить с вами.
5. Возможность внесения изменений в проект.
Нередко застройщики хотят отказаться от проекта, который понравился больше всего, потому что в нем есть некоторые детали, не отвечающие его требованиям. Но не стоит этого делать, так как наши опытные проектировщики могут вносить изменения в проект, не нанося при этом ущерба надежности и прочности дома.
Архитектурные проекты частных домов с параметрами 10 на 9 являются достаточно популярными в 2018 году, поэтому наш каталог проектов домов 10 на 9 регулярно пополняется новыми и оригинальными проектами с информацией, детализирующей их (чертежи, эскизы, схемы, видео и др.).
Нужно сказать, что покупая в нашей компании проекты домов 10 на 9, фото которых размещены в этом разделе, клиент получает подробную проектную документацию, которая состоит из 5 разделов: состоящий из 3 частей инженерный раздел (водоснабжение, электроснабжение и схемы вентиляции и отопления), конструктивный и архитектурный.
Инженерный раздел доступен за дополнительную плату.
Пример проекта дома вы можете посмотреть ниже.
Пример проекта дома Z500 from Z500projects
Каждый проект нашей компании защищен авторским правом, что дает гарантию правовой безопасности при реализации проектов Z500. На сайте также мы поместили сертификат, который является подтверждением того, что компания Z500 — это официальный представитель международного архитектурного бюро Z500 Ltd.
| Основание | |
| Обвязочный ряд | Обрезной брус естественной влажности — 150х150мм (1 ряд). |
| Гидроизоляция | Рубероид — укладывается между фундаментом и обвязкой в 2 слоя |
| Лаги пола | Обрезной брус естественной влажности — 150х100мм с шагом 800мм |
| Черепные бруски | 40х50мм — крепятся к лагам для монтажа чернового пола |
| Черновые полы | Обрезная доска естественной влажности — 20х150мм |
| Сруб и крыша | |
| Сруб дома | Профилированный брус естественной влажности |
| Перегородки | Профилированный брус естественной влажности |
| Сборка сруба | На березовые нагеля – по акции |
| Соединение углов | В «тёплый угол» — по акции |
| Утеплитель | Межвенцовый уплотнитель – «Джут» |
| Балки потолка | Обрезная доска естественной влажности — 150х50мм с шагом 800мм |
| Высота потолка | 1-й этаж — 2. 45м (18 венцов бруса), 2-й (мансардный) этаж – 2.40м |
| Стропила | Обрезная доска естественной влажности — 150х50мм с шагом 800мм |
| Фронтоны | Каркасные из обрезной доски естественной влажности — 100х40мм, внешняя отделка – хвойная вагонка камерной сушки |
| Карнизные свесы | 500мм. Карнизы, поднебесники и углы дома — хвойная вагонка камерной сушки |
| Кровля | |
| Обрешетка | Обрезная доска естественной влажности — 20х150мм |
| Гидроизоляция | Подкровельная изоляционная пленка (гидробарьер) — «Ондулин RV100» |
| Кровля | «Ондулин» — цвет на выбор (красный, коричневый, зеленый) |
| Внутренняя отделка | |
| Чистовые полы | Шпунтованная половая доска камерной сушки – 36мм |
| Потолки | Хвойная вагонка камерной сушки |
| Отделка мансарды | Хвойная вагонка камерной сушки |
| Лестница | Одномаршевая, поворотная или двухмаршевая – по проекту. Отделка лестницы: стартовые столбы, перила – резные, балясины – точеные, ступени и тетива — строганные |
| Окна и двери | |
| Окна | Деревянные с двойным остеклением (с фурнитурой) |
| Межкомнатные двери | Деревянные филенчатые – 2000х800мм (с фурнитурой) |
| Входная дверь | Металлическая утепленная российского производства – по акции |
| Наличники | Строганная доска камерной сушки – 16х86мм |
| «Ройки» | Шиповка оконных и дверных проемов – по акции |
| Утепление | |
| Утепление | Минеральная вата «URSA» — 100мм (пол, потолок, мансардный этаж) |
| Изоляция | Пароизоляция — «Ондутис R70», влаго-ветрозащита – «Ондутис А100» |
| Прочее | |
| Антисептирование | «Неомид 430» — обвязка, лаги пола и черновой пол – по акции |
| Сборка на участке | Входит в стоимость |
| Фундамент | Не входит в стоимость Подробнее о фундаментах Подробнее |
| Бесплатная доставка | Москва – 100км от МКАД (далее – 80руб/км) Санкт-Петербург – 100км от КАД (далее – 80руб/км) Производство в Новгородской области — 500км (далее – 80руб/км) Точный расчет доставки до Вашего участка онлайн Доставка |
| Подробнее о технологии строительства Подробнее | |
Дом 9 на 10 — 115 фото актуальных идей оформления и украшения дома в 90 квадратных метров
К строительству дома нужно подходить максимально внимательно и ответственно.
Заранее определитесь, какой дом вы для себя хотите, на сколько этажей и какие архитектурные особенности в нём должны быть.
От всех этих параметров будет зависеть потраченная сумма денег, вложенные усилия, а также длительность его возведения.
Вашему вниманию представлены проекты домов 9 на 10 с одним и двумя этажами.
Содержимое обзора:
План
План строительства собственного дома можно воплотить в жизнь при помощи вашей фантазии. Это можно осуществить только если у вас есть определённые знания и опыт в этой сфере, если же нет, то обратитесь в специализированную строительную фирму, где опытные строители смогут воплотить все ваши задумки.
Любая конструкция предполагает определённый чертёж или схему, где указан размер фундамента, несущих стен и крыши.
Правильно подобранные материалы к схеме строительства позволят сделать ваш дом максимально комфортным.
Нюансы
Появление нюансов в каждой работе – это обычная практика.
Перед началом нужно знать, для кого будет построен дом?
Если для большой семьи, то лучше всего подойдёт двухэтажный дом 9 на 10 с множеством комнат и коридоров. Примите во внимание возможность пополнения семьи и нужд в большем пространстве.
Если жилище предназначено для маленькой семьи, то тогда нужен одноэтажный дом 9 на 10 с уютной террасой.
Также учитывайте следующие факторы:
- Климатические особенности местности
- Особенности ландшафта
- Возможные катаклизмы.
Достоинства одноэтажного дома
Давайте поближе рассмотрим достоинства и недостатки планировки дома 9 на 10 с одним этажом.
Одноэтажные дома, как нельзя лучше, подойдут семьям с маленькими детьми. Значительно уменьшается риск получения травм при падении на ступеньках.
Людям пожилого возраста также подойдут такие дома. Они будут тратить меньше сил на передвижение по дому, к тому же за ним будет легче следить и убирать.
Полностью исключается шум, издаваемый сверху.
Появляется возможность для воплощения большого количества дизайнерских решений и отделки потолка.
Недостатки одноэтажного дома
Но строители выделяют и несколько недостатков такого дома. Одними из таких будут:
Сложности с возведением фундамента, если площадь территории не большая.
Вы становитесь заложниками размера дома, и в таком случае вам придётся отказаться от идеи создания сада, огорода и места для летнего отдыха.
Стоимость возведения второго этажа с учётом всех возможных проблем может стоить сопоставимо со строительством одноэтажного дома.
Строительство при помощи пеноблока
В нашей стране довольно популярно решение возведение домов 9 на 10 из пеноблоков.
Пеноблок — долговечный материал, который практически не поддаётся воздействию на него климатических изменений (дождь, ветер, снег, сильные морозы).
При возникновении пожара, дом из такого материала практически не горит.
Если брать во внимание темпы строительства, то вы сможете выиграть много времени.
Самые смелые архитектурные планы легче воплотить пеноблоком, ведь он отлично поддаётся различным изменениям.
Из минусов возьмите во внимание:
- Усадку дома
- Большому количеству отделочных работ, которые потребуют больших финансовых вливаний и времени.
- Армирование бетона
- Нужно обращать внимание при строительстве на нагрузку пенобетона.
- Из-за не совсем эстетического внешнего вида, придётся осуществлять дополнительные отделочные работы фасада дома.
Отзывы
Подойдите к строительству дома ответственно. Прежде изучите все особенности строительства. Обратите внимание на местность для возведения фундамента.
Не лишним будет зайти на тематические сайты посвященные ремонту, строительству и почитать советы других людей.
Там вы всегда можете задать интересующий вас вопрос, где на него получите ответ.
Также там есть различные фото домов 9 на 10, внешний вид которых, поможет вам оформить ваш дом.
Заключение
В статье мы постарались обратить внимание на актуальные вопросы многих людей при строительстве домов, дать полезные советы для их осуществления.
Соблюдайте все правила строительства и тогда у вас будет надежный, тёплый и уютный дом, который станет вашим семейным гнездом.
Фото домов 9 на 10
Помогите проекту, поделитесь с друзьями 😉План одноэтажного дома: примеры функциональных планировок
ПОДЕЛИТЕСЬ
В СОЦСЕТЯХ
Подбирая проект для возведения коттеджа на загородном участке, в первую очередь, нужно определиться с этажностью здания. Этот нюанс оказывает непосредственное влияние на бюджет будущего строительства и функциональность жилья. В свою очередь, выбор этажности постройки зависит от площади участка. Небольшая территория под застройку накладывает некоторые ограничения на выбор типа здания, поэтому удачный план одноэтажного дома всегда придется к месту.
Благодаря грамотной планировке даже очень маленький одноэтажный дом может быть комфортным и уютным
План одноэтажного дома: достоинства и недостатки
Строительные работы по возведению одноэтажного здания отличаются массой преимуществ, ведь построить дом с одним этажом гораздо быстрее и легче, чем с двумя и более.
Этот тип застройки открывает широкие возможности для разработки дизайна, его исполнения, а также обеспечивает надежность и безопасность готового здания. Но одноэтажные коттеджи не смогут решить проблему с застройкой загородных участков, владельцы которых имеют большие семьи. В этом случае стоит обратить внимание на двух- и трехэтажные сооружения.
Вариант планировки одноэтажного дома с маленькой площадью
Одноэтажные постройки популярны не только благодаря небольшим габаритам и низким затратам на строительство. Они отлично вписываются в природный ландшафт. Тем не менее над распределением внутренних площадей следует задуматься, так как здание в итоге должно полностью отвечать потребностям всех жильцов. Для этого стоит ознакомиться с фото, планами одноэтажных домов, а также их характеристиками. Это позволит вам создать более полную картину понимания того, как разрабатываются проекты зданий.
Статья по теме:
Фото планировки одноэтажного дома 10 на 10. Варианты увеличения жилой площади. Грамотный проект дома и советы по рационализации свободного пространства. Фото планировок одноэтажных домов 8 на 10 и 10 на 12.
Достоинства проектов с одним этажом
Как и любой тип постройки, одноэтажное сооружение обладает и преимуществами, и недостатками. Оптимальным считается тот вариант, который располагает большим количеством достоинств, чем минусов.
Достоинства проектов с малой этажностью:
- фундаментное основание является важнейшей частью дома. При этом стоимость его строительства очень высока в сравнении с расценками на оставшиеся виды работ. В большинстве случаев одноэтажные постройки имеют упрощенный вариант фундамента. Такое основание не рассчитано выдерживать вес нескольких этажей, поэтому может иметь простое исполнение и облегченную конструкцию. Что, в свою очередь, не налагает ограничений в отношении типа грунта на территории, отведенной под застройку;
Одноэтажный дом со спальными комнатами в мансарде
- при строительстве стен можно существенно сэкономить, поскольку их конструкции не требуют дополнительного усиления, так как отсутствует второй этаж. Выбор строительных материалов в этом случае также практически ничем не ограничивается;
- инженерия в одноэтажных зданиях очень проста. Нет необходимости выполнять сложную разводку коммуникаций, системы отопления и пр. с расчетом на особые эксплуатационные условия дома. Как это бывает, например, с домами, где есть такой архитектурный элемент, как второй свет или же имеется много этажей. Монтажные работы максимально упрощены и обходятся очень дешево;
- благодаря простой конструкции строительство дома не требует больших затрат, а все работы производятся в кратчайшие сроки;
3D-проект одноэтажного дома с мансардой и гаражом
- проекты с одним этажом не включают в себя наличие лестничной конструкции, за исключением планировок с мансардой. Это позволяет отказаться от возведения дорогостоящей и сложной лестницы, более рационально распорядившись внутренними жилыми площадями.
Обратите внимание! Немаловажное значение при выборе планировки имеет психологический фактор. Для семей, в которых есть дети, очень важен аспект единения и оптимального размещения жилых комнат по отношению одна к другой.
Недостатки одноэтажных зданий и особенности организации пространства
Одноэтажные постройки имеют и недостатки, которых не так уж и много:
- сооружения с большой площадью и одним этажом создают значительные трудности на этапе проектирования. В таких условиях при составлении планировки нужно следить за тем, чтобы проходных комнат было как можно меньше. Особенно это требование касается комнат отдыха – спален, гостевых и детских. От этого будет зависеть комфорт нахождения в них;
Планировка одноэтажного дома площадью 150 кв м, рассчитанного на проживание большой семьи
- постройки с одним этажом и большими габаритами требуют значительных затрат на этапе организации крыши. Впоследствии кровля с такими габаритами будет чаще нуждаться в проведении планового ремонта и обновления, который станет причиной новых затрат;
- здания с маленькими габаритами ограничивают размеры внутренних помещений. На этапе проектирования придется создавать такую планировку, которая будет одновременно отвечать потребностям всех жильцов и соответствовать нормативам строительства и санитарии.
Терраса с зоной отдыха, пристроенная к одноэтажному дому
Фото проектов одноэтажных домов и способы увеличения пространства
С учетом того, что одноэтажные здания чаще всего ограничены в размерах, многие владельцы загородных участков стремятся любыми доступными способами увеличить внутреннее пространство.
Способы увеличения площади:
- обустройство цокольного этажа, где можно разместить не только жилые комнаты, но и помещения бильярдной, спортивного зала или кладовой;
- строительство мансардной крыши, которая может быть использована для размещения гостевой, спальни или детской комнаты;
Цокольный, первый и мансардный этаж небольшого по площади частного дома
Обратите внимание! Стоимость строительства мансардного этажа лишь незначительно превышает затраты, которые влечет за собой организация крыши с двумя скатами. Поэтому мансарду можно рассматривать, как выгодное вложение средств.
- монтаж крыши с одним скатом с целью дальнейшей организации комнаты-чердака или площадки навесного типа;
- использование плоской крыши для создания дополнительной зоны отдыха с цветником или патио;
- организация гаража или мастерской.
Все эти элементы позволят разнообразить планировку жилого здания и сделать его более интересным с архитектурной и функциональной точки зрения.
Устройство мансарды – эффективный способ увеличения внутреннего пространства дома
План одноэтажного дома 8 на 8 метров с цоколем
Такой элемент здания, как цоколь нельзя рассматривать в качестве полноценного этажа. Поэтому он не оказывает влияния на номинальное количество этажей в доме. Но если подземную зону сооружения облагородить и грамотно обустроить, площадь цоколя можно смело добавить к общему размеру здания.
Проект одноэтажного сооружения с цоколем не предусматривает размещение жилых комнат на этом участке. Подобные трудности обуславливаются тем, что здесь нет возможности организовать естественное освещение в необходимом количестве и нормальный уровень вентиляции.
План цоколя одноэтажного дома 8 на 8 м: 1 — коридор, 2 и 3 — нежилые помещения (бильярдная, котельная, прачечная, спортзал и т.д.)
Тем не менее вы всегда можете перенести в нижнюю часть постройки все помещения, имеющие хозяйственное и техническое назначение. Даже небольшое здание размером 8х8 м сможет обеспечить семью дополнительным пространством для размещения множества вещей и домашней техники на цокольном этаже.
Полезный совет! Используйте цоколь для установки системы водоснабжения и отопления (монтаж котла), организации прачечной, зоны для гладильной и сушилки, хранения консервации и овощей (вместо погреба). Сюда можно перенести подсобные помещения, кладовку или чулан.
Трехмерный проект дома 8х8 м с цокольным этажом
Проекты большого размера позволяют располагать на цоколе комнаты, предназначенные для отдыха:
- тренажерный зал;
- бильярдная;
- мастерская;
- мини-кинотеатр;
- сауна;
- маленький бассейн.
Особенности планировки одноэтажного дома 10 на 10 метров с мансардой
В отношении стоимости коттедж с мансардным этажом практически аналогичен дому с чердачным помещением. Данный момент обуславливается тем, что материалов для строительства мансарды требуется практически столько же, сколько их необходимо для зоны чердака. Но в этом случае будут дополнительные затраты, так как потребуется выполнить:
- утепление;
- отделку;
- провести систему отопления.
Планировка одноэтажного дома 10 на 10 м с мансардой
Все это необходимо для того, чтобы организовать на мансардном этаже комнаты жилого типа, обеспечить в них комфорт. Поэтому затраты себя вполне оправдывают.
Как и в случае с цоколем, мансарда, с точки зрения архитектуры, не может рассматриваться, как полноценный этаж, следовательно, она способна предложить гораздо меньше полезной площади, чем это могло бы быть в двухэтажном здании. Зато это пространство дает возможность составлять интересные и разнообразные планировки.
Чаще всего мансарда условно выступает на плане здания как второй этаж. По этой причине в верхней части дома владельцы стремятся расположить комнаты спален и небольшие санузлы. Площадь этого участка определяет количество спален, их габариты.
Уютная гостиная, устроенная в мансарде одноэтажного дома
Мансарда может включать в себя несколько спальных комнат небольшого размера, а также холл, полноценный санузел, укомплектованный ванной. Здесь же можно расположить кладовую.
План одноэтажного дома 8 на 10 метров с гаражом
Наличие всего одного этажа в доме не может быть помехой для создания под одной кровлей с жилыми помещениями гаража или мастерской. При этом планы одноэтажных домов с гаражом могут иметь полностью симметричную планировку или же, наоборот, определенное количество комнат, расположенных свободно.
Симметричные варианты зданий предлагают планировки, в которых помещение гаража отделяется от комнат жилого типа с помощью мощных капитальных стен. Внешне подобное здание выглядит симметричным, возможно условное разделение пополам на две зоны: жилую часть и участок, отведенный под гараж. При свободном распределении пространств помещение гаража просто примыкает к одной из наружных стен сооружения.
Планировка одноэтажного дома 8 на 10 м с гаражом и большой террасой
Полезный совет! Рекомендуется составлять планировку так, чтобы доступ к помещению был не только с улицы, но и со стороны дома. Благодаря этому владельцу автомобиля не нужно будет мокнуть под дождем и снегом в непогоду, когда захочется пройти в гараж.
Для увеличения свободного пространства в доме вовсе не обязательно ограничиваться одним только гаражом, цоколем или мансардой. Вы можете использовать все эти элементы, чтобы сделать свой дом комфортным и удобным.
Проект одноэтажного дома 8х10 с гаражом
Разработка проекта одноэтажного здания
На комфорт проживания в доме влияет множество различных факторов. Но первоочередным из них по важности является характер размещения комнат, а также особенности их взаимодействия между собой.
Рациональное распределение пространств определяется:
- размерами комнат;
- назначением помещений;
- размещением;
- связями комнат между собой и другими видами помещений, таких как веранды, коридоры.
Фундаментная часть дома является основой для создания планировки. Сегодня на основании стандартных проектов возможности создания планировок существенно расширились. Застройщики используют предварительно разработанные чертежи, включающие типичные конструктивные и планировочные решения. Благодаря этому снижаются затраты на этап проектирования, причем уменьшается не только расход денежных средств, но и времени. Идеи реализуются в короткие сроки, они максимально приближены к потребностям большей части владельцев загородных участков.
Компактный одноэтажный дом с оригинальным дизайном
Этап планирования здания и его внутренних помещений
Этап планирования здания включает в себя несколько обязательных требований, которых следует придерживаться.
При составлении планировки не стоит забывать о следующих моментах:
- расположение по отношению к розе ветров;
- особенности окружающего ландшафта и направление, в котором движется течение грунтовых вод;
- расположение по отношению к сторонам света;
- строения, размещенные на территории, их особенности и удаленность от участка, отведенного под строительство;
- наличие привязки к системам инженерии и коммуникации;
- особенности привязки внутренних коммуникационных систем к помещениям здания;
- форма сооружения;
Пример планировки одноэтажного дома, предназначенного для проживания семьи из 2-3 человек
- возможность выявить скрытые пространства, пригодные для применения в качестве полезных площадей при условии внесения небольших изменений в типовой проект;
- количество комнат, их назначение, связь между внутренними помещениями дома и особенности будущей эксплуатации.
Полезный совет! Рекомендуется сводить элементы коммуникационных систем в узлы. Это позволит сократить затраты и избавиться от монтажа ненужных деталей. Например, кухня и ванная комната должны иметь смежное размещение. Благодаря этому исчезнет необходимость в прокладке дополнительного трубопровода.
Трехмерный проект небольшого одноэтажного дома
Полезная информация для этапа проектирования
Коммуникационные системы следует продумывать очень тщательно. Лучше, если вы сможете свести длину трубопровода к минимуму, так как монтаж длинных труб сопровождается установкой множества соединений. Чем больше соединений, тем выше риски возникновения протечек.
Канализационная система нуждается в хорошем оттоке воды. Она должна быть рассчитана с тем, чтобы иметь возможность нормально принять объем жидкости, если в доме одновременно работает посудомоечная и стиральная машина, а также эксплуатируется ванная или душевая кабинка. Этот момент зависит от количества постоянных жильцов в доме и потребностей каждого из них (а также бытовой техники) в воде.
Вариант планировки одноэтажного дома для семьи с ребенком
Привязка жилого здания к коммуникационным системам должна осуществляться в полном соответствии с санитарно-гигиеническими нормами. Как правило, стоки отходят на переработку в естественном режиме, подразумевающем использование силы тяжести. Отвод стоков осуществляется исключительно в предназначенное для этих целей место. Следует получить специальное разрешение санитарной службы и правильно организовать яму для стоков.
Важно! Недопустимо использовать для отвода стоков ливневку и водоемы. Это может стать причиной получения штрафа со стороны санитарной инспекции или вызова в суд со стороны коммунального предприятия, а также повлечь за собой загрязнение окружающей среды и грунтовых вод. Тщательно изучите правила и требования, выдвигаемые к процессу организации канализационной системы на загородном участке.
План одноэтажного дома 8 на 8 м с одной спальной комнатой
Местная сетевая компания также может выдвигать определенные требования в отношении применения бытовой техники. Заранее узнайте каков предел и с учетом этих данных вводите в эксплуатацию электрические приборы.
План одноэтажного дома до 100 кв м: интересные решения
При оптимальном расположении дома на участке ветра должны быть направлены в скаты крыши. Благодаря этому снижается сопротивление и ветровая нагрузка при сильных порывах и непогоде. Более того, осадки не будут попадать во фронтоны.
Если предполагается строительство жилого сооружения в регионе, где наблюдаются резкие и частые перемены в направлении ветров, рекомендуется применять крыши полувальмового или вальмового типа. Благодаря данным конструкциям появляется возможность сформировать дополнительные навесы и плоскости, обеспечивающие эффективную защиту стен от воздействия осадков.
Если убрать внутренние перегородки, объединив кухню, столовую и гостиную, это визуально раздвинет внутреннее пространство небольшого по размерам дома
Не стоит забывать и об особенностях ландшафтного рельефа местности. Не рекомендуется располагать здание в самых крайних точках, то есть выполнять строительство в самой высокой и самой низкой зонах участка.
Чтобы определиться с размещением постройки следует посетить местную администрацию и получить там карту, отражающую геодезическое районирование местности и все особенности близлежащего рельефа. Такая карта будет включать информацию о размещении грунтовых вод, их направлении, особенностях грунта и прочие полезные для строительства данные.
Одноэтажный дом с мансардой площадью до 100 кв м
План одноэтажного дома 6 на 6 метров
Планировка одноэтажного коттеджа, выполненного из древесины или каких-либо других материалов, основывается на параметрах и особенностях формы. Квадратные сооружения, коим является и дом 6х6 м, считаются оптимальными.
Обратите внимание! Симметричность здания позволяет создавать интерьеры помещений сбалансированными и гармоничными. Этим обуславливается повышенная популярность проектов с одинаковой длиной сторон.
План маленького дома 6х6 м с одним этажом
С учетом того, что габариты здания 6х6 м невелики, такой дом может использоваться в качестве дачного коттеджа. Его строительство будет сопровождаться меньшими затратами, чем возведение более габаритного или двухэтажного сооружения. Используя инструменты и технологии современного дизайна здесь можно организовать все условия, необходимые для комфортного проживания.
Немалой экономии можно достичь за счет грамотной организации системы отопления, если в качестве замены для нее использовать камин, укомплектованный радиаторами, или котел с небольшой мощностью.
Коттедж 6 на 6 м может использоваться в качестве дачного домика или же для круглогодичного проживания
В пространстве площадью 36 кв м можно расположить помещения:
- гостиной;
- спальни;
- кухни;
- небольшого санузла;
- котельной;
- прихожей.
Хорошим вариантом станет совмещение кухни и гостиной по типу студии. Благодаря этому решению можно увеличить полезную площадь.
План дома 6х6 м с мансардным этажом
План одноэтажного дома 9 на 9 метров
Одноэтажные здания 9х9 м в отношении планировки имеют аналогичные характеристики, что и сооружения квадратной формы меньшего размера. Преимущество строений с длиной сторон 9 м заключается в том, что увеличивается полезная площадь, которая дает возможность разнообразить интерьерное оформление комнат.
В качестве примера можно рассмотреть дверные конструкции. Ограниченные пространства коттеджа с общей площадью 36 кв м в целях экономии свободного места требуют установки межкомнатных дверей раздвижного типа. Установка конструкций со створками, которые прячутся в специальный короб, размещенный в стене, позволит добиться максимальной экономии пространства. В то время как жилое здание с габаритами 9х9 м позволяет выполнять монтаж классических дверей с распашными створками.
Варианты планировки одноэтажного дома 9 на 9 м
Полезный совет! С помощью мансардного этажа можно частично решить проблему тесноты в небольших постройках. В этом случае зона мансарды используется для размещения большой спальной комнаты, что освобождает место для организации кухни и гостиной с увеличенными размерами. Однако придется подыскивать место для установки лестничной конструкции, что не вызовет проблем, если мансарда включается в планировку дома 9х9 м.
Планировка одноэтажного дома 8 на 10 метров
Выбор планировок достаточно обширен, поэтому у вас есть все шансы для того, чтобы подобрать действительно удобный и подходящий именно вам вариант. Строительство на загородном участке дома с параметрами 8х10 м позволит обзавестись:
- четырьмя спальнями;
- гостиной;
- кухней.
3D-проект одноэтажного дома 8 на 10 м
И это лишь основные жилые помещения. Нельзя забывать о том, что в таком коттедже, вдобавок к перечисленным комнатам, можно организовать санузлы и подсобки. Планировка может включать веранду или тамбур, что обеспечит дополнительную защиту от холода в зимнее время.
При составлении плана дома 8 на 10 м в целях экономии полезной площади можно отказаться от организации длинных коридоров, которые крадут свободное пространство. Кроме того, выгодным решением станет объединение площадей кухни и гостиной за счет удаления стены, разделяющей данные помещения.
План одноэтажного дома 8х10 с мансардой, четырьмя спальнями и балконом
Проекты одноэтажных домов до 150 м2: фото и популярные планировки
Некоторые проекты могут иметь дополнительные конструкционные элементы, которые улучшают архитектуру здания.
К таким элементам относится:
- эркер;
- балкон;
- терраса;
- веранда.
Обратите внимание! Все эти элементы имеют вид внешних пристроек (исключением является эркер), которые предназначены для эксплуатации в теплое время года и в хороших погодных условиях.
Терраса и веранда хороши для организации зоны отдыха. Вечером данное пространство может быть использовано для чаепитий в кругу семьи или друзей. Балкон станет прекрасным местом для релаксации и созерцания красоты ландшафта вокруг дома.
Планировка одноэтажного дома с достаточно большой площадью
Эркер имеет более сложное функциональное значение для здания. Он эффектно украшает дом со стороны фасада, а также способен сделать более интересной внутреннюю планировку. Кроме этого, эркер позволяет устанавливать большие окна. За счет этого увеличивается поток естественного освещения, который попадает в дом с улицы.
На чертежах построек с эркерами видно, насколько интересной становится обычная прямоугольная или квадратная коробка здания со стандартными параметрами. Чаще всего эркеры устанавливаются в сооружениях, сложенных из камня или древесины. При этом тип материала оказывает непосредственное влияние на форму данного элемента.
Большой одноэтажный дом с чердачными помещениями
Планы одноэтажного дома 10 на 12 метров и 10 на 10 метров
Одноэтажные коттеджи с габаритами 10х10 м и более уже выходят за рамки проектов до 100 кв м. Чаще всего над строительством такого здания задумываются владельцы земельных участков с большой площадью. Такое сооружение может быть использовано не только в качестве дачного домика на летний сезон, но и способно выполнять функцию полноценного жилья для постоянного проживания семьи из нескольких человек.
Преимущество квадратных помещений состоит в том, что они способствуют удобному распределению предметов меблировки и оптимальны для организации хорошего уровня освещения.
План одноэтажного дома с тремя спальнями, 10х12 м
В здании с габаритами 10х10 м может расположиться семья из 4-5 человек. Если говорить в общих чертах, то планировка такого коттеджа позволяет создать условия проживания схожие с тем, что предлагает трехкомнатная квартира в городе. За счет котельной в таком доме обеспечивается отопление.
Кроме обязательных помещений, владелец может организовать другие комнаты, обеспечивающие повышенный комфорт:
- обустроить кабинет;
- увеличить габариты санузла с последующей установкой ванной вместо душевой кабинки;
- установить джакузи.
Полезный совет! Если увеличить проект до 10х12 м, появится возможность добавить к общему плану помещение комнаты для гостей и гардеробную.
Пример удачной планировки одноэтажного дома 10х10
План одноэтажного дома 11 на 11 метров
Одноэтажные дома из бруса – прекрасная альтернатива кирпичу и бетону. Коттеджи из древесины не только имеют невысокую стоимость, но еще и экологичны. Для строительства здания из бруса 11х11 м потребуется не очень много времени. Взамен вы получите около 102,5 кв м полезной площади и достаточное количество помещений.
Проект зданий 11х11 м может включать в себя:
- несколько жилых комнат;
- кухню;
- санузел;
- холл;
- веранду, тамбур, котельную.
Одноэтажный дом 11 на 11 м с мансардой и большим гаражом
В качестве строительного материала рекомендуется использовать брус с параметрами 150х100. Горизонтальный тип строительства позволяет отказаться от монтажа лестницы, которая сама по себе имеет сложную конструкцию и технологию возведения, да еще и занимает часть полезной площади как на первом этаже, так и на втором. С одноэтажными постройками такой проблемы нет.
План одноэтажного дома 12 на 12 метров
Одноэтажное здание с размерами 12х12 м сможет стать прекрасной основой для создания комфортной планировки. Габариты жилья позволяют организовать:
- несколько спален;
- гостиную;
Вариант планировки одноэтажного дома 12х12 м
- кухню;
- столовую;
- два полноценных санузла.
Проекты 12х12 м позволяют организовать цокольный этаж или мансарду. Пристройка в виде террасы или гараж смогут расширить полезную площадь дома.
Существует масса вариантов для создания удобного и комфортного плана здания под застройку загородного участка. Выбор ограничивается только вашей фантазией и бюджетом.
ОЦЕНИТЕМАТЕРИАЛ Загрузка… ПОДЕЛИТЕСЬ
В СОЦСЕТЯХ
СМОТРИТЕ ТАКЖЕ
REMOO В ВАШЕЙ ПОЧТЕВеликолепный двухэтажный дом 10 х 9 метров с пятью спальнями
Сегодняшний дом представляет собой двухэтажный дом с пятью спальнями. У постройки двухэтажного дома есть много преимуществ. Самая важная из них заключается в том, чтобы размер блока был максимальным, а подъем вверх означает возможность полного обзора окрестностей, особенно если вы делаете балконы или настилы на крыше.
Строительство двухэтажного дома зависит от размера вашего участка. Если у вас небольшой участок, но вам нужен большой дом для большой семьи и их вещей, вы можете построить многоуровневый дом.Двухэтажный дом занимает меньше места в вашем блоке, чем одноэтажный, что позволяет максимально увеличить пространство в блоке. Это особенно важно, если вы строите на небольшом или узком участке земли. Вы можете оставить место на заднем дворе для своих детей и гостей, а также для пейзажа или садоводства.
Возьмем, к примеру, размер блока этого дома. У него не так много, и единственный способ максимизировать размер блока — подниматься вверх, строя несколько уровней, а не занимать все пространство участка.Двухэтажный дом также обеспечивает большую гибкость с точки зрения планировки вашего дома. Двухэтажные дома позволяют разделить пространство, а это означает, что вы можете отделить главную спальню от второстепенных спален или разместить все спальные зоны на верхнем этаже, вдали от жилых зон нижнего этажа.
Характеристики продукта:
- Двухэтажный дом
- пять спален
- 3 санузла
- 2 жилые комнаты
- кухня и столовая
- позиция
- балкон
- гараж
- Бюджет: 200 000–240 000 долларов США или 10–12 мес. филиппинских песо.
Вы также можете посетить другие наши веб-сайты.Вы можете щелкнуть следующие гиперссылки, и вы будете перенаправлены на веб-сайты. Вы можете выбрать из множества дизайнов. У каждого дизайна есть свои уникальные особенности, из которых вы можете почерпнуть идеи для создания своего собственного. Если вам нравится дизайн, не забудьте поделиться на стене, чтобы его увидели другие. Устройтесь поудобнее и наслаждайтесь. Приходите к нам снова в ближайшее время. Спасибо!
- Концепции Cool House
- Дом и декор
- Ulric Home
- Пиной Эпланс
- Проекты домов по OFW
Этот дизайн был взят от Samphoas.
Зонирование: О зонировании — Глоссарий терминов зонирования
Пособие на чердак
Допуск на чердак — это увеличение на 20 процентов максимальной площади пола (FAR) для обеспечения скатной кровли.Пособие доступно в округах R2X и во всех округах R3 и R4 (кроме R4B).Пособие на чердак в зонах управления застройкой с меньшей плотностью
За пределами зон управления ростом с низкой плотностью (LDGMA) увеличенная площадь пола должна располагаться непосредственно под скатной крышей и иметь высоту потолка от пяти до восьми футов.Здание — это строение, имеющее один или несколько этажей и крышу, постоянно прикрепленное к земле и ограниченное открытыми площадками или линиями участков зонирования.
Пристроенное здание * примыкает к двум боковым линиям участка или является одним из ряда примыкающих зданий.A отдельно стоящее здание * — отдельно стоящее здание, которое не граничит ни с одним другим зданием и где все стороны здания окружены дворами или открытыми площадками в пределах участка для зонирования.
Смежное здание * — это здание, которое примыкает к стене или разделяет ее на боковой линии участка с другим зданием на прилегающем участке зонирования, а остальные стороны здания окружены открытыми участками или линиями улиц. .Здание с нулевой линией участка * — это отдельно стоящее здание, которое примыкает к одной боковой линии участка зонирования и не примыкает к каким-либо другим зданиям на прилегающем участке зонирования.В соответствии с законодательством штата в процессе Городской экологической экспертизы (CEQR) выявляются и оцениваются потенциальные воздействия на окружающую среду дискреционных действий, предлагаемых государственными или частными заявителями.Дискреционное действие, такое как изменение карты зонирования, не может быть начато для публичного рассмотрения до тех пор, пока не будет выпущена «условно отрицательная декларация» или «отрицательная декларация», в которой указывается, что не было выявлено никаких значительных воздействий на окружающую среду, или, если были выявлены какие-либо потенциальные воздействия, Был завершен проект заявления о воздействии на окружающую среду, в котором оценивается значимость выявленных воздействий и предлагаются соответствующие меры по смягчению последствий.
Буква «E», присвоенная участку для зонирования, указывает на участок, на котором должны быть соблюдены экологические требования, прежде чем может быть выдано разрешение на строительство для любого развития, расширения или изменения использования.
Коммерческое наложение — это район C1 или C2, нанесенный на карту в жилых районах для обслуживания местных розничных потребностей (например, продуктовых магазинов, химчисток, ресторанов).Коммерческие оверлейные районы, обозначенные буквами от C1-1 до C1-5 и от C2-1 до C2-5, показаны на картах зонирования в виде рисунка, наложенного на жилой район.
Если на картах зонирования не указано иное, глубина перекрывающихся районов C1, измеренная от ближайшей улицы, составляет 200 футов для районов C1-1, 150 футов для районов C1-2, C1-3, C2-1, C2-2 и C2-3 районы и 100 футов для районов C1-4, C1-5, C2-4 и C2-5. При отображении на длинном измерении блока коммерческие наложения простираются до середины этого блока.
Права на застройку обычно относятся к максимальной площади, разрешенной на участке для зонирования. Когда фактическая застроенная площадь меньше максимально допустимой площади этажа, разница называется «неиспользованные права на застройку». Неиспользованные права на развитие часто называют воздушными правами.
Слияние участков для зонирования — это объединение двух или более смежных участков для зонирования в один новый участок для зонирования.Неиспользованные права на застройку могут быть переданы с одного лота на другой по праву только в результате слияния участков для зонирования.A передача прав на застройку (TDR) позволяет передавать неиспользованные права на застройку с одного участка на другой при ограниченных обстоятельствах, как правило, для содействия сохранению исторических зданий, открытых пространств или уникальных культурных ресурсов. Для таких целей может быть разрешено TDR, если передача не может быть осуществлена путем слияния участков для зонирования.В случае здания, являющегося ориентиром, например, перемещение может быть произведено по специальному разрешению CPC с участка зонирования, содержащего обозначенный ориентир, на соседний участок зонирования или участок, который находится прямо через улицу, или, для углового участка, другой угол. участок на том же перекрестке.
Слуховое окно — это разрешенное препятствие в пределах требуемой зоны отступления, которое может превышать высоту здания.В районах с более низкой плотностью населения из наклонной крыши часто выступает окно, через которое свет и воздух проникают на верхние этажи домов. В контекстных районах от R6 до R10 слуховые окна — это части зданий, которым разрешено преодолевать требуемое отступление выше максимальной базовой высоты, чтобы обеспечить разнообразие базовой высоты зданий вдоль улицы. Оба типа слуховых окон имеют ограничения по размеру.
Программа инклюзивного жилья предусматривает два факультативных поощрения за площадь жилых помещений в обмен на создание или сохранение доступного жилья на территории или за ее пределами, преимущественно для семей с низкими доходами.
Исходная программа R10 обеспечивает бонус к площади помещений до 20 процентов, увеличивая максимальный FAR с 10,0 до 12,0 для предоставления доступного жилья в соответствующих жилых и коммерческих районах с плотностью R10.
В обозначенных областях Inclusionary Housing * , нанесенных на карту в жилых кварталах со средней и высокой плотностью населения и коммерческих районах с эквивалентной плотностью, можно получить бонус в размере 33 процентов жилой площади за предоставление 20 процентов доступного жилья.Базовый FAR в обозначенных областях, в большинстве случаев, ниже максимального FAR, разрешенного в том же районе зонирования, расположенном за пределами обозначенной области.
Крупномасштабная застройка — это застройка, обычно включающая несколько участков для зонирования, запланированных как единое целое.Правила крупномасштабной застройки позволяют вносить изменения в различные правила зонирования, такие как распределение площади пола без учета линий зонирования участков, по усмотрению КТК. Такие модификации могут позволить гибкость дизайна для достижения превосходного плана участка.
A крупномасштабная общая разработка * — разработка или расширение для любого использования, разрешенного основным правила округа в коммерческих районах (кроме округов C1, C2, C3 и C4-1) и во всех производственных районы.Развитие должно происходить на участке земельный участок площадью не менее 1,5 акра, который может включать существующие постройки.
A крупномасштабный жилой комплекс * — это комплекс, предназначенный преимущественно для жилых помещений в жилых кварталах и в районах C1, C2, C3 и C4-1. Застройка должна быть на участке земли площадью не менее трех акров (130 680 квадратных футов) с минимум 500 жилых единиц или по крайней мере 1,5 акра (65 340 квадратных футов) с минимум тремя основными жилыми зданиями.Существующие здания не могут быть частью крупномасштабной жилой застройки.
A крупномасштабная застройка общественных объектов * — это застройка или расширение преимущественно для использования в общественных объектах в жилых районах и в районах C1, C2, C3 и C4-1. Застройка должна быть на участке земли размером не менее трех акров (130 680 кв. Футов) и может включать существующие здания.
Участок или участок для зонирования — это участок земли, состоящий из одного налогового участка или двух или более смежных налоговых участков в пределах квартала. Например, многоквартирный дом на одном участке зонирования может содержать отдельные единицы кондоминиума, каждая из которых занимает свой налоговый участок. Точно так же здание, состоящее из ряда таунхаусов, может занимать несколько отдельных налоговых участков в пределах одного участка для зонирования, или два или более отдельно стоящих дома на одном участке для зонирования могут иметь свой собственный налоговый участок.
Участок для зонирования является базовой единицей для правил зонирования и может быть подразделен на два или более участков для зонирования, а два или более прилегающих участков для зонирования в одном блоке могут быть объединены при условии, что все полученные участки для зонирования соответствуют применимым нормам.
Угловой участок * — участок зонирования, примыкающий к точке пересечения двух или более улиц; это также участок для зонирования, полностью ограниченный улицами.
Внутренний участок * — это любой участок зонирования, который не является ни угловым, ни сквозным.
A через участок * — это любой участок для зонирования, который соединяет две, как правило, параллельные улицы, и не является угловым участком.
Линия земельного участка или линия участка зонирования является границей участка зонирования.
Передняя линия участка *, также известная как линия улицы, является той частью линии зонирования участка, которая выходит на улицу.
Задняя линия участка * — это любая линия участка, которая обычно параллельна линии улиц, ограничивающей участок для зонирования, и не пересекает линию улиц.
Линия бокового лота * — это любая линия лота, которая не является ни передней линией, ни задней линией лота.
Смешанное здание — это здание в коммерческом районе, используемое частично для жилых и частично общественных или коммерческих нужд.
Когда здание предназначено для более чем одного использования, максимальный FAR, разрешенный на участке зонирования, является самым высоким FAR, разрешенным для любого из видов использования, при условии, что FAR для каждого использования не превышает максимальный FAR, разрешенный для этого использования.Например, в районе C1-8A, где максимальный коммерческий FAR равен 2,0, а максимальный FAR для жилого дома равен 7,52, общий разрешенный FAR для смешанного жилого / коммерческого здания будет 7,52, из которых может применяться не более 2,0 FAR. в торговую площадь.
Резиденция состоит из одной или нескольких жилых единиц или комнат для проживания, а также любых общих частей, включая односемейные и двухквартирные дома, многоквартирные дома или апарт-отели.
A односемейный дом * — здание на участке зонирования, содержащее одну жилую единицу, занимаемую одним домохозяйством.
A двухквартирный дом * — здание на участке зонирования, состоящее из двух жилых единиц, занимаемых двумя домохозяйствами. В районах R3-1, R3A, R3X, R4-1 и R4A в двухквартирных домах, как отдельно стоящих, так и двухквартирных, должно быть не менее 75% одной жилой единицы непосредственно над или под другой.
A Многоквартирный дом — здание на участке зонирования, содержащее не менее трех жилых единиц.
дворов необходимо в районах от R1 до R5; правила, регулирующие глубину открытых площадок на уровне земли между передней стеной здания и линией улицы, применяются в районах от R6 до R10. Передние дворы и открытые площадки должны быть озеленены и иметь минимальную глубину, соответствующую следующим требованиям:
R2A, R3A, R3X, R4A, R4-1 и R5A
В районах R2A, R3A, R3X, R4A, R4-1 и R5A, если прилегающие передние дворы глубже минимально необходимого переднего двора, новое здание должно обеспечивать передний двор глубиной не менее одного из соседних дворов, но это не обязательно должно быть глубже 20 футов.
R4B, R5B и R5D
В районах R4B, R5B и R5D, если прилегающие палисадники глубже минимально необходимого палисадника, то палисадник нового здания должен быть не менее глубиной одного соседнего палисадника и не глубже другого, но она не должна быть глубже 20 футов.
R6B, R7B и R8B
В районах R6B, R7B и R8B уличная стена нового здания на любом участке шириной до 50 футов должна быть такой же глубиной, как одна соседняя стена, но не глубже другой.На участках шириной более 50 футов уличная стена нового здания не может быть ближе к линии улицы, чем уличная стена соседнего здания. Уличную стену не обязательно располагать дальше от линии улицы, чем на 15 футов.R6A, R7A и R7X
В районах R6A, R7A, 7D и R7X уличная стена нового здания может располагаться не ближе к линии улицы, чем уличная стена любого здания в пределах 150 футов на том же фасаде, но не обязательно дальше от улицы. линия, чем 15 футов.Кафе на тротуаре — это часть заведения общественного питания, расположенная на тротуаре. Правила использования уличных кафе регулируются Департаментом по делам потребителей.
Закрытое кафе на тротуаре * — это кафе на тротуаре, которое находится внутри строения.
Открытое кафе на тротуаре * содержит легко снимаемые столы, стулья или перила без верхнего покрытия, кроме зонтиков или выдвижного навеса.
A маленькое кафе на тротуаре * — это открытое кафе на тротуаре, содержащее не более одного ряда столов и стульев на расстоянии не более 4,5 футов от линии улицы, без барьера между кафе и тротуаром.
Знак — это любая надпись — слова, изображения или символы, — которая прикреплена к зданию или другой конструкции или прикреплена к ним.
Дополнительный знак * обращает внимание на бизнес, профессию, товар, услугу или развлечения, которые проводятся, продаются или предлагаются на одном и том же участке для зонирования.
Рекламный знак * обращает внимание на бизнес, профессию, товар, услугу или развлечение, которые проводятся, продаются или предлагаются на другом участке для зонирования.
A мигающий знак * — любой световой знак, будь то неподвижный, вращающийся или вращающийся, который меняет свет или цвет.
Световой знак * использует искусственный свет или отраженный свет от искусственного источника.
Улица — это любая дорога (кроме частной), шоссе, бульвар, проспект, переулок или другой путь, показанный на карте города, или дорога шириной не менее 50 футов и предназначенная для общественного пользования, которая соединяет дорогу, указанную на карте города. Карта города на другой такой же путь или на здание или строение.Под улицей понимается вся проезжая часть (включая тротуары).
A узкая улица * — улица длиной менее 75 футов широкий.
A широкая улица * — улица шириной 75 футов или более. Большинство правил, применимых к широким улицам, также применимы к зданиям на пересекающихся улицах в пределах 100 футов от широкой улицы.
Башня — это часть здания, которая выходит за пределы плоскости экспонирования неба и допускается только в определенных районах города с высокой плотностью населения. Башня может использоваться под жилые, коммерческие или общественные объекты.
Стандарт , , правила для башни , обычно разрешают башенной части здания занимать не более 40 процентов площади зонируемого участка или до 50 процентов на участках менее 20 000 квадратных футов.Башенная часть здания должна располагаться на расстоянии не менее 10 футов от широкой улицы и не менее 15 футов от узкой улицы. Эти правила изменены для разных целей и районов.
Для башни на основании требуется контекстное основание высотой от 60 до 85 футов, которое непрерывно проходит вдоль линии улицы. Высота башни контролируется минимальным требованием к покрытию участка и правилом, согласно которому не менее 55 процентов площади пола на участке зонирования должны располагаться ниже высоты 150 футов.На широкой улице в районах R9 и R10 и их эквивалентах C1 или C2 здание, включающее жилую башню, должно соответствовать правилам размещения башни на основании в дополнение к стандартным правилам башни.
Прибрежная зона — это географическая зона, прилегающая к водоему шириной не менее 100 футов, включающая все блоки между линией пирса и параллельной линией в 800 футах от берега.Блоки в прибрежной зоне подлежат правилам зонирования набережной.
Линия переборок , , , — это линия, показанная на картах зонирования, которая разделяет прибрежные и морские части участков зонирования береговой линии.
Линия пирса — это линия, показанная на картах зонирования, которая определяет крайнюю морскую границу зоны, регулируемой Постановлением о зонировании.
Береговая линия * является средней отметкой высокого уровня воды.
A прибрежный квартал *, общественный парк на набережной * или прибрежный участок * — это квартал, общественный парк или участок для зонирования в прибрежной зоне, которая примыкает к береговой линии или пересекает ее.
Зона общественного доступа на набережной (WPAA) — это часть участка для зонирования береговой линии, где открытое для общественности пространство предоставляется вдоль береговой линии.Все WPAA должны быть улучшены озеленением, деревьями, сиденьями и другими удобствами. WPAA может включать в себя береговую общественную пешеходную дорожку, наземное соединение, дополнительную зону общественного доступа, зону общественного доступа на пирсе или плавучей конструкции или любую дополнительную зону, улучшенную для общественного пользования. Минимальная необходимая площадь общественного доступа на набережной — это определенный процент от участка для зонирования.
A прибрежная общественная пешеходная дорожка * — это линейная зона общественного доступа, проходящая вдоль берега.
Горный переход * — это пешеходный путь между общественным местом (например, улицей, тротуаром или парком) и общественной пешеходной дорожкой на берегу. Соединение с возвышенностями может быть обеспечено по частной дороге.
A Дополнительная зона общественного доступа * — это зона общественного доступа, необходимая для выполнения минимального процента WPAA, требуемого на участке прибрежного зонирования, после того, как будут обеспечены береговая общественная дорожка и наземное соединение.
Двор — это обязательная открытая площадка вдоль линий участка зонирования, которая должна быть беспрепятственной от самого нижнего уровня до неба, за исключением некоторых разрешенных препятствий. Правила двора обеспечивают свет и воздух между конструкциями.
A передний двор * проходит по всей ширине передней линии участка.В случае углового участка любой двор, проходящий по всей длине линии улицы, считается передним двором. (См. Также Неудачи, двор перед домом или уровень земли)
A задний двор * простирается на всю ширину линии заднего участка. В жилых районах минимальная глубина заднего двора составляет 30 футов, за исключением районов R2X. В коммерческих, производственных и R2X районах минимальная глубина заднего двора составляет 20 футов. Угловой участок не требует наличия заднего двора.В коммерческих и производственных районах, а также в некоторых общественных зданиях в жилых кварталах задний двор может быть полностью занят одноэтажным зданием высотой до 23 футов.
A Эквивалент заднего двора * — открытая площадка на проходном участке, необходимая для соблюдения правил заднего двора.
A боковой двор * простирается вдоль линии бокового участка от требуемого переднего двора или от передней линии участка, если передний двор не требуется, до необходимого заднего двора или до задней линии участка, если задний двор отсутствует требуется.В случае углового участка любой двор, не являющийся передним, считается боковым двором.
Планы домов на плантациях | Чертежи дома-монстра
Дизайн дома в величественном стиле плантации
Планы этажей южных плантаций были разработаны с учетом стилей греческого возрождения и французского колониального стиля. В домах были формальные бальные залы и помещения для прислуги, а также кабинеты, библиотеки и другие места для встреч. Гости попадали в дом через просторное фойе и встречали их по чудесной лестнице, ведущей на второй этаж.
Внешний вид
Внешний вид за последние годы практически не изменился, сохранились фирменные колонны вдоль фасада. Эти колонны иногда выходят за пределы второго этажа и поддерживают длинный балкон. Дома-плантации симметричны и имеют равное количество окон с каждой стороны двери. Другие внешние особенности включают:
- Окно во всю длину
- Мансардные окна
- Дымоходы несколько
- Крыльцо по периметру
- Вальмовые и двускатные крыши
Детали интерьера
Современные планы этажей плантации включают просторные интерьеры с несколькими спальнями и ванными комнатами.Большая комната часто встречается во многих планах, включая кухни с кладовой дворецкого. Уголок для завтрака и столовая расположены рядом с кухней, а некоторые планы дома включают библиотеки и гостевые апартаменты как часть дизайна. Другие общие элементы интерьера включают:
- Плитка гранитная и мраморная
- Паркет
- Декоративный молдинг
- Винтовая лестница
- Медиа-залы
Почему стоит выбрать дом в стиле плантации?
Дом в стиле плантации идеально подходит для большой семьи из-за огромного пространства внутри.Он может иметь пять или более спален с равным количеством полностью оборудованных ванных комнат, включая гостевые апартаменты для большой семьи. Те, кто также планирует построить большой участок с большим количеством посевных площадей, являются первыми кандидатами на планы этажей плантации.
MonsterHousePlans.com предлагает лучшие планы домов на плантациях, доступные одним нажатием кнопки. Воспользуйтесь функцией расширенного поиска, чтобы найти план этажа, соответствующий вашим потребностям. Ищете ли вы плантационный дом с большим количеством Греческое возрождение или французское колониальное влияние, вы найдете множество различных планов дома на выбор с многочисленными функциями и вариантами для создания идеального дома для вашей семьи.
Трилогия | Shea Homes
Посмотреть фотогалереюВелнес и фитнес
Велнес — это образ жизни в Trilogy.От групповых занятий и оборудования Technogym до поддержки личных тренеров — мы здесь, чтобы помочь вам достичь ваших целей в области оздоровления и фитнеса.
ЗакрыватьПредыдущий слайд Следующий слайд
• 1/9
• 2/9
• 3/9
• 4/9
• 5/9
• 6/9
• 7/9
• 8/9
• 9/9
Посмотреть фотогалереюКулинарные студии
Загляните в Кулинарную студию, чтобы увидеть демонстрации шеф-поваров, уроки кулинарии и миксологии, частные торжества, вечеринки или любые другие мероприятия, которые вы задумали.
ЗакрыватьПредыдущий слайд Следующий слайд
• 1/10
• 2/10
• 3/10
• 4/10
• 5/10
• 6/10
• 7/10
• 8/10
• 9/10
• 10/10
Посмотреть фотогалереюКурортные бассейны
Хотите ли вы поплавать, заняться аквафитнесом или отдохнуть на террасе с хорошей книгой, бассейны в Trilogy — это то место, где вы можете расслабиться и освежиться.
ЗакрыватьПредыдущий слайд Следующий слайд
• 1/10
• 2/10
• 3/10
• 4/10
• 5/10
• 6/10
• 7/10
• 8/10
• 9/10
• 10/10
Посмотреть фотогалереюГольф
Во многих из наших 55+ и курортных сообществ гольф мирового класса ждет прямо за вашей дверью.
ЗакрыватьПредыдущий слайд Следующий слайд
• 1/9
• 2/9
• 3/9
• 4/9
• 5/9
• 6/9
• 7/9
• 8/9
• 9/9
Посмотреть фотогалереюКоманды курорта
Наши клубы укомплектованы подготовленными командами курортных отелей, чья миссия состоит в том, чтобы служить и радовать наших домовладельцев каждый день.Думайте о них как о волшебстве внутри Trilogy.
ЗакрыватьПредыдущий слайд Следующий слайд
• 1/10
• 2/10
• 3/10
• 4/10
• 5/10
• 6/10
• 7/10
• 8/10
• 9/10
• 10/10
Посмотреть фотогалереюРестораны и бары
Отличная еда и хорошее времяпрепровождение занимают центральное место в образе жизни Trilogy, а наши фирменные рестораны и бары отражают нашу страсть к еде как к общению.
ЗакрыватьПредыдущий слайд Следующий слайд
• 1/10
• 2/10
• 3/10
• 4/10
• 5/10
• 6/10
• 7/10
• 8/10
• 9/10
• 10/10
Посмотреть фотогалереюСпас
Пусть все ваши заботы исчезнут, пока вы расслабляетесь в профессиональном спа-салоне с полным спектром услуг, где вас ждут инновационные, эффективные процедуры и вдохновляющая, успокаивающая атмосфера.
ЗакрыватьПредыдущий слайд Следующий слайд
• 1/9
• 2/9
• 3/9
• 4/9
• 5/9
• 6/9
• 7/9
• 8/9
• 9/9
Посмотреть фотогалереюМаршруты и парки
Неважно, путешествуете ли вы пешком или на велосипеде, вас ждут километры ухоженных троп и множество парков.
ЗакрыватьПредыдущий слайд Следующий слайд
• 1/6
• 2/6
• 3/6
• 4/6
• 5/6
• 6/6
Посмотреть фотогалереюСпорт на открытом воздухе
Если вы ищете дружеские соревнования, вы найдете их на спортивных площадках.С вариантами, которые могут включать корты для пиклбола, тенниса и бочче, открытые для всех — от новичков до профессионалов — вы можете наслаждаться своим любимым видом спорта или выбрать новый!
ЗакрыватьПредыдущий слайд Следующий слайд
• 1/10
• 2/10
• 3/10
• 4/10
• 5/10
• 6/10
• 7/10
• 8/10
• 9/10
• 10/10
11 Особенности дома Сегодняшние покупатели хотят больше всего
Поскольку рынок жилья продолжает расти в условиях пандемии, потенциальные продавцы должны дважды подумать, прежде чем отказаться от обновления тех участков своего дома, которые нуждаются в серьезном обновлении.При низком уровне запасов и неуклонном росте спроса покупатели жилья по-прежнему готовы тратить большие средства на дома с качественной отделкой в популярных районах. «После укрытия на месте … люди [] готовы к переменам в своих домах — или ищут новый», — говорит Брайан Льюис, брокер по недвижимости из нью-йоркской риэлторской фирмы Compass. Независимо от того, просматривают ли потенциальные покупатели вашу недвижимость лично или виртуально, вы должны убедиться, что она в отличном состоянии.
Продавцы должны знать, что большая часть усилий по модернизации увеличивает стоимость дома только на 50% — 80% от средней стоимости проекта, согласно данным журнала Remodeling , проведенному в 2020 г.Отчет о стоимости. Например, средняя стоимость ремонта ванной комнаты среднего класса составляет 21 377 долларов. Вы вернете около 13 680 долларов (64%) от этой суммы во время перепродажи. Однако цена бездействия может быть намного больше, чем небольшие убытки, которые вы понесете при выполнении любых проектов по благоустройству дома. «Застрять вовремя со своим домом — не умный ход, и он редко получает финансовое вознаграждение во время продажи», — добавляет Льюис. Фактически, это может заставить ваш дом дольше оставаться на рынке. В результате вам, вероятно, придется оплачивать текущие расходы по ипотеке, техническому обслуживанию и подготовке.
Если вы хотите получить максимальную отдачу от вложенных средств, сосредоточьтесь на функциях, которые действительно хотят видеть большинство покупателей жилья. Вкусы потребителей могут различаться в зависимости от региона, поэтому проконсультируйтесь со своим агентом по недвижимости, чтобы узнать, какие особенности дома пользуются большим спросом в вашем районе, — советует доктор Джессика Лаутц, вице-президент Национальной ассоциации риэлторов по демографии и поведению.
Наше слайд-шоу, обновленное к 2020 году, раскрывает те особенности дома, которые сегодня больше всего ценят покупатели по всей стране.Взглянуть.
Мы рассмотрели последний отчет Национальной ассоциации строителей жилья «Что на самом деле хотят покупатели жилья», чтобы оценить предпочтения недавних и потенциальных покупателей жилья. Мы также использовали их опрос «Особенности дома, который покупатели считают важным», который определяет наиболее желаемые характеристики дома среди потенциальных покупателей жилья впервые и во второй раз. Ориентировочная стоимость проекта взята с сайта HomeWyse.com и отражает стоимость материалов и рабочей силы подрядчика, если не указано иное.
1 из 11
Прачечная
- Процент покупателей, которым нужна эта функция : 91%
- Стоимость установки : от 1000 до 10000 долларов для небольшого проекта
Больше всего на свете, домовладельцы хотят иметь комнату, отличную от гостевой спальни, чтобы складывать все чистое белье, пока оно, наконец, не будет убрано. Отдельная прачечная возглавляет список Национальной ассоциации строителей жилья (NAHB), наиболее востребованный покупателями.«Наличие отдельной комнаты [для таких вещей, как складывание или глажка одежды] помогает уберечь от беспорядка ваше жилое пространство … Потенциальные покупатели увидят в этом огромную выгоду», — говорит Пол Салливан, основатель и президент Sullivan Company, Ньютон, штат Массачусетс, реконструирующая и строительная фирма.
Если у вас нет прачечной и вы хотите ее добавить, то подвал обычно является самым простым (и дешевым) местом для ее размещения, советует Салливан. Коммуникации уже есть, а подвал во многих случаях недостроен, так что сначала ничего сносить не придется.По его словам, строительство прачечной в подвале может стоить всего 1000 долларов.
Однако домовладельцы, которые предпочитают прачечную или прачечную (в которой помещается только стиральная машина и сушилка) ближе к спальне, могут ожидать, что установка будет стоить около 10 000 долларов, отмечает Салливан. По его словам, если вы хотите по-настоящему повысить привлекательность своего дома, стоимость крупномасштабной прачечной (с раковиной и шкафами для хранения вещей) может легко превысить 15000 долларов.
2 из 11
Эффективность использования энергии (устройства и окна)
- Доля покупателей, которым нужна эта функция : 89%
- Стоимость установки : Зависит от устройства
Потенциальные покупатели, стремящиеся к ограничению счета за коммунальные услуги будут выставлены на недвижимость с окнами и приборами, соответствующими требованиям Energy Star.«Прошли те времена, когда такие функции были аномалией. Сегодняшние покупатели жилья ожидают повышения энергоэффективности», — отмечает Льюис из Compass. Если у вас еще нет этих функций, изучите свой бюджет на реконструкцию и решите, на что вы можете позволить себе потратить.
Энергоэффективные окна позволяют сократить расходы на отопление и охлаждение на 12%, в то время как отдельные приборы, такие как стиральная машина с сертификатом Energy Star (от 598 до 1799 долларов в Home Depot), могут сэкономить домовладельцам 45 долларов в год или больше на счетах за коммунальные услуги. .Замена существующей сушилки для белья на энергоэффективную версию может сэкономить до 245 долларов в течение всего срока службы устройства.
Окна, соответствующие требованиям Energy Star, имеют невидимое стеклянное покрытие, герметичные пространства между стеклами, заполненные инертным газом, более прочную герметизирующую пленку, чем у обычных окон, и улучшенные материалы каркаса — все это снижает нежелательный приток тепла и потери в доме. Посудомоечная машина, имеющая сертификат Energy Star (цена варьируется от 348 до 1709 долларов в Home Depot), использует датчики почвы, чтобы оценить, насколько грязная ваша посуда, чтобы минимизировать потребление воды.
После установки продавцы должны обязательно включить эти функции экономии денег в свои домашние списки.
3 из 11
Патио
- Процент покупателей, которым нужна эта функция : 87%
- Стоимость установки : 1024 доллара за 120 квадратных футов для бетонного патио
Домовладельцам важно не пренебрегать — говорит Майк МакГрю, председатель и главный исполнительный директор McGrew Real Estate, риэлторской фирмы, расположенной в Лоуренсе, штат Канзас.На сегодняшнем рынке жилья открытые жилые помещения стали самой желанной особенностью дома на открытом воздухе.
«Когда большинство покупателей видят дом с действительно красивым задним двором, они начинают представлять себя сидящими на открытом воздухе с друзьями за напитками», — добавляет МакГрю. Кроме того, открытые площадки предлагают больше жилого пространства без затрат на крупномасштабную пристройку дома.
С ростом популярности реалити-шоу о ремонте домов многие покупатели стали ожидать привлекательных функций, которые они видят по телевизору в реальной жизни.- говорит Лаутц. Некоторые из этих шоу, в том числе «Самый отчаянный пейзаж Америки» от DIY Network и «Going Yard» HGTV, посвящены жилым пространствам на открытом воздухе. В настоящее время покупатели дома представляют себе все, от открытого костра с сидячими местами до бара с раковиной на заднем дворе.
4 из 11
Потолочный вентилятор
- Процент покупателей, которым нужна эта функция : 85%
- Стоимость установки : 473 доллара за светильник с комплектом освещения и пультом дистанционного управления
В дополнение к улучшению дома Эстетичные, энергоэффективные потолочные вентиляторы (от 76 до 1858 долларов в Lowe’s) также могут помочь снизить затраты на охлаждение при использовании вместе с кондиционером в теплые месяцы.
Потолочные вентиляторы создают эффект охлаждения ветром, который помогает охладить людей, сидящих в комнате. Согласно Energy.gov, домовладельцы должны иметь возможность поднять уровень термостата на четыре градуса без снижения комфорта во время работы вентилятора.
Energy.gov также рекомендует использовать потолочные вентиляторы только в помещениях с высотой потолка не менее восьми футов. Вентиляторы лучше всего работают на этой высоте и когда они подвешены на 10–12 дюймов ниже потолка.
5 из 11
Место для хранения в гараже
- Процент покупателей, которым нужна эта функция : 85%
- Стоимость установки : 2025 — 2363 доллара за 380 квадратных футов
Покупателям с растущими семьями нужно много пространство для хранения.Потенциальным продавцам следует иметь в виду, что «оптимальная жизнь означает, что у вас в кармане больше долларов во время распродажи», — говорит Льюис из Compass. Он добавляет, что это будет иметь решающее значение в ближайшие месяцы, когда рынок жилья начнет нормализоваться и домовладельцы получат доступ к практичности своих существующих жилых помещений. Вырезание места в гараже, чтобы убрать беспорядок на главном уровне, может помочь вам в прибыли. «Убедитесь, что бонусное пространство легко доступно и прекрасно организовано», — советует Льюис.
В отличие от чердака или сарая на заднем дворе, гараж доступен — как правило, всего в нескольких шагах от остальной части дома — что упрощает транспортировку таких предметов, как инструменты, садовые стулья или ящики, к другим частям и обратно. дома.
Указанная здесь стоимость установки включает добавление шкафов и стеллажей, настенных панелей для хранения инструментов, верхнего освещения и дополнительных электрических цепей.
6 из 11
Наружное освещение
- Процент покупателей, которым нужна эта функция : 85%
- Стоимость установки : 66 долларов.77 на приспособление
Освещение ухоженного газона наружным освещением может помочь привлечь внимание потенциальных покупателей еще до того, как они войдут в переднюю дверь. Фактически, внешнее освещение — вторая наиболее востребованная наружная функция (на первом месте патио), согласно отчету NAHB. Варианты включают точечные светильники, светильники для дорожек и подвесные светильники.
Помимо эстетики, внешнее освещение также служит дополнительной функцией безопасности для вашего дома, — говорит Дэниел Херст, владелец и генеральный менеджер Hurst Design-Build-Remodel, компании по ремонту домов в Миддлбург-Хайтс, штат Огайо.Например, освещение с датчиком движения включается автоматически при движении за пределами вашего дома.
7 из 11
Walk-In Pantry
- Процент покупателей, которым нужна эта функция : 83%
- Стоимость установки : Зависит в зависимости от дизайна
Walk-In Pantry — это наиболее- желанная кухня среди покупателей, опрошенных в отчете NAHB. Почему? Покупатели дома с семьями знают, что кухня может быстро переполниться, когда не хватает места для хранения самого необходимого (подумайте: консервы, приправы и контейнеры для хранения продуктов).А тем, кто делает покупки оптом в складских клубах или у крупных розничных торговцев, чтобы не совершать частые поездки и не сталкиваться с толпой в магазинах, потребуется дополнительное место на кухне для хранения своих товаров.
В отличие от кладовых с выдвижными шкафами с раздвижными дверями, которые предлагают ограниченное пространство, версии для прохода позволяют домовладельцам хранить большее количество нескоропортящихся продуктов и других предметов первой необходимости в нескольких шагах от зоны для приготовления еды, — предполагает Нил Парсонс, дизайнер проекта Move or Improve, Matawan, N.Фирма по домашнему дизайну из J.
По данным ThisOldHouse.com, кладовые обычно имеют размер 5×5 футов и имеют U-образные открытые полки или шкафы со столешницей. Убедитесь, что кладовая находится в прохладном и сухом месте.
8 из 11
Паркетные полы
- Процент покупателей, которым нужна эта функция : 83%
- Стоимость установки : 1800 долларов за 120 квадратных футов на укладку и отделку паркетных полов
Паркетные полы предлагают Более чистый вид, проще в уходе и долговечнее, чем ковер, который нужно менять каждые 8-10 лет.«Древесину твердых пород можно периодически обрабатывать, и она служит на протяжении всей жизни», — говорит Салливан.
Продавцы с ограниченным бюджетом могут захотеть купить паркет из инженерной древесины (который представляет собой фанеру из твердых пород дерева, обернутую вокруг нескольких слоев фанеры, ДВП и твердой древесины). Вы можете рассчитывать заплатить около 1200 долларов за установку 120 квадратных футов готового деревянного пола — почти на 15% дешевле, чем пол из чистой твердой древесины.
9 из 11
Гардеробная (главная спальня)
- Стоимость установки : Зависит от дизайна
Хотя гардеробные не входят в число основных требований покупателей жилья, они очень высоки. пользуется спросом среди покупателей жилья впервые и во второй раз, по данным NAHB.Гардеробная в главной спальне входит в пятерку их главных особенностей.
Если вы живете в старом доме со встроенным шкафом, возможно, пришло время для ремонта, если вы планируете выставить его на продажу. Пары обычно хотят иметь более просторный шкаф, потому что они будут делить его, предполагает Мария Замора, агент по недвижимости из Аддисона, штат Техас. Между тем, одиноким людям может потребоваться гибкость, позволяющая хранить свои личные вещи — от одежды. обувь, украшения и другие аксессуары — в одном месте, сохраняя при этом порядок.«Дома без гардеробной в главной спальне сложнее продать и, как правило, привлекают меньше покупателей», — говорит Замора.
Для потенциальных продавцов старых домов, в которых меньше места, полный ремонт туалета в главной спальне может оказаться непрактичным. Однако у вас все еще есть варианты, которые помогут сделать вашу недвижимость более привлекательной. Обновите существующий встроенный шкаф, установив организационную систему со стеллажами и вешалками для одежды. Вы можете приобрести сборную систему в IKEA, цена которой варьируется от 129 до 1769 долларов.Чтобы сэкономить деньги, вы можете пойти по пути DIY и установить его самостоятельно. Или вы можете попросить специалиста ИКЕА сделать эту работу за вас за дополнительную плату. Вы также можете нанять консультанта из фирмы по индивидуальному дизайну шкафов, такой как The Closet Factory, чтобы оценить ваше пространство и спроектировать систему организации, которая соответствует вашим потребностям. Стоимость будет варьироваться в зависимости от ваших требований.
Если у вас пустое гнездышко, вы даже можете превратить соседнюю меньшую комнату в индивидуальную гардеробную. В зависимости от качества используемых материалов (например, стеллажи из массивной древесины vs.деревянные стеллажи из шпона), этот тип проекта может варьироваться в цене от 1000 до 6500 долларов, согласно HomeAdvisor.com.
10 из 11
Кухня с питанием от еды
- Стоимость установки : Зависит от дизайна и структурных требований
Кухня с питанием без еды является обязательной для покупателя вторичного жилья, опрошенного NAHB . Они особенно привлекательны для семей с детьми. Это место, где они могут собраться утром за завтраком или вечером за ужином, чтобы каждый мог поделиться яркими моментами своего дня.
Удаление ненесущей стены, чтобы освободить место для небольшого стола и стульев на кухне, стоит относительно недорого (всего 1000 долларов), но эта цена может быстро возрасти, если в результате сноса обнаружится водопровод, воздуховоды и электрическая проводка, которые необходимо удалить, говорит Парсонс из Move or Improve.
Если у вас ограниченный бюджет и вы не можете позволить себе выбить стену, чтобы освободить место для стола и стульев, подумайте о добавлении центрального острова с местом для барных стульев, — предлагает он.Вы можете приобрести сборные кухонные острова с местом для сидения в Home Depot (от 309 долларов) и Lowe’s (от 286 долларов).
11 из 11
Столовая
- Стоимость установки : 5800 — 6800 долларов для ремонта существующего помещения площадью 190 квадратных футов
В последние годы официальные столовые (и закрытые планы этажей) стали заднее сиденье для концепций открытого пола в современных домашних моделях. Хотя эти планировки помогают максимизировать пространство, по-прежнему есть покупатели, которым нужен шарм и уникальные особенности, присущие более старым домам.Это включает в себя отдельную обеденную зону, отличную от кухни. На самом деле, отдельная столовая входит в десятку основных предметов первой необходимости для покупателей жилья, впервые и во второй раз, сообщает NAHB.
Благодаря открытой планировке этажей «многие люди сидят на своем кухонном острове и быстро перекусывают в неформальной обстановке», — говорит Шеннон Линч, агент по недвижимости из Savvy + Co. Real Estate, агентства по недвижимости из Шарлотты, Северная Каролина. фирма. «Сидеть в столовой имеет для себя чувство важности … Это заставляет ваших гостей чувствовать себя особенными», — добавляет она.Это особенно актуально во время праздничных посиделок или семейных обедов. Если у вас старый дом с закрытой планировкой, возможно, пришло время модернизировать зону столовой, чтобы привлечь покупателей. Стоимость, указанная здесь для мелкого ремонта, включает установку нового пола, дверей, распределительных щитов, декоративной фурнитуры и встроенного освещения. Многие из этих функций входят в стандартную комплектацию новых домашних моделей.
Если в вашем доме открытая планировка, все же есть способы создать отдельную обеденную зону.Вы можете добавить осветительный прибор над столом или встроить потолочный поддон, чтобы определить конкретную область основного жилого уровня — возможно, рядом с кухней. Другой вариант: вместо сплошной стены установить декоративные колонны. Добавление подвесного потолка или декоративных колонн может стоить до 6000 долларов и включает в себя материалы, установку и труд, отмечает Парсонс.
Дизайн нового дома и планы дома
Дизайн нового дома и планы дома | Hickinbotham домаПросто нажмите кнопку «Избранное», чтобы добавить дизайн в избранное.
Наш ассортимент домов
Ищете новый дом или инвестиционную недвижимость, но не можете сузить все варианты? Команда Hickinbotham может посоветовать вам лучший дизайн дома, соответствующий вашему образу жизни, вашим планам на будущее и вашей земле, чтобы вы могли сделать для себя наилучшее вложение.
Благодаря нашему ассортименту, включающему более 300 проектов, в сочетании с исключительным сервисом, который мы стремимся предоставлять, мы ежегодно с 2006 года удостаивались награды «Строитель № 1 в Южной Австралии» Ассоциацией жилищной промышленности. Наши клиенты оценивают наши услуги на 9/10. Мы хотим превзойти ваши ожидания, и мы хотим, чтобы ваш новый дом или вложение были тем, что вам понравится, поэтому мы стараемся работать с одними из лучших архитекторов, дизайнеров интерьеров, строителей и представителей традиций, которые может предложить Австралия.
За более чем 60 лет проекты домов Hickinbotham эволюционировали на основе последних инноваций в архитектуре и строительстве по всему миру и, что еще более важно, на основе отзывов, которые мы получили от наших клиентов, которые сделали дома Hickinbotham своими собственными.
Важно отметить, что когда вы покупаете или строите вместе с Hickinbotham, вы получите наилучшую возможную ценность. Как крупнейший и старейший застройщик и застройщик жилья в Южной Австралии, Hickinbotham может закупать материалы в огромных количествах и получать огромные скидки от поставщиков. Это означает, что мы можем передать вам экономию, не сокращая затрат на качество изготовления, которое требуется при проектировании и строительстве вашего нового дома.
Ассортимент Hickinbotham, из которого вы сможете выбрать, включает в себя исключительный набор из более чем 300 дизайнов домов и фасадов, разработанных для разных стилей жизни, независимо от того, ищете ли вы большой семейный дом для роста или первый дом чтобы вы начали владеть собственностью.Если вы впервые инвестируете или добавляете в свой портфель инвестиций в недвижимость, вам также будет приятно узнать, что многие из наших проектов идеально подходят для небольших блоков.
Наши виллы, двор, семейные, двухэтажные и таунхаусы были тщательно спроектированы с учетом потребностей современной жизни. Мы не оставляем камня на камне, работая с вами, чтобы точно узнать, что вам нужно.
Мы знаем, что двойной навес для машины под основной крышей необходим, а удобная внутренняя дверь в гараже означает, что вам не нужно таскать продукты под дождем.Если у вас есть семья, хранение — это все, поэтому мы позаботимся о том, чтобы в наших семейных домах были продуманные варианты хранения, чтобы поддерживать порядок. Кухня и гостиная — это сердце дома, но мы также хотим, чтобы вы могли максимально использовать наш средиземноморский климат, поэтому мы включили 76 планов этажей по всему ассортименту, в которых есть обеденная зона на открытом воздухе для круглогодичного отдыха. Мы также рассмотрим ориентацию вашего нового дома, чтобы вы могли контролировать воздействие солнечных лучей на основные жилые помещения.Мы продумываем все это и предлагаем вам варианты, чтобы убедиться, что результат вам понравится на долгие годы.
Если вы хотите построить дом на земле, которая у вас уже есть, или в одном из общественных имений Hickinbotham Group, мы сделаем все возможное, чтобы ваш путь к новому домовладению соответствовал вашим ожиданиям и даже больше.
The Villa Range
6,5–12 м в ширину
119,59 м 2 –197,54 м 2 (12,87–21,26 квадратов)
Дома на виллах, спроектированные для узких участков земли, предлагают продуманные дизайнерские решения, но при этом достаточно просторны. вместить до четырех спален и гаража.
Умный дизайн включает в себя светлые, просторные жилые зоны открытой планировки, чтобы объединить семью и друзей, и предлагает множество других удобных функций, таких как халаты, главные ванные комнаты и гаражи с внутренним доступом.
Не требующие особого ухода, но удивительно просторные и доступные по цене дома на виллах идеально подходят как для первых покупателей жилья, так и для пустующих гостей и инвесторов.
Просмотреть все виллы HomesThe Courtyard Range
10–12,89 метров шириной
154.69m 2 –218.93m 2 (16.65–23.56 квадратов)
Дома Courtyard с большими многофункциональными жилыми и развлекательными зонами — это выбор для тех, кто заботится о своем образе жизни.
Во всем ассортименте вы найдете под открытым небом, которые приносят наружу, а также просторные кухню и жилые помещения, которые создают условия для совместной готовки и оживленных встреч. Удобные кладовые «дворецкого» и внутренние кладовые в некоторых вариантах дизайна служат источником вдохновения для домашнего повара и тех, кто любит организовывать.Добавьте к этому отдельную формальную столовую и уютные домашние кинотеатры, дома Courtyard сделают вас непринужденным развлечением в любое время года.
Благодаря продуманному дизайну, освещению и видам на сад, дома Courtyard дают ощущение пространства, которое обычно бывает только в домах такого размера.
Посмотреть все дома CourtyardСемейная серия
14–26,75 метров в ширину
106,52 м 2 –336,14 м 2 (11,46–36,18 квадратов)
Для растущих семей эта серия подчеркивает удобство без ущерба для роскоши .
Эффективный дизайн поддерживает порядок в семейной рутине, с возможностью установки двойных туалетных столиков в главной спальне и инновационных трехсторонних ванных комнат для предшкольных часов пик. А с широкими решениями для хранения, которые включают встроенные халаты, просторные кладовые, зоны для хранения школьных ранцев и кладовые рядом с гаражом для вашего садового и спортивного снаряжения, поддерживать все остальное в порядке также проще простого.
Гостиные зоны открытой планировки дополняются просторными развлекательными помещениями, такими как шумные комнаты, светлые открытые площадки и роскошные домашние кинотеатры, а продуманная планировка, включающая до шести спален, позволяет спать и уединяться в спа-салонах вдали от шума и суеты.
Эти просторные дома идеально подходят для больших участков и сельской местности.
Посмотреть все семейные домаДвухэтажный ряд
5,5–18,21 метра в ширину
169,38 м 2 –408,071 м 2 (18,23–43,99 квадратов)
Дома на втором этаже предлагают лучшее в просторном дизайне, обеспечивая сады. максимизировать, и вывести гибкие варианты жизни на новый уровень.
Просторные места для хранения вещей и просторные кухонные скамейки — это практичный дом, а просторные спальни и роскошные главные апартаменты с балконами с видом на окна привносят роскошь стиля жизни.
Большие стеклянные двери и окна наполняют комнаты светом и делают окна главной спальни красивыми.
С четырьмя спальнями и тремя жилыми зонами, расположенными на двух уровнях, дом на втором этаже означает, что у каждого есть свое место для игр, учебы и отдыха с комфортом.
Посмотреть все двухэтажные домаТаунхаусы
4,8–8 м в ширину
157,98 м 2 –328,09 м 2 (17,00–35,31 квадратов)
Двухуровневый таунхаус, сочетающий практичный и роскошный дизайн Дизайн предлагает просторные решения для дома, идеально подходящие для узких и разделенных участков.
Дома позволяют максимально увеличить жилую площадь при минимальном использовании земельного участка, предоставляя возможности для городского образа жизни вашей мечты в районах, где земля в цене.
Проекты включают жилые зоны открытой планировки с кухней в качестве центрального узла, множество развлекательных пространств внутри и снаружи, роскошные главные апартаменты, продуманно расположенные вдали от оживленных жилых зон, и элегантные элементы дизайна интерьера.
Доступные и универсальные конструкции таунхаусов — это новые дома, которые выбирают те, кто ищет удобную, связанную, не требующую обслуживания жизнь с городской окраиной.
Просмотреть все таунхаусыСТАТЬ HICKINBOTHAM VIP
Узнавайте первыми о последних новостях, специальных предложениях и отраслевых советах
Сколько длится пролет по лестнице (для потолков 8 и 10 футов)
Перестройка дома с включением или заменой лестницы — сложная работа, требующая больших навыков. Независимо от того, готовы ли вы принять вызов или нанять кого-нибудь для выполнения этой задачи за вас, вам может быть интересно, какой длины должен быть лестничный пролет. Мы завершили это исследование для вас, чтобы вы могли быть уверены в своей способности определить, какой размер лестницы лучше всего подходит для вашего дома.
В большинстве домов длина лестничного марша составляет от 9 до 12 футов. Общая длина лестничного марша для 8-футового потолка составляет приблизительно 9 футов. Общая длина лестничного марша для 10-футового потолка составляет приблизительно 12 футов.
Важно иметь в виду, что, хотя этот ответ может дать вам общее представление о размере лестницы, которая может вам понадобиться в зависимости от высоты потолка вашего первого этажа, есть и другие факторы, которые вам необходимо учитывать, чтобы получить более точную и индивидуальные измерения для вашего дома.Коды состояний, размеры лестницы, дополнительные функции и расположение лестницы — все это повлияет на окончательные измерения. Пожалуйста, оставайтесь с нами, поскольку мы исследуем каждое из этих соображений.
Создание лестницы
Коды штатов
Строительные нормы и правила вашего штата — это первые ресурсы, к которым вы захотите обратиться при проектировании лестницы. Строительный кодекс может показаться сложным, но он даст вам необходимые инструкции, чтобы убедиться, что ваша лестница построена безопасно, и сузит некоторые варианты дизайна.
Размеры лестницы
Когда у вас есть измерение общей площади, которую необходимо соединить лестницей, что можно сделать, измерив расстояние между полом вашего первого уровня и полом вашего второго уровня, вам нужно будет принять решение относительно вашего лестница.
Подъем
Подъем лестницы — это высота каждой ступеньки на вашей лестнице. Большинство государственных кодексов требуют, чтобы лестница была не менее четырех дюймов в высоту, но не более восьми дюймов в высоту.Вы можете выбрать любой из этих требований, но распространено мнение, что подъем примерно на семь дюймов обеспечивает наиболее удобный шаг. Определив высоту подъема для лестницы, вы сможете определить, сколько всего лестниц вам понадобится.
Бег
Маршрут относится к глубине или плоской части каждой лестницы. Большинство государственных кодексов предписывают, чтобы длина лестничного марша составляла не менее девяти дюймов, но 10 дюймов считаются наиболее комфортным спуском для лестничного марша.
Дополнительные функции
Хотя не все функции являются дополнительными, все они являются дополнением к вашей лестнице, и для их размещения потребуется дополнительное пространство на земле.
Перила
Многие государственные нормы требуют, чтобы перила были установлены на любой лестнице, имеющей более четырех ступенек. Пространство, которое займет ваша перила, зависит от стиля перил, который вы выберете. Стандартные перила будут иметь высоту от 34 до 38 дюймов. Более простые перила будут иметь минимальную ширину, а более декоративные перила могут быть более громоздкими.Было бы полезно выбрать проектируемые перила и измерить их перед установкой лестницы, чтобы вы могли быть уверены, что у вас есть подходящее место для того, которое вы выберете.
Посадки
Если у вас нет особо высоких потолков, вам, скорее всего, не потребуется устанавливать площадку на лестнице дома. Однако вы можете включить лендинг по эстетическим соображениям. Опять же, размеры предлагаемой вами лестничной площадки должны быть включены в пространство, которое вы выделяете для своей лестницы, а для более сложных площадок потребуется больше места.
Жилье
Если кто-то в вашем доме нуждается в мобильности, вы можете подумать о том, чтобы приспособить его к лестнице. Лестничный подъемник, например, можно надстроить на перила, установленные у стены. Хотя стандартная ширина лестницы составляет три фута, ваша лестница должна быть шире, чтобы приспособиться к этой функции.
Расположение лестницы
Расположение вашей лестницы также повлияет на количество необходимого места.Например, если вы можете расположить свою лестницу у существующей стены, вам потребуется меньше места для постройки лестницы, чем если бы ваша лестница была расположена в центре вашего дома.
Какой стандартный размер лестницы?
Стандартная ширина лестницы составляет 3 фута 6 дюймов. Сложнее определить стандартную высоту или длину лестницы, поскольку эти размеры зависят от высоты потолка и стены, размеров каждой лестницы и дополнительных функций, таких как площадки, которые мы обсуждали ранее.
Как определить, сколько места нужно для лестницы?
Чтобы определить, сколько площади вам нужно будет выделить для вашей лестницы, вам нужно будет выполнить несколько измерений, чтобы определить, насколько большой будет ваша лестница. Вот несколько шагов, которые необходимо выполнить, чтобы упростить этот процесс:
- Измерьте расстояние между полом первого уровня и полом второго уровня. Этот расчет и будет общим подъемом лестницы. Например, если между этими двумя областями есть 8 футов, ваш общий подъем составит 96 дюймов.(Использование дюймов в качестве единиц измерения облегчит ваши вычисления.)
- Разделите количество дюймов в общем подъеме на желаемую высоту каждой ступеньки в дюймах. Стандартная лестница имеет высоту около 9 дюймов, поэтому для этого примера вам понадобится 11 ступенек.
- Умножьте количество ступеней на ширину каждой ступени. В этом примере 11 лестниц, умноженных на минимальную ширину в девять дюймов, дают общую длину лестницы 99 дюймов.
- Общая длина марша — это количество места, которое вам понадобится для вашей лестницы.В этом примере 99 дюймов (или 8 футов 3 дюйма) нужно будет выделить для вашей лестницы.
- Имейте в виду, что этот расчет будет другим, если вы решите добавить к своей лестнице перила, площадку или другие элементы.
Несколько слов о посадках
В одном лестничном пролете площадка находится непосредственно перед тем, как вы ступите на лестницу или спуститесь с лестницы. В случае нескольких лестничных пролетов площадка для приземления обычно больше, чем стандартная лестница, которая обеспечивает место для перерыва перед переходом на следующий лестничный пролет.Потребуется ли лестничная площадка для лестницы вашего дома, зависит от ее длины.
Сколько лестниц вы можете иметь, прежде чем вам понадобится лестничная площадка?
Лестницы должны иметь площадку, если общий вертикальный подъем превышает 12 футов. Как это соотносится с вашей домашней лестницей? Средняя высота жилой лестницы составляет от 7,5 до 9 дюймов. Это означает, что ваша лестница может иметь от 16 до 19 ступенек, прежде чем вам потребуется установить площадку.
Считается ли посадка ступенькой?
Количество ступенек на лестнице определяется количеством раз, когда вам нужно поднять ногу, чтобы перейти на новую платформу.Хотя площадка для отдыха — это естественное место на лестнице для отдыха, она по-прежнему считается ступенькой, потому что вам нужно поднять ногу, чтобы попасть на площадку.
Сводка
Проектирование лестницы для вашего дома требует обширных знаний как в области строительства, так и в соответствии с законодательством вашего штата. Хотя лучше доверить такую сложную работу профессионалам, знание процесса и понимание решений, которые вам придется принять, сделают проект более гладким и менее затратным.Для получения дополнительной информации о ремонте или установке лестницы в вашем доме ознакомьтесь с этими статьями:
Какой тип лестницы занимает меньше всего места?
Сколько места на полу обычно занимает лестница?
Где в доме должны быть лестницы (и можно ли их перенести)?
.

Все комнаты находятся на одной плоскости, эффективно функционирует каждый уголок;
Не требуется большое количество дополнительных материалов при строительстве стен и отделочных работ, так как основная часть территории находится в чердачном помещении. К тому же мансарду можно достроить и позже имея уже завершённый одноэтажный дом;
На междуэтажном утеплении вы также экономите;
45м (18 венцов бруса), 2-й (мансардный) этаж – 2.40м
Отделка лестницы: стартовые столбы, перила – резные, балясины – точеные, ступени и тетива — строганные
Добавить комментарий