Черчение программа: 5 лучших программ для черчения на компьютере
лучшие программы для черчения ✍
С каждым годом наука постепенно переходит в электронный формат, ведь это намного удобнее и проще. Не нужно больше носить с собой пачки чертежей и прочие для этого принадлежности – на компьютере можно создать любой чертёж и сохранить его на флешку. Именно поэтому большинство людей предпочитают использовать специальные компьютерные программы для черчения.
На данный момент существует огромное количество программ, позволяющих создавать чертежи разных сложностей. Среди них можно выделить пару самых популярных и качественных представителей — «AutoCad», «Компас», «NanoCad». Данные программы разрабатывались с использованием современных вычислительных систем и механик, поэтому они лучше всего подходят для профессиональной работы. Также есть более простые варианты по типу: «A9CAD», «CorelDRAW Technical Suite», «VariCAD», «LibreCAD», «Graphite», «DraftSight», «FreeCAD». Они имеют существенно меньше функций, однако их преимущество заключается в хорошей оптимизации и низком потреблении ресурсов компьютера.
Профессиональные утилиты довольно сложны в освоении. Для работы в AutoСad нужно пройти обучение и знать весь функционал наизусть. Тот же Graphite или FreeCAD гораздо проще в освоении. Немаловажную роль играет и цена, ибо не каждый студент способен отдать пару десятков долларов за программу. Да, платные программы имеют больше преимуществ, однако у них существует огромное количество аналогов, которые лишь незначительно уступают по качеству. Итак, детально пройдёмся как по платным, так и бесплатным утилитам для черчения.
Читайте также: Лучшие программы для рисования на компьютере и планшете.
Как правильно выбрать программу для черчения на компьютере
Выбор утилиты для осуществления чертежей дело ответственное, ведь неправильный выбор может сильно отразится на вашей продуктивности и качестве работы. Ведь главное в программе – это удобство, интерфейс, оформление и количество функций.
- Новички, как правило, имеют лишь базовые навыки черчения, поэтому огромное количество новых и сложных функций могут просто путать и сбивать с толку. В таком случае лучше всего обратить внимание на простые утилиты с простым интерфейсом и пару десятков функций.
- Также во время выбора стоит уделять внимание минимальным системным требованиям программы. Для комфортной работы компьютер должен хорошо справляться с нагрузками и выдавать плавную картинку.
- Немаловажен и язык интерфейса. Если программа будет на английском или другом языке, то использовать её будет проблематично. Поэтому если вы не знаете английский, то обращайте своё внимание только на утилиты с поддержкой русского языка.
- Обращать внимание стоит и на стоимость. Ведь далеко не каждый может позволить себе купить утилиту за пару десятков долларов. Можно обратить внимание на не менее качественные бесплатные аналоги, либо установить пиратскую версию.

- Год выпуска программы имеет особое значение. Ведь чем свежее утилита, тем более качественные и проработанные в ней инструменты.
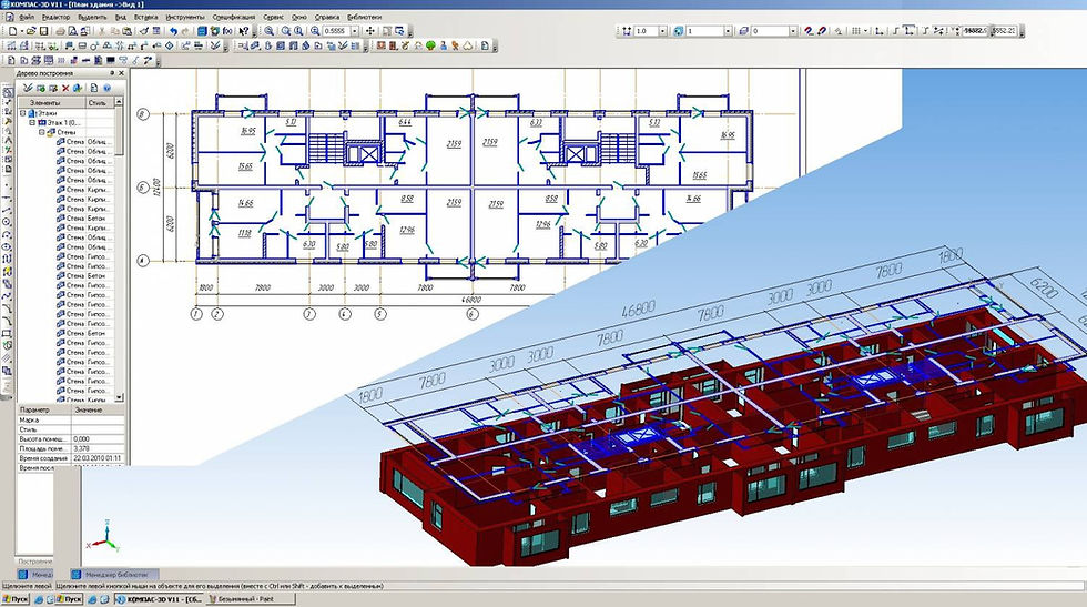
Компас-3D
Это довольно популярная и известная утилита, разработанная компанией АСКОН. Это отличный вариант для профессионалов, которые разбираются во всех инструментах. Но и благодаря системе подсказок, Компас-3D отлично подойдёт и для новичков. К слову, здесь имеется возможность работы над проектом одновременно сразу с нескольких компьютеров, что существенно ускоряет рабочий процесс.
Плюсы:
- Огромное количество функций.
- Русифицированный интерфейс.
- Поддержка большого количества форматов.
- Простой и понятный в освоении интерфейс.
- Удобная система масштабирования и поворота.
- Поддержка всех версий ОС Windows.
Минусы:
- Высокие системные требования.
Autodesk Autocad
Программа профессионального уровня, позволяющая создавать чертежи не только в 2D, а и в 3D пространстве.
У программы существует своё облако, куда можно сохранять свои работы, при этом не забивая жесткий диск устройства.
Для удобства имеется режим совместной работы, в котором над одним проектом можно будет работать с нескольких устройств. Среди прочих функций можно выделить возможность публикации результата в различных соцсетях.
Плюсы:
- Большое количество инструментов
- Режим совместного редактирования
- Простой и понятный интерфейс
- Поддержка русского языка
- Бесплатный пробный период на 30 дней
Минусы:
- Высокая стоимость
nanoCAD
По своему интерфейсу программа чем-то напоминает AutoCAD. Но в отличие от «АвтоКада», данная программа больше подойдёт для новичков. Также данная программа полностью соответствует всем отечественным стандартам, а поэтому очень часто используется на различных предприятиях.
Плюсы:
- Соответствие стандартам САПР
- Простой и понятный интерфейс
- Низкие системные требования
- Хорошая оптимизация
Минусы:
- Нет
A9CAD
Довольно простая программа от английского разработчика.
Программа позволяет работать исключительно с 2D чертежами и имеет все необходимые для этого инструменты. Единственное, здесь нет официальной поддержки русского языка. Интерфейс довольно простой, так как сама программа весит немного.
Плюсы:
- Простой интерфейс
- Небольшой размер программы
- Возможность вставлять графические элементы
Минусы:
- Отсутствие русского языка
Home Plan Pro
Если предыдущие программы были разноплановыми, то Home Plan Pro специализируется на проектировке плана дома. Для ознакомления доступен целый сборник готовых шаблонов с возможностью редактирования.
Здесь присутствуют все необходимые для работы инструменты: вставка картинок, линии, овалы, квадраты, вставка текста и масштабирование.
Плюсы:
- Возможность экспорта чертежей в растровом формате
- Простота использования
- Ознакомительный период в 45 дней
- Невысокая стоимость
- Наличие шаблонов
Минусы:
- Узкий спектр применения
Ashampoo® 3D CAD Architecture 6
Данная программа позволяет создавать чертежи домов и прорабатывать даже самые мелкие детали интерьера.
При помощи уникальных инструментов можно самостоятельно создавать крыши, лестницы, стены и прочие детали. Готовый проект можно отрендерить и получить красивую картинку благодаря наличию симуляции освещения и теней. Хорошим бонусом станет система измерения углов, площадей и длин.
Плюсы:
- Простой интерфейс
- Встроенный планировщик поверхностей
- Подключение пользовательских библиотек
- Возможность работы с текстурами, включая 3D
- Низкие системные требования
Минусы:
- Небольшое количество инструментов
Дизайн интерьера 3D
Популярная программа, предназначенная для черчения и планировки интерьера. Имеет уникальный, простой и одновременно приятный интерфейс с множеством подсказок.
Программа содержит огромное количество шаблонов объектов: шкафы, двери, тумбы, диваны, раковины и окна. Также здесь есть встроенные текстуры, которые можно установить на любой объект.
Одним словом, здесь есть всё для полноценной работы. К слову, здесь есть возможность работать не только в 2Д формате, но и в 3Д.
Плюсы:
- Возможность работы сразу в нескольких форматах
- Простой и приятный интерфейс, наличие подсказок
- Огромное количество шаблонов
- Наличие встроенных текстур и объектов
- Регулярные обновления с новыми инструментами
Минусы:
- Отсутствие возможности рендеринга
Sweet Home 3D
Данная программа больше предназначена для графического оформления, нежели для черчения. В ней присутствует достаточное количество готовых объектов мебели, которые можно использовать в своём проекте. Имеется возможность просматривать проект в 2Д или 3Д.
Плюсы:
- Простой интерфейс
- Отсутствие сложных и лишних функций
- Наличие готовых объектов
Минусы:
- Сомнительное качество картинки
SketchUp
Программное обеспечение, которое можно использовать практически для всего.
Базовая загрузка бесплатна, доступны онлайн-учебники, а ПРО-версия совместима с основными форматами файлов чертежей, поэтому ее можно импортировать и экспортировать другим специалистам. Существуют плагины, позволяющие создавать фотореалистичные изображения, но чаще всего достаточно простых трехмерных эскизов.
Плюсы:
- Поддержка различных плагинов
- Большое количество обучающего материала
- Удобный и понятный интерфейс
- Возможность рендера модели
- Поддержка большого количества форматов
Минусы:
- Высокие системные требования
ABViewer
Интерфейс этой программы чем-то схож с интерфейсом от Microsoft. Практически все кнопки и функции выглядят как у Word, Exel или PowerPoint. Из-за этого многие люди считают ABViewer продукцией от Microsoft, но это не так. Интерфейс у ABViever выглядит эстетично, все функции поделены на блоки и расположены в верхней части экрана. То есть, для того что бы найти какую-нибудь фигуру, нужно всего лишь открыть одноимённый раздел.
В качестве пометки можно добавить текст на чертёж и даже придать ему шрифт. Сам процесс черчения достаточно прост, так как здесь отсутствуют лишние настройки и параметры.
Плюсы:
- Пробный период в 45 дней
- Большое количество полезных функций
- Приятное оформление интерфейса
- Удобное расположение панели инструментов
- Низкие системные требования
Минусы:
- Некоторые функции устарели
FreeCAD
FreeCAD имеет довольно схожий функционал с программой AutoCAD, которая считается самой популярной в мире. Большинство функций FreeCAD были взяты именно AutoCAD, при этом FreeCAD — абсолютно бесплатная программа. По факту, здесь всё те же возможности и функции. Из нюансов можно выделить лишь отсутствие возможности работы в 3Д формате и отсутствие поддержки русского языка. При этом программа поддерживает большое количество форматов, что позволяет уже готовый проект открыть в другой программе и продолжить редактирование.
Плюсы:
- Поддержка большого количества форматов
- Простота использования
- Минимальные системные требования
- Качественный аналог AutoCAD
Минусы:
- Отсутствие русского языка
- Отсутствие возможности работы в трёхмерном пространстве
Лучшая бесплатная программа для черчения
Как уже ранее говорилось, не все могут или хотят покупать программы за деньги. Ведь существует огромное количество бесплатных аналогов, которые хоть и не сравнятся с платными продуктами, но вполне справляются со своими обязанностями.
КОМПАС-3D — это, наверное, самая популярная программа в России. Свою популярность софт получил за русифицированный интерфейс и простоту использования. Это отличный инструмент для учебы или для создания продвинутых чертежей. К слову, здесь нет никаких ограничений, поэтому можно спроектировать делать любого формата или типа. КОМПАС-3D имеет поддержку ЕСКД и соответствует всем ГОСТам, что является несомненным плюсом.
Это гарантирует точность вычислений и операций, поэтому чертёж, созданный в этой программе, будет соответствовать всем стандартам.
Не удивительно, что программа является платной. Однако если вы студент или просто хотите использовать программу для себя, то существует бесплатная лицензия для дома. Единственное, в ней есть некоторые ограничения, но и без них вполне можно работать.
Лучшая платная программа
Достаточно популярный и в то же время дорогой продукт, который используют по всему миру. AutoCAD является эталоном для других программ, и это вполне заслуженно. Компания Autodesk ставится своей качественной и проработанной продукцией, которая полностью оправдывает свою стоимость за счёт большого количества уникальных систем.
В данной программе можно осуществить любую задумку различной степени сложности. Здесь собрано огромное количество инструментов, позволяющих сделать процесс черчения максимально простым и удобным. Такие с виду мелочи существенно экономят время.
Как у любой вещи, у AutoCAD есть неприятный недостаток в виде отсутствия возможности работы с российской системой ЕСКД. В качестве альтернативы выступает международная версия. Однако некоторые российские предприятия или компании отказываются от использования AutoCAD именно по этой причине. В принципе, это единственный крупный недостаток утилиты.
Если вас заинтересовала программа, но вы хотите ознакомиться с ней, при этом, не покупая её, то можно скачать пробную версию AutoCAD. Она абсолютно бесплатная и не имеет каких-либо ограничений.
Лучшие программы для черчения интерьера
При изучении дизайна необходимо соответствующее программное обеспечение. Вот три самых основных программы, которые изучает каждый дизайнер интерьера:
- AutoCAD: используется для рисования с полной точностью. Это приложение будет чрезвычайно полезно, если нужно рисовать технические чертежи (макеты, детали мебели). Его также можно использовать для моделирования объектов;
- 3DS Max: используется для рендеринга дизайнерских изображений и объектов.
3DS помогает создавать чертежи и преобразовывать их в изображение или 3Д модель. - Sketchup: почти такой же, как 3DS, но немного проще. Может использоваться как для визуализации, так и для моделирования одновременно. При этом не нужно создавать точную модель в AutoCAD, а затем импортировать ее в 3DS для рендеринга. Здесь можно сразу спроектировать одну или несколько деталей, а затем сделать их объемными.
Существует много других хороших приложений для 2D-черчения и 3D-конструирования, а также для рендеринга. Нет необходимости перечислять их, поскольку можно найти их в интернете.
Пиратские версии
В связи с высокой стоимостью некоторых программ начинают создаваться различные пиратские версии, за которые платить уже не нужно. Именно данный бесплатный вариант больше всего привлекает внимание людей, так как лишь единицы готовы отдавать 50-100 долларов за лицензионную версию.
С первого взгляда кажется, что пиратская версия программы для черчения является идеальным вариантом, ведь по факту платный продукт можно скачать абсолютно бесплатно.
Несмотря на существенный плюс в виде цены, у пиратских версий есть большое количество недостатков:
- Плохая работоспособность. Большинство взломанных утилит могут работать нестабильно, что проблематично, так как в любой момент программа может вылететь, а проект просто не успеет сохраниться. Всё это происходит из-за того, что во время взлома изменяется программный код, который после изменений работает по другому принципу.
- Отсутствие официальных обновлений. Пиратская версия программы не будет получать обновлений по ранее названным причинам. Отсутствие поддержки продукта компанией может привести к тому, что программа банально устареет. Также производитель старается периодически выпускать так называемые «фиксы», которые исправляют существующие ошибки. Если не будет таких обновлений, то программа для черчения будет работать со сбоями.
- Отсутствие безопасности при использовании. Не все сайты бывают добросовестными. Некоторые под видом программы выдают вирус, который при попадании на компьютер может иметь фатальные последствия.

- Сложный процесс установки. Практически все популярные утилиты имеют свою защиту от взлома, которую обойти не всегда удаётся. Именно поэтому были придуманы специальные способы установки, которые отличаются от обычных. Потребуется немало времени что бы разобраться как правильно установить пиратскую версию. К слову, не всегда это получается сделать как нужно.
Итог
В данном топе были собраны программы для черчения различных годов выпуска. Среди них были представители прошлого десятилетия и сегодняшнего времени. С каждым годом технологии развиваются, и программы стают лучше и совершенней. Однако есть большое количество «старых» программ, которые держатся на плаву благодаря качеству. Выбор программы для черчения – это ответственный шаг, так как утилиты банально могут не подходить по системным требованиям или по отрасли работы. Каждый должен решить сам, в какой программе есть потребность. Благодаря описанию, плюсам и минусами вы сможете выбрать наилучшую программу для себя, а огромное количество обучающих уроков помогут вам легко освоится в той или иной утилите для черчения.
Post Views: 702
Страница не найдена — Государственное бюджетное общеобразовательное учреждение средняя общеобразовательная школа №2 с. Приволжье муниципального района Приволжский Самарской области
Skip to content
Государственное бюджетное общеобразовательное учреждение средняя общеобразовательная школа №2 с. Приволжье муниципального района Приволжский Самарской области
Apologies, but the requested page cannot be found. Perhaps searching will help find a related page.
Найти:
Browse Categories
- Новости (658)
- Учителям (5)
Monthly Archives
- Февраль 2023 (2)
- Январь 2023 (1)
- Декабрь 2022 (2)
- Ноябрь 2022 (4)
- Октябрь 2022 (1)
- Май 2022 (4)
- Апрель 2022 (13)
- Март 2022 (15)
- Февраль 2022 (2)
- Январь 2022 (2)
- Декабрь 2021 (6)
- Ноябрь 2021 (1)
- Октябрь 2021 (7)
- Сентябрь 2021 (7)
- Август 2021 (2)
- Июнь 2021 (3)
- Май 2021 (24)
- Апрель 2021 (48)
- Март 2021 (32)
- Февраль 2021 (32)
- Январь 2021 (11)
- Декабрь 2020 (12)
- Ноябрь 2020 (25)
- Октябрь 2020 (12)
- Сентябрь 2020 (18)
- Август 2020 (7)
- Июль 2020 (3)
- Июнь 2020 (16)
- Май 2020 (13)
- Апрель 2020 (21)
- Март 2020 (25)
- Февраль 2020 (18)
- Январь 2020 (8)
- Декабрь 2019 (13)
- Ноябрь 2019 (18)
- Октябрь 2019 (30)
- Сентябрь 2019 (10)
- Август 2019 (1)
- Май 2019 (6)
- Апрель 2019 (15)
- Март 2019 (7)
- Февраль 2019 (14)
- Январь 2019 (4)
- Декабрь 2018 (36)
- Ноябрь 2018 (12)
- Октябрь 2018 (27)
- Сентябрь 2018 (11)
- Август 2018 (1)
- Июль 2018 (2)
- Июнь 2018 (4)
- Май 2018 (7)
- Апрель 2018 (15)
- Март 2018 (9)
- Февраль 2018 (17)
- Январь 2018 (7)
| Пн | Вт | Ср | Чт | Пт | Сб | Вс |
|---|---|---|---|---|---|---|
| 1 | 2 | 3 | 4 | 5 | ||
| 6 | 7 | 8 | 9 | 10 | 11 | 12 |
| 13 | 14 | 15 | 16 | 17 | 18 | 19 |
| 20 | 21 | 22 | 23 | 24 | 25 | 26 |
| 27 | 28 | 29 | 30 | 31 | ||
10 лучших бесплатных программ для рисования
Скопированная ссылка!
Дуайт Павлович
|
31 марта 2022 г.
Бесплатные программы для рисования — идеальный способ изучить основы цифрового рисования. Надеетесь ли вы создать шедевр или хотите создать флаер для публикации в социальных сетях, вам могут не понадобиться платные приложения, такие как Adobe Photoshop или Corel Painter.
В этой статье мы рассмотрим 10 популярных программ для цифрового искусства — все они бесплатны. Некоторые из них являются программами с открытым исходным кодом без платного доступа, в то время как другие предлагают платные версии. Многие из этих вариантов представляют собой надежные учебные программы для начинающих цифровых художников и полны функций для повседневного рисования, редактирования фотографий и небольших проектов графического дизайна.
1. GIMP
По словам разработчиков, « GIMP не предназначен для рисования», но он по-прежнему является одним из самых мощных вариантов в нашем списке, если вы знаете, как его использовать. GIMP позиционирует себя как редактор изображений, а название на самом деле является сокращением от GNU Image Manipulation Program.
GIMP может похвастаться собственными эффективными инструментами для цифрового рисования и рисования. Вы можете настроить или настроить свои кисти, а поскольку GIMP имеет открытый исходный код, вы даже можете загружать новые. Эти обширные вспомогательные функции делают его отличной альтернативой платному программному обеспечению, такому как Adobe Illustrator или Photoshop.
Основные характеристики:
- Отлично подходит для профессионалов и предприятий
- Программное обеспечение с открытым исходным кодом
- Множество опций для настройки
- Windows, macOS, Linux
2. Krita
— специальное программное обеспечение для цифрового рисования 18

Всесторонний редактор сам по себе, самые большие преимущества Krita в значительной степени ориентированы на активных аниматоров и иллюстраторов. Это видно по функциям рабочего процесса, а также по выбору цвета и кисти. Кроме того, в ближайшее время планируется мобильная версия.
Основные характеристики:
- Специально для иллюстрации и концепт-арта
- Программное обеспечение с открытым исходным кодом
- Широкий выбор встроенных кистей
- Windows, macOS, Linux
3. Microsoft Paint 3D
Microsoft Paint 3Dнемного отличается от большинства вариантов в нашем списке. Несмотря на то, что в нем есть базовая система 2D-рисования, Paint 3D предназначен для анимации ваших рисунков в трех измерениях. Как правило, 3D-приложения требуют ресурсоемкого программного обеспечения, поэтому не помешает то, что программное обеспечение Paint 3D легкое и простое в использовании.
Благодаря оптимизированному интерфейсу и базовым инструментам рисования Paint 3D — отличный способ воспитать зарождающийся интерес к искусству без затрат на профессиональное программное обеспечение для цифрового искусства.
По той же причине это также интересный способ экспериментировать для практикующих художников.
Ключевые функции:
- Идеально подходит для детей
- . самые популярные функции Corel Painter. В результате он предоставляет широкие возможности настройки кисти и мазка для точной настройки. Он также включает в себя полезную функцию записи и специальные инструменты для совместной работы.
Artweaver предлагает бесплатную или платную версию для загрузки. Бесплатный вариант оптимизирован с большим количеством функций. Artweaver Pro добавляет новые типы кистей, улучшенную интеграцию с программным обеспечением и множество вариантов управления. Это также намного доступнее, чем другие платные версии.
Основные характеристики:
- Отлично подходит для профессионалов и предприятий
- Бесплатные и платные версии
- Встроенная функция совместной работы
- Только для Windows
5. Astropad Studio для Windows
Это может быть в первую очередь связано с iPad и macOS, но Astropad Studio — это программное обеспечение для рисования на планшете с текущей бесплатной бета-версией (Project Blue) для пользователей Windows.
В то время как вам нужно платить за фактическое программное обеспечение (29,99 долларов США за стандартное или 79,99 долларов США за Studio), есть вариант бета-тестирования, для которого требуется только адрес электронной почты.Studio для Windows позволяет зеркально отображать рабочий стол Windows с вашего iPad с поддержкой карандашного и сенсорного взаимодействия Apple. Он включает в себя большинство общих функций, но Astropad сообщает, что в ближайшее время будут разработаны ярлыки, настройки и общая эффективность работы.
Основные характеристики:
- Идеально подходит для пользователей планшетов
- Предлагаются платные версии
- Все еще находится в стадии бета-тестирования
- macOS, скоро появится Windows
платформа: бесплатно для мобильных устройств и платно для компьютеров. Мобильную версию можно бесплатно загрузить с
Google Play и App Store , а для настольной версии требуется единовременный платеж (19 долларов США).
.99).Что касается функций, Sketchbook — это еще один ориентированный на художника вариант с простым пользовательским интерфейсом и множеством способов настройки кисти. Как бесплатные, так и платные версии отлично подходят для создания эскизов и предназначены для обеспечения более динамичной сенсорной обратной связи. Это гарантирует, что использование отдельных кистей будет более реалистичным.
Основные характеристики:
- Идеально подходит для мобильных пользователей
- Также имеется платная настольная версия
- Акцент на реалистичный пользовательский интерфейс
- Поддержка Pro для Windows, macOS
7. Adobe Fresco
Adobe Fresco — это мощный бесплатный инструмент для рисования, изначально разработанный для iPad, но со временем он расширился до Windows и некоторых мобильных платформ.
Учитывая обширный опыт Adobe в области программного обеспечения для иллюстраций и дизайна, ее бесплатное программное обеспечение — отличный способ познакомиться с отраслевым стандартом.
Это также означает множество встроенных функций, адаптированных для художников, таких как широкий выбор кистей.Вы можете использовать Fresco бесплатно или оплатить премиум-подписку (9,99 долл. США в месяц), которая включает дополнительный контент и параметры настройки.
Ключевые функции:
- Идеально подходит для пользователей планшетов
- Огромный выбор кисти
- Подписаться на Windows Premium
- , MacOS
8. gankscape
Выпущенные почти два десятилетия назад, Inkscape 9001, Inkscape , 9001, , , , , 9001. бесплатное программное обеспечение для рисования с акцентом на создание векторной графики. Преимущество Inkscape, как правило, в сравнении с Adobe Illustrator — отсутствие стоимости подписки. Кроме того, у него гладкий интерфейс и сборка.
Inkscape — это эффективный способ создания и редактирования векторной графики, что делает его отличным вариантом для дизайнеров. Он также масштабируется, так что вы можете воспроизводить свою работу в различных размерах.

Inkscape идеально подходит для логотипов и маркетинговых материалов, а также всего, что вы создаете и что должно быть готово к печати.
Основные характеристики:
- Идеально подходит для профессионалов в области дизайна
- Программное обеспечение с открытым исходным кодом
- Редактор векторной графики
- Windows, macOS, Linux
9. Sketchpad
Sketchpad — это эффективная и простая в использовании программа, благодаря тому, что она работает в браузере. Просто перейдите на веб-сайт, и вы начнете творить почти сразу.
Одним из самых больших преимуществ Sketchpad является упрощенный пользовательский интерфейс. Вы можете получить доступ к многочисленным параметрам настройки и популярным функциям, которые вы узнаете из большинства программ для рисования, с левой боковой панели. Он предлагает простое программное обеспечение для начинающих, с большинством функций (таких как типы кистей и эффекты наложения) всего одним или двумя щелчками мыши.

Основные характеристики:
- Подходит для эскизов на лету
- Простой интерфейс
- Быстрый рабочий процесс
- Браузер
эффективность, особенно при обработке изображений. Интерфейс прост в использовании, даже при работе с несколькими файлами, и имеет полный набор функций для редактирования фотографий или создания изображений. Вы также можете установить плагины, созданные сообществом, для расширения функциональности.
Хотя Paint.NET всегда популярен благодаря простому и удобному интерфейсу, рабочий процесс не всегда идеален. В частности, пользователи не могут редактировать текст после его размещения. К счастью, даже это препятствие легко преодолеть, если вы обязательно отредактируете свой текст, прежде чем применять какие-либо новые эффекты.
Основные характеристики:
- Отличный редактор изображений
- Простой интерфейс
- Поддержка пожертвований
- Только Windows
Обзор: лучшее программное обеспечение для рисования для цифровой иллюстрации
Выбор лучшего программного обеспечения для цифрового искусства, бесплатного или иного, зависит от ряда факторов.
Ваш уровень навыков, стиль и предполагаемое использование являются наиболее важными. Microsoft Paint 3D и Sketchpad имеют наименьшее количество препятствий для начинающих пользователей, но Paint.NET — это доступный способ начать больше узнавать о сложных функциях.Когда дело доходит до чистой функциональности, GIMP и Adobe Fresco являются всесторонним выбором для профессионалов. Krita и Artweaver не сильно отстают благодаря продуманному дизайну рабочего процесса. Inkscape — отличный вариант для дизайнеров-фрилансеров, а бесплатная бета-версия Project Blue от Astropad предлагает почти профессиональную функциональность бесплатно.
Есть так много вещей, которые можно сделать, не прибегая к платному программному обеспечению. Независимо от того, обучаетесь ли вы художнику или создаете маркетинговые материалы для нового малого бизнеса, вы можете найти бесплатные программы для рисования, чтобы улучшить свои навыки и заняться проектами.
Об авторе: Дуайт Павлович является автором статей для HP Tech Takes .
Дуайт — автор музыки и технологий из Западной Вирджинии. Популярные компьютеры HP для рисования:
Раскрытие информации: Наш сайт может получать долю дохода от продажи продуктов, представленных на этой странице.
БЕСПЛАТНО 10 лучших программ для рисования для Mac [2023]
Когда дело доходит до безупречной работы, особенно в графическом дизайне, анимации и, самое главное, в процессе рендеринга, ничто не может сравниться с плавностью и скоростью компьютера Mac. . С учетом сказанного, если вы креативный дизайнер, вы бы ненавидели частые системные сбои, которые случаются на ПК с Windows, и, конечно же, вам не понравилось бы время, которое компьютеры без Mac тратят впустую, когда ваша голова полна творческой идеи.
Принимая во внимание вышеизложенное, мы составили список некоторых бесплатных программ для рисования для Mac , которые вы можете использовать как начинающий, так и профессиональный графический дизайнер.

Часть 1: 10 лучших приложений для рисования для Mac [бесплатные и платные]
Ниже приведены некоторые лучших программ для рисования для Mac, бесплатные и платные. В список также включено название встроенного в macOS приложения Preview, которое более или менее похоже на MS Paint, который есть в операционных системах Windows.
Следует отметить, что приложения, перечисленные ниже, не расположены в определенном порядке с точки зрения их рабочей эффективности или гибкости, и вы можете выбрать любое программное обеспечение, которое вы считаете лучшим в соответствии с вашими деловыми или личными потребностями.
Несмотря на то, что мы сделали все возможное, чтобы предоставить самую свежую информацию о программах, доступных в этом документе, вам настоятельно рекомендуется проверять официальные веб-сайты поставщиков, чтобы получить самую последнюю версию и соответствующую информацию об интересующих вас приложениях.
1. Бесплатное предварительное приложение на Mac
Цена: Бесплатно
Системные требования: macOS Mojave 10.
14 или более поздней версииПодходит для: Домашних пользователей для элементарной обработки фотографий и PDF, редактирования и аннотаций
Основные характеристики
Позволяет конвертировать изображения
Позволяет редактировать PDF
Позволяет удалить фон с фотографий
Позволяет пакетное преобразование изображений
Позволяет изменять размер изображения
2. Эскиз
Цена: $99 единоразовый платеж | 9 долларов США за пользователя в месяц (для команд)
Системные требования: macOS Mojave 10.14.4 или более поздней версии
Подходит для: Профессионалов, которые хотят создавать векторные изображения, рабочие процессы, значки, дизайн пользовательского интерфейса и т. д. для приложений и веб-сайтов
Основные функции
Позволяет создавать векторный дизайн с точностью до пикселя
Поддерживает логические операции
Позволяет совместно использовать проекты и компоненты через общие библиотеки
Позволяет загружать свои дизайны в облако для беспрепятственного доступа
Вы можете перейти на https://www.
sketch.com/, чтобы узнать больше об этом приложении для рисования или загрузить его.3. Кисть
Цена: Бесплатно
Системные требования: Mac OS X 10.10 (Yosemite) или выше
Основные характеристики
Может открывать фотографии практически всех основных форматов, таких как JPEG, GIF, TIFF, PNG, BMP и т. д.
Может открывать фотографии с прозрачностью в формате PNG в файлах GIF с альфа-каналом
Предлагает базовые инструменты рисования и редактирования
Вы можете перейти на https://paintbrush.sourceforge.io/downloads/, чтобы узнать больше об этом приложении для рисования.
4. Патина
Цена: $2,99
Системные требования: Mac OS X 10.8 (Mountain Lion) или выше редактирование, такое как обрезка, изменение размера и т. д.
Основные характеристики
Имеет почти все формы рисования, включая стрелки
Позволяет вручную управлять цветом
Разрешает вращения
Поддерживает прозрачность
Вы можете загрузить его напрямую из App Store: https://apps.
apple.com/us/app/patina/id942568098.5. ArtBoard
Цена: $39,99
Системные требования: Mac OS X 10.9 или более поздней версии
Подходит для: Начинающих и профессионалов, которые хотят рисовать векторные рисунки, а также редактировать существующие изображения
Основные характеристики
Позволяет экспортировать ваши творения в редактируемые PDF-файлы
Поддерживает почти все основные форматы, такие как PNG, GIF, JPEG, TIFF и т. д.
Поддерживает прозрачность
Имеет библиотеку клипартов с множеством рисунков
6. FireAlpaca
Цена: Бесплатно
Системные требования: Mac OS X 10.7 или более поздней версии
Подходит для: Начинающих и профессионалов для создания дизайнов и иллюстраций 90 2 1 90 различных инструментов 90 2 3 90 и цифровой живописи.
Основные характеристики Узнайте больше об этом программном обеспечении для рисования здесь: https://firealpaca.com/.
7. Affinity Designer
Цена: $49,99
Системные требования: Mac OS X 10.7 или более поздней версии
Подходит для: Творческих профессионалов, которые хотят создавать стандартные векторные изображения с точностью до пикселя
Основные характеристики
Поддерживает панорамирование и масштабирование с частотой кадров 60 кадров в секунду.
Предлагает неограниченное количество артбордов
Поддерживает почти все основные форматы продуктов Adobe, такие как Ai, PSD, SVG и т. д.
Доступно для Mac, iPad и Windows
Перейдите на страницу https://affinity.serif.com/en-gb/designer/, чтобы узнать больше об Affinity Designer.
8. Эскизы Таясуи
Цена: Бесплатно при покупках в приложении
Системные требования: Mac OS X 10.
10 или более поздняя версия с 64-разрядным процессоромПодходит для: начинающих и домашних пользователей с творческими рисунками и эскизами
Основные характеристики
Программа мультиязычная.
Разрешает многослойные объекты
Позволяет экспортировать ваши творения в формате PSD
Поддерживает стилус и может распознавать силу нажатия
Вы можете загрузить его из App Store: https://apps.apple.com/us/app/tayasui-sketches/id1178074963?mt=12
9. Autodesk SketchBook
Цена: Бесплатно Требования: Mac OS X 10.11 или более поздней версии
Подходит для: Начинающих и профессионалов, которые ищут бесплатный инструмент с простым пользовательским интерфейсом для воплощения своих идей и концепций на листах
Основные характеристики
Перейти на https://apps .
apple.com/in/app/autodesk-sketchbook/id863486266?mt=12 и загрузите его, чтобы попробовать.10. Krita
Цена: Бесплатно
Системные требования: Mac OS X 10.9 или выше
Подходит для: Творческие специалисты, которые хотят рисовать векторные изображения, рисовать эскизы, применять фильтры и т. д.
Основные функции
Предлагает несколько двигателей щеток
Разрешает маскирование и расширенный выбор
Позволяет создавать многослойные объекты
Обеспечивает расширенное управление цветом
Перейдите на https://krita.org/en/item/krita-nightly-builds-for-macos/, чтобы узнать больше о Krita.
Часть 2 (бонус): Как рисовать в Preview на Mac бесплатно
Встроенное бесплатное программное обеспечение для рисования для Mac , Preview, имеет некоторые инструменты разметки, которые позволяют вам аннотировать и рисовать фигуры на изображениях.
Пошаговые инструкции, приведенные ниже, объясняют, как это можно сделать с наименьшими усилиями:Шаг 1: Показать панель инструментов разметки
Щелкните правой кнопкой мыши фотографию, которую хотите отредактировать на Mac, перейдите к Открыть с помощью , и нажмите Предварительный просмотр (по умолчанию) . Далее нажмите Показать панель инструментов разметки в правом верхнем углу интерфейса, чтобы получить панель инструментов разметки под стандартной панелью инструментов.
Шаг 2. Использование инструмента «Фигуры»
Щелкните значок «Фигуры» на панели инструментов «Разметка» и выберите нужный инструмент «Фигуры» из доступных вариантов. Перетащите автоматически добавленную фигуру, чтобы переместить ее в нужное место на изображении. При необходимости используйте маркеры масштабирования, чтобы изменить размер тела по мере необходимости. Далее нажмите 9Значки 0231 Цвет границы и Цвет заливки и выберите предпочтительные цвета для контура фигуры и цвета фона.

Шаг 3. Использование инструмента «Текст»
Щелкните инструмент «Текст» на панели инструментов «Разметка» , перетащите текстовый фрейм в нужное место на изображении и с помощью маркеров масштабирования измените размер фрейма. Затем щелкните внутри рамки, удалите замещающий текст и вместо этого введите новую подпись. Теперь щелкните значок Стиль текста и используйте доступные параметры для форматирования текста по мере необходимости.
Резюме
Существует несколько бесплатных программ для рисования для Mac . В зависимости от ваших потребностей, сложности вашей работы и типа инструментов, которые вам нужны в приложении, ваше определение лучшего бесплатного программного обеспечения для рисования для Mac может отличаться от того, что дают ваши друзья или коллеги. Тем не менее, суть в том, что бесплатные приложения для рисования для Mac всегда будут иметь ограниченные возможности.



3DS помогает создавать чертежи и преобразовывать их в изображение или 3Д модель.
В то время как вам нужно платить за фактическое программное обеспечение (29,99 долларов США за стандартное или 79,99 долларов США за Studio), есть вариант бета-тестирования, для которого требуется только адрес электронной почты.
.99).
Это также означает множество встроенных функций, адаптированных для художников, таких как широкий выбор кистей.

Ваш уровень навыков, стиль и предполагаемое использование являются наиболее важными. Microsoft Paint 3D и Sketchpad имеют наименьшее количество препятствий для начинающих пользователей, но Paint.NET — это доступный способ начать больше узнавать о сложных функциях.
Дуайт — автор музыки и технологий из Западной Вирджинии. 
14 или более поздней версии
sketch.com/, чтобы узнать больше об этом приложении для рисования или загрузить его.
apple.com/us/app/patina/id942568098.
Основные характеристики
10 или более поздняя версия с 64-разрядным процессором
apple.com/in/app/autodesk-sketchbook/id863486266?mt=12 и загрузите его, чтобы попробовать.
Пошаговые инструкции, приведенные ниже, объясняют, как это можно сделать с наименьшими усилиями:
Добавить комментарий