Фото котельной – Котельная в частном доме — 90 фото особенностей установки современного оборудования
Котельная в частном доме — 90 фото особенностей установки современного оборудования
Отопление загородного жилья — немаловажное условие для комфортного проживания в доме. Именно по этой причине о котельной следует позаботиться ещё до начала окончания облицовочных работ. Сегодня производители предлагают различные энергетические генераторы для отопления.

Так, газовое оборудование для котельной в частном строении проектируется, а также обустраивается в соответствии с самыми строгими требованиями. Основная причина заключается в возможности взрывоопасности.

Второе почётное место занимают котлы на твёрдом, а также жидком топливе. В сравнении с газовыми приборами они не такие взрывоопасные, однако, должны размещаться в отдельной комнате. В ней важно обустроить качественную приточно-вытяжную вентиляционную систему и необходимо предусмотреть специальный канал для вывода газов дымохода.

Просты в установке котлы электрические. Они не требуют установки в специальном топочном помещении. Но в данном варианте имеются особые правила, связанные с безопасным использованием.
Поскольку к котельной газовой в частном домостроении самые высокие требования, соответственно поговорим именно об этом оборудовании подробнее. Остальные разновидности установок для отопления автоматически подходят под требования, которые созданы для газовых приборов.

Требования к обустройству газового котельного оборудования
Для желающих обустроить в жилье котёл минимальной мощности должны знать, что не нужно отдельного помещения для топки. Именно по этой причине обустраиваете газовое устройство в кухонном пространстве, соблюдая требуемые нормативы:
- Площадь комната должна быть не менее чем 15 квадратных метров;
- Потолочная поверхность более чем два метра;
- Оконный проём непременно должен иметь форточку;
- Приточно-вытяжная вентиляционная система комнаты;
- В настенной поверхности над напольной поверхностью внизу дверного полотна должны иметься отверстия воздухозаборные, которые обеспечивают воздушный приток;
- Важно обустроить котёл рядом с настенной поверхностью из материала негорючего.

Если в комнате нет настенных поверхностей из материалов негорючих, то схемой обустройства котельной в частном строении допустима установка устройства на оштукатуренную стену из натурального массива. Но он должна быть непременно закрыта металлическим экраном отражающим тепло.

Для установки газовой с мощностью не менее чем 30 кВт нужно отдельное пространство. Требования к его обустройству в основном зависят от размещения. Поговорим о самых востребованных устройствах.

Установка в отдельной комнате
Обустройство котельной в загородном жилье, функционирующей на газе природного происхождения, допустимо на чердаке, а также на нужном этаже.

В данном варианте следует придерживаться следующих требований:
- хорошее освещение;
- отдельно расположенный выход на улицу;
- комната должна быть больше чем 15 кубических метров;
- свободный доступ к агрегату и дополнительному оборудованию;
- вытяжная вентиляционная система;
- расположенные рядом с топочным помещением комнаты должны отделяться от него настенной поверхностью с огнестойкими характеристиками.

Вентиляция
Для качественного функционирования устройства для отопления газом нужен бесперебойный воздушный поток. Он должен хватать как на поддержание горения, так и на выведение газов.

Чтобы обеспечить хороший воздухообмен устройства минимальной мощности в ветхом сооружении, как правило, хватает природной вентиляцией помещения для топки. Сюда воздух поступает из щелей в оконных, дверных проёмов, а также посредством других не плотностей.

Если в котельной есть герметичные оконные и дверные проёмы, тогда не обойтись без дополнительной вентиляции.

Выбор и установка прибора
Для желающих знать, как обустроить котельную собственноручно, важно знать, что перед началом установки стоит подобрать комплект требуемого оборудования. Котёл подбирается в зависимости от климатических условий и объёма комнат для отапливания.
Для расчета мощности котла для малогабаритного пространства не более чем 200 квадратных метров, где потолочная поверхность не превышает нескольких метров, а настенная поверхность утеплена, как и оконные, дверные проёмы, не требуется огромных усилий. В этих целях метраж следует умножить на мощность установки, как на фото котельной, приходящейся на каждые 10 метров квадратных пространства. Данный показатель выведен посредством эксперимента для различных российских климатических территорий.

Специалисты расставят необходимое дополнительное оборудование, ориентируясь на проектную документацию, подключат устройство к дымоходу, обустроят автоматизированную систему, а также проведут работы пусконаладочного характера.

Фото котельной в частном доме














































Также рекомендуем посетить:
mojdominfo.ru
ТОП-20 лучших фото ремонта котельной
Природный газ является не просто самым эффективным и экономичным, но и наиболее рискованным видом топлива в плане взрывобезопасности и пожаробезопасности.

Поэтому устройство котельной в частном доме должно производиться по строгим требованиям техники безопасности. И если Вы хотите, чтобы Ваша котельная имела более оригинальный вид, предлагаем рассмотреть нашу подборку «ТОП-20 лучших фото ремонта котельной».
Основные требования к котельной
Самое главное требование – обеспечить качественную вентиляцию. Даже в незначительных количествах угарный газ может нанести существенный вред здоровью человека.

Более того при недостаточной вентиляции котел может выдавать меньше тепла, расходуя одинаковое количество топлива.

Так что, обустраивая газовую котельную, позаботьтесь о наличии хорошей вентиляции.

Если говорить о расположении котельной в загородном доме, то здесь требования будет несколько «помягче», чем при обустройстве этой комнаты в многоквартирных жилых домах.

Котельную разрешено устанавливать в отдельном строении, специально отведенной комнате, в пристройке к коттеджу или на чердаке. Чтобы ориентироваться в этом вопросе и подобрать лучший дизайн для котельной, рекомендуем посмотреть наши фото.

Если применяется оборудование, рассчитанное на сжиженный газ, то цокольный этаж или подвал для устройства котельной в доме не подходит. Все потому, что такой вид топлива имеет большой удельный вес, и опускаясь в нижние части строения, станет причиной взрыва.

Такая особенность сжиженного газа учитывается перед устройством вентиляции, схема которой предельно простая.

Газовые установки до 60 кВт не подразумевают оборудование отдельного помещения. Этот тепловой генератор может устанавливаться на кухне или в какой-то другой комнате, которая бы соответствовала следующим требованиям:
- объем помещения – минимум 15 м3 + по 0,2 м3, которые идут на каждую единицу мощности котла;

- высота помещения – не меньше 2,5 м;

- в помещении есть окно с форточкой.

Стены в котельной комнате должны быть огнестойкими, а именно – способными выдерживать высокие показатели температуры в течение 45 минут.

Устройство котельной
Отопительная система включает в себя не просто трубы и котел, но и другие важные для эффективного функционирования коммуникации и приборы, находящиеся в помещении по определенной, предварительно заданной и рассчитанной схеме.

Отопление состоит из:
- Отопительный котел – генератор тепла. Сгорающее топливо в камере сгорания котла нагревает теплоноситель, и тепло от радиаторов и труб поступает из котельной в помещение.
- Бабка водонагревателя. Основное предназначение бойлера – обеспечивает домочадцев горячей водой. По трубе, которая проходит внутри бака, циркулирует нагретый теплоноситель, в результате чего вода в бойлере нагревается.
- Распределительный коллектор, который состоит из циркуляционного насоса, гребенки и гидравлического распределителя. Основное предназначение распределительного коллектора – удобное распределение и циркуляция теплоносителей в аппаратах системы отопления и поддержание температуры теплоносителя.
- Расширительный бак требуется для компенсации давления в отопительной системе в результате нагрева теплоносителей.
- Группа безопасности, которая обеспечивает защиту отопительного контура от излишка воздуха и избыточного давления.
- Дымоход. От правильности установки и расчета дымохода в котельной, который производится по определенной схеме, во многом зависит коэффициент полезного действия и безопасность отопительной системы.
- Запорная арматура (для перекрытия потолка от испарения среды), трубопровод.
- Система подпитки, которая осуществляет контроль снижения давления при испарении или других утечках.
- Автоматика, которая представляет собой электронное устройство, осуществляющее управление газовой котельной в доме.

Но, помимо правильной технологии установки котла, важно позаботиться о дизайне этого помещения, в чем Вам и помогут наши фото.
Возможно Вам будет также интерестно:
remontik.org
Внутри действующей котельной. — Максим Мирович

Во время планируемой поездки в Украину мне очень хотелось побывать внутри Чернобыльской АЭС, изучить системы действующих реакторов типа РБМК и в целом посмотреть, как там все работает. Однако этим планам пока не суждено осуществиться из-за общей напряженной ситуации в Украине — все посещения важных промышленных объектов сейчас приостановлены. В Чернобыль попасть можно, а вот на саму станцию — нет.
Но тут вдруг подвернулась возможность посетить действующую котельную в одном из санаториев под Минском. Конечно, это не АЭС, но тоже весьма примечательный промышленный объект. Кстати, на нем тоже периодически случаются «взрывы тепловой природы»((
Итак, в сегодняшнем посте из серии «индустриальный туризм» я расскажу про действующую котельную.
02. Задание котельной, обслуживающей один из санаториев, достаточно большое. Снаружи оно выглядит вот так. Типичный белорусский промышленный объект семидесятых-восьмидесятых годов постройки.

03. В «котельном зале» очень большие окна, это сделано для конкретной практической задачи — если вдруг взрывается котёл, то ударная волна должна выбить все стекла, но оставить целыми капитальные конструкции стен и кровли.
Стена у входа увита плющом. Внизу снимка можно увидеть трубу, по которой в котельную поступает газ.

04. Справа от входа располагается небольшая слесарная мастерская — для того, чтобы прямо на месте можно было починить вышедшие из строя детали. Тут есть несколько станков (на фото — точильный и сверлильный), а также металлические верстаки с инструментами.

05. На сетчатом ограждении слесарной мастерской висит множество интересных плакатов и инструкций.

06. Сами котлы выглядят вот так. Это большие сооружения из побеленного кирпича, немного напоминающие кухонные печи из старых домов. Внутри такой «печки» находится система трубопроводов, газовая топка и, собственно, котел с водой.

07. Для очиски топки от продуктов сгорания газа предусмотрен во такой люк.

08. Существует также дымосос — он принудительно вытягивает продукты сгорания газа наружу.

09. Табличка.

10. Выключатель безопасности дымососа выглядит вот так. Не знаю, насколько он рабочий;)

11. Пульт управления котлом. Чем-то напоминает системы управления на АЭС — только, конечно, гораздо проще.

12. Поднимемся на второй ярус котельной. Здесь можно увидеть трубы, по которым из котельной уходит горячая вода — как в системы отопления, так и в системы горячего водоснабжения санатория. Для избежания теплопотерь трубы покрыты термозащитой. Также в каждой трубе установлен манометр.

13. Светильник под потолком. Внутри этого просто открытая лампочка, но большинство светильников закрыта дополнительно специальным защитным стеклом.

14. Отсюда можно хорошо рассмотреть верхнюю часть котла. Вот эти черные изогнутые трубы — часть системы безопасности на случай парового взрыва — при резком повышении давления в трубах вылетают специальные мембраны и «спускают пар», чтобы не допустить разрушение самого котла.
Впрочем, взрывы, разрушающие и сам котел, и его кирпичную оснастку, здесь тоже случались.

15. В одном из уголков верхнего яруса сотрудники оборудовали небольшую зону отдыха — здесь стоит диванчик, на стене висят фотообои, а возле окна расставлено множество растений. Красиво:)

16. Выключатель.

17. В дальней части котельной располагаются системы, подающие горячий пар в отопительные системы.

18. Паровые трубы располагаются на специальных подвесах-демпферах для того, чтобы гасить возможные вибрации от хлопков воздушных пробок внутри трубы.

19. Старый тестер.

20. Есть в котельной вот такая электрощитовая. Здесь находятся пульты управления различными системами и машинами.

21. Выключатели, предохранители.

22. Таблички.

23. Полузаброшенный отдел котельной.

24. Неожиданно здесь обнаружилась старая стиральная машина модели «Кот Леопольд — выжми мышь».

25. Для того, чтобы понять, каким образом в котельную попадает вода, нам нужно выйти на улицу и подойти вот к такому люку, что располагается метрах в пятидесяти от входа в котельную.

26. Это нечто вроде подземной водокачки, только вода здесь набирается не в резервуар для водопровода, а поступает напрямую в котельную. Спускаемся внутрь.

27. На глубине метров в пять располагаются насосы и трубопроводы.

28. А в самой котельной располагаются вот такие угольные фильтры, очищающие и масимально смягчающие воду.

29.В комнате отдыха персонала есть даже своеобразная мини-лаборатория в виде такого стеклянного шкафа, она служит для забора проб воды и исследования ее составляющих.

30. Лабораторное оборудование.

31. С улицы возле стен котельной есть еще вот такие люки, внутри которых проходят различные коммуникации.

32. Старая котельная постепенно выводится из эксплуатации. Рядом располагается новая котельная — она очень маленькая и работает полностью автоматически.

33. А здание старой котельной вскоре перестроят под бассейн.

________________________________________
Понравился пост? Расскажите о нем, нажав на кнопочку ниже:
maxim-nm.livejournal.com
фото котельных объектов
Паровой котел — универсальное изделие, широко применяемое в промышленности. ООО «КОТЛОМАШ» предлагает Вашему вниманию паровые котлы высокого качества. Изделия предназначены для выработки насыщенного пара при помощи рабочего давления 0,8 МПа (8 кгс/см2) и температуры 175С. Он используется для отопительных и технологических нужд.
Паровой котел или парогенератор может функционировать на каменном угле, газе, дизельном топливе, сырой нефти (мазуте). Поставляются изделия единым трнспортабельным блоком в собраном виде, в обмуровке и обшивке.
Паровые котлы серии «Е», поставляемые ООО «КОТЛОМАШ», принципиально отличаются от подобных изделий других производителей, так как комплектуются современным вспомогательным оборудованием:
- центробежные питательные насосы ;
- горелочные устройства плавного регулирования;
- отсечные газовые клапаны и датчики давления ;
- микропроцессорная система управления и защиты;
Полный комплект поставки состоит из следующих наименований: вентилятор, дымосос, приборы контроля, предохранительные клапана, арматура, горелочное устройство, питательные насосы, система автоматики, газовые клапана и датчики. Также устройства могут функционировать на разных видах топлива: газе, угле, жидком топливе.
Благодаря применению надежного вспомогательного оборудования абсолютно гарантируется экономичная работа котлов с использованием всех режимов нагрузки, а также безопасность и надежность во время эксплуатации. Благодаря гарантийным условиям всего ассортимента котельного оборудования и котлов, которые выпускает ООО «КОТЛОМАШ» использование данной техники позволяет достичь наивысших результатов. Качество изделий подтверждено сертификатами соответствия и международными разрешительными документами.
Также мы рады предложить Вашему вниманию такую продукцию, как:
Транспортабельная котельная установка — производство и реализация — одно из направлений деятельности компании ООО «КОТЛОМАШ». Представленные у нас транспортабельные котельные установки (ТКУ) — это целостный технический комплекс в полной заводской готовности, который используется для выработки одновременной насыщенного пара температурой до 194°C и рабочего давления до 1,3 МПа. Отдельно, по требованию заказчика, транспортабельная котельная установка может комплектоваться тепловым узлом, используемым для выработки горячей воды для отопления (температура при этом составляет 115°C) и воды для горячего водоснабжения (температура при этом составляет 60°C).
Применение транспортабельных котельных установок помогают сделать производство более эффективным и экономичным, кроме того, обеспечивается надежность и безопасность обслуживания котельной. Применение надежного, современного, вспомогательного оборудования, такого как:
- автоматизированные водоподготовительные установки;
- насосное оборудование;
- газовая арматура и датчики;
- микропроцессорная система управления и защиты;
- горелочные устройства плавного регулирования нагрузки котла (Италия)
позволило полностью автоматизировать все технологические процессы котельной и обеспечить надежность и безопасность в ее обслуживании.
Следует отметить, что монтаж установок осуществляется без использования специального фундамента. Именно поэтому Вы значительно экономите на строительных и проектных работах, применяя наше оборудование.
Котельное оборудование — широко применимые и незаменимые в промышленности изделия. В первую очередь, используются в нефтяной промышленности. Так, при помощи оборудования для котельной производится насыщенный пар рабочим давлением до 0,8 МПа (8,0кгс/см2) (для отопительных и технологических нужд).
Котельное оборудование от ООО «КОТЛОМАШ» — это широкий выбор высококачественной продукции:
- паровые котлы Е-1,0-0,9М3;
- транспортабельные котельные установки ТКУ (представляют собой абсолютный аналог специальных котельных установок, относящихся к промышленной группе «Генерация» ПКН-2М, УКМ). Они работают на сырой нефти и мазуте и обладают паропроизводительностью 1-5 т/пара в час.
Такое оборудование для котельной от ООО «КОТЛОМАШ», как транспортабельная котельная установка пита ТКУ — это цельный технический комплекс, представленный в полной заводской готовности и устанавливаемый в боксе. Он рассчитывается на эксплуатацию на открытых площадках.
Преимущества блочно-модульных паровых котельных установок производства ООО «КОТЛОМАШ»:
Выпускаемый широкий модельный ряд, а также индивидуальный подход к каждому заказчику, позволяет подобрать модульную котельную любой паропроизводительности и различной компоновки.
Теплоизоляция стен, пола и крыши производится современными материалами длительной эксплуатации.
Поставка блочной котельной установки в полной заводской готовности при высокой степени транспортабельности.
Монтаж блочно-модульной котельной на месте в сжатые сроки и без особых затрат.
Подача выработанного пара на единую паровую гребенку, что облегчает возможность подключения дополнительных потребителей.
Наличие узла учета воды, пара и электроэнергии.
Подогрев исходной воды перед водоподготовительным устройством.
Возможность многократного монтажа и демонтажа блочно-модульной котельной установки и ее перемещения.
Возможна аварийная подача питательной воды в случае кратковременного отключения электроэнергии.
Возможность комплектации автоматической системой диспетчерского управления котлами блочно-модульной котельной.
Современный дизайн модульной котельной установки.
Телефоны: (495) 542-31-18, 971-12-48.
Факс: (49657) 3-45-22, 3-28-95.
Факс для приема (кругласуточно на автомате): (49657) 3-28-95.
E-mail: [email protected]
www.cotlomash.ru
cotlomash.ru
оборудование и фото, устройство и отделка, проект бойлерной, обустройство топочной
Важным условием комфорта в частном доме является отопление. Домашняя котельная – это наилучший вариант для этого. Различают несколько основных видов генераторов, которые подойдут для автономного обогрева домов или коттеджей. Поэтому о строительстве котельной нужно подумать заранее, пока еще будут идти отделочные работы дома.
Бойлерная в доме: основные виды для частных владений
Бойлерная не имеет, какую либо определенную конструкцию. В частном доме можно установить любую котельную, какую только пожелает сам владелец. Ни каких единых параметров не существует. Размер, местоположение и оборудование для бойлерной выбирает сам хозяин.
Отопительное оборудование требует к себе строгого контроля. Часто его нужно устанавливать отдельно от главного здания, так как такое оборудование является опасным. Поэтому нужно выполнять определенные требования, чтобы обезопасить себя и своих близких.
Бойлерная, ее еще называют топочная или котельная, может располагаться как вне дома, так в нем. Ее можно расположить в очень разных местах: на цокольном этаже, в гараже, пристройке или подвале. Однако, лучше всего, разместить ее на некотором расстоянии от загородного здания.
Вид котельной по ее расположению:
- Встроенная бойлерная в доме, не имеющая отдельного помещения. Располагать все оборудование (котел, насос, бойлер) можно на кухне или в прихожей. Этот вариант самый дешевый, годится только для небольшого котла.
- Бойлерная, встроенная в доме, но находится в отдельной небольшой комнате
- Котельная, которая находится в пристройке. Этот вариант подходит для оборудования, которое создает много шума.
- Отдельная мини-котельная, расположенная на расстоянии от здания.
Вариант самый дешевый – это бойлерная на кухне, годится только для небольшого котла. Удобным вариантом котельной для отопления является внутри дома, но располагается она, в предназначенной для нее, комнате. Пристроенная к помещению котельная может иметь отдельную дверь. Самой безопасной является та бойлерная, которую можно построить отдельно от главного жилища, однако сделать это очень сложно и дорогостояще.
Проект котельной для частного дома: критерии выбора
Важным этапом строительства котельной, предназначенной для частного дома, является проектирование. Проект создать самостоятельно не получится, им обязательно должен заниматься специально обученный проектировщик. Он в свою очередь должен иметь все необходимые документы.
На рабочих чертежах выполняются все расчеты, а так же подбор нужного, для строительства, оборудования. А описывается все действия и решения в специальной записке. Все эти документы будут нужны для предоставления в соответствующие органы.
От сложности проекта зависит и процесс согласования, который может затянуться на несколько месяцев. Если не возникло ни каких претензий, и стоит печать на документах, тогда можно приступать к строительству. Когда делается проект, тогда уже нужно и выбирать вид котельной, обращая внимание на некоторые критерии.
Критерии, на которые стоит обратить свое внимание:
- Режим отопления;
- Тип энергоносителя;
- Место установки;
- Вентиляцию;
- Освещение;
- Размер: высота должна быть приблизительно 2,5м, а объем всего помещения – 15м кубических.
Примеры котельных могут быть разными: газовыми, работающими на твердом топливе или электрическими. Газовая котельная самая не безопасная, нормы и требования к ней очень жесткие, потому что газ взрывоопасен. Устройство твердотопливного типа менее взрывоопасны, но устанавливают их так же вне дома. Некоторые котлы могут работать даже на дровах. Такая котельная называется кочегарка. Правильно уложенная электрика – это залог безопасности. Обязательно нужно сделать заземление.
Необходимое котельное оборудование для частного дома
Самым главным для котельной, является не только помещение, но и ее оборудование. Если грамотно сделать подбор оборудования, можно получить отличную функциональность и качество обогрева.
Котельная – это место, где должно быть не только удобно и аккуратно, но и безопасно. Обязательно нужно устанавливать все приборы, соблюдая все правила безопасности. Ее отделывать нужно только высокопрочными материалами.
Один котел, конечно, не справится с основной задачей, а именно не сможет отопить весь дом. Чтобы ему помочь, нужно приобрести дополнительное оборудование, которое устанавливают специалисты. Оборудовать котельную, можно и своими руками, однако этот процесс требует особых навыков и знаний. Поэтому, обустройство бойлерной лучше доверить мастерам этого дела.
Оборудование для котельной:
- Котел нагревательный;
- Расширительный бак;
- Аккумулятор тепла;
- Бойлер;
- Распределительный коллектор;
- Насос;
- Запорная арматура;
- Трубы;
- Автоматика;
- Дымоход.
Приобретя все элементы, вы сможете прикрепить их самостоятельно или же нанять специализированного мастера. Котлы могут крепиться к стене на расстоянии 10см или же ставиться просто на пол. Если котел устанавливается напольный, тогда обязательно нужен фундамент. Потолок, пол и стены отделать лучше всего жаропрочными материалами. Установки всех деталей производятся вручную.
Отделка котельной в частном доме: фото и материалы
Отделка бойлерной – это очень важный этап строительства. Обустроить и отделать помещение нужно очень грамотно – это является залогом вашей безопасности. Чтобы сделать все правильно и при этом красиво, нужно выполнять все требования и придерживаться норм.
Прежде чем приступать к отделке помещения, сначала, нужно определить, какой материал вы будете использовать для этих целей? Материалов для этого большое количество, но самым альтернативным вариантом является плитка.
Просмотрев различные фотографии отдельных вариантов, по отделки котельных, нужно определиться с выбором или же создать свой дизайн помещения и воплотить его в жизнь.
Негорючие материалы для отделки:
- Керамическая плитка. Для отделки стен – это идеальное решение.
- Керамогранит. Им обычно устилают пол котельной, так как он способен выдержат большие нагрузки.
- Ксилолито-волокнистый лист. Это экологически чисты материал, способны выдерживать очень высокие температуры (1000 градусов).
- Огнеупорная и термостойкая штукатурка. Она способна выдерживать открытое пламя несколько минут. Ее, так же, можно красить в разный цвет и при этом она не утратит свои огнестойкие способности.
Отделка внутри котельной может быть выполнена из не дорогих материалов, но обязательно они должны соответствовать всем требованиям. Цена некоторых из них может быть даже очень скромной. Главное для котельной – это не ее отделка, а оборудование. Вот на него и нужно тратить сбережения, чтобы затем чувствовать себя в безопасности.
Устройство котельной в частном доме: некоторые требования
Для обогрева загородного дома нужна котельная. Устройство такого помещения требует абсолютно грамотного подхода. Именно это устройство создает уют и комфорт вашего дома, а так же и его безопасность. Поэтому следует подходить к нему с особым вниманием.
Нельзя экономить на некоторых материалах, а особенно оборудовании. Установку котла и некоторого дополнительного оборудования лучше доверить профессионалам. Они грамотно и качественно сделают свою работу, со всеми допустимыми нормами.
Самым важным для этого процесса является внутренняя отделка помещения. Она должно быть настолько огнеупорной, чтобы смогла выдержать открытое пламя примерно 25 минут. Так же существуют некоторые определенные нюансы, которые обязательно нужно предусмотреть заранее, несмотря на то, где будет располагаться ваша котельная.
Требования к котельной:
- Рассчитать мощность котла, учитывая при этом площадь помещения;
- Оборудование лучше всего приобретать заранее;
- Выбрать необходимую по размеру дверь, обязательно огнеупорную;
- Все размеры котельной должны соответствовать специальным стандартам;
- Отдать предпочтение отделочному материалу – плитке.
Перед началом строительства отельного помещения котельной, делается план, который нужно обязательно согласовать с газовой службой. Затем, конечно, этот объект обязательно нужно добавить в технологический план всего участка.
Оборудование котельной в частном доме (видео)
Современные проекты частных загородных домов подразумевают наличие такого помещения, как котельная, где будет находиться все оборудование для отопления всей площади дома. Такая бойлерная может работать на разном энергоносителе. Обычно это природный газ, который поступает из ведущей магистральной сети. Если, все же, газ отсутствует, тогда можно применять котлы, работающие на твердом или дизельном топливе, электричестве. Однако самым востребованным и не дорогим топливом, все же, является газ.
Примеры котельных в частном доме (фото)
homeli.ru
Котельная в частном доме фотографии
Если человек имеет свой собственный дом, то он не полагается на общее отопление. Но в современной жизни никуда без горячей воды. Век печей на угле или дровах уже ушел, ведь от них много хлопот и сажи. Тогда сможет помочь газовое отопление, а что необходимо для этого, мы расскажем в нашей статье. Газовый котел поможет в этом деле. Проживающие будут обеспечены горячей водой надолго.
Стоит только включить специальное оборудование котельной в частном доме, фотографии которого можно изучить в нашей статье, а затем настроить необходимый режим и все готово.

Устройство газового котла
Чаще всего газовые котлы для частного дома классифицируются по виду установки:
- Напольные;
- Настенные.
Газовые котлы в частных домах, стоящие на полу, устанавливаются в абсолютно любом помещении. Бывает, что для них отводят комнату, например, в подвале, тогда это получается целая котельная в частном доме. Фотографии вы можете посмотреть на нашем сайте. Такие котлы чаще всего имеют секционный теплообменник. Мощность их более 30 кВт, применяются для снабжения горячей водой и отоплением зданий, площадь которых более 50 м.кв.
Минус этих котлов в том, что они занимают место в доме, а если помещение небольшое, это оказывается не очень удобным. Тогда на помощь придет настенный котел для частного дома.
Он висит на стене, имеет более простой теплообменник, но мощность его меньше.
В современных котлах применяют горелки модуляционные, с их помощью поддерживается неизменная температура воды, выходя из конструкции. Главная функция горелки состоит в объединении газа и воздуха в нужных соотношениях, что помогает сгоранию газа. Этот индекс достигает 97%. Горелки, сделанные из нержавеющей стали, более долговечны. Видео котельных в частном доме с различным газовым оборудованием можно просмотреть на нашем сайте.

Какое количество контуров выбрать
Главное преимущество газовых котлов для частных домов перед такими же горелками заключается в том, что они могут обеспечивать не только горячую воду, но и отопление.
Все функции особенны сами по себе, так как горячая вода на собственные нужды нужна спонтанно, а вот контур газового отопления в частном доме должен всегда работать на подогреве.
Эту проблему можно очень просто решить. Котлы для частного дома, которые расположены на стене, имеют 1 теплообменник, но 2 контура нагреваются отдельно друг от друга, либо тот, либо этот. Все зависит, какой контур открыт, если поворачивается вентиль горячей воды, тогда нагревается контур, отвечающий за воду, а отопительный ожидает. После закрытия горячей воды начинает нагрев опять контур, отвечающий за отопление.
Двухконтурные газовые котлы для частного дома при помощи двух теплообменников обычно греют контур отопления, но когда включается горячая вода, тогда перекидывается задача на другой теплообменник. Если вы нуждаетесь в большем количестве горячей воды, чем может подать ваш котел, всегда можно установить внешний бойлер.

Требования к помещению котельному в частном секторе
Существует большое количество требований, когда происходит обустройство котельной, их необходимо соблюдать.
Все их можно отыскать интернете, там вы узнаете необходимые данные, которые необходимы при планировании установки оборудования в котельной частного дома согласно СНиП.
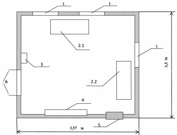
Если газовая установка, мощностью которой до 60 кВт, тогда не нужно выделение отдельного помещения. Котел возможно установить в кухне или же другой комнате, но параметры ее должны быть такими: высота от 2,5 м, объем воздуха, от 15 м.кв. Обязательны вентиляционная система для хорошего воздухообмена и окна с форточками.
Если планируете устанавливать теплогенератор мощностью от 60 до 150 кВт, тогда необходимо обязательно оборудовать отдельную комнату под котельную в частном доме, фотографии которой вы можете всегда просмотреть на нашем сайте. Это помещение может располагаться на абсолютно любом этаже.
Требования комнаты аналогичны. Воздух должен поступать в таком количестве, чтобы не нарушать горение газа. Обязательно, чтобы были окна с форточками.
Стены комнаты должны быть огнестойкими. Если площадь дома большая, необходима мощная техника для отопления. При мощности теплогенератора до 350 кВт нужно соблюдать следующие требования и нормы.
Расположение котельной в частном доме, как показано на фотографии нашего сайта, должно быть не выше 1-го этажа. Высота потолков от 2,5 м, огнестойкость, вентиляция, а так же объем помещения аналогичны, как и в других ситуациях. Прочитав статью и просмотрев фотографии котельных в частных домах, теперь вы знаете, что безопасное газовое оборудование – это то, которое соответствует всем нормам и правилам.

dnevnik-stroika.ru
оборудование и фото, устройство и отделка, проект бойлерной, обустройство топочной
Правильно выбрать котельную в частный дом можно, предварительно изучив рекомендации специалистов Важным условием комфорта в частном доме является отопление. Домашняя котельная – это наилучший вариант для этого. Различают несколько основных видов генераторов, которые подойдут для автономного обогрева домов или коттеджей. Поэтому о строительстве котельной нужно подумать заранее, пока еще будут идти отделочные работы дома.
Содержание:
- Бойлерная в доме: основные виды для частных владений
- Проект котельной для частного дома: критерии выбора
- Необходимое котельное оборудование для частного дома
- Отделка котельной в частном доме: фото и материалы
- Устройство котельной в частном доме: некоторые требования
- Оборудование котельной в частном доме (видео)
- Примеры котельных в частном доме (фото)
Бойлерная в доме: основные виды для частных владений
Бойлерная не имеет, какую либо определенную конструкцию. В частном доме можно установить любую котельную, какую только пожелает сам владелец. Ни каких единых параметров не существует. Размер, местоположение и оборудование для бойлерной выбирает сам хозяин.
Благодаря бойлерной можно сделать дом более комфортным для проживания
Отопительное оборудование требует к себе строгого контроля. Часто его нужно устанавливать отдельно от главного здания, так как такое оборудование является опасным. Поэтому нужно выполнять определенные требования, чтобы обезопасить себя и своих близких.
Бойлерная, ее еще называют топочная или котельная, может располагаться как вне дома, так в нем. Ее можно расположить в очень разных местах: на цокольном этаже, в гараже, пристройке или подвале. Однако, лучше всего, разместить ее на некотором расстоянии от загородного здания.
Вид котельной по ее расположению:
- Встроенная бойлерная в доме, не имеющая отдельного помещения. Располагать все оборудование (котел, насос, бойлер) можно на кухне или в прихожей. Этот вариант самый дешевый, годится только для небольшого котла.
- Бойлерная, встроенная в доме, но находится в отдельной небольшой комнате
- Котельная, которая находится в пристройке. Этот вариант подходит для оборудования, которое создает много шума.
- Отдельная мини-котельная, расположенная на расстоянии от здания.
Вариант самый дешевый – это бойлерная на кухне, годится только для небольшого котла. Удобным вариантом котельной для отопления является внутри дома, но располагается она, в предназначенной для нее, комнате. Пристроенная к помещению котельная может иметь отдельную дверь. Самой безопасной является та бойлерная, которую можно построить отдельно от главного жилища, однако сделать это очень сложно и дорогостояще.
Проект котельной для частного дома: критерии выбора
Важным этапом строительства котельной, предназначенной для частного дома, является проектирование. Проект создать самостоятельно не получится, им обязательно должен заниматься специально обученный проектировщик. Он в свою очередь должен иметь все необходимые документы.
Проект котельной для частного дома создается с применением компьютерных программ
На рабочих чертежах выполняются все расчеты, а так же подбор нужного, для строительства, оборудования. А описывается все действия и решения в специальной записке. Все эти документы будут нужны для предоставления в соответствующие органы.
От сложности проекта зависит и процесс согласования, который может затянуться на несколько месяцев. Если не возникло ни каких претензий, и стоит печать на документах, тогда можно приступать к строительству. Когда делается проект, тогда уже нужно и выбирать вид котельной, обращая внимание на некоторые критерии.
Критерии, на которые стоит обратить свое внимание:
- Режим отопления;
- Тип энергоносителя;
- Место установки;
- Вентиляцию;
- Освещение;
- Размер: высота должна быть приблизительно 2,5м, а объем всего помещения – 15м кубических.
Примеры котельных могут быть разными: газовыми, работающими на твердом топливе или электрическими. Газовая котельная самая не безопасная, нормы и требования к ней очень жесткие, потому что газ взрывоопасен. Устройство твердотопливного типа менее взрывоопасны, но устанавливают их так же вне дома. Некоторые котлы могут работать даже на дровах. Такая котельная называется кочегарка. Правильно уложенная электрика – это залог безопасности. Обязательно нужно сделать заземление.
Необходимое котельное оборудование для частного дома
Самым главным для котельной, является не только помещение, но и ее оборудование. Если грамотно сделать подбор оборудования, можно получить отличную функциональность и качество обогрева.
Котельная – это место, где должно быть не только удобно и аккуратно, но и безопасно. Обязательно нужно устанавливать все приборы, соблюдая все правила безопасности. Ее отделывать нужно только высокопрочными материалами.
Котельное оборудование продается в специализированном магазине
Один котел, конечно, не справится с основной задачей, а именно не сможет отопить весь дом. Чтобы ему помочь, нужно приобрести дополнительное оборудование, которое устанавливают специалисты. Оборудовать котельную, можно и своими руками, однако этот процесс требует особых навыков и знаний. Поэтому, обустройство бойлерной лучше доверить мастерам этого дела.
Оборудование для котельной:
- Котел нагревательный;
- Расширительный бак;
- Аккумулятор тепла;
- Бойлер;
- Распределительный коллектор;
- Насос;
- Запорная арматура;
- Трубы;
- Автоматика;
- Дымоход.
Приобретя все элементы, вы сможете прикрепить их самостоятельно или же нанять специализированного мастера. Котлы могут крепиться к стене на расстоянии 10см или же ставиться просто на пол. Если котел устанавливается напольный, тогда обязательно нужен фундамент. Потолок, пол и стены отделать лучше всего жаропрочными материалами. Установки всех деталей производятся вручную.
Отделка котельной в частном доме: фото и материалы
Отделка бойлерной – это очень важный этап строительства. Обустроить и отделать помещение нужно очень грамотно – это является залогом вашей безопасности. Чтобы сделать все правильно и при этом красиво, нужно выполнять все требования и придерживаться норм.
Прежде чем приступать к отделке помещения, сначала, нужно определить, какой материал вы будете использовать для этих целей? Материалов для этого большое количество, но самым альтернативным вариантом является плитка.
Отделка котельной в частном доме должна соответствовать правилам технической безопасности
Просмотрев различные фотографии отдельных вариантов, по отделки котельных, нужно определиться с выбором или же создать свой дизайн помещения и воплотить его в жизнь.
Негорючие материалы для отделки:
- Керамическая плитка. Для отделки стен – это идеальное решение.
- Керамогранит. Им обычно устилают пол котельной, так как он способен выдержат большие нагрузки.
- Ксилолито-волокнистый лист. Это экологически чисты материал, способны выдерживать очень высокие температуры (1000 градусов).
- Огнеупорная и термостойкая штукатурка. Она способна выдерживать открытое пламя несколько минут. Ее, так же, можно красить в разный цвет и при этом она не утратит свои огнестойкие способности.
Отделка внутри котельной может быть выполнена из не дорогих материалов, но обязательно они должны соответствовать всем требованиям. Цена некоторых из них может быть даже очень скромной. Главное для котельной – это не ее отделка, а оборудование. Вот на него и нужно тратить сбережения, чтобы затем чувствовать себя в безопасности.
Устройство котельной в частном доме: некоторые требования
Для обогрева загородного дома нужна котельная. Устройство такого помещения требует абсолютно грамотного подхода. Именно это устройство создает уют и комфорт вашего дома, а так же и его безопасность. Поэтому следует подходить к нему с особым вниманием.
Нельзя экономить на некоторых материалах, а особенно оборудовании. Установку котла и некоторого дополнительного оборудования лучше доверить профессионалам. Они грамотно и качественно сделают свою работу, со всеми допустимыми нормами.
Перед тем как устанавливать котельную в частном доме, рекомендуется посмотреть обучающее видео
Самым важным для этого процесса является внутренняя отделка помещения. Она должно быть настолько огнеупорной, чтобы смогла выдержать открытое пламя примерно 25 минут. Так же существуют некоторые определенные нюансы, которые обязательно нужно предусмотреть заранее, несмотря на то, где будет располагаться ваша котельная.
Требования к котельной:
- Рассчитать мощность котла, учитывая при этом площадь помещения;
- Оборудование лучше всего приобретать заранее;
- Выбрать необходимую по размеру дверь, обязательно огнеупорную;
- Все размеры котельной должны соответствовать специальным стандартам;
- Отдать предпочтение отделочному материалу – плитке.
Перед началом строительства отельного помещения котельной, делается план, который нужно обязательно согласовать с газовой службой. Затем, конечно, этот объект обязательно нужно добавить в технологический план всего участка.
Оборудование котельной в частном доме (видео)
Современные проекты частных загородных домов подразумевают наличие такого помещения, как котельная, где будет находиться все оборудование для отопления всей площади дома. Такая бойлерная может работать на разном энергоносителе. Обычно это природный газ, который поступает из ведущей магистральной сети. Если, все же, газ отсутствует, тогда можно применять котлы, работающие на твердом или дизельном топливе, электричестве. Однако самым востребованным и не дорогим топливом, все же, является газ.
Примеры котельных в частном доме (фото)
thewalls.ru

Добавить комментарий