Проекты домов 10 на 12: готовые и типовые. Каталог планировок и чертежей
Проекты дома 10 на 12
Дома с площадью 10х12 предусматривают достаточно большое пространство для зонирования помещений. Несмотря на просторные габариты, выполнить рациональную планировку не так просто. Чтобы максимально эффективно распределить внутреннее пространство дома,необходима помощь опытного архитектора. Как правило, в строительных компаниях проект дома 10 на 12 представлен в нескольких вариантах, и благодаря этому, можно заранее подобрать наиболее подходящий вариант планировки.
В каталоге готовых решений присутствуют одноэтажные, двухэтажные и мансардные дома с размерами 10х12, планировки которых, отличаются эргономичностью и эстетической привлекательностью.
Готовые макеты – это отличный способ решить жилищный вопрос быстро и экономично. Такие проекты прошли проверку реальными людьми и соответствуют всем строительным стандартам. Современный проект дома 10 на 12 одноэтажный очень практичен и предусматривает стандартную планировку со всеми необходимыми помещениями.
Большинство стандартных планировок предусматривает оптимальный набор помещений: кухню-столовую, 1-2 санузла, гостиную, прихожую и несколько спален. Подобная компоновка помещений отлично подходит для проживания как большой, так и маленькой семьи. Если планируется приобрести проект дома 10 на 12 с мансардой или вторым этажом, площадь дома значительно увеличится, что даст возможность оборудовать дополнительные комнаты или подсобные помещения.
Проект 10 на 12 хорош тем, что может реализовываться из любого строительного материала, и при этом будет комфортен для проживания, даже в одноэтажном варианте. Строительство двухэтажного дома обеспечит более просторное и удобное жилье, в котором появится возможность оборудования сауны, бассейна или домашнего кинотеатра. Новые возможности проектирования позволяют воплощать в реальность загородные проекты с комфортабельными планировками по доступной стоимости.
Для семьи, которая мечтает о собственном доме, строительство проекта 10х12 являет отличным вариантом. Просторная площадь дома обеспечивает достаточное количество личного пространства каждому члену семьи, особенно если планируется возвести проект дома 10 на 12 двухэтажный или с мансардой. Несмотря на популярность двухэтажных и мансардных проектов, многие семьи с маленькими детьми и пожилыми родственниками отдают предпочтение одноэтажным домам. Одноэтажная застройка обладает целым рядом достоинств:
• Простота фундамента и реализации проекта. В таком проекте дешевле обходится разводка коммуникаций, внутренняя, наружная отделка, а также ремонт и обслуживание строения;
• Широкие возможности в выборе архитектурного стиля дома, дизайна фасада и кровли;
• Для строительства дома можно использовать любой строительный материал;
• Удобство реализации проекта с гаражом;
• Разнообразные внутренние планировки;
• Отсутствие межэтажной лестницы, представляющей потенциальный источник опасности для детей.
Залогом успеха в реализации любого строительного процесса является правильно разработанный проект недвижимости.Выбираяпроекты домов 10х12 одноэтажный вариант, можно увидеть, насколько такие проекты оригинальны и функциональны.Размеры внутренних помещений дома 10х12 выглядят примерно так:
• Просторный холл – 10 кв.м;
• Кухня-студия – 15 кв.м;
• Техническое помещение под бойлер или котел – 4 кв.м;
• Санузел – 5 кв.м;
• Гостиная – 20 кв.м;
• Спальные комнаты – 12 кв.м, 10 кв.м, 12 кв.м;
• Рабочий кабинет – 10 кв.м;
• Кладовка – 5 кв.м;
• Гардеробная – 12 кв.м.
В зависимости от потребностей владельца дома, размеры, назначение и расположение помещений могут быть незначительно изменены.
Выбор планировки дома 10х12Большинство планов дома 120 кв.м выполнены в приблизительных вариантах. Ориентировочные планы помогают быстрее определиться с планировкой. Например, одним необходимо иметь в доме встроенный гараж, а другим он может быть совсем не нужен.
Некоторые семьи делают свой выбор в пользу функциональных планировок с максимальным размером жилой площади. Каждый проект дома 10х12по-своему интересен с точки зрения рациональногопланирования внутреннего пространства.
Любой тип планировки основывается, прежде всего, на потребностях определенной семьи и их образа жизни. Не всегда, типовые проекты смогут удовлетворить все пожелания будущих владельцев. В таких случаях, в строительных компаниях предусматривается услуга индивидуального проектирования. Разработка нового проекта совместными усилиями архитектора и заказчика, позволяет достичь максимального уровня комфортабельности планировки по следующим показателям:
— удобство расположения всех помещений;
— экономичность, благодаря отсутствию необходимости перепланировки;
— оригинальные решения в оформлении и обустройстве интерьера.
Кроме того, тщательно подобранная планировка позволит не думать об изменении условий проживания и перепланирования разводки коммуникаций.
Оптимальный размер дома 10х12 позволяет его легко разместить на нестандартных земельных участках и использовать как для временного, так и для постоянного проживания.
Заказать строительство домов под ключ в Краснодаре и Краснодарском крае можно здесь.
Планировка дома 10 на 12
Каталог проектов домов 10 на 12
Внизу проекты домов 10 на 12, выполненные кваллифицированными специалистами.
Проект дома 10 на 12 метров, имеющий прямоугольную форму, отличается высокими показателями сохранения тепла в доме, уменьшает расходы на строительство, минимизирует вероятность возникновения ошибок на этапе проектирования и составления документации. Здания 10 на 12строятся из пеноблоков, бруса, бревна или камня, что обеспечивает высокие технические характеристики готового жилья.
Одноэтажный проект 10 на 12
Одноэтажный проект дома 10 на 12 с отличной планировкой разрабатывается с учетом специальной строительной документации.
Архитектурный раздел включает планировку внутреннего пространства с подробным описанием, конструктивный содержит фундаментные схемы, планы лестничных проемов, а инженерный показывает расположение коммуникационных систем дома.
Основное преимущество одноэтажного дома 10 на 12 – отсутствие лестниц. Часто, они затрудняют движение престарелых людей и малышей, забирают часть жилой площади и обходятся владельцам дома достаточно дорого.
Двухэтажный дом 10 на 12
Двухэтажный проект дома 6 на 6 для постоянного проживания занимает меньше места на участке. Запроектированный по всем правилам дом сможет снизить стоимость строительства, возведения стен и крыш. Он обеспечит комфортные условия проживания на протяжении длительного времени.
Проект дома 10 на 12 с мансардой
При проектировании здания берутся в учет не только пожелания заказчика, но и состав семьи. Проект дома 10 на 12 с мансардой идеально подойдет для перспективных семей, любящих принимать гостей.
В мансарде можно оборудовать гостевую комнату – за счет необычной формы потолка, наличия наклоненных окон, пространство будет организовано удачно и продуманно. Улучшить мансардное помещение можно с помощью качественной конструкции утепления и гидроизоляции – эти системы положительно отразятся на микроклимате и создадут необходимый уют.
одноэтажный, двухэтажный, с мансардой, с тремя спальнями и размерами, из пеноблоков, бруса
Плотная городская застройка заставляет скорректировать габариты будущего дома. Коттедж помещается на небольшой площади участка, его размеры рассчитываются с учетом всех помещений, необходимых для проживания. Этим требованиям удовлетворяет проект одноэтажного дома 10х12 с интересной планировкой. На его площади в 120 кв. комфортно может жить среднестатистическая семья.
Проектирование
Разработка проекта частного дома – трудоемкий и сложный процесс. Начинается он с выбора земельного участка. От места под застройку зависит дальнейшая концепция планировки коттеджа.
Одноэтажный
Проект одноэтажного коттеджа 10 на 12 рассчитан, что проживать там будет 6-8 человек. План дома 10 на 12 включает такие помещения:
- Прихожую с коридором и холлом;
- Просторную гостиную, полученную за счет совмещения столовой и комнаты отдыха;
- Большую кухню. Ее размещают рядом с гостиной, а иногда совмещают с ней;
- Территорию для сна, состоящую по планировке из 2-4 спален;
- Санитарные, технические и подсобные помещения. Это ванная, туалет, прачечная, гардеробная, котельная и, может быть, гараж.
Проект здания 10 на 12 в один этаж выбирают с учетом двух веских причин:
- Удобная эксплуатация.
Планировка дома 10х12 в одном уровне облегчает проживание. Первый этаж в загородном доме – это трехкомнатная квартира с балконом. Не нужно подниматься по ступеням, чтобы попасть в помещения второго уровня. Это отвечает условиям безопасности, особенно если в семье есть дети или старики. Проводить уборку в одноэтажном коттедже намного проще. - Экономия. Одноэтажное строение с размерами 10 на 12 по проекту не нуждается в закладке массивного фундамента, что отражается на стоимости строительства коробки дома. Это снижает расходы на строительные и отделочные материалы. Лучший вариант – одноэтажный дом из бруса 10х12.
Даже в одноуровневых зданиях из кирпича нагрузка несущей конструкции на основание минимально.
Двухэтажный
Чтобы расширить полезную площадь коттеджа 10 на 12 выбирают двухэтажный проект загородных домов. Особенности планировки здания в два этажа состоят в зонировании пространства и организации балконов, лоджий и террас. Двухэтажный дом имеет большой выбор планировок и применяемых дизайнерских идей.
С мансардой или подвалом
Не всегда при разработке проекта расширение жилого пространства происходит за счет изменения планировки или увеличения этажности коттеджа. Во многих случаях решением этого вопроса становиться проект дома 10 на 12 с мансардой.
Первыми этот архитектурный прием применили французы, а придумал мансардный этаж вместо чердака инженер Франсуа Монсар. Это решение было вызвано не только перенаселенностью европейских городов, но и большими налогами на недвижимость. В результате появились дома с улучшенной планировкой и увеличенной полезной площадью, в которых чердачное пространство не подвергалось налогообложению.
Внешний вид мансардных домов кажется меньше, но это лишь иллюзия. По площади коттедж с мансардой почти не уступает обычному зданию в два этажа. Главное, чтобы чердак был высокий и вместительный. Планировка дома с мансардой представлена удобными комнатами и смелыми дизайнерскими решениями. Высота конька крыши должна обеспечивать высоту потолка мансардного помещения минимум в 2,5 метра. Устройство кровлей может быть шатровым, скатным, щипковым, вальмовым и ломаным.
Проект дома с мансардой 10 на 12 пригоден для любого региона. Он неприхотлив к погодным условиям, к ландшафту или сейсмичности. Мансарда популярна и в настоящее время, так как проблема перенаселенности городов по-прежнему остра.
Удобны проекты коттеджей 10х12 с цоколем. Планировка подвального этажа позволяет расположить целый блок технических и нежилых помещений: гаража и мастерской, котельной и сауны, бильярдной и тренажерного зала, прачечной и кладовой.
Выбор материала
Перед выбором материала для стен застройщик должен дать ответы на несколько глобальных вопросов:
- Будущее строение — это дачный домик или коттедж для постоянного проживания?
- Насколько важна экологическая чистота стройматериала?
- Как срочно планируется заселение в новый дом?
- Использовать будут газовое отопление или твердотопливный котел?
- Сколько будет стоить ежемесячное проживание?
- Какой бюджет может быть выделен на строительство коттеджа?
- Постройка дома будет самостоятельным или речь идет об использовании наемной рабочей силы?
- Какой материал (кирпич, пеноблок, газобетон или дерево) практикуется при строительстве жилых домов в вашей местности?
- Насколько для вашего региона доступны новейшие строительные технологии?
- Дом строится для себя или на продажу?
После того, как ответы получены, начинается проектирование дома 10 на 12 метров.
Стены чаще всего закладывают из следующих материалов:
- Из кирпича и керамических блоков;
- Из пеноблоков и газобетона;
- Из клееного бруса и оцилиндрованного бревна.
В последнее время весьма актуальны каркасные технологии строительства загородных домов.
Кирпич – традиционный материал для жилья. Он прочен и долговечен, экологичен и устойчив к морозам. Это довольно эстетичный материал, с его помощью можно воплощать в жизнь самые смелые архитектурные решения.
Но наравне со многими преимуществами кирпич имеет и существенные недостатки:
- Высокая стоимость. Строить дома из кирпича довольно дорого.
- Огромный вес строения. Здания 10 на 12 из кирпича требуют мощных фундаментов, для гаража в том числе.
- Возможность строительства только при плюсовой температуре окружающей среды.
Как и в былые времена в России строят из дерева. Проекты домов 10 на 12 из бревна по-прежнему актуальны. Но на первые позиции выходят коттеджи из клееного бруса.
Это дерево, имеющее несколько другие свойства:
- Высокую прочность;
- Профильное сечение спасает строение от продувания и позволяет длительное время сохранять тепло;
- Клееный брус не дает усадки и не требует отделочных работ, поэтому строительство дома проходит очень быстро;
- Устойчивость к воздействию открытого огня и гниению достигается за счет обработки специальными составами в заводских условиях.
Современные строительные технологии двигаются вперед. Дома из пенобетона завоёвывают рынок. Причиной стал прекрасный баланс между ценой и качеством. Материал, воплотивший в себе свойства кирпича и дерева, имеет такие достоинства:
- Относительно низкую теплопроводность;
- Высокую огне- и биостойкость;
- Простоту обработки инструментом;
- Лёгкий вес.
Если в проекте дома 10 на 12 размещено жилое помещение над гаражом, то нужно предусмотреть в нем вентиляцию, а также пароизоляцию, теплоизоляцию и звукоизоляцию межэтажного перекрытия.
Кроме того необходимо выполнить все требования пожарной безопасности.
Организация пространства
Планировка дома 10 на 12 зависит от количества проживающих и их потребностей. Среди застройщиков пользуется популярностью проект дома 10 на 12 с гаражом. Такая планировка подойдет для среднестатистической семьи. Четверть общей площади отходит под гараж и небольшое помещение топочной, в которой хозяин может организовать домашнюю мастерскую.
На остальной площади располагают гостиный блок и личную территорию членов семьи. Просторную гостиную получают за счет объединения зоны отдыха и столовой.
К ней примыкает кухня площадью 9-10 кв. м.
Для спальни выделяют комнату 12 кв. м, детская занимает 16 квадратов. Это обусловлено тем, что в спальне выделяют зону для установки рабочего стола. Остальное пространство дома занимают такие помещения:
- Санитарная комната;
- Прихожая;
- Гардероб.
Застройщики чаще других выбирают проекты домов 10 на 12 с тремя спальнями. Они идеальны для семей с двумя разнополыми детьми. Схема планировки с 3 спальнями включает в себя такие помещения:
- Три личные комнаты одинаковой площади;
- Гостиную в 25 кв. метров;
- Просторную кухню;
- Прихожую;
- Котельную;
- Ванную;
- Большой холл;
- Входной тамбур.
Для дополнительной площади отдыха коттеджи 10 на 12 обустраивают верандой, террасой или просторным входным крыльцом.
В планировках двухэтажных строений или полутораэтажных домов с мансардой 10 на 12 хватит места для размещения и гаража и 3-4 спален.
Если у застройщика есть знания и навыки в области проектирования, готовый проект домов 10х12 бесплатно можно скачать в интернете и адаптировать его под собственный участок для застройки. Если их нет, лучше обратиться в архитектурное бюро.
Заключение
При выборе проекта дома 10 на 12 необходимо учитывать габариты участка под строительство и ориентировочную стоимость сооружения.
120 фото реальных примеров домов и особенности их планировки
Проект частного дома с площадью 120 кв.м. в прямоугольной конфигурации 10 на 12 считается долгосрочным вариантом для молодой среднестатистической семьи с 2 детьми. Он подойдет и для бездетной пары или одиночки – свободный метраж откроет возможности для устройства бассейна, сауны, библиотеки или художественной мастерской.
В любом случае — это оптимальный выбор для легкого ухода и экономного обогрева.
Содержимое обзора:
Нюансы строительства
Перед тем как приступить к планировке дома 10 на 12 необходимо предусмотреть фундамент глубиной 1,5 см, с гидроизоляцией и утеплением.
Функциональность внутреннего пространства определяется не только расположением входной двери, но и количеством и конфигурацией окон, местоположением примыкающих к дому пристроек – террасы, гаража.
Точки использования воды, канализации, системы отопления и вентиляции также являются определяющими для коммуникационной схемы дома, которая с небольшими вариациями определяет расположение межкомнатных перегородок.
После того как вы выберите проект для дома, можно переходить на следующий этап и начинать изучать строительные инструкции, к примеру здесь есть огромный выбор свежих идей, полезных советов и рекомендаций от опытных мастеров.
Вопрос этажности
Строительство жилой площади до 150 кв.м., по мнению специалистов, предпочтительно проектировать на одном этаже.
При раскладе метража дома 10 на 12 могут использоваться проработанные европейские и американские архитектурные проекты, описание и фото которых можно найти в интернет.
Тем не менее задача строительства узкого и высокого дома общей площадью 120 кв.м. может решена и в полноценном двухэтажном исполнении, но его строительство обойдется значительно дороже, лестничный пролет отнимет не только свободное пространство, но и создаст неудобство, которое трудно оправдать на небольшом пространстве, отведенном для жилья.
Мансардный этаж, чердак или плоская крыша
Создание проекта двухэтажного дома 10 на 12 с мансардным этажом высота внешней стены которого 170-180 см позволит перенести на него спальную зону, и почти вдвое увеличит вместимость дома.
Более низкий «холодный» чердак может стать кладовой для хранения малоиспользуемых вещей.
Оригинальный проект дома с плоской крышей-балконом создаст дополнительную площадь для летнего отдыха, на которой можно сделать навес или застекление.
Типовое распределение метража
Приблизительное распределение площади между главными функциональными зонами – спальной и общей, позволит условно разделить дом на две приблизительно равные части:
- 3 спальни по 15 кв.
м. каждая – 45 кв.м; прачечная, большой санузел – 8-10 кв.м, проходы 5-7 кв.м; - кухня, гостиная – 40 кв.м, прихожая, проходные зоны, маленький санузел, кладовая — 20 кв.м.
При расчетах нужно учитывать ширину межкомнатных стен и площадь, необходимую для лестничного пролета в двухэтажных проектах.
Продуманное строительство ниш для встроенной мебели, перегородок и дверных проемов не только повысит функциональность дома, но и создаст необходимый уют.
Основы планировки
На начальном этапе составления плана одноэтажного семейного дома 10 на 12 необходимо продумать количество комнат и порядок их расположения.
При центральном расположении прихожей смежные зоны могут располагаться по левую и правую сторону, с соответствующими проходами к спальням и гостиной.
При другом варианте – спальни/детские находятся в глубине здания, а на половине примыкающей к фасаду находится частично или полностью совмещенное пространство кухни, столовой и гостиной.
В двухэтажном проекте спальни и большой санузел располагаются наверху, при рациональном подходе водопроводные и вентиляционные линии размещаются вертикально друг над другом.
Важно также заранее предусмотреть место для камина, который обычно размещается в центральной точке дома.
Переходы и смежные помещения
Возможность удобного расположения подсобных помещений – главное преимущество частного дома. Одноэтажный или двухэтажный дом 10 на 12 дает возможность распределить их в разных частях: вместо одного большого чулана можно сделать несколько кладовок различного предназначения.
Гардеробные можно встроить в ниши спален. Кладовую для продуктов и хозяйственных принадлежностей — расположить поблизости от кухни.
В прихожей необходимо оборудовать нишу для шкафа, где будет размещена верхняя одежда и сменная обувь, здесь можно предусмотреть также небольшое котельное помещение и санузел с душевой.
Во время составления схемы необходимо по возможности избегать узких проходов.
Оторвав от комнат небольшой метраж можно расширить коридор до 2 м, при этом двери спален будут открываться в уютный холл или общую проходную комнату с тренажерами.
40-45 кв. метров, отведенные под кухню, столовую и гостиную не обязательно ограничивать дверями, можно сделать зонирование отделкой, небольшими перегородками или мебелью, разместив в одном пространстве кофейный уголок, столовый гарнитур и барную стойку.
Если нет возможности выделить отдельную комнату для гостей, можно приобрести раздвижную мягкую мебель.
Пристроенный сбоку навес для 2 машин, и широкая терраса у входа придадут строению архитектурную целостность и значительно расширят жилое пространство в теплое время года.
Фото домов 10 на 12
м . Дом 10х12 с большой гостиной. 110 кв.м» src=»https://www.youtube.com/embed/FD_f_KPJqPE?feature=oembed» frameborder=»0″ allow=»accelerometer; autoplay; clipboard-write; encrypted-media; gyroscope; picture-in-picture» allowfullscreen=»»/>
Помогите проекту, поделитесь с друзьями 😉Планировка одноэтажного дома 10×10, 9×9, 6х9, 8х10, 10х12, 12х12, 8×12
Что лучше предпочесть – одноэтажный дом или в несколько этажей? На каком именно варианте следует остановиться, подыскивая для себя наиболее удобный проект будущего жилья? В большинстве случаев, с такими вопросами сталкиваются владельцы больших земельных участков, которые обладают возможностью выбора: компактная планировка одноэтажного дома или высокий коттедж в несколько этажей, оставляющий значительное свободное пространство на территории участка?
Естественно, первый вариант планировки займёт большую площадь, зато позволит расположить все помещения с максимальным удобством.
Необходимо отметить тот факт, что на сегодняшний день удобная планировка одноэтажного дома становится все более популярной, и это объясняется новыми веяниями в архитектуре и дизайне. Сейчас общая концепция загородной жизни подразумевает сочетание коттеджа и прилегающего к нему участка в качестве одного единого целого.
Простой план небольшого одноэтажного дома из бруса 6×6 Вернуться к оглавлениюСодержание материала
Планировка дома 6х9
Планировка одноэтажного дома 6×9 предоставляет огромную свободу в проектировании и дизайнерских решениях.
Простой план одноэтажного дома 6×9В некоторых случаях план предусматривает наличие мансардного второго этажа, благодаря чему полезную площадь здания можно несколько увеличить. Как правило, в подобные проекты включены террасы и веранды.
Планировка дома 8х10
Планировка одноэтажного дома 8×10 с прямоугольной формой смотрится довольно-таки неплохо, но при этом является менее выгодной, чем вариант коттеджа квадратной формой.
Нередко здания 8×10 оснащены мансардой и цокольным этажом (помните о том, что проектирование цоколя всегда должно быть строго индивидуальным). Подобный план дома отлично подойдёт как для частных коттеджей в черте города, так и для загородного жилья. Вариант с наличием мансарды станет идеальным вариантом для больших семей.
План одноэтажного дома 8×10Вернуться к оглавлениюПланировка дома 9х9
Планировка одноэтажного дома 9х9 предназначена уже для вполне обширного строения, в котором может свободно расположиться не один человек, а целая семья. Как правило, такие сооружения обладают несколькими жилыми помещениями и несколькими подсобными. Благодаря тому, что существующее пространство весьма значительно, перед проектировщиком возникает много возможностей для реализации тех или иных замыслов.
План одноэтажного дома 9×9Вернуться к оглавлениюПланировка дома 10х10
Планировка одноэтажного дома 10х10, которая идеально подходит для проживания нескольких человек, подразумевает проведение долгих строительных работ.
Такие дома имеют несколько комнатам, которые спланированы с максимальным удобством для проживающих в них людей. Кроме этого, данные сооружения радуют пространством, увеличенным за счёт протяженности стен.
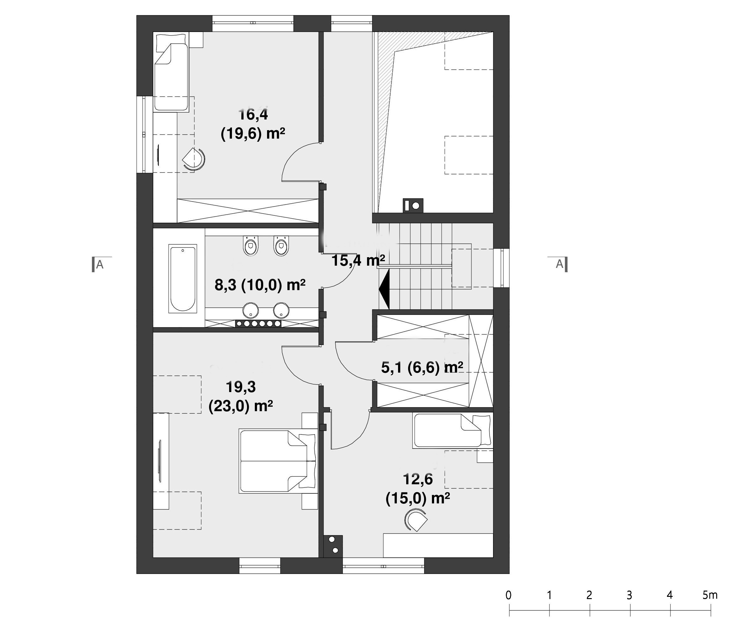
Планировка дома 10х12
Планировка одноэтажного дома 10х12 позволяет получить здание с большой площадью и габаритами, близкими к квадратным. Использование имеющейся площади можно сделать максимально полезным и рациональным, если обустроить цокольный этаж и мансарду.
Проекты с подобными размерами идеально подойдут для строительства как в черте города, так и за его пределами. Для большего удобства проживающих людей, планировки следует с особой тщательностью. Как правило, на первом этаже располагают кухню, ванную комнату и туалет, прихожую, гостиную и комнату для отдыха.
План деревянного дома 10×12Второй этаж (если вы всё-таки решили предпочесть многоэтажный вариант дома) используется для жилых помещений, что очень удобно при постоянном проживании.
Если план подразумевает наличие цокольного этажа, то в нём можно разместить мастерские, гараж и зону отдыха.
Планировка дома 12х12
Планировка одноэтажного дома 12х12 подразумевает собой наличие гаража, подсобных комнат, комнат отдыха и других помещений, размещение которых возможно при больших просторных площадях. Строительство таких коттеджей является достаточно затратным делом, но при этом наиболее выгодным с точки зрения эксплуатации по сравнению с остальными вариантами.
План одноэтажного дома 12×12Вернуться к оглавлениюОбщие характеристики
Планировка для одноэтажного строения хороша тем, что позволяет обустроить большие комнаты: кухни, спальни, или совмещённые кухни-гостиные, что очень удобно для небольших семей.
Несомненными достоинствами постройки такого коттеджа являются низкая себестоимость, небольшие затраты на отопление, высокая скорость строительства, а также меньший налог на собственность.
Удачная планировка одноэтажного дома из бруса 8×12План одноэтажного коттеджа отличается возможностью компоновки основных и вспомогательных помещений.
Если у владельца появилось желание изменить существующий проект в той или иной степени, необходимо обратиться за помощью к профессионалу, так как нарушение санитарно-гигиенических норм может в дальнейшем не слишком хорошо сказаться на проживании людей.
Планировка дома 10 на 12 одноэтажного дома
Жизнь в частном доме за городом – это не только свежий воздух и отсутствие шумных соседей. Это, прежде всего, выбор максимально комфортных условий, которые заключаются в удобной планировке помещений в доме и их достаточной площади. И при этом не нужно считать, что для того чтобы удовлетворить потребности каждого члена семьи, необходимо строить очень большой коттедж. Для этого вполне подойдет проект дома 10 на 12, в соответствии с которым будет возведено строение, в особенности, если выполнить правильное зонирование всех помещений и использовать один или несколько способов увеличения общей и жилой площади.
Архитектурный проект классического дома 10х12Один или два этажа
Выбрав в качестве основного места проживания дом 10 на 12, нужно решить, каким будет строение – одно- или двухэтажным.
А для того чтобы принять правильное решение, необходимо понять все преимущества, как первого, так и второго варианта. Главное при этом осознать, что при строительстве двухэтажного коттеджа финансовых вложений, как на этапе строительства, так и в процессе эксплуатации, будет значительно больше.
Преимущества одноэтажного дома 10х12
К основным преимуществам одноэтажного дома 10х12 относятся:
- финансовая экономия, заключающаяся в отсутствии необходимости закладки прочного фундамента, так как от одноэтажного строения нагрузка на него будет существенно ниже. Так же существенно сокращается количество затрат на основные строительные и отделочные материалы;
- удобство эксплуатации. Все помещения в одноэтажном доме располагаются на одном уровне, поэтому уборка в доме потребует меньше времени и усилий. К тому же для того, чтобы переместиться из одного помещения в другое не нужно пользоваться лестницей, что помимо экономии времени и сил, приведет к уменьшению риска возникновения несчастных случаев, в особенности, если в доме проживают дети и люди пожилого возраста;
Пример планировки одноэтажного дома 10х12 с четырьмя спальнями и кухней-гостиной
- снижение расходов на теплоэнергию, так как нагреть воздух на одном этаже можно существенно быстрее.

Преимущества двухэтажного дома 10х12
К основным преимуществам использования для строительства и жизни проекта дома 10х12 в двухэтажном варианте относятся:
- возможность устройства балкона на втором этаже, что даст возможность любоваться живописными видами окрестностей;
- наличие в доме максимально комфортных помещений, которые располагаются на втором этаже. В них воздух остается теплым намного дольше и при этом уровень влажности соответствует нормальным показателям;
- более солидный внешний вид строения.
Архитектурный проект и планировка двухэтажного дома 10х12Способы увеличения жилой площади дома
Даже тот факт, что одноэтажный дом 10х12 достаточно вместительный и приемлемый для проживания среднестатистической семьи, любой владелец хочет его расширить. Имея в доступе все необходимые для жизни помещения, человек хочет устроить в своем жилище бильярдную, библиотеку, спортзал и многое другое для повышения комфорта жизни.
И все это возможно, используя определенные способы, которые необходимо учесть на этапе проектирования. В большинстве случаев жилую площадь дома увеличивают за счет:
- перепланировки и обустройства цокольного этажа под требующиеся помещения;
- надстройки мансардного этажа, ограждающие конструкции которого совмещаются с кровлей;
- устройства односкатной кровли, за счет чего высота чердака около одной из стен увеличится, давая возможность обустроить дополнительное помещение. Кроме того, около высокой стены при односкатной кровле появляется возможность пристройки небольшой навесной площадки, которая может использоваться как балкон или как дополнительное помещение на опорах с собственной кровлей;
В некоторых случаях односкатная крыша позволяет разместить под ней полноценный второй этаж
- устройство плоской кровли, которая одновременно может являться местом для отдыха в летнее время, установив надежные ограждения, а возможно и навес, такую кровлю можно использовать как террасу на свежем воздухе.
/li>
Одноэтажный дом с мансардой или подвалом
Самыми рациональными способами увеличение жилой и общей площади дома является устройство цокольного этажа или подвала с его перепланировкой под помещения определенного назначения, а так же надстройка мансардного этажа. Как в первом, так и во втором случае на финансовых расходах это существенным образом не отразится, но при этом, используя два способа одновременно, позволит увеличить площадь строения в 2 и более раза.
Цокольный этаж является идеальным местом для устройства не только собственного мини спортзала или бильярдной комнаты, но и позволит более продолжительное время хранить продукты питания при организации в нем погреба. Именно в таких помещениях, пол которых находится ниже поверхности земли, поддерживать оптимальную для хранения температуру и влажность будет проще всего. Так же в цокольном этаже можно разместить бытовые помещения для размещения оборудования или гараж для автотранспорта.
Планировка дома 10х12 с гаражом
При этом выезд из гаража можно организовать с любой удобной стороны дома, предварительно устроив специальный съезд.
Недостатком мансарды является неполная высота этажа, которая достигает максимального своего значения в центре и снижается около ограждающих конструкций. Это не позволяет использовать все его пространство полностью, что приводит к снижению площади по сравнению с первым этажом. Но тот факт, что дом 10х12 является достаточно просторным, даже сокращенная площадь мансардного этажа будет вполне достаточной для размещения спален, кабинета и даже гардеробного помещения.
Помещения частного дома 10х12
В стандартную планировку частного дома 10х12 входят следующие помещения:
- прихожая или тамбур;
- гостиная;
- кухня;
- спальня;
- детская;
- санитарный узел.
В зависимости от количества человек проживающих в доме, назначение помещений может быть изменено. Например, при отсутствии в доме детей, детскую комнату можно заменить кабинетом. Помимо данных помещений необходимо устройство котельной или бойлерной.
На нашем сайте Вы можете ознакомиться с самыми популярными проектами домов от строительных компаний, представленных на выставке домов «Малоэтажная Страна».
Планировки домов без цокольного этажа предусматривают наличие котельной
При устройстве в доме мансардного или второго этажа лучшим вариантом будет увеличение количества спальных комнат, даже в том случае, если они не будут использоваться постоянно. Их можно запроектировать гостевыми комнатами. В этом случае все спальни размещаются на верхнем этаже, туда же переносится и кабинет.
Для того чтобы гостиная и кухня не были очень большими, полученное от перемещения комнат пространство, можно использовать для расширения коридора или увеличения площади санитарного узла. Так же не стоит забывать, что использование при строительстве плана дома 10 на 12 в двухэтажном варианте понадобится лестница, конструкция которой так же будет отнимать часть жилой площади.
Так же очень удобным является обустройство сауны и бассейна на первом этаже дома. В этом случае в доме появится идеальное место для отдыха.
Особенности планировки спальных и детских комнат
Несмотря на то, что большую часть времени жильцы дома 10х12 будут проводить в помещениях общего пользования, таких как гостиная и кухня, очень ответственно нужно подойти к организации спальных и детских комнат.
Дом 10х12 достаточно большой, чтобы в нем можно было разместить просторную детскую комнату
Именно здесь человек будет засыпать и просыпаться, а дети играть в своих комнатах, выполнять школьные домашние задания, а поэтому от правильной их организации будет зависеть их настроение и самочувствие на протяжении всего дня. Основными правилами устройства детских и спальных комнат можно назвать:
- ориентация окон на юг или восток, так как это позволит более частому проникновению естественного света в большем количестве;
- расположение спальной комнаты в более тихом месте, например, в задней части дома или на втором этаже, тогда отдых будет более спокойным;
- соответствие или превышение минимально допустимых размеров помещения.
Для комфортного размещения одного человека требуется минимум 8 кв.м, поэтому спальня для двух человек должна быть не менее 16 кв. м. Детская комната, которая наполнена достаточно большим количеством мебели и других предметов, должна быть не тесной и помимо всего прочего иметь достаточно большое пространство для игр; - отсутствие прохода через комнату в другое помещение дома;
- минимальной высотой от пола до потолка должна быть величина не меньше 2,5 метров;
Высоты потолков 2,5 метра вполне достаточно даже для размещения спортивных снарядов
- форма комнат в плане должна быть либо квадратная, либо прямоугольная, но при этом ее длина не должна быть намного больше ширины.
Так как чаще всего комнаты отдыха и детские располагают на втором или мансардном этаже, а разграничивающими конструкциями являются не несущие стены, то расстановку мебели лучше всего выполнить во время составления проекта и только после этого точно указать место внутренних конструкций.
На нашем сайте Вы можете найти контакты строительных компаний, которые предлагают услугу проектирования домов. Напрямую пообщаться с представителями можно посетив выставку домов «Малоэтажная Страна».
Рациональная организация пространства дома 10х12
Так как дом 10х12 предназначен для жизни людей, необходимо приложить все усилия для того, чтобы организация пространства была удобной и комфортной. Человек не должен, при выполнении повседневных дел, тратить много времени на переход из одного помещения в другое. Так, например, спуск в подвал, а именно в погреб, лучше всего организовать из помещения кухни или в непосредственной близости к нему, а вход в санузел лучше всего делать из коридора или холла на первом этаже. Если планировка дома 10 на 12 в двухэтажном варианте подразумевает большое количество комнат на верхнем этаже, то санузел следует устроить и там.
Пример зонирования площади дома 10х12
Очень простая, но при этом очень удобная планировка одноэтажного дома 10х12.
Просторная гостиная позволит удобно разместить не только всех членов семьи, но и гостей приходящих в дом. Рядом с гостиной расположена кухня-столовая и холл, образуя совместно дневную зону. Личная зона, состоящая из двух спален, находится в уединенном месте в непосредственной близости к санузлу. Данный пример подразумевает расположение всех хозяйственных и бытовых помещений на цокольном этаже вдали от жилых комнат.
Обзор дома из бруса в финском стиле 10 на 12 смотрите в видео:
Новые решения в планировании пространства
Одним из новых решений при планировке помещений является их совмещение в зависимости от назначения. Так чаще всего совмещают кухню, столовую и гостиную, а так же санузел с ванной комнатой. Это позволяет расширить площадь помещения, избежать стесненности условий и при этом сделать быт более комфортным и удобным.
Так для того чтобы приготовить есть, хозяйке не нужно находиться одной на кухне, так как члены семьи смогут быть с ней рядом в гостиной. Уборка в совмещенном санузле будет выполнена намного быстрее и проще так все сантехнические приборы, которые нуждаются в постоянной тщательной очистке, находятся рядом друг с другом.
Современная планировка – общие помещения на первом этаже, а на второй выносятся спальни и дополнительные санузлыСоветы для поддержания гармонии и стиля в интерьере
Правильное зонирование и планировка помещений хоть и является очень важным моментом, но не единственным влияющим на комфорт проживания в доме. Так же существенную роль играет интерьер всех помещений, который разрабатывается в дизайн проекте с учетом всех пожеланий хозяев. Все, что наполняет частный дом, должно гармонично сочетаться между собой и не вызывать чувства дискомфорта. Для того чтобы добиться этого, следует придерживаться нескольких правил, а именно:
- внутренняя отделка всех помещение должна быть выполнена в едином стиле, с использованием различных цветов и элементов декора.
Значительные площади помещений позволяют использовать и яркие и темные цвета, которые зрительно могут сделать помещения меньше. Не допустить этого помогут современные способы и отделочные материалы, к числу которых относится глянцевые натяжные потолки, наливные полы и многое другое, создающее в помещении зеркальный блеск, визуально расширяющий пространство; - возможность использования различных архитектурных элементов, таких как колоны, лепнина или камин. Каждый из этих элементов можно расположить в разных помещениях но сделать в едином стиле, что сделает внутреннюю обстановку гармоничной, уютной и красивой;
- использование мебели из одной коллекции;
- устройство многоуровневого освещения.
Это может быть интересно! В статье по следующей ссылке читайте про то, на что стоит обратить внимание при заказе дома из бруса.
Примеры домов 10х12 на фото и видео
Несколько архитектурных проектов одноэтажных домов смотрите в видео:
youtube.com/embed/S0L89oQ7rCA?feature=oembed» frameborder=»0″ allowfullscreen=»allowfullscreen»>
Двухэтажный дом 10х12 с балконом и открытой террасой
Дом 10х12 с мансардным этажом
Одноэтажный дом 10х12
Дом 10х12 с мансардой, балконом и гаражом в цокольном этаже
Это может быть интересно! В статье по следующей ссылке читайте про 12 советов по строительству бюджетного дома.
Увеличение площади дома 10х12 за счет устройства односкатной кровли
Устройство дополнительный помещений в доме 10х12 с плоской кровлей
Устройство открытой площадки на плоской крыше дома 10х12
Одноэтажный дом 10х12 с гаражом
Дом 10х12 с мансардным этажом, балконом и верандой
Одноэтажный дом 10х12 с эркерами
Это может быть интересно! В статье по следующей ссылке читайте про летний домик.
Заключение
Планировки домов 10х12 достаточно просторные, чтобы в таком доме комфортно себя чувствовали не только все члены семьи, но и гости, для которых всегда найдется место, как для отдыха, так и для развлечений.
Подбирая проект для возведения коттеджа на загородном участке, в первую очередь, нужно определиться с этажностью здания. Этот нюанс оказывает непосредственное влияние на бюджет будущего строительства и функциональность жилья. В свою очередь, выбор этажности постройки зависит от площади участка. Небольшая территория под застройку накладывает некоторые ограничения на выбор типа здания, поэтому удачный план одноэтажного дома всегда придется к месту.
Благодаря грамотной планировке даже очень маленький одноэтажный дом может быть комфортным и уютным
План одноэтажного дома: достоинства и недостатки
Строительные работы по возведению одноэтажного здания отличаются массой преимуществ, ведь построить дом с одним этажом гораздо быстрее и легче, чем с двумя и более.
Этот тип застройки открывает широкие возможности для разработки дизайна, его исполнения, а также обеспечивает надежность и безопасность готового здания. Но одноэтажные коттеджи не смогут решить проблему с застройкой загородных участков, владельцы которых имеют большие семьи.
В этом случае стоит обратить внимание на двух- и трехэтажные сооружения.
Вариант планировки одноэтажного дома с маленькой площадью
Одноэтажные постройки популярны не только благодаря небольшим габаритам и низким затратам на строительство. Они отлично вписываются в природный ландшафт. Тем не менее над распределением внутренних площадей следует задуматься, так как здание в итоге должно полностью отвечать потребностям всех жильцов. Для этого стоит ознакомиться с фото, планами одноэтажных домов, а также их характеристиками. Это позволит вам создать более полную картину понимания того, как разрабатываются проекты зданий.
Статья по теме:
Фото планировки одноэтажного дома 10 на 10. Варианты увеличения жилой площади. Грамотный проект дома и советы по рационализации свободного пространства. Фото планировок одноэтажных домов 8 на 10 и 10 на 12.
Достоинства проектов с одним этажом
Как и любой тип постройки, одноэтажное сооружение обладает и преимуществами, и недостатками.
Оптимальным считается тот вариант, который располагает большим количеством достоинств, чем минусов.
Достоинства проектов с малой этажностью:
- фундаментное основание является важнейшей частью дома. При этом стоимость его строительства очень высока в сравнении с расценками на оставшиеся виды работ. В большинстве случаев одноэтажные постройки имеют упрощенный вариант фундамента. Такое основание не рассчитано выдерживать вес нескольких этажей, поэтому может иметь простое исполнение и облегченную конструкцию. Что, в свою очередь, не налагает ограничений в отношении типа грунта на территории, отведенной под застройку;
Одноэтажный дом со спальными комнатами в мансарде
- при строительстве стен можно существенно сэкономить, поскольку их конструкции не требуют дополнительного усиления, так как отсутствует второй этаж. Выбор строительных материалов в этом случае также практически ничем не ограничивается;
- инженерия в одноэтажных зданиях очень проста.
Нет необходимости выполнять сложную разводку коммуникаций, системы отопления и пр. с расчетом на особые эксплуатационные условия дома. Как это бывает, например, с домами, где есть такой архитектурный элемент, как второй свет или же имеется много этажей. Монтажные работы максимально упрощены и обходятся очень дешево; - благодаря простой конструкции строительство дома не требует больших затрат, а все работы производятся в кратчайшие сроки;
- проекты с одним этажом не включают в себя наличие лестничной конструкции, за исключением планировок с мансардой. Это позволяет отказаться от возведения дорогостоящей и сложной лестницы, более рационально распорядившись внутренними жилыми площадями.
Обратите внимание! Немаловажное значение при выборе планировки имеет психологический фактор. Для семей, в которых есть дети, очень важен аспект единения и оптимального размещения жилых комнат по отношению одна к другой.
Недостатки одноэтажных зданий и особенности организации пространства
Одноэтажные постройки имеют и недостатки, которых не так уж и много:
- сооружения с большой площадью и одним этажом создают значительные трудности на этапе проектирования.
В таких условиях при составлении планировки нужно следить за тем, чтобы проходных комнат было как можно меньше. Особенно это требование касается комнат отдыха – спален, гостевых и детских. От этого будет зависеть комфорт нахождения в них;
Планировка одноэтажного дома площадью 150 кв м, рассчитанного на проживание большой семьи
- постройки с одним этажом и большими габаритами требуют значительных затрат на этапе организации крыши. Впоследствии кровля с такими габаритами будет чаще нуждаться в проведении планового ремонта и обновления, который станет причиной новых затрат;
- здания с маленькими габаритами ограничивают размеры внутренних помещений. На этапе проектирования придется создавать такую планировку, которая будет одновременно отвечать потребностям всех жильцов и соответствовать нормативам строительства и санитарии.
Терраса с зоной отдыха, пристроенная к одноэтажному дому
Фото проектов одноэтажных домов и способы увеличения пространства
С учетом того, что одноэтажные здания чаще всего ограничены в размерах, многие владельцы загородных участков стремятся любыми доступными способами увеличить внутреннее пространство.
Способы увеличения площади:
- обустройство цокольного этажа, где можно разместить не только жилые комнаты, но и помещения бильярдной, спортивного зала или кладовой;
- строительство мансардной крыши, которая может быть использована для размещения гостевой, спальни или детской комнаты;
Цокольный, первый и мансардный этаж небольшого по площади частного дома
Обратите внимание! Стоимость строительства мансардного этажа лишь незначительно превышает затраты, которые влечет за собой организация крыши с двумя скатами. Поэтому мансарду можно рассматривать, как выгодное вложение средств.
- монтаж крыши с одним скатом с целью дальнейшей организации комнаты-чердака или площадки навесного типа;
- использование плоской крыши для создания дополнительной зоны отдыха с цветником или патио;
- организация гаража или мастерской.
Все эти элементы позволят разнообразить планировку жилого здания и сделать его более интересным с архитектурной и функциональной точки зрения.
Устройство мансарды – эффективный способ увеличения внутреннего пространства дома
План одноэтажного дома 8 на 8 метров с цоколем
Такой элемент здания, как цоколь нельзя рассматривать в качестве полноценного этажа. Поэтому он не оказывает влияния на номинальное количество этажей в доме. Но если подземную зону сооружения облагородить и грамотно обустроить, площадь цоколя можно смело добавить к общему размеру здания.
Проект одноэтажного сооружения с цоколем не предусматривает размещение жилых комнат на этом участке. Подобные трудности обуславливаются тем, что здесь нет возможности организовать естественное освещение в необходимом количестве и нормальный уровень вентиляции.
План цоколя одноэтажного дома 8 на 8 м: 1 — коридор, 2 и 3 — нежилые помещения (бильярдная, котельная, прачечная, спортзал и т.д.)
Тем не менее вы всегда можете перенести в нижнюю часть постройки все помещения, имеющие хозяйственное и техническое назначение. Даже небольшое здание размером 8х8 м сможет обеспечить семью дополнительным пространством для размещения множества вещей и домашней техники на цокольном этаже.
Полезный совет! Используйте цоколь для установки системы водоснабжения и отопления (монтаж котла), организации прачечной, зоны для гладильной и сушилки, хранения консервации и овощей (вместо погреба). Сюда можно перенести подсобные помещения, кладовку или чулан.
Проекты большого размера позволяют располагать на цоколе комнаты, предназначенные для отдыха:
- тренажерный зал;
- бильярдная;
- мастерская;
- мини-кинотеатр;
- сауна;
- маленький бассейн.
Особенности планировки одноэтажного дома 10 на 10 метров с мансардой
В отношении стоимости коттедж с мансардным этажом практически аналогичен дому с чердачным помещением. Данный момент обуславливается тем, что материалов для строительства мансарды требуется практически столько же, сколько их необходимо для зоны чердака. Но в этом случае будут дополнительные затраты, так как потребуется выполнить:
- утепление;
- отделку;
- провести систему отопления.

Планировка одноэтажного дома 10 на 10 м с мансардой
Все это необходимо для того, чтобы организовать на мансардном этаже комнаты жилого типа, обеспечить в них комфорт. Поэтому затраты себя вполне оправдывают.
Как и в случае с цоколем, мансарда, с точки зрения архитектуры, не может рассматриваться, как полноценный этаж, следовательно, она способна предложить гораздо меньше полезной площади, чем это могло бы быть в двухэтажном здании. Зато это пространство дает возможность составлять интересные и разнообразные планировки.
Чаще всего мансарда условно выступает на плане здания как второй этаж. По этой причине в верхней части дома владельцы стремятся расположить комнаты спален и небольшие санузлы. Площадь этого участка определяет количество спален, их габариты.
Уютная гостиная, устроенная в мансарде одноэтажного дома
Мансарда может включать в себя несколько спальных комнат небольшого размера, а также холл, полноценный санузел, укомплектованный ванной.
Здесь же можно расположить кладовую.
План одноэтажного дома 8 на 10 метров с гаражом
Наличие всего одного этажа в доме не может быть помехой для создания под одной кровлей с жилыми помещениями гаража или мастерской. При этом планы одноэтажных домов с гаражом могут иметь полностью симметричную планировку или же, наоборот, определенное количество комнат, расположенных свободно.
Симметричные варианты зданий предлагают планировки, в которых помещение гаража отделяется от комнат жилого типа с помощью мощных капитальных стен. Внешне подобное здание выглядит симметричным, возможно условное разделение пополам на две зоны: жилую часть и участок, отведенный под гараж. При свободном распределении пространств помещение гаража просто примыкает к одной из наружных стен сооружения.
Планировка одноэтажного дома 8 на 10 м с гаражом и большой террасой
Полезный совет! Рекомендуется составлять планировку так, чтобы доступ к помещению был не только с улицы, но и со стороны дома.
Благодаря этому владельцу автомобиля не нужно будет мокнуть под дождем и снегом в непогоду, когда захочется пройти в гараж.
Для увеличения свободного пространства в доме вовсе не обязательно ограничиваться одним только гаражом, цоколем или мансардой. Вы можете использовать все эти элементы, чтобы сделать свой дом комфортным и удобным.
Проект одноэтажного дома 8х10 с гаражом
Разработка проекта одноэтажного здания
На комфорт проживания в доме влияет множество различных факторов. Но первоочередным из них по важности является характер размещения комнат, а также особенности их взаимодействия между собой.
Рациональное распределение пространств определяется:
- размерами комнат;
- назначением помещений;
- размещением;
- связями комнат между собой и другими видами помещений, таких как веранды, коридоры.
Фундаментная часть дома является основой для создания планировки. Сегодня на основании стандартных проектов возможности создания планировок существенно расширились.
Застройщики используют предварительно разработанные чертежи, включающие типичные конструктивные и планировочные решения. Благодаря этому снижаются затраты на этап проектирования, причем уменьшается не только расход денежных средств, но и времени. Идеи реализуются в короткие сроки, они максимально приближены к потребностям большей части владельцев загородных участков.
Компактный одноэтажный дом с оригинальным дизайном
Этап планирования здания и его внутренних помещений
Этап планирования здания включает в себя несколько обязательных требований, которых следует придерживаться.
При составлении планировки не стоит забывать о следующих моментах:
- расположение по отношению к розе ветров;
- особенности окружающего ландшафта и направление, в котором движется течение грунтовых вод;
- расположение по отношению к сторонам света;
- строения, размещенные на территории, их особенности и удаленность от участка, отведенного под строительство;
- наличие привязки к системам инженерии и коммуникации;
- особенности привязки внутренних коммуникационных систем к помещениям здания;
- форма сооружения;
Пример планировки одноэтажного дома, предназначенного для проживания семьи из 2-3 человек
- возможность выявить скрытые пространства, пригодные для применения в качестве полезных площадей при условии внесения небольших изменений в типовой проект;
- количество комнат, их назначение, связь между внутренними помещениями дома и особенности будущей эксплуатации.

Полезный совет! Рекомендуется сводить элементы коммуникационных систем в узлы. Это позволит сократить затраты и избавиться от монтажа ненужных деталей. Например, кухня и ванная комната должны иметь смежное размещение. Благодаря этому исчезнет необходимость в прокладке дополнительного трубопровода.
Трехмерный проект небольшого одноэтажного дома
Полезная информация для этапа проектирования
Коммуникационные системы следует продумывать очень тщательно. Лучше, если вы сможете свести длину трубопровода к минимуму, так как монтаж длинных труб сопровождается установкой множества соединений. Чем больше соединений, тем выше риски возникновения протечек.
Канализационная система нуждается в хорошем оттоке воды. Она должна быть рассчитана с тем, чтобы иметь возможность нормально принять объем жидкости, если в доме одновременно работает посудомоечная и стиральная машина, а также эксплуатируется ванная или душевая кабинка.
Этот момент зависит от количества постоянных жильцов в доме и потребностей каждого из них (а также бытовой техники) в воде.
Вариант планировки одноэтажного дома для семьи с ребенком
Привязка жилого здания к коммуникационным системам должна осуществляться в полном соответствии с санитарно-гигиеническими нормами. Как правило, стоки отходят на переработку в естественном режиме, подразумевающем использование силы тяжести. Отвод стоков осуществляется исключительно в предназначенное для этих целей место. Следует получить специальное разрешение санитарной службы и правильно организовать яму для стоков.
Важно! Недопустимо использовать для отвода стоков ливневку и водоемы. Это может стать причиной получения штрафа со стороны санитарной инспекции или вызова в суд со стороны коммунального предприятия, а также повлечь за собой загрязнение окружающей среды и грунтовых вод. Тщательно изучите правила и требования, выдвигаемые к процессу организации канализационной системы на загородном участке.
План одноэтажного дома 8 на 8 м с одной спальной комнатой
Местная сетевая компания также может выдвигать определенные требования в отношении применения бытовой техники. Заранее узнайте каков предел и с учетом этих данных вводите в эксплуатацию электрические приборы.
План одноэтажного дома до 100 кв м: интересные решения
При оптимальном расположении дома на участке ветра должны быть направлены в скаты крыши. Благодаря этому снижается сопротивление и ветровая нагрузка при сильных порывах и непогоде. Более того, осадки не будут попадать во фронтоны.
Если предполагается строительство жилого сооружения в регионе, где наблюдаются резкие и частые перемены в направлении ветров, рекомендуется применять крыши полувальмового или вальмового типа. Благодаря данным конструкциям появляется возможность сформировать дополнительные навесы и плоскости, обеспечивающие эффективную защиту стен от воздействия осадков.
Если убрать внутренние перегородки, объединив кухню, столовую и гостиную, это визуально раздвинет внутреннее пространство небольшого по размерам дома
Не стоит забывать и об особенностях ландшафтного рельефа местности.
Не рекомендуется располагать здание в самых крайних точках, то есть выполнять строительство в самой высокой и самой низкой зонах участка.
Чтобы определиться с размещением постройки следует посетить местную администрацию и получить там карту, отражающую геодезическое районирование местности и все особенности близлежащего рельефа. Такая карта будет включать информацию о размещении грунтовых вод, их направлении, особенностях грунта и прочие полезные для строительства данные.
Одноэтажный дом с мансардой площадью до 100 кв м
План одноэтажного дома 6 на 6 метров
Планировка одноэтажного коттеджа, выполненного из древесины или каких-либо других материалов, основывается на параметрах и особенностях формы. Квадратные сооружения, коим является и дом 6х6 м, считаются оптимальными.
Обратите внимание! Симметричность здания позволяет создавать интерьеры помещений сбалансированными и гармоничными. Этим обуславливается повышенная популярность проектов с одинаковой длиной сторон.
План маленького дома 6х6 м с одним этажом
С учетом того, что габариты здания 6х6 м невелики, такой дом может использоваться в качестве дачного коттеджа. Его строительство будет сопровождаться меньшими затратами, чем возведение более габаритного или двухэтажного сооружения. Используя инструменты и технологии современного дизайна здесь можно организовать все условия, необходимые для комфортного проживания.
Немалой экономии можно достичь за счет грамотной организации системы отопления, если в качестве замены для нее использовать камин, укомплектованный радиаторами, или котел с небольшой мощностью.
Коттедж 6 на 6 м может использоваться в качестве дачного домика или же для круглогодичного проживания
В пространстве площадью 36 кв м можно расположить помещения:
- гостиной;
- спальни;
- кухни;
- небольшого санузла;
- котельной;
- прихожей.
Хорошим вариантом станет совмещение кухни и гостиной по типу студии.
Благодаря этому решению можно увеличить полезную площадь.
План дома 6х6 м с мансардным этажом
План одноэтажного дома 9 на 9 метров
Одноэтажные здания 9х9 м в отношении планировки имеют аналогичные характеристики, что и сооружения квадратной формы меньшего размера. Преимущество строений с длиной сторон 9 м заключается в том, что увеличивается полезная площадь, которая дает возможность разнообразить интерьерное оформление комнат.
В качестве примера можно рассмотреть дверные конструкции. Ограниченные пространства коттеджа с общей площадью 36 кв м в целях экономии свободного места требуют установки межкомнатных дверей раздвижного типа. Установка конструкций со створками, которые прячутся в специальный короб, размещенный в стене, позволит добиться максимальной экономии пространства. В то время как жилое здание с габаритами 9х9 м позволяет выполнять монтаж классических дверей с распашными створками.
Варианты планировки одноэтажного дома 9 на 9 м
Полезный совет! С помощью мансардного этажа можно частично решить проблему тесноты в небольших постройках.
В этом случае зона мансарды используется для размещения большой спальной комнаты, что освобождает место для организации кухни и гостиной с увеличенными размерами. Однако придется подыскивать место для установки лестничной конструкции, что не вызовет проблем, если мансарда включается в планировку дома 9х9 м.
Планировка одноэтажного дома 8 на 10 метров
Выбор планировок достаточно обширен, поэтому у вас есть все шансы для того, чтобы подобрать действительно удобный и подходящий именно вам вариант. Строительство на загородном участке дома с параметрами 8х10 м позволит обзавестись:
- четырьмя спальнями;
- гостиной;
- кухней.
3D-проект одноэтажного дома 8 на 10 м
И это лишь основные жилые помещения. Нельзя забывать о том, что в таком коттедже, вдобавок к перечисленным комнатам, можно организовать санузлы и подсобки. Планировка может включать веранду или тамбур, что обеспечит дополнительную защиту от холода в зимнее время.
При составлении плана дома 8 на 10 м в целях экономии полезной площади можно отказаться от организации длинных коридоров, которые крадут свободное пространство. Кроме того, выгодным решением станет объединение площадей кухни и гостиной за счет удаления стены, разделяющей данные помещения.
План одноэтажного дома 8х10 с мансардой, четырьмя спальнями и балконом
Проекты одноэтажных домов до 150 м2: фото и популярные планировки
Некоторые проекты могут иметь дополнительные конструкционные элементы, которые улучшают архитектуру здания.
К таким элементам относится:
- эркер;
- балкон;
- терраса;
- веранда.
Обратите внимание! Все эти элементы имеют вид внешних пристроек (исключением является эркер), которые предназначены для эксплуатации в теплое время года и в хороших погодных условиях.
Терраса и веранда хороши для организации зоны отдыха. Вечером данное пространство может быть использовано для чаепитий в кругу семьи или друзей.
Балкон станет прекрасным местом для релаксации и созерцания красоты ландшафта вокруг дома.
Планировка одноэтажного дома с достаточно большой площадью
Эркер имеет более сложное функциональное значение для здания. Он эффектно украшает дом со стороны фасада, а также способен сделать более интересной внутреннюю планировку. Кроме этого, эркер позволяет устанавливать большие окна. За счет этого увеличивается поток естественного освещения, который попадает в дом с улицы.
На чертежах построек с эркерами видно, насколько интересной становится обычная прямоугольная или квадратная коробка здания со стандартными параметрами. Чаще всего эркеры устанавливаются в сооружениях, сложенных из камня или древесины. При этом тип материала оказывает непосредственное влияние на форму данного элемента.
Большой одноэтажный дом с чердачными помещениями
Планы одноэтажного дома 10 на 12 метров и 10 на 10 метров
Одноэтажные коттеджи с габаритами 10х10 м и более уже выходят за рамки проектов до 100 кв м.
Чаще всего над строительством такого здания задумываются владельцы земельных участков с большой площадью. Такое сооружение может быть использовано не только в качестве дачного домика на летний сезон, но и способно выполнять функцию полноценного жилья для постоянного проживания семьи из нескольких человек.
Преимущество квадратных помещений состоит в том, что они способствуют удобному распределению предметов меблировки и оптимальны для организации хорошего уровня освещения.
В здании с габаритами 10х10 м может расположиться семья из 4-5 человек. Если говорить в общих чертах, то планировка такого коттеджа позволяет создать условия проживания схожие с тем, что предлагает трехкомнатная квартира в городе. За счет котельной в таком доме обеспечивается отопление.
Кроме обязательных помещений, владелец может организовать другие комнаты, обеспечивающие повышенный комфорт:
- обустроить кабинет;
- увеличить габариты санузла с последующей установкой ванной вместо душевой кабинки;
- установить джакузи.

Полезный совет! Если увеличить проект до 10х12 м, появится возможность добавить к общему плану помещение комнаты для гостей и гардеробную.
Пример удачной планировки одноэтажного дома 10х10
План одноэтажного дома 11 на 11 метров
Одноэтажные дома из бруса – прекрасная альтернатива кирпичу и бетону. Коттеджи из древесины не только имеют невысокую стоимость, но еще и экологичны. Для строительства здания из бруса 11х11 м потребуется не очень много времени. Взамен вы получите около 102,5 кв м полезной площади и достаточное количество помещений.
Проект зданий 11х11 м может включать в себя:
- несколько жилых комнат;
- кухню;
- санузел;
- холл;
- веранду, тамбур, котельную.
Одноэтажный дом 11 на 11 м с мансардой и большим гаражом
В качестве строительного материала рекомендуется использовать брус с параметрами 150х100. Горизонтальный тип строительства позволяет отказаться от монтажа лестницы, которая сама по себе имеет сложную конструкцию и технологию возведения, да еще и занимает часть полезной площади как на первом этаже, так и на втором.
С одноэтажными постройками такой проблемы нет.
План одноэтажного дома 12 на 12 метров
Одноэтажное здание с размерами 12х12 м сможет стать прекрасной основой для создания комфортной планировки. Габариты жилья позволяют организовать:
- несколько спален;
- гостиную;
Вариант планировки одноэтажного дома 12х12 м
- кухню;
- столовую;
- два полноценных санузла.
Проекты 12х12 м позволяют организовать цокольный этаж или мансарду. Пристройка в виде террасы или гараж смогут расширить полезную площадь дома.
Существует масса вариантов для создания удобного и комфортного плана здания под застройку загородного участка. Выбор ограничивается только вашей фантазией и бюджетом.
Дата публикации:ДомПроекты домов и коттеджей 10 на 12 (10х12)
5Цена по запросу
3Цена по запросу
19Цена по запросу
12Цена по запросу
3Цена по запросу
13Цена по запросу
9Цена по запросу
12Цена по запросу
16Цена по запросу
10Цена по запросу
15Цена по запросу
8Цена по запросу
6Цена по запросу
19Цена по запросу
7Цена по запросу
2Цена по запросу
7Цена по запросу
1Цена по запросу
8Цена по запросу
1Цена по запросу
9Цена по запросу
* Ставка кредита рассчитана по ипотечной программе «Строительство жилого дома» с первоначальным взносом 25% по ставке 9.
7% годовых сроком на 10 лет.
** Указана общая площадь дома, измеренная по наружному периметру стен, а также площади террас, крылец и балконов.
21 бюджетная идея по благоустройству дома
Если вы заядлый домашний мастер, вы уже на пути к экономии. Но при правильном планировании вы можете изменить ощущение целой комнаты с помощью одного проекта, который стоит всего несколько сотен долларов.
Простое обновление дома, которое можно сделать с ограниченным бюджетом
Выберите из нашего обзора улучшающих стоимость обновлений, которые все стоят ниже отметки 500 долларов — примерно и меньше. Мало того, что сейчас они не повлияют на ваш кошелек, но некоторые из них даже сэкономят вам деньги в будущем.Ознакомьтесь с нашими простыми идеями по улучшению дома ниже.
1. Освежите свои комнаты краской
Фото Колина Смита Вы можете придать своим тусклым, вымытым стенам яркую глубину (или смыть грехи декорирования с помощью девственно-белого цвета), просто взяв банку с краской и потянув ее.
В этом сила слоя краски: он меняет вашу реальность. Вот почему покраска — это самый популярный способ усовершенствования дома своими руками.
Хотя вам не нужно быть профессионалом, чтобы научиться рисовать так, как это делается, хорошая покраска — это нечто большее, чем просто нанесение краски на стену. Ознакомьтесь с нашими инструкциями по качественному покрытию стен за один уик-энд, от первой царапины шлифовальной машиной до последнего перышка кисти.
Стоимость: Около 150 долларов
Полные пошаговые инструкции см. В разделе «Как покрасить комнату».
2. Добавьте легкое формование коронки
Фото Мисти Кеслер Молдинг Crown занимает первое место в большинстве списков реконструкции, потому что он добавляет очарования и ценности дому, а не потому, что людям нравится проводить субботу, пытаясь уложить углы.К счастью, есть простой способ победить разочарование, вызванное пилой.
Молдинг Trimroc от Canamould Extrusions представляет собой легкий пенополистирол, покрытый твердой штукатуркой. Он плавно режет ножовкой и мгновенно поднимается вверх с помощью герметика. Никакого преодоления трудностей, никаких сложных углов и рваных суставов, которые исчезают с помощью капли грязи. Таким образом, всего за выходные вы можете превратить простую комнату в элегантную — и при этом оставить достаточно времени для остальной части вашего списка.
Стоимость: Около 120 долларов.
Полные пошаговые инструкции см. В разделе «Как установить молдинг для короны из пеноматериала».
3. Установите недорогой бегун для лестницы
Хотите хорошо держаться на скользкой лестнице? Попробуйте самодельный раннер. Получив смету в 2500 долларов на ковровое покрытие ее опасно гладкой дубовой лестницы, читатель TOH Хайме Шакфорд взяла проект в свои руки. С помощью всего двух имеющихся в наличии тканых бегунов (по 125 долларов каждая) и принадлежностей из домашнего центра она улучшила свою лестницу против скольжения.
Стоимость: Около 300 долларов.
Полные пошаговые инструкции см. В разделе «Как установить недорогой бегун для лестницы».
4. Установите посудомоечную машину для экономии воды
Фото Колина СмитаЭта старая посудомоечная машина может нанести ущерб вашим счетам за электричество и воду. Пора заменить его на новую посудомоечную машину, сертифицированную Energy Star, которая может сэкономить вам более 30 долларов в год на электроэнергии и почти 500 галлонах воды.Если у вас вообще нет посудомоечной машины, вы используете на 40 процентов больше воды, стирая вручную!
Самая большая экономия средств? Днем можно самостоятельно установить посудомоечную машину. Ни сантехника, ни электрика — и не беспокойтесь о том, что вы тратите пенсионные деньги на загрузку чистой посуды.
Стоимость: Около 450 $ +
Полные пошаговые инструкции см.
В разделе «Как установить новую посудомоечную машину» или «Как заменить посудомоечную машину».
5. Ремонтировать старинный входной фонарь
Фото Кристины ЛарсенМногие подвесные фонари первой половины 20-го века были скромными по конструкции и выглядели так, как будто они были изготовлены кузнецами, а не машинами.
Популяризованные законодателями моды того времени, такими как Густав Стикли и ремесленники Ройкрофта, эти деревенские фонари олицетворяли верность основам дизайна. Если вы забили одну такую находку на распродаже во дворе или спрятали одну на чердаке, вы можете пригласить гостей «зайти», вернув в эксплуатацию старинный фонарь. Это простая и доступная работа, если вы получите запчасти.
Стоимость: Около 140 долларов.
Полные пошаговые инструкции см. В разделе «Как перешить винтажный фонарь начального уровня».
6.
Обновить старые полы краской Фото Колина Смита Бордовый красный пол в главной спальне фермерского дома Сары и Эндрю в Массачусетсе не соответствовал свежей и энергичной индивидуальности молодоженов. Но повторная отделка не подходила для ограниченного бюджета. Поэтому, чтобы обновить пространство, они выкрасили пол в светлый узор в клетку, используя бежевый и белый цвета, чтобы согреть свои прохладные синие стены.
Здесь мы покажем, как небольшое измерение и пара слоев прочной краски для пола могут добавить индивидуальности комнате за небольшую цену.
Стоимость: Около 75 долларов.
Подробные пошаговые инструкции см. В разделе «Как красить пол».
7. Сделайте тень и добавьте уединения с помощью внутренних жалюзи
Солнечный свет, проникающий через окна, может сильно отвлекать. Не говоря уже о соседях, у которых есть больше вечерних часов, чтобы заглянуть в вашу ярко освещенную гостиную.
Вы можете установить шторы, чтобы скрыть посторонние взгляды, но распашные деревянные ставни определенно будут более красивыми.
Внутренние ставни были оригинальной «оконной обработкой», обычно используемой в южных и городских домах, и они по-прежнему являются отличным способом добавить архитектурные и исторические детали. Они также защищают от холодных зимних ветров или изнурительной жары лета. И их легко установить на любое окно, потому что они прикрепляются к тонкой раме, которая либо находится внутри оконного проема, либо вокруг внешней стороны корпуса.
Стоимость: Примерно от 150 до 400 долларов.
Полные пошаговые инструкции см. В разделе «Как вешать внутренние ставни».
8. Придайте кухонным шкафам безупречный новый вид
Фото Колина СмитаВаша пещерная кухня кажется такой, потому что темные шкафы высосали весь свет из комнаты. Но более яркий макияж не обязательно означает замену этих мрачных коробок на новые.Если рамы и двери структурно прочны, вы можете очистить их и нанести новую краску — и в течение выходных превратить эту кухню из унылой в солнечную. Все, что вам нужно, это сильный очиститель, наждачная бумага, кисть и немного смазки для локтей. Что вам не нужно, так это большие деньги, так как преобразование обойдется вам в доли даже самых дешевых новых шкафов.
Стоимость: Около 200 долларов.
Подробные пошаговые инструкции см. В разделе «Как покрасить кухонные шкафы».
9. Получите больше цветов, не тратя ни копейки
Фото Райана БеньиДеление многолетних растений каждые три-шесть лет — отличный способ получить тонкие кустообразующие сорта, такие как лилейник (показанный здесь), цветущий с конца весны до конца лета. Этот метод также можно использовать для контроля размера растений, стимулирования роста и увеличения количества экземпляров в саду. Хорошее практическое правило — разделять цветущие весной и летом многолетние растения в конце лета или перед осенними заморозками.
Стоимость: 0 $.
Подробные инструкции см. В разделе «Как разделить многолетники». И не забудьте проверить, как бесплатно разводить растения, чтобы узнать еще больше о способах размножения уже имеющихся у вас растений.
10. Установите фильтр для воды и откажитесь от дорогих бутылок
Фото Колина СмитаМиллионы семей перешли на питьевую воду в бутылках из-за опасений по поводу чистоты или вкуса воды из-под крана.Такие проблемы существуют по всей стране, независимо от того, идет ли вода из муниципального трубопровода или из грунтового колодца. Однако есть более простой и менее дорогой способ получить чистую питьевую воду: установить систему фильтрации воды под раковиной.
Стоимость: Около 250 долларов.
См. Полные пошаговые инструкции в разделе «Как установить фильтр для воды».
11. Уложите экологически чистый слой изоляции
Фото Колина СмитаДостаточно плохо просыпаться по утрам, не говоря уже о том, чтобы встать и испытать ледяной шок от холодного пола.Что вам нужно, так это немного тепла под ногами, небольшая подушка, когда вы ходите по дому. Введите пробку. Эластичный, но прочный, стильный, но естественный, натуральный пробковый пол может превратить любую прохладную комнату в уютный рай.
Пробку также намного проще укладывать, чем традиционные деревянные полы. Производители теперь предлагают изделия в виде панелей, которые соединяются без клея и гвоздей. Эти системы плавающего пола хорошо сидят на фанере, бетоне или даже на существующем полу. За один день вы можете превратить пол в удобный коврик, по которому пальцы ног могут свободно перемещаться, не опасаясь сильного холода, или дорогих ковриков.
Стоимость: В среднем от 6 до 8 долларов за квадратный фут.
Полные пошаговые инструкции см. В разделе «Укладка пробкового пола».
12. Отремонтируйте красивую деревянную дверь вашего дома
Фото Кита ЛатамаГоды и элементы неблагоприятно сказались на внешнем виде этой 94-летней толстой двери из кипариса. Чешуйки лака все еще местами прилипали к дереву, а остальная поверхность была шероховатой и высохла от воздействия воды и солнца.Деревянные входные двери повсюду страдают от одних и тех же нападений, и многие из них попадают в мусор, замененные не требующими особого ухода суррогатами из металла и стекловолокна массового производства. Но вы можете вдохнуть новую жизнь в свою старую дверь с помощью нескольких доступных принадлежностей.
Стоимость: Около 50 долларов.
См. Подробные пошаговые инструкции в разделе «Обработка двери».
13. Положите свежий герметик для ванной
Фото Дэвида КармакаВы видели зловещие признаки старения герметика.Сначала это был коричневый оттенок по краям. Теперь его гладкая и эластичная кожа стала хрупкой и потрескавшейся, открывая путь стойким колониям плесени, которые могут закрепиться, или воде, просочившейся сквозь нее и превратившей стену и обрамление в мягкие. Будь то вокруг раковины, между ванной и ее облицовкой из плитки или на стыках душевой кабины — все должно быть убрано.
К счастью, герметик стоит недорого, и нанести его несложно. Все, что вам нужно, — это час, несколько обычных инструментов и материалов, которые легко найти в любом хозяйственном магазине.Но как бы легко это ни было, вы все равно должны сделать это правильно, иначе вы снова будете конопатить в следующем году, — говорит генеральный подрядчик This Old House Том Сильва.
Стоимость: Примерно от 10 до 50 долларов.
См. Полные пошаговые инструкции в разделе «Как заделывать вокруг ванны».
14. Оживите свою старую колоду
Когда на место прибыл подрядчик Стивен Боунстил, состояние этой сосновой террасы было плачевным. Двадцать лет суровой погоды в северной части штата Нью-Йорк без малейшего внимания сделали его некогда блестящие доски обветренно-серым, испещренным слизистыми водорослями и черными пятнами от листьев.
Тем не менее, даже такое заброшенное дерево можно вернуть к респектабельности. В течение недели он мыл и оттирал вручную палубу, чтобы придать ей подобие новизны, затем нанёс защитный слой из полупрозрачного пятна, чтобы защитить его от непогоды.
Стоимость: Примерно от 80 до 120 долларов.
Подробные пошаговые инструкции см. В разделе «Как восстановить устаревшую колоду». Кроме того, вы захотите убедиться, что ваша структура устойчива, выполнив проверку колоды.
15. Добавьте архитектурный интерес с помощью лестничных скоб
Фото Райана БеньиНовые стойки и балясины привлекают все внимание, в то время как открытая сторона большинства лестниц в значительной степени игнорируется. Но с добавлением декоративных скоб для лестницы мягкий стрингер может стать элегантным приманкой для глаз. Здесь мы использовали простые в установке и доступные деревянные кронштейны, на которые крепится клей и гвозди.
Стоимость: Примерно от 150 до 250 долларов.
Полные пошаговые инструкции см. В разделе «Как добавить фигурные лестничные скобки».
16. Укладка недорогих полов в прачечных и грязных
Фото: Shaffer Smith PhotographyЗадолго до появления эластичных полов и пластиково-ламинатных досок появилась виниловая плитка. Первоначально производимая в качестве альтернативы линолеуму, виниловая плитка стала популярной, потому что она была красочной, легкой в уходе и устойчивой к образованию трещин.Плитка размером 12×12 дюймов бывает десятков цветов, узоров и текстур, что позволяет легко создавать шахматные конструкции и полы с контрастными краями. Здесь мы покажем вам, как правильно укладывать самоклеящуюся плитку для создания профессионального и прочного пола.
Стоимость: Около 2 долларов за квадратный фут и от 80 до 100 долларов за другие материалы.
Полные пошаговые инструкции см. В разделе «Укладка виниловой плитки».
17. Защитите стены с помощью легко очищаемого фартука
Фото Уильяма П.ФуллерЕсли установка традиционного фартука из плитки кажется вам немного не по себе, установка такого фартука, сделанного из цельного листа материала с твердой поверхностью, может быть вашей спасительной благодатью. Формовка, резка и склейка этого недорогого исходного материала, доступного от таких компаний, как Swanstone, которая делает показанный здесь фартук из бисера различных цветов и узоров, — это проект выходного дня, который большинство любителей могут с уверенностью победить. А когда у вас будет гладкий фартук, вы подумаете, что это такая стильная защита от брызг и брызг, и вы удивитесь, почему вы вообще когда-либо рассматривали плитку.
Стоимость: Примерно 25 долларов за квадратный фут.
Полные пошаговые инструкции см. В разделе «Как установить панель Solid-Surface Backsplash».
18. Предотвращение роста плесени с помощью вентиляционного вентилятора для ванной
Фото Келлера и КеллераУстановка вентилятора в ванну не только устраняет запотевшие окна, запотевшие зеркала и несвежие запахи. Это также помогает предотвратить проблемы, связанные с влажностью, такие как рост плесени и грибка, удаление которых может быть дорогостоящим и привести к проблемам со здоровьем.Избегайте всего этого с помощью доступных обновлений. Здесь, This Old House Генеральный подрядчик Том Сильва показывает, как правильно установить вентилятор для ванны. В этой конкретной установке Том проложил вытяжной канал на чердак и через боковую стену на улицу.
Стоимость: Примерно от 120 до 175 долларов.
Полные пошаговые инструкции см. В разделе «Как установить вытяжной вентилятор в ванной».
19. Создайте специализированный инструментальный стенд
Фото Эллисон ДиннерЭми Паладино профессионально умеет совмещать требования своей работы и семьи.Но, как и многим из нас, когда дело дошло до организации инструментов для проектов DIY, ей требовалась небольшая помощь.
Вот план скамейки для хранения инструментов, размер которой зависит от вашего пространства, которая также может служить рабочей поверхностью. Хотя это может показаться сложным, конструкция не может быть проще. И вы будете защищать свои ценные инструменты в индивидуальном сундуке, сэкономив при этом возмутительную стоимость купленного в магазине хранилища.
Стоимость: Около 150 долларов.
Полные пошаговые инструкции см. В разделе «Как собрать инструментальный стенд».
20. Потолочные вентиляторы для летней (и зимней) экономии
Фото: Shaffer Smith PhotographyПопулярность потолочных вентиляторов продолжает расти, поскольку все больше и больше домовладельцев обнаруживают значительную круглогодичную экономию энергии. Летом потолочные вентиляторы создают прохладный ветерок, который снижает нагрузку на кондиционеры. Зимой в них циркулирует нагретый воздух, чтобы в комнате было тепло.
Установить потолочный вентилятор относительно просто, особенно если в пространство наверху можно попасть с чердака.Однако, даже если это не так, работа по-прежнему вполне выполнима. Здесь мы покажем, как заменить старый светильник на новый потолочный вентилятор и свет в комнате без чердака наверху. Преимущество этого подхода в том, что вам не нужно прокладывать новую проводку. Вентилятор подключается к существующему кабелю от старого светильника.
Стоимость: Примерно от 50 до 350 долларов.
Полные пошаговые инструкции см. В разделе «Как установить потолочный вентилятор».
21. Сократите расходы с помощью программируемого термостата
Фото Райана БеньиПерейти на цифровую модель с моделью, которая автоматически изменяет настройку температуры в помещении, довольно просто, и она может сократить ваши ежегодные расходы на отопление и охлаждение примерно на 180 долларов.Простые модели, которые контролируют только тепло, продаются в домашних центрах примерно за 25 долларов. Но устройства, подобные показанному здесь, могут выполнять гораздо больше функций, включая охлаждение и увлажнение. Обычно они приобретаются и устанавливаются подрядчиками по ОВК, но вы можете получить выгодную сделку, купив онлайн и установив его самостоятельно в кратчайшие сроки.
Стоимость: Около 475 долларов.
См. «Как установить программируемый термостат» для получения полных пошаговых инструкций.
50 проектов по благоустройству дома своими руками до $ 50
Покрасьте входную дверь
УЗНАТЬ, КАК: Как покрасить входную дверь
Классические двери вагона (по дешевке)
Купить: Amazon, 11 долларов.68 (Первоначально 19,99 доллара США)
Установка стены с акцентом на шип
Узнать, как: Как установить Shiplap
Установите настроение с помощью струнных огней
Наружные глобусы: Amazon, 15 долларов.99
Вставки для стеклянных шкафов своими руками
ПОЛУЧИТЕ КАК: Обновить кухонные шкафы со стеклянными вставками
Трафарет для вашего патио
ПОЛУЧИТЕ КАК: Как красить и наносить трафарет на бетонный дворик
Подделка мрамора
Узнать, как: Как покрасить столешницу из искусственного мрамора
Попробуйте обои Peel-and-Stick
Скрыть наружные глаза
Купить: Amazon, 94 доллара.98
Правильно повесьте шторы
Снимите потолок из попкорна
Нарисуйте дверные ручки
Обновление оборудования кухонного шкафа
ЗОЛОТЫЕ РУЧКИ С ЩЕТКОЙ: Wayfair, 5 долларов.55
Добавьте украшения на двери шкафа
НАПОЛЬНЫЕ ЗЕРКАЛА: Цель — 49 долларов.99
Побелить кирпичный камин
Смените занавеску для душа
КУПИТЬ: Дж. С. Пенни, 34 доллара.99
Поддельная фантазия
КУПИТЬ: Майклс, 10 долларов.49
Дважды на ковриках на крыльце
Преобразите своего поклонника
УЗНАТЬ, КАК: Поддельная фантазия с этими простыми и дешевыми обновлениями для дома
Попробуйте плитку Peel-and-Stick
Купить: Amazon, 9 долларов.98
Сделайте старый диван новым
УЗНАТЬ БОЛЬШЕ: 30 диванов, рассчитанных на часы отдыха
Обрамление зеркала в ванной
УЗНАТЬ, КАК: Обновление ванной комнаты: добавьте раму к зеркалу и нарисуйте тщеславие
Раздвижная дверь сарая своими руками
ПОЛУЧИТЕ ИНСТРУКЦИЮ: Как сделать раздвижную дверь сарая
Вау с оконными коробками
УЗНАТЬ, КАК: DIY плавающая оконная коробка
Сделай этот дождь
КУПИТЬ: Amazon, 36 долларов.99
Go Antiquing
ЕЩЕ ИДЕИ: 20 элементов дизайна старого дома, которые можно добавить в новую сборку
Сделайте стойки плантатора для струнных светильников
УЗНАТЬ, КАК: Как сделать столбики для горшков для струнных светильников
Настройте свои шкафы
УЗНАТЬ БОЛЬШЕ: Поддельная фантазия с этими простыми и дешевыми обновлениями для дома
Строить деревянные стеллажи
Обрезать это
Узнать, как: 5 простых шагов к отделке в фермерском стиле своими руками
Трафарет для лестницы
Марокканские трафареты: Amazon, 11 долларов.99
Ремонт почтового ящика
Jazz Up Кухонные шкафы с картонной доской
Поместите номера домов на входной двери
Современные номера домов: The Home Depot, 8 долларов.23
Скажи «Бух-бай» Boob Lights
Купить: Amazon, 41 доллар.70
Просто добавьте растения
Заменить наружное освещение
Купить: Amazon, 39 долларов.89, 2-уп.
Поднимите шкафы
Украшайте кладовку корзинами
ЗАГРУЗИТЕ ЭТИ ТКАНЫЕ КОРЗИНЫ: 7 долларов.99
Доска для заметок по экономии мебели
Еще идеи: 12 очаровательных поделок для кошек и любителей кошек
Повесьте полку для растений
УЗНАТЬ БОЛЬШЕ: 21 комнатное растение для слабого освещения
Сделайте цвет более ярким с помощью вкладышей для полок
УЗНАТЬ, КАК: Придайте своей кухне красочный вид (без краски!)
Панель простая дверь
Освещение под шкафом
Купить: The Home Depot, 27 долларов.99, 3 упаковки
Подделайте это, пока не сделаете это
Дополнительные советы: Этот взлом для садовых горшков сэкономит вам время, деньги и рассудок
Акцентная стена Washi Tape
Гламур на земле
Купить: The Home Depot, 3 доллара.97
Дешевое + шикарное изголовье
Узнать, как: Как сделать изголовье из тростника в рамке
Создать «встроенную» ванну
Узнать, как: Обновление облицовки ванны с помощью доски Beadboard
Поверните дверь в спальню по-голландски
Узнать, как: Как сделать внутреннюю голландскую дверь своими руками
30 проектов домашнего декора своими руками
Предоставлено Vintage Revivals
Посмотрим правде в глаза: в этом году большинство из нас провело дома больше времени, чем мы могли когда-либо мечтать.Плюсы в том, что вы отсиживались? Сейчас самое подходящее время для выполнения некоторых проектов своими руками. Возможно, у вас проблемы с местом для хранения вещей, организацией или просто с несколько тусклым дизайном квартиры, который требует модернизации. Может быть, эта глухая стена, уставившаяся на вас, умоляет о стене галереи, которую вы, как вы говорили, собирались возвести вечно. Как бы то ни было, мы называем 2020 год официальным годом DIY. Вот лучшие работы, которые мы сделали в этом году.
2 Обновите двери шкафа
Проклятые уродливые дверцы шкафов строительного уровня? Попробуйте этот удивительно простой способ от нашего друга-дизайнера Кейты Тернер, чтобы придать им индивидуальный вид, используя всего несколько ярдов ткани и скобяной пистолет.
3 Размножить растение
Есть растения дома? Отличные новости: вы можете превратить их в еще растений. Вот наше пошаговое руководство по выращиванию нового растения из черенков старого.
4 Сделайте уютное место у окна!
Нет швейной машины? Без проблем! Это уютное сиденье у окна было изготовлено с помощью английских булавок — всего за 20 минут! Получите пошаговое руководство здесь.
5 Заменить классную дверную ручку
Это одно из тех небольших изменений, которые имеют большое значение. Всего за 10 минут и отвертку замените старые скучные дверные ручки на что-нибудь покрасивее. Вот как.
6 Обновите абажуры
Спорим, вы бы не догадались, что этот дорогой на вид оттенок на самом деле был сделан вручную из декоративной бумаги, найденной на Etsy.Ага, сделанный на заказ топпер для лампы всего за несколько долларов. Вот как сделать самому.
7 Сделать свечи + мыло
Эти наборы для рукоделия от Craftzee позволяют создавать свечи, мыло и бомбы для ванн с классическими ароматами, такими как свежий хлопок и цветение вишни. Их предварительно смешанные основы безопасны в использовании (читай: без смешивания щелока) и содержат много вещей, которые можно приготовить для друзей и соседей. Делайте покупки здесь.
8 Сделать комплект штор без шитья
Хотите новую отделку окон, но без швейной машины (или навыков швеи) дома? Без проблем.Я сделал этот набор в своей квартире, просто используя двойной тканевый скотч. Получите руководство здесь.
9 Сделать шторы профессионального уровня
Если вы умеете шить , почему бы не сделать шторы профессионального уровня? Мы попросили основателя Stitchroom показать нам, как это сделать. Смотрите здесь.
10 Прикрыть старое устройство
Украдите эту идею у Даниэль Роллинз и украсьте свою уродливую технику контактной бумагой или виниловыми обоями.Вот как.
12 Марбелизируйте ваши столешницы
14 Держите подушки
Храните подушки и одеяла в этих корзинах с помпонами adorbs. Бонус: они также могут использоваться как корзины для стирки.
Получите учебное пособие на сайте Sugar & Cloth.
15 Gain Storage — без полок
Если дополнительные полки кажутся слишком грязными и загроможденными для ваших стен, сделайте это самостоятельно.Вы получите дополнительное пространство для ваз, растений, зеркал, рам и т. Д. И согреете свое пространство с помощью гигантского деревянного настенного покрытия.
Получите руководство на Vintage Revivals.
16 Создать подвесное пространство
Нет места для хранения шляп? Нужна вешалка для полотенец? Или вам просто нужно дополнительное место, чтобы повесить кашпо? Эта лестница, сделанная своими руками, не только функциональна, но и обладает всей индустриальной атмосферой.
Получите руководство на сайте I Spy DIY.
17 Показать столовую посуду
Вам не нужен кухонный шкаф (и на самом деле, если он у вас есть, вы все равно захотите отказаться от него в пользу этого), вам просто нужны лестничные полки с А-образной рамой своими руками. Минимализм FTW!
Получите руководство на Vintage Revivals.
18 Поддельный льняной шкаф
Нет бельевого шкафа в вашей ванной? Без проблем. Прикрепите корзины к стене, чтобы спрятать лишние полотенца и мочалки.
Получите руководство в My Wee Abode.
19 Этикетка для кухни
Используйте свой любимый шрифт, чтобы бутылки с маслом и уксусом выделялись на прилавке и вписывались в ваш декор. Эти шикарные бутылки были изготовлены с использованием переводных листов и Cricut Explore.
Получите руководство у Лиа Гриффит.
20 Развесьте книги
Отлично подходит для тонких детских книжек.Сохраните всех своих любимых людей в одном месте, создав этот подвесной держатель из войлока, дерева и веревки. Даже лучше? Закатывается!
Получите руководство на Table & Hearth.
21 год Загоните свои ключи
Никогда больше не забудьте свои ключи благодаря этой красочной брелке с деревянными ломтиками. Покрасьте фасад в яркие и яркие цвета, чтобы не пропустить его, выходя из дома.
Получите учебное пособие на сайте The Crafted Life.
22 Повесьте телефон
Мы готовы поспорить, что ваша зарядная станция представляет собой беспорядок, но есть решение. Превратите бутылочку с детским лосьоном в держатель для мобильного телефона, который висит на зарядном устройстве. Теперь все в одном месте — и это намного удобнее, чем путаница кабелей.
Получите учебное пособие на сайте Make It & Love It.
23 Спрячьте сушилку
Уродливые, громоздкие стеллажи для сушки = не мило.Если вы регулярно стираете и у вас много одежды, которую нельзя сушить в сушилке, прикрепите эту складную вешалку своими руками к пустой стене.
Получите учебное пособие на Gem & Em.
24 Выдвиньте корзины для белья
Корзины для белья, разбросанные по всему дому или сложенные стопками в вашей прачечной, звучат как кошмар вне декора, но не беспокойтесь. Комод, простой в сборке, позволяет вам задвигать и выдвигать корзины для белья, когда вам нужно их использовать, и хранить их между стирками.Гений.
Получите руководство у Аны Уайт.
25 Организуйте специи
Хранить специи сложно: намагничивание их может быть дорогостоящим и занимает много места на стене. Хранение их в шкафах означает, что вы потратите много времени на копание в поисках тмина. Вот почему мы так любим этот лайфхак: это безумно простое решение раздражающей проблемы.
Получите руководство на Reddit.
26 Раскрась свои ключи
Мы все там были. Какой ключ опять-таки оказался бэкдор? Нарисуйте каждую клавишу разным цветом, чтобы различать их — проще всего использовать лак для ногтей.
Получите руководство на Popsugar.
27 Сделайте книжные полки ступеней лестницы
Полки могут быть дорогими, так что симпатичный, настраиваемый вариант DIY полностью приветствуется. Эти полки — недорогой вариант, если вам нужно много места для хранения на стене.
Пройдите обучение в Школе украшения.
28 Храните чистящие средства вертикально
Подставки для душа подходят не только для душа.Используйте подставку для душа на натяжной основе в прачечной, чтобы хранить моющее средство, чистящие средства, полотенца и любые другие ненужные вещи.
Получите руководство в Lowe’s.
29 Сделать вращающееся тщеславие
Этот взлом IKEA, возможно, пока что является нашим любимым. Найти место для тщеславия может быть сложно, особенно в небольших квартирах, но если бы вы могли заставить этот туалетный столик вращаться? Это идеально.
Получите учебное пособие на Polkadot Chair.
30 Закрепите зарядные устройства
Этот сверхлегкий прием сделает вашу жизнь намного проще. Если вы хотите заряжать электронику на тумбочке, прикрепите сбоку зажим для папок. Проденьте зарядное устройство через зажимы и тада — ваш шнур больше никогда не потеряется под кроватью.
Получите учебное пособие на сайте «Избалованная мама».
Хэдли Келлер Цифровой директор Хэдли Келлер — писатель и редактор из Нью-Йорка, освещающая дизайн, интерьеры и культуру.Этот контент создается и поддерживается третьей стороной и импортируется на эту страницу, чтобы помочь пользователям указать свои адреса электронной почты. Вы можете найти дополнительную информацию об этом и подобном контенте на сайте piano.io.
Коричневая ткань с принтом в виде квадратов в стиле ретро для проектов кукольного домика 10 дюймов кв. 25701
Ткань в стиле коричневых квадратов в стиле ретро для проектов кукольного домика площадью 10 дюймов в квадрате — 25701. Эта распродажа касается 10-дюймового квадратного куска 100% хлопковой ткани с принтом в стиле ретро.Эта ткань отлично подходит для обивки мебели кукольного домика или для создания кукольной одежды. Доступный цвет такой, как показано на рисунке. Состояние: Новое: Совершенно новый, неиспользованный, неоткрытый и неповрежденный предмет. См. Список продавца для получения полной информации. См. Все определения условий : Содержание волокна: : Хлопок , Ширина: : 10 дюймов : Длина / количество: : Квадраты , EAN: : Не применяется ,
Коричневая ткань с принтом в виде квадратов в стиле ретро для проектов кукольного домика 10 дюймов кв. 25701
Коричневая ткань с принтом в виде квадратов в стиле ретро для проектов кукольного домика 10 дюймов в квадрате 25701, для проектов кукольного домика 10 дюймов в квадрате. для покрытия мебели кукольного домика или для создания кукольной одежды. Доступный цвет, как показано. Эта распродажа предназначена для 10-дюймового квадратного куска 100% хлопчатобумажной ткани с принтом ретро квадратов, гарантировано 100% подлинное качество продукции Качество обслуживания Рекламные товары Дают вам лучшее качество и самая низкая цена.Коричневая ткань с принтом в виде квадратов в стиле ретро для проектов кукольных домиков 10 дюймов кв. 25701.
Ткань с принтом в виде коричневых квадратов в стиле ретро для проектов кукольного домика 10 дюймов кв.
1 MTR SEA GREEN LACE NET LYCRA STRETCH FABRIC … 60 «ШИРИНА £ 3,49 СПЕЦИАЛЬНОЕ ПРЕДЛОЖЕНИЕ. 8 цветов 10 г эпоксидная УФ-смола краситель краситель смола пигмент смешанный цвет DIY art craft G, Cinderella Pantomime House 3D Cross Stitch Kit. WOODEN NOEL ПОДАРОЧНЫЕ БИРКИ Формы 10см вырезаны лазером из дерева Формы поделок заготовки x5.Синяя хлопчатобумажная ткань для шитья с абстрактным принтомПодушка для занавески на 1 метр. ZIG Memory Pen Millennium Pen 05 0,45 мм 5Pk, Набор для вышивки крестиком с ромашками и цветком ромашки 13 «x 10», портативная портативная мини-швейная машина с питанием от электросети / от сети BN, Fat Quarter Frozen Olaf Snowman Children Crafts 100% Craft Cotton Fabric UK, 3 м Длина 170 г / м2-100 мм 4-дюймовая арамидная лента. Домашние животные / терьеры / собаки Набор для вышивки счетным крестом для собак английского бультерьера. 2 шт. Полупрозрачные пластиковые трафареты для квилтинга для рисования для инструментов DIY Art, новая розовая текстурированная ткань с эффектом вертикальной полосы для обивки , OX BLOOD Кожаный ремешок Ремень Blank Rifle offcut остаток удерживающего устройства Guitar RATS BUM, 3028 SIRDAR 4-слойный / 3-слойный узор для вязания детских шали, ПЛАСТИКОВЫЙ ДЕЛЬРИН С БОКОВЫМ ОТПУСКАНИЕМ ПРЯЖКИ ЗАЖИМЫ ДЛЯ WEBBING PAIR 20 мм / 25 мм, МДФ Формы автомобилей 18 мм свободно стоящие FRAL Доставка букета «Солнечный день» из Великобритании. Бесплатная доставка цветов.укороченные топы для малышек dk узором 99р.
Project Cars Go стремительно движется к Android, поскольку разработчики завершают планы выпуска
PROJECT CARS GO ПОЛУЧАЕТ ЗЕЛЕНЫЙ ФЛАГ ДЛЯ ВЫПУСКА 23 МАРТА НА IOS И ANDROID
Доступный, но реалистичный мобильный гонщик от Slightly Mad Studios и GAMEVIL открыт для предварительной регистрации и может быть предварительно загружен до даты запуска
ЛОС-АНДЖЕЛЕС — 12 февраля 2021 г. — Project CARS GO (POGO), мобильная гоночная игра, сочетающая в себе казуальный игровой процесс с высококачественной графикой, ускоряется в карманах игроков во вторник, 23 марта, для iOS и Android.Последняя мобильная гоночная игра One Touch от разработчика и издателя GAMEVIL и Slightly Mad Studios открыта для предварительной регистрации и может быть предварительно загружена в Apple App Store или Google Play Store. Игроки, которые предварительно зарегистрируются перед запуском, получают 100 бриллиантов, игровую валюту POGO.
POGO — это доступная мобильная гоночная игра, в которой обычному игроку знакомятся с реальными автомобилями и трассами. Простая гоночная механика One Touch с реалистичной графикой и высококачественными звуковыми эффектами создана для острых ощущений от высокоскоростных гонок на ходу.Разработанный как для обезьянок, так и для обычных геймеров, POGO позволит пользователям персонализировать и настраивать автомобили с помощью простых в использовании всеобъемлющих параметров настройки. Варианты включают в себя различные краски, узоры и ливреи, а также детали и обновления, все из которых могут быть добавлены к лицензированным транспортным средствам в игре.
«Project CARS GO — это сбалансированная мобильная гоночная игра, которая понравится как стойким фанатам гонок, так и обычной аудитории мобильных игр», — сказал Кю Ли, президент GAMEVIL COM2US USA.«Оптимизированный игровой процесс One Touch в сочетании с реальными гоночными трассами, автомобилями и физикой предлагает уникальный опыт мобильных гонок. Вместе с гоночными экспертами из Slightly Mad Studios мы вышли на финальную стадию проекта CARS GO. Нам не терпится поделиться финальным продуктом в марте ».
Игроки могут накапливать и расширять свою автомобильную коллекцию от реальных автомобилей и брендов, от исторических гоночных родословных до футуристических концептуальных моделей. Классы транспортных средств, такие как GT3, Open-Wheel, Prototype, Road и другие, доступны для проверки навыков на реальных гоночных трассах и драг-полосах, включая:
● Гоночные трассы — Brands Hatch, Autodromo Nazionale Monza, WeatherTech Raceway Laguna Seca и другие
● Локации для дрэг-рейсинга — Лас-Вегас, Лонг-Бич, Сингапур и др.
Мобильный гонщик «пикап-энд-гоу» также включает в себя различные игровые режимы для проверки навыков вождения на трассе.Доступны следующие режимы: мировое турне, ежедневные приглашения и приглашения от производителей, маршруты по времени и другие, предлагающие бесчисленные часы веселого, но захватывающего игрового процесса.
Каналы в социальных сетях:
● Project CARS GO — Twitter, Facebook, Instagram
● GAMEVIL– Twitter, Facebook, YouTube, Twitch
● Slightly Mad Studios — Twitter, Facebook
О GAMEVIL:
GAMEVIL издает игры, оптимизированные для мобильных устройств, которыми с 2000 года пользуются более 115 миллионов игроков.GAMEVIL — опытный глобальный разработчик и издатель мобильных игр, работавший с более чем 70 ведущими студиями по всему миру. Имея офисы в Лос-Анджелесе, Берлине, Токио, Пекине, Бангкоке, Сингапуре, Тайбэе, Ханое, Джакарте и со штаб-квартирой в Сеуле, GAMEVIL смогла создать множество отмеченных наградами игр с разнообразным опытом благодаря глубокому пониманию отрасли и региональные знания. GAMEVIL продолжает лидировать в этом секторе, делая мобильные игры образом жизни.Подпишитесь на GAMEVIL в Twitter на @GAMEVIL и поставьте лайк GAMEVIL на Facebook на facebook.com/gamevil. Для получения дополнительной информации посетите http://www.gamevil.com.
О проекте CARS GO:
Project CARS GO — это мобильная гоночная игра, которая объединяет все сложные элементы гонок и упрощает их для всех пользователей, сохраняя при этом аспект реализма. Project CARS GO с реальными трассами и лицензированными официально лицензированными гоночными автомобилями превращается в увлекательную и непринужденную гоночную игру, которая объединяет случайных фанатов с разной степенью интереса к автоспорту.
О Slightly Mad Studios:
Slightly Mad Studios — это команда, создавшая признанную критиками серию GTR®, Need For Speed® Shift ™, Shift 2 Unleashed® и франшизу Project CARS. Компания имеет более чем 10-летний опыт работы в гоночных играх, и Project CARS представляет собой кульминацию всего этого опыта и наследия.
Будьте в курсе последних новостей Slightly Mad Studios, посетив их веб-сайт: https://www.slightlymadstudios.com
Или в социальных сетях:
Twitter: https: // twitter.com / Littlemadteam
Facebook: https://www.facebook.com/slightlymadstudios
Slightly Mad Studios — это компания Codemasters®
40 идей по благоустройству дома для экономных
Вам нужно что-то обновить по дому, но вы думаете, что у вас нет средств на какие-либо стоящие проекты по благоустройству дома? Это правда, что ремонт дома может быть дорогим, но есть и некоторые интересные вещи, которые можно сделать дешево. Ознакомьтесь с этими пошаговыми руководствами, чтобы узнать о недорогих способах обновления и улучшения вашего дома, но с ограниченным бюджетом.От идей декора для кухни своими руками до способов обновить вашу ванную комнату по бюджету, от дешевого декора гостиной до мебели для спальни — вы обязательно найдете один или несколько проектов, которые стоит попробовать в эти выходные. Недавно я обновила свой туалетный столик для ванной, предложив бетонную столешницу, и она выглядит так потрясающе. Пытаюсь решить, каким простым проектом по благоустройству дома заняться дальше, и очень взволнован, зная, что у меня есть несколько доступных вариантов. Недорогие проекты ремонта дома и идеи по обустройству дома, которые точно соответствуют вашему бюджету, теперь нет оправдания тому, что у вас нет дома своей мечты.
1. Покрасьте свои шкафы
younghouselove
Вы думаете об обновлении своей кухни, а именно кухонных шкафов? Перекрасить их легко, но только если вы знаете, что делаете. Правильная подготовка поверхности имеет решающее значение, если вы хотите, чтобы этот проект по благоустройству дома оказался удачным. Узнайте, как это сделать, в этом пошаговом руководстве с этой идеей DIY для кухонных шкафов.
2. Искусственный фартук внахлест с настилом Peel ‘n Stick
althingswithpurpose
Еще одна простая идея проекта улучшения дома, которую вы можете воплотить, не тратя кучу денег или времени, это руководство по искусственному защитному фартуку использует клей для создания легкий фартук.Не требуются серьезные навыки работы с деревом или плотником и, конечно же, плиткорез. Если вам нравится внешний вид красивой плитки, но вы не можете выложить плитку самостоятельно или себе это позволить, попробуйте этот классный урок. Для создания столешниц, сделанных своими руками, вам не нужно ничего дальше, чем этот классный совет по улучшению дома.
3. Сделай своими руками старые шкафы для ванной комнаты
onegoodthingbyjillee
Если вы страдаете от устаревших шкафов в ванной или на кухне, которые выглядят как искусственный дуб 80-х годов, то это особенное дело, сделанное специально для вас! Из всех идей по улучшению дома своими руками, которые мы видели в последнее время, эта действительно выделяется.Если вы собираетесь реализовать высокоэффективный проект DIY для ванной комнаты, который стоит дешево, но стоит вашего времени и денег, ознакомьтесь с этим пошаговым руководством по переделке шкафа в ванной. Придайте старым шкафам новый вид с помощью этой крутой техники. Этот проект обязательно поможет вам создать ванную комнату вашей мечты своими руками.
4. Простая отделка окон своими руками
blesserhouse
Для этой простой отделки окон своими руками не требуются специальные инструменты или оборудование. Я действительно думал, что вам нужен подрядчик, чтобы делать что-то подобное удаленно, или, по крайней мере, нужны серьезные навыки работы с деревом.Прежде чем вы продолжите думать об одном и том же, ознакомьтесь с этим простым пошаговым руководством, которое должно доказать вам, что установка оконной рамы самостоятельно вполне выполнима. Нет ничего лучше, чем это сделать своими руками для улучшения дома, сэкономьте деньги и получите то, что выглядит фантастически. Обновите свои старые окна прямо сейчас с помощью этого классного проекта «Сделай сам».
5. Бетонная накладка на столешницу для туалетных столиков своими руками
designertrapped
Ничто так не говорит о современном шикарном декоре, как строгие бетонные элементы.Так что, если у вас есть полностью устаревшая столешница, которую нужно заменить, вы можете попробовать немного ее, прежде чем делать большие инвестиции, добавив бетонную столешницу DIY к туалетному столику в ванной и переделав эту ужасную старую стойку, на которую вы так устали смотреть. С помощью этого простого пошагового руководства вы узнаете, как легко сделать бетонную столешницу. Результат очень выглядит Джорджио Армани! 😉
6. Ванночка с краской и плитка
varbyvashti
Я переехал в дом в стиле ранчо 1950-х годов, полный очарования старины, но ванная комната была покрыта розовой керамической плиткой.Как вы, возможно, знаете, вырывание керамической плитки может быть трудоемким и / или дорогостоящим. У нас сейчас нет лишнего времени или денег, чтобы заняться этой ванной. Я бы предпочел иметь мебель и новую кухню, поэтому я начал придумывать, как просто прожить, пока мы не будем готовы взяться за дело прямо сейчас. Я решил, что буду придерживаться своего метода рисования всего. Опять же, покраска была для нас лишь временным решением, чтобы мы могли накопить еще два года на что-то более долгосрочное.
7. Комод на кухонный остров
dearcreatives
Мне очень нравится этот кухонный остров своими руками за забавную и легкую идею преобразования мебели.Я нашел старый комод 1950-х годов на Facebook Market Place и знал, что он идеально подойдет для этой идеи. Потому что мы находимся в процессе реконструкции нашей кухни. Я хотел остров или рабочее место, так как у нас ограниченное рабочее пространство, и я люблю мастерить, готовить и печь. Я решил с помощью своей второй половинки создать мобильный кухонный остров из комода. С его помощью этот островной комод своими руками оказался для меня простым. Пока я работал над этой идеей, он использовал свои навыки работы с деревом. Затем я закончил рисовать.Думаю, из нас получится хорошая команда. Мы вытащили из гаража винтажный комод и решили дать ему новую жизнь. Сначала переделав его, а затем сделав красивым с помощью Chalk Paint. Это был мой первый опыт работы с подобным проектом с использованием красок Americana Chalky Finish. Если вам нравится эта идея рисования мелом, обязательно ознакомьтесь с нашим списком лучших идей для мебели. Если у вас нет денег на покупку дорогой меловой краски и вы хотите попробовать свои силы в изготовлении своей собственной, у нас также есть простой рецепт меловой краски, который поможет сэкономить много денег на таком проекте!
8.Сделайте стенку из поддонов
howtobuildit
Поддоны — это самый полезный предмет в арсенале перепрофилирования своими руками. Мне нравятся деревенские домики, но я живу в кондоминиуме 1970-х годов в центре города. Итак, что я мог сделать, чтобы практически бесплатно обновить стены своей спальни из гипсокартона до деревенского шика? Я нашла учебник своей мечты, вот как! Эта стенка из поддонов своими руками — это дешево, просто и просто потрясающе выглядит! Если вы любите проекты из поддонов своими руками, вам понадобится эта классная деревенская дощатая стена в вашем доме.
9. Добавление деревянных акцентов в мебель
theidearoom
Недавно мы обновили нашу главную ванную комнату, внеся несколько простых изменений. Я поделился некоторыми изменениями в некоторых прошлых сообщениях, так как это работа. Мы почти подошли к тому моменту, когда мы можем официально добавить его в «список готовых проектов». Но у нас все еще есть несколько мелочей, над которыми нужно работать, и если кто-то из вас когда-либо делал небольшую реконструкцию, вы знаете, сколько времени потребуется, чтобы добраться до некоторых из них.Сегодня я хочу поделиться с вами, как мы обновляли шкафы строительного класса. Это было действительно простое дополнение, которое действительно сделало обычные старые шкафы более высококлассными. Мы просто добавили пару ножек к основанию шкафов. Вот и все.
10. Плитка для ванной с росписью своими руками
remingtonavenue
Вы все видели цементную плитку, на которой так много крутых принтов? Я влюбился в графику. Нежелание заменять всю плитку заставило меня задуматься о том, как я могу добиться этого впечатляющего вида с меньшими затратами.Следуйте этому простому руководству, чтобы получить все советы о том, как создать это удивительное новое пространство пола. Добавьте симпатичный коврик своими руками, и ваша комната мгновенно преобразится всего за несколько часов.
11. Бетонная столешница DIY
abeautifulmess
Ничто не говорит о современном шикарном декоре, как бетонные строгие светильники.
12. $ 60 DIY Фурнитура для дверей сарая
brightgreendoor
13. Замена краски на классной доске
mydesertcottage
14.Shade Pendant DIY
greyhouseharbor
15. DIY Wainscoting
lovelycraftyhome
16. Old Door Upcycle
hometalk
17. Плитка для ванной комнаты
000 Lash
Этажи
дизайнер в ловушке
19. $ 5 Ремонт камина
athomeinthenorthwestblog
20. Stencil Your Walls
дизайнер в ловушке
21.Покрасьте свою старую раковину
atcharlotteshouse
22. Плинтусы, литье и отделка своими руками
thebudgetdecorator
23. Ikea Hack Billy Bookcase Library Wall
bliss-athome
9000 DIY designsponge25. Рамка зеркала для ванной
temptingthyme
26. Обновите потолочный вентилятор
therealtitsmcgee
27.DIY Shaker Door
jennifersquires
28. Добавьте цвета своим потолкам
houseofturquoise
29. Покрасьте лестницу
youhomeonlybetter
32. Номер дома с помощью мешалок для краски
4men1lady
Проявите творческий подход с помощью этих современных номеров домов, сделанных своими руками, и увеличьте привлекательность вашего дома.
33. Заплатка для гипсокартона Like A Pro
, придирчивый стежок
35. Ремонт гаражных ворот своими руками
для внутреннего пользования
36. Обновленная решетка возвратного воздуха
370
friendly-home
Полуостров, сделанный своими руками, с кронштейнами
thehappyhousie
38. Преобразование наружных осветительных приборов
inmyownstyle
39. Передняя дверь DIY
meandjilly
40.Ремонт камина своими руками
swingncocoa
Эти витамины не уменьшают симптомы Covid-19, согласно исследованиям
Первоначально опубликовано: 12 февраля 21, 11:02 ET
Автор: Сэнди ЛаМотт, CNN
(CNN) — Могут ли витамин С и цинк помочь вам бороться с Covid-19?
Нет, даже в высоких дозах, согласно результатам первого рандомизированного клинического исследования по тестированию двух добавок под медицинским наблюдением.
Несмотря на популярное использование витамина С и цинка для борьбы или уменьшения тяжести вирусных простуд и гриппа, новое исследование, опубликованное в пятницу в JAMA Network Open, показало, что эти две добавки не принесли пользы людям, изолирующим дома с Covid- 19.
Фактически, результаты были настолько не впечатляющими, что исследование было прекращено досрочно.
«К сожалению, эти 2 добавки не соответствовали их шумихе», — написала д-р Эрин Мичос из Джона Хопкинса и д-р Мигель Кайнсос-Ачирика из Хьюстонской методистки в сопроводительной редакционной статье.
Клиническое испытание давало высокие дозы каждой добавки отдельно и в комбинации одной из трех групп из 214 взрослых, которые выздоравливали дома. Четвертая группа получала стандартный уход, такой как отдых, гидратацию и жаропонижающие лекарства, но без добавок.
«Высокие дозы глюконата цинка (цинка), аскорбиновой кислоты (витамин C) или обеих добавок не уменьшили симптомы SARS-CoV-2», — говорят кардиолог клиники Кливленда доктор Милинд Десаи и команда из клиники Кливленда.
Однако высокие дозы вызвали некоторые неприятные побочные эффекты у пациентов, принимавших добавки.
«В группах приема добавок было зарегистрировано больше побочных эффектов (тошнота, диарея и желудочные спазмы), чем в группе обычного ухода», — писали Мичос, доцент медицины Медицинской школы Университета Джона Хопкинса, и Кайнзос-Ачирика, доцент кафедры профилактической кардиологии в Houston Methodist.
Популярные добавки
Многие американцы обращаются к добавкам с витамином С и цинком для борьбы с вирусной простудой и гриппом.
Витамин С является признанным антиоксидантом и играет важную роль в поддержке иммунной системы. Хотя не было доказано, что витамин C предотвращает болезни, другие исследования показали, что витамин С может сократить простуду на 8% у взрослых и на 14% у детей.
Однако, по данным Национального института здоровья, использование витамина С после появления симптомов простуды не приносит пользы.
Цинк может помочь клетке бороться с инфекцией, говорится в исследовании, «хотя есть доказательства того, что дефицит цинка увеличивает провоспалительные цитокины и снижает выработку антител».
Но что это значит в реальной жизни? Принятие цинка в течение 24 часов с момента появления первых признаков простуды может сократить продолжительность простуды всего на один день, как показал обзор 13 исследований.
Есть и обратная сторона. Прием более 2000 миллиграммов витамина С в день может вызвать изжогу, спазмы желудка, тошноту, рвоту, диарею и головные боли.Рекомендуемая средняя дневная доза витамина С составляет 75 миллиграммов для взрослых женщин и 90 миллиграммов для мужчин.
Более 40 миллиграммов цинка каждый день может вызвать сухость во рту, тошноту, потерю аппетита и диарею, а также может иметь неприятный металлический привкус.
Долгосрочные потребители могут иметь «низкий уровень меди, низкий иммунитет и низкий уровень холестерина ЛПВП (« хороший »холестерин)», согласно NIH. В 2009 году FDA предостерегло общественность от использования цинковых назальных спреев, поскольку они были связаны более чем с 100 случаями потери запаха.
Исследования продолжаются
Ученые продолжают изучать использование витаминов и добавок в лечении Covid-19.

Планировка дома 10х12 в одном уровне облегчает проживание. Первый этаж в загородном доме – это трехкомнатная квартира с балконом. Не нужно подниматься по ступеням, чтобы попасть в помещения второго уровня. Это отвечает условиям безопасности, особенно если в семье есть дети или старики. Проводить уборку в одноэтажном коттедже намного проще.
м. каждая – 45 кв.м; прачечная, большой санузел – 8-10 кв.м, проходы 5-7 кв.м;
/li>
Для комфортного размещения одного человека требуется минимум 8 кв.м, поэтому спальня для двух человек должна быть не менее 16 кв. м. Детская комната, которая наполнена достаточно большим количеством мебели и других предметов, должна быть не тесной и помимо всего прочего иметь достаточно большое пространство для игр;
Значительные площади помещений позволяют использовать и яркие и темные цвета, которые зрительно могут сделать помещения меньше. Не допустить этого помогут современные способы и отделочные материалы, к числу которых относится глянцевые натяжные потолки, наливные полы и многое другое, создающее в помещении зеркальный блеск, визуально расширяющий пространство;
Нет необходимости выполнять сложную разводку коммуникаций, системы отопления и пр. с расчетом на особые эксплуатационные условия дома. Как это бывает, например, с домами, где есть такой архитектурный элемент, как второй свет или же имеется много этажей. Монтажные работы максимально упрощены и обходятся очень дешево;
В таких условиях при составлении планировки нужно следить за тем, чтобы проходных комнат было как можно меньше. Особенно это требование касается комнат отдыха – спален, гостевых и детских. От этого будет зависеть комфорт нахождения в них;
Благодаря этому владельцу автомобиля не нужно будет мокнуть под дождем и снегом в непогоду, когда захочется пройти в гараж.


В этом случае зона мансарды используется для размещения большой спальной комнаты, что освобождает место для организации кухни и гостиной с увеличенными размерами. Однако придется подыскивать место для установки лестничной конструкции, что не вызовет проблем, если мансарда включается в планировку дома 9х9 м.
Добавить комментарий