Разрез одноэтажного дома: чертежи двухэтажных, одноэтажных и многоэтажных домов, строительные рисунки, поперечные разрезы жилых строений и фасада
План и чертеж разреза фасада и стены жилого дома
Разрезом дома считают законченный чертёж, на котором изображается сооружение и все внутренние особенности, а также составляющие каркасной конструкции дома. На таком плане можно увидеть расположение различных элементов здания: окна, двери или даже предметы интерьера. Такая планировка поможет заранее определить, что необходимо для обустройства помещения.
Чертеж двухэтажного дома для создания проекта
Вернуться к оглавлению
Содержание материала
- 1 Правила создания чертежа с разрезом дома
- 2 Проектирование дома по чертежу в разрезе
- 3 Чертёж в разрезе для дачных помещений
- 4 Планировка небольшого помещения по чертежу в разрезе
- 5 Самостоятельное черчения разреза дома
Правила создания чертежа с разрезом дома
Главной особенностью такого чертежа является возможность указания размеров различных нюансов строения. Для того чтобы такая планировка была эффективной, необходимо расположить плоскость сечения правильным образом.
Особенность данного вида документа – это вертикальная плоскость сечения, которая передаёт точную информацию о размерах того или иного элемента. Одними из основных отметок на таком чертеже считается указание расстояния от потолка до пола:
- Обычные жилые дома, как правило, имеют высоту потолков не более 3 метров.
- Расстояние от пола до потолка общественного или промышленного каркасного сооружения несколько выше – от 3,3 метров и выше.
- Кроме стен и отверстий в них, чертёж в разрезе также указывает наличие перил и расположение лестниц в доме и их высоту.
- При наличии окон в стене, указанной на чертеже, может быть описана высота подоконника. Например, для дома с мансардой расстояние от пола до подоконника равняется 80 см, а от потолка до окна – не более 30 см.
Такая информация будет полезна как самим рабочим, которые получат все необходимые данные и план для проведения работ, так и будущим жильцам, которые получат возможность спланировать обустройство здания, используя информацию, переданную чертежом в разрезе.
Вернуться к оглавлению
Проектирование дома по чертежу в разрезе
Составление чертежа в разрезе является приоритетом в современном строительстве. На такую планировку в основном влияют размеры будущего помещения, а также количество людей, который будут проживать в данном здании. Таким образом, можно получить проект небольшого дома, но с множеством малых комнат или парой больших, которые предоставят максимум простора в помещении.
Создание проекта дома по чертежу в разрезе
Кроме того, подбирается минимально необходимый размер для кухни, санузла в доме или кладовки.
Чтобы создать такую удобную планировку, необходимо составить чертёж дома в разрезе, что значительно упростит и удешевит дальнейшие работы по монтажу помещения.
Имея чертеж в разрезе для проекта вашего дома, вы сможете подобрать правильное расположение будущего строения на участке.
Вернуться к оглавлению
Чертёж в разрезе для дачных помещений
Двухэтажный дом, как правило, имеет не много пространства, но при хорошей планировке его будет достаточно для реализации всего необходимого.
При составлении чертежа в разрезе для каркасного здания стоит обратить внимание на то, где какую комнату необходимо разместить:
- спальные помещения лучше всего размещать так, чтобы их окна смотрели в юго-восточном или восточном направлении;
- интерьер и план кухни, ванна в доме и прихожая должны быть на западе;
- детскую комнату или помещения для гостей стоит расположить в юго-восточной или южной стороне дома.
Чертежи с размерами всех этажей дома
Правильное расположение жилых помещений позволит не только получить большое количество света в нужном месте, но также создать правильный воздухообмен между помещениями.
Чертёж в разрезе будет достаточно продуманным, но в то же время простым. Именно простота является гарантом качества и удобства использования чертежа строителями или конструкторами.
Вернуться к оглавлению
Планировка небольшого помещения по чертежу в разрезе
Ограниченные возможности при постройке не всегда означают невозможность хорошо обустроить своё жилищное пространство.
В отличие от проектирования квартирных помещений, расположение дома на частном участке имеет свои особенности:
- Планировать обустройства такого жилого помещения нужно довольно тщательно, так как теплоотдача обычного дома значительно выше квартирных сооружений из-за того, что все наружные стены сообщаются с улицей, а также отсутствует подъезд и другие отапливаемые помещения общего назначения. Поэтому расположению комнат в доме стоит уделить особое внимание при разработке чертежей.
- Чертёж в разрезе должен учитывать необходимость тамбура для большинства видов жилых помещений в независимости от планировки. Так в доме будет меньше убывать тепла через стены, двери и окна.
- В некоторых случаях на чертеже нужно будет указать устройство веранды. Она может быть как открытого типа, так и застеклённая.
Если планируется постройка веранды в доме, то наличие тамбура не является обязательным.
Сделав чертёж в разрезе для своего жилища, хозяин дома обеспечит себя комфортом и уютом.
Вернуться к оглавлению
Самостоятельное черчения разреза дома
Если хозяин участка решил самостоятельно изготовить чертёж, на котором будет изображен разрез здания, то ему не обязательно иметь глубоких познаний в чертёжном деле, так как данный вид планировки довольно прост в исполнении.
Для создания такого чертежа можно следовать следующему плану:
- В начале необходимо указать координационные оси на листе будущего чертежа. Это поможет более качественно воссоздать планировку жилого помещения в программе.
Чтобы чертёж получился максимально достоверным, для переноса всех пропорций помещения следует воспользоваться линией в 45 градусов, которую нужно разместить с правой стороны плана.
- Все дополнительные элементы в выбранном деревянном доме из сруба можно просто перенести с других аналогичных чертежей фасада сооружения.
Чертеж разреза дома
- Теперь можно переходить к черчению самих стен в здании. Если используются компьютерные программы для создания чертежа в разрезе, то в них можно воспользоваться функцией параллельного переноса, что значительно упростит нанесение изображения всех перегородок в частном доме.
Эти советы помогут облегчить процедуру самостоятельного изготовления чертежа жилого дома в разрезе.
Разрез многоэтажного дома — WikiHome
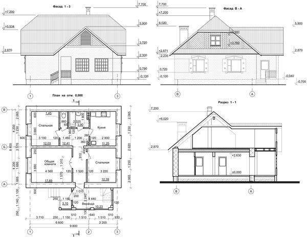
При изготовлении проектной документации для строительства дома важным элементом является чертёж разреза здания. Этот графический документ позволяет визуально определить направление лестничных маршей, их параметры и расположение комнат. Сложные чертежи создают архитекторы. Для частного дома можно разработать документацию своими руками.
Фото: разрез многоэтажного жилого здания
Содержание
До начала строительства здания из любых материалов разрабатывают проектную документацию.
Это позволяет правильно рассчитать количество требуемых стройматериалов и сроки выполнения работ.
Чертёж здания в разрезе позволяет будущим владельцам визуально понять, как будет выглядеть помещение изнутри. При изготовлении документов разрабатывают чертежи:
- фасадов. Это вид каждой стороны объекта. В него входят несущие детали и дополнительные элементы. Удаётся определить, с какой стороны будет сделан вход, где будут расположены окна, какого размера будет готовая постройка и т. д.;
- разреза. Представляет собой графический документ, отображающий здание в разрезе вертикальной плоскостью. На этом документе видны элементы, расположенные внутри.
Разрез плоскостью выполняется в двух вариантах. Это продольный и поперечный. Для построек со сложной формой может быть выполнено одновременно несколько изображений.
Подготовку чертежей выполняют с учётом нормативных актов. Правила изготовления оговорены в ГОСТ 1.0.7.2. В нём указывается тип шрифта, формат листа для изображения, толщина линий и обозначения.
Правила, оговоренные стандартом, строго соблюдают при черчении.
Разрез в вертикальной плоскости позволяет получить точную информацию о размерах внутренних элементов и отдельных комнат. При изготовлении чертежа учитывают:
- высоту от пола до плиты перекрытия. Для жилых помещений это расстояние не должно превышать 3 м;
- расположение лестничных маршей;
- количество оконных проёмов и высоту подоконников;
- расположение несущих конструкций.
Чертёж здания в разрезе изготавливают после расчётов при проектировании. На начальном этапе на лист наносят координационные оси. После этого обозначают места расположения стен, лестничных площадок, маршей и т. д.
Сведения, нанесённые на чертеже, понадобятся при строительстве. Кроме этого, владельцы дома смогут определить планировку ещё на этапе разработки технической документации.
Фото: чертёж одноэтажного здания
Возведение одноэтажного дома выполняется за короткий срок. Его строительство возможно с привлечением специализированной бригады или своими силами.
При самостоятельной разработке проекта учитывают количество будущих жильцов. Так удаётся правильно определить площадь и назначение комнат.
Выбору материала уделяют особое внимание. Теплопотери в частном доме выше, чем в квартире. Это обусловлено тем, что внешняя поверхность всех стен по периметру здания находится на улице. Для обеспечения микроклимата внутри дома выбирают материалы с низкой степенью теплопроводности. Проект изготавливают самостоятельно несколькими способами:
- вручную. Потребуется применение специализированных инструментов для черчения. Графическое изображение наносят на миллиметровую бумагу. Метод предусматривает наличие определённых навыков в черчении;
- с применением компьютера. Существуют различные программы позволяющие сделать точный чертёж с учётом всех строительных норм;
- с помощью 3D редактора. Специальная программа позволяет сделать проект в трехмерном измерении. Так удаётся передать габаритные параметры, расположение комнат, планировку и т.
д.
При изготовлении чертежа строго указывают габаритные параметры здания и отдельных элементов. Ошибка приведёт к проблемам на этапе строительства.
От планировки зависит практичность помещения. При разработке проектов учитывают ряд критериев:
- зонирование помещения. В доме обустраивают место для приёма и приготовления пищи, отдыха, складирования вещей и т. д.;
- расположение оконных проёмов. С разных сторон постройки должны быть просторные окна. Такая конструкция обеспечит попадание солнечных лучей в течение всего дня;
- место прохождения инженерных коммуникаций. Туалет, ванную комнату и бойлерную располагают по линии прохождения водопровода и системы водоотведения;
- достаточная площадь кухни. Просторной считается комната площадью более 9 м². Если на кухне достаточно пространства, можно будет обустроить там место для отдыха;
- расположение комнат относительно друг друга.

Так детскую лучше расположить рядом со спальней родителей; - ширина коридора. Проход должен быть просторным. Это облегчит передвижение с объёмными предметами или мебелью.
При правильном изготовлении проектной документации удастся построить дом, соответствующий определённым требованиям владельца.
Фото: чертёж двухэтажного здания
Двухэтажный коттедж имеет достаточно площади для воплощения различных идей. При составлении проектной документации учитывают расположение каждой комнаты.
Помещение, требующие подведения инженерных коммуникаций, располагают на первом этаже. Так удаётся избежать прокладки трубопроводов к комнатам второго яруса.
Обращают внимание на количество оконных проёмов и их расположение. Достаточное количество дневного света позволяет снизить затраты на приобретение осветительных приборов и оплату электроэнергии.
Чертёж двухэтажного коттеджа предусматривает наличие лестничного марша. Он обеспечивает беспрепятственный доступ на второй этаж.
На этапе составления графического документа учитывают ширину и длину ступеней.
Чертёж здания в разрезе подготавливают на начальном этапе. Он нужен для визуального восприятия внутренних элементов здания. При точном соблюдении правил составления удастся сделать подробный графический документ, по которому будут проводиться строительные работы.
Одноэтажный или Двухэтажный дом мечты? Готовы ли вы принять решение?
Выбор может быть большим, чем вы думаете
Большую часть своей жизни я жил в двухэтажных домах или на верхних этажах многоквартирных домов. От моих бабушек и дедушек до одноклассников и ряда моих родственников двухэтажные дома были нормой.
Больше всего в двухэтажных домах меня привлекали красивые лестницы. Я ясно помню дом моих бабушки и дедушки с его высокой деревянной лестницей, которая изгибалась на лестничной площадке, ведущей в спальни на втором этаже. Мы с двоюродными братьями говорили и представляли себе драматический эффект, когда одна из внучек спускалась по этой лестнице на выпускной вечер или свадьбу.
Все девушки думали, что это будет так здорово. А мальчишки, конечно, думали только о том, чтобы быстро и яростно скатиться на первый этаж по перилам.
Нам всем нравился этот двухэтажный дом, окруженный кустами и тенистыми деревьями. Однако моя точка зрения изменилась, когда одна из моих теток и ее семья переехали в одноэтажное бунгало в районе со всеми этими удивительными одноуровневыми строениями. Все, о чем я мог думать, было удобство иметь все на одном этаже.
На протяжении многих лет я менял то одноэтажный, то двухэтажный дом. Конечно, есть такие люди, как я, которые открыты для любого плана или вдохновлены обоими. Но поскольку для дома вашей мечты может быть только один вариант, давайте рассмотрим преимущества и ограничения обоих вариантов и поможем вам принять решение.
Зачем вам одноэтажный дизайн?
На пике послевоенного бума, когда одноэтажное ранчо олицетворяло исполнение американской мечты, одноэтажный дизайн был тенденцией по всей стране.
Он достиг своего пика в 1973 году, когда одноэтажные дома составляли 67 процентов нового жилищного строительства. Хотя сегодня их количество сократилось, одноэтажный дом по-прежнему привлекает американцев.
Это может быть одноэтажный дом вашей мечты? Восхитительный 1886 кв. футов. Дом в стиле ремесленника с уютной крытой верандой, 3 спальнями, 2,5 ванными комнатами, семейной комнатой с 11 футами. потолки, камин и выход на заднюю палубу (план № 120-2563).
8 причин держаться за эту мечту целых 100 квадратных футов между двумя уровнями, которые он соединяет.
Забудьте о необходимости жертвовать жилой площадью в одноэтажном доме. Просто полюбуйтесь этой удивительно просторной Большой комнатой в одноэтажном доме на ранчо с 2 спальнями, обеденной зоной и огромной кухней с двумя островами (план № 161-1094).
2. Одноэтажные дома проще и дешевле в проектировании, их проще спроектировать, чем двухэтажные дома, и их можно построить из сборных компонентов.
3. Без лестницы меньше аварий и более безопасное плавание как для детей, так и для пожилых жителей. Одноэтажный дом также безопаснее в чрезвычайной ситуации . Учитывая все силы природы, с которыми нам приходится бороться — сильные бури, вызывающие наводнения, торнадо, пожары — одноэтажный дом обеспечивает более быструю эвакуацию в чрезвычайных ситуациях. 4. Идея «дома навсегда» более осуществима в одноэтажном доме, потому что легче стареть на месте в одноуровневой конструкции. Будет легче передвигаться и передвигаться по дому, плюс, при необходимости его можно сделать доступным для инвалидных колясок. Вверху: Одноэтажный дом в стиле ранчо с 3 спальнями и 2 ванными комнатами предлагает много удобного пространства. Очаровательная крытая веранда — желанное зрелище для семьи и гостей, большая комната, кухня с островом и приподнятый потолок. Так как это одноэтажный дом, легко построить пандус для доступа инвалидных колясок.
Внизу: Благодаря широким коридорам и большим ванным комнатам план этажа обеспечивает доступ для инвалидных колясок по всему пространству (план № 120-1272).
5. Одноэтажный дом легче обслуживать и чистить. Забудьте о хлопотах, связанных с подъемом и спуском по лестнице для стирки или подъемом по лестнице, чтобы помыть или покрасить окна и ставни. 6. Семья может наслаждаться тишиной . Без всех шагов и действий, происходящих наверху, в доме меньше шума. 7. Возможны варианты высоких потолков и световых люков в одноэтажном доме, а также возможность выхода из большого зала на террасу или патио .
Эта бело-деревянная кухня в 1-этажном доме в европейском стиле с 4 спальнями и 2,5 ванными комнатами отличается высокими потолками и встроенными светильниками, которые создают яркую и просторную атмосферу (План № 142-1204)
Вершина: Эта потрясающая большая комната в потрясающем одноэтажном доме в современном стиле имеет широкие стеклянные двустворчатые двери, которые открывают пространство на открытой террасе, идеально подходящей для приема гостей и приготовления пищи.
3264 квадратных футов. В доме 3 спальни, 3,5 ванные комнаты, крытая веранда, библиотека, тренажерный зал, игровая комната и другие удобства. Внизу: А вот еще один вид снаружи на впечатляющую Большую комнату и внутренний двор дома (план № 202-1013).
8. Одноэтажные дома могут обеспечить энергоэффективность. По своей природе одноэтажный дом может поддерживать температуру лучше, чем двухэтажный. Меньшее количество комнат означает меньшее количество энергии, необходимой для обогрева и охлаждения дома. В одноэтажном доме тепло уходит сразу к потолку, а затем распространяется по другим комнатам.
Однако энергоэффективность связана с размером конструкции. Растянутые одноэтажные дома, которые занимают больше места, чем двухэтажные дома, построенные на узком участке, могут стать менее эффективными из-за своего дизайна.
Минусы одноэтажного дома
А теперь обратная сторона всех этих преимуществ… и почему у вас могут возникнуть сомнения по поводу одноэтажного дома.
Двухэтажный дом вашей мечты?
Можете ли вы представить Тару как одноэтажный дом, каким бы роскошным он ни был? Как Скарлетт О’Хара могла когда-либо войти в этот драматический театр, кроме как с великолепной лестницы Тары?
Этот 2-этажный дом в современном деревенском стиле с фасадом из камня и камня, крытым крыльцом и террасой для загара, безусловно, производит впечатление! В доме 5 спален, 5,5 ванных комнат, медиа-зал, 4 камина, главная спальня на втором этаже, прачечная на втором этаже, игровая комната, чердак и многое другое (план № 161-1084).
У вас не должно быть домов в Таре, Двенадцати дубах или других домах в стиле южных плантаций. Но если вам нужна элегантность и эффектная лестница, единственный выбор — двухэтажный дом. Итак, помимо лестницы, какие еще привлекательные элементы сочетаются с этим стилем?
7 причин, почему двухэтажный дом привлекателен 1. Это экономически выгодно – все дорогостоящие элементы, такие как земляные работы, фундамент и установка крыши, занимают меньшую площадь, поэтому конструкция обходится дешевле, чем строительство одноэтажного дома сопоставимой площади в квадратный метр. 2. Подъем и спуск по лестнице полезен для здоровья ; и открыть окна второго этажа, чтобы впустить свежий воздух.
Кому нужен мастер по лестнице, если вам приходится подниматься по этой лестнице каждый день? Красиво отделанная деревянная лестница в прекрасном роскошном доме с элементами Craftsman предназначена не только для драматического эффекта.
Подумайте обо всех калориях, которые вы можете сжечь, и о мышцах в тонусе благодаря частому перемещению по этой лестнице. Кстати, в доме также есть крытые переднее и заднее крыльцо, внутренний дворик, открытая планировка, четыре спальни, библиотека, мансарда, прачечные на первом и втором этажах, мастерская на первом этаже и потрясающая Большая комната (план № 161). -1067).
3. Двухэтажный дом обеспечивает большую конфиденциальность, особенно в спальнях наверху, большую безопасность и меньший риск взлома.
Одним из преимуществ двухэтажного дома, как и в этой привлекательной современной резиденции, является то, что вы можете чувствовать себя комфортно, открывая окна в спальнях наверху, и не беспокоиться о безопасности и любопытных взглядах соседей и прохожих. В доме 5 спален и 5,5 ванных комнат, а также крытая веранда. Ухоженный газон с кустами и деревьями для большей конфиденциальности (план № 161-1084)
4.
Определены пространства – с общественными/развлекательными зонами внизу и спальными помещениями – с дополнительными ванными комнатами – наверху.Вверху: Широкая передняя веранда с подходящими колоннами встречает гостей, когда они входят в этот очаровательный дом в стиле ремесленников с 4 спальнями. Внутри открытого этажа находится большая комната, кухня с островом и непринужденная обеденная зона. Завершают основной уровень прихожая, прачечная, кабинет/офис и туалетная комната 9.0040 Средний: План первого этажа дома иллюстрирует все развлекательные и социальные пространства. Внизу: Поднимитесь по ступенькам на второй уровень, где находятся четыре спальни и три ванные комнаты. В главной спальне есть ванная комната с гардеробной и туалетными столиками для него и для нее.
5. У вас может быть больше вариантов дизайна для внешнего фасада — от асимметричных линий крыши до слуховых окон, арок.
, и более.Это 5023 кв. футов. Дом в стиле гальки с 4 спальнями, 3 ванными и 2 полуванными ослепляет своей удивительной привлекательностью. Есть пышный вход во двор и внешняя стена из скалы, камня, тряски и крыша из битумной черепицы. Обратите внимание на белые колонны на крыльце, установленные на каменных постаментах, шатровую крышу и слуховые окна (план № 161-1038).
Как насчет переоборудованного сарая для дома вашей мечты? Этот двухэтажный дом в стиле фермерского дома с 3 спальнями и 2,5 ванными комнатами имеет деревянный каркас 2×6, белые колонны на переднем крыльце и перпендикулярные фронтоны на крыше (план № 168-1129).).
Построенный на живописном участке, этот элегантный загородный дом с 3 спальнями и 3,5 ванными комнатами источает атмосферу английской усадьбы, с его двускатной крышей и фасадом из скалистого камня. Двухэтажный дом имеет жилую площадь 2443 квадратных фута, включая крытую веранду, внутренний дворик, чердак, дополнительную комнату, главный этаж и прачечную (план № 180-1009).
6. С верхнего этажа открывается лучший вид на окружающий природный ландшафт.
Представьте себе вид на голубое небо, закаты, радугу и природу из больших окон жилого помещения наверху в этом доме площадью 5023 кв. м с 4 спальнями в стиле гальки. Даже с первого этажа открывается прекрасный вид из-за уклона участка и цокольного этажа, который «поднимает» высоту основного уровня (план № 161-1038).
7. И, наконец, , дизайн с двумя спальнями проще разместить на большинстве участков.
Недостатки двухэтажных домов 1. Это лестница — она может занимать до 100 квадратных футов площади и увеличивать стоимость строительства. Да, они могут быть красивыми, добавлять в дом эстетический и драматический элемент, особенно те большие, спиральные. Однако они могут быть опасны, поскольку представляют опасность для детей и пожилых людей.
2. Энергоэффективность не является сильной стороной . Поддержание уровня комфорта/температуры в помещении является проблемой в двухэтажных домах. Наверху может быть жарко, а внизу холодно. 3. шумнее из-за движения на обоих этажах. 4. Высота потолков обычно ниже , чем в одноэтажных домах, поэтому разница в высоте от одной комнаты к другой отсутствует. Низкие потолки также ограничивают возможность установки мансардных окон.
Когда вы обдумаете и взвесите все преимущества и суровые реалии как одноэтажной, так и двухэтажной конструкции, спросите себя, действительно ли имеет значение, какой из них вы выберете. Вы можете сделать любой из них домом своей мечты… потому что, в конечном счете, ваш выбор зависит от вашей семьи ’ s потребности и образ жизни.
Сноска:
На главных изображениях в этой статье (вверху) впечатляющий дом в традиционном стиле площадью 3054 квадратных фута с пятью спальнями и сногсшибательной двухэтажной комнатой Grand Room – подробнее , перейдите к плану № 198-1020 – (внизу), очаровательному загородному дому со сводчатым потолком у входной двери и большой комнатой с соборным потолком.
Чтобы просмотреть более подробную информацию об этом удивительном доме, перейдите на план № 142-1205 9.0007
Каковы преимущества и особенности одноэтажного дома?
10.08.2020
Прочитать
Каковы преимущества и соображения одноэтажного дома? Для какой семьи подходит?
С появлением стареющего общества одноэтажные дома, которые создают плоское пространство без ступенек, привлекают внимание. В этом разделе представлены особенности одноэтажных домов, которые не часто встретишь в городских условиях, а также преимущества и моменты, о которых следует помнить.
Одноэтажный дом есть одноэтажный дом
Одноэтажный дом есть одноэтажный дом. Если вы живете в крупном мегаполисе, таком как Токио, большинство домов на одну семью имеют два или три этажа, и у вас мало возможностей увидеть одноэтажный дом.
С другой стороны, в Каруидзаве и других районах загородных домов часто можно увидеть одноэтажные дома.
Одноэтажный дом создает красивый пейзаж, гармонирующий с окружающими лесами и рощами. Одноэтажные дома часто строят на больших участках не только на дачных участках. Причина в том, что для того, чтобы получить такое же количество комнат и жилую площадь, как в двух- или трехэтажном доме, в одноэтажном доме требуется большой размер участка.
Преимущество одноэтажного дома в том, что пол ровный.
Далее рассмотрим некоторые особенности и преимущества одноэтажного дома.
Преимущество одноэтажного дома в том, что это плоский дом без движения верхнего и нижнего этажа, что позволяет легко перемещаться по жилому помещению. Отсутствие ступенек в доме облегчает комфортное проживание пожилых людей с ограниченной подвижностью и детей. Например, даже если вы в инвалидном кресле, вы можете облегчить себе жизнь, расширив коридор и внеся другие планировочные коррективы.
Еще одна особенность одноэтажного дома – хорошая вентиляция. Поскольку нет вертикального движения воздуха, циркуляция воздуха упрощается, если отверстия сделаны во всех четырех направлениях.
Кроме того, из-за отсутствия второго этажа здание является конструктивно прочным и лучше защищено от стихийных бедствий в случае землетрясений и тайфунов. Кроме того, ремонт наружных стен и кровли выполнить проще, чем в двух- и трехэтажном доме, а одна из особенностей одноэтажного дома — простота в обслуживании.
Местоположение важно для одноэтажных домов. Подходит для трех поколений, живущих вместе
В отношении одноэтажных домов следует помнить, что, как упоминалось ранее, размер участка необходим, а комфорт проживания в этом месте зависит от окружающей среды в этом месте.
Поскольку здание построено только на первом этаже, важно, чтобы вокруг здания было пространство и чтобы оно находилось в месте, где нет высоких зданий вокруг него, чтобы проникать свет из окон. Можно сказать, что для одноэтажного дома подходит такая жилая зона, как первоклассная малоэтажная жилая зона.
Также можно привлечь свет, спланировав, например, внутренний двор. Поскольку лестницы нет, можно уменьшить мертвое пространство и увеличить место для хранения.

Если планируется постройка веранды в доме, то наличие тамбура не является обязательным.
д.
Добавить комментарий