Узкий дом на узком участке: Проекты домов для узких участков и проекты узких домов в России
Узкие дома: особенности и преимущества проектов
Узкие дома – здания для постоянного и сезонного проживания, которые имеют прямоугольную форму. Их длина минимум в 1,5 – 2 раза превышает ширину, что не сказывается на функциональности и комфорте. Комнаты таких домов вытянуты, что позволяет меблировать их полноценными кухонными гарнитурами с множеством шкафов и техники, а в гостиных и спальнях устанавливать крупные шкафы, домашние библиотеки, навесные плазменные телевизоры с широкой диагональную и большие диваны на 5 – 7 человек.
Такие дома оптимальны для небольших, узких участков. Такие земельные наделы не редкость в черте города: близ трамвайных путей, набережных, крупных автодорог. Их можно встретить и в коттеджных поселках: около внутренних проездов, съездов к водоемам, на склонах и т.д. Проекты узких домов оптимальны для участков шириной до 17 м, для спаренной застройки (расположения двух домов в пределах одного надела).
Особенности и преимущества узких домов
Главная особенность узкого дома – ограниченная площадь. Средняя ширина здания – от 8 до 8,5 м, поэтому площадь одноэтажных зданий редко превышает 150 кв. м. Расширить полезное внутреннее пространство можно двумя способами: увеличив длину или этажность. Экономичный вариант – узкий дом с жилой мансардой. Ее обустраивают на чердаке, дополняя его парой слуховых окон для естественного дневного освещения. Чтобы сделать помещение комфортным для жизни, кровлю изнутри покрывают гидро-ветрозащитной мембраной, устанавливают утеплитель, настилают поверх пароизоляционную пленку.
Узкий дом можно расположить в условиях плотной городской застройки. Если вы купили участок со старым домом под снос, но актуальные нормы (удаленность от границ, соседних зданий и т.д.) не позволят строить полноценный дом, компактное узкое строение – идеальный выбор. Он экономит пространство участка, его легко вписать в границы. Такое здание также оптимально для участков со сложным рельефом и рыхлой почвой.
Лучшие проекты узких домов
СК «Авторитет» специализируется на загородном строительстве с использованием керамических блоков и других материалов. Мы предлагаем несколько проектов узких домов разной площади и этажности, чтобы удовлетворить требованиях всех категорий клиентов – от одиночно проживающих людей до семей с 2 – 3 детьми.
Проект Z7 L GL
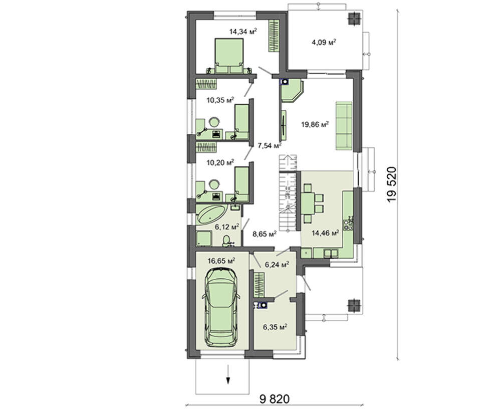
Вариант компактного одноэтажного здания с гаражом Z7 L GL – выбор для холостяка или семейной пары. В доме шириной всего 8,28 м есть все для комфортной жизни: 3 изолированных спальни, совмещенный санузел, небольшая кухня с вместительной кладовой, а также просторная гостиная 21,7 кв. м.
Проект Z25
Любители простора оценят проект Z25. Двухэтажное здание шириной 7,13 м впечатляет качеством планировки: на первом этаже расположено крыльцо-веранда, ведущее в прихожую. Здесь находится санузел, большая кухня 11,3 кв. м и поразительно просторная гостиная – почти 33 кв. м. На втором этаже – царство сна и отдыха: 3 компактные спальни и общая ванная комната. Из большой спальни можно выйти на большой крытый балкон и полюбоваться отличными видами.
Проект Z157
Проект дома с мансардой Z157 станет компромиссом между экономичностью и простором: на нижнем уровне – огромная гостиная 36 кв. м, кухня, прихожая, санузел и рабочий кабинет, а на втором – 3 спальни, общая ванная, помещение под сауну. Также к дому примыкает гараж с выходом из кладовой.
Другие новости и статьи
18 мая 2017Лестницы в частном доме
Лестницы в частном доме обязательно будут предусмотрены проектом, если здание имеет больше одного этажа. Они могут быть сделаны из разных материалов – металла, древесины.
Загородные дома 10×10: особенности и преимущества
Категория загородных домов 10×10 м является одной из самых популярных среди владельцев средних частных участков и семей с количеством членов от 4-х человек. Стоит сразу же отметить, что квадратура жилья с такими габаритными размерами – это не только 80-100 м2.
статья статьяГотовые проекты домов для узких участков, проекты домов под узкий участок
Идеальный земельный участок для строительства жилья имеет примерно равные длину с шириной, нулевой уклон и все необходимые коммуникации у своих границ. Земельный надел, у которого один из размеров значительно больше другого, или, говоря по-простому «узкий участок», имеет свою специфику, которую необходимо учитывать при проектировании коттеджа. Итак, каким же должен быть коттедж для узкого участка? Самое первое, что нужно обеспечить, это расстояние между стенами жилья и забором, достаточное для сооружения дорожки, иначе для того, чтобы попасть с одной половины участка на другую, придется проходить сквозь, а это очень неудобно.
Что такое узкий участок для дома?
Обычно так называется участок, ширина которого не превышает 10 м. Таким образом, ширина здания также не должна быть более 7, в крайнем случае — 8 м. При проектировании узкого дома соблюдается ряд правил, благодаря которым жилье становится не только вполне пригодным для обитания, но даже весьма привлекательным и уютным. Например, удобнее ориентировка торцевых стен на восток и на запад.
Особенности проектов узких домов
Близость забора к стенам диктует свои условия, поэтому спальни размещаются на втором этаже, а их окна располагаются в максимальной близости от боковых стен. Первый этаж отводится под кухню, кабинет или гостиную, где освещение и вид из окон не так важны. Такие помещения как санузел, котельная или гардеробная нуждаются в минимуме естественного освещения, поэтому их принято располагать в центральных частях здания. Для них будет достаточно небольших окон в толще боковых стен. Лестницу (желательно компактную) целесообразно расположить вдоль длинной «темной» стены. Большие окна, в том числе, мансардные, применение второго света – все это позволит построить дом для узкого участка жизнерадостным и светлым. Много открытых зон, встроенная мебель и прочие подобные хитрости будут увеличивать пространство помещений зрительно и фактически.
Нужно отметить, что строительство узкого дома по проекту несколько дороже, чем обычный, квадратный с такой же площадью. Дело тут в увеличенном периметре стен и связанными с этим работами по организации теплоизоляции. В остальном же узкий дом не доставит вам хлопот, если тщательно продумать все мелочи еще на стадии проекта.
Готовые проекты узких домов
Готовые проекты домов для узких участков, как правило, не включают пристроенного к жилью гаража. Он, или заменяющий его навес в таких случаях располагаются отдельно. Впрочем, предела совершенству нет, как нет и преград для проектировщика, который все-таки решил пристроить к такому дому гараж. Проекты одноэтажных домов для узкого участка встречаются часто, но в силу своей ограниченной площади, подходят для одиноких людей или бездетных пар. Самое главное — помнить, что даже неудачная форма участка не сможет ограничить Ваше пространство. Компании Берг Архитект всегда поможет Вам спроектировать проект дома для узкого участка.
В нашем каталоге представлены современные проекты узких домов для узких участков: одноэтажные, двухэтажные, с мансардой, с гаражом, цоколем, из кирпича и блоков.
Строительство дома на узком участке
Строительство дома на узком участке серьезно ограничивает возможности выбора проекта дома. Участок шириной 15 метров уже считается узким, при ширине 10 метров – очень узким. Более узкие наделы предназначены для строительства блокированных домов (общая стена двух домов) или для возведения некапитальных дачных построек.
Следует помнить, что ограничения на размер дома будет накладывать также необходимость соблюдения градостроительных нормативов и противопожарных норм. Однако даже в такой ситуации комфортный дом построить можно.
Градостроительные нормативы и противопожарные нормы
Согласно градостроительным нормативам (ДБН 360-92) дом и границу соседнего участка должно разделять расстояние не меньше 1 метра.
Противопожарные нормы диктуют определенные расстояния между зданиями на соседних участках. В зависимости от материалов, которые были использованы при строительстве дома, они составляют от 6 до 15 метров. В первом случае речь идет о расстоянии между домами из несгораемых материалов, во втором – между полностью сгораемыми деревянными зданиями. Не нормируются расстояния между строениями на одном участке. Таким образом, ширина дома на узком участке будет составлять порядка 6-8 метров. А оптимальной считается ширина от 10 метров.
Влияние особенностей участка на размеры дома
На размеры и планировку дома будут влиять также следующие факторы:
- Протяженность участка. Вытянутая территория позволяет разместить вспомогательные постройки: баню, летнюю кухню, мастерскую, спортзал. В результате этого уменьшаются размеры дома.
- Рельеф. При ровном рельефе проблемы с размещением дома не возникнет. Наличие склонов, возвышенностей или низин на узком участке приведет к увеличению стоимости всех работ, включая стоимость проектирования дома.
- Ориентация по сторонам света и инсоляция. Оптимальной считается ориентация торцевых стен дома на восток и запад.
Это даст возможность реализовать планировку, при которой самые важные помещения получат достаточную освещенность, спальни летом к вечеру успеют охладиться, на кухне не будет жары после обеда от лучей заходящего солнца. - Затененность территории. Этот фактор надо учитывать при составлении планировки освещенных зон в доме.
- Расположение домов на соседних участках может влиять на инсоляцию дома.
- Необходимость экономии территории, выделяемой под строительство дома.
- Вынужденно вытянутая форма дома затронет освещение. Для избежания недостаточной освещенности помещений в здании, окна которых будут смотреть на забор или соседние строения, следует максимально использовать пространство с наиболее освещенных сторон (южной, восточной и западной). Окна следует проектировать большого размера, предусматривать установку мансардных окон.
Малая ширина одноэтажного дома – это увеличение стоимости строительства увеличивается периметр стен. Как следствие, возрастает расход материалов, появляется необходимость строительства второго этажа для получения нужной площади дома.
Проект дома на узком участке
Проекты домов для узких участков можно попытаться подобрать самостоятельно. Однако необходимость решения целого ряда специфических проблем потребует обращения в строительную компанию к специалистам. Потому что только специалистам под силу решить эти возникшие специфические вопросы и качественно выполнить разработку проекта и строительство дома на узком участке. В этом случае владелец участка сформулирует в задании на проектирование свои пожелания и получит проект максимально комфортного для проживания дома.
Оставить заявку на консультацию по стоимости строительства
Проекты домов для узких участков: цены, фото в СПб
Что необходимо учесть, выбирая проект дома для узкого участка?
Планируя строительство собственного коттеджа, многие люди сталкиваются с такой проблемой, как небольшая площадь земли.
Порой приходится возводить загородное жилье на узких участках. К ним принято относить площадь шириной не более 10 метров. При этом помимо самого дома желательно оставить свободную землю для двора, зоны отдыха, сада.
Соответственно максимальная ширина узкого здания в данном случае может составлять 7-8 метров. Однако это не означает, что на таком участке нельзя построить комфортабельный и функциональный дом. Современные архитектурные решения позволяют эффективно справляться с этой задачей.
Проекты для узкого участка имеют вытянутый план. Оптимальным решением будет постройка двухэтажного здания или коттеджа с мансардой, хотя распространены и одноэтажные варианты с цоколем. Строительство может осуществляться практически из любых подходящих материалов, главное просчитать все правильно в проекте.
Размещение жилых комнат в узком доме лучше предусматривать на втором этаже. В противном случае их окна будут выходить прямо на забор. Оконные проемы должны быть достаточно большими.
В архитектуре и интерьере коттеджа на узком участке важно предусмотреть максимум возможностей для расширения полезного пространства. В том числе лестницу на второй этаж лучше делать одномаршевой и располагать ее у одной из длинных стен. Желательно по максимуму использовать в помещениях открытые зоны, второй свет и другие решения. Также рекомендуется предусматривать встроенную мебель.
Особенности проектов узких длинных домов
Учитывая характерные условия и ограничения, в которых приходится осуществлять возведение домов на узких участках, их отличает ряд особенностей:
- Использование второго этажа или мансарды, цокольного этажа для максимального увеличения площади внутренних помещений на узком участке.
- Длинная крыша с одним или двумя скатами.
- Узкий дом предполагает расположение комнат вдоль длинного коридора.
- Рациональное использование полезной площади за счет устройства эркеров, балконов, террас, второго света и других решений.

- Большие оконные проемы, использование панорамного остекления фасадов.
- Компактные размеры лестницы, которая выполняется в один марш.
- Одна или две стены первого этажа (в зависимости от их расположения) могут быть «глухими», то есть без оконных проемов.
- Если проектом предусматривается терраса, то второй этаж, как правило, нависает над ней для увеличения площади расположенных на нем комнат.
- На участковой территории можно разместить сад, протягивающийся вдоль всего строения.
Если Вашему загородному участку присуща необычная форма, то наши архитекторы, проектировщики и инженеры подготовят соверешенно индивидуальный проект узкого участка под стоительство.
СК «Основа» обеспечивает строительство красивых, функциональных и комфортабельных домов высокого класса даже на участках малой ширины. Обращайтесь, и мы построим для Вас отличный коттедж!
Узкие дома – проекты домов для узких участков
Сортировать по: ПопулярностиУвеличению площадиУменьшению площадиНазванию А — ЯНазванию Я — А
Режим просмотра:Разработка проектов домов для узких участков – интересное и востребованное направление на современном рынке частного строительства. Учитывая высокую стоимость земли в, узкие дома становятся все более популярными.
К преимуществам проектов, разработанных специально для узких участков, относится их рациональность. Несмотря на компактные габариты и часто достаточно аскетичный внешний вид, такие дома имеют грамотную планировку, обеспечивающую максимум комфорта и удобства для своих обитателей.
Особенности выбора домов для узких участков
Главная особенность таких домов заключается в сложности их реализации с учетом ограниченного пространства, выделенного под строительство. Разработать проект, отвечающий требованиям современным стандартов, достаточно сложно.
Однако для опытных архитекторов эта задача выполнима, подтверждением чему служат проекты узких домов от Юникс Строй, большой выбор которых представлен в данном разделе сайта.
Если вы решили купить проект узкого дома для строительства в Москве или Московской области, стоит серьезно отнестись к вопросу его выбора.
- Узкие участки идеально подходят для строительства двухэтажных домов, а также домов с мансардой.
- Обратите внимание на планировку внутреннего пространства. Оно должно быть организовано таким образом, чтобы ни один квадратный метр не был забыт. Для расширения пространства узкие дома часто оснащают верандами, цоколями, балконами.
- Учитывайте интенсивность естественного освещения на участке. Если оно ограничено, дом разумнее расположить в глубине участка.
- Немаловажный фактор– наличие соседей на граничащих участках.
Почему выгодно обратиться к нам?
- Наши проекты– это оптимальное сочетание красоты, удобства и функциональности. Опытные архитекторы нашей компании работают с максимальной отдачей, стараясь дать нашим заказчикам возможность построить современный комфортабельный дом на ограниченном пространстве.
- Мы предлагаем большой выбор интересных конструктивных и дизайнерских решений.
- Чтобы стать обладателем проекта узкого дома, достаточно выбрать понравившийся вариант и связаться с нами по телефону или через форму обратной связи на сайте. При заказе цикла подрядных строительных работ в Юникс Строй, Вы получите проект бесплатно.
Проекты домов для узкого участка. Проекты узких домов с фото
Узкий участок? Решение возможно!Фотография проектов домов на узкий участок.
Оптимальное соотношение
сторон участка под жилую застройку – это пропорция «золотого сечения» или листа
А4, а ширина участка, комфортного для расположения стандартного дома, должна
быть не менее 20 м. Но часто приходится довольствоваться более узким участком,
на котором невозможно разместить стандартный дом.
И тогда единственное
правильное решение – применить проект специально разработанного узкого дома.
Компания ARCHON+ предлагает воспользоваться каталогом готовых проектов узких домов площадью от 51 до 273 м2. Не трудно убедиться, что наши коттеджи по объемно-планировочному решению и уровню комфорта не уступают домам привычной конфигурации. Мы имеем варианты отличного жилья на участке шириной даже меньше 10 м!
Компания продает только готовые проекты. Проект узкого дома состоит из архитектурного, конструктивного разделов, схем внутреннего водопровода, канализации, тепло- и электроснабжения.
Типы узких домов и особенности планировкиНаши проекты домов для узкого участка очень разнообразны. Чаще это особняки с мансардным этажом или 2-этажные, реже одноэтажные, имеющие характерные особенности:
- вытянутая форма плана;
- фронтон, обращенный на улицу;
- одна или две продольные стены «глухие» — без окон;
- окна на солнечной стороне большие или панорамные;
- использование эркеров, мансардных окон и «второго света»;
- цокольный этаж для размещения топочной, кладовой, спортзала;
- «нависающий» второй этаж, под ним- крытая терраса.
- лестница прямая одномаршевая минимальных размеров вдоль одной из длинных стен внутри.
Мы предлагаем проекты домов с различной ориентацией по сторонам света для узкого участка, принципиально отличающиеся по планировке. Оптимальный вариант расположения дома — торцевые стены выходят на запад и восток, все помещения получают достаточно солнечного света. При расположении дороги к северу от дома в его северной части располагается входной узел, кухня и гараж, а в южной — гостиная с панорамными окнами. Проекты домов для узкого участка, обращенного к улице южной стороной, предполагают смещение дома вглубь участка и устройство перед ним террасы, на которую будут выходить окна гостиной и спален.
Возможна застройка двух соседних участков спаренными домами. В этом случае применяются зеркальные проекты домов на узкий участок, соединенные по границе домовладений. Разрыв между соседними домами не нормируется, если стена одного из них, более высокого или широкого, является противопожарной: выполнена из негорючих материалов и не имеет оконных проемов.
Опытные архитекторы нашей компании ознакомятся с вашими потребностями и характеристиками участка, помогут выбрать самый подходящий проект и преобразовать вашу мечту в четкое руководство к действию!
Проекты узких домов до 150 кв м. Проекты узких домов. Уютный дом на узком участке. Основные принципы
Качественные проекты домов для узких участков позволяют возвести такие же комфортабельные и просторные строения, как и их стандартные собратья. А компенсировать компактность позволяет продуманность архитектурных решений, в частности, в том, что касается внутреннего пространства и правильной ориентации строения на участке. Ширина такого земельного надела не превышает 10 м, а здания – 8 м. При этом ориентировать торцы лучше на восток и на запад. Гостиная, кабинет и спальни обычно размещают как можно ближе к бокам, чтобы их окна не упирались в забор. По центру же размещают санузлы и подсобные помещения.
Лестницу на второй этаж, как правило, располагают вдоль длинной стены и снабжают только одним пролетом. Окна большие, часто используется второй свет , в здании вообще лучше предусматривать как можно меньше перегородок и больше встроенной мебели. Проекты домов для узких участков предусматривают несколько более высокую цену на строительные работы. Причина – большой периметр стен и расходы на создание утепления. В остальном же такое жилище ни в чем не уступает стандартному.
Расширяем пространство
Одноэтажный дом необычной конфигурации может вместить до четырех постоянных обитателей. Чаще всего, такие проекты домов для узких участков не блещут архитектурными изысками, которые в данном случае будут выглядеть неуместно.
Это, впрочем, не означает, что на эстетику можно махнуть рукой. Сделать постройку более привлекательной внешне позволит увеличение высоты цоколя. Такое жилище не будет смотреться низким и приземистым. Вход рациональнее размещать со стороны фасада, как и въезд в гараж. Зрительно расширить пространство поможет терраса.
Строения в два этажа могут вместить до семи жильцов. Такое жилье, безусловно, более комфортно и вместительно. На первом этаже можно отвести достаточно места для кухни, столовой, гостиной, на втором — обустроить несколько уютных спален. Не стоит забывать и о том, что проекты домов для узких участков в два этажа могут быть снабжены балконом, который поможет еще немного расширить ваше пространство и сбалансировать его.
Высокая стоимость земли, тенденции к уплотнению и прочие факторы сделали узкие наделы под застройку частым явлением. Впрочем, именно благодаря их распространенности проекты домов для узких участков сегодня не проблема. Разумеется, в постройке жилища на участке вытянутой формы есть свои тонкости.
Что такое «узкий участок»?
В эту категорию входят участки, имеющие ширину 15-17 метров. Минимально возможная ширина участка под застройку составляет 10 метров. С учетом всех строительных и противопожарных норм — таких как ограничение дистанции до изгороди, расстояния до соседнего дома и прочих — на сам дом площади остается всего ничего. И выходит, что строение придется делать узким и длинным, как контейнер. Но не так страшен черт, как его рисуют.
Современные проекты узких домов и домов для небольших участков отнюдь не предполагают, что жилище будет иметь унылый «барачный» вид. Задействовав принципы эргономичности, на выходе можно получить очень симпатичный и при этом весьма вместительный домик. Например, в стиле шале (деревенские домики с сильно выступающими карнизами крыши). А фахверковые дома выглядят так, как будто только что сошли со страниц туристического путеводителя по Старой Европе. Особенно если тщательно продумать ландшафтный дизайн участка.
Кстати, грамотный ландшафтный дизайн легко решит проблему вида из окон, ведь на небольшом земельном наделе существует недостаток приватности.
Уютный дом на узком участке. Основные принципы
Приобретая проект дома для узкого участка, важно проконсультироваться со специалистом, который поможет учесть противопожарные разрывы, все необходимые дистанции между постройками. Архитектор трезво оценит все особенности участка, подскажет, как минимизировать негативные аспекты и наиболее полно использовать позитивные.
Предпочтительно, когда торцевые стены дома можно сориентировать на восток и запад. Этот прием обеспечит равномерную инсоляцию жилых помещений в течение суток. Хорошо, если северной стороной участок примыкает к дороге. Тогда появляется возможность разместить в северной зоне вход и гараж, выстроив гостиную на солнечной южной стороне. Если подъездная зона расположена на юге, то дело несколько осложняется.
Как правило, в целях экономии места проекты домов для маленьких участков предполагают строительство двухэтажного жилища или дома с мансардой. Это оптимальный вариант, позволяющий сэкономить дефицитное место. Исключение — маленькие дачные домики, не предполагающие постоянного проживания в них.
На первом этаже двухэтажного дома можно расположить гостиную и все хозяйственные помещения: санузлы, гардеробные и так далее. На втором — спальни и иные жилые комнаты. И, конечно же, очень важно грамотно спроектировать помещения. Необходимо помнить, что комната, чья длина превышает ширину вдвое, кажется неуютной.
Не лишним будет продумать интерьер дома, построенного на узком участке. Важно, чтобы мебель и техника не загромождали пространство, не сужали его визуально. Хотя, конечно же, здесь все зависит от индивидуальных вкусов и фантазии владельца.
Подводя итог…
Можно сказать, что покупка узкого участка — это не приговор. Качественный архитектурный проект плюс консультация грамотного специалиста и плюс продуманный ландшафтный дизайн — рецепт, который поможет построить уютный и красивый дом даже на самом сложном земельном наделе.![]()
Для сохранения пространства лучше использовать центральную компоновку комнат. В каждую комнату из коридора ведет отдельная дверь. Проходные комнаты отнимают пространство и создают неудобства. Одна или две стены, выходящие на соседние здания, не имеют окон. В доме должны быть спальня, кухня, гостиная, детская, санузел.
Мебель и бытовые приборы в спальне, на кухне, в санузле размещают вдоль длинной стены. Используют максимум средств для визуального расширения пространства комнат – зеркала, светлые оттенки интерьера, продуманное освещение, встроенная мебель.
Нюансы строительства
Участок шириной 15 м считается узким. При строительстве учитывают различные факторы: протяженность участка, рельеф, ориентацию по сторонам света, затененность территории. При площади более 100-120 м² специалисты рекомендуют строить двухэтажный или мансардный дом. Уместно наличие цокольного или подвального этажа для служебных помещений. На солнечной стороне устанавливают окна больших размеров для полноценного освещения.
При расположении входа с северной стороны спальню и гостиную удобно располагать в южной части дома. Энергосберегающие свойства эффективно используются при ориентации длинной стороны на юг и «глухой» северной стене.
Цена строительства дома определяется выбранным проектом и особенностями участка.
С учетом уплотнения современного строительства и повышения цен на землю нормой становится приобретение длинных и узких участков. После покупки такой территории возникает проблема постройки дома, ведь ее ширина составляет всего 15-25 м.
Не каждый такой дом будет похож на длинный барак. Существует большой выбор оригинальных дизайнерских решений. Недорогие проекты домов для узких участков могут быть привлекательны и практичны. Многие из них адаптированы под конкретные регионы страны.
Особенности узких домов
Многие проекты узких домов не только привлекательны, но и довольно вместительны. В таких домах предусматривается полный комплекс комнат, необходимых для размещения средней и большой семьи.
При создании планировок стандартного типа используют такие принципы:
- Увеличение высоты дома — постройка, расположенная на узкой площадке, обычно возводится двухэтажной, с утепленной мансардой.
- Внутренние помещения расширяют за счет оборудования цокольного этажа. Для комфорта пребывания на нем устанавливают несколько окон.
- Дом размещают таким образом, чтобы торцевые стены ориентировались на восток и запад для оптимального естественного освещения.
- Применение крыши шале позволяет уместить рядом с домом террасу.
При возведении коттеджа на узком участке ландшафтный дизайн должен отвечать определенным требованиям. Если создать грамотный проект застройки, можно выгодно использовать территорию, сохраняя приватность даже при близком расположении соседей.
Коттеджи, расположенные на узкой территории, отличаются несколькими особенностями:
- вытянутый план;
- обращение фронтонов в сторону улицы;
- одна или две глухих стены;
- окна, расположенные на более освещенной стороне, или панорамные конструкции;
- наличие эркеров, окон на мансарде и окон второго света;
- цокольный этаж, в котором располагают кладовую, тренировочный зал или котельную;
- нависание второго этажа над террасой;
- установки компактной одномаршевой лестницы.
Такие особенности проектов для узких участков позволяют не только визуально увеличить пространство внутри дома, но и сделать будущее жилье более удобным.
Выбор проекта
Можно найти много проектов для узких участков: одноэтажных и двухэтажных, с террасой и гаражом, имеющих разную форму и планировку. Постройка осуществляется с учетом геометрии здания, рельефа местности и особенностей расположения близлежащих объектов.
При создании проекта для узкого участка учитываются желания хозяев. Возможны следующие варианты:
- Типовые постройки, которые повторяются в неизменных архитектурных решениях, в зеркальном отражении или с незначительными изменениями.

- Создание заказа с учетом индивидуальных пожеланий владельцев участка. Для этого потребуется приглашать архитекторов, которые учтут все особенности участка.
- Обычно дома на узких площадках возводят фронтоном в сторону улицы.
- Такие постройки строят ближе к затененной границе. Необходимо учесть и размещение коммуникаций.
- При проектировании дома на узком участке не следует забывать про расположение технических построек.
Важно! Узкими называют участки, которые имеют ширину не больше 25 м.
Дом для прямоугольного участка
Дома, расположенные на узких прямоугольных площадках, обычно делают двухэтажными, с мансардой. Если второй этаж будет больше первого, можно сэкономить много места. Когда стены выходят на дом соседей или ограждение, их обычно выполняют без окон. Это обусловлено приватностью и невысоким уровнем освещения. Освещенные пространства следует использовать более эффективно.
Большие окна в прямоугольных домах отлично смотрятся и пропускают много света. Увеличивают окна за счет установки откосов и выступов.
Советы, которые стоит учесть при возведении узкого дома:
- При наличии нескольких этажей лестницу следует выбирать с одним маршем. Ее размещают у длинной стены.
- В планировке домов, возводимых на узких участках, предусматривается минимальное количество перегородок. Лучшее решение — установка раздвигающихся конструкций.
Расчет необходимой ширины узкого участка выполняют, исходя из определенных показателей. Ширина обычного дома составляет от 9 до 10 м. До заборов с каждой стороны оставляют 3 м. Ширина гаража составляет от 3,5-4 м. В результате ширина участка получается 20 м. К этому числу прибавляют проезд на дальнюю сторону участка — еще 3 м. В сумме получается 23 м.
Внимание!
На узком участке часто уменьшают площадь основания, а строение поднимают в высоту. Обычно устраивают 2 этажа и жилую мансарду. За счет этого дом сужается до 5-7 м. Удачное решение — расположить гараж под крышей дома.
Если участок расположен с ориентацией Запад-Восток, дом устанавливают широкой стороной на север. Придомовая площадка затеняется строением. С южной стороны помещают террасу. Если участок ориентирован в положении Север-Юг, дом располагают как можно дальше к северному рубежу участка. За ним лучше установить баню. Дорогу к дому делают на ширину колеи машины.
Проекты узких домов
При наличии узкого и длинного участка стоит познакомиться с оригинальными проектами домов с одним и двумя этажами. Каждый их них имеет несколько привлекательных особенностей.
Проект дома с гаражом
Под крышей такого дома на узком участке располагается гараж. Здание обладает габаритами 6,5х19 м. Несмотря на небольшую ширину дома, он отлично впишется в площадку со сложным ландшафтом.
На первом этаже располагается гараж, совмещенная с гостиной кухня и санузел, предназначенный для гостей. Второй этаж вмещает в себя два санузла и три жилых комнаты.
Американский дом
Такое строение является довольно большим. Оно включает два этажа, и обладает габаритами 6х12 м. Подобные проекты популярны в Америке. Они обладают полноценным функционалом, за счет чего комфортность проживания в них довольно высокая.
На первом этаже располагается гостиная, кабинеты, небольшой санузел и кухня, совмещенная со столовой. Второй этаж включает две спальни и две детских комнаты. Возле спальни расположена ванная. Еще на втором этаже находится совмещенный узел, в котором имеется душ.
Узкий дом с мансардой
Длина такого дома составляет 16,5 м, а ширина — 5 м. Первый этаж довольно высокий, что создает ощущение простора при нахождении внутри дома. Крыльцо пристроено к торцевой части здания. Благодаря высокой крыше мансарда получается довольно просторной.
Первый этаж включает в себя отделенную от остальных помещений гостиную, большую гардеробную и санузел, который находится под лестницей. Второй этаж вмещает два санузла и спальни.
Очень длинный дом
В этом проекте дом имеет минимальную ширину — всего 5 м.
Его длина равна 21,6 м. Проект является интересным решением для строительства на участке небольшой площади. Он включает простоту строительства и привлекательность архитектурных форм. Поскольку проект отличается высокой функциональностью, его следует рассмотреть подробно.
Строение схоже с предыдущим. Разница между ними заключается в расположении одной из спален. Это помещение располагают на первом этаже. Остальные жилые помещения выносят на второй. Здесь же присутствует и санузел.
Такие проекты двухэтажных домов для узких участков наиболее удобны и привлекательны.
Покупка участка
Существует множество географических мест, где продаются только узкие участки. Обычно они самые желанные для жизни — на берегу озера или моря, у подножия живописной горы, в небольших старых городках. Несмотря на неудобные габариты, эти территории довольно популярны.
Однако строить дом на них неудобно. Это связано с некоторыми ограничениями. Противопожарные и санитарные нормы регламентируют постройку дома на расстоянии более 6 м от соседей. Минимальное расстояние от дома до границ площадки — 3 м. Если выполнять эти нормативные требования, для строительства остается пригодной всего 6-9 м земли.
Поиск удобного и привлекательного архитектурного решения не всегда представляет легкую задачу. Все помещения должны располагаться в одну линию, что приводит к сужению комнат и обращению окон в сторону соседей. А вдоль дома располагается неудобный коридор. Однако решить эти проблемы можно при правильном выборе участка.
При выборе подходящего участка для дома особое внимание уделяют его геотехническим характеристикам. Планировка узких и длинных домов часто подразумевает создание цокольного этажа. Это позволяет устроить под домом котельную.
Стоит учесть, что проекты домов для узких участков с подвалом, дороже похожих, но без цокольного этажа, практически на 20%. Стоит поинтересоваться особенностями содержания подвала у соседей. Возможно, во время весеннего половодья он затапливается.
В этом случае потребуется принимать дополнительные меры защиты.
Обязателен водно-грунтовой анализ, который поможет определить, какой строить подвал — максимально защищенный от воды или сухой.
Проектирование участка
Проекты домов, устраиваемых на вытянутой территории, представляют собой комплексные решения. В них проработаны все детали расположения помещений, подведения коммуникаций и возведения хозяйственных построек.
В такие проекты включают септик, освещение, скважины, гараж. Для эстетичного оформления территории прибегают к таким решениям:
- Разделить площадку на несколько зон. Для этой цели применяют Шпалеры, арки, кусты и деревья. Зоны не изолируют полностью. Это исключает превращение и без того узкой площадки в несколько маленьких «уголков».
- Лучше, если сделать на участке извилистые дорожки, на поворотах которых будет открываться новый вид на участок.
- Деревья и кусты сажают группами в треугольники. Их следует разместить на участке таким образом, чтобы они образовывали дорожки.
- Формы участка получится полома и за счет элементов ландшафтного освещения. В саду устанавливают скульптуры и элементы декора.
Такие особенности обустройства узкого участка помогают повысить его привлекательность.
Возведение узкого дома
Проекты узких домов покупают в строительных компаниях, или создают самостоятельно. Если опыта проектирования нет, лучше взять готовый шаблон. Типовые проекты легко адаптируются под конкретный участок.
На подходящей площадке обычно возводят одноэтажные или двухэтажные строения с мансардой. Дома, расположенные на небольших участках, следует грамотно теплоизолировать. Это обусловлено меньшей энергоэффективностью таких сооружений, по сравнению с традиционными квадратными домами.
Кухню и гостиную лучше размещать у торцевых сторон. Спальни переносят на второй этаж. Чтобы не перекрывать световой поток, лестницу не располагают у торца. Готовые проекты создают с учетом особенностей расположения инженерных коммуникаций и возможностей подъезда тяжелой техники.
Дома располагаются на затененной стороне участка, что позволяет без затруднений перемещаться по солнечной стороне.
Удлиненные земельные участки, как бы зажатые между двумя соседними наделами – не редкость. Немногие могут позволить купить себе квадратный отрез земли, тем более в черте города, вот поэтому приходится изворачиваться и придумывать, какой дом на нем построить. Стандартные варианты не подойдут, так как перекроют собой половину участка, а заказ индивидуального строения — очень хлопотно и влечет за собой определенные затраты. Почему бы в таком случае не воспользоваться готовыми наработками, тем более сайт «Domamo» предлагает успешные проекты домов для узких участков с учетом всех их нюансов.
Характеристики домов с узким участком
Проектирование таких домов усложнено тем, что необходимо предусмотреть достаточно полезной площади внутри здания. Исходя из этого, архитекторы делают определенные акценты:
- здание идет с мансардой или строится двухэтажным, его целенаправленно вытягивают вверх, такая хитрость увеличивает площадь здания и привносит гармоничное его восприятие на узком участке;
- фасады таких строений не несут никакой нагрузки, они просты и не имеют лишних деталей, чтобы не нагромождать общий вид;
- использование не обычной крыши, а ее версии в стиле «шале», она позволяет спрятать от непогоды не только жилье, но и авто или пристроенную веранду;
- обычно строения на узких наделах строятся на цокольных этажах, которые дарят владельцам дополнительное пространство, которое можно организовать по своему усмотрению;
- расположение длинных сторон здания с учетом естественного освещения;
- несмотря на небольшие габариты прямоугольных домов они вместительны и многофункциональны за счет продуманной планировке.
Перед возведением капитального строения и при выборе проектов домов для узкого участка нужно продумать, что и какими габаритами будет стоять на оставшемся свободным участке, чтобы не загромождать его, и свободно потом передвигаться.
Что нужно учесть при выборе проекта для узкого участка?
В каталоге компании можно отыскать именно свой вариант проекта узкого дома, его можно расположить одной стороной как можно ближе к забору, чтобы выиграть больше пространства на участке. Обычно такие здания располагают в глубине участка, а перед ними разбивают клумбы и ставят беседку, чтобы создать уют и максимально освободить место под гараж или хозяйственные постройки. Сзади строения высаживают сад или же переносят туда все бытовки.
Проекты дома на узком участке требуют особого подхода, лучше остановиться на готовой работе с чертежами планировки. При желании можно скорректировать расположение комнат или пристроек, посоветовавшись со специалистами компании «Domamo». Они способны разработать любой проект даже для очень узкого надела. Загородный дом в их исполнении не будет ничем уступать обычному жилью.
| План 082H-0003 | О планах домов для узких участков … Если вы столкнулись с ограничениями, налагаемыми при строительстве на узкой полосе собственности, планы домов на узких участках являются идеальным решением. В то время как участки для строительства домов со временем уменьшались в размерах, эти конструкции стали чаще использоваться в густонаселенных районах, позволяя максимально использовать минимальные строительные площадки. Кроме того, планы домов для узких участков становятся все более и более популярными в городских районах, где они используются в качестве домов, заменяющих насыпные участки и старые городские дома.Эти планы этажей экономически спроектированы так, чтобы эффективно использовать доступный участок, а также внутреннее пространство. Эта коллекция планов домов с узкими участками имеет следы с максимальной шириной 40 футов. То, что больше всего не хватает ширине, компенсируется глубиной. Обычно планы домов на длинные и худые узкие участки включают в себя планы двухэтажных домов, проекты домов на ранчо, пляжные домики, бунгало и многое другое. Планы этажей с узкими участками иногда относят к домам с нулевым участком и обычно встречаются в районах с высокой плотностью зонирования, где земля ценна и существует высокий спрос на жилье.Об этом свидетельствует большой мегаполис, где дома строятся близко друг к другу. Дома с узкими участками могут варьироваться по размеру от небольших и доступных домов с парой спален и ванных до ультрасовременных домов с четырьмя или более спальнями и ванными комнатами и множеством модных элементов. Поскольку большинство планов домов для узких участков довольно глубокие, они часто предлагают линейный план этажа. В одноэтажных конструкциях обычно используется длинный холл, где жилые помещения сгруппированы в одном конце дома, а спальни и ванные комнаты — в другом.Двухэтажные версии идеально подходят для ограниченных строительных площадок, где требуются дополнительные квадратные метры. Дополнительное жилое пространство добавлено в виде второго уровня. Эти узкие участки обычно предлагают жилые зоны на первом этаже и размещают спальни наверху для полной конфиденциальности. Такое расположение создает удобную, функциональную и экономичную планировку. Кроме того, для домов с узкими участками нередко помещают гараж позади дома, предлагая гараж с задним входом, доступ к которому осуществляется с переулка, как в больших городах.Планы домов на узких участках часто признаются за их минимальное воздействие на окружающую среду. Их небольшие следы требуют меньше зеленых насаждений для строительства, в то же время позволяя «большему дому» поместиться на узкой строительной площадке. Это оставляет окружающую землю нетронутой, что делает эти дома экологически чистым вариантом жилья. В этой небольшой коллекции представлены стильные и удобные дома в самых разных архитектурных стилях. |
Узкий участок план дома
Планы домов, разработанные для узких участков, как правило, являются результатом изменения строительных норм, правил и наличия земли, и это лишь некоторые из них.
За последние 20 лет или около того изменился ландшафт доступных домов. Сегодня для компаний гораздо более распространено превращение участка земли в искусственно созданный поселок, чем в прошлом.
Некоторые могут сказать, что просто пытаются упаковать как можно больше домов на земле. И, честно говоря, есть разработчики, которые этим занимаются. Но большинство из них пытаются создать устойчивое и красивое место для проживания семей.
Хорошо спроектированное и развитое сообщество может нуждаться в планах дома, разработанных для узких участков, но это не значит, что дома вообще не будет.Один из наших многократно отмеченных наградами планов дома был разработан специально для узких участков.
Анвард:
Эта вилла в средиземноморском стиле спроектирована так, чтобы максимально увеличить пространство. Открытый план этажа и отступающие стеклянные стены в большом зале стирают грань между внутренним и внешним пространством. Этот дом с 3 спальнями и 3 ванными комнатами идеально подходит для растущей семьи. И все же, имея всего 2778 кв. Футов жилой площади, это не слишком много для пары пенсионеров.
Поскольку в каждой спальне есть собственная ванная комната, эта планировка также идеально подходит для проживания нескольких поколений. Этот дом живет намного больше, чем его след. Широкие открытые зоны общего пользования хорошо сбалансированы достаточным количеством личного пространства.
Ключ к созданию хорошо спроектированного дома с узким участком — сделать его больше внутри. Приветствие на свежем воздухе также является ключевым моментом. Благодаря просторному крытому патио и летней кухне вы будете проводить лето на улице.Крытая солана — это просто потрясающий штрих, который создает такую особую атмосферу, которую вы чувствуете в отпуске каждые выходные.
Если для вашего участка требуется план дома шириной не более 45 футов, обратите внимание на Anvard.
Вы можете увидеть больше об этой удивительной, отмеченной наградами вилле в видео ниже. Если у вас есть какие-либо вопросы по поводу этого плана или любого из наших планов домов с узким участком, пожалуйста, свяжитесь с нами. Мы всегда готовы помочь.
Планы красивых домов для узких участков — Pinoy House Designs
| Пока без коментариев
Поскольку большинство и лучшие возможности трудоустройства доступны в городах, люди всех слоев общества стекаются в пригород в поисках своего будущего.Из-за этого увеличение количества жителей требует увеличения жилищных требований. Кроме того, поскольку желание жить в центре города продолжает расти, вероятность строить планы домов для узких участков становится необходимостью.
Разработчикам проектов ничего не остается, кроме как вкладывать средства в узкие участки для лучшего вложения. Следовательно, у семей нет большого выбора, кроме как пользоваться квартирами даже с высокой стоимостью и меньшими помещениями. С другой стороны, они считают это разумным решением из-за близости к месту работы.В то же время безопасность находится на значительном уровне, а также экономится время и силы.
Жизнь в узких домах не так удобна по сравнению с другими типами домов, построенными для уюта. Напротив, маленькие и узкие дома имеют свои преимущества и преимущества.
Обоснование планов домов для узких участков
Каждый жилищный участок существует с соответствующим типом дома. Эта статья предлагает некоторые планы домов для узких участков, чтобы помочь им понять положительные моменты.Мы должны понимать, что маленький или узкий дом не означает компромисса по качеству или внутренней отделке. Фактически, одно из преимуществ стройных участков заключается в том, что вы можете максимально увеличить пространство, построив структуру вертикально.
Проекты домов с узкими участками предлагают много жилого пространства на небольшом узком участке. Узкий и небольшой дом идеально подходит для нынешней ситуации, когда не хватает участков для размещения большинства семей.При тонкой планировке можно построить полноразмерные дома на небольших участках.
Таким образом, в нынешней ситуации планы домов для узких участков являются необходимостью для удовлетворения сегодняшних требований к жилью. Соответственно, переезд в тонкие дома позволит семьям оценить другие преимущества этого типа дома.
Преимущества планов домов с узкими участками
При рассмотрении вопроса о строительстве дома на узком участке важно знать, как максимально эффективно использовать пространство.Это несколько способов использовать узкое пространство и план дома в ваших интересах.
- Многоэтажный дом — вы можете расширить свой дом по вертикали, построив несколько этажей полезного пространства.
- Интересный дизайн — Узкий дом предлагает интересные и умные конструкции, чтобы увеличить жилое пространство в небольшом доме, сделав его более функциональным.
- Максимальное использование пространства — из-за размера и формы требуется продуманный дизайн, чтобы использовать доступное пространство.Планы домов с узкими участками также включают инновационные элементы дизайна, которые максимально используют каждый дюйм пространства.
- Доступность — Чем меньше размер, тем меньше стоимость конструкции. Стоимость строительства меньше, потому что вы можете использовать пространство несколько раз без дополнительных затрат на землю. Поэтому они более доступны по цене.
- Подача естественного света — вы можете установить больше окон, чтобы увеличить количество естественного света и воздуха для вентиляции помещения.
- Меньше обслуживания — Стоимость обслуживания ниже, так как меньше места для обслуживания и меньше площади для обогрева и охлаждения.

- Меньше ухода за ландшафтом — меньшие площади требуют меньших затрат на уход за ландшафтом и садом.
- Максимальное увеличение пространства для хранения — узкие дома позволяют проявить творческий подход и гибкость в создании хранилищ из доступных пространств вокруг устройства.
- Экологичность — меньшее использование ресурсов и меньшие затраты на обслуживание планов домов для узких участков делают их более экологически чистыми.
- Домашние привилегии — Узкие домики предлагают точно такие же привилегии комфорта жизни, как и любые другие типы домов, хотя и не в равных пропорциях.
Изображения планов домов для небольших участков
Вот несколько планов домов, которые практически стоят узкими участками, для вашего ознакомления и рассмотрения.
При правильном планировании домов для узких участков вы поймете, что узкие участки справедливо предлагают ряд преимуществ.
Подводя итог, можно сказать, что многие дома с узкими участками довольно просторны, обычно за счет использования пространства вертикально, а не горизонтально.Если вам понравится небольшой дом, вы также встретите различные небольшие конструкции, которые хорошо подходят для узкого участка.
Дом 5 Узкий дом | B + C Архитектура
Клиент: Частный сектор
Дата: января 2017 г. (в процессе)
Площадь: 1780 кв.м. 2
Необычный и новаторский дизайн дома, который максимально использует доступное пространство и естественное освещение для семейного проживания на особенно узком участке.
Участок граничит с востоком с охраняемым Зеленым поясом, узким участком земли, окруженным другими владениями.
Как мы могли бы создать дом с 3 спальнями, идеально подходящий для развлечения друзей и семьи, не нанося ущерба территории и окружающей среде? С такой узкой площадью для работы с самого начала было ясно, что нам действительно придется мыслить нестандартно, чтобы придумать что-то с достаточной площадью пола, которое также выиграет от оптимального естественного освещения.
Как команда дизайнеров, работающая в тесном сотрудничестве с нашим клиентом, мы исследовали возможность создания узкого одноэтажного дома с коридором, соединяющим все спальни в передней части дома и ведущим к жилой зоне открытой планировки в задней части.
Чтобы исследовать, как дневной свет будет освещать внутренние пространства, мы создали физическую модель дома в сочетании с NC Architectural Models. Это показало нам в графических деталях, как здание будет работать по отношению к дизайну крыши, центральному двору и ограниченным границам, и было важно для эволюции дизайна.
Центральный двор обеспечивает как естественное освещение, так и открытое пространство для 2 центральных спален. Застекленная часть крыши соединяет двор с главным домом и обеспечивает естественное освещение коридора.
Основное жилое пространство в задней части здания расположено на нижнем уровне, что позволяет использовать полу-антресоль над кухней / столовой и гостиной открытой планировки, куда можно подняться по винтовой лестнице, встроенной в рабочую поверхность кухни. Эффектный сводчатый потолок двойной высоты соединяется с задним садом через полностью застекленный фасад с огромными раздвижными дверями.
5 маленьких стильных архитектурных чудес
Градостроители и архитекторы придумывают множество новых идей, чтобы справиться с растущей плотностью населения в городах. В районах с ограниченным жилым пространством — и, соответственно, дорогостоящим — наблюдается всплеск инновационных концепций микро-жизни, многие из которых мы рассмотрели в предыдущих статьях о G-Pulse. Иногда проблема заключается не только в том, чтобы максимально использовать ограниченное доступное свободное пространство: архитекторы также стремятся заполнить пробелы в неоднородном и незавершенном городском ландшафте.Япония долгое время была первопроходцем в мире архитектуры тонких домов.
Kyosho jutaku: нишевый тренд на японском рынке недвижимости
Первые «кёсё дзютаку» — тощие дома, построенные на невероятно узких участках земли — начали появляться в японских городах еще в 13 веке, и этот стиль строительства не менее актуален в стране сегодня.
Однако в современном мире акцент сместился; В настоящее время архитекторы уделяют все больше внимания этому стилю строительства по экономическим, а не эстетическим причинам.Четырех- или пятиэтажные дома обычно имеют непритязательный вид, они врезаются в городской пейзаж в узких промежутках между существующими постройками. Дома адаптируются к имеющемуся пространству — даже если ширина участка составляет всего несколько сантиметров, а жилой площади всего 10 квадратных метров.
Внутри здания ведут крутые лестницы. Кухня, спальни и гостиная часто занимают разные этажи и обставлены многофункциональной гибкой мебелью.
В этих узких комнатах естественный дневной свет становится ключевым инструментом дизайна.С множеством окон и большими стеклянными панелями от пола до потолка на верхних этажах дома кёсё-дзютаку обычно не вызывают такой клаустрофобии, как может показаться на первый взгляд. Хотя тонкие дома, такие как HX4 от Jun Ishikawa Architects, составляют лишь небольшую часть японского рынка недвижимости, спрос на такие многофункциональные жилые дома растет, особенно в перенаселенном городе Токио. Но эта тенденция не ограничивается Японией: стройные дома можно найти и во многих других густонаселенных городских центрах.
Керетский дом: вершина узкой архитектуры
Еще в 2009 году польский дизайнер и архитектор Якуб Щесны представил свою художественную концепцию дома Керет на фестивале WolaArt. Три года спустя он реализовал свое видение в городе Варшава. На первый взгляд трудно понять, как стальная конструкция, расположенная между кирпичом и бетоном двух существующих зданий, могла когда-либо стать домом. В самом широком месте этот полупрозрачный дизайн без окон имеет размеры всего 122 сантиметра, а в самом узком месте он опускается до 72 сантиметров.На первом этаже, несмотря на небольшие размеры, находится кухонный гарнитур, ванная и гостиная. В спальню и рабочее место можно подняться по лестнице. Полностью оборудованный тощий дом используется как временная база для художников и писателей, но здание в первую очередь определяется как художественная инсталляция, поддерживаемая и спонсируемая Польским фондом современного искусства (PMAF).
Проектирование для узких участков | Professional Builder
По мере того, как стоимость земли в желаемых районах продолжает стремительно расти, плотность односемейных домов неизбежно увеличивается.Поскольку затраты на строительство напрямую связаны с линейным фасадом дорог и коммуникаций, понятно, что ширина участков должна уменьшаться. Хотя проектировать и строить дома на узких участках чрезвычайно сложно, тщательно продуманные проекты могут предложить привлекательное сочетание уединения, низких эксплуатационных расходов и интересных архитектурных деталей. Дилемма о том, где разместить автомобили и как обеспечить конфиденциальность, вероятно, является самой большой проблемой. Хотя гаражи, расположенные вдоль задней полосы, позволяют сделать больший акцент на переднем фасаде, это дополнительное покрытие может увеличить общие затраты на строительство.Следующие ниже концепции решают эти проблемы расположения гаражей, парковок и жилых помещений на открытом воздухе различными способами, оставляя следы шириной до 17 футов. Как всегда, мы ценим ваши мысли и комментарии.
Доступный прототип заполнения
Построенный с очень ограниченным бюджетом, этот новый прототип для доступного домовладения и для городской застройки на узких участках обеспечивает удобства и ощущение простора, необычные для этого типа жилья.Участок оставляет всего 17 футов строительной ширины, как того требует кодекс зонирования, который также требует гаража на две машины. Расположенный в сложном районе Южного Лос-Анджелеса, прототип имеет дизайн гаража, который создает интегрированное защищаемое пространство, сохраняя при этом открытость и связь с окружающей средой. Конструкция позволяет использовать навес для машины вместо гаража, создавая последовательность входа в 70 футов длиной. Обильный дневной свет, связь между помещениями и улицами, высокие потолки и яркие цвета — все вместе создают роскошь, достоинство и здоровый образ жизни, типичные для Южной Калифорнии и редкие для доступных домов с заполнением.
Озеленение и проницаемые поверхности Xeriscape вписываются в существующие кварталы, уважая и заряжая их энергией.
Пфлюгервиль
Одна из самых больших проблем при проектировании узкого участка — это создание заднего двора с чувством уединения. Создав план этажа, который исключает или, по крайней мере, сводит к минимуму окна с одной стороны, соседний дом имеет уединенный внутренний двор и жилое пространство на открытом воздухе.Экономное использование ограждений (размещение ограждения и ворот спереди и сзади этого бокового двора) обеспечивает безопасное место для детей и домашних животных.
Узкий участок Модерн
Когда дело доходит до определения узкого, каждый рынок в стране индивидуален. Мы каждый день проектируем дома для одной семьи шириной 18 и 20 футов. Изображенный на фото дом для одной семьи отличается чистотой и современным дизайном, который идеально подходит для самых разных покупателей.На первом этаже есть «всякая комната» с ванной; он может стать гостевым люксом, домашним офисом, мастерской или местом встречи детей. Второй этаж — это основная жилая зона, включающая большую кухню для гурманов, столовую, большую комнату, медиа-комнату, домашнюю студию и дамскую комнату. В домашней студии мы можем использовать популярные среди покупателей сегодня элементы дизайна Pinterest и Houzz, в том числе сплошную столешницу над прачечной, стены с классными досками для списков и календарей, а также организованное хранение в кладовой, в котором есть место для крупной бытовой техники.Третий этаж — это личное пространство дома с тремя спальнями и двумя ванными комнатами.
Килмэйн
Этот дом с узким участком, спроектированный для засыпки, наполнен функциями, характерными для более широких домов, такими как спальня на нижнем этаже и гараж на две машины.
План обеспечивает отличный вход, который бросает вызов его узкой ширине.Повсюду помещения соединены между собой, чтобы создать ощущение открытого пространства с обильным естественным освещением. Наклонные стены в семейной комнате максимизируют возможности для размещения окон.
2220 Вашингтон
Наш клиент купил земельный участок в центре Денвера, который был разделен на шесть городских участков шириной 25 футов. В связи с резким ростом цен на жилье по всему Колорадо он подошел к нам с двумя целями: выйти на рынок, пока было жарко, и предложить хорошо продуманный продукт по доступной цене (менее 450 тысяч долларов).Обе эти цели были выполнены при проектировании узких городских домов с заполнением шириной 18 футов. Это позволило нам избежать длительного процесса переклейки для получения более широких партий, что позволило сэкономить на стоимости проекта. Этот дом имеет небольшую площадь, но не ставит под угрозу дизайн. Он предлагает вход для владельца, кладовую, переднее гибкое пространство и несколько вариантов наверху.
Как построить невероятный минималистский дом на узком участке, Сингапур
| Минималистский дом на узком участке, Сингапур © Derek Swalwell |
Если бы у вас была возможность выбрать, какой дом вы бы выбрали? Большой дом с большим двором или маленький узкий дом, зажатый между вашим правым и левым соседом? Думаю, большинство из нас выбрало бы более крупный.Но что, если у вас нет другого выбора, кроме как жить в узком таунхаусе? У вас все еще может быть невероятный современный дом. Посмотрите как.
Минимализм — это все, что вам нужно. Архитекторы из офиса Ong & Ong Pte Ltd. спроектировали этот невероятный минималистский дом под названием 55 Blair Road в Сингапуре.
Глядя на дом с улицы, можно подумать, что это просто еще один местный таунхаус с небольшим задним двором.
При входе вы поражаетесь минимализмом и дизайном интерьера, который на таком небольшом участке соединял 3 этажа и бассейн с деревом.Передняя и задняя винтовые лестницы используются для сохранения минимализма в современных интерьерах, выкрашенных в белый цвет.
Небольшой задний двор, который многие сочли бы бесполезным, превращен в идеальный небольшой бассейн с деревьями, соединяющий главный дом с минималистской алюминиевой кухней. Высокие стены вокруг бассейна давали уединение всему дому. Продуманное световое оформление в ночное время превратит пространство в современную сказку.
Взгляните на этот невероятный минималистский дом и расскажите нам, что вы думаете, или поделитесь с друзьями.
| Спальня минималистского дома на узком участке, Сингапур © Derek Swalwell |
| Винтовая лестница в минималистичном доме |
| Ванная комната в минималистичном доме на узком участке, Сингапур © Derek Swalwell |
| участок | |
| участок | |
| Бассейн в минималистском доме на узком участке, Сингапур © Derek Swalwell |
площадь в минималистском доме на узком участке, Сингапур© Derek Swalwell |
| Бассейн в минималистском доме на узком участке, Сингапур © Derek Swalwell |
| Интерьеры минималистского дома на узком участке, Сингапур © Derek Swalwell |
| Ванная комната в минималистском доме на узком участке, Сингапур © Derek Swalwell |
| Кухня в минималистском доме на узком участке, Сингапур © Derek Swalwell |
© Derek Swalwell
| Бассейн в минималистском доме на узком участке, Сингапур © Derek Swalwell |
| Иллюстрация минималистского дома на узком участке, Сингапур © Дерек Сволвелл |
| Иллюстрация минималистского дома на узком участке 9, Сингапур |
| Иллюстрация минималистского дома на узком участке, Сингапур © Derek Swalwell |
| План этажа минималистского дома на узком участке, Сингапур © Derek Swalwell |
| План минималистского дома на узком участке © Derek Swalwell, Сингапур Swalwell |
| План этажа минималистского дома на узком участке, Сингапур © Derek Swalwell |
9000 plot4![]() |

Это даст возможность реализовать планировку, при которой самые важные помещения получат достаточную освещенность, спальни летом к вечеру успеют охладиться, на кухне не будет жары после обеда от лучей заходящего солнца.

:quality(72)/images/project_projection/25/1496822212MZLNK.png)


Добавить комментарий