Двухкомнатная квартира 40 кв м планировка: фото, 7 вариантов дизайна и планировки
фото, 7 вариантов дизайна и планировки
Кому-то посчастливилось обладать квартирами с внушительной площадью, а кто-то живет в хрущевских тесных квартирках, унаследованных от старшего поколения. Но маленькое пространство — это не повод бросить все, как есть и отказаться от красивого интерьера. Современные подходы к дизайну помещений помогут визуально расширить пространство и сделать жизнь уютной и удобной.
Главное — это грамотно распланировать всю площадь, чтобы выделить место и для отдыха, и для сна, и для хранения вещей, и для санузла. Сложности может добавить не только неправильная форма и тесные комнатушки, но и расположение коммуникаций, которые очень часто переносить нельзя.
Предлагаем вам 5 дизайн-проектов двухкомнатных квартир площадью не более 40 квадратных метров. Идеи с фото интерьеров принадлежат их авторам — дизайнерам с большим опытом работы.
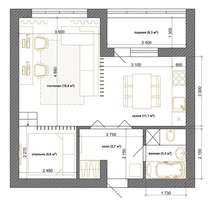
Дизайн-проект «Игра цвета»
Небольшая двухкомнатная квартира с двумя спальнями и кухней.
Одна из спален принадлежит девочке, вторая — взрослая. Просторная кухня и два санузла позволяют всем жильцам свободно перемещаться по квартире, не мешая остальным. Акцент в данном проекте был сделан на удачное и оригинальное сочетание цветов, как для спален, так и для кухни. ремонт предполагается бюджетный, без шика, но с качественными материалами.
Цветовая гамма интерьера предполагается следующая: голубой + золотисто-оранжевый для взрослой спальни, в детской серо-зеленый + розовый, синий + красный в кухне. Приятные детали в виде мелочей на столиках и тумбах придают уют.
Дизайнер, автор проекта: Ольга Черненко
Фотограф: Евгений Кулибаба
Квартира 40 метров в сдержанных нейтральных тонах
Для реализации данного проекта необходима двухкомнатная квартира площадью не менее 40 квадратных метров. Оформление — сдержанно-лаконичное, оттенки нейтральные и неброские. Изначально дизайн создавался как мужской, нейтральный, но с большим количеством мест хранения.
Удобство планировки заключается в ее простоте.
Автор проекта: Катерина Александрова
Квартира площадью 41 кв.метр в скандинавском стиле
Этот дизайн проект квартиры площадью 40 метров был уже реализован в Москве одном из старых домов 1961 года постройки. При ремонте пришлось перепланировать помещение, организовать довольно много зон хранения, присоединить балкон и объединить кухню с одной из комнат, тем самым создав единое пространство кухни-гостиной. А вот для спальни заказчики решили выделить меньше метров, так как не планировали проводить в этой комнате много времени.
Фото: Евгений Гнесин
Дизайнер Наталия Андрианова
Перепланировка типичной двушки 42 метра
Эта двухкомнатная квартира площадью 42 метра имела типовую планировку, однако кардинальных изменений делать не планировалось. Автор проекта лишь немного подправил конфигурацию кухни и санузла, а трансформировать комнаты не стал.
Цветовая гамма выбрана в природных тонах — бежевых, белых и оттенках зеленого. Интерьер данной квартиры предполагает проживание одного человека, но это не делает ее тесной и неудобной.
Автор проекта: Иван Поздняков
Маленькая квартира 39 метров — дизайн-проект
Этот проект предназначен для проживания одного человека — молодой девушки. Кухня объединена с гостиной, создает общее комфортное пространство. Цветовая гамма — нейтральные и естественные оттенки серого и зеленого. Стилевое направление — современный минимализм без лишних деталей. Все системы хранения умело спрятаны или замаскированы.
Дизайнер: Надежда Тавруева
Дизайн маленькой двушки на 40 м²
Этот проект уже реализован в одной из московских квартир площадью 41 квадратный метр. Дом, где находится пространство, был построен в начале ХХ века со всеми вытекающими последствиями: высокими потолками и большими окнами, но при этом с неправильной геометрией.
Раньше в этом здании находились технические помещения, отсутствовали внутренние перегородки, что послужило плюсом: выстроить удобное пространство можно по своему вкусу и предпочтениям. Цветовая гамма данной квартиры довольно спокойная, без вычурности и лишних элементов. Стиль — прагматичный минимализм, подразумевающий удобные и скрытые от глаз системы хранения. После разделения пространство появилась спальня, санузел и просторная кухня-гостиная.
Авторы проекта: Архитектор Светлана Колосовская, декоратор Анастасия Воронина
Дизайн-проект квартиры 42 метра
Небольшая квартира, предназначенная для проживания молодой девушки. Изначально ставилась задача объединить кухню и гостиную в одно общее пространство. Цветовая гамма выбрана для всего интерьера — нейтральная бежевая. В целом интерьер квартиры площадью 42 квадратных метра получился сдержанным и лаконичным, без лишних деталей и элементов, захламляющих общий вид.
Авторы проекта: Студия дизайна интерьера «ZETWIX»
В целом, при желании возможно не только спланировать пространство в новостройке, но и создать уютный и современный интерьер в двухкомнатной квартире в хрущевке площадью 40-42 квадратных метра.
Главное — следовать основным правилам дизайна, не использовать мрачных оттенков и применять знания по визуальному расширению пространства.
Дизайн двухкомнатной квартиры 40 кв м
Студия дизайна и архитектуры Оксаны Третьяковой
ЗАКАЗАТЬ ДИЗАЙН
- Home
- /
- Дизайн двухкомнатной квартиры 40 кв м
Создаем дизайн двухкомнатной квартиры в 40 кв м
Дизайн двухкомнатной квартиры 40 кв м оформляется с учетом новейших технологий и наличия разнообразных декоративных отделочных материалов. Двухуровневый потолок, зонирование, двойное использование пространства — все эти «фишки» прекрасно помогают индивидуализировать каждый в отдельности проект.
Что бы сделать жилье красивым и современным — лучше всего, обратиться за помощью к специалистам. В нашей практике были случаи, когда клиентам для реализации дизайнерских идей было достаточно консультации по созданию интерьера, перепланировке и расстановке мебели.
Планировка квартиры играет большую роль в разработке деталей и общего стиля в целом. Учитывается квадратура, наличие лоджии и остальные преимущества современных жилых помещений.
Дизайн-проект частного дома в поселке Русь
Квартира на Холмогорова
Квартира на Воткинском шоссе
Квартира на Заречном шоссе
Дизайн кухни в Нов. Уренгое
Дизайн санузла и прихожей
Коттедж в г. Воткинске
Маленькая кухонка
Деревянный дом в г.
СарапулеКоттедж в пос. «Игерман»
Коттедж в мкр. «Радужный»
Кафе в стиле Шале
Квартира на Воровского
Профессиональный подход к интерьерному дизайну отличается в первую очередь тем, что здесь полностью исключены стандартные решения. Это очень важно, поскольку лишь немногие владельцы двухкомнатных квартир в Ижевске могут похвастаться удобной планировкой. Чаще всего, типовые двушки представляют собой непрактичные и не приспособленные к современной жизни помещения, и нужно приложить много усилий, чтобы превратить их в качественное жилье, отвечающее потребностям, желаниям и вкусам каждого из домочадцев. Чтобы результат преобразований вас полностью устроил, а затраты сил и средств были минимальными, лучше доверить дизайн двухкомнатной квартиры опытному дизайнеру нашей студии.
Преимущества заказа дизайна в нашей студии
- Профессиональный подход к выбору отделочных материалов, дающий шанс добиться оптимальных эксплуатационных свойств помещения, а также внедрить любые пожелания клиента относительно выбранной стилевой направленности;
- полная 3D визуализация планировки, позволяющая каждому из клиентов сделать осознанный выбор, а также оценить все преимущества и недостатки выбранной организационной парадигмы для одной из комнат;
- предварительная оценка стоимости материалов и работ, дающая возможность реально оценить насколько выгодными будут определенные стили дизайна для одной из комнат.

ЗАКАЗАТЬ ДИЗАЙН
План этажа с 2 спальнями — Etsy.de
Etsy больше не поддерживает старые версии вашего веб-браузера, чтобы обеспечить безопасность пользовательских данных. Пожалуйста, обновите до последней версии.
Воспользуйтесь всеми преимуществами нашего сайта, включив JavaScript.
Найдите что-нибудь памятное, присоединяйтесь к сообществу, делающему добро.
( 1000+ релевантных результатов, с рекламой Продавцы, желающие расширить свой бизнес и привлечь больше заинтересованных покупателей, могут использовать рекламную платформу Etsy для продвижения своих товаров. Вы увидите результаты объявлений, основанные на таких факторах, как релевантность и сумма, которую продавцы платят за клик. Учить больше. )
Средняя площадь квартиры в США: полное руководство — Flex
Средняя площадь недавно построенной квартиры в США по состоянию на 2018 год составляет 882 квадратных фута.
Взгляд на тенденции размеров квартир за последние несколько лет показывает, что средняя квартира постепенно становится меньше.
По мере того, как цены на аренду продолжают расти, растет и стоимость жизни в одиночестве. Квартиры-студии имеют среднюю стоимость квадратного фута 3,19 доллара, а апартаменты с двумя спальнями — всего 1,73 доллара. Поскольку квартиры с одной и двумя спальнями составляют в общей сложности 81% рынка аренды, вполне вероятно, что количество людей, сдающих жилье в одиночку, сокращается.
Когда дело доходит до размера квартиры, нужно распаковать множество данных. Если вам интересно, где вы можете найти самую большую аренду или как развивается рынок аренды, вот некоторые сведения о размере квартир, которые вам следует знать.
Как размер квартиры зависит от плана этажа
Средняя площадь однокомнатной квартиры уменьшается.
В 2018 году средняя площадь недавно построенной однокомнатной квартиры в США составляла 514 квадратных футов.
Это число свидетельствует о значительном среднем снижении на 10,3% в этих жилищах по сравнению со средней площадью 573 квадратных фута, о которой сообщалось в 2008 году. Согласно данным Национального совета по многоквартирным домам, квартиры-студии составляют 11% рынка аренды.
(Источник: RENTCafé)
Средняя квартира с одной спальней на 32% больше, чем средняя студия.
По состоянию на 2018 год средний размер новостройки с одной спальней составляет 757 квадратных футов. В 2008 году средняя недавно построенная квартира с одной спальней составляла 790 квадратных футов, а это означает, что текущий средний размер этих квартир на 30% меньше, чем был тогда. Однако среднее уменьшение размера в период с 2008 по 2018 год составило всего 4,2%. Однокомнатные квартиры составляют 41% рынка аренды.
(Источник: RENTCafé, Национальный совет по многоквартирным домам)
Средняя квартира с двумя спальнями на 34% больше, чем квартира с одной спальней.
Квартиры с двумя спальнями составляют 40% всей арендной платы и имеют средний размер 1138 квадратных футов по состоянию на 2018 год.
Эти квартиры примерно на 381 квадратный фут больше, чем средняя квартира с одной спальней.
Интересно, что план этажа с двумя спальнями увеличился за последнее десятилетие. В 2008 году средняя площадь двухкомнатной квартиры составляла 1132 квадратных фута, что примерно на 0,5% меньше, чем в настоящее время.
(Источник: Национальный совет по многоквартирным домам, RENTCafé)
Как арендная плата зависит от размера квартиры
Средняя стоимость однокомнатной квартиры на 4% меньше, чем однокомнатной.
Согласно данным Apartment Guide, средняя стоимость однокомнатной квартиры по состоянию на июнь 2021 года составляет 1641 доллар, а квартиры с одной спальней — 1711 долларов. Всего за 70 долларов вы можете получить в среднем на 32% больше площади.
(Источник: Путеводитель по квартирам)
Квартира с двумя спальнями стоит на 13 % дороже, чем квартира с одной спальней.
Средняя стоимость двухкомнатной квартиры в США составляет 1972 доллара.
За дополнительные 262 доллара каждый месяц вы можете обменять свою спальню на спальню с двумя кроватями и получить 381 квадратный фут.
(Источник: Путеводитель по квартирам)
Если учесть стоимость аренды квартиры за квадратный фут, то квартиры с двумя спальнями предлагают наилучшее соотношение цены и качества.
Чтобы определить стоимость квадратного фута, просто разделите стоимость аренды на квадратные метры квартиры.
Используя эту формулу, средняя стоимость квадратного фута аренды квартиры с двумя спальнями составляет 1,73 доллара США. Квартира с одной спальней стоит 2,26 доллара за квадратный фут, а квартира-студия — 3,19 доллара./ кв. фут.
Снять двухкомнатную квартиру с соседом по комнате на 40% дешевле, чем снять квартиру-студию.
При равном разделении вы будете платить 986 долларов в месяц за то, чтобы жить в двухкомнатной квартире с соседом по комнате. Это на 655 долларов меньше, чем вы заплатили бы за аренду однокомнатной квартиры самостоятельно.
Если вы учтете, что вам придется разделить расходы на все коммунальные услуги, ваши сбережения возрастут еще больше.
Средний размер квартир становится меньше
В среднем размеры квартир становятся меньше, при этом наибольшее среднее уменьшение площади студий наблюдается в среднем на 10,3% с 2008 года.
Сдаваемые внаем квартиры с двумя спальнями — единственная планировка, площадь которой в среднем увеличилась с 2008 года, хотя это число незначительно, менее чем на 1%.
Но означает ли среднее уменьшение площади в квадратных футах значительное уменьшение жилой площади?
Открытые планировки стали популярны как никогда, поэтому, несмотря на то, что квартиры становятся меньше, они могут казаться такими же просторными. Грамотно подобранная планировка способна сделать даже маленькое пространство максимально комфортным.
Однако хорошо оптимизированная планировка не учитывает заполняемость (подробнее об этом позже).
Средняя площадь квартиры по штатам
Средняя площадь квартиры в Соединенных Штатах составляет 882 квадратных фута, но США — большая страна, поэтому неудивительно, что средний размер квартиры будет колебаться от штата к штату.
Однако вы можете быть удивлены, увидев, в каких штатах обычно самые большие квартиры, а в каких — самые маленькие.
Если вам нужна самая большая квартира, переезжайте в Грузию.
Говорят, что в Техасе все больше, но, видимо, это не относится к размеру квартиры. Грузия лидирует в стране с самой высокой арендной платой, за ней следует ряд других южных штатов.
Посмотрите пять штатов с самыми большими квартирами в среднем.
| State | Average Apartment Size (Sq. Ft.) |
| Georgia | 1019 |
| Alabama | 986 |
| South Carolina | 978 |
| Florida | 957 |
| Mississippi | 954 |
(Source: RENTCafé)
You will find the smallest apartments in Kansas.
В Канзасе средний размер квартир составляет 791 квадратный фут, что является самым маленьким из всех штатов.
Хотя упоминание о небольших квартирах, вероятно, вызывает в воображении образы Нью-Йорка, вы можете быть удивлены, обнаружив, что штат Нью-Йорк занимает пятое место по количеству самых маленьких квартир.
Самые маленькие квартиры в стране не приурочены к одному региону (в отличие от самых больших квартир, которые преобладают на юге). Вместо этого самые компактные прокаты разбросаны по всей стране.
Посмотрите пять штатов с самыми маленькими квартирами в среднем.
| Штат | Средняя площадь квартиры (кв. футов) |
| Канзас 972 10219 281 7920219 New Mexico | 813 |
| Arizona | 823 |
| Illinois | 825 |
| New York | 842 |
(Source: RENTCafé)
Leading the nation in apartment size, средняя квартира в Джорджии площадью 1019 квадратных футов на 22% больше, чем средняя квартира в Канзасе площадью 791 кв.
фут.
Данные ясно показывают одно: если вы ищете просторную квартиру, вы это на юге.
Средняя площадь квартир по городам
Возможно, неудивительно, что аналогичные тенденции проявляются при рассмотрении средней площади квартир в городах по всей территории Соединенных Штатов.
Check out the rest of the rankings for cities with the largest apartments:
| City | Average Size (Sq. Ft.) | ||||||||||||||||||||||||||||||||||||||||||||||||||||||||||||||||||||||||||||||||||||||||||||||||||||||||||||||||
| Tallahassee, FL | 1,038 | ||||||||||||||||||||||||||||||||||||||||||||||||||||||||||||||||||||||||||||||||||||||||||||||||||||||||||||||||
| Мариетта, Джорджия | 1 025 | ||||||||||||||||||||||||||||||||||||||||||||||||||||||||||||||||||||||||||||||||||||||||||||||||||||||||||||||||
| Columbia, SC | 1,006 | ||||||||||||||||||||||||||||||||||||||||||||||||||||||||||||||||||||||||||||||||||||||||||||||||||||||||||||||||
| Decatur, GA | 1,000 | ||||||||||||||||||||||||||||||||||||||||||||||||||||||||||||||||||||||||||||||||||||||||||||||||||||||||||||||||
| Birmingham, AL | 992 | ||||||||||||||||||||||||||||||||||||||||||||||||||||||||||||||||||||||||||||||||||||||||||||||||||||||||||||||||
| Norcross, GA | 991 | ||||||||||||||||||||||||||||||||||||||||||||||||||||||||||||||||||||||||||||||||||||||||||||||||||||||||||||||||
| Gainesville, FL | 990 | ||||||||||||||||||||||||||||||||||||||||||||||||||||||||||||||||||||||||||||||||||||||||||||||||||||||||||||||||
| Атланта, Джорджия | 987 | ||||||||||||||||||||||||||||||||||||||||||||||||||||||||||||||||||||||||||||||||||||||||||||||||||||||||||||||||
| Вирджиния Бич, VA | 973 | ||||||||||||||||||||||||||||||||||||||||||||||||||||||||||||||||||||||||||||||||||||||||||||||||||||||||||||||||
| Henderson, NV | 22222227|||||||||||||||||||||||||||||||||||||||||||||||||||||||||||||||||||||||||||||||||||||||||||||||||||||||||||||||||
| , NV | 2222222227|||||||||||||||||||||||||||||||||||||||||||||||||||||||||||||||||||||||||||||||||||||||||||||||||||||||||||||||||
| , NV | 9|||||||||||||||||||||||||||||||||||||||||||||||||||||||||||||||||||||||||||||||||||||||||||||||||||||||||||||||||
| , 97222222222229 | |||||||||||||||||||||||||||||||||||||||||||||||||||||||||||||||||||||||||||||||||||||||||||||||||||||||||||||||||
| City | Average Size (Sq. Ft.) |
| Seattle, WA | 711 |
| Manhattan, NY | 733 |
| Chicago, IL | 733 |
| Washington, DC | 736 |
| San Francisco, CA | 737 |
| Tucson, AZ | 738 |
| Los Angeles, CA | 771 |
| Glendale, AZ | 781 |
| Phoenix, AZ | 783 |
| Minneapolis, MN | 785 |
(Источник: RENTCafé)
Города с самыми маленькими квартирами есть по всей стране, но не на юге.
Наверное, неудивительно, что города Нью-Йорка и Калифорнии входят в список самых маленьких квартир.
Однако интересно видеть, что другие города в списке разбросаны по всей стране.
Конечно, южные города лидируют в стране по количеству самых больших квартир, поэтому неудивительно, что этот регион не представлен в списке городов с самыми маленькими квартирами.
Сиэтл возглавляет список самых маленьких квартир.
При средней площади 711 квадратных метров квартиры в Сиэтле примерно на 19% меньше, чем в среднем в США, и примерно на 3% меньше, чем квартиры на Манхэттене.
Средняя площадь в квадратных футах на человека
Большая квартира — это одно, но если вы делите свою аренду с членом семьи или соседом по комнате, ваша личная площадь в квадратных футах уменьшается.
Возможно, вместо того, чтобы спрашивать, где найти самую большую квартиру, вам следует задуматься о том, где вы, скорее всего, найдете самые личные квадратные метры. Мы можем определить личную площадь квартиры, разделив площадь квартиры на среднее количество жильцов.
По данным RENTCafe , средняя площадь на человека по стране составляет 526 квадратных футов.
Города с самыми маленькими квартирами не обязательно имеют наименьшую среднюю площадь жилья на человека.
Квартиры в Сиэтле на 19% меньше, чем в среднем по стране, но площадь личных квадратных метров в Сиэтле всего на 10% меньше, чем в среднем. В Сиэтле расположены самые маленькие квартиры в стране площадью 711 кв. футов, а средняя личная площадь жилья составляет 474 квадратных метра. . Между тем, в Чикаго арендаторы пользуются около 517 кв. футов личного пространства, что всего на 1,7% меньше, чем в среднем.
В Портленде, штат Орегон, городе, где площадь квартир обычно на 13% меньше, чем в среднем по стране, арендаторы имеют в среднем 531 кв. фут личного пространства. Это примерно на 1% больше, чем у среднего арендатора в США.
Города с самыми большими квартирами, как правило, имеют жилую площадь ниже средней.
В Таллахасси, штат Флорида, средняя площадь квартир составляет 1038 кв. футов, и в каждом доме проживает в среднем 2,33 человека.
Таким образом, средняя площадь жилья на человека в Таллахасси составляет всего 445 квадратных метров, что примерно на 15% ниже, чем в среднем по стране.
Мариетта, Джорджия В среднем на семью приходится 2,35 человека. Если учесть средний размер арендной платы в 1025 кв. футов, на каждого человека приходится всего 436 кв. футов личного пространства. Это примерно на 17% меньше, чем в среднем по стране, и на 8% меньше, чем в Сиэтле, городе с самыми большими квартирами.
В Колумбии, штат Южная Каролина, квартиры имеют среднюю площадь 1006 кв. футов и вмещают 2,21 человека. Это составляет 455 кв. футов личного пространства, что на 13% меньше, чем в среднем по стране.
Эта тенденция сохраняется, если сравнить данные по остальным 10 городам с самыми большими квартирами в стране.
Статистика самых быстрорастущих городов США
Мы сравнили данные Бюро переписи населения США с данными RENTCafé, чтобы сравнить средний размер квартир в 15 самых быстрорастущих городах США.
Данные сравнивают города, которые лидировали в стране по приросту населения в период с 2010 по 2019 год.
| City | Average Apartment Size (Sq. Ft.) | Average Rent | Persons per Household | Nearest Big City |
| Buckeye, AZ | 1,409 | $1,473 | 3.36 | Phoenix, AZ |
| South Jordan, UT | 1,014 | $1,389 | 3.42 | Salt Lake City, UT |
| Murfreesboro, TN | 1,005 | $1,184 | 2.63 | Nashville, TN |
| Meridian, ID | 999 | $1,422 | 2.78 | Boise, ID |
| Franklin, TN | 998 | $1,527 | 2.59 | Nashville, TN |
| Fort Myers, FL | 993 | $1,333 | 2. 52 | N/A |
| Goodyear, AZ | 956 | $1,450 | 3 | Phoenix, AZ |
| Mount Pleasant, SC | 947 | $1,516 | 2.54 | Charleston, SC |
| Frisco, TX | 941 | $1,502 | 2.94 | Dallas, TX |
| McKinney, TX | 937 | $1,361 | 2.89 | Dallas, TX |
| Irvine, CA | 921 | $2,424 | 2.7 | Santa Ana, CA |
| Cedar Park, TX | 919 | $1,333 | 3.06 | Austin, TX |
| Conroe, TX | 919 | $1,137 | 2.67 | Houston, TX |
| Round Rock, TX | 913 | $1,253 | 3.16 | Austin, TX |
| New Braunfels, TX | 894 | $1,247 | 2. 72 | Сан-Антонио, TX |
(Источник: RENTCafé, Бюро переписи населения США)
Площадь квартир в каждом из 15 самых быстрорастущих городов превышает средний показатель по стране (882 квадратных фута).
Понятно, что арендаторы предпочитают города, в которых больше места. Buckeye, AZ лидирует со средней площадью аренды 1409 кв. футов, что на 37% больше, чем в среднем по стране. Нью-Браунфелс, штат Техас, имеет наименьшую площадь среди этих городов, но все же его размеры на 1% больше, чем в среднем.
14 из 15 самых быстрорастущих городов США расположены на окраинах крупных городов.
Судя по этим данным, арендаторов, возможно, тянет в пригород в поисках более просторных жилых помещений.
Из 15 наиболее быстрорастущих городов в 12 проживает больше среднего числа человек на домохозяйство.
Среднее количество человек на домохозяйство с 2015 по 2019 год составляло 2,62 человека. Только в 3 из перечисленных выше быстрорастущих городов есть домохозяйства с меньшим числом жителей, чем в среднем.
Могут ли большие жилые площади и большие домохозяйства быть частью привлекательности этих городов?
(Источник: Бюро переписи населения США)
6 из 15 самых быстрорастущих городов расположены за пределами Далласа, Нэшвилла или Феникса.
Вероятно, это связано с тем, что во всех трех этих городах в последние годы наблюдался благоприятный рост рабочих мест.
Имея это в виду, давайте посмотрим, что мы узнаем, сравнивая размеры квартир в этих крупных городах с квартирами в быстрорастущих пригородах.
Для Финикса рассмотрим пригороды Бакай и Гудиер. Для Далласа мы можем сравнить Фриско и МакКинни, а для Нэшвилла Франклина и Мерфрессборо.
| City | Average Apartment Size (sq. ft.) | Average Rent |
| Phoenix | 804 | $1,252 |
| Dallas | 848 | $1,276 |
| Нэшвилл | 889 | 1420 долларов |
Если вам нужно больше места, переезжайте в пригород.

Возможно, неудивительно, что, когда мы анализируем крупные города в таблице выше по сравнению с их пригородами, пригороды неизменно предлагают большие квартиры.
Квартиры в Бакай, штат Аризона, примерно на 37% больше, чем в среднем по стране, и на 43% больше, чем в Финиксе, ближайшем крупном городе. В другом пригороде, Goodyear, квартиры примерно на 15% больше, чем в среднем в Фениксе.
Между тем, квартиры во Фриско, штат Техас, на 10% больше, а квартиры в МакКинни примерно на 11% больше, чем в Далласе.
Та же тенденция характерна и для пригородов Нэшвилла. Квартиры во Франклине и Мерфрисборо примерно на 11% больше, чем в соседнем Нэшвилле.
Bottom Line
За последние несколько лет средняя площадь квартиры уменьшилась. Это может быть связано со многими факторами, включая рост цен на аренду, стоимость строительных материалов и множество других причин.
При таком очевидном росте пригородов вокруг крупных городов будет интересно посмотреть, как изменятся тенденции в течение следующих нескольких лет.


0003
52
72
Добавить комментарий