Дом на участке шириной 24 метра: Дом на участке шириной 24 метра
Комфортная жизнь на узком участке
Проект дома для узкого участка всегда будет выполняться с рядом ограничений. Но сегодня уже существует несколько отработанных принципиальных схем такой планировки, которые обеспечат комфортное проживание несмотря на вытянутую форму.
Как планировать расположение дома
Если дом для узкого участка имеет ширину не более 6-8 метров и площадь до 120 м.кв, то его форма будет вытянутой. Конечно, предпочтительно, чтобы дом был мансардным или двухэтажным.
Расположенные в длинных стенах такого дома окна не получат достаточно света, если будут «упираться» в соседний дом. Соответственно, для лучшего естественного освещения нужно по максимуму использовать площадь благоприятно ориентированных коротких стен – южной, северной (если вход расположен стандартно к северу).
Как правило, в этом случае на максимально освещенные пространства ориентируют основные помещения.
В том случае, если создаются проекты для расположения дома в глубине участка, то его принципиальная планировка будет несколько иной. Тогда терраса и гостиная ориентируется на площадку, вынесенную впереди дома. Максимальное удобство будет обеспечено в том случае, если вход в здание будет размещен в углу — так он не будет занимать площадь главного фасада, где расположатся кухонные окна. А расположение входа на длинной боковой стороне позволит избежать длинных коридоров при прохождении в центральную часть дома.
На таких участках дома всегда проектируются
для стесненных условиях, поэтому имеет смысл планировать его по вертикали.
Т.е.
желательно воплощать в жизньпроекты домов с подваломили цокольным этажом. Это
пространство зачастую используют для размещения технических помещений —
кладовых, прачечных, котельных, что позволит освободить место на основных
этажах.
Использование специальных приемов
Составляя планировку, следует учитывать определенные, уже проверенные «хитрости»:
- для увеличения площади окон в боковых стенах нестандартные проекты домов предусматривают на фасаде выступы, эркеры, скосы и врезы. Это позволит не только получить больше света, но и закрыться от соседей;
- для того, чтобы скрыть террасу, используют декоративные стенки. Либо же проекты домов с террасой предусматривают ее расположение в корпусе здания;
- чтобы внутри дома было максимальное количество света, внутренних стен в нем должно быть минимум, а для разделения пространства используют раздвижные или же стеклянные перегородки. Окна в этом случае выполняют максимально высокими;
- проект дома с мансардой обязательно включает в себя мансардные окна, а не люкарны — и для поступления большего количества света, и для защиты от соседского любопытства;
- сэкономить
место на участке позволит нависающий второй этаж, превышающий по площади
первый.
Под таким вторым этажом нередко располагают террасу.
Экономические аспекты строительства
Построить удлиненный дом на узком участке будет несколько дороже по сравнению с возведением квадратного сооружения. Ведь общий периметр стен удлиненного дома будет больше (при той же площади): удлиненный дом при площади 100 кв. м будет иметь размеры стен 16,6х6 метров, а квадратный — 10х10 м. А значит, разница в общем периметре и в затратах на материал будет составлять около 10-15%, а в случае двухэтажного строительства — еще больше. Необходимо также учитывать, что энергосберегающие качества узкого дома хуже, чем у квадратного. Наиболее выигрышный вариант может получиться только в случае, если длинная стена ориентирована на юг, а северная — полностью закрыта. К удорожанию строительства приведет и необходимость постройки подвала или возведения цокольного этажа.А вот возведение блокированных
домов с общей стеной считается выгодным. Такой дом будет экономичнее отдельно
стоящего квадратного на 8%, а длинного — на 18%.
В этом случае также можно не
утеплять внутреннюю длинную стену. Кроме того, блокированные дома эффективнее
отдельно стоящих и по энергосберегающим качествам — на 25-35%. Учитывая все эти
нюансы, можно добиться неплохой экономии без потери эстетичности и комфорта
сооружения.
На нашем сайте в категории «ДЛЯ УЗКИХ УЧАСТКОВ
undefined
» вы сможете найти более 80 соответствующих проектов, и их число постоянно растет!Смотрите, также, какой узкий дом построили в Японии: комфортнее многих наших квартир и домов!
Дом на участке шириной 12 метров. Проекты домов для узких длинных участков
Расстояние от границы участка
Дом на узком участке, должен соответствовать техническим условиям, касающимся расположения здания относительно границ земельного участка. Стена с окном или дверью не может быть расположен ближе, чем на 4 м от границы.
От «глухой» стены до границы должно быть не менее 3 метров.
На расстоянии не менее 1,5 м от границы допускается расположены таких архитектурных элементов, как карнизы, балконы, козырьки над входом, террасы или наружные лестницы.
В принципе, в крайнем случае, расположить дом можно и ближе, чем 1,5 м от границы, если это учтено в расчетах архитектора. Но даже в этом случае дом должен быть отнесен не менее чем на 3 м от построек на соседнем участке.
Есть ситуации, когда дом строят прямо на границе участка. Это может быть определено местным планом землепользования. Регламент допускает также возможность строительства дома непосредственно на границе участка, если на соседнем участке уже находится здание со стеной, расположенной на разграничивающей линии. В этом случае, однако, новый дом должен соответствовать определенным требованиям. Основные из них:
- он должен придерживаться существующего здания по всей длине прилегающей стены,
- иметь высоту не больше, чем у примыкающего здания.

На что обращать внимание, покупая нестандартный узкий участок?
Узкие, трудные для застройки участки, конечно же, дешевле, чем квадратные земельные наделы. Тем не менее, цена участка не должна быть единственным критерием при выборе земли. Существуют и другие важные факторы, которые необходимо читывать.
- Расположение относительно сторон света
Как мы уже упоминали выше, стена с окном не может быть расположена ближе, чем на 4 м от границы участка. Это означает, что если земельный участок направлен более узкий частью на улицу, мы, скорее всего, должны будем отказаться от остекления широких фасадов. Нам останутся только окна на узких фасадах, один из которых будет главным.
Выбирая участок, стоит обратить внимание на то, как он ориентирован относительно сторон света. Если все окна дома будут выходить только на восток и запад, помещениям дома будет не хватать солнечного света и тепла.
Если окна будут выходить на южную и северную сторону, стоит в северной части здания запланировать помещения, которые не требуют большого количества света – ванную, кухню, котельную.
- Инженерно-геологические условия
В поисках участка необходимо, также, внимательно присмотреться к его геологическим условиям. Дома на узких участках нередко бывают многоуровневыми. В них кроме обычных этажей и мансарды обычно предусматривается цокольный этаж или подвал, в который помещают все техпомещения, оставляя при этом всю надземную территорию для жилых комнат.
ПРОЕКТ ЗАГОРОДНОГО ДОМА С БАССЕЙНОМ В ЦОКОЛЬНОМ ЭТАЖЕ S2-360Для того чтобы точно знать, можно ли на определенном участке построить дом с надежным и сухим подвалом, нужно провести инженерно-геологические изыскания, которые дадут исчерпывающую информацию о водно-грунтовом состоянии земли.
К сожалению, строительство подвала может увеличить общую стоимость строительства дома на 20%. Относительно недорогим цокольный уровень получается при строительстве на участках с ярко выраженным уклоном. В данном случае сами природные условия обуславливают определенное архитектурное решение.
Прежде чем купить земельный участок обязательно поинтересуйтесь у соседа, который имеет дом с подвалом, не заливает ли периодически его подвал водой. Но при изучении ситуации не забывайте, что на соседних участках могут образовываться разные водно-грунтовые условия. Кроме того, нужно обязательно узнать, насколько серьезно соседний дом защищен от подтопления при помощи дренажных систем, отливов, геометрии строения и т.д.
Проекты домов для узких земельных участков
Прежде чем купить проект дома для узкого участка , нужно обязательно проверить местный план землепользования. Из соответствующих документов мы узнаем, какой именно дом мы можем построить на имеющемся участке.
Если вы являетесь владельцем узкого участка и собираетесь построить на нем дом, используя типовой проект, имейте в виду, что подойдя основательно к вопросу выбора архитектурной разработки, вы сможете возвести достаточно комфортное и просторное жилище, оставив при этом место для удобной террасы и небольшого сада.![]()
Основным параметром при выборе проекта является ширина фасада здания. Узкие участки бывают разными по площади, соотношению сторон, правильности геометрии. Дома для узких участков сегодня проектируются в огромном ассортименте. Они могут быть как одноэтажные, так и мансардные или с двумя полноценными этажами. Среди них есть классические усадьбы, лаконичные дачные постройки, модные современные коттеджи.
На что нужно обращать внимание, выбирая проект дома для узкого участка?
Расположение окон очень важно с точки зрения удаленности от границы земельного участка. Помните, что каждый проект дома должен быть подвергнут адаптации к местным условиям. На этапе подготовки проекта часто корректируются оконные проемы, чтобы здание можно было разместить на вытянутом участке.
Планируя изменения в проекте, обратите внимание на то, что, уменьшив площадь окон на одном фасаде, нужно компенсировать недостаток остекления, используя другие фасады. Согласно техническим условиям площадь окон в жилых помещениях должна составлять не менее 1/8 площади пола.
Если предполагается, что дом будет расположен всего в нескольких метрах от границы участка, при этом он будет обращен к заезду во двор узкой частью, значит вход может быть только в боковом узком фасаде. Это не самый распространенный вариант размещения входной зоны, зато именно такое решение позволяет очень экономично использовать площадь под вход.
Если участок узкий, но длинный, на нем можно возвести удобный одноэтажный дом. Однако если имеется совсем небольшая территория, чтобы получить комфортное жилище для семьи, нужно строить коттедж с мансардой или классический двухэтажный загородный дом.
Если построить на маленьком участке одноэтажный дом, его очень сложно будет зонировать и качественно инсолировать. Кроме того, в нем нельзя будет обустроить просторную гостевую зону открытой планировки. А в двухэтажном строении зонирование осуществляется просто по этажам, и даже с минимальным количеством квадратных метров планировка будет рациональной и функциональной.
Дом на узком участке должен иметь простую форму, без архитектурных излишеств.
Но это не означает, что он обязательно должен быть простым и неинтересным по дизайну. Так, например, за счет конфигурации кровли можно придать зданию оригинальный и привлекательный вид. Вход в дом стоит подчеркнуть красивым крыльцом, выполненным в том архитектурном стиле, который взят за основу. Для оптического увеличения гостиной используется открытая терраса. Изящные балконы и мансардные окна сделают облик здания более завершенным и респектабельным.
Коттедж, построенный на узком участке лучше декорировать облицовкой светлых тонов. Помимо эффекта зрительного увеличения объема здания, светлая отделка обеспечивает и другие плюсы – она всегда выглядит свежо и опрятно, и органично сочетается с зеленью сада.
Если дом будет развернут широким фасадом к улице, его обустройство будет гораздо проще. В этом случае не будет особых ограничений в расположении окон, и помещения получат достаточно света, он будет более гармонично смотреться, и к нему при необходимости можно пристроить боковой гараж.
Здание, направленное к улице узким фасадом довольно сложно дополнить прилегающим гаражом. Фронтальный фасад для гаражной пристройки в большинстве случаев не подходит, так как он отдается под входную зону. Если пристроить гараж сбоку – здание будет расширено, и необходимое расстояние от границы земельного участка не будет соблюдено. К тому же гараж закроет стену, в которой могли бы быть окна. Остается только задний фасад. Однако для заезда в него нужно будет прокладывать вдоль всего дома дорогу, которая займет драгоценное пространство придомовой территории.
Существует еще вариант подземного гаража. Это наиболее оптимальный выход из ситуации. Но здесь нужно помнить, что подземные конструкции нельзя сооружать на участках со слабым грунтом или высокими грунтовыми водами. И еще – подземный гараж требует наличия достаточно длинного и пологого заезда, для которого тоже нужно место.
Поиск в каталог поможет вам быстро и удобно найти проект дома для узкого участка соответствующий вашим пожеланиям.
Среди проектов домов для узких участков есть, например, компактные частные дома с гаражом или мансардные дома для узкого участка, узкие с плоской кровлей и террасой. Проекты узких домов можно также отсортировать вначале по дате добавления или популярности. В 2018 году наш каталога пополняют новые, интересные проекты домов для узких участков самых различных планировок. Просмотрите планы проектов домов для узких участков, и вы убедитесь, что они такие же удобные, функциональные и красивые как и дома стандартных форм.
Планировка проектов домов для узких участков: особенности
Схемы домов для удлиненного участка имеет ряд индивидуальных особенностей:
- Одна и его стен не имеет окон, чтобы дом можно было максимально приблизить к границе земельного участка;
- Вдоль продольных стен стараются размещать хозяйственные и технические помещения, тогда гостиную и спальни можно расположить в торцевых зонах дома с хорошим освещением.
Дома для узких участков (фото, эскизы размещены в данном разделе) в некоторых случаях предполагают планировку, где вход в дом может быть, как с боковой стороны, так и с фронтона, что позволяет удобно разместить дом на участке узком не только в глубину, но и в ширину.:quality(72)/images/project_placement/594/1468503560KKYMX.png)
Для оптимального использования длинной территории лучшим решением будет «прижать» дом к границе участка, на которую падает тень, максимально освободив участок перед домом. Если участок выходит на шумную дорогу, строение стараются разместить в глубине участка, закрыв частный дом от дороги зелеными насаждениями. В этом случае гараж, скорее всего, удобнее разместить у фронтальной границы участка, чтобы подъезд к нему не занимал большую часть территории.
Планировка домов для узких участков, размещение дополнительных построек и размещение всех инженерных систем (полив участка, скважины, септик, освещение территории) необходимо продумать заранее, чтобы обеспечить их удобную эксплуатацию. Переделка во время строительства приведет к увеличению сметы расходов.
- Разделить его на зоны с помощью арок, шпалер, зеленых насаждений. При этом нужно следить, чтобы эти зоны были полуоткрытыми, не полностью изолированными друг от друга, иначе узкая территория превратится в совокупность маленьких, тесных «уголков».

- Проложить извилистые дорожки, тогда прогулка по маленькому саду будет длиннее. На каждом повороте извилистой тропинки будет открываться новый вид на сад.
- Сажать все зеленые насаждения группами, в треугольниках, которые образуют извилистые дорожки. Иначе, деревья, высаженные в ряд вдоль длинной стороны, сделают участок визуально еще длиннее.
Как видите, удлиненный участок скрывает множество интересных способов его обустройства, а мы готовы предложить вам по среднерыночной цене множество не менее интересных вариантов коттеджей для этих участков популярных среди клиентов в 2018 году. За отдельную стоимость можно заказать дизайн домов для узких участков и ряд .
Высокая стоимость земли, тенденции к уплотнению и прочие факторы сделали узкие наделы под застройку частым явлением. Впрочем, именно благодаря их распространенности проекты домов для узких участков сегодня не проблема. Разумеется, в постройке жилища на участке вытянутой формы есть свои тонкости.
Что такое «узкий участок»?
В эту категорию входят участки, имеющие ширину 15-17 метров. Минимально возможная ширина участка под застройку составляет 10 метров. С учетом всех строительных и противопожарных норм — таких как ограничение дистанции до изгороди, расстояния до соседнего дома и прочих — на сам дом площади остается всего ничего. И выходит, что строение придется делать узким и длинным, как контейнер. Но не так страшен черт, как его рисуют.
Современные проекты узких домов и домов для небольших участков отнюдь не предполагают, что жилище будет иметь унылый «барачный» вид. Задействовав принципы эргономичности, на выходе можно получить очень симпатичный и при этом весьма вместительный домик. Например, в стиле шале (деревенские домики с сильно выступающими карнизами крыши). А фахверковые дома выглядят так, как будто только что сошли со страниц туристического путеводителя по Старой Европе. Особенно если тщательно продумать ландшафтный дизайн участка. Кстати, грамотный ландшафтный дизайн легко решит проблему вида из окон, ведь на небольшом земельном наделе существует недостаток приватности.
Уютный дом на узком участке. Основные принципы
Приобретая проект дома для узкого участка, важно проконсультироваться со специалистом, который поможет учесть противопожарные разрывы, все необходимые дистанции между постройками. Архитектор трезво оценит все особенности участка, подскажет, как минимизировать негативные аспекты и наиболее полно использовать позитивные.
Предпочтительно, когда торцевые стены дома можно сориентировать на восток и запад. Этот прием обеспечит равномерную инсоляцию жилых помещений в течение суток. Хорошо, если северной стороной участок примыкает к дороге. Тогда появляется возможность разместить в северной зоне вход и гараж, выстроив гостиную на солнечной южной стороне. Если подъездная зона расположена на юге, то дело несколько осложняется.
Как правило, в целях экономии места проекты домов для маленьких участков предполагают строительство двухэтажного жилища или дома с мансардой. Это оптимальный вариант, позволяющий сэкономить дефицитное место.
Исключение — маленькие дачные домики, не предполагающие постоянного проживания в них.
На первом этаже двухэтажного дома можно расположить гостиную и все хозяйственные помещения: санузлы, гардеробные и так далее. На втором — спальни и иные жилые комнаты. И, конечно же, очень важно грамотно спроектировать помещения. Необходимо помнить, что комната, чья длина превышает ширину вдвое, кажется неуютной.
Не лишним будет продумать интерьер дома, построенного на узком участке. Важно, чтобы мебель и техника не загромождали пространство, не сужали его визуально. Хотя, конечно же, здесь все зависит от индивидуальных вкусов и фантазии владельца.
Подводя итог…
Можно сказать, что покупка узкого участка — это не приговор. Качественный архитектурный проект плюс консультация грамотного специалиста и плюс продуманный ландшафтный дизайн — рецепт, который поможет построить уютный и красивый дом даже на самом сложном земельном наделе.
Цены за землю с каждым годом все выше и выше.
Да и сам процесс строительства дома недешевый. Поэтому в последнее время большой популярностью пользуются длинные и узкие участки. Они имеют свои преимущества и могут комфортно использоваться владельцами. Только вот прежде чем построить дом, нужно составить правильный проект такого дома. Ведь именно с проекта начинается все строительство. Без перечня таких документов никто не даст разрешение на строительство.
Но как же сделать все правильно? Такие узкие участки не являются классическими в нашей местности. Поэтому важно все разместить так, чтобы эксплуатация была простой и комфортной. И это не значит, что постройка будет напоминать длинный барак, некрасивый и неудобный. Даже на таком участке можно сделать оригинальное и дизайнерское строение. Проект составляется практичным, красивым вместительным. Для водителей подойдет проект дома для узкого участка с гаражом, что важно. Мы рассмотрим особенности узких домов, а также примеры разных проектов домов.
Узкие участки — характеристики и особенности
Несмотря на свою необычность, узкий участок имеет свои преимущества и его можно правильно обыграть.
Большинство подобных проектов составляются вместительными и привлекательными. Главное, найти хорошую фирму, которая выполнить все работы. Узкий дом будет иметь полноценные комнаты, которые нужны для проживания средней или большой семьи. Просто их планировка будет немного иной. Существуют несколько принципов и особенностей, которых придерживаются при создании планировки. Они следующие:
- Так как дом узкий, то большим его не назовешь. Вширь, естественно, его не расширишь, поэтому для увеличения используется пространство что вверху. Вот почему дома на узких участках делают с несколькими этажами. Еще одна хитрость — мансардный этаж, который утепляется. При такой планировке недостаток не будет ощущаться.
- Помещения, что внутри, можно расширить путем создания цокольного этажа. Чтобы в нем было комфортно пребывать, следует установить несколько окон, которые будут служить источником естественного освещения.
- Дабы выгодно использовать естественное освещение, и конструкция не была слишком темной, в проекте учитывается местность и особенности ландшафта.
Дом следует разместить так, чтобы его торцевые стены были направлены на восток и запад. Тогда лучи солнца будут освещать комнаты по всей длине. - Еще один способ рационально использовать доступное пространство на участке, крышу конструкции можно сделать по типу шале. Ее особенность в том, что она имеет длинные скаты, которые отходят от дома на несколько метров. Для чего она нужна? Рядом с постройкой можно разместить прекрасную террасу по всей длине и с каждой стороны. Будет приятно отдыхать с семьей и друзьями на свежем воздухе.
Обратите внимание! Что можно назвать узким участком? Это территория, ширина которой не превышает больше 25 м.
Если готовые проекты домов для узких участков составлены с учетом большинства этих требований, то можно быть уверенным, что ощущать дискомфорт от проживания в узком доме вы не будете. Наоборот, все недостатки можно компенсировать и выгодно обратить в свою пользу. Коттеджи, которые размещены на территории узкого типа, имеют несколько своих особенностей:
- Обладают вытянутым планом.

- Их фронтоны обязательно направлены в сторону улицы.
- Конструкция имеет одну или две глухих стены.
- Окна располагаются на той стороне, которая более освещена. Окон немного больше, чем у обычного дома. Идеальный, но не самый дешевый вариант — использование панорамных конструкций. Они не только позволяют солнцу больше освещать помещение, но и выглядят очень красиво и богато.
- Проект может включать в себя создание эркеров, мансардных окон и окон второго света.
- Как упоминалось выше — желательно наличие цокольного этажа. Это прекрасное место для кладовой, тренировочного зала, комнаты отдыха, котельной и т. д.
- Над террасой может нависать второй этаж помещения.
- Наличие внутри удобной, небольшой лестницы, ведущей на второй этаж.
Что дает использование подобных хитростей в создании проектов домов для узких участков? Это позволит визуально увеличить пространство внутри, сделать дом светлее, уютнее, сделать достаточно жилых помещений.
Получившийся дом будет комфортный, удобный и презентабельный.
Выбираем проект
Есть два способа, получить проект для дома. Сделать его самостоятельно никак нельзя, ведь работа требует профессионального вмешательства. Итак, чтобы иметь проект дома, требуется обратиться к специальной компании, занимающейся этой работой. Сделать у них проект можно по индивидуальному заказу, с учетом всех особенностей ландшафта, местности и собственных пожеланий, а можно выбрать из уже готовых проектов. Второй вариант обойдется дешевле, но не всегда можно найти подходящий вариант.
Найти проекты для узких участков несложно. Есть дома на любой вкус и цвет, а также доступный бюджет. Можно создать одноэтажные дома, двухэтажные, имеющие мансарду и террасу, гараж. Планировка и форма тоже может быть самой разнообразной. При строительстве все особенности рельефа, местности и объекты учитываются. То же касается и желания владельцев.
Мы рассмотрим несколько видов проектов на узком участке, которые могут быть созданы.
Они следующие:
- конструкция на прямоугольном участке;
- конструкции, совмещенные с гаражом;
- дом американского типа;
- постройки с мансардой.
Рассмотрев их, можно определиться с подходящим выбором для себя.
Конструкции для участка прямоугольного типа
Если доступный участок является прямоугольным, то проект конструкций, размещенных на них, включает в себя наличие второго этажа с мансардой. В случае когда второй этаж создается больше, чем первый, то появляется возможность сэкономить много свободного пространства. Если стены будут выходить на соседский дом или забор, то делать в них много окон не стоит. Это поможет скрыть жильцов от посторонних глаз соседей. Да и естественное освещение будет небольшое, так как все загораживает соседский дом. Луше сэкономленные средства использовать эффективней, создав панорамное остекление в месте, где света больше.
Что касается окон, то их для прямоугольного дома выбирают большими.
Это визуально увеличит пространство, да и свет будет проникать побольше. Есть способ увеличить окна, создав откосы и выступы. Существуют и другие нюансы, которые важно учитывать при создании проекта узкого дома на прямоугольном участке:
Ниже находится пример проектирование дома с гаражом.
Обратите внимание! Для узких участков площадь основания уменьшается, а сама конструкция поднимается ввысь. Поэтому на таких участках обычно находятся двухэтажные дома, или конструкции с жилой мансардой. Благодаря этому дом можно сузить до 7 м, без потерь полезного жилого пространства.
При расположении участка с запада на восток, дом нужно установить его широкой стороной на север. В таком случае придомовая площадка будет затеняться строением. Террасу лучше разместить с южной части. А когда территория ориентируется с севера на юг, то конструкцию нужно расположить дальше к северу. За домом устраивается баня. Дорога к зданию делается согласно ширины колеи автомобиля.
На фото ниже есть пример готового дома, который построен на очень узком участке.
Пусть такая конструкция выглядит необычно, но все же позволяет комфортно проживать внутри большой семье.
Дома американского типа на узком участке
Некоторые районы в Америке имеют планировку, при которой дома располагаются практически вплотную друг к другу. Участки хоть и узкие, но дома строятся комфортабельными. Это большие строения с двумя этажами. Обычно габариты американского дома 6х12 м. Пример такого проекта дома для узких участков на фото:
Первый этаж полноценный, включает в себя все необходимые комнаты. Это:
- кухня;
- санузел;
- холл;
- 3 комнаты, которые могут использоваться для разных целей. Все зависит от владельца. Это и кабинет, и гостиная, и спальня, и т. д.
На втором этаже место для небольшого холла и двух больших комнат. Многие на втором этаже создают душевую, кухню и балкон. Правда, это не стандарт, проект может быть сделан по-разному. Но на его примере можно убедиться, что места внутри полно.
Дома с мансардой на узком участке
Мансардное помещение позволяет экономично использовать полезное пространство. Это то, что нужно, для узких домов. Есть проекты с длиной дома в 17 м, а шириной 5 м. Первый этаж делается высоким, благодаря этому создается ощущение простора у тех, кто находится внутри дома. Крыльцо пристраивается к торцевой части конструкции. А если сделать высокую крышу мансарды, то внутри не будет ощущаться недостаток жилых метров.
В самой мансарде можно сделать полноценный этаж, который будет оборудован душевой кабиной, спальными местами, уголком для отдыха. Все зависит от потребностей владельцев. Если какой-то комнаты будет недоставать, то ее можно сделать в мансарде. Это может быть спортивный зал, кабинет, зона для игр детей и т. д.
Проект такой постройки на узком участке должен включать в себя целый ряд работ по созданию теплоизоляционного, гидроизоляционного и звукоизоляционного слоя. Так как потолок и является крышей, то тепло будет уходить быстро.
Именно поэтому нужен толстый слой утеплительного материала. А осадки могут испортить как сам утеплитель, так и все элементы внутри. Вот почему так нужна качественная гидроизоляция. Материал для кровли выбирается мягким, например, битумная черепица. Ведь если использовать профнастил или металлочерепицу, то падающие капли дождя не будут давать насладиться отдыхом внутри.
Заметка! Для качественного освещения внутри мансарды потребуется наличие нескольких мансардных окон.
Ландшафтный дизайн узкого длинного участка
Проект включает в себя не только чертежи и дома и расположение комнат внутри. Это целый комплекс, в котором указаны и другие детали, касающиеся всей территории. Это и хозяйственные постройки, и система коммуникаций, и особенности ландшафтного дизайна.
Не стоит забывать о септике, наличии скважины, гараже. Чтобы оформление было эстетически правильным, нужно придерживаться следующих хитростей:
- Узкий участок делится на несколько отдельных зон.
Это можно сделать посредством арок, кустов, деревьев и шпалер. При этом изолировать зоны не нужно. Так можно избежать превращение узкого участка в несколько небольших частей. - Вместо прямых садовых дорожек, на узком участке лучше разместить извилистые. На каждом повороте можно увидеть красоту и особенности нового участка, идущего после.
- Растительность (деревья, кусты, цветы) высаживают целыми группами, формирующие треугольник. Они размещаются на территории так, чтобы впоследствии образовывались зеленые дорожки.
- Не стоит забывать и об элементах декора, таких как скульптуры, небольшие фонтанчики. А также следует грамотно использовать освещение, чтобы акцентировать внимание на определенном участке.
Следуя таким советам, можно получить полноценный дом, удовлетворяющий потребности всех членов семьи.
Заключение
Проекты домов для узких длинных участков могут быть самыми разнообразными. Если у вас такой вид территории, не стоит унывать.
Ведь существуют разные приемы, как нивелировать все недостатки узкого участка. Дом получится красивым, удобным и просторным. На видео можно увидеть примеры проектов домов для узких участков.
В портфолио на нашем сайте можно найти много готовых домов, реализованных по таким проектам. Заказчик может выбрать один из них, или же заказать индивидуальный проект готового дома. Узкий участок превратится в настоящий райский уголок благодаря мастерству наших архитекторов. Создавая индивидуальные проекты домов для узких участков, они всегда учитывают пожелания клиентов, выясняют их эстетические предпочтения.
На каждом этапе работы проект согласовывается с заказчиком, при необходимости вносятся поправки. Наша задача – как можно эффективнее использовать участок земли и построить на нем дом, в котором просторно и уютно будет жить целой семье. Воспринимайте свой нестандартный участок, как возможность иметь самый оригинальный и атмосферный дом.
Особенности домов на узких участках
Проекты домов и коттеджей для узкого участка предполагают использование для строительства нескольких стандартных приемов.
Благодаря этим приемам дом, построенный на узком клочке земли, будет просторным и комфортным для проживания. Одна из характерных особенностей таких домов – это то, что на боковых стенках такой постройки отсутствуют большие окна. Благодаря этому обитатели дома будут защищены от любопытных взглядов соседей и прохожих, а их личная жизнь изолирована и предоставлена только им самим.
Чтобы в таком здании не возникло ощущение некоторой замкнутости, маленького пространства и тесноты, архитекторы проектируют в нем много веранд, террас и балконов. Такие открытые помещения компенсируют маленькую квадратуру и позволяют жителям дома часто наслаждаться чистым воздухом и красивым видом.
Наличие красивых балконов позволяет также придать дому индивидуальные черты и соответствовать заданной стилистике, особенно, если на балконе есть определенные элементы декора. Такие террасы и веранды – лучший вариант времяпрепровождения для дружеской доверительной беседы или романтической встречи двух влюбленных.
Проводя свое время на таких площадках, вы не раз поблагодарите себя за приобретение участка именно с такой квадратурой, ведь иногда для уюта нужно совсем немного места.
Проекты домов на узком земельном участке обычно двухэтажные. Они имеют вытянутую форму плана и обращенный на улицу фронтон. На солнечной стороне таких домов окна устанавливаются большие. Характерно для таких построек также сооружение цокольных этажей. В них обычно размещается спортивный зал или кладовая. Лестница между первым и вторым этажом всегда прямая и миниатюрная. Она располагается вдоль одной из стен и занимает совсем немного места. Часто в таких домах предусмотрены эркеры, мансардные окна и «второй свет». На северной стороне дома обычно находится гараж, кухня и вход, а на южной – гостиная.
Почти всегда проекты домов для узких участков предполагают западное и восточное размещение торцевых стен. Таким образом, все помещения будут хорошо освещены. Забыть о небольшой квадратуре помещения обычно помогает правильно подобранный дизайн интерьера, в котором большое значение имеет игра цветов и света.
Если заказчик владеет двумя соседними узкими участками, можно построить на них спаренные дома. Для этого создаются зеркальные проекты домов для узких участков. Они соединены на границе участков и являются одной архитектурной задумкой. Разрыв между такими домами определяется самим заказчиком, но хотя бы одна из двух соседних стен обязательно должна быть противопожарной.
Современные дома, построенные на узких участках, ничуть не уступают большим постройкам по своим внешним эстетическим особенностям и внутреннему комфорту. Их рациональная внутренняя планировка способствует уюту и позволяет экономить неплохие средства на оплате коммунальных услуг.
Профессиональные архитекторы, которые работают в нашей компании, выберут или создадут для вас проект дома, в котором вы забудете о небольшом размере своего участка и будете наслаждаться атмосферой и семейным теплом. Рассказ заказчика о доме своей мечты – это призыв к действию для лучших наших специалистов, а соответствие готового результата этой мечте – дело их чести.
Новые правила оформления жилых и садовых домов — Реальное время
Законодатели упростили регистрацию и более четко прописали границы дозволенного
4 августа в России изменились правила оформления индивидуальных жилых и садовых домов. Теперь не нужно брать разрешение на строительство. Достаточно уведомить местные власти о начале строительства, а потом об окончании. Органы местного самоуправления проверяют соответствует ли объект требованиям закона, в случае положительного заключения, обращаются в Россреестр за регистрацией. Таким образом, из цепочки исключается застройщик, но главное, по словам представителей Росреестра, минимизируются мошеннические действия. Подробности — в материале «Реального времени».
Строить без разрешения, но с уведомлением
Изменения, вступившие в силу, касаются обычных граждан, которые хотят построить дом или зарегистрировать уже построенный.
Раньше процедура была такая: гражданин обращался за разрешением на строительство, строил дом, ставил его на учет и получал выписку о внесении сведений в ЕГРН. Теперь брать разрешение не нужно, порядок изменили на уведомительный.
— Гражданин должен обратиться в органы местного самоуправления, в Казани — в Управление градостроительных разрешений с документами о начале планируемого строительства. Там в течении 7 дней проверяют, соответствуют ли параметры дома разрешенным нормам и направляют заявителю уведомление о соответствии либо о несоответствии. В последнем случае необходимо будет исправить указанные замечания. Уведомление считается согласованием строительства, в течение 10 лет застройщик должен реализовать задуманное. По окончании строительства гражданин также уведомляет уполномоченные органы, которые проверяют объект на соответствие требованиям закона, самостоятельно направляют в электронном виде в Росреестр Татарстана заявление о государственном кадастровом учете и государственной регистрации права на данный объект недвижимости, — говорит Ада Зайдуллина, заместитель руководителя Управления Росреестра по Республике Татарстан.
Список документов, необходимых для оформления постройки не изменился, как и ранее это — документ, подтверждающий право собственности на земельный участок, план расположения объекта, описание будущего дома и так далее. Принципиальное отличие в документообороте. Из цепочки исключен застройщик или собственник участка и объекта недвижимости. Органы государственной власти взаимодействуют между собой. Даже за уведомлением о согласовании строительства приходить не нужно — документ с электронной подписью направят по электронной почте.
Границы дозволенного: 3 метра впереди и 5 — сзади
Новый порядок упрощает жизнь физлицам — добросовестным застройщикам, но усложняет мошенникам, которые под видом индивидуального жилого дома строили многоквартирные: по новым правилам индивидуальный дом не может состоять из квартир или блоксекций.
Теоретически, можно сначала построить дом, а потом обратиться с уведомлением о планируемом строительстве и через несколько месяцев — о завершении строительства.
По словам заместителя начальника Россреестра, проверять это никто не будет. Но есть риск, что объект будет возведен с нарушениями градостроительного регламента, и тогда на учет его в упрощенном порядке не поставят. Нужно будет обращаться в суд. А если и суд не узаконит строение — то сносить.
— Обладатель земельного участка, прежде чем начать что-то строить, должен понимать, что имеет право делать, а что не имеет. Перед стройкой надо посмотреть, что у него с документами — либо по публичной кадастровой карте, либо по кадастровой выписке, понять определены ли границы участка, какой разрешенный вид использования, можно ли на нем строить жилой дом. Потому что на садовых участках можно строить только садовые дома, — говорит Анастасия Латыпова, замначальника Управления архитектуры и градостроительства Казани.
Изменения в законе более четко определяют параметры индивидуального жилого и садового домов и расположение их на участке. В обоих случаях дома не должны стоять ближе 3 метров от передней границы участка и 5 метров от задней.
Передней границей считается граница участка, выходящая на территорию общего пользования, — дорогу в поселке или аллею в саду. Если участок угловой, то у него будет, соответственно, две передних границы.
Не ругайтесь с соседями, если нарушили закон
Индивидуальный жилой дом не может быть выше 20 метров и трех этажей над землей. Садовый — площадью не более 50 кв. м, не выше одного этажа, плюс мансарда. Мансарда не считается вторым этажом, если высота от уровня пола до пересечения с крышей менее 1,5 метра. Так как садовые участки предназначены прежде всего для выращивания овощей и фруктов, то дом должен занимать не более 30 процентов от его площади.
Что делать тем, кто построил дом с нарушениями? Жить в нем и использовать можно, но зарегистрировать нельзя, а значит совершать сделки — куплю-продажу, наследование и так далее. Вариантом узаконить незаконное строение остается обращение в суд. Как рассказали в Россреестре, суды, как правило, становятся на сторону застройщика, если он не нарушает ничьих прав.
Но если у вас есть соседи, которые на садовом участке не могут выращивать морковь, из-за того что негабаритное строение перекрывает солнечный свет, то сделать это будет сложнее. Суды могут признать незаконными и зарегистрированные по старым правилам строения, если они имеют нарушения.
Как рассказали в Россреестре, суды, как правило, становятся на строну застройщика, если он не нарушает ничьих прав. Фото chistopol.ru
— Если дом больше 50 кв. м, но зарегистрирован и соседи только сейчас поймут, что вы нарушаете их права, то они могут обратиться в суд. И суд, даже при наличии регистрации, может признать это самовольной постройкой по признакам несоответствия параметрам, — говорит Ада Зайдуллина, заместитель руководителя Управления Росреестра по Республике Татарстан.
Уведомительный порядок, по словам экспертов, защищает от ситуаций, когда вложены деньги, дом построен, а узаконить его нельзя.
Дарья Турцева
Недвижимость Татарстан7 проектов Узких Домов для Длинных Участков
Проект узкого домаХорошо, если ваш приусадебный участок имеет большую площадь и хорошие пропорции.
Но что делать тем, кто владеет узким участком и хочет построить на нем коттедж? Прежде всего, не расстраиваться — ведь даже на таком участке можно построить полноценный и красивый дом. Искала каталог таких домиков, но ничего не нашла стоящего. Пришлось искать за границей. Кое что накопала…
Рада познакомить вас с самыми, на мой взгляд, необычными и интересными проектами узких домов. Первые проекты — это двухэтажные дома для узких участков, а затем идут — одноэтажные. Все картинки можно увеличить нажав на них.
План увеличивается!Проект длинного узкого дома в двух уровнях с гаражом. Габариты дома 4.5 метра на 19 метров. При такой небольшой ширине дом хорошо впишется на сложном нешироком участке.
На первом этаже находится гараж, кухня-гостиная и гостевой санузел. На втором этаже три жилые комнаты и два совмещенных санузла. Дом идеален для семьи с двумя детьми или семьи из трех поколений.
Проект узкого дома №2Достаточно большой узкий проект двухэтажного дома с габаритами 6 метров на 14 метров.
Все эти проекты проверены временем, это уже построенные американские дома, заслужившие доверие хозяев. Они полностью функциональны, в них все предусмотрено для полноценной жизни.
Первый этаж — гостиная, кухня-столовая и санузел, второй этаж — спальня хозяев и две детские. При спальне большая ванная, а на этаже также имеется совмещенный санузел с душем.
Проект узкого дома №3Перед нами довольно длинный узкий проект дома с площадью застройки 5 метров на 16.5 метров. Мне очень понравился данный проект! Особенно его высокий первый этаж и симпатичное крыльцо.
План можно увеличить!На первом этаже расположена гостиная (отдельное помещение) и большая кухня-столовая. Также на первом этаже находится большая гардеробная. Санузел был устроен под лестницей. Второй этаж занят тремя спальнями и двумя санузлами (один с душем, другой с ванной).
Проект узкого дома №4Проекты с allendaledesignbuild.
com
Очень длинный проект узкого дома — при ширине всего 5 метров он имеет длину 21.6 метров. Интересная идея для узкого участка под застройку. В данном проекте сочетается и красота здания и удобство строительства. Проект очень функционален и заслуживает внимания.
Планировка увеличивается!Этот проект похож на предыдущий, принципиальная разница в том, что одна из спален находится в первом этаже. На втором этаже только две спальни и один санузел (половина дома одноэтажная).
Проект узкого дома №5Большой узкий проект дома со встроенным гаражом на два автомобиля, при этом въезд в гараж расположен позади дома, в торце. Данное решение может быть реализовано, если у вас имеется возможность сделать два входа — ворота позади, а крыльцо спереди здания.
Увеличивается!Проект с thehouseplanshop.com
В первом уровне находится гараж, гостиная, кухня-столовая и две жилые комнаты. Большая часть дома одноэтажная, однако есть надстройка второго этажа, в которой размещено еще две спальни и большая ванная.
Весьма интересный проект узкого дома из пеноблоков, с гаражом и входом сбоку. Проект оптимально сбалансирован, подходит для владельцев длинных участков. Вообще, мне очень импонирует идея гаража при въезде, совмещенного с основным жилищем.
План первого этажаВ ширину дом всего 6 метров. План в футах и дюймах, так как брала на зарубежных ресурсах. Но при желании все можно пересчитать под наши размеры.
План второго этажаПроект узкого дома №7Проект c houseplans.com
Интересный проект узкого одноэтажного дома с террасой при входе. Этот домик мне особенно симпатичен. И в плане функционала, и в плане внешнего вида. Симпатичное крыльцо при входе позволит вам устраивать посиделки на свежем воздухе в теплое время года.
Увеличивается!В доме имеется гостиная, кухня-столовая, спальня, детская и большая ванная комната. Перед домом — широкая терраса.
Интересная идея узкого дома 7 на 12 метров
Изображение увеличиваетсяЕще один весьма любопытный длинный узкий вариант дома.
Можно встроить без проблем практически куда угодно.
Надеюсь, что вам понравились эти проекты узких домов и вы выбрали для себя один из них. Даже имея сложный узкий участок, можно построить красивое и аккуратное здание, на которое будет приятно смотреть.
Поверьте, я знаю о чем говорю. Я много езжу по миру и встречаю такую красоту на узких отрезах земли, что невозможно пройти без остановки, не рассмотрев детали и не потянувшись за фотоаппаратом.
Идея узкого дома 5 на 20 метров с планамиОригинальный узкий дом 5 на 20 метров. С гаражом на первом этаже, с лесенкой на второй этаж сбоку. Плоская крыша может быть изменена на стропильную конструкцию.
План помещений отдельно и почетче
Высоты по этажам
Размеры с фасада
===
Недавно прозвучал вопрос от читателя, можно ли вписать на узкий участок дом построенный буквой Г.
Отвечаю — все зависит от ширины вашего владения, я бы не рекомендовала так строиться на длинном отрезке, угол заберет часть пространства, которого и так мало.
Вот фото пример наглядно демонстрирующий, что участок в таком случае должен быть шире, а у нас ведь узкие и длинные сегодня рассматриваются. Так что Г образные проекты не для нас…
Поделиться ссылкой:
Выбор участка для строительства по готовому проекту дома
Приняв решение о строительство своего загородного дома Застройщик сталкивается со множеством вопросов: какой участок выбрать? Какого размера должен быть участок? Какой грунт предпочтительнее? И это только вопросы касающиеся участка земли.
Давайте попробуем разобраться в некоторых их них. При выборе участка земли под строительство загородного дома есть много факторов влияющих на стоимость приобретения, стоимость строительства и стоимость эксплуатации дома на выбранном участке.
1. Размерность и конфигурация земельного участка:
Выбирая геометрию участка необходимо уже иметь в виду проект дома, который Вы хотите реализовать.
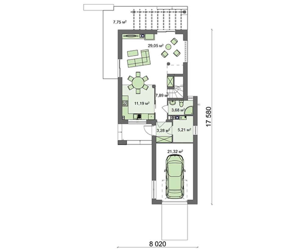
Если такой возможности нет, то надо быть готовым, что участок будет диктовать свои условия при выборе проекта дома. Например, если участок будет узким и длинным, то дом должен будет располагаться в глубину участка. Как правило, проекты домов для узких участков имеют не большую ширину, но блинные боковые фасады. Так, например проект дома Современный 1: ширина дома 8,95 м, а глубина — почти 17 метров.
Если участок квадратной или прямоугольной формы, то у нас больше места для «маневрирования». Например, геометрия участка 30 на 50 метров (любимые 15 соток): тут можно заказать проект дома 24 метра шириной и до почти 40 метров в глубину участка!
В тоже время, если участок имеет равные стороны, например, 30 * 30 метров, то, возможно, тут лучше будет смотреться одноэтажный коттедж в стиле шале. Однако, надо понимать, что проекты одноэтажных домов имеют больший периметр фундаментов, большую площадь кровли, вследствие чего стоимость квадратного метра в таком доме — выше, чем в мансардном или двухэтажном коттедже.![]()
Самым правильным по своей форме представляется участок 30 метров в ширину и 50 метров в глубину. Тут можно рассчитывать на, практически, любую конфигурацию возводимого загородного дома.
Размышляя о конфигурации земельного участка нельзя забывать о неровностях земельного участка и его расположении по высоте относительно дороги. Так, если участок неровный, имеет перепад от 1 метра и больше на пятне застройки дома, то, возможно правильным решением будет выбрать проект дома с подвалом. Но надо понимать, что строительство дома с подвалом — не дешевое удовольствие, особенно, если это одноэтажный коттедж.
2. Теперь о составе и свойствах грунтов.
В Беларуси, преобладают глиняные, суглинистые и песчаные грунты. В редких случая встречаются торфяные. Глина и песок отличаются по своей плотности, поэтому при строительстве дома надо учитывать несколько важных моментов. Если в глине можно выкопать траншею и использовать грунт как опалубку, то в песке придется рыть котлован, потому что песок будет осыпаться в траншею.
Поэтому в первом случае надо рассматривать проект дома с монолитным ленточным фундаментом, а во втором, возможно, дешевле будет монтировать сборные фундаменты.
Если Вам попался торф — понадобится адаптация проекта дома под свайные фундаменты.
И еще один очень важный момент — канализация и отвод воды. В песчаных грунтах проблем с уходом воды не наблюдается. В то время как на глинистых грунтах — это может стать целой проблемой в процессе эксплуатации дома. Поэтому еще на этапе разработки строительной документации необходимо учесть наличие нескольких канализационных колодцев или предусмотреть систему очистки воды.
3. Коммуникации и дороги
И последний момент, который хотелось бы озвучить. Понятно, что если нет на участке коммуникаций, то их надо проектировать и проводить — а это отдельная строка затрат в процесс строительства дома. А вот дорога! Перед выбором участка хорошо бы узнать в каком состоянии находится дорожное покрытие до вашего дома осенью, зимой и весной.
Потому как если дорога ровная, но ее не чистят от снега — это может стать целой проблемой по утрам в будние дни, особенно после сильного ночного снегопада. А весной и осеню может возникнуть другая трудность — дождевая или талая вода могут на протяжении нескольких дней или даже недель держать грунтовую дорогу в размытом состоянии, что сильно затруднит или сделает невозможным передвижение на маленьком автомобиле. В таком случае, если надежд на улучшение ситуации нет, захочется пересесть на автомобиль повышенной проходимости. А это тоже может стать достаточно затратным приобретением.
Как измерить сотку земли в метрах, шагами, палкой и рулеткой
Как измерить сотку земли
Еще не так давно у большинства дачных участков размеры были одинаковыми, и за расчет принималась известная всем сотка. На сегодняшний день у многих владельцев в собственности нестандартные земельные наделы, в результате чего люди задаются вопросом как измерить сотку своего участка?
Интересный факт.
Одной из старорусских мер длины считался ар, так вот в нем согласно современной системе исчисления ровно 100 квадратных метров или одна сотка. Чтобы стало окончательно понятно — это 10 метров в длину и столько же в ширину.
Существует множество способов узнать площадь земельного участка, это могут быть колышки, измерение сотки земли шагами, а также применение специальных средств таких как рулетка, дальномер, техномер и тому подобные современные технологии.
Автор статьи Харлов Андрей Юрьевич — директор ООО «Азия Стриж» — производство самозатачиваещегося садового инструмента Стриж с 1992 года. Перейти в каталог садового инструмента
Измерение сотки земли палкой
Для этого метода вычисления площади участка понадобится палка длина которой соответствует метру, двум или трем. Здесь каждый выбирает свои параметры для удобства. Замеры производятся очень просто: 10 раз проходят с палкой по ширине площади, а потом по длине, в сумме получается одна сотка.
Подобны промеры проводятся по всему участку, затем суммируются и подводится итог.
Маленькая хитрость. Некоторые землевладельцы к палке прикрепляют еще 2 ветки чтобы получился «шагающий» треугольник. В результате увеличивается точность всех замеров.
Измеряем сотку земли палкой
Как применить рулетку для замера земельного участка
Наиболее точный и простой метод при измерении участка получается с помощью рулетки. Площадь узнается в метрах, а затем переводится в сотки. В том случае, если владение относительно большое, для удобства нужно обзавестись колышками. Первый вбивается в начале участка, следующий как закончится длина рулетки и т.д. Аналогичные действия проводятся по ширине. Если надел имеет форму правильного прямоугольника, то в измерениях противоположных сторон нет необходимости, они будут такими же.
Измеряем сотку земли в метрах рулеткой
Неправильная форма участка, как провести необходимые измерения
Вышеописанные методы удобны для проведения замеров на участке, имеющем правильную форму.
Как измерить земельный участок в сотках если он имеет изгибы, или неравные стороны? В этом случае проводятся вычисления каждой стороны, а также измеряется градус углов, можно померить по диагоналям. Полученные данные рекомендуется записать, чтобы не забыть и не запутаться.
Как измерить сотку земли неправильной формы
Для простоты работы можно разбить территорию на различные геометрические фигуры, а затем вычислить площадь каждой из них, просуммировать результат. Итог делится на сто, и конечная цифра равняется количеству соток.
При наличии преград, которые могут мешать производить замер, рекомендуется обратиться за помощью в геодезическую компанию.
Самозатачивающийся культиватор Стриж
Как замерить сотку земли, если она расположена на склоне
Далеко не все участки — это ровная поверхность, что же делать если есть склон? Для этого случая существует специальный прибор под названием нивелир.
Измеряем участок на склоне в сотках
Чтобы провести замеры при помощи механического устройства, по центру земли устанавливается рейка, а прибор для измерения устанавливается в горизонтальной плоскости.
На межевом камне вертикально ставится рейка и проводятся замеры, полученный итог записывается. Затем рейка для измерений переносится к другому межевому камню, и снова определяются значения. Таким образом, узнается наклон местности и при использовании правила треугольника получается нужное значение.
Как измерить сотку земли шагами
Если под рукой нет необходимых предметов для замеров, то узнать площадь участка можно простыми шагами. Данный метод весьма простой, главное учитывать, что у каждого человека индивидуальная длина шага. Изначально определяется метровое расстояние, а затем проводится несколько тренировок чтобы шаг был равен именно метру, для этого достаточно просто широко шагнуть.
Измеряем сотку земли шагами
Измерить сотку земли шагами можно проведя вычисление свободного шага в сантиметрах и последующем его переводе в метры, к примеру, шаг равняется 0,6 м. Но это создаст дополнительные трудности при выбранном способе измерения, лучше потренироваться шагать.
Для получения результата при измерении сотки земли шагами высчитывается количество шагов по длине и ширине участка. Затем обе цифры перемножаются и получается площади владений. Чтобы окончательно разобраться достаточно взглянуть на простой пример, когда были произведены измерения сотки земли шагами. Берется длина шагов 50 соответственно она в метрах, и ширина 40. Цифры перемножаются и получается 2000 квадратных метров. Полученная площадь сотки делится на 100 и получается 20 соток. Измерить сотку земли шагами очень просто.
Как измерить сотку земли в метрах
В статье уже упоминалось чему равна сотка земли, стоит остановиться на этом вопросе более подробно. Измерение сотки в метрах подходит для расчета небольшого надела земли каковым могут является дача или огород.
Интересный факт. Понятие сотки принято на официальном уровне, и нередко в документации встречается текст, где приводится расчет стоимости земельного надела именно в сотках.
Чтобы не запутаться, как измерить сотку земли в метрах нужно помнить:
Площадь одной сотки равняется ста метрам квадратным, достаточно представить земельный надел имеющий 10 метров в длину и столько же в ширину.
Измеряем сотку земли в метрах
Как измерить сотку земли, если площадь дана в других единицах измерения
Очень часто на документации предлагаемых для продажи земельных наделов стоят цифры площади в гектарах, акрах метрах или иных обозначениях, возникает вопрос, как измерить площадь участка в сотках?
В Российской Федерации площади участков земли измеряются следующим образом:
- в одной сотке – 10 х 10 = 100 метрам квадратным;
- 1 гектар равняется 100 х 100 метров = 10000 метрам квадратным = 100 соткам;
- 1 гектар равняется ста арам = 100 х 100 = 10 000 метров в квадрате
Принятое в настоящее время обозначение гектара образуется при добавлении частички «гекто» в единицы измерения площади ар.
Под понятием ара понимается площадь фигуры квадрат имеющая сторону в 10 метров, возникает вопрос, как измерить площадь участка в сотках если она приводится в арах? Нет ничего проще, вот простой пример.
Земельный надел 4 ара, а значит 1 ар равняется 10 х 10 метров.
В этом случае 40 х 40 = 400 квадратных метров или 4 сотки.
На территории некоторых стран основной мерой измерения площади служит акр. Задумав приобрести участок за границей, нелишним будет ознакомиться, как измерить сотку земли в более привычных метрических системах.
В одном акре 4840 квадратных ярдов, что равняется 4046, 86 квадратных метров. Зная этот расчет, не составит труда совершить измерение участка в сотках.
Средние земельные участки для семей, имеющих нормальный доход располагаются на площади в 10 соток, что в итоге равняется сотне метров в квадрате. На таком земельном наделе, можно проживать вполне комфортно. Исходя из этого принципа, земельные наделы такой площади являются одними из самых востребованных. Здесь можно возвести дом, разбить садовый участок и всячески наслаждаться единением с природой.
В статье было рассказано о наиболее популярных способах измерения участков, как перевести одну единицу измерения в другую, какие подручные средства можно использовать, и как обойтись без них в случае крайней необходимости.
Как выбрать участок для строительства коттеджа или дачи — Рынок жилья
Покупка участка для строительства коттеджа или дачи может оказаться перспективным вложением, а может обернуться немалой головной болью. Приходится учитывать множество нюансов – от юридических до гидрогеологических.
Зимой рынок загородных участков замирает, чтобы ожить с приходом весны. Именно в межсезонье, когда земля уже освободилась от снега, но еще не покрылась молодой травой, можно оценить состояние дорог в массиве и вокруг него, увидеть, не заболочен ли участок, работают ли дренажные системы и т. д.
На старте
Глядя на поросшие кустарником поля, представить на этом месте свою будущую усадьбу непросто – нужно обладать богатым воображением. Впрочем, обо всем по порядку.
Каждый идет к реализации мечты о доме своим путем.
Один готов приобрести дом под ключ. Второй – выбирает участок под приглянувшийся проект коттеджа. Третьи, коих нынче подавляющее большинство, смутно представляют конечный результат, но при этом готовы двигаться к цели малыми шагами. Сегодня – покупка земли, далее, когда позволят средства, – нулевой цикл и времянка, затем – строительство дома, бани и пр.
Все начинается с выбора подходящего для реализации вашей мечты пятна земли. Но участок участку рознь. Инженерно подготовленные наделы в электрифицированных и газифицированных жилых массивах с качественными дорогами предлагаются недешево. Да и на рынке такие объекты в меньшинстве.
Как из других регионов перебраться в ПетербургПрежде чем продать жилье в провинции и перебраться на жительство в мегаполис, надо трезво оценить >>Среднестатистический девелопер коттеджного поселка начинает продажи земли задолго до готовности массива для строительства – и тем более комфортного проживания. Покупка неосвоенного участка (или земли с ветхим домом под снос) в населенном пункте (ИЖС), дачном или садоводческом массиве имеет свои плюсы и свои минусы.
Здесь – как в коммунальной квартире: один из главных факторов ликвидности – соседи.
Шаг первый: определить целевое назначение
Целевое назначение будущего объекта загородной недвижимости диктует требования к выбору места. В принципе, базовых вариантов здесь два – дача или коттедж для постоянного проживания. Но в последние годы все большее число интересантов готовы рассматривать вариант «условно постоянного» проживания за городом. Малогабаритная городская квартира – не лучший объект даже для дружной семьи из трех поколений, поэтому круглогодично обитаемый загородный дом становится расширением жизненного пространства для всех.
Если речь идет о постоянном проживании, то важнейшим критерием поиска становится транспортная доступность. Но это не только расстояние от города или КАД. Часто бывает, что при очевидной близости загородного жилья к цивилизации именно последние сотни метров раскисшей в межсезонье грунтовки становятся непреодолимым препятствием. Да и постоянное проживание в первую очередь подразумевает наличие объектов социальной и коммерческой инфраструктуры в пешей доступности.
При выборе участка для строительства дачи близость к шумному мегаполису становится скорее минусом, чем плюсом. На первый план выходят красоты окрестных ландшафтов, озер и лесов. Но, разумеется, даже дачу есть смысл строить в жилом массиве, где кто-то живет постоянно, а сам поселок и в зимнее время поддерживается в тонусе и охраняется.
Участки для индивидуального жилищного строительства всегда дороже равноценных, предназначенных для садоводства и дачного хозяйства. Но статус ИЖС предполагает возможность прописаться в построенном доме, пользоваться всеми благами местной цивилизации – сельской школой, медицинскими учреждениями, а также – при плановой электрификации или газификации – фиксированными (некоммерческими) расценками на подведение коммуникаций к участку.
В садоводстве тоже можно прописаться. Но отметим, что на сегодняшний день это скорее теоретическая возможность, которую можно реализовать только в судебном порядке. Причем шансы выиграть суд, если у вас есть другое жилье, близки к нулю.
Стало быть, классическое садоводство, а также коттеджные поселки со статусом земли СНТ или ДНП подразумевают лишь «условно постоянное» проживание.
Шаг второй: определить зону поиска
Если у вас нет территориальных предпочтений, сегодня вы смотрите участки под Гатчиной, а завтра отправляетесь в Приозерск, то это – нерациональная трата времени. При таком подходе вы рискуете потратить на поиски вечность и – в конечном счете – просчитаться. Ведь смотреть нужно не только сам участок, но также окрестности – и все на бегу.
Лет десять назад те, кто работал или жил на юге Петербурга, предпочитали участки вблизи южных пригородов – например Гатчины или Ломоносова). Обитатели северных районов города глядели в сторону Карельского перешейка. С момента, когда вокруг Северной столицы замкнулось транспортное кольцо, многое поменялось. Немаловажным показателем транспортной доступности в глазах покупателей стало расстояние до КАД, поэтому зона поиска для потенциального землевладельца расширилась.
Но важно понимать, что длина Кольцевой (вместе с дамбой) 138 км, поэтому вариант каждый день по дороге на работу и обратно преодолевать сотню километров по скоростной трассе комфортен не для всех. Загородная жизнь с ежедневными перемещениями быстро надоест.
Стало быть, зону поиска придется сузить. А перед тем как отправляться на просмотр, нужно изучить территорию – для начала по интернет-источникам и краеведческим публикациям. То есть попробовать «примерить на себя» местность. В этом случае, воспользовавшись сервисами с объявлениями о продаже участков, лучше подобрать несколько вариантов – в разных массивах и коттеджных поселках.
Договариваясь о просмотре с потенциальными контрагентами, спланируйте поездку так, чтобы осталось время и на прогулку по окрестностям.
Шаг третий: оцениваем участок
Вне зависимости от того, идет речь о старом садоводстве или о новом коттеджном поселке с участками для самостоятельного строительства, нужно обратить внимание на размер, форму и пропорции участка, его ориентацию по сторонам света, характер почвы.![]()
В новом массиве с живописным рельефом, где на выбор предлагаются разные варианты, в первую очередь смотрите те участки, что располагаются на возвышенности и имеют уклон в южную сторону.
Крайние участки – те, что граничат с лесом – обычно привлекают повышенное внимание. Но лес лесу рознь: это может быть и песчаный лесопарк с соснами, в котором приятно гулять, и труднопроходимые заросли. Последний вариант создает избыточную влажность, затенение, а в летнее время становится рассадником для мошкары.
Болотный камыш, а также сосенки и березки с неразвитыми кронами и кривыми стволами свидетельствуют о высоком уровне грунтовых вод и периодическом подтоплении территории. Впрочем, нюансов здесь много.
Размер участка часто имеет для потенциальных домовладельцев решающее значение. За просторным участком, если вы не намерены содержать садовника, ухаживать непросто, хотя для дачи 20 соток – вариант неплохой. В пригородных массивах, ориентированных на постоянное проживание и расположенных близ городской черты, качественные участки больше 12 соток – дефицит.
В демократичных коттеджных поселках, часто встречаются участки не то чтобы маленькие, но узкие (меньше 20 м в ширину): застройщики экономят на внутрипоселковых проездах. «Компактный» генплан накладывает ограничения на выбор проектов, но имеет и определенные плюсы для проживающих. Во-первых, меньше дорог нужно чистить зимой, во-вторых, идти пешком вдоль бескрайних соседских владений до ближайшего магазина или остановки транспорта – то еще удовольствие.
Еще один момент. Если девелопер экономит на ширине дорог – он обрекает будущих жителей массива на серьезные неудобства. Более или менее комфортная ширина проезжей части – 7 м. Такое значение позволяет беспрепятственно разъехаться, скажем, со спешащей на строительство бетономешалкой не выезжая на обочину. Тупиковые проезды должны давать возможность беспрепятственно развернуться, а еще лучше, если они оборудованы разворотными площадками. Но когда дачный массив находится на стартовой стадии освоения, а вокруг чисто поле с домиками на горизонте и изредка проезжающими машинами, потенциальные покупатели участков обычно не обращают внимания на подобные планировочные просчеты девелоперов.![]()
При покупке участка следует обращать внимание на его ориентацию по сторонам света – лучше всего, когда узкие стороны выходят на север и юг. Хороший участок должен иметь уклон, но небольшой, предпочтительно – с понижением на юго-восток или на юго-запад. Это идеальный вариант: такие участки весной раньше освобождаются от снега. Северный склон в наших краях – вариант нежелательный. К слову, если вас интересует участок у реки или озера, имейте в виду, что на северных и южных берегах – разный микроклимат. Но интересный рельеф – это всегда повышенные затраты на освоение. А если перепад высоты больше 15% (1,5 м в высоту на 10 м в длину) – это уже скорее не интересный, а проблемный участок. В данном случае значительно возрастают расходы на строительство фундамента и, вероятнее всего, потребуются меры по дополнительному укреплению грунта.
Шаг четвертый: выбираем соседей
Итак, если с землей все в порядке, переходим к следующему пункту программы. Рассматриваем мы старое садоводство или о новый загородный массив – нужно знакомиться с будущими соседями, причем не только с ближайшими.
Для вторичного загородного рынка это самое актуальное правило: бывает, что объект продается именно потому, что отношения – не сложились.
О чем говорить с потенциальными соседями? Вот примерный перечень вопросов.
Соответствуют ли границы территории заявленным в документах? Если нет – есть повод говорить с продавцом о снижении цены.
Нет ли у хозяина конфликтов с правлением СНТ (ДНП) или соседями, а также коммунальных задолженностей перед СНТ (ДНП), которые могут «по наследству» перейти вам? Об этом лучше всего узнавать из первоисточника – у председателя правления. Бывает, что продавец не участвовал в расходах, связанных со строительством линий электропередачи, водопровода, дорог.
Есть ли электричество, нет ли дефицита энергомощностей? В договоре энергосбытовой компании с потребителем (это может быть и сам домовладелец, и коллективный потребитель в лице ДНП) должны быть указаны выделяемые мощности и возможности их увеличения. Если массив «пока еще не электрифицирован», узнайте о планах электрификации в энергосбытовой компании, с которой планируется заключение договора.
Столбы с проводами не должны вводить вас в заблуждение – их могли установить «про запас».
Как решаются вопросы жизнеобеспечения поселка (ремонт дорог, дренажные работы, охрана, вывоз мусора) и в какие суммы в виде паевых и целевых взносов это выливается?
Обитаем ли поселок (дачный массив) зимой, как он охраняется в зимнее время?
Чистятся ли дороги, можно ли подъехать к участку в период весеннего бездорожья?
Где берут питьевую воду? Каково ее качество? Есть ли в окрестностях хорошие колодцы и скважины, каковы их лимиты? Проводился ли анализ воды и какие виды загрязнений он выявил?
Шаг пятый: мелочей нет
Во время прогулки по массиву оцените его благоустройство, состояние проездов, уровень воды в дренажных канавах. Обязательно узнайте размеры паевых взносов и прочих платежей (охрана, целевые взносы на благоустройство) – пусть они не станут для вас неожиданностью.
Да, кстати, несмотря на то, что на дворе уже XXI век, в окрестностях Петербурга еще немало массивов, в которых нет электричества.
Правда, продавец или агенты, представляющие его интересы, будут уверять вас, что лампочки вот-вот зажгут: деньги уже собраны, столбы поставлены, провода натянуты. Увы, практика показывает, что если проблема не решена за предыдущие десять лет – не факт, что она решится в ближайшие пять.
Если речь идет об участке в новом и еще не обжитом коттеджном поселке, вопросов к девелоперу проекта, будущим соседям, правлению ДНП (СНТ) и представителям управляющей компании (если таковая уже имеется) – значительно больше. Но о том, как проводить первичную юридическую экспертизу предложений о продаже участков в новых массивах мы уже писали.
Самая распространенная проблема, с которой может столкнуться покупатель земельного надела в чистом поле – медленные темпы освоения территории. При подготовке первичной документации девелоперы получают технические условия (ТУ) на подключение к сетям и, предлагая участки к продаже, девелопер всегда декларирует, что в массиве будут электричество, вода, газ.
Но строительство дорог, линий электропередачи, газо- и водопровода нередко растягивается на годы.
Что делать, если участок понравился, но к девелоперу имеются претензии? Чтобы получить объективную картину, нужно сверять информацию из разных источников – вплоть до интернет-форумов и групп, созданных обитателями новых поселков в социальных сетях.
Начните с визита в отдел продаж компании-девелопера, чтобы попросить для ознакомления правоустанавливающие документы застройщика (в первую очередь это копии кадастровых паспортов участков), образцы типовых договоров купли-продажи и покажите их независимому юристу.
Текст: Филипп Урбан Фото: Алексей Александронок
Область поиска | Ресурсы Wyzant
Площадь — это мера площади, покрытой чем-либо.
Формулы площади
для разных
формы бывают разные, но в большинстве случаев рассчитывается площадь
умножив длину на ширину. Используется при расчете площади квадратов.
и прямоугольники. Когда у вас есть числовой ответ на проблему, вам нужно вычислить
из единиц.При расчете площади вы берете единицы, указанные в задаче.
(футы, ярды и т. д.) и возведите их в квадрат, чтобы единицы измерения были квадратными футами.
(ft. 2 ) (или какой другой мерой они вам дали).
Пример площади 1
Давайте попробуем пример. У Нэнси есть огород 6 футов в длину и 4 фута. широкий. Это выглядит так:
Нэнси хочет засыпать землю свежей грязью.Сколько квадратных футов грязи она нужна?
Мы знаем, что ответ в квадратных футах потребует от нас вычисления площади.
В
Чтобы вычислить площадь прямоугольника, мы умножаем длину на ширину.
Итак, у нас есть 6 x 4, что составляет 24. Следовательно, площадь (и количество грязи Нэнси
потребность) составляет 24 квадратных фута.
Пример 2
Давай попробуем еще раз.У Закари есть стена, которую он хотел бы покрасить. В стена 10 футов шириной и 16 футов длиной. Это выглядит так:
Сколько квадратных футов он будет рисовать?Мы знаем, что для вычисления квадратных футов нам нужно найти площадь. Чтобы чтобы найти площадь этого прямоугольника, нам нужно умножить длину на ширину.Когда вы умножаете 10 x 16, вы получаете 160. Следовательно, ваш ответ будет таким: Zachary будет красить 160 квадратных футов стены.
160
Совместное использование площади и периметра
Иногда вам дается либо площадь, либо периметр проблемы, и вы
будет предложено вычислить значение, которое вам не дается.
Например, вы можете быть
задан периметр и предложено рассчитать площадь; или вам может быть предоставлена площадь
и попросят рассчитать периметр. Давайте рассмотрим несколько примеров того, что
это будет выглядеть так:
Пример площади и периметра 1
У Валери большая квадратная комната, которую она хочет застелить ковром. Она знает это периметр комнаты составляет 100 футов, но ковровая компания хочет знать площадь.Она знает, что может использовать периметр для вычисления площади.
Какова площадь ее комнаты?
Мы знаем, что все четыре стороны квадрата равны. Следовательно, чтобы найти
длины каждой стороны, мы бы разделили периметр на 4. Мы сделали бы это, потому что
мы знаем, что у квадрата четыре стороны, каждая из которых имеет одинаковую длину, и мы хотим, чтобы
деление быть равным.
Итак, мы делаем наше деление — 100 делим на 4 — и получаем 25 в качестве
отвечать.25 — длина каждой стороны комнаты. Теперь нам просто нужно выяснить
площадь. Мы знаем, что площадь квадрата равна длине, умноженной на ширину, и поскольку все
стороны квадрата одинаковы, мы бы умножили 25 на 25, что равно 625. Таким образом, она
будет ковровое покрытие 625 квадратных футов.
Пример 2 по площади и периметру
Теперь посмотрим, как мы будем работать с площадью, чтобы определить периметр.Скажем так У Джона есть квадратная песочница площадью 100 квадратных футов. Он хочет коротко забором вокруг своей песочницы, но чтобы выяснить, сколько материала для забора он надо покупать, ему нужно знать периметр. Он знает, что может понять периметр, используя площадь.
Каков периметр его песочницы?
Мы знаем, что площадь квадрата равна длине, умноженной на ширину.
В случае квадратов
эти два числа совпадают. Следовательно, нам нужно подумать, сколько раз сам
дает нам 100? Мы знаем, что 10 x 10 = 100, поэтому мы знаем, что 10 — это длина одного
сторона песочницы. Теперь нам просто нужно найти периметр. Мы знаем этот периметр
рассчитывается путем сложения длин всех сторон. Следовательно, мы имеем
10 + 10 + 10 + 10 = 40 (или 10 x 4 = 40), поэтому мы знаем, что наш периметр составляет 40 футов.Джону нужно будет купить 40 футов материала для ограды, чтобы сделать его полностью вокруг
его сад.
Расчет площади и периметра с помощью алгебраических уравнений
До сих пор мы вычисляли площадь и периметр после того, как получили
длина и ширина квадрата или прямоугольника. Однако иногда вам дадут
общий периметр и отношение одной стороны к другой, и ожидается, что
составить алгебраическое уравнение (с использованием переменных) для решения проблемы.
Что ж
покажу вам, как настроить это, чтобы вы могли успешно решать эти типы
проблем.
У Элеоноры есть комната не квадратной формы. Длина комнаты на пять футов больше чем ширина комнаты. Общий периметр комнаты — 50 футов. Элеонора хочет облицевать пол комнаты плиткой. Сколько квадратных футов ( 2 футов) она будет черепица?
В этой задаче мы будем вычислять площадь, но сначала воспользуемся периметром выяснить длину и ширину комнаты.
Во-первых, мы должны присвоить переменные каждой стороне прямоугольника. X — самый
часто используемая переменная, но вы можете выбрать любую букву алфавита, которая вам нравится
использовать. А пока мы будем упрощать задачу и будем использовать x. Чтобы присвоить переменную
стороны, вам сначала нужно выяснить, с какой стороны они дают вам меньше всего информации
о.
В этой задаче говорится, что длина на пять футов больше ширины.Который
означает, что у вас нет информации о ширине, но у вас есть информация
о длине исходя из ширины. Следовательно, вы назовете ширину (
сторона с наименьшим количеством информации) х. Теперь ширина = x, а x просто означает
число, которое вы еще не знаете. Теперь вы можете присвоить длине переменную. Мы не можем
называют длину x, потому что мы уже назвали ширину x, и мы знаем, что эти
два измерения не равны.Однако в задаче говорилось, что длина пять
ноги длиннее ширины. Следовательно, какой бы ни была ширина (x), нам нужно добавить
5, чтобы получить длину. Итак, мы назовем длину x + 5.
Теперь, когда мы назвали каждую сторону, мы можем сказать, что ширина = x, а длина = x + 5. Вот изображение того, как это будет выглядеть:
Затем нам нужно составить уравнение, используя эти переменные и периметр в следующем порядке:
выяснить длину каждой стороны.
Помните, что при расчете периметра вы
сложите все четыре стороны вместе. Наше уравнение будет выглядеть так же, только с
x вместо чисел. Итак, наше уравнение выглядит так:
х + х + х + 5 + х + 5 = 50
Теперь нам нужно сделать это больше похожим на уравнение, которое мы можем решить. Наш первый шаг состоит в том, чтобы объединить похожие термины, что означает просто сложить все x вместе, а затем сложите целые числа вместе (для получения дополнительной помощи см. Объединение Как термины).
Когда мы объединяем одинаковые термины, наше уравнение будет выглядеть так:
4x + 10 = 50
Далее мы следуем шагам для решения уравнений. (Для получения дополнительной помощи по этому поводу, видеть Решение уравнений). Мы вычитаем 10 из каждой части уравнения, что оставляет нам следующее:
4x = 40
Теперь нам нужно получить x само по себе, что означает избавление от 4.
Чтобы сделать
для этого нам нужно выполнить операцию, противоположную той, что в уравнении. Итак, поскольку
4x означает умножение, нам нужно разделить на 4, чтобы получить только x. Но помните, что
мы делаем для одной стороны, мы должны делать для другой стороны. После разделения каждой стороны на
4, получаем:
х = 10
Затем мы должны интерпретировать, что это означает. Мы оглядываемся назад и вспоминаем, что назвали ширина x, поэтому ширина равна 10.Теперь нам нужно выяснить длину. Мы назвали длина x + 5, это означает, что мы должны подставить 10 вместо x и завершить дополнение. Следовательно, у нас есть 10 + 5, что дает нам 15. Итак, наша длина равна 15.
Теперь нам нужно оглянуться назад и вспомнить, что задача попросила нас вычислить
площадь пола, которую Элеонора будет облицовывать плиткой.
Мы знаем, что для расчета
области, нам нужно умножить длину на ширину.Теперь у нас есть длина
и ширину, поэтому мы просто ставим задачу умножения, например: 10 x 15
знак равно Мы умножаем два числа вместе и получаем 150.
Таким образом, ваш окончательный ответ: 150 футов 2 .
Практические задачи по площади и периметру
Теперь мы дадим вам несколько практических задач, чтобы вы могли попробовать вычислить площадь. и периметр самостоятельно.
1. У Лии есть цветник длиной 4 метра и шириной 2 метра. Лия бы любит класть кирпичи вокруг сада, но ей нужно знать периметр сад, прежде чем она купит кирпичи.
Каков периметр сада Лии (в метрах)? Чтобы найти периметр, складываем все 4 стороны сада.
Нам говорят, что
сад 4 метра в длину и 2 метра в ширину. Следовательно, мы бы сложили 4+
4 + 2 + 2 = 12 метров. Итак, периметр сада 12 метров.
{12 | 12 м | 12 метров | 12 метров}
2. У Давида квадратный ковер с длиной одной стороны 5 футов.У него есть открытое пространство в гостиной площадью 36 квадратных футов.
Подойдет ли коврик идеально, будет ли он слишком большим или слишком маленьким для имеющегося у него места? (Ответ Выбор: идеально подходит, слишком большой, слишком маленький) Коврик будет слишком маленьким. Площадь жилого помещения 36 квадратных футов (проблема
сказал нам это).
Площадь коврика всего 25 квадратных футов (мы получили это умножением
5 х 5 = 25). Значит, он мог бы положить туда коврик, но он был бы слишком маленьким (
не покрывать всю площадь).
слишком маленький
3. У Дебби есть бассейн на заднем дворе, периметр которого составляет 64 фута.Длина бассейна на 2 фута длиннее ширины. Дебби хочет купить чехол для бассейн, и ему нужно знать, сколько квадратных футов ей нужно покрыть.
Сколько квадратных футов ( 2 футов) занимает бассейн Дебби? ( подсказка: , если можешь, составьте алгебраическое уравнение для решения этой проблемы!) Чтобы решить эту проблему, мы должны составить алгебраическое уравнение.
Мы бы назвали ширину x,
и длина x + 2, потому что проблема говорит, что длина на 2 больше, чем
ширина. Мы знаем, что для определения периметра нам нужно сложить все четыре
стороны. Таким образом, наше уравнение будет выглядеть так: x + x + x + 2 + x + 2 = 64. Это
показано на схеме ниже: Когда мы объединяем одинаковые члены, мы получим 4x + 4 = 64.Затем мы продолжим решение
обычно путем вычитания 4 с каждой стороны, поэтому уравнение упростится до 4x =
60. Наконец, мы разделим каждую сторону на 4 (чтобы получить x отдельно), и мы получили бы
вывод x = 15. Таким образом, ширина бассейна составляет 15 футов. Однако длина
на 2 больше ширины, что означает, что нам придется прибавить 2 к ширине; 2 + 15
= 17.
Теперь у нас есть длина (17) и ширина (15).Вопрос задан для
площадь (квадратных футов) бассейна Дебби. Чтобы найти площадь, нужно умножить длину
раз больше ширины. Следовательно, вы должны умножить 17 x 15, что даст нам 255. Таким образом,
Дебби понадобится покрытие для ее бассейна размером 255 футов 2 .{255 | 255 кв. Футов | 255 кв. Футов | 255 кв. Футов | 255 кв. Футов | 255 футов 2 }
4.Гектор сажает квадратный сад перед своим домом. Он хочет посадить морковь в саду. Он знает, что может посадить морковь на расстоянии одного фута. У него шесть футов поперек двора (длина), и он может сажать морковь глубиной четыре фута (шириной).
Сколько квадратных футов ( 2 футов) он должен посадить морковь? Мы знаем, что площадь рассчитывается путем умножения длины на ширину, поэтому вы
умножит 4 х 6 и получит 24 квадратных фута как количество места, которое он может посадить
в.
{24 | 24 кв. Фута | 24 кв. Фута | 24 кв. Фут}
5. Аманда строит дом и пытается рассчитать площадь своей спальни. Она знает, что гостиная 22 фута в длину и 20 футов в ширину. Ей сказали, что ее спальня должна составлять половину площади гостиной.
Какой будет площадь ее спальни? Мы знаем, что проблема говорит о том, что площадь ее спальни будет составлять 1/2 площади
зал.Таким образом, нам для начала предстоит определиться с площадью гостиной.
Размеры гостиной 22 на 20 футов, поэтому нам нужно умножить
эти два числа вместе, чтобы получить площадь. 22 х 20 = 440 квадратных футов. Далее мы
нужно разделить это число на 2, потому что ее спальня составляет только половину площади этой
комната.
Итак, 440, разделенное на 2, равно 220. Следовательно, площадь комнаты Аманды будет
быть 220 футов 2 .
{220 | 220 фут. Кв. | 220 кв. Футов | 220 кв. Футов | 220 кв. Футов}
Что такое строительный карман? | Определение недвижимости
Что означает «строительный карман»?
Я помню, как много лет назад слышал термин «карманный участок» и подумал, о чем они говорят? Оказывается, определение кармана для строительства или участка «кармана для ног такого-то размера» нигде в Интернете не появляется.Итак, что означает «строительный карман»? Самым простым определением является то, что строительный карман — это максимальная ширина дома на определенном участке. Чем больше число, тем шире может быть дом. Этот термин широко используется в сфере недвижимости Эдмонтона и не является самым логичным. Я имею в виду, что у всех лотов есть определенный карманный размер, но многие объявления о продаже лотов просто называют их «карманными лотами».
Что вам действительно нужно знать, так это размер в футах. Это 36-футовый карман или 50-футовый карман (на который можно было бы надеть два тонких домика).
Агент по недвижимости объясняет строительный карман
Допустим, вы видите листинг 44-футового карманного лота. Это означает, что на этом участке может быть дом шириной 44 фута. Это означает, что участок больше, чем этот, то есть шире или с большей площадью фасада, что позволяет построить дом такого размера. Видите ли, у вас должно быть здание или дом в стороне от соседа и передней улицы, и у вас также должен быть задний двор (по крайней мере, в большинстве мест). Вы не строите прямо до линии участка.
Позвольте мне нарисовать вам картинку!
Карманные размеры для участков основаны на том, что есть граница, которую нельзя использовать вокруг земельного участка — это неудача.Это очень похоже на настоящий карман, скажем, на брюках. Телефон не поместится в слишком маленьком кармане. И хотя снаружи этот карман выглядит большим, внутри он меньше.
То же самое и со строительством дома. Скорее всего, вы не сможете застроить участок прямо до линии участка, вам нужно соблюдать зонирование участка и иметь недостатки спереди, по бокам и сзади. Вам нужно некоторое пространство между домами или постройками. Как это:
Объяснение примера трех лотов с карманом.
Итак, на приведенном выше рисунке крайний левый лот шире двух других.Это 44-футовый карман (44-футовый карман). Это означает, что дом может иметь ширину 44 фута. Два других лота уже, а значит, и их карманы уже. В этом примере участки шириной 50 футов допускают дом шириной 44 фута, тогда как участки шириной 42 фута допускают дом шириной 30 футов (карман 30 футов). Однако это всего лишь выдуманный пример. На всех участках действуют разные правила в зависимости от того, где они расположены и какой муниципалитет ими управляет. Кроме того, полезно знать, что этот термин обычно используется не для заполнения жилых домов, а для новостроек.
Почему это важно? Вы могли бы просто сказать потенциальному покупателю, насколько широк был лот, но в этом случае вы делаете для него математические расчеты.
Вы говорите им, что это 20-футовый карманный участок — что-то, что можно было бы использовать для тощего дома, — или что это 33-футовый участок, на котором можно построить довольно большой дом. Размеры карманов зависят от размера участка и зонирования. Чем больше участок, тем шире строительный карман. Чем уже участок, тем уже строительный карман. Но зонирование — тоже немаловажный фактор.Если участок зонирован определенным образом, и неудачи должны быть шире, то это съедает карман здания. Ознакомьтесь с планом зонирования и участка, чтобы узнать, насколько большой дом вы можете построить.
by + Alan F Macdonald REALTOR® | Авторские права © — gimme-shelter.com
[50094]
Дизайн дома шириной 18 м Perth
В Novus Homes мы предлагаем Вам на выбор широкий выбор двухэтажных домов шириной 18 метров. Если вы хотите увидеть весь наш ассортимент домов, просто воспользуйтесь инструментом выбора ниже, чтобы расширить критерии поиска.
В нашем ассортименте двухэтажных домов шириной 17 м сочетаются стиль, изысканность и высокий уровень технических характеристик, которые можно ожидать от любого дома Novus. Мы приглашаем вас ознакомиться с нашим ассортиментом домов, обращая внимание на детали дизайна и высокий уровень технических требований в каждом доме. Это в сочетании с отмеченными наградами высотами гарантирует, что при строительстве дома Novus вам будут завидовать ваши соседи!
Если вам посчастливилось владеть блоком шириной 18 метров, вы теперь в меньшинстве.По мере роста цен на землю вырос спрос на блоки меньшего размера, что означает, что застройщики были вынуждены создавать земельные участки по всему Перту, которые часто не могли вместить слишком много участков шириной 18 метров.
Однако, когда вы строите дом шириной 18 метров с Novus, нет никаких компромиссов. Вы получите опыт проектирования и строительства, который приходит только с опытом, а в нашем случае у нас его около 25 лет!
Наша собственная команда дизайнеров потратила сотни человеко-часов на создание ряда планов домов шириной 18 метров, которые не только выглядят потрясающе, но и разработаны специально для того, как семьи Перта хотят жить.
Все наши 18-метровые дома включают в себя гостиную открытой планировки, просторную зону под открытым небом для важнейшего образа жизни в помещении и на открытом воздухе, а также отдельный кабинет, театральную комнату или, возможно, игровую комнату для детей. Выберите 3 или 4 спальни, с главной спальней на первом или втором этаже.
Если вы хотите подробнее поговорить о том, как мы можем построить для вас идеальный двухэтажный дом шириной 18 м, просто свяжитесь с нами! Мы расскажем вам о нашем существующем ассортименте домов и подберем тот, который наиболее точно соответствует вашим требованиям.Или, если хотите, вы можете сесть с одним из наших консультантов по строительству и с чистого листа бумаги и создать индивидуальный дизайн 18-метрового дома с нуля. Выбор остается за вами!
и периметр прямоугольника
Covid-19 привел мир к феноменальному переходу.
За электронным обучением будущее уже сегодня.
Оставайтесь дома, оставайтесь в безопасности и продолжайте учиться !!!
Площадь и периметр прямоугольника поясняются ниже:Длина обозначена l, ширина (ширина) обозначена w (b), а диагональ обозначена d.Есть две длины, две ширины и две диагонали.
площадь и периметр прямоугольника
Формулы для площади и периметра прямоугольника приведены ниже: • Периметр прямоугольника = 2 (l + w) единиц
• Длина прямоугольника = p / 2 — w единиц
• Ширина (w) прямоугольника = p / 2 — l единиц
• Диагональ прямоугольника = √ (l 2 + w 2 ) единиц
• Площадь прямоугольника = lxw квадратных единиц
• Длина прямоугольника = A / w единиц
• Ширина прямоугольника = единицы A / l Некоторые решенные примеры по площади и периметру прямоугольника
1) Найдите периметр прямоугольника, длина и ширина которого составляют 25 м и 15 м соответственно.
Длина = l = 25 м и ширина = w = 15 м
∴ P = 2 (l + w)
⇒ = 2 (25 + 15)
⇒ = 2 x 40
⇒ = 80 м
Периметр = 80 м
__________________________________________________________________
2) Сколько прямоугольников можно нарисовать с периметром 36 см, учитывая, что стороны являются целыми положительными числами в см?
Решение:
Периметр = 36
⇒ 2 (l + w) = 36
⇒ l + w = 18
Поскольку длина и ширина являются положительными целыми числами в сантиметрах.Следовательно, возможные размеры:
(1, 17) см, (2, 16) см, (3, 15) см, (4, 14) см, (5,13) см, (6, 12) см, ( 7, 11) см, (8, 10) см, (9, 9) см.
Значит, прямоугольников 9.
_________________________________________________________________
4) Длина прямоугольного поля вдвое больше его ширины.
Мужчина обошел его 5 раз и преодолел расстояние 3 км. Какая длина поля? Решение:
При завершении одного раунда пройденная дистанция поля равна периметру поля.
∴ Пройденное расстояние за 5 раундов = 5 x Периметр
= 5 x 2 (l + w)
= 10 x (l + w)
= 10 x (2w + w) [длина = l = 2w]
= 10 x 3w
= 30 w
Но общее пройденное расстояние дается = 3 км = 3000 м.
∴ 30 x w = 3000
⇒ w = 3000/30
⇒ w = 100 м
⇒ Длина = 2 w = 2 x 100 = 200 м.
_________________________________________________________________
Некоторые решенные примеры по площади прямоугольника
1) Найдите площадь в гектарах поля длиной 240 м и шириной 110 м.
Решение:Длина = l = 240 м и ширина = w = 110 м
∴ Площадь поля = lxw
⇒ = 240 x 110
= 26 400 м 2
= 26 400/10 000 [Начиная с 10 000 м 2 = 1 га]
Площадь поля = 2,64 га
________________________________________________________________
2) Дверная коробка размером 4 м x 5 м закрепляется на стене размером 11 м 11 м.
Найдите общие затраты на оплату труда для покраски стены, если затраты на оплату труда на покраску 1 м 2 стены составляют 2 доллара.50. Решение:
Окраска стены должна выполняться без учета площади двери
Площадь двери = lxw
= 4 x 5
= 20 м 2
Площадь стены, включая дверь = сторона x сторона
= 11 x 11
= 121 м 2
Площадь стены без двери = (121-20) м 2
= 101 м 2
Итого трудозатраты на покраску стены
= 2,50 доллара x 101
= 252,50 $
________________________________________________________________
3) Найдите ширину прямоугольного участка земли, если его площадь составляет 440 м 2 , а длина — 22 м.
Также найдите его периметр. Решение:
Площадь прямоугольного листа = 440 м 2
Длина (l) = 22 м
Площадь прямоугольника = lxw (где w = ширина прямоугольного участка
Следовательно, ширина (w) = Площадь / l = 440/22 = 20 м
Периметр листа = 2 (l + w)
= 2 (22 + 20) м
= 84 м
Итак, ширина прямоугольного участка 20 м, периметр 84 м.
_________________________________________________________________
3) Прямоугольный сад имеет длину 90 м и ширину 75 м.Вокруг него построят дорожку шириной 5 м. Найдите участок пути. Решение:
Тогда ясно, что
Площадь пути = Площадь прямоугольника EFGH — Площадь прямоугольника ABCD
Из рисунка имеем
EF = 90 + 5 + 5
= 100 м
и FG = 75 + 5 + 5 = 85 м
Теперь площадь прямоугольника EFGH = 100 x 85 = 8500 м 2
И площадь прямоугольника ABCD = 90 x 75 = 6750 м 2
Следовательно,
Площадь пути = Площадь прямоугольника EFGH — Площадь прямоугольника ABCD
= 8500 — 6750
= 1750 м 2
________________________________________________________________ Измерение: площадь и периметр прямоугольника
• Периметр и площадь неправильной формы
• Площадь и периметр прямоугольника
• Площадь квадрата (периметр квадрата)
• Периметр параллелограмма (Площадь параллелограмма)
• Площадь ромба (периметр ромба)
• Площадь трапеции (трапеции)
• Площадь треугольника (периметр треугольника)
• Формула Цапли
Математика 7-го класса
Home
Covid-19 повлиял на физическое взаимодействие между людьми.
Не позволяйте этому влиять на ваше обучение.
Средний размер дома Австралия: Сколько квадратных метров стандартно?
Каковы размеры домов в Австралии по сравнению с домами в других странах?
Несмотря на то, что средний размер австралийского дома был рекордно низким — 186,3 кв. М, австралийцы по-прежнему строят большие отдельно стоящие дома, хотя средний размер в 2017/18 году снизился, согласно отчету CommSec и Австралийского статистического бюро.
Средний размер нового дома, построенного в 2017/18 году, составлял 230,8 кв.м, что на 0,9% меньше, чем в прошлом году, но средний дом на 8% больше, чем 20 лет назад.
Фактически, средний дом, построенный сегодня, почти на 30% больше, чем 31–32 года назад в 1987/88 финансовом году.
Австралия все еще строит одни из самых больших домов в мире, но в среднем дома в США все еще больше примерно на 6%. В то время как в США дома (дома и квартиры) больше на 8%.
Дома в Новой Зеландии около 172.1 кв.м, что примерно на 8 процентов меньше, чем в Австралии, а в Канаде примерно на 10 процентов меньше.
Различается ли средний размер дома в зависимости от штата?
Викторианцы строят самые большие дома в Австралии со средней площадью дома 244,8 кв.м, опережая ACT на 242,3 кв.м, Западную Австралию 235,3 кв.м и Квинсленд 230,8 кв.м.
Самые маленькие новые дома были построены на Северной территории 181,8 кв.м, Тасмании 186,8 кв.м и 220,3 кв.м Нового Южного Уэльса.
СВЯЗАННЫЙ: Так выглядит идеальный австралийский дом
Сколько человек в среднем живет в австралийских домах?
С момента проведения первой переписи населения в 1911 году и вплоть до 2006 года количество людей на одно жилище постоянно снижалось.![]()
В 1911 году в каждом доме было в среднем 4,5 человека, но к 2006 году это соотношение сократилось почти вдвое и составило примерно 2,4 человека в каждом доме.
Строилось не только больше домов, но и другие факторы, такие как меньший размер средней семьи, в семьях было меньше детей, больше разводов и меньше браков, что привело к уменьшению размера семей.
Какова средняя стоимость строительства среднего австралийского дома?
К сожалению, однозначного ответа нет.По данным realestate.com, первое, что нужно учитывать, — это стоимость земли, которая в среднем по стране составляет 746 долларов за квадратный метр.
На стоимость строительства влияет множество факторов, но, по данным Австралийского статистического бюро (ABS), в июне 2018 года средний показатель по Австралии составлял 1270,80 долларов за кв.
Однако эта цифра не включает проектирование, разрешения на планирование, любые работы на стройплощадке или какие-либо расходы на выбросы мусора.
Вам также может понравиться
Руководство BHG по домовладению
Это австралийский дом года
10 самых рискованных мест для покупки недвижимости в 2020 году
проектов новых домов и планов домов, Сидней и Ньюкасл
Eden Brae гордится тем, что проектирует новые современные дома.Когда дело доходит до стиля и соотношения цены и качества, у нас есть отличная команда, которая уделяет особое внимание своей работе, создавая изысканный и элегантный дизайн нового дома. Мы предлагаем широкий выбор стилей дизайна и размеров блоков на любой бюджет.
Являясь одним из самых надежных строителей дома в Сиднее, у нас есть дома от Сиднея до Ньюкасла, Центрального побережья и регионов Хантер-Вэлли и вплоть до Иллаварры. Мы строим во многих прекрасных местах в столичных районах Сиднея и за эти годы помогли многим покупателям жилья.
Ищете ли вы недвижимость для будущих инвестиций, дом для семьи или элитное заведение, у нас есть ряд планов домов и новых проектов домов, отвечающих вашим потребностям.
Наша репутация — одна из самых сильных в отрасли. Имея за плечами более 30 отраслевых наград, мы с энтузиазмом относимся к качественному обслуживанию клиентов и исключительному строительству и дизайну домов, постоянно стремясь сделать наших клиентов счастливыми. На нас можно положиться благодаря отличному обслуживанию клиентов и качественному дизайну дома.
Благодаря доступным ценам и широкому выбору из нашей новой великолепной серии товаров для дома, вы будете избалованы выбором. Мы создали коллекцию домов разных размеров, которые предлагают непревзойденную ценность. Вы можете выбрать одну из наших выбранных серий по дизайну дома, чтобы помочь вам найти идеальный дом.
Каждый заслуживает шанс попасть в «великую австралийскую мечту». Представляем серию Accent, избранную коллекцию фирменных домов различных размеров, которые являются современными, стильными и, что самое главное, доступными по цене, что делает их подходящими для любого первого покупателя жилья.
Серия Accent доступна исключительно для зарегистрированной земли или земельной регистрации в течение 6 месяцев. Есть ограниченные продажи в месяц, и некоторые ограничения применяются к строительным площадям. Если вы ищете непревзойденную ценность, не ищите ничего, кроме нашей серии преимуществ.
Эти впечатляющие дизайны домов предлагают любому, кто впервые покупает дом, широкий выбор. Дома серии Advantage просторные, современные и удобные, со стилем и доступной ценой, они подходят для любого бюджета. Серия Lifestyle Home Design — это отмеченный наградами шикарный современный дизайн, идеально подходящий для открытой планировки.Эти дома с выдающимися включениями и исключительными возможностями идеально подходят для семейного проживания. Если вам больше по душе роскошные дома, наша линейка Prestige Series предлагает высококачественные включения и большие стильные дома. Подумайте о кухне и столовой на открытом воздухе, просторных спальнях и высококачественной отделке. Наши инновационные и стильные элементы демонстрируют лучшее в архитектурном дизайне.
Семейные дома Eden Brae просторные, современные и удобные, с общими и частными помещениями, идеально подходят для любой семьи.Благодаря высококачественным включениям и опциям мы удовлетворяем потребности каждого.
Почему бы не сделать свой дом немного более уникальным, добавив дополнительные аксессуары? Ослепите своих гостей театральным залом или добавьте нотку дизайна на открытом воздухе. Все наши дома тщательно спроектированы с вдохновляющими планами домов и современными элементами, подходящими для любого образа жизни.
Наслаждайтесь изучением нашего обширного ассортимента новых одно- и двухэтажных новых домов с прекрасным дизайном. Если у вас есть дополнительные вопросы или вы хотите просмотреть один из наших демонстрационных домов, свяжитесь с нами.
Позвольте нам помочь вам найти это идеальное место, которое можно назвать домом!
Индекс площадив ведущих городах Индии
Что такое FAR / FSI в Индии и почему в него время от времени вносятся поправки? Индекс площади пола (FSI) или Коэффициент площади пола (FAR) — важные слова, используемые в сфере недвижимости.
Это соотношение между общей застроенной площадью и доступной площадью участка. Это разрешено правительством для конкретной местности. Он в первую очередь описывает отношение общей покрытой площади застройки к общему размеру участка.Иногда это называют коэффициентом площади пола (FSR), соотношением площади пола (FAR), соотношением площадок или площадей. Нормы FSI обычно основаны на Национальном строительном кодексе.
Здания с разной этажностью могут иметь одинаковые значения FAR. Каждый город имеет ограниченную вместимость или ограниченное пространство, которое можно безопасно использовать. Любое использование, превышающее этот предел, создает ненужную нагрузку на город.
Для города или страны значение FSI / FAR может время от времени изменяться в зависимости от роста каждого города, улучшенной стоимости земли, мощности, водоснабжения и канализации.
FAR может отличаться, потому что динамика населения, модели роста, строительные упражнения и характер земли или пространства, где находится здание, различаются.
Промышленные, жилые, коммерческие, сельскохозяйственные и несельскохозяйственные помещения имеют разные коэффициенты безопасной нагрузки, поэтому обычно у них разные FAR.
FAR — важный решающий фактор для развития любой страны или города. Низкий FAR — обычное препятствие для строительства. Многие отрасли, в основном отрасль недвижимости, хотят, чтобы подъемы в FAR раскрыли пространство и земельные ресурсы для разработчиков.Повышенный FAR позволяет застройщику реализовывать больше строительных проектов, что обязательно указывает на рост продаж, снижение затрат на проект и обширное предложение для удовлетворения спроса.
Основной результат:- Отношение площади этажа — это отношение общей полезной площади здания к общей площади участка.
- Более высокий коэффициент указывает на густонаселенную или высоко урбанизированную территорию.
- FAR будет отличаться в зависимости от типа структуры, например, промышленной, жилой, коммерческой или сельскохозяйственной.

- Дели:
В соответствии с пересмотренным Генеральным планом Дели на 2021 год, единый коэффициент площади (FAR) как для жилой, так и для коммерческой недвижимости, позволяет упорядочить незаконное строительство. Это означает, что FAR для 100 кв.м раньше был переменной величиной от 1,8 до 2,25, но теперь он утвержден как единый 3,5 для 100 кв.м.
Нет ограничений FAR для проектов группового жилья, в то время как участки в зонах влияния и коридорах метро имеют более высокий FSI.Проекты редевелопмента в Дели оцениваются по FSI в размере 4.
.- Мумбаи:
Жилой FSI для островного города был повышен до 3,0, а коммерческий до 5,0 с 1,3 для обоих. В пригородах FSI для жилых проектов был увеличен до 2,5 с 2,0, а для коммерческих он составляет 5,0 против 2,5.
- Калькутта:
В соответствии с Правилами строительства Нового города Калькутты, 2009 г.
, диапазон FSI для жилых домов в Калькутте составляет от 1 до 1.5 и 2.5. Лимит устанавливается в зависимости от землепользования, ширины дороги, плотности и т. Д.
Недавно гражданское общество Калькутты внесло определенные изменения в коэффициент площади пола (FAR), чтобы позволить владельцам собственности добавить дополнительный этаж. Это означает, что теперь они получат 3000 квадратных футов дополнительного пространства для строительства, что эквивалентно строительству дополнительного этажа.
Проекты недвижимости в Калькутте, которые строятся в пределах одного километра от любой линии / маршрута / коридора метро, будут иметь право на 20% более высокую площадь этажа по сравнению с площадью, которая была разрешена ранее.Квартиры, выходящие на дорогу шириной от 15 до 24 м, могут претендовать на добавленную площадь в размере 15%. Если ширина дороги превышает 24 м, она может увеличиваться до 20%. Отношение площади пола — это отношение общей площади здания к размеру участка.
- Ченнаи:
Недавно правительство Тамилнада приняло постановление, в котором говорится, что допустимый предел для FSI в Ченнаи составляет 2,0, что является увеличением на 0,5 и имеет ретроспективный эффект с 1 октября 2018 года.Хотя увеличение FSI не будет применяться в экологически уязвимых районах, таких как Зона подпитки водоносных горизонтов, Зона водосбора Красных холмов и Зона прибрежного регулирования.
Строительство жилых домов / зданий в Ченнаи в соответствии со 2-м Генеральным планом Ченнаи на 2026 год соответствует пределу FSI 1,5 для обычных жилых домов и 2 для высотных зданий.
В соответствии с Уведомлением о прибрежной зоне регулирования (CZR) 2011 года, индекс площади пола (FSI) или коэффициент площади пола (FAR) был остановлен.С другой стороны, в уведомлении CRZ 2019 правительство штата решило разморозить FSI и разрешить строительство.
- Ахмедабад:
После введения в действие новых правил Общего контроля за застройкой (GDCR), которые разрешают собственникам и застройщикам реконструировать здания высотой 25 метров с более высокой удельной площадью (FAR) вдоль дорог шириной менее 18 метров.
.
FSI в лучших населенных пунктах Ахмедабад — 1.2, а для населенных пунктов в пригородах — до 1,8.
Согласно новым правилам, владельцам недвижимости будет предоставлен индекс жилой площади (FSI) 1,8, после чего у них будет возможность воспользоваться оплачиваемой FSI до 2,9, что позволит владельцам недвижимости реконструировать свои старые дома.
- Бангалор:
Предлагаемый FSI варьируется от 2 до 5, в зависимости от размера участка и дороги, и направлен на поощрение вертикального роста и более широких открытых пространств в виде зон отступления.Таким образом, новая политика принесет пользу объектам, расположенным вдоль метро, пригородных и автобусных коридоров.
Новый ФАР жилого назначения:Размер Участка (Кв. М) | Ширина дороги | Существующий FAR | Допустимое FSI | |
Стандарт | Интенсивный | |||
До 360 | До 12 м | 1. | 2,00 | 2,00 |
360–1 000 | от 12 до 18 м | 2,25 | 3,00 | 3,00 |
1 000–2 000 | от 18 до 24 м | 2,50 | 3,25 | 4,00 |
2 000–4 000 | от 24 до 30 м | 3.00 | 3,75 | 4,50 |
4,000-20,000 | Выше 30 м | 3,25 | 4,25 | 5,00 |
Размер Участка (Кв. | Ширина дороги | Существующий FAR | Допустимое FSI | |
Стандарт | Интенсивный | |||
До 12 000 | Менее 9 м | 1.50 | 2,00 | 2,00 |
9–12 м | 1,75 | 2,50 | 2,50 | |
от 12 до 18 м | 2,25 | 3,00 | 3,00 | |
от 18 до 24 м | 2.50 | 3,50 | 4,00 | |
от 24 до 30 м | 3,00 | 4,00 | 4,50 | |
Выше 20 м | 3,25 | 4,25 | 5,00 | |
- Хайдарабад:
Хайдарабад не вводил ограничений FSI, которые косвенно повлияли на рост цен на недвижимость.
Однако местный отдел управления и городского развития (MA&UD) принимает во внимание повторное введение правила индекса жилой площади (FSI) для высотных зданий в Телангане.
- Гургаон:
По новым правилам, FAR для жилых участков в Gurgaon площадью 75 кв.м будет 2,64, а для 251 кв.м до более 500 кв.м — 2,40.
Ставка увеличенного FAR также варьируется от 485 до 8 070 рупий за кв.м в зависимости от потенциала зон. Аналогичным образом, для жилых домов площадью от 75 до 250 кв.м площадь покрытия земли составляет 66%, а для домов площадью от 251 кв.м до более 500 кв.м — 60%.
- Ноида:
Для развития жилищного сектора в Нойда и Большая Нойда правительство штата предоставило дополнительную площадь (FAR) вдоль недавно действующей линии метро Aqua, соединяющей Сектор 52 и Большую Нойду.
Это означает, что теперь застройщикам разрешено добавлять больше этажей в свои высотные конструкции. Управление промышленного развития Gr Noida (GNIDA) проехало FAR в пределах 500 метров от коридора метро Noida-Gr Noida, Aqua-Line от 3,5 до 4. Предлагаемый поход будет применим к текущим и будущим жилым проектам в регионе.
Для Нойды и Большой Нойды значение FSI находится между 2,75 и 4, проектам группового жилья предоставляется FAR 3,5. Производственным зданиям предоставляется максимум FAR 1.5, в то время как коммерческие здания имеют максимальное значение FAR 4, в зависимости от высоты здания и площади покрытия.
- Пуна:
В марте 2019 года правительство штата объявило о политике развития, ориентированной на транзит, в радиусе 500 метров вокруг станций метро в Пуне и установило индекс максимально допустимой площади (FSI) на уровне 4. FSI составляет до 4 и зависит от размера участка и ширины дороги.
Правительство штата также поставило условие о ширине дороги и размере участка для получения 4 FSI.
Ширина дороги (в метрах) | Минимальная площадь участка (кв.м) | Максимально допустимый FSI |
9–12 м | Менее 1000 | 2 |
от 12 до 18 м | Более 1000 | 2,5 |
от 18 до 24 м | Более 2,000 | 3 |
от 24 до 30 м | Более 3000 | 3.5 |
30 м и более | Более 4000 | 4 |
FSI можно рассматривать как ограничение, но у него есть свои преимущества в городе или месте, где строительство идет с огромной скоростью.
- Управляет соотношением открытого и освоенного пространства.
- Управляет формой города.
- Среднее значение FSI обеспечивает стабильное развитие проекта.
- Необходимо поддерживать баланс между поддерживаемым, запланированным ростом и развитием.
Например, если FSI / FAR равен 1, а общая площадь участка составляет 2 000 кв. Футов, то максимальная площадь здания не должна превышать 2 000 кв. Футов. FAR не имеет многих ограничений на количество этажей в здании, за исключением высоты и других ограничений, которые муниципальные органы или органы развития имеют в определенных областях и зонах.Таким образом, можно построить двухэтажное здание площадью 1000 кв. Футов. или четыре этажа с 500 кв. футов. каждый. FSI, однако, запрещает общественные удобства, такие как общая территория, парковка, внутреннее открытое пространство, трубы и подвал, полностью используемые для парковки.
Эти площади исключаются при расчете FSI.
FSI рассчитывается по следующей формуле:
Индекс площади пола = Коэффициент площади пола (FAR) рассчитывается путем деления общей площади этажа здания на общую площадь участка.
Какое допустимое значение индекса площади пола (FSI) и от факторов, от которых оно зависит?Допустимое значение индекса площади помещения (FSI) в разных местах различается. Это также зависит от типа постройки. Значение коэффициента FSI для конкретной области легко увидеть во всех подзаконных актах о строительстве для разных городов и муниципалитетов. В разных городах или муниципалитетах могут быть разные уставы и, соответственно, разные значения FSI.
Допустимое значение FSI / FAR зависит от:
- Размер участка
- Тип здания (жилое, коммерческое, институциональное, культовое и т.
Д.) - Ширина прилегающей дороги
- Наличие линий электричества, воды, канализации
Коэффициент площади пола (FAR) может применяться в плане для ограничения городской плотности. Хотя он напрямую ограничивает плотность застройки, косвенно он также ограничивает количество людей, которые может включать в себя здание, без управления внешней формой здания.
Какое влияние оказывает FAR на стоимость земли?FAR оказывает существенное влияние на стоимость земли .Чем выше допустимый FAR, тем выше стоимость земли.
Зачем нам нужны FSI & FAR? FSI / FAR необходим для ограничения нагрузки на городские ресурсы и считается хорошей мыслью. В городе должно быть 25% парковой зоны и 25% дорожной площади. Остальные 50% площади должны иметь FSI / FAR 4.0. Таким образом, мы не обременяем городские ресурсы, а также сохраняем зеленую территорию с меньшим трафиком из-за меньшего расстояния до работы.
FSI регулируется Департаментом городского и сельского планирования (DTCP).
Что такое FSI премиум-класса?Premium FSI, если вам нужно увеличить допустимый индекс жилой площади, вы должны заплатить государственную пошлину. Чтобы получить этот FSI, прилегающая дорога к земле должна быть 30 футов.
- Ширина дороги от 30 до 40 футов — 20% Premium FSI
- Ширина дороги от 40 до 60 футов — 30% Premium FSI
- Ширина дороги более 60 футов — 40% Premium FSI
Если к земельному участку здания примыкает проезжая часть длиной 30-40 футов, то вы можете воспользоваться премиальной FSI в размере 20%, что означает, что вы можете построить на 20% больше, чем допустимая FSI.
Что такое FSI в Бангалоре? Согласно пересмотренному генеральному плану Бангалора на 2015 год, FSI отличается от 1,75 для небольших участков до 3,35 для больших участков с учетом таких факторов, как площадь, строительная активность, размер участка и ширина дороги.
FSI в Бангалоре регулируется Департаментом городского и сельского планирования (DTCP).
Разница между FAR и FSI состоит в том, что первое является соотношением, а второе — индексом.Номера индексов — это значения, выраженные в процентах от единой базовой цифры. Следовательно, FAR, равный 1,5, адаптирован как FSI, равный 150%.
Какая максимальная площадь пола?Коэффициент площади этажа (FAR) — это отношение между общей полезной площадью этажа здания и общей площадью участка, на котором стоит здание. Это зависит от множества факторов, упомянутых выше. Чем выше соотношение площадей, тем больше вероятность плотной или городской застройки.Местные органы власти используют FAR для кодов зонирования.
Балкон или терраса входит в дальнюю? Он покрывает ширину внутренней стены, но не включает балкон или террасу. Технически расстояние между внутренними стенами — это площадь коврового покрытия.
Кроме того, лестница будет только в том случае, если она находится внутри квартиры, но балкон, лифт, вестибюль и т. Д. Не будут закрывать ковровое покрытие.
Это отношение общей площади дома к общей площади участка.Застроенная площадь будет охватывать основную конструкцию, стены, лестницу или вестибюль.
Подвал входит в дальний?Для коммерческих целей: Правительство разрешает вам строить офисы в подвалах. Однако в этом случае при расчете практики FAR будет добавлено место.
Для группового жилья: строительство подвала разрешено для парковки, коммунальных услуг и услуг, но они не включены в FAR.
.

Под таким вторым этажом нередко располагают террасу.

Дом следует разместить так, чтобы его торцевые стены были направлены на восток и запад. Тогда лучи солнца будут освещать комнаты по всей длине.
Это можно сделать посредством арок, кустов, деревьев и шпалер. При этом изолировать зоны не нужно. Так можно избежать превращение узкого участка в несколько небольших частей.
Одной из старорусских мер длины считался ар, так вот в нем согласно современной системе исчисления ровно 100 квадратных метров или одна сотка. Чтобы стало окончательно понятно — это 10 метров в длину и столько же в ширину.
75
М)
Д.)
Добавить комментарий